Крупнейшая бесплатная информационно-справочная система онлайн доступа к полному собранию технических нормативно-правовых актов РФ. Огромная база технических нормативов (более 150 тысяч документов) и полное собрание национальных стандартов, аутентичное официальной базе Госстандарта. GOSTRF.com - это более 1 Терабайта бесплатной технической информации для всех пользователей интернета. Все электронные копии представленных здесь документов могут распространяться без каких-либо ограничений. Поощряется распространение информации с этого сайта на любых других ресурсах. Каждый человек имеет право на неограниченный доступ к этим документам! Каждый человек имеет право на знание требований, изложенных в данных нормативно-правовых актах!

  


 

ГОСТ Р ЕН 1434-6-2006

Теплосчетчики. Часть 6. Установка, ввод в эксплуатацию, контроль, техническое обслуживание

Обозначение:ГОСТ Р ЕН 1434-6-2006
Текущий статус документа: заменён
Название документа рус.:Теплосчетчики. Часть 6. Установка, ввод в эксплуатацию, контроль, техническое обслуживание
Название документа англ.:Heat meters. Part 6. Installation, commissioning, operational monitoring and maintenance
Дата актуализации текста:01.12.2013
Дата издания:09.10.2006
Дата введения:01.01.2007
Дата последнего изменения:20.06.2013
Дата окончания срока действия:01.03.2013
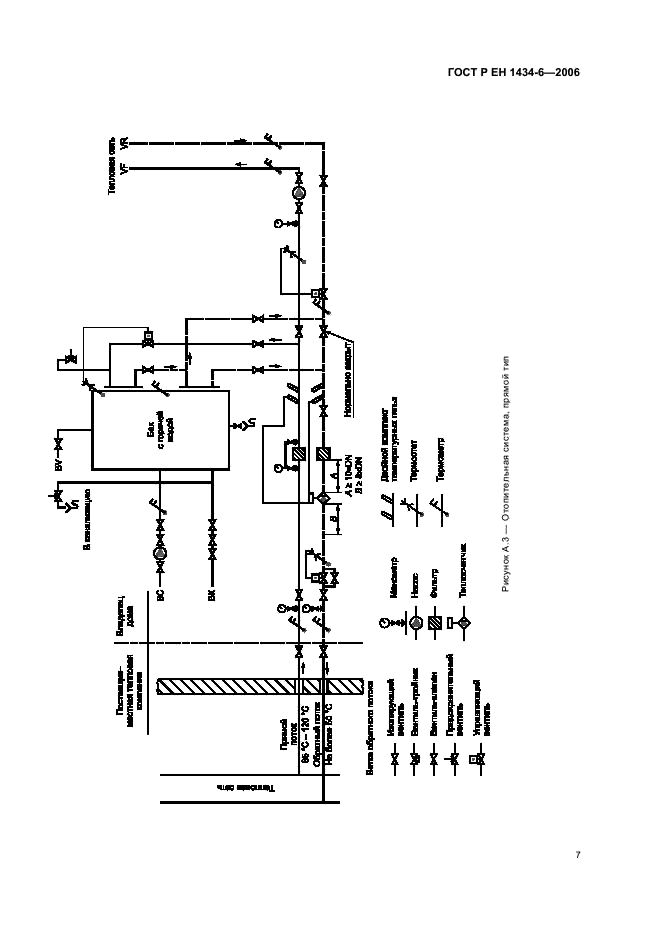
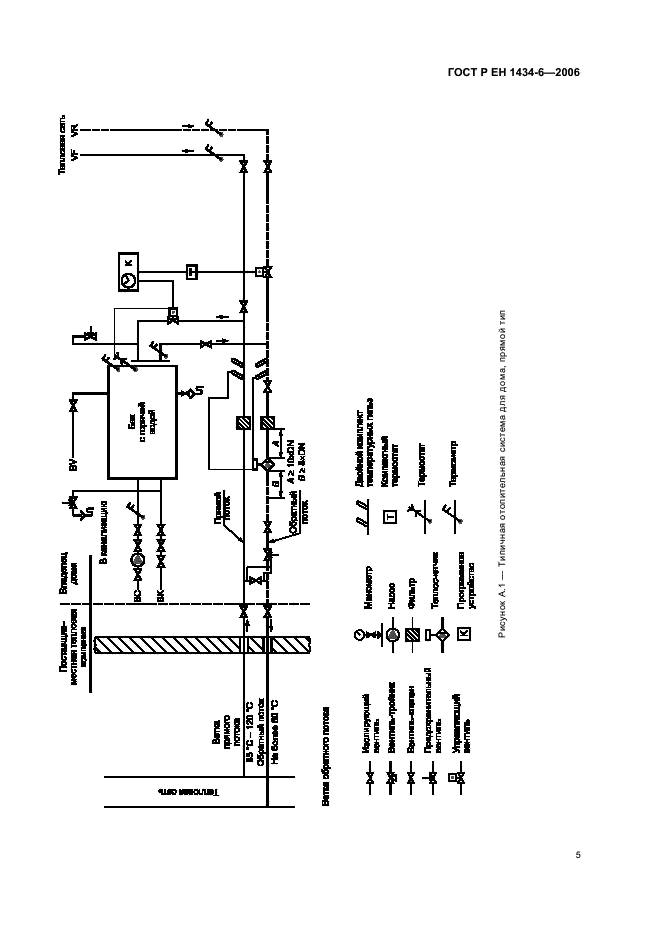
Область применения:Настоящий стандарт распространяется на одноканальные теплосчетчики, предназначенные для измерений тепловой энергии, которую поглощает или отдает в системах водяного теплоснабжения теплоносящая жидкость, и устанавливает минимальные требования к документации, конструкции, установке и вводу в эксплуатацию теплосчетчиков, обеспечивающие их надежную эксплуатацию в течение установленного срока.
Настоящий стандарт не устанавливает требования электробезопасности
ГОСТ Р ЕН 1434-6-2006ГОСТ Р ЕН 1434-6-2006ГОСТ Р ЕН 1434-6-2006ГОСТ Р ЕН 1434-6-2006ГОСТ Р ЕН 1434-6-2006ГОСТ Р ЕН 1434-6-2006ГОСТ Р ЕН 1434-6-2006ГОСТ Р ЕН 1434-6-2006ГОСТ Р ЕН 1434-6-2006ГОСТ Р ЕН 1434-6-2006ГОСТ Р ЕН 1434-6-2006ГОСТ Р ЕН 1434-6-2006ГОСТ Р ЕН 1434-6-2006ГОСТ Р ЕН 1434-6-2006ГОСТ Р ЕН 1434-6-2006
 




ГОСТЫ, СТРОИТЕЛЬНЫЕ и ТЕХНИЧЕСКИЕ НОРМАТИВЫ.
Некоммерческая онлайн система, содержащая все Российские Госты, национальные Стандарты и нормативы.
В Системе содержится более 150000 файлов нормативно-технической документации, действующей на территории РФ.
Система предназначена для широкого круга инженерно-технических специалистов.

Рейтинг@Mail.ru Яндекс цитирования

Copyright © www.gostrf.com, 2008 - 2026