Крупнейшая бесплатная информационно-справочная система онлайн доступа к полному собранию технических нормативно-правовых актов РФ. Огромная база технических нормативов (более 150 тысяч документов) и полное собрание национальных стандартов, аутентичное официальной базе Госстандарта. GOSTRF.com - это более 1 Терабайта бесплатной технической информации для всех пользователей интернета. Все электронные копии представленных здесь документов могут распространяться без каких-либо ограничений. Поощряется распространение информации с этого сайта на любых других ресурсах. Каждый человек имеет право на неограниченный доступ к этим документам! Каждый человек имеет право на знание требований, изложенных в данных нормативно-правовых актах!

  


 

ГОСТ 3.1105-84

Единая система технологической документации. Формы и правила оформления документов общего назначения

Обозначение:ГОСТ 3.1105-84
Текущий статус документа: заменён
Название документа рус.:Единая система технологической документации. Формы и правила оформления документов общего назначения
Название документа англ.:Unified system of technological documentation. Forms and rules of making general-purpose documents
Дата актуализации текста:01.12.2013
Дата издания:01.12.2005
Дата введения:01.01.1986
Дата последнего изменения:22.05.2013
Дата окончания срока действия:01.01.2012
Переиздание:переиздание с изм. 1
Взамен в части:, кроме разд. 5, 6
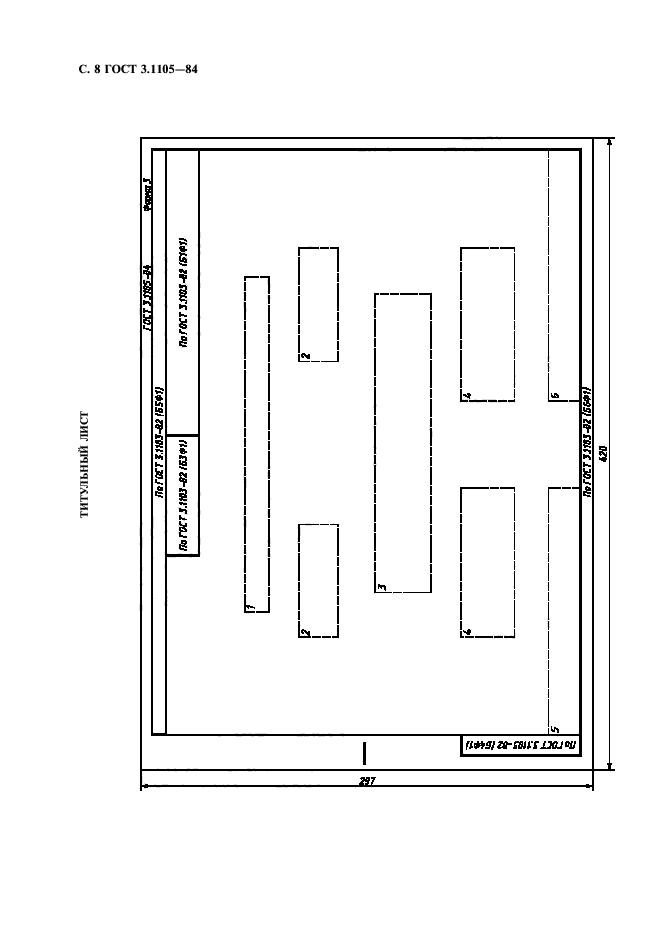
Область применения:Настоящий стандарт устанавливает формы и правила оформления технологических документов общего назначения: титульного листа, технологической инструкции и карты эскизов, разрабатываемых с применением различных методов проектирования
Список изменений:№1 от 01.03.1991 (рег. 26.07.1990) «Срок действия продлен»
ГОСТ 3.1105-84ГОСТ 3.1105-84ГОСТ 3.1105-84ГОСТ 3.1105-84ГОСТ 3.1105-84ГОСТ 3.1105-84ГОСТ 3.1105-84ГОСТ 3.1105-84ГОСТ 3.1105-84ГОСТ 3.1105-84ГОСТ 3.1105-84ГОСТ 3.1105-84ГОСТ 3.1105-84ГОСТ 3.1105-84ГОСТ 3.1105-84ГОСТ 3.1105-84ГОСТ 3.1105-84ГОСТ 3.1105-84ГОСТ 3.1105-84ГОСТ 3.1105-84ГОСТ 3.1105-84ГОСТ 3.1105-84ГОСТ 3.1105-84
 




ГОСТЫ, СТРОИТЕЛЬНЫЕ и ТЕХНИЧЕСКИЕ НОРМАТИВЫ.
Некоммерческая онлайн система, содержащая все Российские Госты, национальные Стандарты и нормативы.
В Системе содержится более 150000 файлов нормативно-технической документации, действующей на территории РФ.
Система предназначена для широкого круга инженерно-технических специалистов.

Рейтинг@Mail.ru Яндекс цитирования

Copyright © www.gostrf.com, 2008 - 2026