Крупнейшая бесплатная информационно-справочная система онлайн доступа к полному собранию технических нормативно-правовых актов РФ. Огромная база технических нормативов (более 150 тысяч документов) и полное собрание национальных стандартов, аутентичное официальной базе Госстандарта. GOSTRF.com - это более 1 Терабайта бесплатной технической информации для всех пользователей интернета. Все электронные копии представленных здесь документов могут распространяться без каких-либо ограничений. Поощряется распространение информации с этого сайта на любых других ресурсах. Каждый человек имеет право на неограниченный доступ к этим документам! Каждый человек имеет право на знание требований, изложенных в данных нормативно-правовых актах!

  


 

ГОСТ Р 41.16-2005

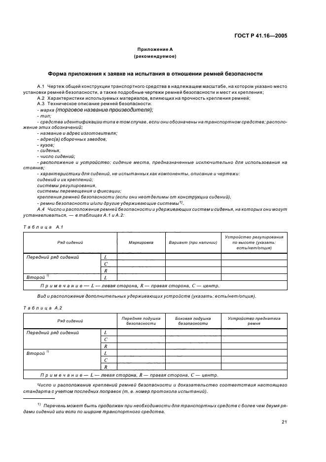
Единообразные предписания, касающиеся: 1. Ремней безопасности и удерживающих систем для пассажиров и водителей механических транспортных средств; II. Транспортных средств, оснащенных ремнями безопасности

Обозначение:ГОСТ Р 41.16-2005
Текущий статус документа: действующий
Название документа рус.:Единообразные предписания, касающиеся: 1. Ремней безопасности и удерживающих систем для пассажиров и водителей механических транспортных средств; II. Транспортных средств, оснащенных ремнями безопасности
Название документа англ.:Uniform provisions concerning the type approval of: 1. Safety-belts and restraint systems for occupants of power-driven vehicles; II. Vehicles equipped with safety-belts
Дата актуализации текста:01.12.2013
Дата издания:27.02.2006
Дата введения:30.06.2006
Дата последнего изменения:22.05.2013
Область применения:Настоящий стандарт применяется к ремням безопасности и удерживающим системам, устанавливаемым в механических транспортных средствах, имеющих три колеса и более, и предназначенным для индивидуального пользования (в качестве индивидуального устройства) лицом, занимающим сиденье, расположенное в направлении движения либо против направления движения, а также к транспортным средствам, оснащенным такими ремнями безопасности
Список изменений:№0 от 01.08.2006 (рег. 01.08.2006) «Дата введения перенесена»
Приложение №1:Поправка к ГОСТ Р 41.16-2005
ГОСТ Р 41.16-2005ГОСТ Р 41.16-2005ГОСТ Р 41.16-2005ГОСТ Р 41.16-2005ГОСТ Р 41.16-2005ГОСТ Р 41.16-2005ГОСТ Р 41.16-2005ГОСТ Р 41.16-2005ГОСТ Р 41.16-2005ГОСТ Р 41.16-2005ГОСТ Р 41.16-2005ГОСТ Р 41.16-2005ГОСТ Р 41.16-2005ГОСТ Р 41.16-2005ГОСТ Р 41.16-2005ГОСТ Р 41.16-2005ГОСТ Р 41.16-2005ГОСТ Р 41.16-2005ГОСТ Р 41.16-2005ГОСТ Р 41.16-2005ГОСТ Р 41.16-2005ГОСТ Р 41.16-2005ГОСТ Р 41.16-2005ГОСТ Р 41.16-2005ГОСТ Р 41.16-2005ГОСТ Р 41.16-2005ГОСТ Р 41.16-2005ГОСТ Р 41.16-2005ГОСТ Р 41.16-2005ГОСТ Р 41.16-2005ГОСТ Р 41.16-2005ГОСТ Р 41.16-2005ГОСТ Р 41.16-2005ГОСТ Р 41.16-2005ГОСТ Р 41.16-2005ГОСТ Р 41.16-2005ГОСТ Р 41.16-2005ГОСТ Р 41.16-2005ГОСТ Р 41.16-2005ГОСТ Р 41.16-2005ГОСТ Р 41.16-2005ГОСТ Р 41.16-2005ГОСТ Р 41.16-2005ГОСТ Р 41.16-2005ГОСТ Р 41.16-2005ГОСТ Р 41.16-2005ГОСТ Р 41.16-2005ГОСТ Р 41.16-2005ГОСТ Р 41.16-2005ГОСТ Р 41.16-2005ГОСТ Р 41.16-2005ГОСТ Р 41.16-2005ГОСТ Р 41.16-2005ГОСТ Р 41.16-2005ГОСТ Р 41.16-2005ГОСТ Р 41.16-2005ГОСТ Р 41.16-2005ГОСТ Р 41.16-2005ГОСТ Р 41.16-2005ГОСТ Р 41.16-2005ГОСТ Р 41.16-2005ГОСТ Р 41.16-2005ГОСТ Р 41.16-2005ГОСТ Р 41.16-2005ГОСТ Р 41.16-2005

Поправка к ГОСТ Р 41.16-2005

Обозначение:Поправка к ГОСТ Р 41.16-2005
Дата введения:01.08.2006


Поправка к ГОСТ Р 41.16-2005
 




ГОСТЫ, СТРОИТЕЛЬНЫЕ и ТЕХНИЧЕСКИЕ НОРМАТИВЫ.
Некоммерческая онлайн система, содержащая все Российские Госты, национальные Стандарты и нормативы.
В Системе содержится более 150000 файлов нормативно-технической документации, действующей на территории РФ.
Система предназначена для широкого круга инженерно-технических специалистов.

Рейтинг@Mail.ru Яндекс цитирования

Copyright © www.gostrf.com, 2008 - 2026