Крупнейшая бесплатная информационно-справочная система онлайн доступа к полному собранию технических нормативно-правовых актов РФ. Огромная база технических нормативов (более 150 тысяч документов) и полное собрание национальных стандартов, аутентичное официальной базе Госстандарта. GOSTRF.com - это более 1 Терабайта бесплатной технической информации для всех пользователей интернета. Все электронные копии представленных здесь документов могут распространяться без каких-либо ограничений. Поощряется распространение информации с этого сайта на любых других ресурсах. Каждый человек имеет право на неограниченный доступ к этим документам! Каждый человек имеет право на знание требований, изложенных в данных нормативно-правовых актах!

  


 

ГОСТ 30744-2001

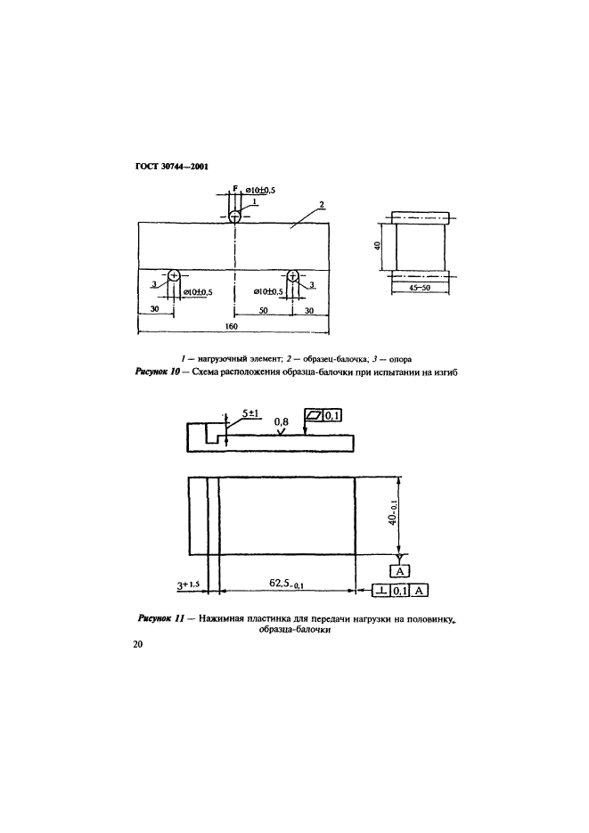
Цементы. Методы испытаний с использованием полифракционного песка

Обозначение:ГОСТ 30744-2001
Текущий статус документа: действующий
Название документа рус.:Цементы. Методы испытаний с использованием полифракционного песка
Название документа англ.:Cements. Methods of testing with using polyfraction standard sand
Дата актуализации текста:01.12.2013
Дата издания:19.12.2001
Дата введения:01.03.2002
Дата последнего изменения:22.05.2013
Область применения:Настоящий стандарт распространяется на все виды цемента и устанавливает методы их испытаний с использованием полифракционного песка.
Настоящий стандарт применяют, если в контрактах (договорах) предусмотрена поставка цемента по EN 197-1, а также по требованию потребителя (заказчика) и для целей сертификации цемента на соответствие EN 197-1
Список изменений:№0 от 24.04.2003 (рег. 24.04.2003) «Дата введения перенесена»
Приложение №1:Поправка к ГОСТ 30744-2001
ГОСТ 30744-2001ГОСТ 30744-2001ГОСТ 30744-2001ГОСТ 30744-2001ГОСТ 30744-2001ГОСТ 30744-2001ГОСТ 30744-2001ГОСТ 30744-2001ГОСТ 30744-2001ГОСТ 30744-2001ГОСТ 30744-2001ГОСТ 30744-2001ГОСТ 30744-2001ГОСТ 30744-2001ГОСТ 30744-2001ГОСТ 30744-2001ГОСТ 30744-2001ГОСТ 30744-2001ГОСТ 30744-2001ГОСТ 30744-2001ГОСТ 30744-2001ГОСТ 30744-2001ГОСТ 30744-2001ГОСТ 30744-2001ГОСТ 30744-2001ГОСТ 30744-2001ГОСТ 30744-2001ГОСТ 30744-2001ГОСТ 30744-2001ГОСТ 30744-2001ГОСТ 30744-2001ГОСТ 30744-2001ГОСТ 30744-2001ГОСТ 30744-2001ГОСТ 30744-2001

Поправка к ГОСТ 30744-2001

Обозначение:Поправка к ГОСТ 30744-2001
Дата введения:24.04.2003


Поправка к ГОСТ 30744-2001
 




ГОСТЫ, СТРОИТЕЛЬНЫЕ и ТЕХНИЧЕСКИЕ НОРМАТИВЫ.
Некоммерческая онлайн система, содержащая все Российские Госты, национальные Стандарты и нормативы.
В Системе содержится более 150000 файлов нормативно-технической документации, действующей на территории РФ.
Система предназначена для широкого круга инженерно-технических специалистов.

Рейтинг@Mail.ru Яндекс цитирования

Copyright © www.gostrf.com, 2008 - 2026