Крупнейшая бесплатная информационно-справочная система онлайн доступа к полному собранию технических нормативно-правовых актов РФ. Огромная база технических нормативов (более 150 тысяч документов) и полное собрание национальных стандартов, аутентичное официальной базе Госстандарта. GOSTRF.com - это более 1 Терабайта бесплатной технической информации для всех пользователей интернета. Все электронные копии представленных здесь документов могут распространяться без каких-либо ограничений. Поощряется распространение информации с этого сайта на любых других ресурсах. Каждый человек имеет право на неограниченный доступ к этим документам! Каждый человек имеет право на знание требований, изложенных в данных нормативно-правовых актах!

  


 

ГОСТ Р 51378-99

Оборудование газовое с атмосферными инжекционными горелками для предприятий общественного питания. Требования безопасности и методы испытаний

Обозначение:ГОСТ Р 51378-99
Текущий статус документа: действующий
Название документа рус.:Оборудование газовое с атмосферными инжекционными горелками для предприятий общественного питания. Требования безопасности и методы испытаний
Название документа англ.:Gas heated catering equipment with atmospheric burners if injection type. Safety requirements and test methods
Дата актуализации текста:01.12.2013
Дата издания:09.02.2000
Дата введения:01.01.2001
Дата последнего изменения:21.08.2013
Дата окончания срока действия:01.01.2014
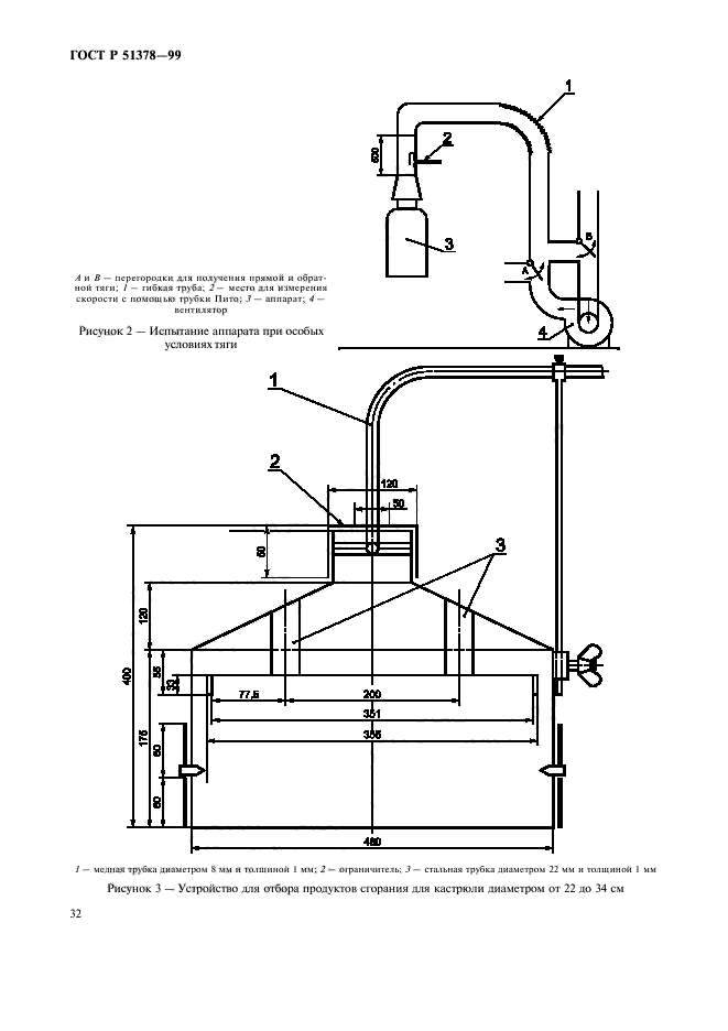
Область применения:Настоящий стандарт устанавливает требования безопасности и методы испытаний, предъявляемые к конструкции и рабочим характеристикам газовых нагревательных аппаратов для общественного питания с атмосферными инжекционными горелками.
Стандарт распространяется на все газовые нагревательные аппараты для общественного питания, предназначенные для приготовления пищи.
Стандарт не распространяется на:
- аппараты с горелками полного предварительного смещения;
- аппараты типа В2 (без стабилизатора тяги)
ГОСТ Р 51378-99ГОСТ Р 51378-99ГОСТ Р 51378-99ГОСТ Р 51378-99ГОСТ Р 51378-99ГОСТ Р 51378-99ГОСТ Р 51378-99ГОСТ Р 51378-99ГОСТ Р 51378-99ГОСТ Р 51378-99ГОСТ Р 51378-99ГОСТ Р 51378-99ГОСТ Р 51378-99ГОСТ Р 51378-99ГОСТ Р 51378-99ГОСТ Р 51378-99ГОСТ Р 51378-99ГОСТ Р 51378-99ГОСТ Р 51378-99ГОСТ Р 51378-99ГОСТ Р 51378-99ГОСТ Р 51378-99ГОСТ Р 51378-99ГОСТ Р 51378-99ГОСТ Р 51378-99ГОСТ Р 51378-99ГОСТ Р 51378-99ГОСТ Р 51378-99ГОСТ Р 51378-99ГОСТ Р 51378-99ГОСТ Р 51378-99ГОСТ Р 51378-99ГОСТ Р 51378-99ГОСТ Р 51378-99ГОСТ Р 51378-99ГОСТ Р 51378-99ГОСТ Р 51378-99ГОСТ Р 51378-99ГОСТ Р 51378-99
 




ГОСТЫ, СТРОИТЕЛЬНЫЕ и ТЕХНИЧЕСКИЕ НОРМАТИВЫ.
Некоммерческая онлайн система, содержащая все Российские Госты, национальные Стандарты и нормативы.
В Системе содержится более 150000 файлов нормативно-технической документации, действующей на территории РФ.
Система предназначена для широкого круга инженерно-технических специалистов.

Рейтинг@Mail.ru Яндекс цитирования

Copyright © www.gostrf.com, 2008 - 2026