Крупнейшая бесплатная информационно-справочная система онлайн доступа к полному собранию технических нормативно-правовых актов РФ. Огромная база технических нормативов (более 150 тысяч документов) и полное собрание национальных стандартов, аутентичное официальной базе Госстандарта. GOSTRF.com - это более 1 Терабайта бесплатной технической информации для всех пользователей интернета. Все электронные копии представленных здесь документов могут распространяться без каких-либо ограничений. Поощряется распространение информации с этого сайта на любых других ресурсах. Каждый человек имеет право на неограниченный доступ к этим документам! Каждый человек имеет право на знание требований, изложенных в данных нормативно-правовых актах!

  


 

ГОСТ 26.201.1-94

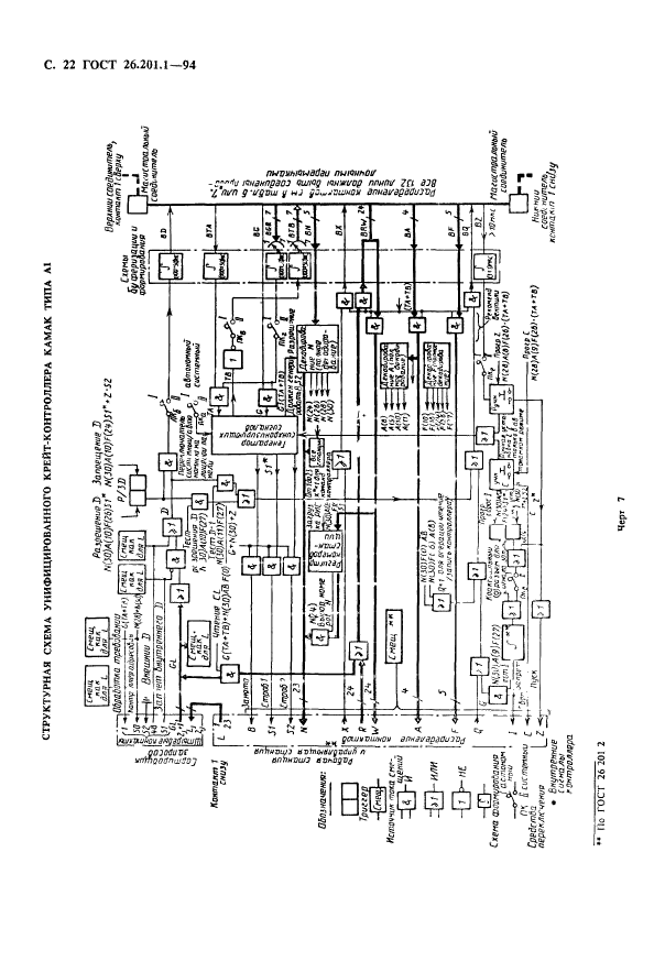
Система КАМАК. Организация многокрейтовых систем. Требования к магистрали ветви и крейт-контроллеру КАМАК типа А1

Обозначение:ГОСТ 26.201.1-94
Текущий статус документа: действующий
Название документа рус.:Система КАМАК. Организация многокрейтовых систем. Требования к магистрали ветви и крейт-контроллеру КАМАК типа А1
Название документа англ.:CAMAC. Organization of multi-crate systems. Specification of the branch-highway and CAMAC crate controller type A1
Дата актуализации текста:01.12.2013
Дата издания:14.12.1995
Дата введения:30.06.1996
Дата последнего изменения:25.11.2013
Область применения:Стандарт распространяется главным образом на ядерное приборостроение, также может использоваться в других областях, в которых требуются модульные электронные блоки для приема и преобразования сигналов ввода/вывода с целью цифровой обработки данных.
Стандарт распространяется на системы, образованные крейтами КАМАК или крейтами, совместимыми с КАМАК, содержащие модули контроллер, который соединен с МВ, обеспечивающий бит-параллельную передачу данных
ГОСТ 26.201.1-94ГОСТ 26.201.1-94ГОСТ 26.201.1-94ГОСТ 26.201.1-94ГОСТ 26.201.1-94ГОСТ 26.201.1-94ГОСТ 26.201.1-94ГОСТ 26.201.1-94ГОСТ 26.201.1-94ГОСТ 26.201.1-94ГОСТ 26.201.1-94ГОСТ 26.201.1-94ГОСТ 26.201.1-94ГОСТ 26.201.1-94ГОСТ 26.201.1-94ГОСТ 26.201.1-94ГОСТ 26.201.1-94ГОСТ 26.201.1-94ГОСТ 26.201.1-94ГОСТ 26.201.1-94ГОСТ 26.201.1-94ГОСТ 26.201.1-94ГОСТ 26.201.1-94ГОСТ 26.201.1-94ГОСТ 26.201.1-94ГОСТ 26.201.1-94ГОСТ 26.201.1-94ГОСТ 26.201.1-94ГОСТ 26.201.1-94ГОСТ 26.201.1-94
 




ГОСТЫ, СТРОИТЕЛЬНЫЕ и ТЕХНИЧЕСКИЕ НОРМАТИВЫ.
Некоммерческая онлайн система, содержащая все Российские Госты, национальные Стандарты и нормативы.
В Системе содержится более 150000 файлов нормативно-технической документации, действующей на территории РФ.
Система предназначена для широкого круга инженерно-технических специалистов.

Рейтинг@Mail.ru Яндекс цитирования

Copyright © www.gostrf.com, 2008 - 2026