Крупнейшая бесплатная информационно-справочная система онлайн доступа к полному собранию технических нормативно-правовых актов РФ. Огромная база технических нормативов (более 150 тысяч документов) и полное собрание национальных стандартов, аутентичное официальной базе Госстандарта. GOSTRF.com - это более 1 Терабайта бесплатной технической информации для всех пользователей интернета. Все электронные копии представленных здесь документов могут распространяться без каких-либо ограничений. Поощряется распространение информации с этого сайта на любых других ресурсах. Каждый человек имеет право на неограниченный доступ к этим документам! Каждый человек имеет право на знание требований, изложенных в данных нормативно-правовых актах!

  


 

ГОСТ 21.513-83

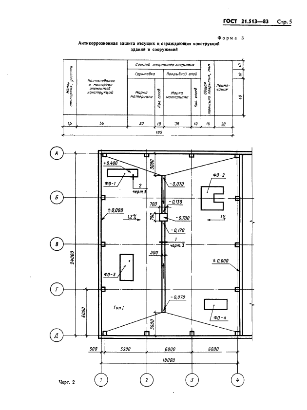
Система проектной документации для строительства. Антикоррозионная защита конструкций зданий и сооружений. Рабочие чертежи

Обозначение:ГОСТ 21.513-83
Текущий статус документа: действующий
Название документа рус.:Система проектной документации для строительства. Антикоррозионная защита конструкций зданий и сооружений. Рабочие чертежи
Название документа англ.:System of building documents. Anticorrosive protection of building structures. Working drawings
Дата актуализации текста:01.12.2013
Дата издания:23.05.1984
Дата введения:30.06.1984
Дата последнего изменения:22.05.2013
Область применения:Настоящий стандарт устанавливает состав и правила выполнения рабочих чертежей антикоррозионной защиты конструкций зданий и сооружений (основной компонент рабочих чертежей марки А3) всех отраслей промышленности и народного хозяйства.
Стандарт не распространяется на рабочие чертежи антикоррозионной защиты, осуществляемой в процессе изготовления элементов конструкций (первичная защита)
ГОСТ 21.513-83ГОСТ 21.513-83ГОСТ 21.513-83ГОСТ 21.513-83ГОСТ 21.513-83ГОСТ 21.513-83ГОСТ 21.513-83ГОСТ 21.513-83ГОСТ 21.513-83ГОСТ 21.513-83ГОСТ 21.513-83ГОСТ 21.513-83ГОСТ 21.513-83ГОСТ 21.513-83
 




ГОСТЫ, СТРОИТЕЛЬНЫЕ и ТЕХНИЧЕСКИЕ НОРМАТИВЫ.
Некоммерческая онлайн система, содержащая все Российские Госты, национальные Стандарты и нормативы.
В Системе содержится более 150000 файлов нормативно-технической документации, действующей на территории РФ.
Система предназначена для широкого круга инженерно-технических специалистов.

Рейтинг@Mail.ru Яндекс цитирования

Copyright © www.gostrf.com, 2008 - 2026