Крупнейшая бесплатная информационно-справочная система онлайн доступа к полному собранию технических нормативно-правовых актов РФ. Огромная база технических нормативов (более 150 тысяч документов) и полное собрание национальных стандартов, аутентичное официальной базе Госстандарта. GOSTRF.com - это более 1 Терабайта бесплатной технической информации для всех пользователей интернета. Все электронные копии представленных здесь документов могут распространяться без каких-либо ограничений. Поощряется распространение информации с этого сайта на любых других ресурсах. Каждый человек имеет право на неограниченный доступ к этим документам! Каждый человек имеет право на знание требований, изложенных в данных нормативно-правовых актах!

  


 

ГОСТ 8691-73

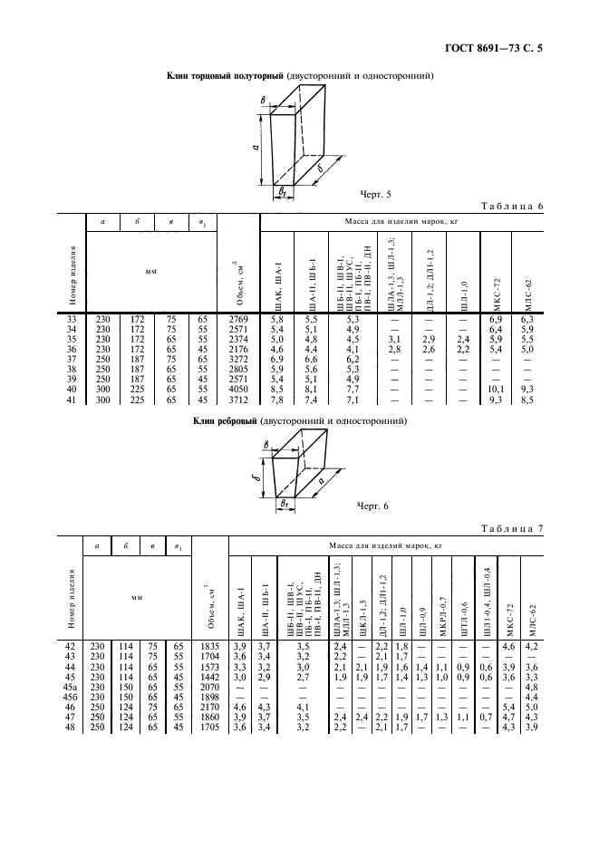
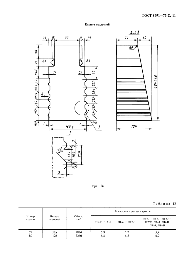
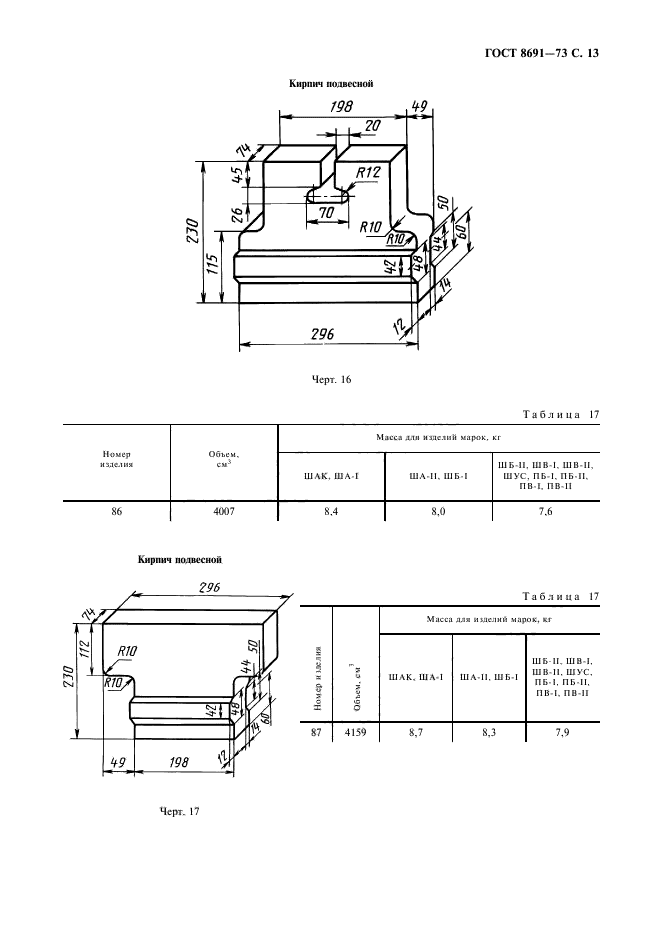
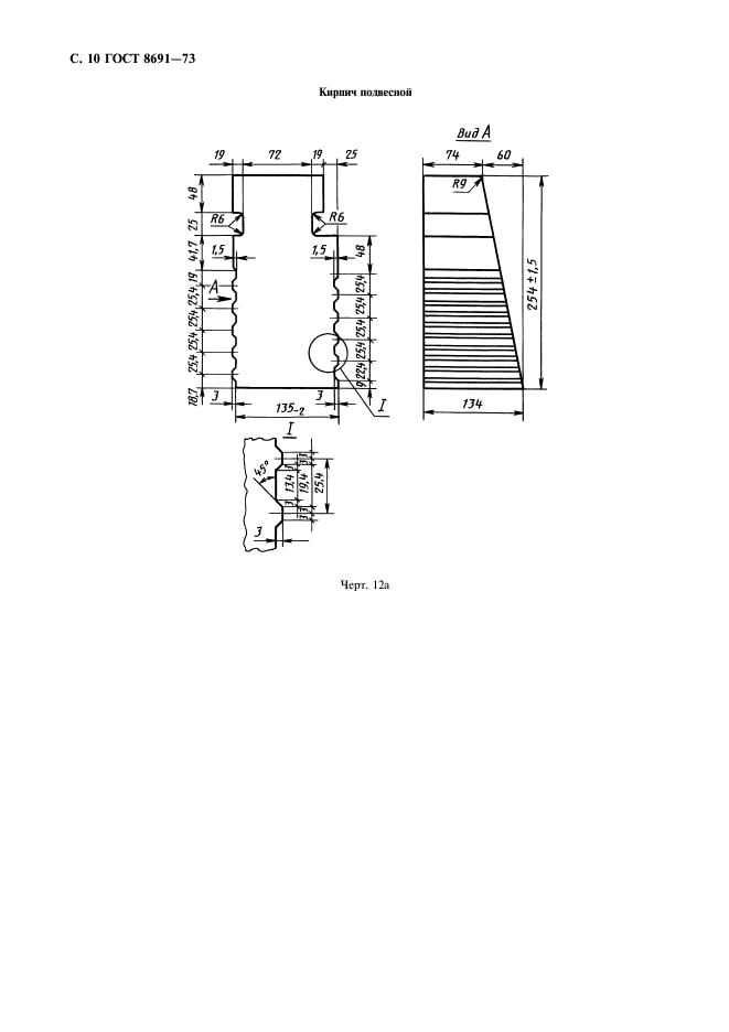
Изделия огнеупорные общего назначения. Форма и размеры

Обозначение:ГОСТ 8691-73
Текущий статус документа: действующий
Название документа рус.:Изделия огнеупорные общего назначения. Форма и размеры
Название документа англ.:General-purpose refractory articles. Form and dimensions
Дата актуализации текста:01.12.2013
Дата издания:01.07.2005
Дата введения:01.01.1975
Дата последнего изменения:22.05.2013
Переиздание:переиздание с изм. 1
Область применения:Настоящий стандарт распространяется на огнеупорные изделия общего назначения, применяемые для кладки различных тепловых агрегатов
Список изменений:№1 от 01.03.1977 (рег. 10.10.1977) «Срок действия продлен»
№2 от 01.01.1985 (рег. 06.08.1984) «Срок действия продлен»
№3 от 01.01.1990 (рег. 19.05.1989) «Поправка»
№4 от 01.01.1993 (рег. 15.04.1992) «Поправка»
ГОСТ 8691-73ГОСТ 8691-73ГОСТ 8691-73ГОСТ 8691-73ГОСТ 8691-73ГОСТ 8691-73ГОСТ 8691-73ГОСТ 8691-73ГОСТ 8691-73ГОСТ 8691-73ГОСТ 8691-73ГОСТ 8691-73ГОСТ 8691-73ГОСТ 8691-73ГОСТ 8691-73ГОСТ 8691-73ГОСТ 8691-73ГОСТ 8691-73ГОСТ 8691-73ГОСТ 8691-73
 




ГОСТЫ, СТРОИТЕЛЬНЫЕ и ТЕХНИЧЕСКИЕ НОРМАТИВЫ.
Некоммерческая онлайн система, содержащая все Российские Госты, национальные Стандарты и нормативы.
В Системе содержится более 150000 файлов нормативно-технической документации, действующей на территории РФ.
Система предназначена для широкого круга инженерно-технических специалистов.

Рейтинг@Mail.ru Яндекс цитирования

Copyright © www.gostrf.com, 2008 - 2026