Крупнейшая бесплатная информационно-справочная система онлайн доступа к полному собранию технических нормативно-правовых актов РФ. Огромная база технических нормативов (более 150 тысяч документов) и полное собрание национальных стандартов, аутентичное официальной базе Госстандарта. GOSTRF.com - это более 1 Терабайта бесплатной технической информации для всех пользователей интернета. Все электронные копии представленных здесь документов могут распространяться без каких-либо ограничений. Поощряется распространение информации с этого сайта на любых других ресурсах. Каждый человек имеет право на неограниченный доступ к этим документам! Каждый человек имеет право на знание требований, изложенных в данных нормативно-правовых актах!

  


 

ГОСТ Р МЭК 61084-1-2007

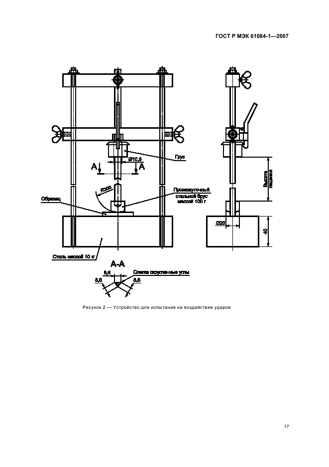
Системы кабельных и специальных кабельных коробов для электрических установок. Часть 1. Общие требования

Обозначение:ГОСТ Р МЭК 61084-1-2007
Текущий статус документа: действующий
Название документа рус.:Системы кабельных и специальных кабельных коробов для электрических установок. Часть 1. Общие требования
Название документа англ.:Cable trunking and ducting systems for electrical installations. Part 1. General requirements
Дата актуализации текста:01.12.2013
Дата издания:10.06.2008
Дата введения:01.07.2008
Дата последнего изменения:22.05.2013
Область применения:Настоящий стандарт устанавливает требования к системам кабельных и специальных кабельных коробов для электроустановок, предназначенным для прокладки и, при необходимости, разделения проводов, кабелей, шнуров, а также для размещения другого электрооборудования.
Требования стандарта не распространяются на трубы, кабельные лотки или кабельные лестницы и на токоведущие части, прокладываемые внутри систем кабельных и специальных кабельных коробов
ГОСТ Р МЭК 61084-1-2007ГОСТ Р МЭК 61084-1-2007ГОСТ Р МЭК 61084-1-2007ГОСТ Р МЭК 61084-1-2007ГОСТ Р МЭК 61084-1-2007ГОСТ Р МЭК 61084-1-2007ГОСТ Р МЭК 61084-1-2007ГОСТ Р МЭК 61084-1-2007ГОСТ Р МЭК 61084-1-2007ГОСТ Р МЭК 61084-1-2007ГОСТ Р МЭК 61084-1-2007ГОСТ Р МЭК 61084-1-2007ГОСТ Р МЭК 61084-1-2007ГОСТ Р МЭК 61084-1-2007ГОСТ Р МЭК 61084-1-2007ГОСТ Р МЭК 61084-1-2007ГОСТ Р МЭК 61084-1-2007ГОСТ Р МЭК 61084-1-2007ГОСТ Р МЭК 61084-1-2007ГОСТ Р МЭК 61084-1-2007ГОСТ Р МЭК 61084-1-2007ГОСТ Р МЭК 61084-1-2007ГОСТ Р МЭК 61084-1-2007ГОСТ Р МЭК 61084-1-2007
 




ГОСТЫ, СТРОИТЕЛЬНЫЕ и ТЕХНИЧЕСКИЕ НОРМАТИВЫ.
Некоммерческая онлайн система, содержащая все Российские Госты, национальные Стандарты и нормативы.
В Системе содержится более 150000 файлов нормативно-технической документации, действующей на территории РФ.
Система предназначена для широкого круга инженерно-технических специалистов.

Рейтинг@Mail.ru Яндекс цитирования

Copyright © www.gostrf.com, 2008 - 2026