Крупнейшая бесплатная информационно-справочная система онлайн доступа к полному собранию технических нормативно-правовых актов РФ. Огромная база технических нормативов (более 150 тысяч документов) и полное собрание национальных стандартов, аутентичное официальной базе Госстандарта. GOSTRF.com - это более 1 Терабайта бесплатной технической информации для всех пользователей интернета. Все электронные копии представленных здесь документов могут распространяться без каких-либо ограничений. Поощряется распространение информации с этого сайта на любых других ресурсах. Каждый человек имеет право на неограниченный доступ к этим документам! Каждый человек имеет право на знание требований, изложенных в данных нормативно-правовых актах!

  


 

ГОСТ Р 53010-2008

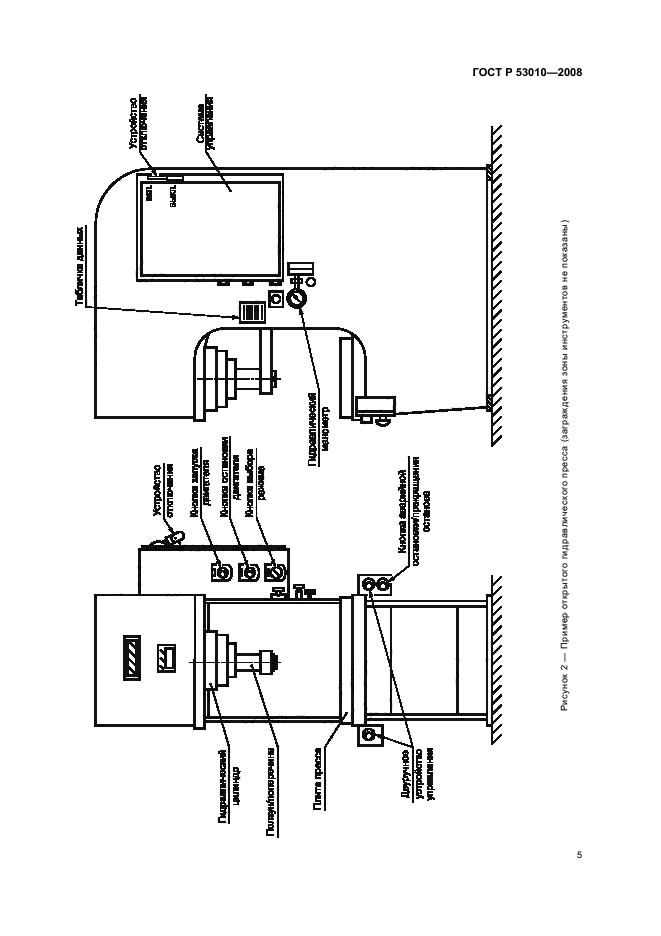
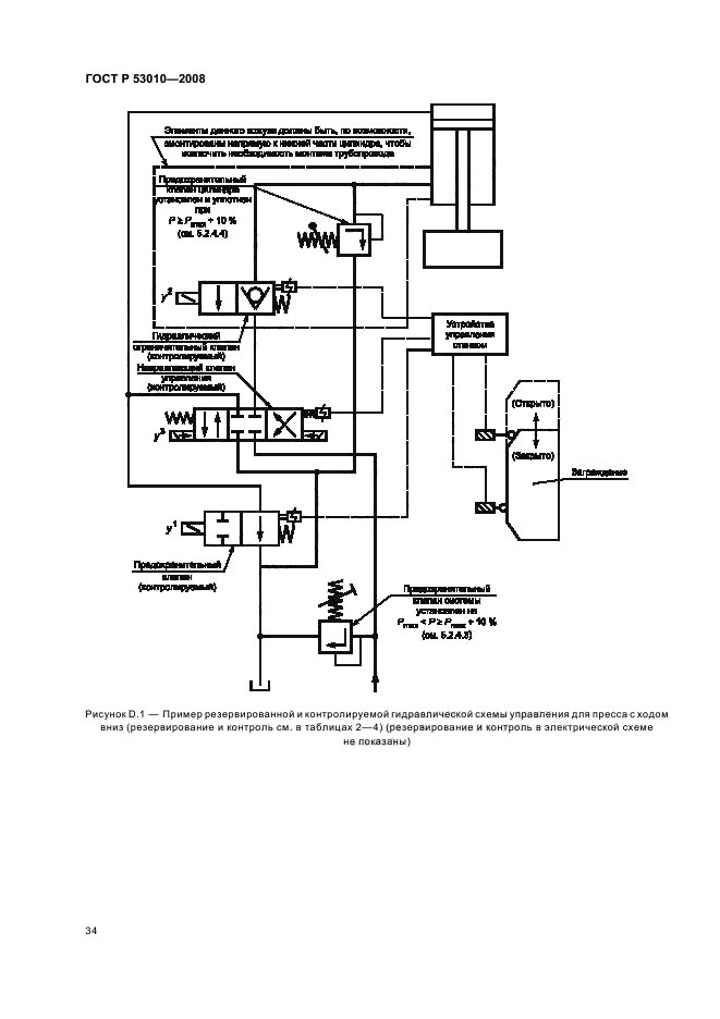
Прессы гидравлические. Требования безопасности

Обозначение:ГОСТ Р 53010-2008
Текущий статус документа: отменён
Название документа рус.:Прессы гидравлические. Требования безопасности
Название документа англ.:Hydraulic presses. Safety requirements
Дата актуализации текста:01.12.2013
Дата издания:03.03.2009
Дата введения:30.06.2009
Дата последнего изменения:21.08.2013
Дата окончания срока действия:01.03.2013
Область применения:Настоящий стандарт устанавливает требования и меры безопасности, которые должны приниматься при проектировании, производстве и поставках гидравлических прессов, их агрегатов и узлов; распространяется на все проектируемые, изготовляемые и модернизируемые гидравлические прессы, линии и комплексы оборудования на их базе, средства автоматизации и механизации к ним.
Настоящий стандарт также охватывает прессы, которые изначально предназначались для работы с холодным металлом, но используются аналогичным образом для работы с другими листовыми материалами (например, картоном, пластмассой, резиной или кожей) и металлическим порошком.
Настоящий стандарт не распространяется на оборудование, основным проектным назначением которого является:
- резка листового металла гильотинными ножницами;
- установка креплений, например клепок, скоб или стежков;
- гибка или вальцовка;
- револьверная дыропробивная штамповка;
- штамповка на молоте;
- пробивка на специализированных дыропробивных прессах по шаблонам (например, для строительной промышленности).
Настоящий стандарт применяют совместно с ГОСТ 12.2.003, ГОСТ 12.2.017.
Настоящий стандарт применяется к прессам, изготовленным после даты его введения
Список изменений:№0 от 01.03.2013 (рег. 22.11.2012) «Текстовое изменение; Изменено заглавие»
ГОСТ Р 53010-2008ГОСТ Р 53010-2008ГОСТ Р 53010-2008ГОСТ Р 53010-2008ГОСТ Р 53010-2008ГОСТ Р 53010-2008ГОСТ Р 53010-2008ГОСТ Р 53010-2008ГОСТ Р 53010-2008ГОСТ Р 53010-2008ГОСТ Р 53010-2008ГОСТ Р 53010-2008ГОСТ Р 53010-2008ГОСТ Р 53010-2008ГОСТ Р 53010-2008ГОСТ Р 53010-2008ГОСТ Р 53010-2008ГОСТ Р 53010-2008ГОСТ Р 53010-2008ГОСТ Р 53010-2008ГОСТ Р 53010-2008ГОСТ Р 53010-2008ГОСТ Р 53010-2008ГОСТ Р 53010-2008ГОСТ Р 53010-2008ГОСТ Р 53010-2008ГОСТ Р 53010-2008ГОСТ Р 53010-2008ГОСТ Р 53010-2008ГОСТ Р 53010-2008ГОСТ Р 53010-2008ГОСТ Р 53010-2008ГОСТ Р 53010-2008ГОСТ Р 53010-2008ГОСТ Р 53010-2008ГОСТ Р 53010-2008ГОСТ Р 53010-2008ГОСТ Р 53010-2008ГОСТ Р 53010-2008ГОСТ Р 53010-2008ГОСТ Р 53010-2008ГОСТ Р 53010-2008ГОСТ Р 53010-2008ГОСТ Р 53010-2008ГОСТ Р 53010-2008
 




ГОСТЫ, СТРОИТЕЛЬНЫЕ и ТЕХНИЧЕСКИЕ НОРМАТИВЫ.
Некоммерческая онлайн система, содержащая все Российские Госты, национальные Стандарты и нормативы.
В Системе содержится более 150000 файлов нормативно-технической документации, действующей на территории РФ.
Система предназначена для широкого круга инженерно-технических специалистов.

Рейтинг@Mail.ru Яндекс цитирования

Copyright © www.gostrf.com, 2008 - 2026