Крупнейшая бесплатная информационно-справочная система онлайн доступа к полному собранию технических нормативно-правовых актов РФ. Огромная база технических нормативов (более 150 тысяч документов) и полное собрание национальных стандартов, аутентичное официальной базе Госстандарта. GOSTRF.com - это более 1 Терабайта бесплатной технической информации для всех пользователей интернета. Все электронные копии представленных здесь документов могут распространяться без каких-либо ограничений. Поощряется распространение информации с этого сайта на любых других ресурсах. Каждый человек имеет право на неограниченный доступ к этим документам! Каждый человек имеет право на знание требований, изложенных в данных нормативно-правовых актах!

  


 

ГОСТ Р 53299-2009

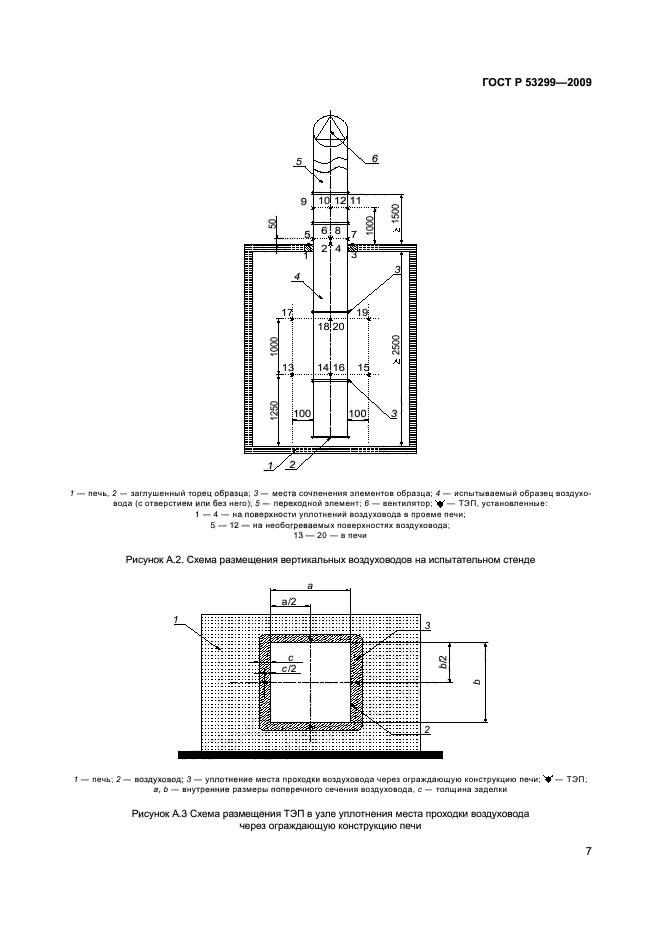
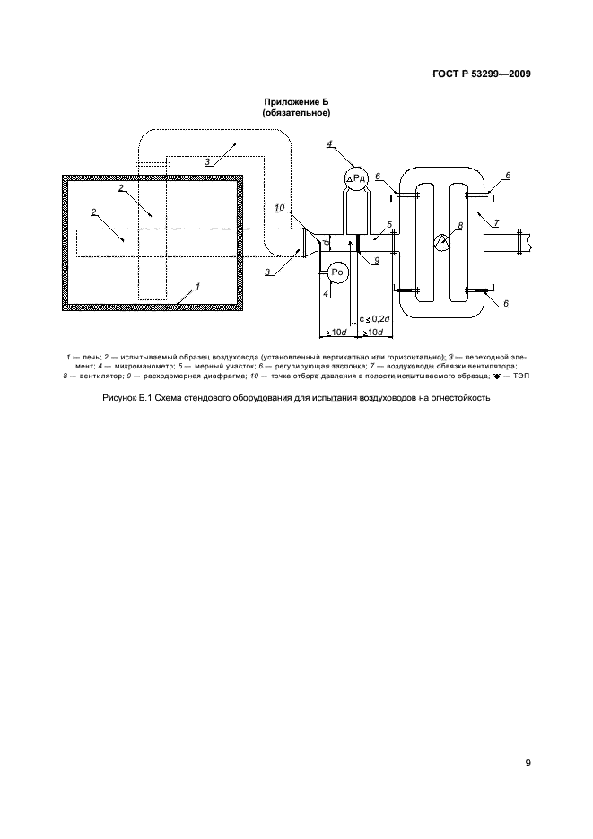
Воздуховоды. Метод испытаний на огнестойкость

Обозначение:ГОСТ Р 53299-2009
Текущий статус документа: действующий
Название документа рус.:Воздуховоды. Метод испытаний на огнестойкость
Название документа англ.:The test method for the fire resistance. Ventilation ducts
Дата актуализации текста:01.12.2013
Дата издания:20.04.2009
Дата введения:30.04.2009
Дата последнего изменения:20.06.2013
Область применения:Настоящий стандарт устанавливает метод испытания на огнестойкость следующих элементов конструкций:
- воздуховодов приточно-вытяжных систем общеобменной, аварийной, противодымной вентиляции, систем местных отсосов, систем кондиционирования воздуха, а также дымоходов различного назначения;
- каналов технологической вентиляции, в том числе газоходов.
Настоящий стандарт не предназначен для проведения испытаний на огнестойкость:
- вентиляционных каналов, выполненных в пустотах конструкций стен и перекрытий;
- дымовых вытяжных каналов, выполненных в элементах ограждающих строительных конструкций
ГОСТ Р 53299-2009ГОСТ Р 53299-2009ГОСТ Р 53299-2009ГОСТ Р 53299-2009ГОСТ Р 53299-2009ГОСТ Р 53299-2009ГОСТ Р 53299-2009ГОСТ Р 53299-2009ГОСТ Р 53299-2009ГОСТ Р 53299-2009ГОСТ Р 53299-2009ГОСТ Р 53299-2009ГОСТ Р 53299-2009ГОСТ Р 53299-2009
 




ГОСТЫ, СТРОИТЕЛЬНЫЕ и ТЕХНИЧЕСКИЕ НОРМАТИВЫ.
Некоммерческая онлайн система, содержащая все Российские Госты, национальные Стандарты и нормативы.
В Системе содержится более 150000 файлов нормативно-технической документации, действующей на территории РФ.
Система предназначена для широкого круга инженерно-технических специалистов.

Рейтинг@Mail.ru Яндекс цитирования

Copyright © www.gostrf.com, 2008 - 2026