Крупнейшая бесплатная информационно-справочная система онлайн доступа к полному собранию технических нормативно-правовых актов РФ. Огромная база технических нормативов (более 150 тысяч документов) и полное собрание национальных стандартов, аутентичное официальной базе Госстандарта. GOSTRF.com - это более 1 Терабайта бесплатной технической информации для всех пользователей интернета. Все электронные копии представленных здесь документов могут распространяться без каких-либо ограничений. Поощряется распространение информации с этого сайта на любых других ресурсах. Каждый человек имеет право на неограниченный доступ к этим документам! Каждый человек имеет право на знание требований, изложенных в данных нормативно-правовых актах!

  


 

ГОСТ ИСО 16902.1-2006

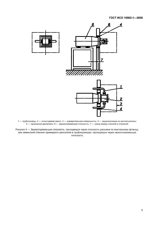
Шум машин. Технический метод определения уровней звуковой мощности насосов гидроприводов по интенсивности звука

Обозначение:ГОСТ ИСО 16902.1-2006
Текущий статус документа: неизвестно
Название документа рус.:Шум машин. Технический метод определения уровней звуковой мощности насосов гидроприводов по интенсивности звука
Название документа англ.:Noise of machines. Engineering method for determination of the sound power levels of pumps using sound intensity techniques
Дата актуализации текста:01.12.2013
Дата введения:01.10.2007
ГОСТ ИСО 16902.1-2006ГОСТ ИСО 16902.1-2006ГОСТ ИСО 16902.1-2006ГОСТ ИСО 16902.1-2006ГОСТ ИСО 16902.1-2006ГОСТ ИСО 16902.1-2006ГОСТ ИСО 16902.1-2006ГОСТ ИСО 16902.1-2006ГОСТ ИСО 16902.1-2006ГОСТ ИСО 16902.1-2006ГОСТ ИСО 16902.1-2006ГОСТ ИСО 16902.1-2006ГОСТ ИСО 16902.1-2006ГОСТ ИСО 16902.1-2006ГОСТ ИСО 16902.1-2006ГОСТ ИСО 16902.1-2006
 




ГОСТЫ, СТРОИТЕЛЬНЫЕ и ТЕХНИЧЕСКИЕ НОРМАТИВЫ.
Некоммерческая онлайн система, содержащая все Российские Госты, национальные Стандарты и нормативы.
В Системе содержится более 150000 файлов нормативно-технической документации, действующей на территории РФ.
Система предназначена для широкого круга инженерно-технических специалистов.

Рейтинг@Mail.ru Яндекс цитирования

Copyright © www.gostrf.com, 2008 - 2026