Крупнейшая бесплатная информационно-справочная система онлайн доступа к полному собранию технических нормативно-правовых актов РФ. Огромная база технических нормативов (более 150 тысяч документов) и полное собрание национальных стандартов, аутентичное официальной базе Госстандарта. GOSTRF.com - это более 1 Терабайта бесплатной технической информации для всех пользователей интернета. Все электронные копии представленных здесь документов могут распространяться без каких-либо ограничений. Поощряется распространение информации с этого сайта на любых других ресурсах. Каждый человек имеет право на неограниченный доступ к этим документам! Каждый человек имеет право на знание требований, изложенных в данных нормативно-правовых актах!

  


 

ГОСТ Р МЭК 60068-2-30-2009

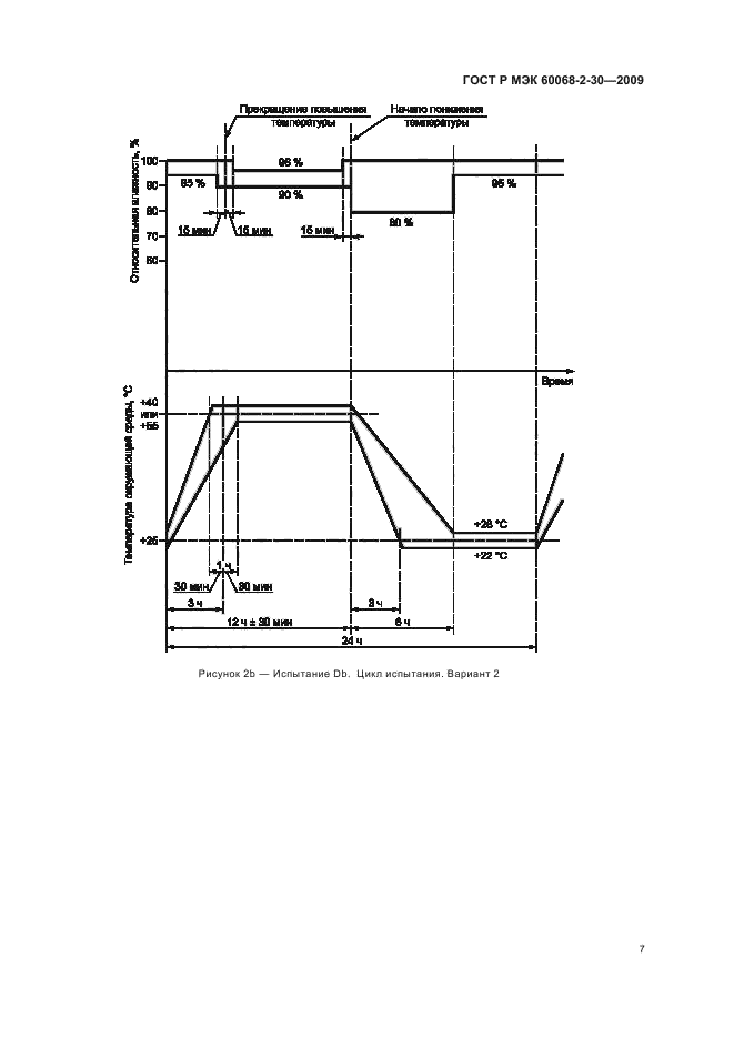
Испытания на воздействия внешних факторов. Часть 2-30. Испытания. Испытание Db: Влажное тепло, циклическое (12 ч +12-часовой цикл)

Обозначение:ГОСТ Р МЭК 60068-2-30-2009
Текущий статус документа: действующий
Название документа рус.:Испытания на воздействия внешних факторов. Часть 2-30. Испытания. Испытание Db: Влажное тепло, циклическое (12 ч +12-часовой цикл)
Название документа англ.:Environmental testing. Part 2-30. Tests. Test Db: Damp heat, cyclic (12 h + 12 h cycle)
Дата актуализации текста:01.12.2013
Дата издания:21.05.2010
Дата введения:01.01.2011
Дата последнего изменения:22.05.2013
Область применения:Настоящий стандарт устанавливает метод испытания для определения пригодности изделий, компонентов или аппаратуры к применению, транспортированию и хранению в условиях высокой влажности при циклических изменениях температуры с образованием конденсированной влаги на поверхности образца. Для подтверждения его характеристики образец, находящийся во время транспортирования или хранения в упаковке, при проведении испытаний также должен находиться в упаковке.
Для малогабаритных изделий с небольшой массой получение конденсата на поверхности образца при применении данного метода может быть затруднено; поэтому потребители должны рассмотреть применение альтернативного метода, например, приведенного в МЭК 60068-2-38
ГОСТ Р МЭК 60068-2-30-2009ГОСТ Р МЭК 60068-2-30-2009ГОСТ Р МЭК 60068-2-30-2009ГОСТ Р МЭК 60068-2-30-2009ГОСТ Р МЭК 60068-2-30-2009ГОСТ Р МЭК 60068-2-30-2009ГОСТ Р МЭК 60068-2-30-2009ГОСТ Р МЭК 60068-2-30-2009ГОСТ Р МЭК 60068-2-30-2009ГОСТ Р МЭК 60068-2-30-2009ГОСТ Р МЭК 60068-2-30-2009ГОСТ Р МЭК 60068-2-30-2009ГОСТ Р МЭК 60068-2-30-2009ГОСТ Р МЭК 60068-2-30-2009ГОСТ Р МЭК 60068-2-30-2009ГОСТ Р МЭК 60068-2-30-2009
 




ГОСТЫ, СТРОИТЕЛЬНЫЕ и ТЕХНИЧЕСКИЕ НОРМАТИВЫ.
Некоммерческая онлайн система, содержащая все Российские Госты, национальные Стандарты и нормативы.
В Системе содержится более 150000 файлов нормативно-технической документации, действующей на территории РФ.
Система предназначена для широкого круга инженерно-технических специалистов.

Рейтинг@Mail.ru Яндекс цитирования

Copyright © www.gostrf.com, 2008 - 2026