Крупнейшая бесплатная информационно-справочная система онлайн доступа к полному собранию технических нормативно-правовых актов РФ. Огромная база технических нормативов (более 150 тысяч документов) и полное собрание национальных стандартов, аутентичное официальной базе Госстандарта. GOSTRF.com - это более 1 Терабайта бесплатной технической информации для всех пользователей интернета. Все электронные копии представленных здесь документов могут распространяться без каких-либо ограничений. Поощряется распространение информации с этого сайта на любых других ресурсах. Каждый человек имеет право на неограниченный доступ к этим документам! Каждый человек имеет право на знание требований, изложенных в данных нормативно-правовых актах!

  


 

ГОСТ Р 52748-2007

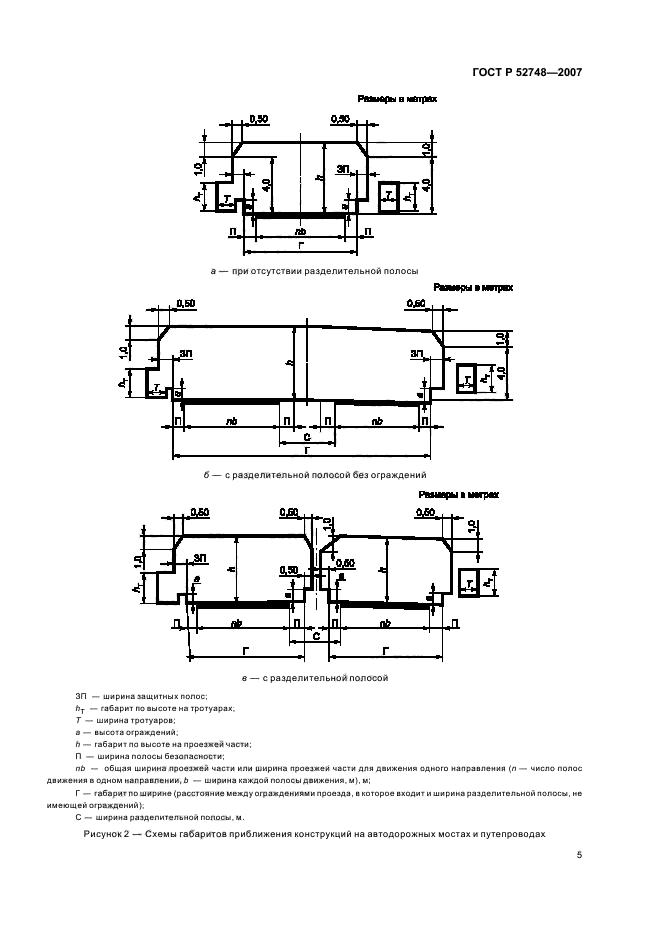
Дороги автомобильные общего пользования. Нормативные нагрузки, расчетные схемы нагружения и габариты приближения

Обозначение:ГОСТ Р 52748-2007
Текущий статус документа: действующий
Название документа рус.:Дороги автомобильные общего пользования. Нормативные нагрузки, расчетные схемы нагружения и габариты приближения
Название документа англ.:Automobile roads of the general useg. Standard loads, loading systems and clearance approaches
Дата актуализации текста:01.12.2013
Дата издания:18.01.2008
Дата введения:01.01.2008
Дата последнего изменения:22.05.2013
Область применения:Настоящий стандарт распространяется на проектирование строительства, реконструкции автомобильных дорог общего пользования и устанавливает для этих дорог нормативные нагрузки, расчетные схемы нагружения и габариты приближений.
Настоящий стандарт не распространяется на проектирование временных автомобильных дорог различного назначения (сооружаемые на срок службы менее 5 лет) и автозимников.
Требования стандарта не являются основанием для проектирования автотранспортных средств
Список изменений:№0 от 27.03.2008 (рег. 27.03.2008) «Дата введения перенесена»
№0 от 01.07.2008 (рег. 01.07.2008) «Дата введения перенесена»
Приложение №1:Поправка к ГОСТ Р 52748-2007
Приложение №2:Поправка к ГОСТ Р 52748-2007
ГОСТ Р 52748-2007ГОСТ Р 52748-2007ГОСТ Р 52748-2007ГОСТ Р 52748-2007ГОСТ Р 52748-2007ГОСТ Р 52748-2007ГОСТ Р 52748-2007ГОСТ Р 52748-2007ГОСТ Р 52748-2007ГОСТ Р 52748-2007ГОСТ Р 52748-2007ГОСТ Р 52748-2007ГОСТ Р 52748-2007ГОСТ Р 52748-2007ГОСТ Р 52748-2007ГОСТ Р 52748-2007ГОСТ Р 52748-2007

Поправка к ГОСТ Р 52748-2007

Обозначение:Поправка к ГОСТ Р 52748-2007
Дата введения:01.07.2008


Поправка к ГОСТ Р 52748-2007Поправка к ГОСТ Р 52748-2007Поправка к ГОСТ Р 52748-2007Поправка к ГОСТ Р 52748-2007

Поправка к ГОСТ Р 52748-2007

Обозначение:Поправка к ГОСТ Р 52748-2007
Дата введения:26.03.2008


Поправка к ГОСТ Р 52748-2007
 




ГОСТЫ, СТРОИТЕЛЬНЫЕ и ТЕХНИЧЕСКИЕ НОРМАТИВЫ.
Некоммерческая онлайн система, содержащая все Российские Госты, национальные Стандарты и нормативы.
В Системе содержится более 150000 файлов нормативно-технической документации, действующей на территории РФ.
Система предназначена для широкого круга инженерно-технических специалистов.

Рейтинг@Mail.ru Яндекс цитирования

Copyright © www.gostrf.com, 2008 - 2026