Крупнейшая бесплатная информационно-справочная система онлайн доступа к полному собранию технических нормативно-правовых актов РФ. Огромная база технических нормативов (более 150 тысяч документов) и полное собрание национальных стандартов, аутентичное официальной базе Госстандарта. GOSTRF.com - это более 1 Терабайта бесплатной технической информации для всех пользователей интернета. Все электронные копии представленных здесь документов могут распространяться без каких-либо ограничений. Поощряется распространение информации с этого сайта на любых других ресурсах. Каждый человек имеет право на неограниченный доступ к этим документам! Каждый человек имеет право на знание требований, изложенных в данных нормативно-правовых актах!

  


 

ГОСТ Р ИСО 3471-2009

Машины землеройные. Устройства защиты при опрокидывании. Технические требования и лабораторные испытания

Обозначение:ГОСТ Р ИСО 3471-2009
Текущий статус документа: действующий
Название документа рус.:Машины землеройные. Устройства защиты при опрокидывании. Технические требования и лабораторные испытания
Название документа англ.:Earth-moving machiney. Roll-over protective structures. Technical requirements and laboratory tests
Дата актуализации текста:01.12.2013
Дата издания:10.03.2011
Дата введения:01.01.2011
Дата последнего изменения:22.05.2013
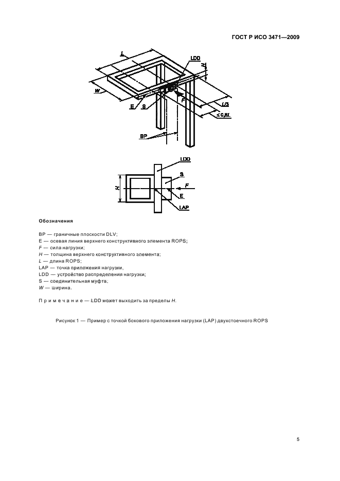
Область применения:Настоящий стандарт устанавливает точные требования к металлическим устройствам защиты от опрокидывания (ROPS), а также последовательные и воспроизводимые методики оценки соответствия этим требованиям в лабораториях, проводящих испытания с использованием статического нагружения представительного образца.
Стандарт применим к ROPS, устанавливаемым на следующих мобильных машинах, управляемых оператором в положении сидя, как это определено в ИСО 6165, и имеющих массу 700 кг и более:
- бульдозер;
- фронтальный погрузчик;
- погрузчик с обратной лопатой;
- карьерный самосвал;
- трубоукладчик;
- тракторный блок (одноосный тягач) комбинированной машины (например скрепер, землевоз с шарнирно-сочлененной рамой);
- грейдер;
- уплотнитель мусора;
- каток;
- траншейный экскаватор.
Стандарт не распространяется на сиденья тренажеров или дополнительные сиденья оператора, установленные на машине
ГОСТ Р ИСО 3471-2009ГОСТ Р ИСО 3471-2009ГОСТ Р ИСО 3471-2009ГОСТ Р ИСО 3471-2009ГОСТ Р ИСО 3471-2009ГОСТ Р ИСО 3471-2009ГОСТ Р ИСО 3471-2009ГОСТ Р ИСО 3471-2009ГОСТ Р ИСО 3471-2009ГОСТ Р ИСО 3471-2009ГОСТ Р ИСО 3471-2009ГОСТ Р ИСО 3471-2009ГОСТ Р ИСО 3471-2009ГОСТ Р ИСО 3471-2009ГОСТ Р ИСО 3471-2009ГОСТ Р ИСО 3471-2009ГОСТ Р ИСО 3471-2009ГОСТ Р ИСО 3471-2009ГОСТ Р ИСО 3471-2009ГОСТ Р ИСО 3471-2009ГОСТ Р ИСО 3471-2009ГОСТ Р ИСО 3471-2009ГОСТ Р ИСО 3471-2009ГОСТ Р ИСО 3471-2009ГОСТ Р ИСО 3471-2009ГОСТ Р ИСО 3471-2009ГОСТ Р ИСО 3471-2009ГОСТ Р ИСО 3471-2009ГОСТ Р ИСО 3471-2009ГОСТ Р ИСО 3471-2009ГОСТ Р ИСО 3471-2009ГОСТ Р ИСО 3471-2009
 




ГОСТЫ, СТРОИТЕЛЬНЫЕ и ТЕХНИЧЕСКИЕ НОРМАТИВЫ.
Некоммерческая онлайн система, содержащая все Российские Госты, национальные Стандарты и нормативы.
В Системе содержится более 150000 файлов нормативно-технической документации, действующей на территории РФ.
Система предназначена для широкого круга инженерно-технических специалистов.

Рейтинг@Mail.ru Яндекс цитирования

Copyright © www.gostrf.com, 2008 - 2026