Крупнейшая бесплатная информационно-справочная система онлайн доступа к полному собранию технических нормативно-правовых актов РФ. Огромная база технических нормативов (более 150 тысяч документов) и полное собрание национальных стандартов, аутентичное официальной базе Госстандарта. GOSTRF.com - это более 1 Терабайта бесплатной технической информации для всех пользователей интернета. Все электронные копии представленных здесь документов могут распространяться без каких-либо ограничений. Поощряется распространение информации с этого сайта на любых других ресурсах. Каждый человек имеет право на неограниченный доступ к этим документам! Каждый человек имеет право на знание требований, изложенных в данных нормативно-правовых актах!

  


 

ГОСТ Р ИСО 14624-7-2010

Системы космические. Безопасность и совместимость материалов. Часть 7. Определение проникающей способности материалов по отношению к авиационно-космическим жидкостям

Обозначение:ГОСТ Р ИСО 14624-7-2010
Текущий статус документа: действующий
Название документа рус.:Системы космические. Безопасность и совместимость материалов. Часть 7. Определение проникающей способности материалов по отношению к авиационно-космическим жидкостям
Название документа англ.:Space systems. Safety and compatibility of materials. Part 7. Determination of penetration of materials to aerospace fluids
Дата актуализации текста:01.12.2013
Дата издания:26.10.2011
Дата введения:01.01.2012
Дата последнего изменения:22.05.2013
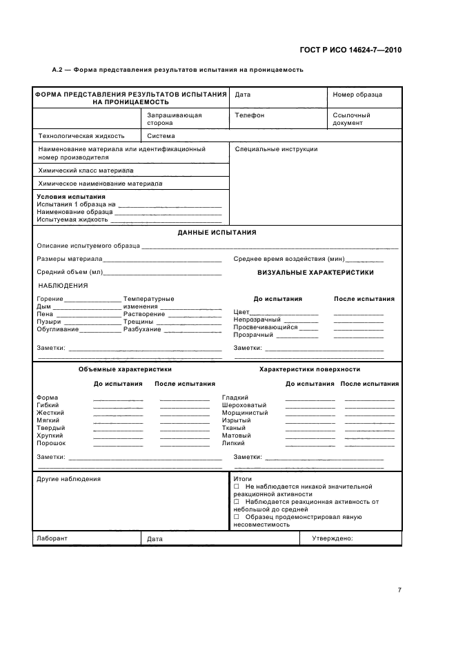
Область применения:Настоящий стандарт устанавливает испытательное оборудование и методы, применяемые для определения воздействия в результате взаимодействия материала и аэрокосмической жидкости.
Настоящий стандарт может быть использован для определения реакционной способности материалов с аэрокосмическими жидкостями. В нем представлены средства для определения небольшого воздействия аэрокосмических жидкостей, таких как всплеск или пролив на материал, используемый при наземном обеспечении производственных операций и при выборе средств индивидуальной защиты
ГОСТ Р ИСО 14624-7-2010ГОСТ Р ИСО 14624-7-2010ГОСТ Р ИСО 14624-7-2010ГОСТ Р ИСО 14624-7-2010ГОСТ Р ИСО 14624-7-2010ГОСТ Р ИСО 14624-7-2010ГОСТ Р ИСО 14624-7-2010ГОСТ Р ИСО 14624-7-2010ГОСТ Р ИСО 14624-7-2010ГОСТ Р ИСО 14624-7-2010ГОСТ Р ИСО 14624-7-2010ГОСТ Р ИСО 14624-7-2010
 




ГОСТЫ, СТРОИТЕЛЬНЫЕ и ТЕХНИЧЕСКИЕ НОРМАТИВЫ.
Некоммерческая онлайн система, содержащая все Российские Госты, национальные Стандарты и нормативы.
В Системе содержится более 150000 файлов нормативно-технической документации, действующей на территории РФ.
Система предназначена для широкого круга инженерно-технических специалистов.

Рейтинг@Mail.ru Яндекс цитирования

Copyright © www.gostrf.com, 2008 - 2026