Крупнейшая бесплатная информационно-справочная система онлайн доступа к полному собранию технических нормативно-правовых актов РФ. Огромная база технических нормативов (более 150 тысяч документов) и полное собрание национальных стандартов, аутентичное официальной базе Госстандарта. GOSTRF.com - это более 1 Терабайта бесплатной технической информации для всех пользователей интернета. Все электронные копии представленных здесь документов могут распространяться без каких-либо ограничений. Поощряется распространение информации с этого сайта на любых других ресурсах. Каждый человек имеет право на неограниченный доступ к этим документам! Каждый человек имеет право на знание требований, изложенных в данных нормативно-правовых актах!

  


 

ГОСТ Р 54204-2010

Ресурсосбережение. Каменные и бурые угли. Наилучшие доступные технологии сжигания

Обозначение:ГОСТ Р 54204-2010
Текущий статус документа: действующий
Название документа рус.:Ресурсосбережение. Каменные и бурые угли. Наилучшие доступные технологии сжигания
Название документа англ.:Resources conservation. Stone and brown coals. Best available techniques of incineration
Дата актуализации текста:01.12.2013
Дата издания:21.11.2011
Дата введения:01.01.2012
Дата последнего изменения:22.05.2013
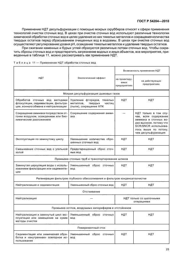
Область применения:Настоящий стандарт устанавливает наилучшие доступные технологии энергоэффективного и экологически безопасного сжигания каменных и бурых углей на крупных промышленных предприятиях.
Настоящий стандарт распространяется на методы совершенствования технологий сжигания твердого топлива на крупных промышленных предприятиях за счет применения соответствующих наилучших доступных технологий, позволяющих снизить негативное влияние на состояние окружающей среды на территории и вблизи этих предприятий.
Настоящий стандарт не распространяется на технологии, связанные с биологическими, химическими и атомными предприятиями.
Настоящий стандарт рекомендуется использовать во всех видах документации и литературы, относящихся к сферам обеспечения ресурсосбережения, энергоэффективности и экологической безопасности в процессах хозяйственной деятельности при сжигании твердого топлива на крупных промышленных предприятиях в энергетических целях
ГОСТ Р 54204-2010ГОСТ Р 54204-2010ГОСТ Р 54204-2010ГОСТ Р 54204-2010ГОСТ Р 54204-2010ГОСТ Р 54204-2010ГОСТ Р 54204-2010ГОСТ Р 54204-2010ГОСТ Р 54204-2010ГОСТ Р 54204-2010ГОСТ Р 54204-2010ГОСТ Р 54204-2010ГОСТ Р 54204-2010ГОСТ Р 54204-2010ГОСТ Р 54204-2010ГОСТ Р 54204-2010ГОСТ Р 54204-2010ГОСТ Р 54204-2010ГОСТ Р 54204-2010ГОСТ Р 54204-2010ГОСТ Р 54204-2010ГОСТ Р 54204-2010ГОСТ Р 54204-2010ГОСТ Р 54204-2010ГОСТ Р 54204-2010ГОСТ Р 54204-2010ГОСТ Р 54204-2010ГОСТ Р 54204-2010ГОСТ Р 54204-2010ГОСТ Р 54204-2010ГОСТ Р 54204-2010ГОСТ Р 54204-2010ГОСТ Р 54204-2010ГОСТ Р 54204-2010ГОСТ Р 54204-2010ГОСТ Р 54204-2010ГОСТ Р 54204-2010ГОСТ Р 54204-2010ГОСТ Р 54204-2010ГОСТ Р 54204-2010
 




ГОСТЫ, СТРОИТЕЛЬНЫЕ и ТЕХНИЧЕСКИЕ НОРМАТИВЫ.
Некоммерческая онлайн система, содержащая все Российские Госты, национальные Стандарты и нормативы.
В Системе содержится более 150000 файлов нормативно-технической документации, действующей на территории РФ.
Система предназначена для широкого круга инженерно-технических специалистов.

Рейтинг@Mail.ru Яндекс цитирования

Copyright © www.gostrf.com, 2008 - 2026