Крупнейшая бесплатная информационно-справочная система онлайн доступа к полному собранию технических нормативно-правовых актов РФ. Огромная база технических нормативов (более 150 тысяч документов) и полное собрание национальных стандартов, аутентичное официальной базе Госстандарта. GOSTRF.com - это более 1 Терабайта бесплатной технической информации для всех пользователей интернета. Все электронные копии представленных здесь документов могут распространяться без каких-либо ограничений. Поощряется распространение информации с этого сайта на любых других ресурсах. Каждый человек имеет право на неограниченный доступ к этим документам! Каждый человек имеет право на знание требований, изложенных в данных нормативно-правовых актах!

  


 

ГОСТ 10791-2011

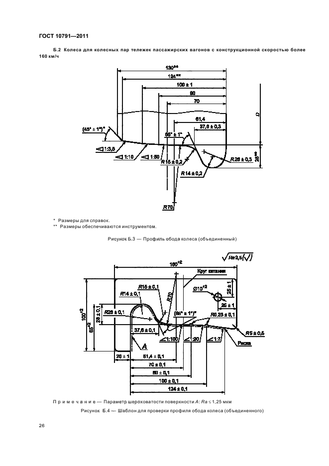
Колеса цельнокатаные. Технические условия

Обозначение:ГОСТ 10791-2011
Текущий статус документа: действующий
Название документа рус.:Колеса цельнокатаные. Технические условия
Название документа англ.:All-rolled wheels. Specifications
Дата актуализации текста:01.12.2013
Дата издания:23.11.2011
Дата введения:01.01.2012
Дата последнего изменения:22.05.2013
Взамен:
Область применения:Настоящий стандарт распространяется на цельнокатаные колеса исполнения УХЛ по ГОСТ 15150 для колесных пар тележек грузовых и пассажирских вагонов локомотивной тяги, пассажирских, грузовых и маневровых локомотивов, моторных и немоторных колесных пар вагонов электро- и дизель-поездов, специального железнодорожного подвижного состава
Список изменений:№0 от 01.06.2012 (рег. 01.06.2012) «Дата введения перенесена»
Приложение №1:Поправка к ГОСТ 10791-2011
ГОСТ 10791-2011ГОСТ 10791-2011ГОСТ 10791-2011ГОСТ 10791-2011ГОСТ 10791-2011ГОСТ 10791-2011ГОСТ 10791-2011ГОСТ 10791-2011ГОСТ 10791-2011ГОСТ 10791-2011ГОСТ 10791-2011ГОСТ 10791-2011ГОСТ 10791-2011ГОСТ 10791-2011ГОСТ 10791-2011ГОСТ 10791-2011ГОСТ 10791-2011ГОСТ 10791-2011ГОСТ 10791-2011ГОСТ 10791-2011ГОСТ 10791-2011ГОСТ 10791-2011ГОСТ 10791-2011ГОСТ 10791-2011ГОСТ 10791-2011ГОСТ 10791-2011ГОСТ 10791-2011ГОСТ 10791-2011ГОСТ 10791-2011ГОСТ 10791-2011ГОСТ 10791-2011ГОСТ 10791-2011ГОСТ 10791-2011

Поправка к ГОСТ 10791-2011

Обозначение:Поправка к ГОСТ 10791-2011
Дата введения:01.06.2012


Поправка к ГОСТ 10791-2011
 




ГОСТЫ, СТРОИТЕЛЬНЫЕ и ТЕХНИЧЕСКИЕ НОРМАТИВЫ.
Некоммерческая онлайн система, содержащая все Российские Госты, национальные Стандарты и нормативы.
В Системе содержится более 150000 файлов нормативно-технической документации, действующей на территории РФ.
Система предназначена для широкого круга инженерно-технических специалистов.

Рейтинг@Mail.ru Яндекс цитирования

Copyright © www.gostrf.com, 2008 - 2026