Крупнейшая бесплатная информационно-справочная система онлайн доступа к полному собранию технических нормативно-правовых актов РФ. Огромная база технических нормативов (более 150 тысяч документов) и полное собрание национальных стандартов, аутентичное официальной базе Госстандарта. GOSTRF.com - это более 1 Терабайта бесплатной технической информации для всех пользователей интернета. Все электронные копии представленных здесь документов могут распространяться без каких-либо ограничений. Поощряется распространение информации с этого сайта на любых других ресурсах. Каждый человек имеет право на неограниченный доступ к этим документам! Каждый человек имеет право на знание требований, изложенных в данных нормативно-правовых актах!

  


 

ГОСТ Р 51992-2011

Устройства защиты от импульсных перенапряжений низковольтные. Часть 1. Устройства защиты от импульсных перенапряжений в низковольтных силовых распределительных системах. Технические требования и методы испытаний

Обозначение:ГОСТ Р 51992-2011
Текущий статус документа: действующий
Название документа рус.:Устройства защиты от импульсных перенапряжений низковольтные. Часть 1. Устройства защиты от импульсных перенапряжений в низковольтных силовых распределительных системах. Технические требования и методы испытаний
Название документа англ.:Low-voltage surge protective devices. Part 1. Surge protective devices connected to low-voltage power distribution systems. Technical requirements and test methods
Дата актуализации текста:01.12.2013
Дата издания:29.06.2012
Дата введения:01.07.2012
Дата последнего изменения:22.05.2013
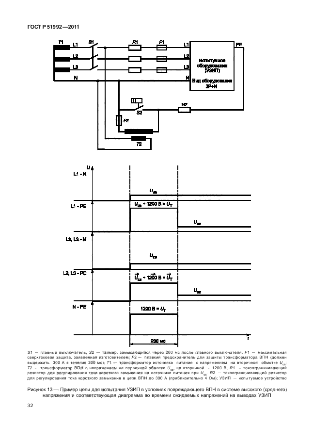
Область применения:Настоящий стандарт распространяется на устройства защиты электрических сетей и электрооборудования при прямом или косвенном воздействии грозовых или иных переходных перенапряжений. Данные устройства предназначены для подсоединения к силовым цепям переменного тока частотой 50 - 60 Гц или постоянного тока и к оборудованию с номинальным напряжением до 1000 В (действующее значение) или 1500 В постоянного тока. Рабочие характеристики, стандартные методы испытаний и номинальные параметры установлены для таких устройств, которые содержат по крайней мере один нелинейный элемент, предназначенный для ограничения перенапряжений и отвода импульсных токов
ГОСТ Р 51992-2011ГОСТ Р 51992-2011ГОСТ Р 51992-2011ГОСТ Р 51992-2011ГОСТ Р 51992-2011ГОСТ Р 51992-2011ГОСТ Р 51992-2011ГОСТ Р 51992-2011ГОСТ Р 51992-2011ГОСТ Р 51992-2011ГОСТ Р 51992-2011ГОСТ Р 51992-2011ГОСТ Р 51992-2011ГОСТ Р 51992-2011ГОСТ Р 51992-2011ГОСТ Р 51992-2011ГОСТ Р 51992-2011ГОСТ Р 51992-2011ГОСТ Р 51992-2011ГОСТ Р 51992-2011ГОСТ Р 51992-2011ГОСТ Р 51992-2011ГОСТ Р 51992-2011ГОСТ Р 51992-2011ГОСТ Р 51992-2011ГОСТ Р 51992-2011ГОСТ Р 51992-2011ГОСТ Р 51992-2011ГОСТ Р 51992-2011ГОСТ Р 51992-2011ГОСТ Р 51992-2011ГОСТ Р 51992-2011ГОСТ Р 51992-2011ГОСТ Р 51992-2011ГОСТ Р 51992-2011ГОСТ Р 51992-2011ГОСТ Р 51992-2011ГОСТ Р 51992-2011ГОСТ Р 51992-2011ГОСТ Р 51992-2011ГОСТ Р 51992-2011ГОСТ Р 51992-2011ГОСТ Р 51992-2011ГОСТ Р 51992-2011ГОСТ Р 51992-2011ГОСТ Р 51992-2011ГОСТ Р 51992-2011ГОСТ Р 51992-2011ГОСТ Р 51992-2011ГОСТ Р 51992-2011ГОСТ Р 51992-2011ГОСТ Р 51992-2011ГОСТ Р 51992-2011ГОСТ Р 51992-2011ГОСТ Р 51992-2011ГОСТ Р 51992-2011ГОСТ Р 51992-2011ГОСТ Р 51992-2011ГОСТ Р 51992-2011
 




ГОСТЫ, СТРОИТЕЛЬНЫЕ и ТЕХНИЧЕСКИЕ НОРМАТИВЫ.
Некоммерческая онлайн система, содержащая все Российские Госты, национальные Стандарты и нормативы.
В Системе содержится более 150000 файлов нормативно-технической документации, действующей на территории РФ.
Система предназначена для широкого круга инженерно-технических специалистов.

Рейтинг@Mail.ru Яндекс цитирования

Copyright © www.gostrf.com, 2008 - 2026