Крупнейшая бесплатная информационно-справочная система онлайн доступа к полному собранию технических нормативно-правовых актов РФ. Огромная база технических нормативов (более 150 тысяч документов) и полное собрание национальных стандартов, аутентичное официальной базе Госстандарта. GOSTRF.com - это более 1 Терабайта бесплатной технической информации для всех пользователей интернета. Все электронные копии представленных здесь документов могут распространяться без каких-либо ограничений. Поощряется распространение информации с этого сайта на любых других ресурсах. Каждый человек имеет право на неограниченный доступ к этим документам! Каждый человек имеет право на знание требований, изложенных в данных нормативно-правовых актах!

  


 

ГОСТ Р МЭК 60901-2011

Лампы люминесцентные одноцокольные. Эксплуатационные требования

Обозначение:ГОСТ Р МЭК 60901-2011
Текущий статус документа: действующий
Название документа рус.:Лампы люминесцентные одноцокольные. Эксплуатационные требования
Название документа англ.:Single-capped fluorescent lamps. Performance requirements
Дата актуализации текста:01.12.2013
Дата издания:05.10.2012
Дата введения:01.07.2012
Дата последнего изменения:22.05.2013
Область применения:Настоящий стандарт распространяется на одноцокольные люминесцентные лампы для общего освещения и устанавливает эксплуатационные требования.
Требования настоящего стандарта относятся только к испытанию типа. Правила приемки, включая методы статистической оценки, в стадии рассмотрения.
Стандарт распространяется на лампы следующих типов и способов работы с внешними пускорегулирующими аппаратами (ПРА):
a) лампы с внутренними средствами зажигания и предварительным подогревом катодов для работы на сетевых частотах переменного тока;
b) лампы с внешними средствами зажигания и предварительным подогревом катодов для работы на сетевых частотах переменного тока со стартером и на высокой частоте (ВЧ);
c) лампы с внешними средствами зажигания и предварительным подогревом катодов для работы на сетевых частотах переменного тока без стартера (бесстартерные) и на ВЧ;
d) лампы с внешними средствами зажигания и предварительным подогревом катодов для работы на ВЧ;
e) лампы с внешними средствами зажигания без предварительного подогрева катодов для работы на ВЧ.
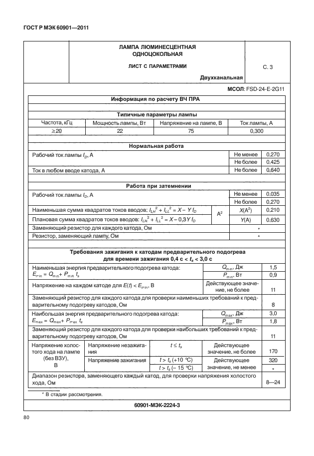
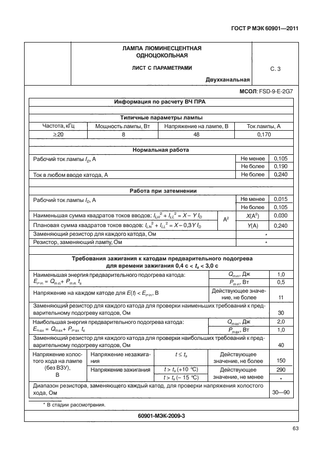
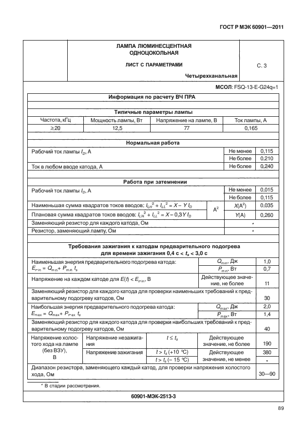
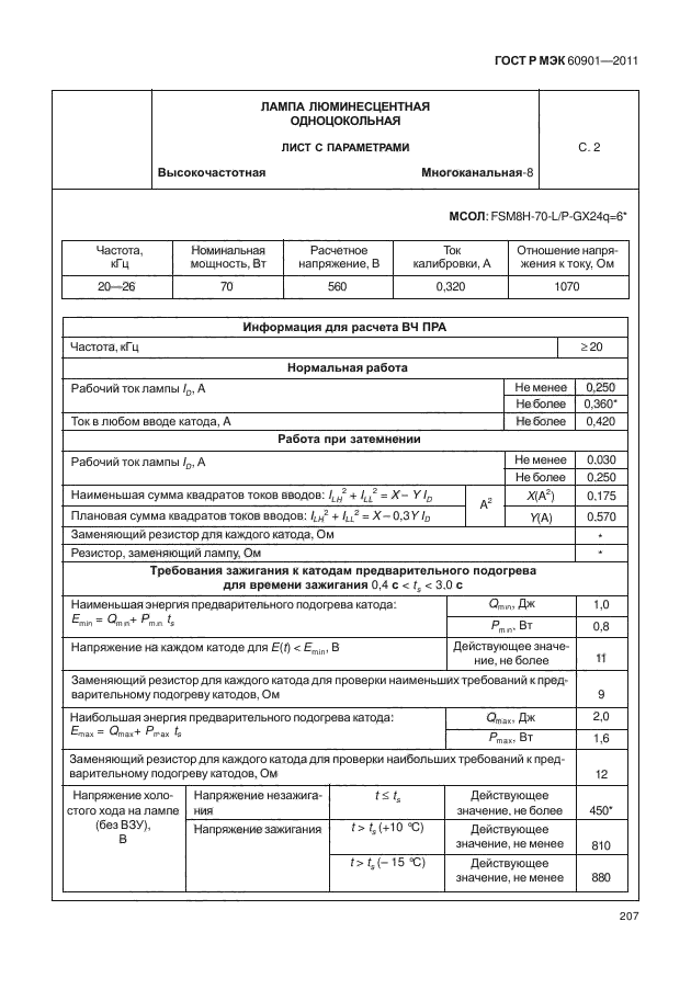
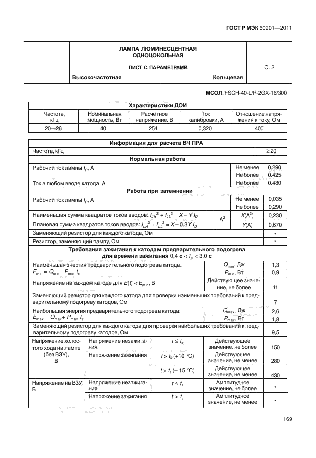
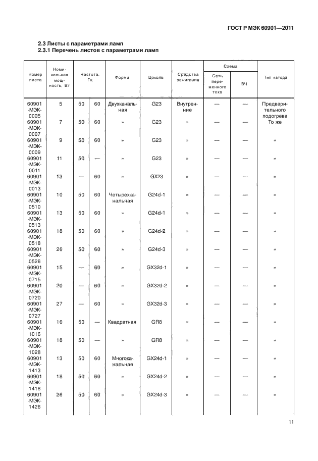
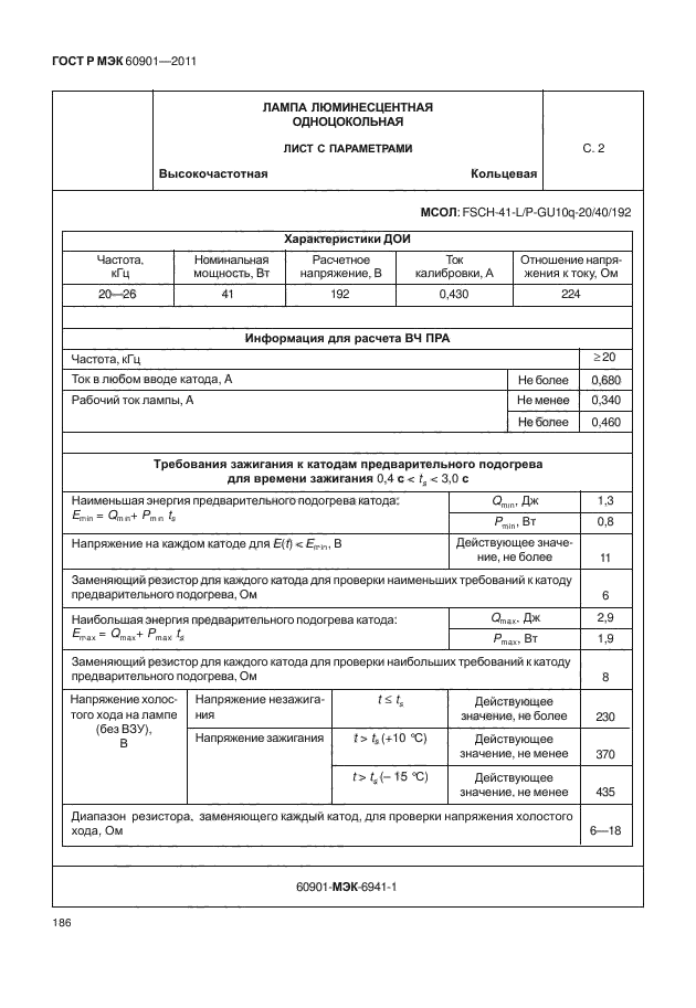
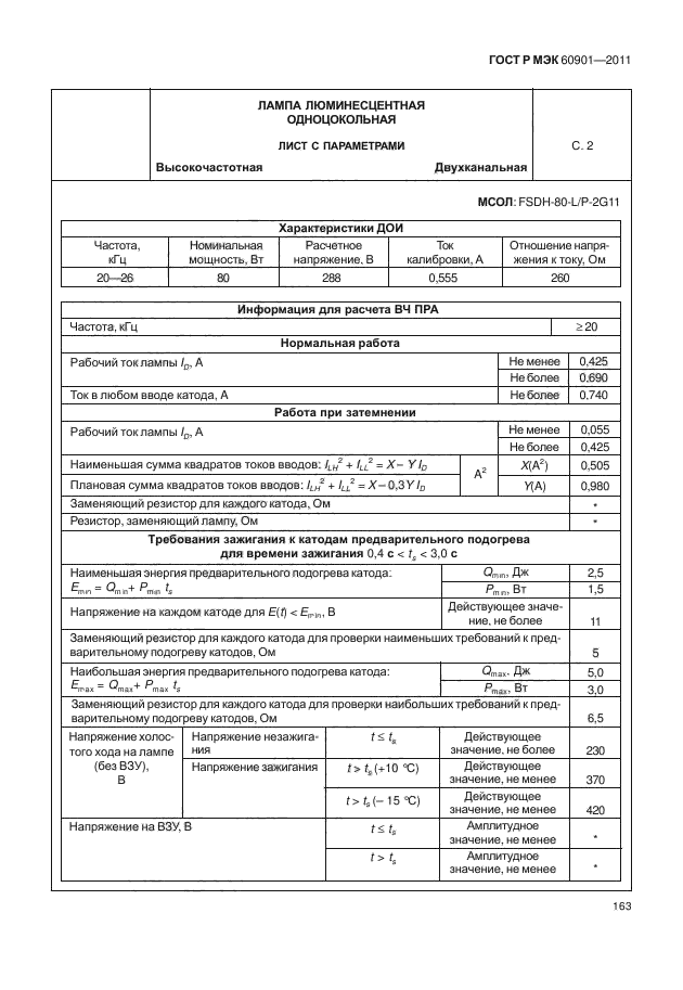
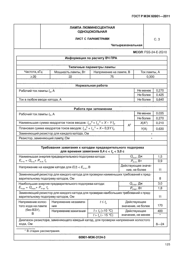
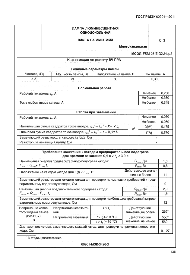
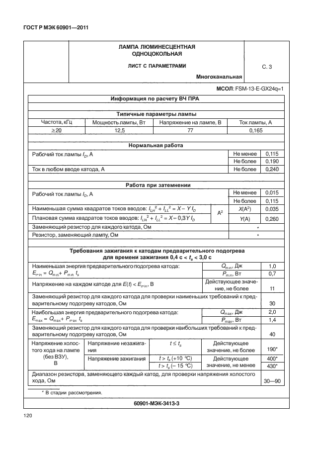
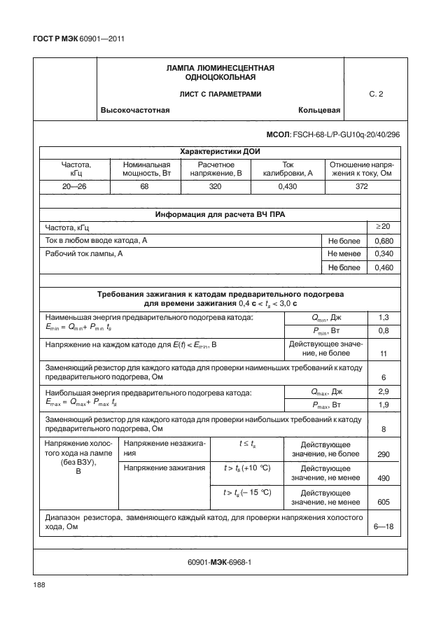
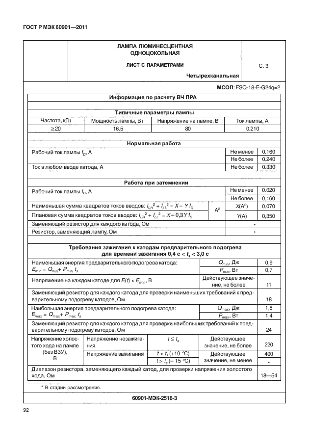
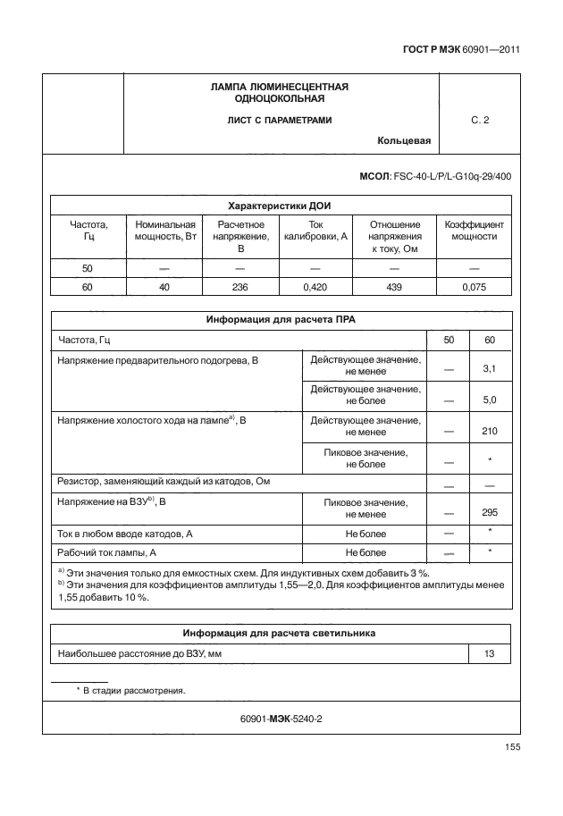
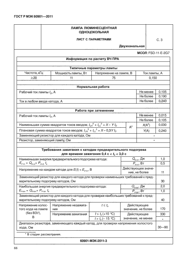
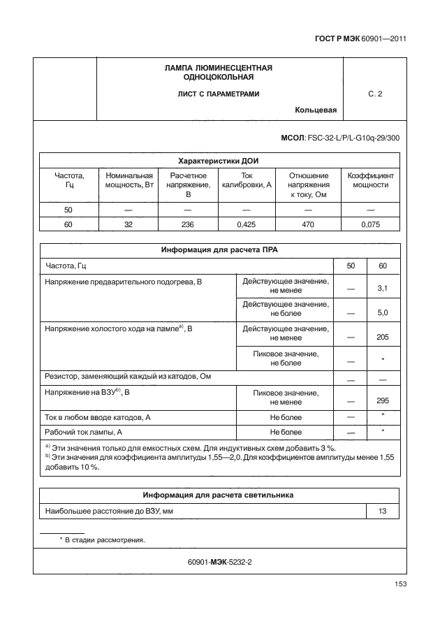
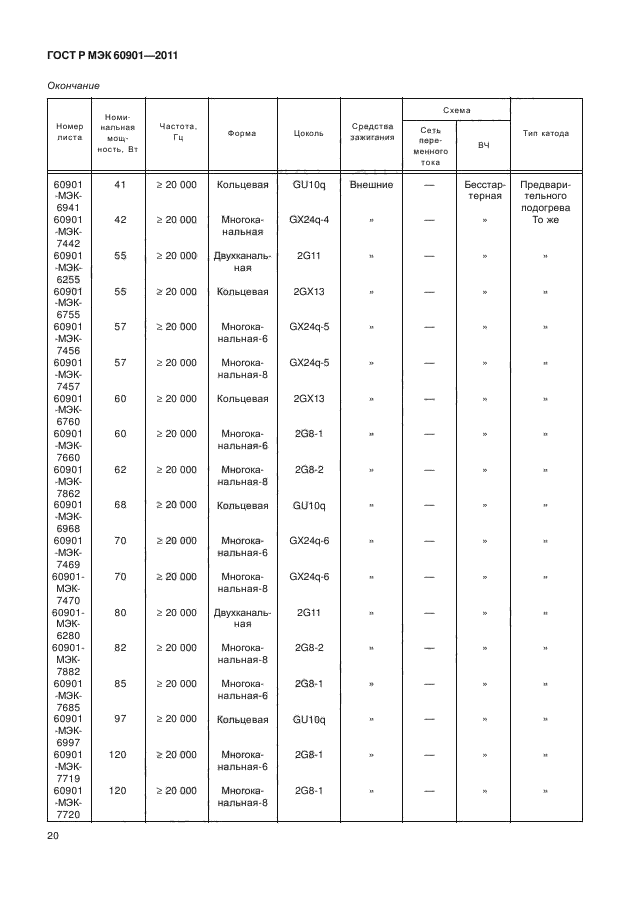
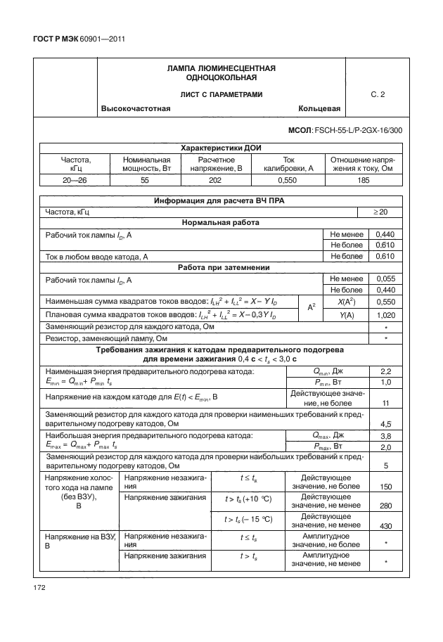
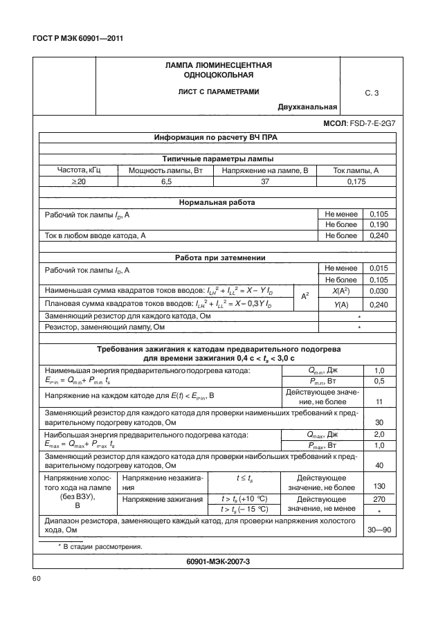
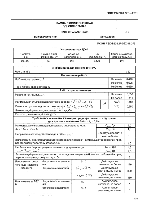
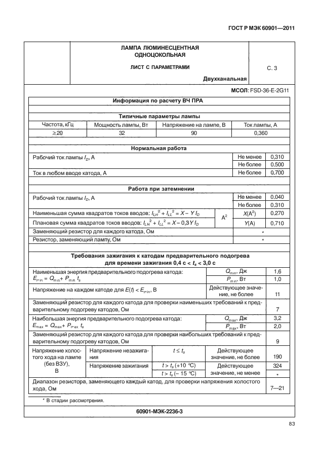
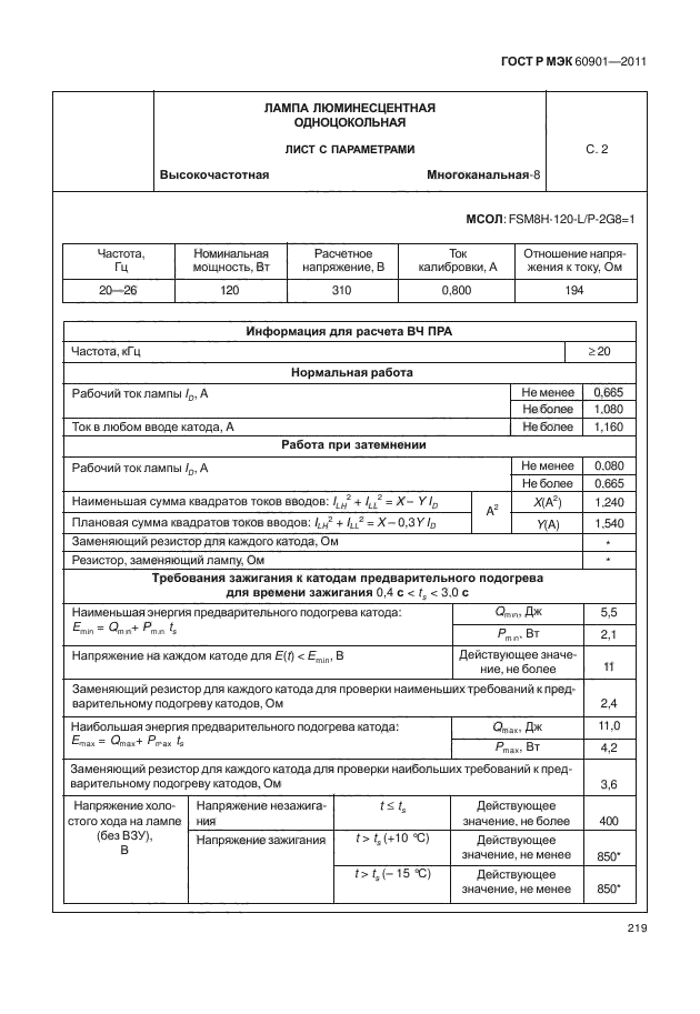
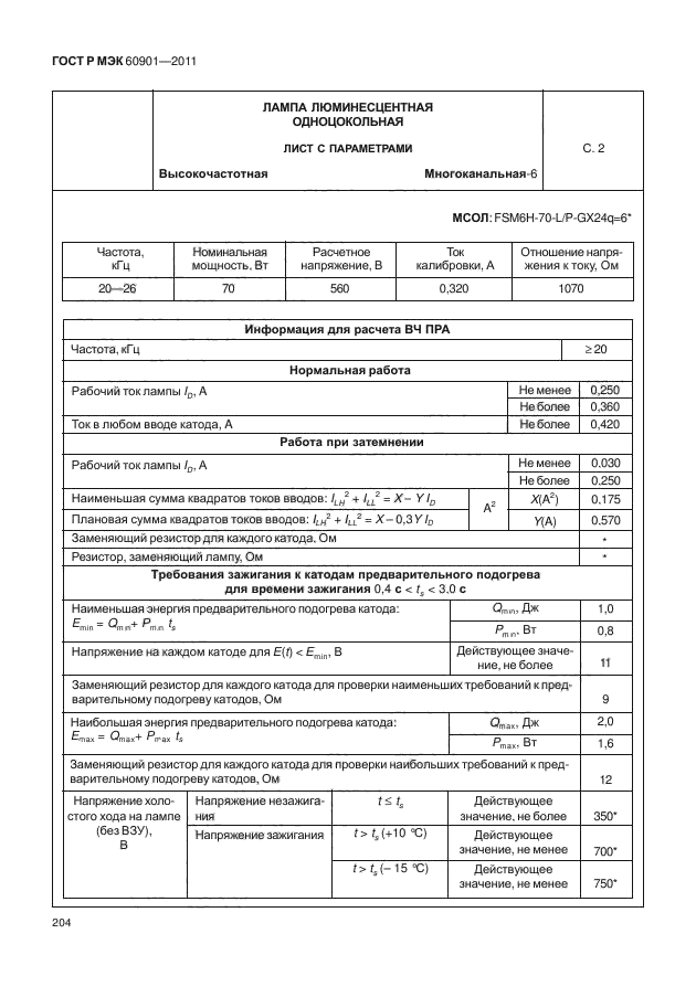
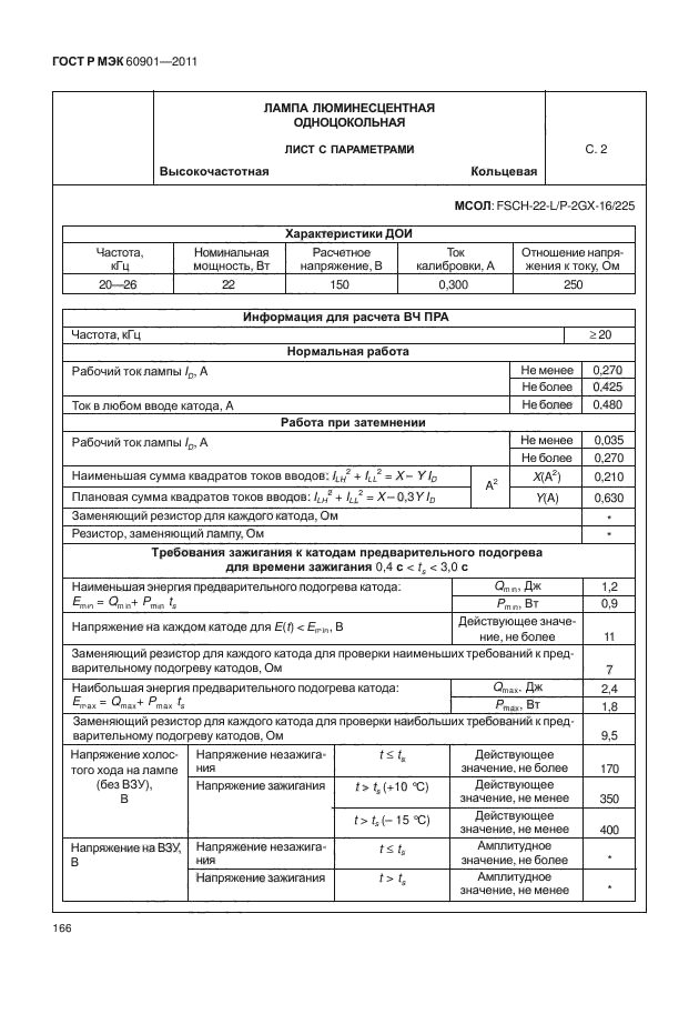
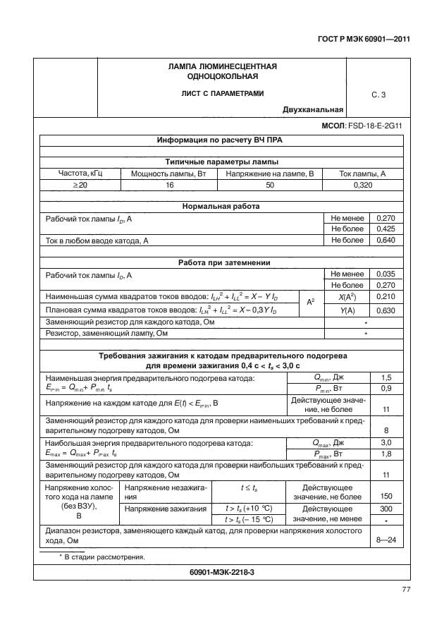
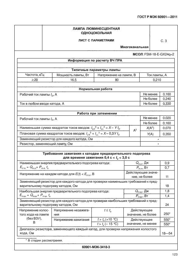
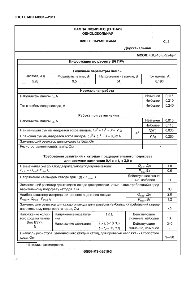
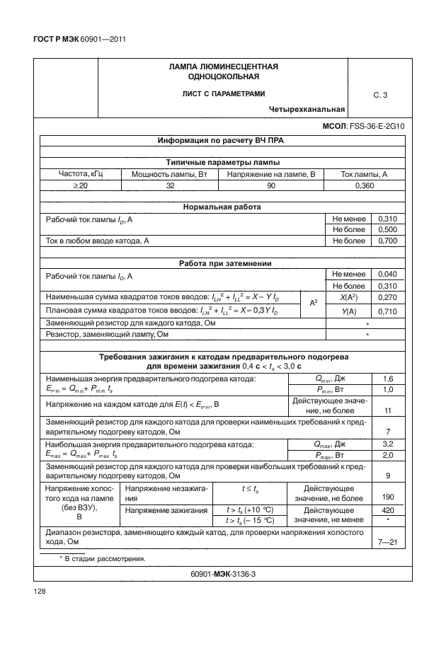
Для некоторых требований в настоящем стандарте дана ссылка на «соответствующий лист с параметрами». Для некоторых ламп эти листы с параметрами содержатся в настоящем стандарте. Для других ламп, входящих в область применения настоящего стандарта, лист с параметрами предоставляется изготовителем лампы или ответственным поставщиком
ГОСТ Р МЭК 60901-2011ГОСТ Р МЭК 60901-2011ГОСТ Р МЭК 60901-2011ГОСТ Р МЭК 60901-2011ГОСТ Р МЭК 60901-2011ГОСТ Р МЭК 60901-2011ГОСТ Р МЭК 60901-2011ГОСТ Р МЭК 60901-2011ГОСТ Р МЭК 60901-2011ГОСТ Р МЭК 60901-2011ГОСТ Р МЭК 60901-2011ГОСТ Р МЭК 60901-2011ГОСТ Р МЭК 60901-2011ГОСТ Р МЭК 60901-2011ГОСТ Р МЭК 60901-2011ГОСТ Р МЭК 60901-2011ГОСТ Р МЭК 60901-2011ГОСТ Р МЭК 60901-2011ГОСТ Р МЭК 60901-2011ГОСТ Р МЭК 60901-2011ГОСТ Р МЭК 60901-2011ГОСТ Р МЭК 60901-2011ГОСТ Р МЭК 60901-2011ГОСТ Р МЭК 60901-2011ГОСТ Р МЭК 60901-2011ГОСТ Р МЭК 60901-2011ГОСТ Р МЭК 60901-2011ГОСТ Р МЭК 60901-2011ГОСТ Р МЭК 60901-2011ГОСТ Р МЭК 60901-2011ГОСТ Р МЭК 60901-2011ГОСТ Р МЭК 60901-2011ГОСТ Р МЭК 60901-2011ГОСТ Р МЭК 60901-2011ГОСТ Р МЭК 60901-2011ГОСТ Р МЭК 60901-2011ГОСТ Р МЭК 60901-2011ГОСТ Р МЭК 60901-2011ГОСТ Р МЭК 60901-2011ГОСТ Р МЭК 60901-2011ГОСТ Р МЭК 60901-2011ГОСТ Р МЭК 60901-2011ГОСТ Р МЭК 60901-2011ГОСТ Р МЭК 60901-2011ГОСТ Р МЭК 60901-2011ГОСТ Р МЭК 60901-2011ГОСТ Р МЭК 60901-2011ГОСТ Р МЭК 60901-2011ГОСТ Р МЭК 60901-2011ГОСТ Р МЭК 60901-2011ГОСТ Р МЭК 60901-2011ГОСТ Р МЭК 60901-2011ГОСТ Р МЭК 60901-2011ГОСТ Р МЭК 60901-2011ГОСТ Р МЭК 60901-2011ГОСТ Р МЭК 60901-2011ГОСТ Р МЭК 60901-2011ГОСТ Р МЭК 60901-2011ГОСТ Р МЭК 60901-2011ГОСТ Р МЭК 60901-2011ГОСТ Р МЭК 60901-2011ГОСТ Р МЭК 60901-2011ГОСТ Р МЭК 60901-2011ГОСТ Р МЭК 60901-2011ГОСТ Р МЭК 60901-2011ГОСТ Р МЭК 60901-2011ГОСТ Р МЭК 60901-2011ГОСТ Р МЭК 60901-2011ГОСТ Р МЭК 60901-2011ГОСТ Р МЭК 60901-2011ГОСТ Р МЭК 60901-2011ГОСТ Р МЭК 60901-2011ГОСТ Р МЭК 60901-2011ГОСТ Р МЭК 60901-2011ГОСТ Р МЭК 60901-2011ГОСТ Р МЭК 60901-2011ГОСТ Р МЭК 60901-2011ГОСТ Р МЭК 60901-2011ГОСТ Р МЭК 60901-2011ГОСТ Р МЭК 60901-2011ГОСТ Р МЭК 60901-2011ГОСТ Р МЭК 60901-2011ГОСТ Р МЭК 60901-2011ГОСТ Р МЭК 60901-2011ГОСТ Р МЭК 60901-2011ГОСТ Р МЭК 60901-2011ГОСТ Р МЭК 60901-2011ГОСТ Р МЭК 60901-2011ГОСТ Р МЭК 60901-2011ГОСТ Р МЭК 60901-2011ГОСТ Р МЭК 60901-2011ГОСТ Р МЭК 60901-2011ГОСТ Р МЭК 60901-2011ГОСТ Р МЭК 60901-2011ГОСТ Р МЭК 60901-2011ГОСТ Р МЭК 60901-2011ГОСТ Р МЭК 60901-2011ГОСТ Р МЭК 60901-2011ГОСТ Р МЭК 60901-2011ГОСТ Р МЭК 60901-2011ГОСТ Р МЭК 60901-2011ГОСТ Р МЭК 60901-2011ГОСТ Р МЭК 60901-2011ГОСТ Р МЭК 60901-2011ГОСТ Р МЭК 60901-2011ГОСТ Р МЭК 60901-2011ГОСТ Р МЭК 60901-2011ГОСТ Р МЭК 60901-2011ГОСТ Р МЭК 60901-2011ГОСТ Р МЭК 60901-2011ГОСТ Р МЭК 60901-2011ГОСТ Р МЭК 60901-2011ГОСТ Р МЭК 60901-2011ГОСТ Р МЭК 60901-2011ГОСТ Р МЭК 60901-2011ГОСТ Р МЭК 60901-2011ГОСТ Р МЭК 60901-2011ГОСТ Р МЭК 60901-2011ГОСТ Р МЭК 60901-2011ГОСТ Р МЭК 60901-2011ГОСТ Р МЭК 60901-2011ГОСТ Р МЭК 60901-2011ГОСТ Р МЭК 60901-2011ГОСТ Р МЭК 60901-2011ГОСТ Р МЭК 60901-2011ГОСТ Р МЭК 60901-2011ГОСТ Р МЭК 60901-2011ГОСТ Р МЭК 60901-2011ГОСТ Р МЭК 60901-2011ГОСТ Р МЭК 60901-2011ГОСТ Р МЭК 60901-2011ГОСТ Р МЭК 60901-2011ГОСТ Р МЭК 60901-2011ГОСТ Р МЭК 60901-2011ГОСТ Р МЭК 60901-2011ГОСТ Р МЭК 60901-2011ГОСТ Р МЭК 60901-2011ГОСТ Р МЭК 60901-2011ГОСТ Р МЭК 60901-2011ГОСТ Р МЭК 60901-2011ГОСТ Р МЭК 60901-2011ГОСТ Р МЭК 60901-2011ГОСТ Р МЭК 60901-2011ГОСТ Р МЭК 60901-2011ГОСТ Р МЭК 60901-2011ГОСТ Р МЭК 60901-2011ГОСТ Р МЭК 60901-2011ГОСТ Р МЭК 60901-2011ГОСТ Р МЭК 60901-2011ГОСТ Р МЭК 60901-2011ГОСТ Р МЭК 60901-2011ГОСТ Р МЭК 60901-2011ГОСТ Р МЭК 60901-2011ГОСТ Р МЭК 60901-2011ГОСТ Р МЭК 60901-2011ГОСТ Р МЭК 60901-2011ГОСТ Р МЭК 60901-2011ГОСТ Р МЭК 60901-2011ГОСТ Р МЭК 60901-2011ГОСТ Р МЭК 60901-2011ГОСТ Р МЭК 60901-2011ГОСТ Р МЭК 60901-2011ГОСТ Р МЭК 60901-2011ГОСТ Р МЭК 60901-2011ГОСТ Р МЭК 60901-2011ГОСТ Р МЭК 60901-2011ГОСТ Р МЭК 60901-2011ГОСТ Р МЭК 60901-2011ГОСТ Р МЭК 60901-2011ГОСТ Р МЭК 60901-2011ГОСТ Р МЭК 60901-2011ГОСТ Р МЭК 60901-2011ГОСТ Р МЭК 60901-2011ГОСТ Р МЭК 60901-2011ГОСТ Р МЭК 60901-2011ГОСТ Р МЭК 60901-2011ГОСТ Р МЭК 60901-2011ГОСТ Р МЭК 60901-2011ГОСТ Р МЭК 60901-2011ГОСТ Р МЭК 60901-2011ГОСТ Р МЭК 60901-2011ГОСТ Р МЭК 60901-2011ГОСТ Р МЭК 60901-2011ГОСТ Р МЭК 60901-2011ГОСТ Р МЭК 60901-2011ГОСТ Р МЭК 60901-2011ГОСТ Р МЭК 60901-2011ГОСТ Р МЭК 60901-2011ГОСТ Р МЭК 60901-2011ГОСТ Р МЭК 60901-2011ГОСТ Р МЭК 60901-2011ГОСТ Р МЭК 60901-2011ГОСТ Р МЭК 60901-2011ГОСТ Р МЭК 60901-2011ГОСТ Р МЭК 60901-2011ГОСТ Р МЭК 60901-2011ГОСТ Р МЭК 60901-2011ГОСТ Р МЭК 60901-2011ГОСТ Р МЭК 60901-2011ГОСТ Р МЭК 60901-2011ГОСТ Р МЭК 60901-2011ГОСТ Р МЭК 60901-2011ГОСТ Р МЭК 60901-2011ГОСТ Р МЭК 60901-2011ГОСТ Р МЭК 60901-2011ГОСТ Р МЭК 60901-2011ГОСТ Р МЭК 60901-2011ГОСТ Р МЭК 60901-2011ГОСТ Р МЭК 60901-2011ГОСТ Р МЭК 60901-2011ГОСТ Р МЭК 60901-2011ГОСТ Р МЭК 60901-2011ГОСТ Р МЭК 60901-2011ГОСТ Р МЭК 60901-2011ГОСТ Р МЭК 60901-2011ГОСТ Р МЭК 60901-2011ГОСТ Р МЭК 60901-2011ГОСТ Р МЭК 60901-2011ГОСТ Р МЭК 60901-2011ГОСТ Р МЭК 60901-2011ГОСТ Р МЭК 60901-2011ГОСТ Р МЭК 60901-2011ГОСТ Р МЭК 60901-2011ГОСТ Р МЭК 60901-2011ГОСТ Р МЭК 60901-2011ГОСТ Р МЭК 60901-2011ГОСТ Р МЭК 60901-2011ГОСТ Р МЭК 60901-2011ГОСТ Р МЭК 60901-2011ГОСТ Р МЭК 60901-2011ГОСТ Р МЭК 60901-2011ГОСТ Р МЭК 60901-2011ГОСТ Р МЭК 60901-2011ГОСТ Р МЭК 60901-2011ГОСТ Р МЭК 60901-2011ГОСТ Р МЭК 60901-2011ГОСТ Р МЭК 60901-2011ГОСТ Р МЭК 60901-2011ГОСТ Р МЭК 60901-2011ГОСТ Р МЭК 60901-2011ГОСТ Р МЭК 60901-2011ГОСТ Р МЭК 60901-2011ГОСТ Р МЭК 60901-2011ГОСТ Р МЭК 60901-2011ГОСТ Р МЭК 60901-2011ГОСТ Р МЭК 60901-2011ГОСТ Р МЭК 60901-2011ГОСТ Р МЭК 60901-2011ГОСТ Р МЭК 60901-2011ГОСТ Р МЭК 60901-2011ГОСТ Р МЭК 60901-2011ГОСТ Р МЭК 60901-2011ГОСТ Р МЭК 60901-2011ГОСТ Р МЭК 60901-2011ГОСТ Р МЭК 60901-2011
 




ГОСТЫ, СТРОИТЕЛЬНЫЕ и ТЕХНИЧЕСКИЕ НОРМАТИВЫ.
Некоммерческая онлайн система, содержащая все Российские Госты, национальные Стандарты и нормативы.
В Системе содержится более 150000 файлов нормативно-технической документации, действующей на территории РФ.
Система предназначена для широкого круга инженерно-технических специалистов.

Рейтинг@Mail.ru Яндекс цитирования

Copyright © www.gostrf.com, 2008 - 2026