Крупнейшая бесплатная информационно-справочная система онлайн доступа к полному собранию технических нормативно-правовых актов РФ. Огромная база технических нормативов (более 150 тысяч документов) и полное собрание национальных стандартов, аутентичное официальной базе Госстандарта. GOSTRF.com - это более 1 Терабайта бесплатной технической информации для всех пользователей интернета. Все электронные копии представленных здесь документов могут распространяться без каких-либо ограничений. Поощряется распространение информации с этого сайта на любых других ресурсах. Каждый человек имеет право на неограниченный доступ к этим документам! Каждый человек имеет право на знание требований, изложенных в данных нормативно-правовых актах!

  


 

ГОСТ Р 54220-2010

Биотопливо твердое. Технические характеристики и классы топлива. Часть 1. Общие требования

Обозначение:ГОСТ Р 54220-2010
Текущий статус документа: действующий
Название документа рус.:Биотопливо твердое. Технические характеристики и классы топлива. Часть 1. Общие требования
Название документа англ.:Solid biofuels. Fuel specifications and classes. Part 1. General requirements
Дата актуализации текста:01.12.2013
Дата издания:07.06.2012
Дата введения:01.07.2012
Дата последнего изменения:15.07.2013
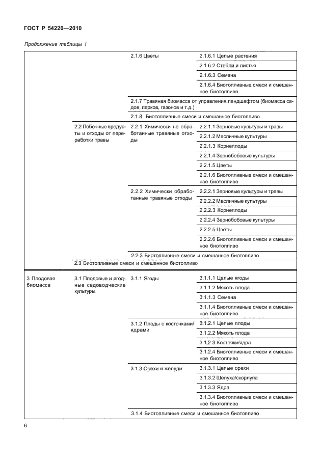
Область применения:Настоящий стандарт устанавливает классы твердого биотоплива в зависимости от его происхождения, а также определяет основные технические характеристики, качество топлива и стандартные методы его определения. Область применения стандарта включает твердое биотопливо следующего происхождения:
- продукция сельского хозяйства и лесного хозяйства;
- растительные отходы сельского хозяйства и лесного хозяйства;
- растительные отходы пищевой промышленности;
- древесные отходы, за исключением тех, которые могут содержать галогенизированные органические соединения и тяжелые металлы в результате обработки дерева предохраняющими средствами (консервантами) или покрытием (грунт, шпатлевка) и которые включают в себя, в частности, такие древесные отходы, как строительные отходы и строительный лом;
- волокнистые (жилистые) растительные отходы производства целлюлозы из первичного сырья и производства бумаги из целлюлозной массы, если эти отходы концентрируются в месте производства;
- пробковые отходы
ГОСТ Р 54220-2010ГОСТ Р 54220-2010ГОСТ Р 54220-2010ГОСТ Р 54220-2010ГОСТ Р 54220-2010ГОСТ Р 54220-2010ГОСТ Р 54220-2010ГОСТ Р 54220-2010ГОСТ Р 54220-2010ГОСТ Р 54220-2010ГОСТ Р 54220-2010ГОСТ Р 54220-2010ГОСТ Р 54220-2010ГОСТ Р 54220-2010ГОСТ Р 54220-2010ГОСТ Р 54220-2010ГОСТ Р 54220-2010ГОСТ Р 54220-2010ГОСТ Р 54220-2010ГОСТ Р 54220-2010ГОСТ Р 54220-2010ГОСТ Р 54220-2010ГОСТ Р 54220-2010ГОСТ Р 54220-2010ГОСТ Р 54220-2010ГОСТ Р 54220-2010ГОСТ Р 54220-2010ГОСТ Р 54220-2010ГОСТ Р 54220-2010ГОСТ Р 54220-2010ГОСТ Р 54220-2010ГОСТ Р 54220-2010ГОСТ Р 54220-2010ГОСТ Р 54220-2010ГОСТ Р 54220-2010ГОСТ Р 54220-2010ГОСТ Р 54220-2010ГОСТ Р 54220-2010ГОСТ Р 54220-2010ГОСТ Р 54220-2010ГОСТ Р 54220-2010ГОСТ Р 54220-2010ГОСТ Р 54220-2010ГОСТ Р 54220-2010ГОСТ Р 54220-2010ГОСТ Р 54220-2010ГОСТ Р 54220-2010
 




ГОСТЫ, СТРОИТЕЛЬНЫЕ и ТЕХНИЧЕСКИЕ НОРМАТИВЫ.
Некоммерческая онлайн система, содержащая все Российские Госты, национальные Стандарты и нормативы.
В Системе содержится более 150000 файлов нормативно-технической документации, действующей на территории РФ.
Система предназначена для широкого круга инженерно-технических специалистов.

Рейтинг@Mail.ru Яндекс цитирования

Copyright © www.gostrf.com, 2008 - 2026