Крупнейшая бесплатная информационно-справочная система онлайн доступа к полному собранию технических нормативно-правовых актов РФ. Огромная база технических нормативов (более 150 тысяч документов) и полное собрание национальных стандартов, аутентичное официальной базе Госстандарта. GOSTRF.com - это более 1 Терабайта бесплатной технической информации для всех пользователей интернета. Все электронные копии представленных здесь документов могут распространяться без каких-либо ограничений. Поощряется распространение информации с этого сайта на любых других ресурсах. Каждый человек имеет право на неограниченный доступ к этим документам! Каждый человек имеет право на знание требований, изложенных в данных нормативно-правовых актах!

  


 

ГОСТ Р 54892-2012

Монтаж установок разделения воздуха и другого криогенного оборудования. Общие положения

Обозначение:ГОСТ Р 54892-2012
Текущий статус документа: действующий
Название документа рус.:Монтаж установок разделения воздуха и другого криогенного оборудования. Общие положения
Название документа англ.:Installation of air separation plants and other cryogenic equipment. General provisions
Дата актуализации текста:01.12.2013
Дата издания:22.08.2012
Дата введения:01.06.2012
Дата последнего изменения:23.05.2013
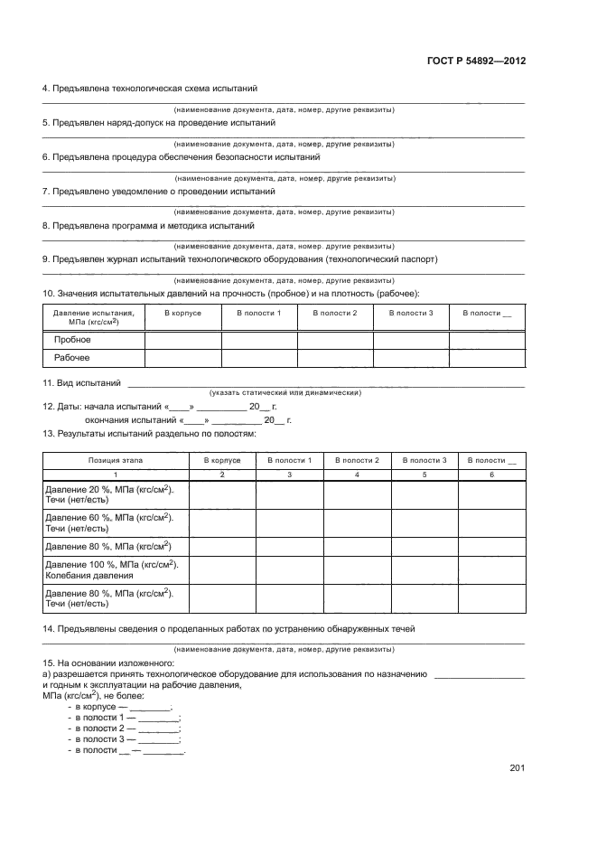
Область применения:Настоящий стандарт устанавливает общие положения по организации методов (способов, приемов, режимов, норм и т.п.) выполнения работ (оказания услуг) по монтажу оборудования криогенной техники: установок разделения воздуха и других криогенных систем, отдельного оборудования и трубопроводов при строительстве, техническом перевооружении, реконструкции, капитальном ремонте объектов капитального строительства, методов контроля качества этих работ (услуг) и порядка их приемки.
Положения настоящего стандарта направлены на качественное выполнение работ (оказание услуг) всеми участниками инвестиционного процесса на объекте капитального строительства, предупреждение возникновения аварийных ситуаций и случаев производственного травматизма.
Настоящий стандарт применяется при строительстве, техническом перевооружении, реконструкции, ремонте объектов капитального строительства (станций разделения воздуха, отдельных производств, обособленных участков и т.п.), а также при реконструкции, сервисном обслуживании и различного вида ремонтах оборудования криогенной техники.
Отдельные положения настоящего стандарта могут применяться при демонтаже, консервации, расконсервации, ликвидации и утилизации указанного оборудования.
Настоящий стандарт предназначен для применения организациями независимо от их организационно-правовых форм и форм собственности, проектирующими и эксплуатирующими указанное оборудование, выполняющими и принимающими работы по его монтажу, общестроительными и специализированными строительно-монтажными организациями, а также изготовителями (поставщиками, посредниками) данного оборудования в части, относящейся к их профилю.
Положения настоящего стандарта обязательны для применения к техническим изделиям и оборудованию (работам и услугам), размещаемым (выполняемым) на опасных производственных объектах.
Настоящий стандарт не распространяется на иное оборудование, монтируемое на станции разделения воздуха, в том числе: электротехническое, силовое, инженерных сетей (канализация, отопление, водо-, тепло-, газо-, энергоснабжение и т.п.), связи, сигнализации, противопожарное и другое оборудование, монтаж которого ведется по отдельным нормативным документам.
Настоящий стандарт не распространяется на оборудование для работы водородом, гелием, ацетиленом, двуокисью углерода, природным газом и другими техническими газами и веществами, имеющими свои специфические особенности
ГОСТ Р 54892-2012ГОСТ Р 54892-2012ГОСТ Р 54892-2012ГОСТ Р 54892-2012ГОСТ Р 54892-2012ГОСТ Р 54892-2012ГОСТ Р 54892-2012ГОСТ Р 54892-2012ГОСТ Р 54892-2012ГОСТ Р 54892-2012ГОСТ Р 54892-2012ГОСТ Р 54892-2012ГОСТ Р 54892-2012ГОСТ Р 54892-2012ГОСТ Р 54892-2012ГОСТ Р 54892-2012ГОСТ Р 54892-2012ГОСТ Р 54892-2012ГОСТ Р 54892-2012ГОСТ Р 54892-2012ГОСТ Р 54892-2012ГОСТ Р 54892-2012ГОСТ Р 54892-2012ГОСТ Р 54892-2012ГОСТ Р 54892-2012ГОСТ Р 54892-2012ГОСТ Р 54892-2012ГОСТ Р 54892-2012ГОСТ Р 54892-2012ГОСТ Р 54892-2012ГОСТ Р 54892-2012ГОСТ Р 54892-2012ГОСТ Р 54892-2012ГОСТ Р 54892-2012ГОСТ Р 54892-2012ГОСТ Р 54892-2012ГОСТ Р 54892-2012ГОСТ Р 54892-2012ГОСТ Р 54892-2012ГОСТ Р 54892-2012ГОСТ Р 54892-2012ГОСТ Р 54892-2012ГОСТ Р 54892-2012ГОСТ Р 54892-2012ГОСТ Р 54892-2012ГОСТ Р 54892-2012ГОСТ Р 54892-2012ГОСТ Р 54892-2012ГОСТ Р 54892-2012ГОСТ Р 54892-2012ГОСТ Р 54892-2012ГОСТ Р 54892-2012ГОСТ Р 54892-2012ГОСТ Р 54892-2012ГОСТ Р 54892-2012ГОСТ Р 54892-2012ГОСТ Р 54892-2012ГОСТ Р 54892-2012ГОСТ Р 54892-2012ГОСТ Р 54892-2012ГОСТ Р 54892-2012ГОСТ Р 54892-2012ГОСТ Р 54892-2012ГОСТ Р 54892-2012ГОСТ Р 54892-2012ГОСТ Р 54892-2012ГОСТ Р 54892-2012ГОСТ Р 54892-2012ГОСТ Р 54892-2012ГОСТ Р 54892-2012ГОСТ Р 54892-2012ГОСТ Р 54892-2012ГОСТ Р 54892-2012ГОСТ Р 54892-2012ГОСТ Р 54892-2012ГОСТ Р 54892-2012ГОСТ Р 54892-2012ГОСТ Р 54892-2012ГОСТ Р 54892-2012ГОСТ Р 54892-2012ГОСТ Р 54892-2012ГОСТ Р 54892-2012ГОСТ Р 54892-2012ГОСТ Р 54892-2012ГОСТ Р 54892-2012ГОСТ Р 54892-2012ГОСТ Р 54892-2012ГОСТ Р 54892-2012ГОСТ Р 54892-2012ГОСТ Р 54892-2012ГОСТ Р 54892-2012ГОСТ Р 54892-2012ГОСТ Р 54892-2012ГОСТ Р 54892-2012ГОСТ Р 54892-2012ГОСТ Р 54892-2012ГОСТ Р 54892-2012ГОСТ Р 54892-2012ГОСТ Р 54892-2012ГОСТ Р 54892-2012ГОСТ Р 54892-2012ГОСТ Р 54892-2012ГОСТ Р 54892-2012ГОСТ Р 54892-2012ГОСТ Р 54892-2012ГОСТ Р 54892-2012ГОСТ Р 54892-2012ГОСТ Р 54892-2012ГОСТ Р 54892-2012ГОСТ Р 54892-2012ГОСТ Р 54892-2012ГОСТ Р 54892-2012ГОСТ Р 54892-2012ГОСТ Р 54892-2012ГОСТ Р 54892-2012ГОСТ Р 54892-2012ГОСТ Р 54892-2012ГОСТ Р 54892-2012ГОСТ Р 54892-2012ГОСТ Р 54892-2012ГОСТ Р 54892-2012ГОСТ Р 54892-2012ГОСТ Р 54892-2012ГОСТ Р 54892-2012ГОСТ Р 54892-2012ГОСТ Р 54892-2012ГОСТ Р 54892-2012ГОСТ Р 54892-2012ГОСТ Р 54892-2012ГОСТ Р 54892-2012ГОСТ Р 54892-2012ГОСТ Р 54892-2012ГОСТ Р 54892-2012ГОСТ Р 54892-2012ГОСТ Р 54892-2012ГОСТ Р 54892-2012ГОСТ Р 54892-2012ГОСТ Р 54892-2012ГОСТ Р 54892-2012ГОСТ Р 54892-2012ГОСТ Р 54892-2012ГОСТ Р 54892-2012ГОСТ Р 54892-2012ГОСТ Р 54892-2012ГОСТ Р 54892-2012ГОСТ Р 54892-2012ГОСТ Р 54892-2012ГОСТ Р 54892-2012ГОСТ Р 54892-2012ГОСТ Р 54892-2012ГОСТ Р 54892-2012ГОСТ Р 54892-2012ГОСТ Р 54892-2012ГОСТ Р 54892-2012ГОСТ Р 54892-2012ГОСТ Р 54892-2012ГОСТ Р 54892-2012ГОСТ Р 54892-2012ГОСТ Р 54892-2012ГОСТ Р 54892-2012ГОСТ Р 54892-2012ГОСТ Р 54892-2012ГОСТ Р 54892-2012ГОСТ Р 54892-2012ГОСТ Р 54892-2012ГОСТ Р 54892-2012ГОСТ Р 54892-2012ГОСТ Р 54892-2012ГОСТ Р 54892-2012ГОСТ Р 54892-2012ГОСТ Р 54892-2012ГОСТ Р 54892-2012ГОСТ Р 54892-2012ГОСТ Р 54892-2012ГОСТ Р 54892-2012ГОСТ Р 54892-2012ГОСТ Р 54892-2012ГОСТ Р 54892-2012ГОСТ Р 54892-2012ГОСТ Р 54892-2012ГОСТ Р 54892-2012ГОСТ Р 54892-2012ГОСТ Р 54892-2012ГОСТ Р 54892-2012ГОСТ Р 54892-2012ГОСТ Р 54892-2012ГОСТ Р 54892-2012ГОСТ Р 54892-2012ГОСТ Р 54892-2012ГОСТ Р 54892-2012ГОСТ Р 54892-2012ГОСТ Р 54892-2012ГОСТ Р 54892-2012ГОСТ Р 54892-2012ГОСТ Р 54892-2012ГОСТ Р 54892-2012ГОСТ Р 54892-2012ГОСТ Р 54892-2012ГОСТ Р 54892-2012ГОСТ Р 54892-2012ГОСТ Р 54892-2012ГОСТ Р 54892-2012ГОСТ Р 54892-2012ГОСТ Р 54892-2012ГОСТ Р 54892-2012ГОСТ Р 54892-2012ГОСТ Р 54892-2012ГОСТ Р 54892-2012ГОСТ Р 54892-2012ГОСТ Р 54892-2012ГОСТ Р 54892-2012ГОСТ Р 54892-2012ГОСТ Р 54892-2012ГОСТ Р 54892-2012ГОСТ Р 54892-2012ГОСТ Р 54892-2012ГОСТ Р 54892-2012ГОСТ Р 54892-2012ГОСТ Р 54892-2012ГОСТ Р 54892-2012ГОСТ Р 54892-2012ГОСТ Р 54892-2012ГОСТ Р 54892-2012ГОСТ Р 54892-2012ГОСТ Р 54892-2012ГОСТ Р 54892-2012ГОСТ Р 54892-2012ГОСТ Р 54892-2012ГОСТ Р 54892-2012ГОСТ Р 54892-2012ГОСТ Р 54892-2012ГОСТ Р 54892-2012ГОСТ Р 54892-2012ГОСТ Р 54892-2012ГОСТ Р 54892-2012ГОСТ Р 54892-2012ГОСТ Р 54892-2012ГОСТ Р 54892-2012ГОСТ Р 54892-2012ГОСТ Р 54892-2012ГОСТ Р 54892-2012ГОСТ Р 54892-2012ГОСТ Р 54892-2012ГОСТ Р 54892-2012ГОСТ Р 54892-2012ГОСТ Р 54892-2012ГОСТ Р 54892-2012ГОСТ Р 54892-2012ГОСТ Р 54892-2012ГОСТ Р 54892-2012ГОСТ Р 54892-2012ГОСТ Р 54892-2012ГОСТ Р 54892-2012ГОСТ Р 54892-2012ГОСТ Р 54892-2012ГОСТ Р 54892-2012ГОСТ Р 54892-2012ГОСТ Р 54892-2012ГОСТ Р 54892-2012ГОСТ Р 54892-2012ГОСТ Р 54892-2012ГОСТ Р 54892-2012ГОСТ Р 54892-2012ГОСТ Р 54892-2012ГОСТ Р 54892-2012ГОСТ Р 54892-2012ГОСТ Р 54892-2012ГОСТ Р 54892-2012ГОСТ Р 54892-2012ГОСТ Р 54892-2012ГОСТ Р 54892-2012ГОСТ Р 54892-2012ГОСТ Р 54892-2012ГОСТ Р 54892-2012ГОСТ Р 54892-2012ГОСТ Р 54892-2012ГОСТ Р 54892-2012ГОСТ Р 54892-2012ГОСТ Р 54892-2012ГОСТ Р 54892-2012ГОСТ Р 54892-2012ГОСТ Р 54892-2012ГОСТ Р 54892-2012ГОСТ Р 54892-2012ГОСТ Р 54892-2012ГОСТ Р 54892-2012ГОСТ Р 54892-2012ГОСТ Р 54892-2012ГОСТ Р 54892-2012ГОСТ Р 54892-2012ГОСТ Р 54892-2012ГОСТ Р 54892-2012ГОСТ Р 54892-2012ГОСТ Р 54892-2012ГОСТ Р 54892-2012ГОСТ Р 54892-2012ГОСТ Р 54892-2012ГОСТ Р 54892-2012ГОСТ Р 54892-2012ГОСТ Р 54892-2012ГОСТ Р 54892-2012ГОСТ Р 54892-2012ГОСТ Р 54892-2012ГОСТ Р 54892-2012ГОСТ Р 54892-2012ГОСТ Р 54892-2012ГОСТ Р 54892-2012ГОСТ Р 54892-2012ГОСТ Р 54892-2012ГОСТ Р 54892-2012ГОСТ Р 54892-2012ГОСТ Р 54892-2012ГОСТ Р 54892-2012ГОСТ Р 54892-2012ГОСТ Р 54892-2012ГОСТ Р 54892-2012ГОСТ Р 54892-2012ГОСТ Р 54892-2012ГОСТ Р 54892-2012ГОСТ Р 54892-2012ГОСТ Р 54892-2012ГОСТ Р 54892-2012ГОСТ Р 54892-2012ГОСТ Р 54892-2012ГОСТ Р 54892-2012ГОСТ Р 54892-2012ГОСТ Р 54892-2012ГОСТ Р 54892-2012ГОСТ Р 54892-2012ГОСТ Р 54892-2012ГОСТ Р 54892-2012ГОСТ Р 54892-2012ГОСТ Р 54892-2012ГОСТ Р 54892-2012ГОСТ Р 54892-2012ГОСТ Р 54892-2012ГОСТ Р 54892-2012ГОСТ Р 54892-2012ГОСТ Р 54892-2012ГОСТ Р 54892-2012ГОСТ Р 54892-2012ГОСТ Р 54892-2012ГОСТ Р 54892-2012ГОСТ Р 54892-2012ГОСТ Р 54892-2012ГОСТ Р 54892-2012ГОСТ Р 54892-2012ГОСТ Р 54892-2012ГОСТ Р 54892-2012ГОСТ Р 54892-2012ГОСТ Р 54892-2012ГОСТ Р 54892-2012ГОСТ Р 54892-2012ГОСТ Р 54892-2012ГОСТ Р 54892-2012ГОСТ Р 54892-2012ГОСТ Р 54892-2012ГОСТ Р 54892-2012ГОСТ Р 54892-2012ГОСТ Р 54892-2012ГОСТ Р 54892-2012ГОСТ Р 54892-2012ГОСТ Р 54892-2012ГОСТ Р 54892-2012ГОСТ Р 54892-2012ГОСТ Р 54892-2012ГОСТ Р 54892-2012ГОСТ Р 54892-2012ГОСТ Р 54892-2012ГОСТ Р 54892-2012ГОСТ Р 54892-2012ГОСТ Р 54892-2012
 




ГОСТЫ, СТРОИТЕЛЬНЫЕ и ТЕХНИЧЕСКИЕ НОРМАТИВЫ.
Некоммерческая онлайн система, содержащая все Российские Госты, национальные Стандарты и нормативы.
В Системе содержится более 150000 файлов нормативно-технической документации, действующей на территории РФ.
Система предназначена для широкого круга инженерно-технических специалистов.

Рейтинг@Mail.ru Яндекс цитирования

Copyright © www.gostrf.com, 2008 - 2026