Крупнейшая бесплатная информационно-справочная система онлайн доступа к полному собранию технических нормативно-правовых актов РФ. Огромная база технических нормативов (более 150 тысяч документов) и полное собрание национальных стандартов, аутентичное официальной базе Госстандарта. GOSTRF.com - это более 1 Терабайта бесплатной технической информации для всех пользователей интернета. Все электронные копии представленных здесь документов могут распространяться без каких-либо ограничений. Поощряется распространение информации с этого сайта на любых других ресурсах. Каждый человек имеет право на неограниченный доступ к этим документам! Каждый человек имеет право на знание требований, изложенных в данных нормативно-правовых актах!

  


 

ГОСТ Р 8.752-2011

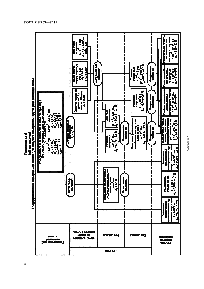
Государственная система обеспечения единства измерений. Государственная поверочная схема для средств измерений крутящего момента силы

Обозначение:ГОСТ Р 8.752-2011
Текущий статус документа: действующий
Название документа рус.:Государственная система обеспечения единства измерений. Государственная поверочная схема для средств измерений крутящего момента силы
Название документа англ.:State system for ensuring the uniformity of measurements. State verification schedule for means measuring torque of force
Дата актуализации текста:01.12.2013
Дата издания:26.03.2013
Дата введения:01.01.2013
Дата последнего изменения:22.05.2013
Область применения:Настоящий стандарт распространяется на средства измерений крутящего момента силы в диапазоне измерений от 1 10 -4 до 5106 Нм и устанавливает порядок передачи единицы крутящего момента силы - ньютон-метра (Н•м) от государственного первичного эталона единицы крутящего момента силы рабочим средствам измерений с помощью эталонов k-го разряда с указанием погрешностей и основных методов поверки.
Допускается проводить поверку средств измерений, не указанных в настоящем стандарте, при условии разработки методик поверки, обеспечивающих доверительные границы погрешности результатов измерений не более 1/3 пределов допускаемой погрешности поверяемых средств измерений
ГОСТ Р 8.752-2011ГОСТ Р 8.752-2011ГОСТ Р 8.752-2011ГОСТ Р 8.752-2011ГОСТ Р 8.752-2011ГОСТ Р 8.752-2011ГОСТ Р 8.752-2011ГОСТ Р 8.752-2011
 




ГОСТЫ, СТРОИТЕЛЬНЫЕ и ТЕХНИЧЕСКИЕ НОРМАТИВЫ.
Некоммерческая онлайн система, содержащая все Российские Госты, национальные Стандарты и нормативы.
В Системе содержится более 150000 файлов нормативно-технической документации, действующей на территории РФ.
Система предназначена для широкого круга инженерно-технических специалистов.

Рейтинг@Mail.ru Яндекс цитирования

Copyright © www.gostrf.com, 2008 - 2026