Крупнейшая бесплатная информационно-справочная система онлайн доступа к полному собранию технических нормативно-правовых актов РФ. Огромная база технических нормативов (более 150 тысяч документов) и полное собрание национальных стандартов, аутентичное официальной базе Госстандарта. GOSTRF.com - это более 1 Терабайта бесплатной технической информации для всех пользователей интернета. Все электронные копии представленных здесь документов могут распространяться без каких-либо ограничений. Поощряется распространение информации с этого сайта на любых других ресурсах. Каждый человек имеет право на неограниченный доступ к этим документам! Каждый человек имеет право на знание требований, изложенных в данных нормативно-правовых актах!

  


 

ГОСТ IEC 60745-2-5-2011

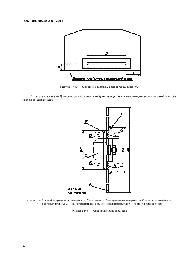
Машины ручные электрические. Безопасность и методы испытаний. Часть 2-5. Частные требования к дисковым пилам

Обозначение:ГОСТ IEC 60745-2-5-2011
Текущий статус документа: действующий
Название документа рус.:Машины ручные электрические. Безопасность и методы испытаний. Часть 2-5. Частные требования к дисковым пилам
Название документа англ.:Hand-held motor-operated electric tools. Safety and test methods. Part 2-5. Particular requirements for circular saws
Дата актуализации текста:01.12.2013
Дата издания:27.06.2013
Дата введения:01.01.2013
Дата последнего изменения:11.09.2013
Область применения:Настоящий стандарт распространяется на все типы дисковых пил.
Настоящий стандарт не распространяется на пилы, используемые с абразивными кругами
ГОСТ IEC 60745-2-5-2011ГОСТ IEC 60745-2-5-2011ГОСТ IEC 60745-2-5-2011ГОСТ IEC 60745-2-5-2011ГОСТ IEC 60745-2-5-2011ГОСТ IEC 60745-2-5-2011ГОСТ IEC 60745-2-5-2011ГОСТ IEC 60745-2-5-2011ГОСТ IEC 60745-2-5-2011ГОСТ IEC 60745-2-5-2011ГОСТ IEC 60745-2-5-2011ГОСТ IEC 60745-2-5-2011ГОСТ IEC 60745-2-5-2011ГОСТ IEC 60745-2-5-2011ГОСТ IEC 60745-2-5-2011ГОСТ IEC 60745-2-5-2011ГОСТ IEC 60745-2-5-2011ГОСТ IEC 60745-2-5-2011ГОСТ IEC 60745-2-5-2011ГОСТ IEC 60745-2-5-2011ГОСТ IEC 60745-2-5-2011ГОСТ IEC 60745-2-5-2011ГОСТ IEC 60745-2-5-2011ГОСТ IEC 60745-2-5-2011
 




ГОСТЫ, СТРОИТЕЛЬНЫЕ и ТЕХНИЧЕСКИЕ НОРМАТИВЫ.
Некоммерческая онлайн система, содержащая все Российские Госты, национальные Стандарты и нормативы.
В Системе содержится более 150000 файлов нормативно-технической документации, действующей на территории РФ.
Система предназначена для широкого круга инженерно-технических специалистов.

Рейтинг@Mail.ru Яндекс цитирования

Copyright © www.gostrf.com, 2008 - 2026