Крупнейшая бесплатная информационно-справочная система онлайн доступа к полному собранию технических нормативно-правовых актов РФ. Огромная база технических нормативов (более 150 тысяч документов) и полное собрание национальных стандартов, аутентичное официальной базе Госстандарта. GOSTRF.com - это более 1 Терабайта бесплатной технической информации для всех пользователей интернета. Все электронные копии представленных здесь документов могут распространяться без каких-либо ограничений. Поощряется распространение информации с этого сайта на любых других ресурсах. Каждый человек имеет право на неограниченный доступ к этим документам! Каждый человек имеет право на знание требований, изложенных в данных нормативно-правовых актах!

  


 

ГОСТ Р 54557-2011

Бутилкаучуки (IIR). Приготовление и испытание резиновых смесей

Обозначение:ГОСТ Р 54557-2011
Текущий статус документа: действующий
Название документа рус.:Бутилкаучуки (IIR). Приготовление и испытание резиновых смесей
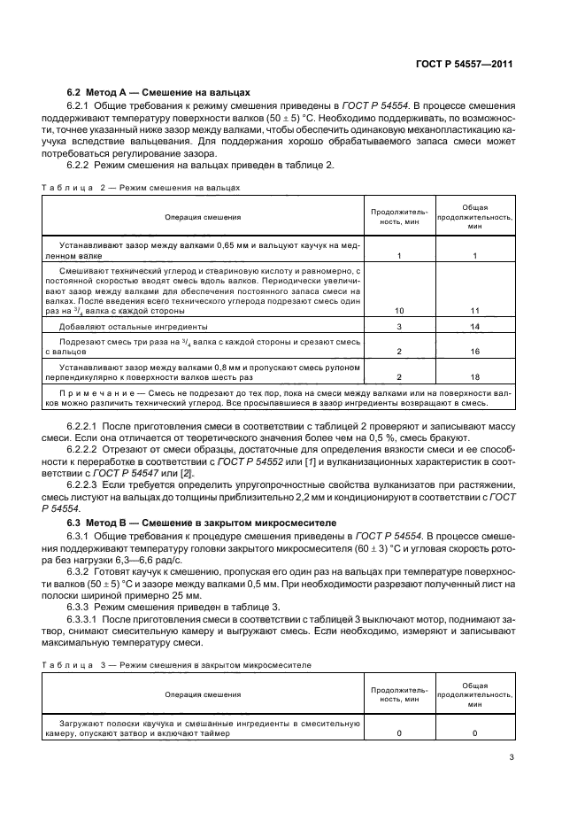
Название документа англ.:Isobutene-isoprene rubber (IIR). Preparation and testing of rubber compounds
Дата актуализации текста:01.12.2013
Дата издания:13.03.2013
Дата введения:01.07.2013
Дата последнего изменения:15.07.2013
Область применения:Настоящий стандарт устанавливает стандартные рецепт, ингредиенты, режимы смешения и методы испытаний резиновых смесей и вулканизатов, используемых для оценки негалогенированных изобутилен-изопреновых каучуков (IIR), известных как бутилкаучуки.
В настоящем стандарте не предусмотрено рассмотрение всех вопросов обеспечения безопасности, связанных с его применением. Пользователь настоящего стандарта несет ответственность за установление соответствующих правил по безопасности и охране здоровья, а также определяет целесообразность применения законодательных ограничений перед его использованием
ГОСТ Р 54557-2011ГОСТ Р 54557-2011ГОСТ Р 54557-2011ГОСТ Р 54557-2011ГОСТ Р 54557-2011ГОСТ Р 54557-2011ГОСТ Р 54557-2011ГОСТ Р 54557-2011ГОСТ Р 54557-2011ГОСТ Р 54557-2011ГОСТ Р 54557-2011ГОСТ Р 54557-2011ГОСТ Р 54557-2011ГОСТ Р 54557-2011ГОСТ Р 54557-2011ГОСТ Р 54557-2011
 




ГОСТЫ, СТРОИТЕЛЬНЫЕ и ТЕХНИЧЕСКИЕ НОРМАТИВЫ.
Некоммерческая онлайн система, содержащая все Российские Госты, национальные Стандарты и нормативы.
В Системе содержится более 150000 файлов нормативно-технической документации, действующей на территории РФ.
Система предназначена для широкого круга инженерно-технических специалистов.

Рейтинг@Mail.ru Яндекс цитирования

Copyright © www.gostrf.com, 2008 - 2026