Крупнейшая бесплатная информационно-справочная система онлайн доступа к полному собранию технических нормативно-правовых актов РФ. Огромная база технических нормативов (более 150 тысяч документов) и полное собрание национальных стандартов, аутентичное официальной базе Госстандарта. GOSTRF.com - это более 1 Терабайта бесплатной технической информации для всех пользователей интернета. Все электронные копии представленных здесь документов могут распространяться без каких-либо ограничений. Поощряется распространение информации с этого сайта на любых других ресурсах. Каждый человек имеет право на неограниченный доступ к этим документам! Каждый человек имеет право на знание требований, изложенных в данных нормативно-правовых актах!

  


 

ГОСТ Р МЭК 61850-7-4-2011

Сети и системы связи на подстанциях. Часть 7. Базовая структура связи для подстанций и линейного оборудования. Раздел 4. Совместимые классы логических узлов и классы данных

Обозначение:ГОСТ Р МЭК 61850-7-4-2011
Текущий статус документа: действующий
Название документа рус.:Сети и системы связи на подстанциях. Часть 7. Базовая структура связи для подстанций и линейного оборудования. Раздел 4. Совместимые классы логических узлов и классы данных
Название документа англ.:Communication networks and systems in substations. Part 7-4. Basic communication structure for substation and feeder equipment. Compatible logical node classes and data classes
Дата актуализации текста:01.12.2013
Дата издания:11.03.2013
Дата введения:01.09.2012
Дата последнего изменения:22.05.2013
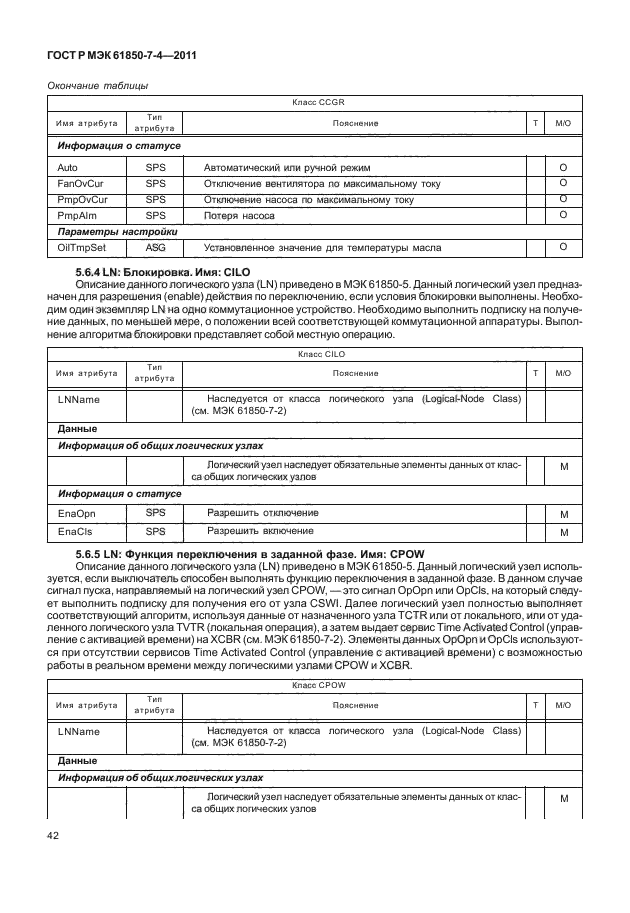
Область применения:Настоящий стандарт описывает информационную модель устройств и функций, относящихся к приложениям подстанций. В частности, в нем представлены совместимые имена логических узлов и имена элементов данных для осуществления связи между интеллектуальными электронными устройствами (IED). Сюда входит соотношение между логическими узлами и данными
ГОСТ Р МЭК 61850-7-4-2011ГОСТ Р МЭК 61850-7-4-2011ГОСТ Р МЭК 61850-7-4-2011ГОСТ Р МЭК 61850-7-4-2011ГОСТ Р МЭК 61850-7-4-2011ГОСТ Р МЭК 61850-7-4-2011ГОСТ Р МЭК 61850-7-4-2011ГОСТ Р МЭК 61850-7-4-2011ГОСТ Р МЭК 61850-7-4-2011ГОСТ Р МЭК 61850-7-4-2011ГОСТ Р МЭК 61850-7-4-2011ГОСТ Р МЭК 61850-7-4-2011ГОСТ Р МЭК 61850-7-4-2011ГОСТ Р МЭК 61850-7-4-2011ГОСТ Р МЭК 61850-7-4-2011ГОСТ Р МЭК 61850-7-4-2011ГОСТ Р МЭК 61850-7-4-2011ГОСТ Р МЭК 61850-7-4-2011ГОСТ Р МЭК 61850-7-4-2011ГОСТ Р МЭК 61850-7-4-2011ГОСТ Р МЭК 61850-7-4-2011ГОСТ Р МЭК 61850-7-4-2011ГОСТ Р МЭК 61850-7-4-2011ГОСТ Р МЭК 61850-7-4-2011ГОСТ Р МЭК 61850-7-4-2011ГОСТ Р МЭК 61850-7-4-2011ГОСТ Р МЭК 61850-7-4-2011ГОСТ Р МЭК 61850-7-4-2011ГОСТ Р МЭК 61850-7-4-2011ГОСТ Р МЭК 61850-7-4-2011ГОСТ Р МЭК 61850-7-4-2011ГОСТ Р МЭК 61850-7-4-2011ГОСТ Р МЭК 61850-7-4-2011ГОСТ Р МЭК 61850-7-4-2011ГОСТ Р МЭК 61850-7-4-2011ГОСТ Р МЭК 61850-7-4-2011ГОСТ Р МЭК 61850-7-4-2011ГОСТ Р МЭК 61850-7-4-2011ГОСТ Р МЭК 61850-7-4-2011ГОСТ Р МЭК 61850-7-4-2011ГОСТ Р МЭК 61850-7-4-2011ГОСТ Р МЭК 61850-7-4-2011ГОСТ Р МЭК 61850-7-4-2011ГОСТ Р МЭК 61850-7-4-2011ГОСТ Р МЭК 61850-7-4-2011ГОСТ Р МЭК 61850-7-4-2011ГОСТ Р МЭК 61850-7-4-2011ГОСТ Р МЭК 61850-7-4-2011ГОСТ Р МЭК 61850-7-4-2011ГОСТ Р МЭК 61850-7-4-2011ГОСТ Р МЭК 61850-7-4-2011ГОСТ Р МЭК 61850-7-4-2011ГОСТ Р МЭК 61850-7-4-2011ГОСТ Р МЭК 61850-7-4-2011ГОСТ Р МЭК 61850-7-4-2011ГОСТ Р МЭК 61850-7-4-2011ГОСТ Р МЭК 61850-7-4-2011ГОСТ Р МЭК 61850-7-4-2011ГОСТ Р МЭК 61850-7-4-2011ГОСТ Р МЭК 61850-7-4-2011ГОСТ Р МЭК 61850-7-4-2011ГОСТ Р МЭК 61850-7-4-2011ГОСТ Р МЭК 61850-7-4-2011ГОСТ Р МЭК 61850-7-4-2011ГОСТ Р МЭК 61850-7-4-2011ГОСТ Р МЭК 61850-7-4-2011ГОСТ Р МЭК 61850-7-4-2011ГОСТ Р МЭК 61850-7-4-2011ГОСТ Р МЭК 61850-7-4-2011ГОСТ Р МЭК 61850-7-4-2011ГОСТ Р МЭК 61850-7-4-2011ГОСТ Р МЭК 61850-7-4-2011ГОСТ Р МЭК 61850-7-4-2011ГОСТ Р МЭК 61850-7-4-2011ГОСТ Р МЭК 61850-7-4-2011ГОСТ Р МЭК 61850-7-4-2011ГОСТ Р МЭК 61850-7-4-2011ГОСТ Р МЭК 61850-7-4-2011ГОСТ Р МЭК 61850-7-4-2011ГОСТ Р МЭК 61850-7-4-2011ГОСТ Р МЭК 61850-7-4-2011ГОСТ Р МЭК 61850-7-4-2011ГОСТ Р МЭК 61850-7-4-2011ГОСТ Р МЭК 61850-7-4-2011ГОСТ Р МЭК 61850-7-4-2011ГОСТ Р МЭК 61850-7-4-2011ГОСТ Р МЭК 61850-7-4-2011ГОСТ Р МЭК 61850-7-4-2011ГОСТ Р МЭК 61850-7-4-2011ГОСТ Р МЭК 61850-7-4-2011ГОСТ Р МЭК 61850-7-4-2011ГОСТ Р МЭК 61850-7-4-2011ГОСТ Р МЭК 61850-7-4-2011ГОСТ Р МЭК 61850-7-4-2011ГОСТ Р МЭК 61850-7-4-2011ГОСТ Р МЭК 61850-7-4-2011ГОСТ Р МЭК 61850-7-4-2011ГОСТ Р МЭК 61850-7-4-2011ГОСТ Р МЭК 61850-7-4-2011ГОСТ Р МЭК 61850-7-4-2011ГОСТ Р МЭК 61850-7-4-2011ГОСТ Р МЭК 61850-7-4-2011ГОСТ Р МЭК 61850-7-4-2011ГОСТ Р МЭК 61850-7-4-2011ГОСТ Р МЭК 61850-7-4-2011ГОСТ Р МЭК 61850-7-4-2011ГОСТ Р МЭК 61850-7-4-2011ГОСТ Р МЭК 61850-7-4-2011ГОСТ Р МЭК 61850-7-4-2011ГОСТ Р МЭК 61850-7-4-2011ГОСТ Р МЭК 61850-7-4-2011ГОСТ Р МЭК 61850-7-4-2011ГОСТ Р МЭК 61850-7-4-2011ГОСТ Р МЭК 61850-7-4-2011ГОСТ Р МЭК 61850-7-4-2011ГОСТ Р МЭК 61850-7-4-2011ГОСТ Р МЭК 61850-7-4-2011ГОСТ Р МЭК 61850-7-4-2011ГОСТ Р МЭК 61850-7-4-2011ГОСТ Р МЭК 61850-7-4-2011ГОСТ Р МЭК 61850-7-4-2011ГОСТ Р МЭК 61850-7-4-2011
 




ГОСТЫ, СТРОИТЕЛЬНЫЕ и ТЕХНИЧЕСКИЕ НОРМАТИВЫ.
Некоммерческая онлайн система, содержащая все Российские Госты, национальные Стандарты и нормативы.
В Системе содержится более 150000 файлов нормативно-технической документации, действующей на территории РФ.
Система предназначена для широкого круга инженерно-технических специалистов.

Рейтинг@Mail.ru Яндекс цитирования

Copyright © www.gostrf.com, 2008 - 2026