Крупнейшая бесплатная информационно-справочная система онлайн доступа к полному собранию технических нормативно-правовых актов РФ. Огромная база технических нормативов (более 150 тысяч документов) и полное собрание национальных стандартов, аутентичное официальной базе Госстандарта. GOSTRF.com - это более 1 Терабайта бесплатной технической информации для всех пользователей интернета. Все электронные копии представленных здесь документов могут распространяться без каких-либо ограничений. Поощряется распространение информации с этого сайта на любых других ресурсах. Каждый человек имеет право на неограниченный доступ к этим документам! Каждый человек имеет право на знание требований, изложенных в данных нормативно-правовых актах!

  


 

ГОСТ 5089-2011

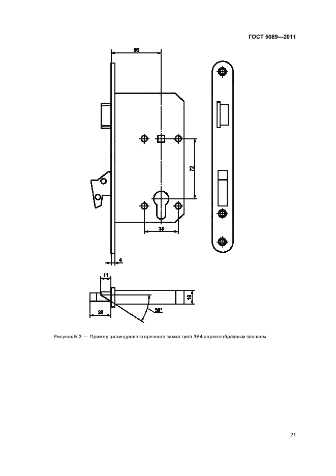
Замки, защелки, механизмы цилиндровые. Технические условия

Обозначение:ГОСТ 5089-2011
Текущий статус документа: действующий
Название документа рус.:Замки, защелки, механизмы цилиндровые. Технические условия
Название документа англ.:Locks, latches, mechanisms cylinders. General specifications
Дата актуализации текста:01.12.2013
Дата издания:05.08.2013
Дата введения:01.01.2013
Дата последнего изменения:11.09.2013
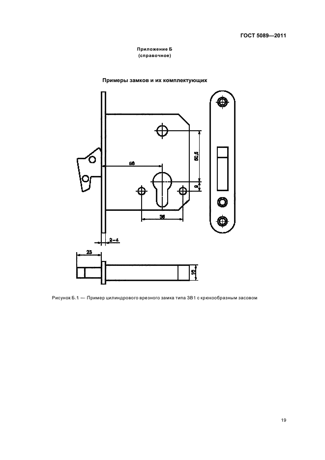
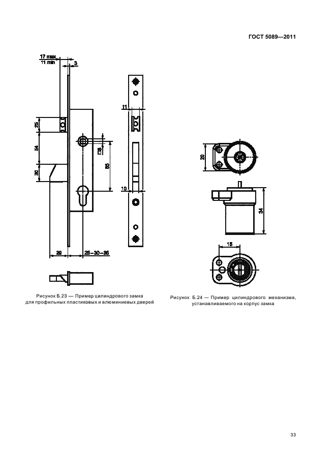
Область применения:Настоящий стандарт распространяется на замки с различными механизмами секретности, монтируемые на строительных и защитных конструкциях (воротах, дверях, окнах), устанавливаемых в жилых, общественных и производственных зданиях и сооружениях, а также на цилиндровые механизмы секретности для замков и защелки.
Настоящий стандарт устанавливает требования к замкам защитных конструкций (ворот, окон, дверей, в том числе дверей чердаков, подвалов, лифтовых шахт, технических этажей и т. п.) а также дверей в помещения, находящиеся под охраной) из различных материалов, позволяющие создавать замки с охранными свойствами различной надежности для защиты охраняемого пространства в зависимости от степени его ответственности.
Настоящий стандарт может быть применен для целей сертификации
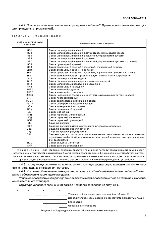
ГОСТ 5089-2011ГОСТ 5089-2011ГОСТ 5089-2011ГОСТ 5089-2011ГОСТ 5089-2011ГОСТ 5089-2011ГОСТ 5089-2011ГОСТ 5089-2011ГОСТ 5089-2011ГОСТ 5089-2011ГОСТ 5089-2011ГОСТ 5089-2011ГОСТ 5089-2011ГОСТ 5089-2011ГОСТ 5089-2011ГОСТ 5089-2011ГОСТ 5089-2011ГОСТ 5089-2011ГОСТ 5089-2011ГОСТ 5089-2011ГОСТ 5089-2011ГОСТ 5089-2011ГОСТ 5089-2011ГОСТ 5089-2011ГОСТ 5089-2011ГОСТ 5089-2011ГОСТ 5089-2011ГОСТ 5089-2011ГОСТ 5089-2011ГОСТ 5089-2011ГОСТ 5089-2011ГОСТ 5089-2011ГОСТ 5089-2011ГОСТ 5089-2011ГОСТ 5089-2011ГОСТ 5089-2011ГОСТ 5089-2011ГОСТ 5089-2011ГОСТ 5089-2011ГОСТ 5089-2011ГОСТ 5089-2011ГОСТ 5089-2011ГОСТ 5089-2011ГОСТ 5089-2011ГОСТ 5089-2011ГОСТ 5089-2011
 




ГОСТЫ, СТРОИТЕЛЬНЫЕ и ТЕХНИЧЕСКИЕ НОРМАТИВЫ.
Некоммерческая онлайн система, содержащая все Российские Госты, национальные Стандарты и нормативы.
В Системе содержится более 150000 файлов нормативно-технической документации, действующей на территории РФ.
Система предназначена для широкого круга инженерно-технических специалистов.

Рейтинг@Mail.ru Яндекс цитирования

Copyright © www.gostrf.com, 2008 - 2026