Крупнейшая бесплатная информационно-справочная система онлайн доступа к полному собранию технических нормативно-правовых актов РФ. Огромная база технических нормативов (более 150 тысяч документов) и полное собрание национальных стандартов, аутентичное официальной базе Госстандарта. GOSTRF.com - это более 1 Терабайта бесплатной технической информации для всех пользователей интернета. Все электронные копии представленных здесь документов могут распространяться без каких-либо ограничений. Поощряется распространение информации с этого сайта на любых других ресурсах. Каждый человек имеет право на неограниченный доступ к этим документам! Каждый человек имеет право на знание требований, изложенных в данных нормативно-правовых актах!

  


 

ГОСТ IEC 61029-1-2012

Машины переносные электрические. Общие требования безопасности и методы испытаний

Обозначение:ГОСТ IEC 61029-1-2012
Текущий статус документа: принят
Название документа рус.:Машины переносные электрические. Общие требования безопасности и методы испытаний
Название документа англ.:Transportable motor-operated electric tools. General safety requirements and testing methods
Дата актуализации текста:01.12.2013
Дата издания:30.09.2013
Дата введения:01.01.2015
Дата последнего изменения:17.10.2013
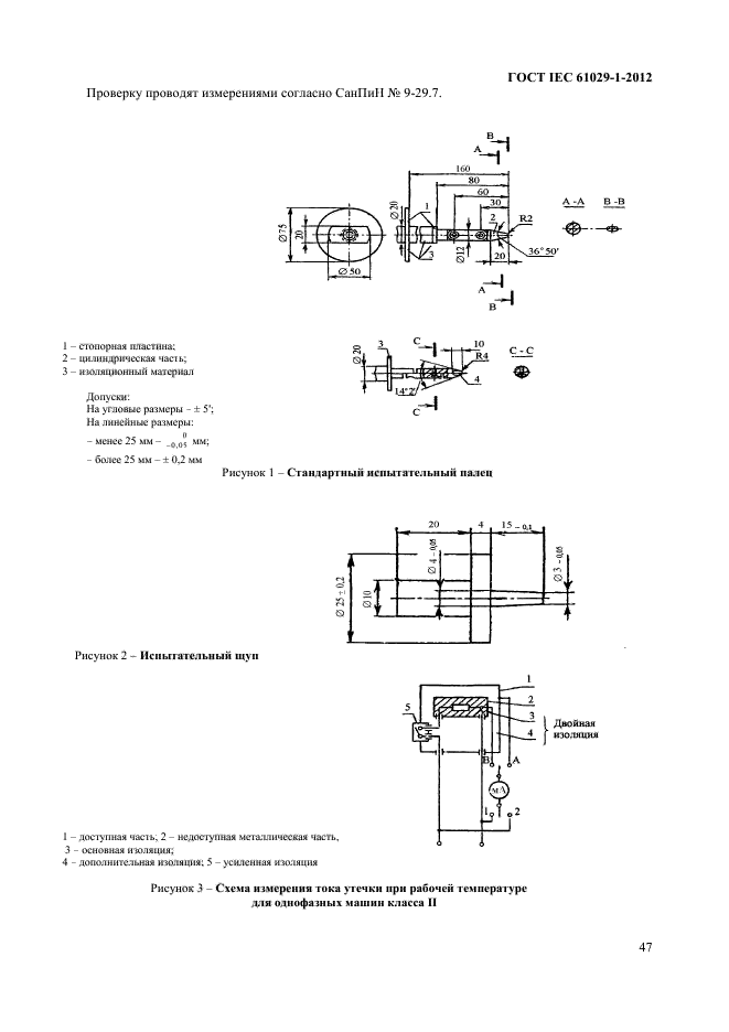
Область применения:Настоящий стандарт устанавливает требования безопасности и методы испытаний, являющиеся общими для всех электрических переносных машин.
Стандарт распространяется на электрические машины с приводом от электрического или электромагнитного двигателя, предназначенные для эксплуатации в помещениях и на открытом воздухе и имеющие все указанные ниже особенности:
a) легко перемещаются одним человеком; для удобства перемещения могут снабжаться приспособлениями типа ручек, колес и т. п.;
b) используются в надежном стационарном положении без закрепления или с закреплением с помощью, например, быстрозажимных устройств, болтовых креплений и т. п.;
c) работают под контролем оператора;
d) не рассчитаны на работу при непрерывном производстве;
e) предназначены для подключения к.электрическому источнику питания с помощью электрического шнура с вилкой;
f) работают при максимальном номинальном напряжении 250 В при переменном однофазном или постоянном токе и 440 В при переменном трехфазном токе;
g) имеют максимальную номинальную потребляемую мощность 2500 Вт при переменном однофазном или постоянном токе и 4000 Вт при переменном трехфазном токе
ГОСТ IEC 61029-1-2012ГОСТ IEC 61029-1-2012ГОСТ IEC 61029-1-2012ГОСТ IEC 61029-1-2012ГОСТ IEC 61029-1-2012ГОСТ IEC 61029-1-2012ГОСТ IEC 61029-1-2012ГОСТ IEC 61029-1-2012ГОСТ IEC 61029-1-2012ГОСТ IEC 61029-1-2012ГОСТ IEC 61029-1-2012ГОСТ IEC 61029-1-2012ГОСТ IEC 61029-1-2012ГОСТ IEC 61029-1-2012ГОСТ IEC 61029-1-2012ГОСТ IEC 61029-1-2012ГОСТ IEC 61029-1-2012ГОСТ IEC 61029-1-2012ГОСТ IEC 61029-1-2012ГОСТ IEC 61029-1-2012ГОСТ IEC 61029-1-2012ГОСТ IEC 61029-1-2012ГОСТ IEC 61029-1-2012ГОСТ IEC 61029-1-2012ГОСТ IEC 61029-1-2012ГОСТ IEC 61029-1-2012ГОСТ IEC 61029-1-2012ГОСТ IEC 61029-1-2012ГОСТ IEC 61029-1-2012ГОСТ IEC 61029-1-2012ГОСТ IEC 61029-1-2012ГОСТ IEC 61029-1-2012ГОСТ IEC 61029-1-2012ГОСТ IEC 61029-1-2012ГОСТ IEC 61029-1-2012ГОСТ IEC 61029-1-2012ГОСТ IEC 61029-1-2012ГОСТ IEC 61029-1-2012ГОСТ IEC 61029-1-2012ГОСТ IEC 61029-1-2012ГОСТ IEC 61029-1-2012ГОСТ IEC 61029-1-2012ГОСТ IEC 61029-1-2012ГОСТ IEC 61029-1-2012ГОСТ IEC 61029-1-2012ГОСТ IEC 61029-1-2012ГОСТ IEC 61029-1-2012ГОСТ IEC 61029-1-2012ГОСТ IEC 61029-1-2012ГОСТ IEC 61029-1-2012ГОСТ IEC 61029-1-2012ГОСТ IEC 61029-1-2012ГОСТ IEC 61029-1-2012ГОСТ IEC 61029-1-2012ГОСТ IEC 61029-1-2012ГОСТ IEC 61029-1-2012ГОСТ IEC 61029-1-2012ГОСТ IEC 61029-1-2012ГОСТ IEC 61029-1-2012ГОСТ IEC 61029-1-2012ГОСТ IEC 61029-1-2012ГОСТ IEC 61029-1-2012ГОСТ IEC 61029-1-2012ГОСТ IEC 61029-1-2012ГОСТ IEC 61029-1-2012ГОСТ IEC 61029-1-2012ГОСТ IEC 61029-1-2012ГОСТ IEC 61029-1-2012ГОСТ IEC 61029-1-2012
 




ГОСТЫ, СТРОИТЕЛЬНЫЕ и ТЕХНИЧЕСКИЕ НОРМАТИВЫ.
Некоммерческая онлайн система, содержащая все Российские Госты, национальные Стандарты и нормативы.
В Системе содержится более 150000 файлов нормативно-технической документации, действующей на территории РФ.
Система предназначена для широкого круга инженерно-технических специалистов.

Рейтинг@Mail.ru Яндекс цитирования

Copyright © www.gostrf.com, 2008 - 2026