Крупнейшая бесплатная информационно-справочная система онлайн доступа к полному собранию технических нормативно-правовых актов РФ. Огромная база технических нормативов (более 150 тысяч документов) и полное собрание национальных стандартов, аутентичное официальной базе Госстандарта. GOSTRF.com - это более 1 Терабайта бесплатной технической информации для всех пользователей интернета. Все электронные копии представленных здесь документов могут распространяться без каких-либо ограничений. Поощряется распространение информации с этого сайта на любых других ресурсах. Каждый человек имеет право на неограниченный доступ к этим документам! Каждый человек имеет право на знание требований, изложенных в данных нормативно-правовых актах!

  


 

ГОСТ 31561-2012

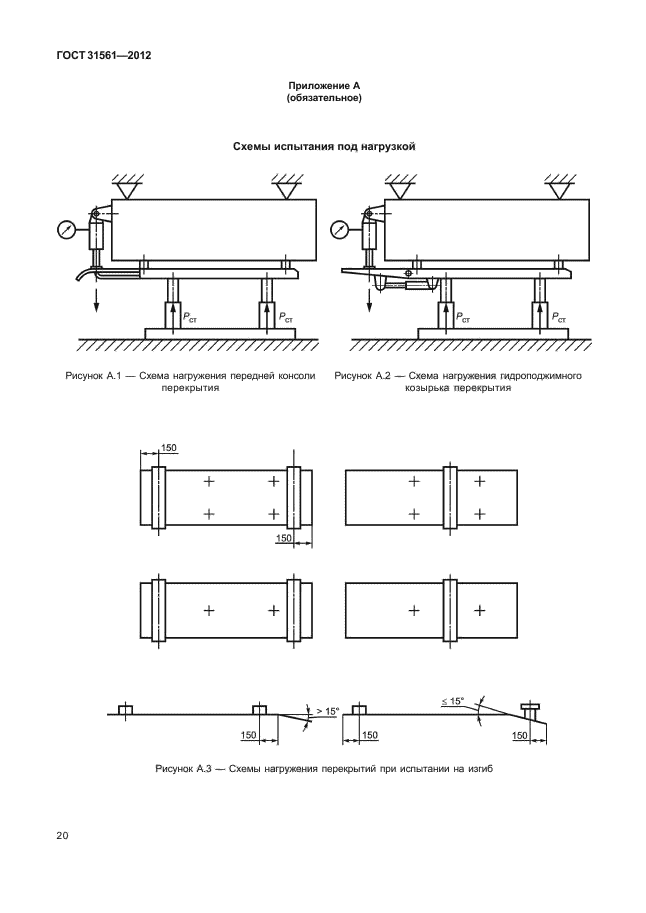
Крепи механизированные для лав. Основные параметры. Общие технические требования. Методы испытаний

Обозначение:ГОСТ 31561-2012
Текущий статус документа: принят
Название документа рус.:Крепи механизированные для лав. Основные параметры. Общие технические требования. Методы испытаний
Название документа англ.:Longwall powered roof chocks. Basic parameters. General technical requirements. Test methods
Дата актуализации текста:01.12.2013
Дата издания:25.09.2013
Дата введения:01.01.2014
Дата последнего изменения:16.10.2013
Область применения:Настоящий стандарт распространяется на механизированные крепи для лав, предназначенные для работы в очистных комплексах с узкозахватными комбайнами или струговыми установками в лавах с вынимаемой мощностью от 0,8 до 6,0 м в один слой и углами наклона 0 град. - 30 град. вдоль лавы и 0 град. - 10 град. вдоль столба при вынимаемой мощности:
- от 0,8 до 3,5 м включительно - по падению или восстанию столба;
- св. 3,5 до 6,0 м включительно - по падению пласта.
Стандарт устанавливает номенклатуру показателей качества и их применяемость, основные параметры и общие технические требования (в том числе к конструкции, технологичности, надежности, безопасности), гигиенические и эргономические требования к материалам, покупным изделиям и рабочим жидкостям, а также методы испытаний крепей.
Стандарт не распространяется на комплектные крепи и крепи угледобывающих агрегатов
ГОСТ 31561-2012ГОСТ 31561-2012ГОСТ 31561-2012ГОСТ 31561-2012ГОСТ 31561-2012ГОСТ 31561-2012ГОСТ 31561-2012ГОСТ 31561-2012ГОСТ 31561-2012ГОСТ 31561-2012ГОСТ 31561-2012ГОСТ 31561-2012ГОСТ 31561-2012ГОСТ 31561-2012ГОСТ 31561-2012ГОСТ 31561-2012ГОСТ 31561-2012ГОСТ 31561-2012ГОСТ 31561-2012ГОСТ 31561-2012ГОСТ 31561-2012ГОСТ 31561-2012ГОСТ 31561-2012ГОСТ 31561-2012ГОСТ 31561-2012ГОСТ 31561-2012ГОСТ 31561-2012ГОСТ 31561-2012ГОСТ 31561-2012ГОСТ 31561-2012ГОСТ 31561-2012ГОСТ 31561-2012
 




ГОСТЫ, СТРОИТЕЛЬНЫЕ и ТЕХНИЧЕСКИЕ НОРМАТИВЫ.
Некоммерческая онлайн система, содержащая все Российские Госты, национальные Стандарты и нормативы.
В Системе содержится более 150000 файлов нормативно-технической документации, действующей на территории РФ.
Система предназначена для широкого круга инженерно-технических специалистов.

Рейтинг@Mail.ru Яндекс цитирования

Copyright © www.gostrf.com, 2008 - 2026