Крупнейшая бесплатная информационно-справочная система онлайн доступа к полному собранию технических нормативно-правовых актов РФ. Огромная база технических нормативов (более 150 тысяч документов) и полное собрание национальных стандартов, аутентичное официальной базе Госстандарта. GOSTRF.com - это более 1 Терабайта бесплатной технической информации для всех пользователей интернета. Все электронные копии представленных здесь документов могут распространяться без каких-либо ограничений. Поощряется распространение информации с этого сайта на любых других ресурсах. Каждый человек имеет право на неограниченный доступ к этим документам! Каждый человек имеет право на знание требований, изложенных в данных нормативно-правовых актах!

  


 

ГОСТ Р 51325.2.3-2002

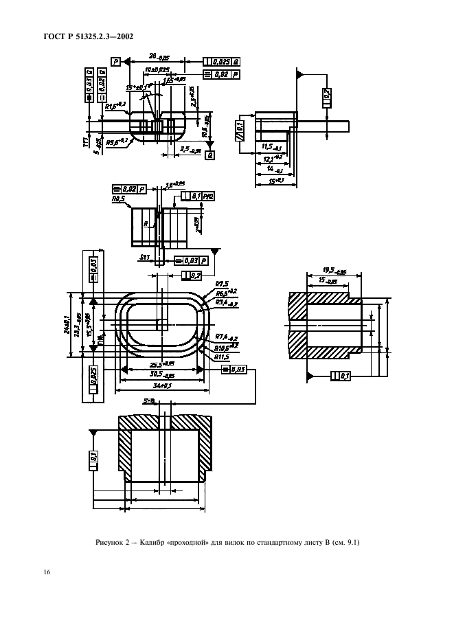
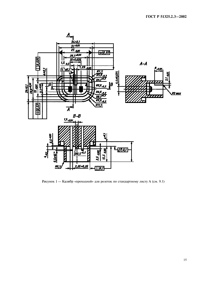
Соединители электрические бытового и аналогичного назначения. Часть 2-3. Дополнительные требования к соединителям степени защиты свыше IPXO и методы испытаний

Обозначение:ГОСТ Р 51325.2.3-2002
Текущий статус документа: действующий
Название документа рус.:Соединители электрические бытового и аналогичного назначения. Часть 2-3. Дополнительные требования к соединителям степени защиты свыше IPXO и методы испытаний
Название документа англ.:Appliance couplers for household and similar general purposes. Part 2-3. Particular requirements for appliance couplers with a degree of protection higher than IPXO and methods of tests
Дата актуализации текста:01.12.2013
Дата издания:18.03.2002
Дата введения:01.01.2003
Дата последнего изменения:15.07.2013
Дата окончания срока действия:01.01.2014
Область применения:Настоящий стандарт распространяется на двухполюсные соединители, эксплуатируемые в жестких условиях окружающей среды (например, повышенная влажность, низкая температура) и применяемые в электрических сетях с номинальным напряжением не выше 250 В и переменным током не более 10 А.
Соединители предназначены для подключения гибкого кабеля или шнура к переносным электрическим приборам защиты II
Список изменений:№0 от 01.01.2014 (рег. 15.11.2012) «Текстовое изменение; Изменено заглавие»
ГОСТ Р 51325.2.3-2002ГОСТ Р 51325.2.3-2002ГОСТ Р 51325.2.3-2002ГОСТ Р 51325.2.3-2002ГОСТ Р 51325.2.3-2002ГОСТ Р 51325.2.3-2002ГОСТ Р 51325.2.3-2002ГОСТ Р 51325.2.3-2002ГОСТ Р 51325.2.3-2002ГОСТ Р 51325.2.3-2002ГОСТ Р 51325.2.3-2002ГОСТ Р 51325.2.3-2002ГОСТ Р 51325.2.3-2002ГОСТ Р 51325.2.3-2002ГОСТ Р 51325.2.3-2002ГОСТ Р 51325.2.3-2002ГОСТ Р 51325.2.3-2002ГОСТ Р 51325.2.3-2002ГОСТ Р 51325.2.3-2002ГОСТ Р 51325.2.3-2002ГОСТ Р 51325.2.3-2002ГОСТ Р 51325.2.3-2002ГОСТ Р 51325.2.3-2002ГОСТ Р 51325.2.3-2002
 




ГОСТЫ, СТРОИТЕЛЬНЫЕ и ТЕХНИЧЕСКИЕ НОРМАТИВЫ.
Некоммерческая онлайн система, содержащая все Российские Госты, национальные Стандарты и нормативы.
В Системе содержится более 150000 файлов нормативно-технической документации, действующей на территории РФ.
Система предназначена для широкого круга инженерно-технических специалистов.

Рейтинг@Mail.ru Яндекс цитирования

Copyright © www.gostrf.com, 2008 - 2026