Крупнейшая бесплатная информационно-справочная система онлайн доступа к полному собранию технических нормативно-правовых актов РФ. Огромная база технических нормативов (более 150 тысяч документов) и полное собрание национальных стандартов, аутентичное официальной базе Госстандарта. GOSTRF.com - это более 1 Терабайта бесплатной технической информации для всех пользователей интернета. Все электронные копии представленных здесь документов могут распространяться без каких-либо ограничений. Поощряется распространение информации с этого сайта на любых других ресурсах. Каждый человек имеет право на неограниченный доступ к этим документам! Каждый человек имеет право на знание требований, изложенных в данных нормативно-правовых актах!

  


 

ГОСТ Р 12.2.143-2002

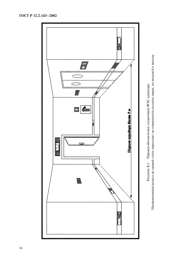
Система стандартов безопасности труда. Системы фотолюминесцентные эвакуационные. Элементы систем. Классификация. Общие технические требования. Методы контроля

Обозначение:ГОСТ Р 12.2.143-2002
Текущий статус документа: заменён
Название документа рус.:Система стандартов безопасности труда. Системы фотолюминесцентные эвакуационные. Элементы систем. Классификация. Общие технические требования. Методы контроля
Название документа англ.:Occupational safety standards system. Photoluminescent evacuation systems. Elements of systems. Classification. General technical requirements. Methods of tests
Дата актуализации текста:01.12.2013
Дата издания:30.12.2002
Дата введения:01.01.2004
Дата последнего изменения:22.05.2013
Дата окончания срока действия:01.07.2010
Область применения:Настоящий стандарт распространяется на фотолюминесцентные эвакуационные системы (ФЭС) и элементы систем, в том числе планы эвакуации, применяемые:
- в зданиях;
- в наземных и подземных сооружениях;
- на наземных, подземных, плавучих и воздушных транспортных средствах (например в железнодорожных пассажирских вагонах, автобусах, поездах метрополитенов, на морских и речных судах, самолетах и т.п.);
- на морских (речных) объектах
в целях обеспечения эвакуации и информации о правилах поведения в условиях ограниченной видимости (сумерек, задымления, тумана и т.п.) или полной темноты (аварийного отключения освещения), при угрозе возникновения и возникновении чрезвычайной ситуации (пожара, аварии, стихийного бедствия, катастрофы, угрозы совершения террористического акта и т.п.), вызывающей необходимость эвакуации и спасения людей.
Настоящий стандарт не распространяется на:
- системы аварийного освещения;
- электротехнические (с элементами, потребляющими электрическую энергию) системы освещения и обозначения путей эвакуации;
- специальную сигнальную одежду и снаряжение повышенной видимости;
- визуально-знаковые средства обеспечения безопасности движения всех видов транспорта.
Настоящий стандарт устанавливает:
- классификацию элементов ФЭС;
- требования к размещению ФЭС и элементов ФЭС;
- общие технические требования к элементам ФЭС, в том числе планам эвакуации;
- методы контроля ФЭС и элементов ФЭС на стадиях изготовления и эксплуатации.
Настоящий стандарт не устанавливает технических требований к следующим элементам ФЭС:
- химическим источникам света;
- лампам длительного послесвечения
ГОСТ Р 12.2.143-2002ГОСТ Р 12.2.143-2002ГОСТ Р 12.2.143-2002ГОСТ Р 12.2.143-2002ГОСТ Р 12.2.143-2002ГОСТ Р 12.2.143-2002ГОСТ Р 12.2.143-2002ГОСТ Р 12.2.143-2002ГОСТ Р 12.2.143-2002ГОСТ Р 12.2.143-2002ГОСТ Р 12.2.143-2002ГОСТ Р 12.2.143-2002ГОСТ Р 12.2.143-2002ГОСТ Р 12.2.143-2002ГОСТ Р 12.2.143-2002ГОСТ Р 12.2.143-2002ГОСТ Р 12.2.143-2002ГОСТ Р 12.2.143-2002ГОСТ Р 12.2.143-2002ГОСТ Р 12.2.143-2002ГОСТ Р 12.2.143-2002ГОСТ Р 12.2.143-2002ГОСТ Р 12.2.143-2002ГОСТ Р 12.2.143-2002ГОСТ Р 12.2.143-2002ГОСТ Р 12.2.143-2002ГОСТ Р 12.2.143-2002ГОСТ Р 12.2.143-2002ГОСТ Р 12.2.143-2002ГОСТ Р 12.2.143-2002ГОСТ Р 12.2.143-2002ГОСТ Р 12.2.143-2002ГОСТ Р 12.2.143-2002ГОСТ Р 12.2.143-2002ГОСТ Р 12.2.143-2002ГОСТ Р 12.2.143-2002ГОСТ Р 12.2.143-2002ГОСТ Р 12.2.143-2002ГОСТ Р 12.2.143-2002ГОСТ Р 12.2.143-2002ГОСТ Р 12.2.143-2002ГОСТ Р 12.2.143-2002ГОСТ Р 12.2.143-2002ГОСТ Р 12.2.143-2002ГОСТ Р 12.2.143-2002ГОСТ Р 12.2.143-2002ГОСТ Р 12.2.143-2002ГОСТ Р 12.2.143-2002ГОСТ Р 12.2.143-2002ГОСТ Р 12.2.143-2002
 




ГОСТЫ, СТРОИТЕЛЬНЫЕ и ТЕХНИЧЕСКИЕ НОРМАТИВЫ.
Некоммерческая онлайн система, содержащая все Российские Госты, национальные Стандарты и нормативы.
В Системе содержится более 150000 файлов нормативно-технической документации, действующей на территории РФ.
Система предназначена для широкого круга инженерно-технических специалистов.

Рейтинг@Mail.ru Яндекс цитирования

Copyright © www.gostrf.com, 2008 - 2026