Крупнейшая бесплатная информационно-справочная система онлайн доступа к полному собранию технических нормативно-правовых актов РФ. Огромная база технических нормативов (более 150 тысяч документов) и полное собрание национальных стандартов, аутентичное официальной базе Госстандарта. GOSTRF.com - это более 1 Терабайта бесплатной технической информации для всех пользователей интернета. Все электронные копии представленных здесь документов могут распространяться без каких-либо ограничений. Поощряется распространение информации с этого сайта на любых других ресурсах. Каждый человек имеет право на неограниченный доступ к этим документам! Каждый человек имеет право на знание требований, изложенных в данных нормативно-правовых актах!

  


 

ГОСТ Р 51733-2001

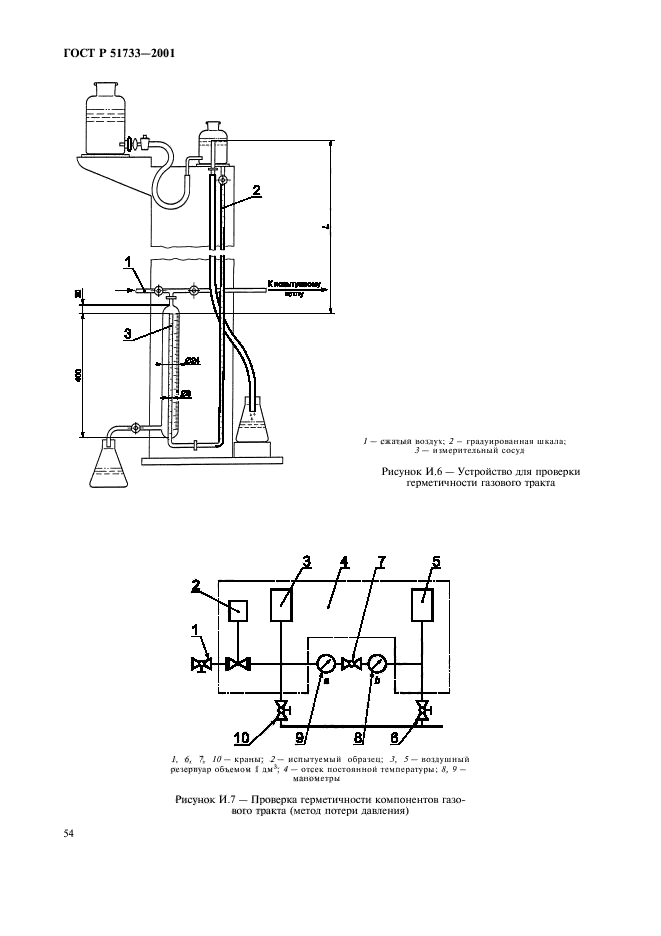
Котлы газовые центрального отопления, оснащенные атмосферными горелками, номинальной тепловой мощностью до 70 кВт. Требования безопасности и методы испытаний

Обозначение:ГОСТ Р 51733-2001
Текущий статус документа: действующий
Название документа рус.:Котлы газовые центрального отопления, оснащенные атмосферными горелками, номинальной тепловой мощностью до 70 кВт. Требования безопасности и методы испытаний
Название документа англ.:Gas-fired central heating boilers fitted with atmospheric burners of nominal heat input not exceeding 70 kW. Safety requirements and test methods
Дата актуализации текста:01.12.2013
Дата издания:21.06.2001
Дата введения:01.01.2002
Дата последнего изменения:22.05.2013
Область применения:Настоящий стандарт распространяется на газовые котлы центрального отопления типа В 11BS, оснащенные атмосферными горелками низкого давления, работающие с использованием газов трех семейств, имеющие номинальную подводимую тепловую мощность не более 70 кВт, температуру воды - не более 95 град. С, давление воды - не более 0,6 МПа.
Настоящий стандарт не распространяется на котлы: предназначенные для установки на открытом воздухе; имеющие несколько нагревательных блоков с общим стабилизатором тяги; с дутьевыми горелками; конденсационного типа; предназначенные для присоединения к общей дымовой трубе, имеющей дымосос; снабженные ручными и автоматическими средствами регулирования подвода воздуха и /или удаления продуктов сгорания; комбинированного типа (центральное отопление и горячее водоснабжение)
ГОСТ Р 51733-2001ГОСТ Р 51733-2001ГОСТ Р 51733-2001ГОСТ Р 51733-2001ГОСТ Р 51733-2001ГОСТ Р 51733-2001ГОСТ Р 51733-2001ГОСТ Р 51733-2001ГОСТ Р 51733-2001ГОСТ Р 51733-2001ГОСТ Р 51733-2001ГОСТ Р 51733-2001ГОСТ Р 51733-2001ГОСТ Р 51733-2001ГОСТ Р 51733-2001ГОСТ Р 51733-2001ГОСТ Р 51733-2001ГОСТ Р 51733-2001ГОСТ Р 51733-2001ГОСТ Р 51733-2001ГОСТ Р 51733-2001ГОСТ Р 51733-2001ГОСТ Р 51733-2001ГОСТ Р 51733-2001ГОСТ Р 51733-2001ГОСТ Р 51733-2001ГОСТ Р 51733-2001ГОСТ Р 51733-2001ГОСТ Р 51733-2001ГОСТ Р 51733-2001ГОСТ Р 51733-2001ГОСТ Р 51733-2001ГОСТ Р 51733-2001ГОСТ Р 51733-2001ГОСТ Р 51733-2001ГОСТ Р 51733-2001ГОСТ Р 51733-2001ГОСТ Р 51733-2001ГОСТ Р 51733-2001ГОСТ Р 51733-2001ГОСТ Р 51733-2001ГОСТ Р 51733-2001ГОСТ Р 51733-2001ГОСТ Р 51733-2001ГОСТ Р 51733-2001ГОСТ Р 51733-2001ГОСТ Р 51733-2001ГОСТ Р 51733-2001ГОСТ Р 51733-2001ГОСТ Р 51733-2001ГОСТ Р 51733-2001ГОСТ Р 51733-2001ГОСТ Р 51733-2001ГОСТ Р 51733-2001ГОСТ Р 51733-2001ГОСТ Р 51733-2001ГОСТ Р 51733-2001ГОСТ Р 51733-2001ГОСТ Р 51733-2001ГОСТ Р 51733-2001ГОСТ Р 51733-2001
 




ГОСТЫ, СТРОИТЕЛЬНЫЕ и ТЕХНИЧЕСКИЕ НОРМАТИВЫ.
Некоммерческая онлайн система, содержащая все Российские Госты, национальные Стандарты и нормативы.
В Системе содержится более 150000 файлов нормативно-технической документации, действующей на территории РФ.
Система предназначена для широкого круга инженерно-технических специалистов.

Рейтинг@Mail.ru Яндекс цитирования

Copyright © www.gostrf.com, 2008 - 2026