Крупнейшая бесплатная информационно-справочная система онлайн доступа к полному собранию технических нормативно-правовых актов РФ. Огромная база технических нормативов (более 150 тысяч документов) и полное собрание национальных стандартов, аутентичное официальной базе Госстандарта. GOSTRF.com - это более 1 Терабайта бесплатной технической информации для всех пользователей интернета. Все электронные копии представленных здесь документов могут распространяться без каких-либо ограничений. Поощряется распространение информации с этого сайта на любых других ресурсах. Каждый человек имеет право на неограниченный доступ к этим документам! Каждый человек имеет право на знание требований, изложенных в данных нормативно-правовых актах!

  


 

ГОСТ 22476-77

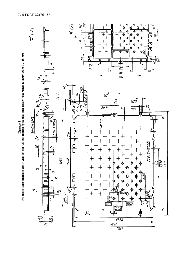
Отверстия фиксирующие и крепежные координатных модельных плит. Размеры

Обозначение:ГОСТ 22476-77
Текущий статус документа: действующий
Название документа рус.:Отверстия фиксирующие и крепежные координатных модельных плит. Размеры
Название документа англ.:Fixing and securing holes master pattern plates. Design and dimension
Дата актуализации текста:01.12.2013
Дата издания:01.03.2001
Дата введения:30.06.1978
Дата последнего изменения:22.05.2013
Переиздание:переиздание с изм. 1
Взамен:МН 3274-62 МН 3276-62 МН 3278-62 МН 3282-62 МН 3284-62
Область применения:Настоящий стандарт распространятся на фиксирующие и крепежные отверстия координатных модельных плит, предназначенных для изготовления песчаных литейных форм
Список изменений:№1 от 01.02.1983 (рег. 16.11.1982) «Срок действия продлен»
№2 от 01.07.1988 (рег. 18.12.1987) «Срок действия продлен»
ГОСТ 22476-77ГОСТ 22476-77ГОСТ 22476-77ГОСТ 22476-77ГОСТ 22476-77ГОСТ 22476-77ГОСТ 22476-77
 




ГОСТЫ, СТРОИТЕЛЬНЫЕ и ТЕХНИЧЕСКИЕ НОРМАТИВЫ.
Некоммерческая онлайн система, содержащая все Российские Госты, национальные Стандарты и нормативы.
В Системе содержится более 150000 файлов нормативно-технической документации, действующей на территории РФ.
Система предназначена для широкого круга инженерно-технических специалистов.

Рейтинг@Mail.ru Яндекс цитирования

Copyright © www.gostrf.com, 2008 - 2026