Крупнейшая бесплатная информационно-справочная система онлайн доступа к полному собранию технических нормативно-правовых актов РФ. Огромная база технических нормативов (более 150 тысяч документов) и полное собрание национальных стандартов, аутентичное официальной базе Госстандарта. GOSTRF.com - это более 1 Терабайта бесплатной технической информации для всех пользователей интернета. Все электронные копии представленных здесь документов могут распространяться без каких-либо ограничений. Поощряется распространение информации с этого сайта на любых других ресурсах. Каждый человек имеет право на неограниченный доступ к этим документам! Каждый человек имеет право на знание требований, изложенных в данных нормативно-правовых актах!

  


 

ГОСТ 5089-2003

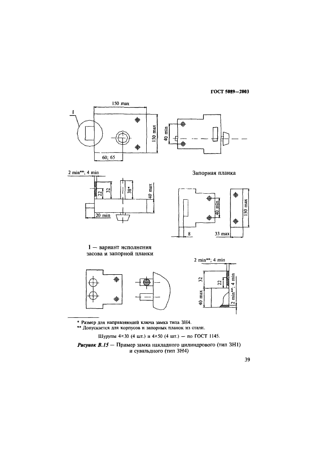
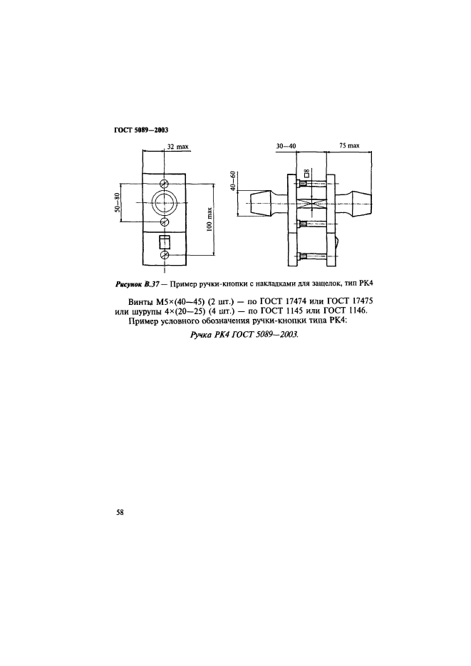
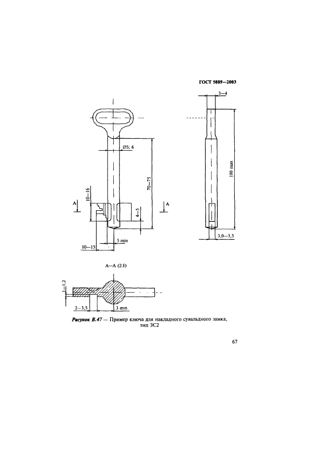
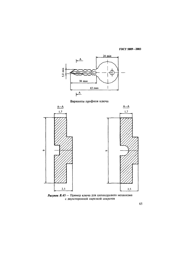
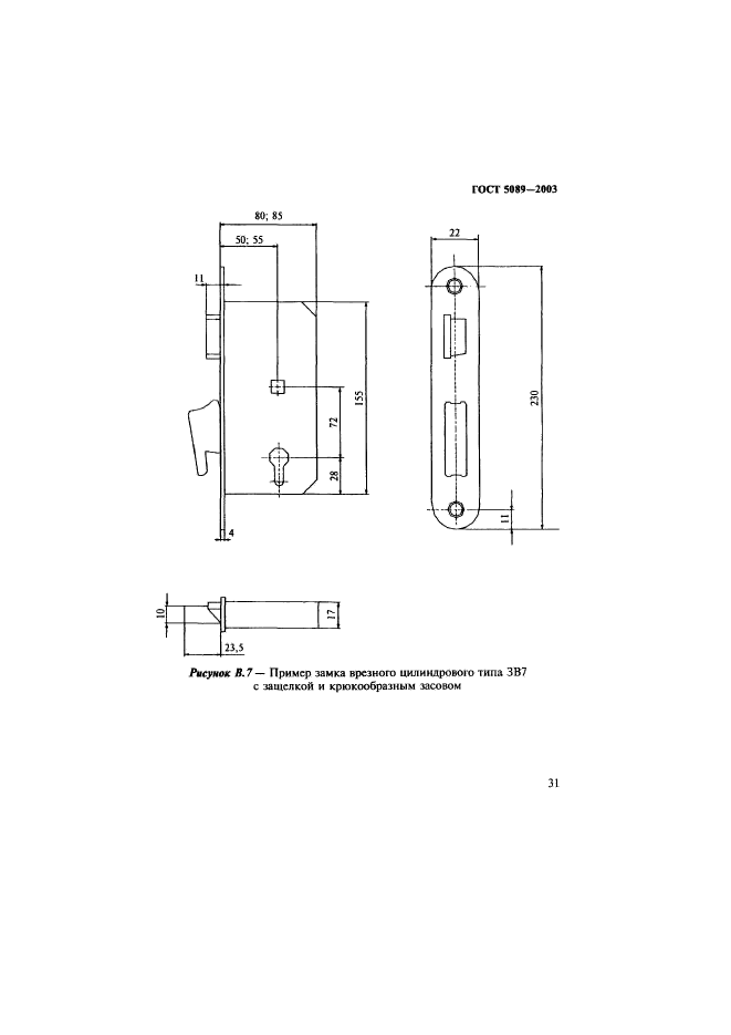
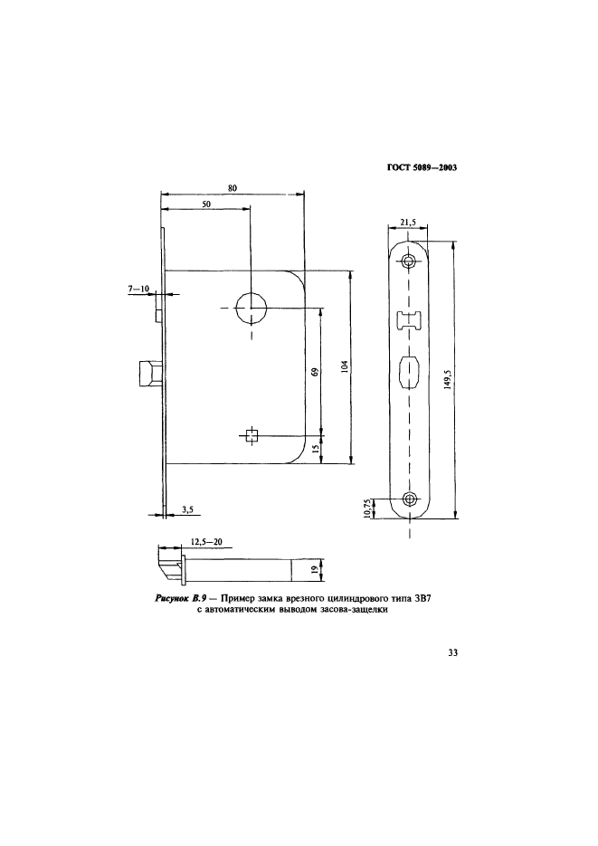
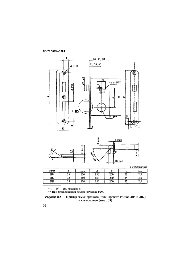
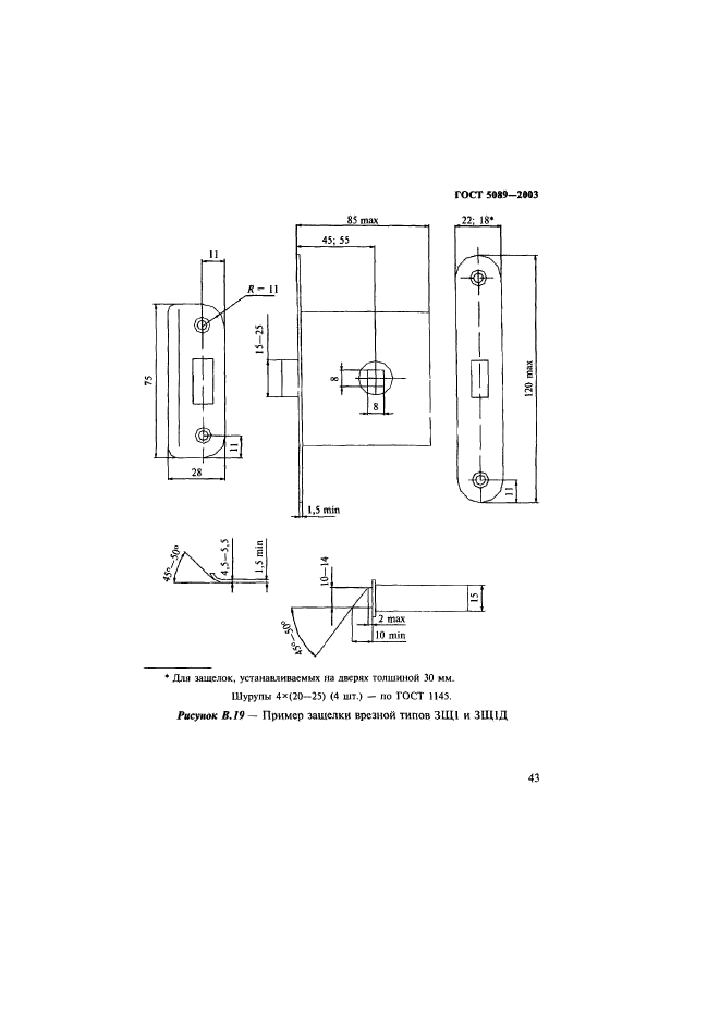
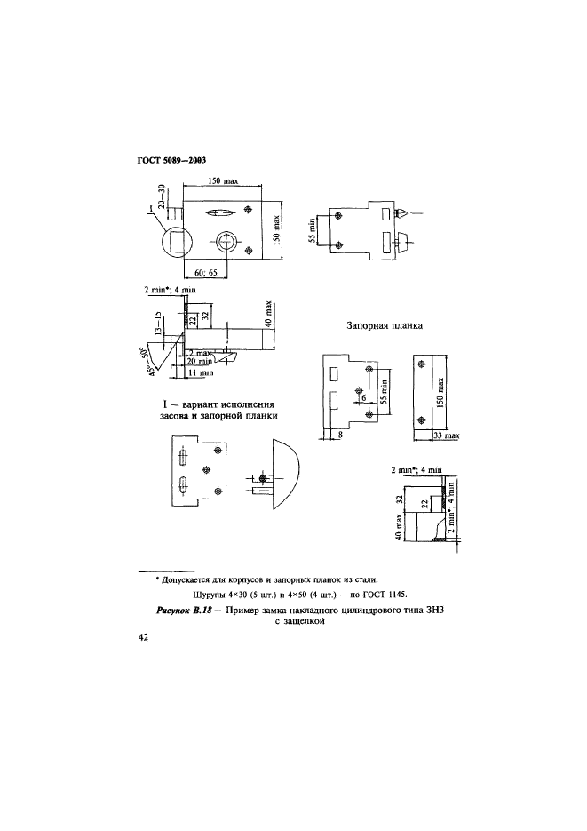
Замки и защелки для дверей. Технические условия

Обозначение:ГОСТ 5089-2003
Текущий статус документа: заменён
Название документа рус.:Замки и защелки для дверей. Технические условия
Название документа англ.:Locks and latches for doors. Specifications
Дата актуализации текста:01.12.2013
Дата издания:08.07.2004
Дата введения:01.03.2004
Дата последнего изменения:22.05.2013
Дата окончания срока действия:01.01.2013
Область применения:Настоящий стандарт распространяется на врезные и накладные замки с различными механизмами секретности, цилиндровые механизмы и защелки для дверей из различных материалов, применяемых в жилых, общественных и производственных зданиях
Список изменений:№0 от 04.09.2007 (рег. 04.09.2007) «Дата введения перенесена»
ГОСТ 5089-2003ГОСТ 5089-2003ГОСТ 5089-2003ГОСТ 5089-2003ГОСТ 5089-2003ГОСТ 5089-2003ГОСТ 5089-2003ГОСТ 5089-2003ГОСТ 5089-2003ГОСТ 5089-2003ГОСТ 5089-2003ГОСТ 5089-2003ГОСТ 5089-2003ГОСТ 5089-2003ГОСТ 5089-2003ГОСТ 5089-2003ГОСТ 5089-2003ГОСТ 5089-2003ГОСТ 5089-2003ГОСТ 5089-2003ГОСТ 5089-2003ГОСТ 5089-2003ГОСТ 5089-2003ГОСТ 5089-2003ГОСТ 5089-2003ГОСТ 5089-2003ГОСТ 5089-2003ГОСТ 5089-2003ГОСТ 5089-2003ГОСТ 5089-2003ГОСТ 5089-2003ГОСТ 5089-2003ГОСТ 5089-2003ГОСТ 5089-2003ГОСТ 5089-2003ГОСТ 5089-2003ГОСТ 5089-2003ГОСТ 5089-2003ГОСТ 5089-2003ГОСТ 5089-2003ГОСТ 5089-2003ГОСТ 5089-2003ГОСТ 5089-2003ГОСТ 5089-2003ГОСТ 5089-2003ГОСТ 5089-2003ГОСТ 5089-2003ГОСТ 5089-2003ГОСТ 5089-2003ГОСТ 5089-2003ГОСТ 5089-2003ГОСТ 5089-2003ГОСТ 5089-2003ГОСТ 5089-2003ГОСТ 5089-2003ГОСТ 5089-2003ГОСТ 5089-2003ГОСТ 5089-2003ГОСТ 5089-2003ГОСТ 5089-2003ГОСТ 5089-2003ГОСТ 5089-2003ГОСТ 5089-2003ГОСТ 5089-2003ГОСТ 5089-2003ГОСТ 5089-2003ГОСТ 5089-2003ГОСТ 5089-2003ГОСТ 5089-2003ГОСТ 5089-2003ГОСТ 5089-2003ГОСТ 5089-2003ГОСТ 5089-2003ГОСТ 5089-2003ГОСТ 5089-2003
 




ГОСТЫ, СТРОИТЕЛЬНЫЕ и ТЕХНИЧЕСКИЕ НОРМАТИВЫ.
Некоммерческая онлайн система, содержащая все Российские Госты, национальные Стандарты и нормативы.
В Системе содержится более 150000 файлов нормативно-технической документации, действующей на территории РФ.
Система предназначена для широкого круга инженерно-технических специалистов.

Рейтинг@Mail.ru Яндекс цитирования

Copyright © www.gostrf.com, 2008 - 2026