Крупнейшая бесплатная информационно-справочная система онлайн доступа к полному собранию технических нормативно-правовых актов РФ. Огромная база технических нормативов (более 150 тысяч документов) и полное собрание национальных стандартов, аутентичное официальной базе Госстандарта. GOSTRF.com - это более 1 Терабайта бесплатной технической информации для всех пользователей интернета. Все электронные копии представленных здесь документов могут распространяться без каких-либо ограничений. Поощряется распространение информации с этого сайта на любых других ресурсах. Каждый человек имеет право на неограниченный доступ к этим документам! Каждый человек имеет право на знание требований, изложенных в данных нормативно-правовых актах!

  


 

ГОСТ Р 51261-99

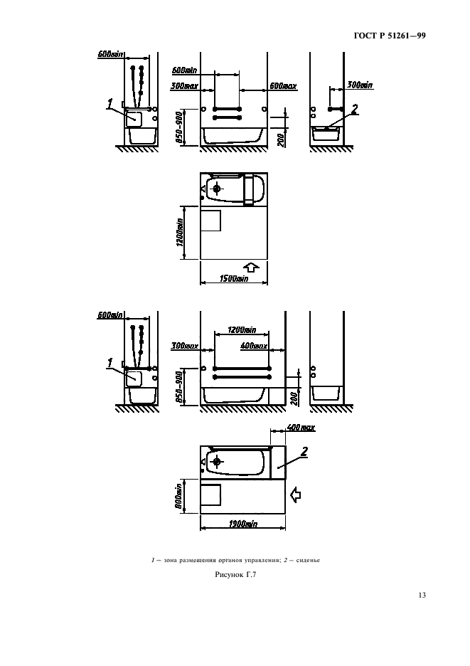
Устройства опорные стационарные реабилитационные. Типы и технические требования

Обозначение:ГОСТ Р 51261-99
Текущий статус документа: действующий
Название документа рус.:Устройства опорные стационарные реабилитационные. Типы и технические требования
Название документа англ.:Support stationary devices for disabled persons. Types and technical requirements
Дата актуализации текста:01.12.2013
Дата издания:10.06.1999
Дата введения:01.01.2000
Дата последнего изменения:22.05.2013
Область применения:Настоящий стандарт распространяется на стационарные опорные реабилитационные устройства, устанавливаемые в доступных для инвалидов общественных зданиях, сооружениях и средствах общественного пассажирского транспорта. Опорные устройства предназначены для инвалидов, в том числе инвалидов, использующих для передвижения кресла-коляски. Стандарт устанавливает типы опорных устройств и технические требования к опорным устройствам.
Стандарт не распространяется на опорные технические средства реабилитации инвалидов, предназначенные для индивидуального пользования (костыли, ходунки, трости, подножки, подлокотники и спинки кресел-колясок и др.)
ГОСТ Р 51261-99ГОСТ Р 51261-99ГОСТ Р 51261-99ГОСТ Р 51261-99ГОСТ Р 51261-99ГОСТ Р 51261-99ГОСТ Р 51261-99ГОСТ Р 51261-99ГОСТ Р 51261-99ГОСТ Р 51261-99ГОСТ Р 51261-99ГОСТ Р 51261-99ГОСТ Р 51261-99ГОСТ Р 51261-99ГОСТ Р 51261-99ГОСТ Р 51261-99ГОСТ Р 51261-99ГОСТ Р 51261-99ГОСТ Р 51261-99
 




ГОСТЫ, СТРОИТЕЛЬНЫЕ и ТЕХНИЧЕСКИЕ НОРМАТИВЫ.
Некоммерческая онлайн система, содержащая все Российские Госты, национальные Стандарты и нормативы.
В Системе содержится более 150000 файлов нормативно-технической документации, действующей на территории РФ.
Система предназначена для широкого круга инженерно-технических специалистов.

Рейтинг@Mail.ru Яндекс цитирования

Copyright © www.gostrf.com, 2008 - 2026