Крупнейшая бесплатная информационно-справочная система онлайн доступа к полному собранию технических нормативно-правовых актов РФ. Огромная база технических нормативов (более 150 тысяч документов) и полное собрание национальных стандартов, аутентичное официальной базе Госстандарта. GOSTRF.com - это более 1 Терабайта бесплатной технической информации для всех пользователей интернета. Все электронные копии представленных здесь документов могут распространяться без каких-либо ограничений. Поощряется распространение информации с этого сайта на любых других ресурсах. Каждый человек имеет право на неограниченный доступ к этим документам! Каждый человек имеет право на знание требований, изложенных в данных нормативно-правовых актах!

  


 

ГОСУДАРСТВЕННЫЙ СТАНДАРТ СОЮЗА ССР

Балки обвязочные железобетонные
для зданий промышленных
предприятий

Конструкция и размеры

ГОСТ 24893.1-81

ГосударственнЫЙ комитет СССР
по делам строительства

Москва

Разработаны Центральным научно-исследовательским и проектно-экспериментальным институтом промышленных зданий и сооружений (ЦНИИпромзданий) Госстроя СССР

ИСПОЛНИТЕЛИ

К. Ю. Полищюк (руководитель темы);

Б. Ф. Васильев; Г. М. Смилянский, канд. техн. наук;

Т. Г. Кузнецова; Н. М. Ляндрес; В. И. Пименова

ВНЕСЕНЫ Центральным научно-исследовательским и проектно-экспериментальным институтом промышленных зданий и сооружений (ЦНИИпромзданий) Госстроя СССР

Директор Ю. Н. Хромец

УТВЕРЖДЕНЫ И ВВЕДЕНЫ в действие постановлением Государственного комитета СССР по делам строительства от 14 июля 1981 г. № 119

 

ГОСУДАРСТВЕННЫЙ СТАНДАРТ СОЮЗА ССР

Балки обвязочные железобетонные для зданий
промышленных предприятий

Конструкция и размеры

Reinforced concrete frame brace for industrial buildings.
Construction and dimensions

ГОСТ
24893.1-81

Постановлением Государственного комитета СССР по делам строительства от 14 июля 1981 г. № 119 срок введения установлен

с 01.01 1983 г.

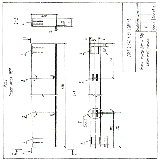
1. Настоящий стандарт распространяется на сборные железобетонные обвязочные балки координационной длиной 6,0 м типов БОП и БОВ и устанавливает требования к их армированию.

2. Конструкция балок, технические требования и технические показатели - по ГОСТ 24893.0-81.

3. Армирование балок должно соответствовать указанному на листах 1 - 5 сборочного черт. 1000 СБ ГОСТ 24893.1-81.

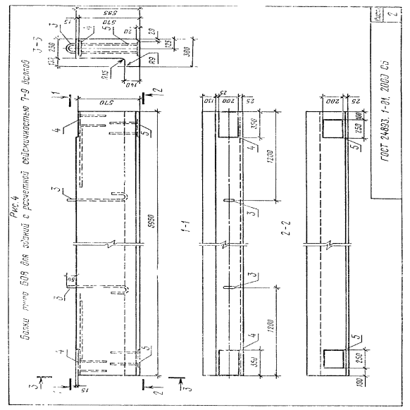
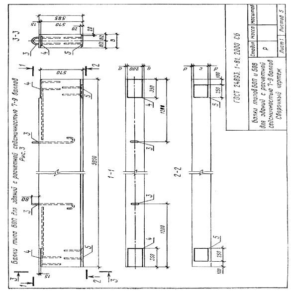
Армирование балок для зданий с расчетной сейсмичностью 7 - 9 баллов должно соответствовать указанному на листах 1 - 5 сборочного черт. 2000 СБ ГОСТ 24893.1-81.

4. Спецификация арматурных и закладных изделий на одну балку приведена на листах 1 - 2 черт. 1000; выборка стали - на листе 1 черт. 0000 ВС ГОСТ 24893.1-81.

Спецификация арматурных и закладных изделий на одну балку, предназначенную для зданий с расчетной сейсмичностью 7 - 9 баллов, приведена на листах 1 - 3 черт. 2000; выборка стали на листе 2 черт. 0000 ВС ГОСТ 24893.1-81.

5. Арматурные и закладные изделия для балок по ГОСТ 24893.2.81.

6. Правила приемки, методы контроля и испытаний, маркировка, хранение, транспортирование и гарантии изготовителя балок - по ГОСТ 24893.0-81.

 

 




ГОСТЫ, СТРОИТЕЛЬНЫЕ и ТЕХНИЧЕСКИЕ НОРМАТИВЫ.
Некоммерческая онлайн система, содержащая все Российские Госты, национальные Стандарты и нормативы.
В Системе содержится более 150000 файлов нормативно-технической документации, действующей на территории РФ.
Система предназначена для широкого круга инженерно-технических специалистов.

Рейтинг@Mail.ru Яндекс цитирования

Copyright © www.gostrf.com, 2008 - 2026