Крупнейшая бесплатная информационно-справочная система онлайн доступа к полному собранию технических нормативно-правовых актов РФ. Огромная база технических нормативов (более 150 тысяч документов) и полное собрание национальных стандартов, аутентичное официальной базе Госстандарта. GOSTRF.com - это более 1 Терабайта бесплатной технической информации для всех пользователей интернета. Все электронные копии представленных здесь документов могут распространяться без каких-либо ограничений. Поощряется распространение информации с этого сайта на любых других ресурсах. Каждый человек имеет право на неограниченный доступ к этим документам! Каждый человек имеет право на знание требований, изложенных в данных нормативно-правовых актах!

  


 

Система нормативных документов в строительстве

СВОД ПРАВИЛ ПО ПРОЕКТИРОВАНИЮ И СТРОИТЕЛЬСТВУ

ПОМЕЩЕНИЯ ДЛЯ ДОСУГОВОЙ
И ФИЗКУЛЬТУРНО-ОЗДОРОВИТЕЛЬНОЙ
ДЕЯТЕЛЬНОСТИ ПОЖИЛЫХ ЛЮДЕЙ

СП 35-109-2005

ИЗДАНИЕ ОФИЦИАЛЬНОЕ

Москва

2006

Предисловие

1. РАЗРАБОТАН ФГУП «Научно-проектный институт учебно-воспитательных, торгово-бытовых и досуговых зданий» («Институт общественных зданий»)

2. ВНЕСЕН Управлением технического нормирования, стандартизации и сертификации в строительстве и ЖКХ, Управлением архитектуры Госстроя России

3. ОДОБРЕН ДЛЯ ПРИМЕНЕНИЯ в качестве нормативного документа добровольного применения Системы нормативных документов в строительстве. Письмо Госстроя России от 30 апреля 2004 г. № ЛБ-322/9

4. УТВЕРЖДЕН приказом директора ФГУП «Научно-проектный институт учебно-воспитательных, торгово-бытовых и досуговых зданий» (Институт общественных зданий) от 23 апреля 2004 г. № 10

5. ВВЕДЕН ВПЕРВЫЕ

Содержание

Введение

Настоящий Свод правил устанавливает положения по формированию функциональных групп помещений, предназначенных для:

- проведения мероприятий для лиц старшего возраста, обеспечивающих удовлетворение культурных запросов и духовных потребностей;

- реализации творческого потенциала людей старшего возраста;

- предоставления условий и средств для физической тренировки, для проведения физкультурно-оздоровительных занятий;

- организации и проведения досуговых мероприятий.

В разработке настоящего Свода правил приняли участие: руководитель темы - канд. архит. A.M.Гарнец, отв. исполнитель - канд. архит. Б.П. Анисимов, канд. архит. С.Д.Охлябинин, архит. П.С. Паронян и инженер-технолог Л.В. Сигачева (ФГУП ИОЗ), экономист Ю.В. Гафурова (Минкультуры России), педагог И.П. Носова (Муниципальная детская галерея Зеленоградского административного округа г. Москвы), канд. пед. наук О.В. Тиунова, архит. В.М. Крылова (ВНИИФК Росспорта).

СВОД ПРАВИЛ ПО ПРОЕКТИРОВАНИЮ И СТРОИТЕЛЬСТВУ

ПОМЕЩЕНИЯ ДЛЯ ДОСУГОВОЙ
И ФИЗКУЛЬТУРНО-ОЗДОРОВИТЕЛЬНОЙ
ДЕЯТЕЛЬНОСТИ ПОЖИЛЫХ ЛЮДЕЙ

Dwellings for spare time and physical-training activity
of elderly people

1 Область применения

Настоящий Свод правил устанавливает положения по проектированию функциональных групп помещений для досуговой и физкультурно-оздоровительной деятельности, предназначенных преимущественно для людей старшего возраста, а также применяется при реконструкции зданий различного назначения или их частей, включающих рассматриваемые группы помещений.

Положения настоящего документа распространяются на досуговые и физкультурно-оздоровительные группы помещений, которые могут предусматриваться в следующих типах зданий:

социально-оздоровительные центры (центры социального обслуживания) в жилой застройке;

отделения дневного (ночного) пребывания в жилой застройке;

специальные жилые дома;

пансионаты - дома ветеранов;

дома-интернаты общего типа;

отделения временного проживания в центрах социального обслуживания;

объекты учреждений специального обслуживания людей старшего возраста (центры-клубы, физкультурно-оздоровительные центры и т.п.);

специализированные дома-интернаты для лиц из мест заключения.

2 Нормативные ссылки

В настоящем Своде правил использованы ссылки на следующие нормативные документы;

СНиП 21-01-97* Пожарная безопасность зданий и сооружений

СНиП 23-03-2003 Защита от шума

СНиП 23-05-95* Естественное и искусственное освещение

СНиП 35-01-2001 Доступность зданий и сооружений для маломобильных групп населения

СНиП 2.08.02-89* Общественные здания и сооружения

СП 35-101-2001 Проектирование зданий и сооружений с учетом доступности для маломобильных групп населения. Общие положения

СП 35-103-2001 Общественные здания и сооружения, доступные маломобильным посетителям

ГОСТ 12.1.004-91 ССБТ. Пожарная безопасность. Общие требования

ГОСТ 30494-96 Здания жилые и общественные. Параметры микроклимата в помещениях

СанПиН 2.1.2.1188-03 Плавательные бассейны. Гигиенические требования к устройству, эксплуатации и качеству воды. Контроль качества

№ 4723-88 Санитарные правила устройства и эксплуатации систем централизованного горячего водоснабжения

НПБ 88-2001* Установки пожаротушения и сигнализации. Нормы и правила проектирования

НПБ 104-03 Системы оповещения и управления эвакуацией людей при пожарах в зданиях и сооружениях.

3 Общие положения

3.1 При проектировании новых или приспособлении существующих зданий для размещения помещений для проведения досуговых и физкультурно-оздоровительных занятий, которые посещают люди старшего возраста, необходимо учитывать требования доступности для маломобильных посетителей, изложенные в СНиП 35-01, СП 35-101 и СП 35-103.

3.2 Здания, в которых размещаются помещения для проведения досуговых и физкультурно-оздоровительных занятий, должны отвечать санитарно-гигиеническим и противопожарным требованиям, изложенным в нормативных документах, указанных в разделе 2.

3.3 Систему оповещения людей о возникновении пожара следует проектировать в соответствии с требованиями НПБ 104 с учетом специфики восприятия сигналов всеми категориями инвалидов и людей старшего возраста, находящихся в зданиях.

3.4 Все основные помещения для занятий людей старшего возраста (кружки, настольные игры, индивидуальное творчество, физкультурно-оздоровительные и спортивные занятия и т.п.),как правило, должны иметь естественное освещение. Освещенность мест занятий должна удовлетворять требованиям таблицы 2 главы СНиП 23-05 с учетом потребностей людей старшего возраста.

3.5 Ориентация окон основных функциональных помещений на запад не рекомендуется. При ориентации на юг, юго-восток и юго-запад основных помещений необходимо устройство солнцезащитных приспособлений. Окна вспомогательных и обслуживающих помещений, не рассчитанных на длительное пребывание персонала и посетителей, могут быть ориентированы независимо от сторон света.

3.6 Звукоизоляцию помещений следует обеспечивать, предусматривая в проектах применение ограждающих конструкций, обладающих требуемой звукоизолирующей способностью, а также путем соответствующей планировки помещений, надлежащего размещения инженерного и сани-тарно-технического оборудования и специальных мероприятий по снижению шума, возникающегоот этого оборудования, особенно для помещенийбиблиотечно-компьютерной группы, группы зрительного зала, а также для физкультурно-оздоровительной и бассейновой групп.

Определение уровней звукового давления в расчетных точках и подбор ограждающих конструкций необходимо осуществлять в соответствии со СНиП 23-03.

3.7 При расчете звукоизоляции ограждающихконструкций наибольшие уровни звукового давления, возникающего в помещениях группы зрительного зала, и допускаемые уровни звукового давления, проникающего в помещения, необходимопринимать согласно таблице А.1 приложения А.

3.8 В помещениях для оздоровительных занятий, а именно в спортивных залах, залах ванн и залах для подготовительных занятий в бассейнах, уровень звука от работы систем санитарно-технического и инженерного оборудования, проникающего в помещения, а также уровень звука от внешних источников необходимо принимать в соответствии с данными, приведенными в таблице А.2 приложения А.

3.9 Качество воды для технологических и хозяйственно-питьевых нужд физкультурно-оздоровительных и спортивных бассейнов должно удовлетворять требованиям СанПиН 2.1.2.1188.

Кроме того, вода, подаваемая в ванны бассейнов, должна иметь следующие показатели:

цветность не более 5 %;

содержание взвешенных веществ в крытых ваннах - не более 1 мг/л, в открытых ваннах - не более 2 мг/л;

прозрачность по кресту - на всю глубину ванны;

температура воды в ванне бассейна - 28 °С.

3.10 Состав и площадь помещений устанавливаются в задании на проектирование в зависимости от набора видов занятий, от числа групп, одновременно занимающихся, и общей численности занимающихся.

3.11 Функциональные группы помещений для досуговой и физкультурно-оздоровительной деятельности людей старшего возраста предназначаются для удовлетворения их потребностей:

в развлекательно-досуговой деятельности;

в информационно-познавательной деятельности;

в самодеятельных и творческих занятиях:

в физкультурно-оздоровительных мероприятиях и в соответствующем методическом и медицинском обслуживании.

3.12 Для развлекательно-досуговой деятельности рекомендуются следующие функциональные группы помещений:

помещения и участки (площадки) для общения и досуговых развлечений, танцевальные залы, бильярдные залы, бары, помещения для настольного тенниса, залы игровых автоматов, рекреационные помещения (фойе, холлы, зимние сады и т.п.);

зрительные залы, видеосалоны:

помещения для сопутствующих досуговых и консультационно-методических функций (лекции, собрания, конференции и т.п.).

3.13 Для информационно-познавательной деятельности необходимо максимально использовать современную компьютерную технику, позволяющую разместить ее на сравнительно небольших площадях помещений и приблизить к местам проживания и другим местам основного нахождения людей старшего возраста. Кроме того, для этой деятельности целесообразно предусматривать небольшие читальные залы для хранения, в основном, периодической литературы, небольшого объема книжного фонда, обновляемого и изменяемого по запросам читателей.

3.14 Для самодеятельных и творческих занятий людей старшего возраста, помимо традиционных клубных и кружковых помещений, творческих мастерских и других аналогичных помещений, предусматриваются помещения для размещения компьютерной техники. Это позволит получать информацию, удовлетворяющую различным интересам людей старшего возраста, и осуществлять различные творческие процессы, связанные с компьютерной графикой, цифровой видеосъемкой, фотографией и т.п.

3.15 Для физкультурно-оздоровительных занятий следует использовать специальные помещения зданий, отдельные блоки или здания (диагностические кабинеты, тренажерные, гимнастические и спортивно-игровые залы, вводно-оздоровительные группы помещений и т.п.), а также участки с озеленением и открытыми игровыми площадками.

3.16 Выделяемые элементы физкультурно-оздоровительных учреждений целесообразно группировать с учетом состояния людей старшего возраста по следующим категориям:

1 - ограниченные в нагрузках и передвижениях по медицинским показаниям (сердечно-сосудистые заболевания, недостатки зрения, последствия травм, нарушения в координации движений и т.п.);

2 - без жестких психофизических ограничений и ограничений по времени пользования физкультурно-оздоровительным обслуживанием, не имеющие определенной спортивной ориентации на какие либо конкретные виды физкультурно-оздоровительного обслуживания;

3 - не имеющие жестких психофизических ограничений, но ориентированные на определенные виды физкультурно-оздоровительного обслуживания (на легкую атлетику, игровые виды спорта, водные виды спорта и т.п.);

4 - не имеющие жестких психофизических ограничений, но ограниченные в свободном времени и желающие максимально полно использовать физкультурно-оздоровительное обслуживание в течение непродолжительных периодических занятий.

3.17 Для людей, ограниченных в нагрузках и передвижениях, необходима отслеживающая медицинская компьютерная диагностика, а также разработка индивидуальных физкультурно-оздоровительных методик. Поэтому должны быть предусмотрены специальные помещения для размещения соответствующей аппаратуры, для работы специалистов (медиков, методистов, инструкторов) и обслуживания людей старшего возраста. Необходимо предусматривать помещения для размещения оборудования (тренажеров, измерительной аппаратуры, физиотерапевтической оздоровительной аппаратуры и т.п.), а также помещения для укрепляющих водных процедур.

3.18 Для людей, не имеющих жестких психофизических ограничений, ограничений во времени и не имеющих определенной спортивной ориентации, наряду с отслеживающей компьютерной диагностикой необходимо предусматривать тренажерные спортивно-тренировочные, спортивно-игровые залы, бассейны, бани и другие группы помещений спортивного назначения.

3.19 Для людей старшего возраста, ориентированных на определенные виды спорта и не имеющих медицинских ограничений к физкультурно-оздоровительным занятиям, необходимо предусматривать соответствующие группы помещений предпочитаемого вида спорта.

3.20 Для людей старшего возраста, ограниченных в свободном времени, но не имеющих жестких психофизических ограничений, основной целью является получение наибольшего разнообразия занятий и оздоровительного эффекта. В этом случае необходимо предусматривать совместное размещение основных помещений различного спортивного профиля для расширения числа вариантов спортивных занятий.

Для этой группы людей следует предусматривать помещения и оборудование в спортивно-развлекательных центрах.

4 Основные и вспомогательные группы помещений

4.1 Функциональные группы основных и вспомогательных помещений формируются в зависимости от расчетного числа посетителей и исходя из характера досуговой и культурной (развлекательной, информационно-познавательной и творческой), а также физкультурно-оздоровительной деятельности людей старшего возраста.

Варианты оптимальных наборов групп помещений приведены в таблицах 1 - 9.

Досуговые помещения группы зрительного зала могут быть объединены в одну функциональную группу (Д). Ориентировочный состав и площади помещений приведены в таблице 1.

Таблица 1 - Помещения группы зрительного зала

Наименование помещений

Площадь помещений, м2, при расчетном числе посетителей, чел.

50

100

150

200

300

Зрительный зал

Площадь, м2

-

70

100

130

200

мест

-

100

150

200

300

Фойе с буфетной стойкой и залом для танцев

5+40

67

90

120

140

Бар

24

30

30

40

50

Зимний сад

30

40

50

50

80

Курительная

10

10

15

20

30

Эстрада

36

48

48

-

-

Сцена

-

-

-

60

100

Оркестровая яма

-

-

-

20

20

Склад объемных декораций

-

-

-

-

30

Склад бутафории и мебели

-

-

20

20

-

Артистические уборные

-

20

20

30

30

Костюмерная

-

-

-

-

10

Регуляторная и реостатная

-

-

-

-

10

Щитовая

-

-

-

-

10

Смотровая операторская

18

25

25

25

25

Итого:

163

310

398

515

735

4.2 Помещения для познавательной и интеллектуально-творческой деятельности (К) включают три функциональных группы, которые могут размещаться совместно или раздельно:

лекционно-кружковая (К-1);

библиотечно-компьютерная (К-2);

самодеятельного творчества (К-3).

Ориентировочные состав и площади данных групп помещений приведены в таблицах 2 - 4.

Таблица 2 - Помещения лекционно-кружковой группы

Наименование помещений

Площадь помещений, м2, при расчетном числе посетителей, чел.

50

100

150

200

Аудитория с подиумом для лектора и площадкой для аппаратуры

-

-

60

80

Комнаты для работы кружков

40

60

80

100

Кабинет руководителей кружкой

10

10

10

10

Итого:

50

70

150

190

Таблица 3 - Помещения библиотечно-компьютерной группы

Наименование помещений

Площадь помещений, м2, при расчетном числе посетителей, чел.

50

100

150

200

Читальный зал

20

30

30

40

Абонемент

20

30

40

40

Книгохранилище

-

-

-

-

Залы компьютерной информации

20

20

30

30

Кабинет компьютерного обеспечения

12

12

15

15

Помещение компьютерных игр

20

20

20

30

Зал игровых автоматов с подсобными помещениями

15+8

15+8

20+10

20+10

Зал для настольных игр с подсобным помещением

20+8

20+8

20+10

25+10

Итого:

143

163

195

220

 

Таблица 4 - Помещения группы самодеятельного творчества

Наименование помещений

Площадь помещений, м2, при расчетном числе посетителей, чел.

50

100

150

200

Учебный класс

30

40

50

70 (35+35)

Кабинет персонала (комната мастеров)

15

20

25

30

Помещения для изостудии и технического творчества (фото, кино, видео)

40

60

60

80

Помещения для ручного мастерства

30

50

50

75

Складские помещения для хранения материалов, инструмента и инвентаря

20

20

30

30

Итого:

135

190

215

285

4.3 Для организации и проведения мероприятий в различных основных помещениях необходимо предусматривать помещения обслуживающего и вспомогательного назначения. К ним относятся:

административно-хозяйственные помещения, которые могут быть объединены в самостоятельную группу;

санитарно-гигиенические, бытовые и подсобные помещения, которые могут быть рассредоточены среди различных групп основных помещений.

4.4 Высоту основных и вспомогательных помещений от пола до потолка (в чистоте) следует принимать в соответствии с 1.4 и 1.5 СНиП 2.08.02, а именно:

для досуговых помещений - не менее 3,0 м;

для помещений с ванными бассейнов - 3,3 м;

для физкультурно-спортивных залов размером не более 18×15 м - не менее 4,8 м.

4.5 Помещения для физкультурно-оздоровительных занятий включают три функциональные группы:

методическую (М) для определения физкультурно-оздоровительной методики, исходя из компьютерной медицинской диагностики;

физкультурно-оздоровительную (ФО);

бассейновую (Б).

4.6 Методическая группа предусматривается как при совместном размещении всех помещений для физкультурно-оздоровительных занятий, так и с каждой из этих групп в случаях отдельного или совместного размещения в различных сочетаниях.

Ориентировочный состав и площади помещений методической группы (М) с оборудованием компьютерной диагностики приведены в таблице 5.

Таблица 5 - Помещения методической группы

Наименование помещений

Площадь помещений, м2, при расчетном числе посетителей, чел.

50

100

150

200

Кабинет врача

15

15

15

15+15

Помещения для компьютерной медицинской диагностики

20

20

20

20+20

Кабинет инструкторов и методистов

15

15

20

20

Кабинет оценки физической работоспособности

-

20

20

20

Кабинет оценки психофизического состояния

-

-

40

40

Режимно-методический кабинет по физическим нагрузкам и методикам оздоровления

-

-

20

20

Итого:

50

70

135

170

4.7 Физкультурно-оздоровительная группа (ФО) включает зальные, обслуживающие и вспомогательные помещения.

Ориентировочный состав и площади помещений физкультурно-оздоровительной группы (ФО) приведены в таблице 6.

Кладовые при залах предусматриваются для хранения мебели и оборудования, временно не используемого для отдельных видов занятий. Это позволит периодически освобождать основные помещения для рациональной организации протекающих там функциональных процессов и удобства передвижения людей старшего возраста.

Таблица 6 - Помещения физкультурно-оздоровительной группы

Наименование помещений

Площадь помещений, м2, при расчетном числе посетителей, чел.

50

100

150

200

300

Универсальный зал оздоровительного и игрового назначения

108

162

288

288

450

Залы подготовительных занятий (тренажерные залы)

20

30

54

72

162

Раздевальные мужские и женские

8+8

10+10

15+15

20+20

25+25

Душевые

6+6

6+6

8+8

8+8

10+10

Кладовая спортивного инвентаря

10

15

15

20

20

Итого:

166

239

403

436

702

4.8 Бассейновая группа (Б) включает также зальные, обслуживающие и вспомогательные помещения, которые должны отвечать требованиям специфики помещений с влажным и мокрым режимами.

Ориентировочный состав и площади помещений бассейновой группы (Б) приведены в таблице 7.

4.9 Помещения административно-хозяйственного назначения могут быть объединены в одну группу (А). Их ориентировочный состав и площади приведены в таблице 8.

Таблица 7 - Помещения бассейновой группы

Наименование помещений

Площадь помещений, м2, при расчетном числе посетителей, чел.

50

100

150

200

1 Залы оздоровительного плавания с ванной:

 

 

 

 

12,5×6 м,  размер помещения 18×9 м

162

-

-

-

16,6×6 м,        »             »        24×12 м

-

288

-

-

25×8,5 м,        »             »        36×15 м

-

-

540

-

25×11 м,         »             »        36×18 м

-

-

-

684

2 Раздевальные (мужские и женские):

 

 

 

 

2.1 Места для переодевания:

 

 

 

 

на 9 мест каждая, в том числе 4 места для посетителей на кресле-коляске

66 (33×2)

-

-

-

на 12 мест каждая, в том числе 5 мест для посетителей на кресле-коляске

-

84(42×2)

84(42×2)

-

на 24 места каждая, в том числе 9 мест для посетителей на кресле-коляске

-

-

-

168(84×2)

2.2 Места для хранения кресел-колясок

4

6

6

10

2.3 Душевые:

 

 

 

 

по 3 сетки

16(8×2)

-

-

-

по 4 сетки

-

20(20×2)

20(10×2)

-

по 8 сеток

-

-

-

40(20×2)

2.4 Уборные (с умывальником в шлюзе)

10(5×2)

10(5×2)

10(5×2)

20(10×2)

3 Инвентарная

8

8

8

8

4 Комната инструктора

10

10

10

10

5 Комната медицинской сестры

12

12

12

12

6 Технические помещения*

 

 

 

 

6.1 Лаборатория анализа воды

10

10

10

10

6.2 Хлораторная

8

8

10

10

6.3 Склад хлора

6

6

6

6

7 Массажный кабинет**

18

30

40

50

8 Парильня (сауна)***

14

24

42

56

8.1 Раздевальная

8+12

16+24

18+36

32+48

8.2 Душевые

13

20

32

48

8.3 Комната отдыха

24

30

24x2

24x3

Итого:

401

606

932

1248

* Состав и площадь помещений определяются в зависимости от принятого инженерного оснащения бассейна.

** Предусматривается в соответствии с заданием на проектирование.

*** Наряду с сауной допускается размещение русской и восточной бань при соответствующей корректировке площадей помещений.

Таблица 8 - Помещения административно-хозяйственной группы

Наименование помещений

Площадь помещений, м2, при расчетном числе посетителей, чел.

50

100

150

200

300

Вестибюль с гардеробом верхней одежды для посетителей

30

50

70

90

110

Касса

6

6

10

10

10

Регистратура

8

10

10

12

12

Помещения администрации*

20

20

30

30

40

Инструкторская

12

12

12

12

20

Комната персонала

15

15

20

20

30

Уборные

10(5×2)

12(6×2)

20(10×2)

24(12×2)

40(20×2)

Хозяйственные кладовые

8

10

12

15

20

Итого:

109

135

184

213

282

* Число помещений уточняется заданием на проектирование.

4.10 Для обеспечения возможности проведения отдельных досугово-развлекательных и спортивно-оздоровительных мероприятий на свежем воздухе необходимо предусматривать открытые площадки и плоскостные сооружения, территориально связанные с объектами, предназначенными для досуговой и физкультурно-оздоровительной деятельности людей старшего возраста.

Открытые площадки и плоскостные сооружения на озелененных земельных участках могут быть объединены в группы плоскостных функциональных элементов, наборы которых в зависимости от конкретных условий можно выбирать из перечня, приведенного в таблице 9.

Таблица 9 - Физкультурно-спортивные площадки

Наименование спортивных площадок

Площадь помещений, м2, при расчетном числе посетителей, чел.

20-30

30-50

50-100

Городки

375

(15×5 м)

375

(15×25 м)

375

(15×25 м)

Площадка для бадминтона

120

(8×15 м)

120

(8×15 м)

120

(8×15 м)

Площадка для мини-волейбола

128

(8×16 м)

-

-

Площадка для волейбола

-

360

(15×24 м)

360

(15×24 м)

Площадка для настольного тенниса

35

(4,5×7,8 м)

35

(4,5×7,8 м)

35

(4,5×7,8 м)

Гимнастический городок

-

150

300

Площадка для мини-футбола

-

-

450

(18×25 м)

Итого с учетом площади под озеленением, проходами, навесами и т.п.

658

1040

1640

5 Размещение и взаимосвязь помещений

5.1 К проектируемым группам помещений для досуговой и физкультурно-оздоровительной деятельности людей старшего возраста, среди которых могут быть инвалиды, необходимо предусматривать устройства и мероприятия для удобного доступа в эти помещения.

К таким элементам безопасности и комфорта относятся: пандусы при входах в здание, двери и тамбуры, обеспечивающие проезд и разворот инвалидных колясок, лифты необходимых размеров (в зданиях высотой более одного этажа), а также различные приспособления в основных и вспомогательных помещениях для инвалидов, пользующихся креслами-колясками.

5.2 Из фойе зрительного зала или из универсального зала желательно обеспечивать беспрепятственный выход на открытый участок, веранду, в зимний сад и т.п.

5.3 Помещения, в которых непосредственно проходят различные занятия людей старшего возраста, не должны быть проходными.

5.4 Кроме непосредственного сообщения зрительного зала с фойе, следует предусматривать сообщение с вестибюлем, независимо от фойе, для случаев одновременного проведения различных мероприятий в зрительном зале и фойе.

5.5 Помещения группы зрительного зала и помещения лекционно-кружковой группы должны быть отделены друг от друга фойе или группой вспомогательных помещений, чтобы обеспечить возможность их независимой эксплуатации.

5.6 Залы для физкультурно-оздоровительных занятий необходимо располагать на первых этажах. Такое размещение обеспечивает наиболее простую и безопасную эвакуацию людей старшего возраста путем сокращения числа лестниц и лифтов, упрощает конструкцию перекрытий и обеспечивает удобную подачу декораций в зрительные залы и спортивного сменяемого оборудования в спортивные залы.

5.7 В аудиториях вместимостью не менее 150 мест следует предусматривать экран, классную доску, а также место размером 1,5×2 м для установки проекционной аппаратуры.

5.8 Библиотечную группу с книжным фондом до 25 тыс. томов допускается размещать в одном помещении, а именно: читальный зал, помещение для выдачи книг на дом и книгохранилище, с разделением указанных частей помещения стеллажами или другими элементами оборудования.

5.9 В цокольном и подвальном этажах в соответствии с приложением 4 к СНиП 2.08.02 допускается размещать: гардеробные, душевые, санитарные узлы, вентиляционные системы, тепловые пункты, водомерные узлы, хлораторные, лаборатории анализа воды, радиоузлы, пункты питания, кладовые, складские помещения (без горючих материалов), мастерские, помещения физкультурно-оздоровительных занятий (без трибун для зрителей), бильярдные, комнаты для игры в настольный теннис, книгохранилища, залы игровых автоматов, помещения для настольных игр, репетиционные залы. При этом, необходимо предусматривать выходы непосредственно наружу.

5.10 Коммуникационные пути и пространства, обеспечивающие непрерывность связей между входами, местами обслуживания, отдыха и выходами, должны быть доступны посетителям с различными ограничениями в передвижении, безопасны и пригодны для кратковременного отдыха, оборудованы устройствами, облегчающими передвижение и получение своевременной информации и сигналов тревоги. Эти пути должны быть по возможности короткими и геометрически простыми.

5.11 При перепаде высот на путях движения и при входах в здания следует создавать равные условия доступности и комфорта для всех категорий посетителей в соответствии с требованиями СНиП 35-01.

5.12 В соответствии со СНиП 21-01 и учетом класса функциональной пожарной опасности помещения для досуговых (Ф2.1) и физкультурно-оздоровительных (Ф3.6) занятий при размещении их в зданиях иного назначения должны быть отделены противопожарными преградами.

5.13 Каждый этаж здания досуговой и физкультурно-оздоровительной деятельности или изолированная группа помещений, находящихся в здании другого назначения, должны иметь не менее двух эвакуационных выходов с учетом требований приложения 5 СНиП 35-01.

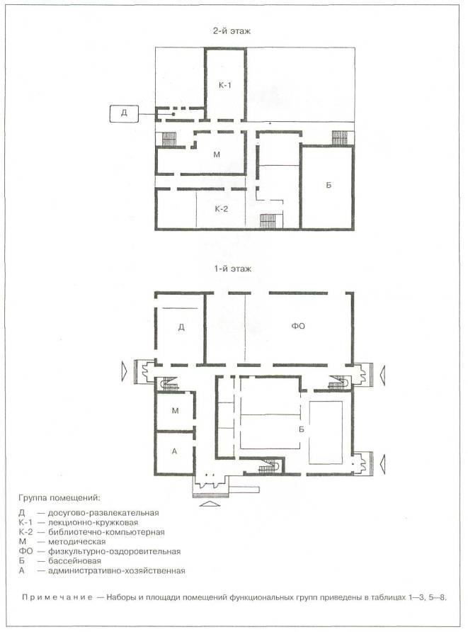
5.14 Примеры проектирования на базе ориентировочных наборов помещений для досугово-развлекательных занятий, для культурной деятельности и для физкультурно-оздоровительных занятий приведены на рисунках Б.1 - Б.4 приложения Б.

ПРИЛОЖЕНИЕ А

ТРЕБОВАНИЯ К АКУСТИКЕ ПОМЕЩЕНИЙ

Таблица А.1 - Набольшие уровни звукового давления, возникающего в помещениях, и допустимые уровни звукового давления, проникающего в помещения

Помещения

Набольший уровень звукового давления, дБ, возникающего в помещениях

Допускаемый уровень звукового давления, дБ, проникающего в помещения

1 Зрительный зал, зал-аудитория, звукоаппаратная

95

35

2 Фойе, гостиная, курительная, бильярдная

85

45

3 Сцена

95

30

4 Кинопроекционная

80

50

5 Речевая кабина

80

25

6 Комнаты для работы кружков, репетиционный зал

85

35

7 Танцевальный зал

95

50

8 Читальный зал

70

35

Таблица А.2 - Допустимые уровни звукового давления, дБ, проникающего в помещения

Помещения

Среднегеометрическая частота октавных полос, Гц

Уровень звука, ДБА

63

125

250

500

1000

2000

4000

8000

Уровень звукового давления, дБ

1 Спортивные залы, предназначенные для видов спорта, требующих музыкального сопровождения

71

61

54

49

45

42

40

38

50

2 Остальные спортивные залы, залы для подготовительных занятий и залы крытых бассейнов

79

70

63

58

55

52

50

49

60

3 Методические кабинеты, учебные классы

63

52

45

39

35

32

30

28

40

ПРИЛОЖЕНИЕ Б

Иллюстрации

Рисунок Б.1 - Приспособление здания школы под досугово-оздоровительный центр (типовой проект 224-01-686.90)

Рисунок Б.2 - Проектное решение досугово-оздоровительного центра

Рисунок Б.З - Проектное решение консультационно-методического центра

Рисунок Б.4 - Пример пристройки досугово-оздоровительного блока к дому-интернату

Ключевые слова: лица старшего возраста, досугово-оздоровительный центр, группы помещений: досуово-развлекательные, библиотечно-компьютерные, самодеятельного творчества, методические, физкультурно-оздоровительные, бассейновые, административно-хозяйственные

 

 




ГОСТЫ, СТРОИТЕЛЬНЫЕ и ТЕХНИЧЕСКИЕ НОРМАТИВЫ.
Некоммерческая онлайн система, содержащая все Российские Госты, национальные Стандарты и нормативы.
В Системе содержится более 150000 файлов нормативно-технической документации, действующей на территории РФ.
Система предназначена для широкого круга инженерно-технических специалистов.

Рейтинг@Mail.ru Яндекс цитирования

Copyright © www.gostrf.com, 2008 - 2026