Крупнейшая бесплатная информационно-справочная система онлайн доступа к полному собранию технических нормативно-правовых актов РФ. Огромная база технических нормативов (более 150 тысяч документов) и полное собрание национальных стандартов, аутентичное официальной базе Госстандарта. GOSTRF.com - это более 1 Терабайта бесплатной технической информации для всех пользователей интернета. Все электронные копии представленных здесь документов могут распространяться без каких-либо ограничений. Поощряется распространение информации с этого сайта на любых других ресурсах. Каждый человек имеет право на неограниченный доступ к этим документам! Каждый человек имеет право на знание требований, изложенных в данных нормативно-правовых актах!

  


 

Система нормативных документов в строительстве

ТЕРРИТОРИАЛЬНЫЕ СТРОИТЕЛЬНЫЕ НОРМЫ
РЕСПУБЛИКИ САХА (ЯКУТИЯ)

ОБЩЕОБРАЗОВАТЕЛЬНЫЕ ШКОЛЫ

ТСН 31-328-2004

Республики Саха (Якутия)

МИНИСТЕРСТВО СТРОИТЕЛЬСТВА И ПРОМЫШЛЕННОСТИ
СТРОИТЕЛЬНЫХ МАТЕРИАЛОВ РЕСПУБЛИКИ САХА (ЯКУТИЯ)

Якутск

2004

ПРЕДИСЛОВИЕ

1 Разработаны: Государственным унитарным предприятием «Якутский проектный научно-исследовательский институт строительства» (ГУП ЯкутПНИИС, г. Якутск); Акционерным обществом открытого типа «Центральный научно-исследовательский и проектно-экспериментальный институт по гражданскому строительству» (ОАО ЦНИИЭПгражданстрой, г. Москва)

2 Внесены: Министерством строительства и промышленности строительных материалов Республики Саха (Якутия)

3 Согласованы: Министерством образования Республики Саха (Якутия), Государственным комитетом Республики Саха (Якутия) по санитарно-эпидемиологическому надзору, Управлением государственного пожарного надзора Министерства по делам гражданской обороны, чрезвычайным ситуациям и ликвидации последствий стихийных бедствий Республики Саха (Якутия)

4 Утверждены и введены в действие Приказом Министерства строительства и промышленности строительных материалов Республики Саха (Якутия) от 31.05.2004 г. № 63а

5 Изданы по решению НТС Министерства строительства и промышленности строительных материалов Республики Саха (Якутия), протокол № 2 от 27.05.2004

6 Зарегистрированы Госстроем России от 19.04.2004 г. № 9-29/352а

СОДЕРЖАНИЕ

1 область применения. 3

2 нормативные ссылки. 3

3 термины, определения и сокращения. 4

4 общие положения. 6

5 требования к организации сети городских и сельских школ с учетом особенностей расселения. 7

6 требования к типам школ для городских и сельских поселений, включая школы малокомплектные и с малой наполняемостью классов. 9

7 требования к размещению и зонированию участков городских и сельских школ. 10

8 требования к функциональным группам, составу и площадям помещений. 11

9 объемно-планировочные решения с учетом климатических условий. 13

10 противопожарные требования к зданиям школ и требования к оповещению о пожаре. 15

11 требования к внутренней среде зданий. 16

Эргономические параметры размещения мебели и оборудования. 16

Естественное и искусственное освещение, инсоляция и ориентация помещений. 17

Водоснабжение и канализация. 19

Отопление и вентиляция. 20

Электротехнические и слаботочные устройства. 21

Внутренняя отделка помещения. 23

Требования к энергосбережению.. 23

Приложение а Классификация видов школ. 23

Приложение б Организация сети городских и сельских школ. 24

Приложение в Примерная номенклатура видов и типов зданий школ для городских и сельских поселений. 25

Приложение г Площади основных зон земельных участков городских и сельских школ. 27

Приложение д Функциональные группы и примерный состав помещений. 29

Приложение е 31

Состав и расчетные показатели площадей помещений начальных школ, включая малокомплектные. 31

Состав и расчетные показатели площадей помещений основных школ, включая школы с малой наполняемостью классов. 32

Состав и расчетные показатели площадей помещений старшей школы.. 32

Состав и расчетные показатели площадей специализированных помещений основной и старшей школы.. 32

Состав и расчетные показатели площадей помещений изучения технологий и трудового обучения. 33

Состав и расчетные показатели площадей помещений центра информации-библиотеки (группа методического центра-библиотеки) 34

Состав и расчетные показатели площадей вестибюля-гардероба, административно-хозяйственных помещений, медицинских комнат. 34

Состав и расчетные показатели площадей помещений рекреационного центра. 35

Состав и расчетные показатели помещений группы зрительного (универсального) зала. 35

Состав и расчетные показатели площадей вспомогательных помещений при спортивных залах. 36

Состав и расчетные показатели площадей помещений художественного (эстетического) воспитания. 36

Состав и расчетные показатели площадей помещений блока технического творчества (кружковые помещения) 37

Приложение ж Размеры и площади учебно-спортивных залов. 37

Приложение и Состав и площади помещений кухонного блока с подсобными помещениями. 38

Приложение к Расчетные показатели площадей санитарных узлов и количества санитарных приборов. 38

Приложение л Уровни освещенности при искусственном освещении помещений. 39

Приложение м Ориентация окон учебных помещений. 39

Приложение н Расчетная температура воздуха и кратность обмена воздуха в помещениях. 40

Приложение п Организация пространства и размещение мебели и оборудования учебных помещений для разных форм ведения занятий. 41

Приложение р Сведения о разработчиках территориальных строительных норм.. 43

ВВЕДЕНИЕ

В настоящих территориальных строительных нормах приведены основные положения, регламентирующие архитектурно-планировочные решения при проектировании общеобразовательных школ, включая школы с уменьшенной наполняемостью и малокомплектные, и учитывающие климатические условия на территории Республики Саха (Якутия).

При разработке нормативного документа за основу приняты положения, изложенные в ТСН 31-307-96 (МГСН 4.07-96), работы ОАО «ЦНИИЭПгражданстрой», ГУП «ЯкутПНИИС», Министерства строительства и промышленности строительных материалов Республики Саха (Якутия), Министерства образования Республики Саха (Якутия), а также учтены положения закона Российский Федерации «Об образовании» в редакции от 13.01.1996 г. № 12-ФЗ, с изменениями и дополнениями «Собрание законодательства Российский Федерации», 2002 г., № 7), а также положения Федеральной целевой программы «Социальное развитие села до 2010 года», Закон Республики Саха (Якутия) «Об образовании» от 23.05.1995 г.

СИСТЕМА НОРМАТИВНЫХ ДОКУМЕНТОВ В СТРОИТЕЛЬСТВЕ

ТЕРРИТОРИАЛЬНЫЕ СТРОИТЕЛЬНЫЕ НОРМЫ РЕСПУБЛИКИ САХА (ЯКУТИЯ)

ОБЩЕОБРАЗОВАТЕЛЬНЫЕ ШКОЛЫ

Дата введения 2004-07-01

1 ОБЛАСТЬ ПРИМЕНЕНИЯ

1.1 Настоящие территориальные строительные нормы разработаны для Республики Саха (Якутия) как дополнение к нормативным документам в строительстве, действующим на территории республики, и распространяются на проектирование вновь строящихся и реконструируемых зданий школ независимо от форм собственности в городских и сельских поселениях.

1.2 Настоящие нормы устанавливают основные положения и требования к размещению школ и формированию школьной сети с учетом особенностей сложившейся системы расселения в республике, к земельному участку, функциональным группам, типам школьных зданий, включая малокомплектные и школы с уменьшенной наполняемостью классов, к составу и площадям помещений разных типов школ, объемно-планировочным решениям с учетом климатических особенностей, освещению, инженерному оборудованию, внутренней среде школьных зданий, их пожарной безопасности и противопожарному оповещению; нормы включают также гигиенические требования к условиям обучения.

2 НОРМАТИВНЫЕ ССЫЛКИ

СНиП 2.04.01-85 Внутренний водопровод и канализация зданий

СНиП 2.04.05-91* Отопление, вентиляция и кондиционирование

СНиП 2.04.07-86* Тепловые сети

СНиП 2.07.01-89* Градостроительство. Планировка и застройка городских и сельских поселений

СНиП 2.08.02-89* Общественные здания и сооружения

СНиП 21-01-97* Пожарная безопасность зданий и сооружений

СНиП 23-01-99* Строительная климатология

СНиП 23-02-2003 Тепловая защита зданий

СНиП 23-05-95* Естественное и искусственное освещение

СНиП 35-01-2001 Общественные здания. Доступность маломобильных групп населения

СН 441-72* Указания по проектированию ограждений площадок и участков предприятий, зданий и сооружений

НПБ 88-01 Установки пожаротушения и сигнализации. Нормы и правила проектирования

ППБ 01-03 Правила пожарной безопасности в Российской Федерации

НПБ 104-03 Системы оповещения и управления эвакуацией людей при пожарах в зданиях и сооружениях

НПБ 110-03 Перечень зданий, сооружений, помещений и оборудования, подлежащих защите автоматическими установками пожаротушения и автоматической пожарной сигнализацией

ПУЭ Правила устройства электроустановок

СанПиН 2.4.2.1178-02 Гигиенические требования к условиям обучения в общеобразовательных учреждениях

МГСН 4.05-95 Школы-интернаты для детей-инвалидов

МГСН 4.06-96 Общеобразовательные учреждения с дополнениями № 1 (1999 г.) и № 2 (2000 г.)

ТСН 23-343-2002 PC (Я) Теплозащита и энергопотребление жилых и общественных зданий

3 ТЕРМИНЫ, ОПРЕДЕЛЕНИЯ И СОКРАЩЕНИЯ

В настоящем стандарте применены следующие термины с соответствующими определениями

3.1 начальная общеобразовательная школа: Школа, организуемая как самостоятельное учреждение, а также в составе основной или средней общеобразовательной школы (срок обучения в начальной школе 4 года).

3.2 основная общеобразовательная школа: Школа, организуемая как самостоятельное общеобразовательное учреждение с 1 по 9 класс включительно.

3.3 средняя (полная) общеобразовательная школа: Школа, организуемая как самостоятельное учреждение III ступени или как имеющая в своем составе школы I и II ступеней. Срок обучения - 2 года или 11 лет.

3.4 школа с уменьшенной наполняемостью классов (начальная, основная, средняя): Школа, имеющая в своем составе полный набор классов, но с наполняемостью менее 25 учащихся, обычно на 12 (средняя школа на 132 учащихся) и 18 (средняя школа на 198 учащихся).

3.5 малокомплектная общеобразовательная школа (начальная, основная, средняя): Школа, имеющая в своем составе 1 - 2 комплекта младших возрастов с наполняемостью классов 12 и меньше учащихся. Организуется как самостоятельная школа I ступени, или как школа I и II ступеней, или I, II и III ступеней.

3.6 средняя общеобразовательная школа с углубленным изучением отдельных предметов: Общеобразовательное учреждение, осуществляющее образовательный процесс, реализующее учебные программы среднего (полного) общего образования, в том числе и программы углубленного изучения одного или нескольких предметов (иностранные языки, физика, математика (физико-математика), химия, биология (биолого-химия), литература, история, экономика и другие предметы). С восьмых и девятых классов II ступени начинает осуществляться дифференцированный подход в работе со школьниками и постепенный переход на углубленные программы. Существует как самостоятельное звено (III ступень) или имеет в своем составе школу I или I - II ступеней образования. Срок обучения от 2 до 11 лет.

3.7 общеобразовательная школа-лаборатория: Учреждение, реализующее образовательные программы общего (полного) среднего образования и экспериментальные программы. Состав помещений и режим обучения разрабатываются по специальной авторской программе.

3.8 учебно-воспитательный комплекс: Общеобразовательное учреждение в составе общеобразовательной школы и дошкольного учреждения. Из соображений санитарно-эпидемиологического порядка рекомендуется для небольших по вместимости учреждений и старших групп детского сада. Например, начальная школа на 2 класса-комплекта с детским садом на 25 мест и т.п.

3.9 гимназия: Общеобразовательное учреждение, реализующее общеобразовательные программы среднего (полного) общего образования, дающее обучающимся, как правило, среднее гуманитарное образование углубленного типа со знанием двух-трех иностранных языков.

3.10 лицей: Общеобразовательное учреждение, реализующее общеобразовательные программы среднего (полного) общего образования, дающее обучающимся углубленное изучение ряда предметов и профессиональную подготовку и обеспечивающее непрерывность среднего и высшего образования. Лицей организуется, как правило, как учреждение III ступени, но может с 8 - 9 класса. Срок обучения 2 или 4 года.

3.11 вечернее (сменное) общеобразовательное учреждение: Школа, организуемая как самостоятельное учреждение, включающее обучение на II и III ступенях образования или только на III ступени.

3.12 параллель классов: Число классных групп одного возраста.

3.13 организационно-педагогическая структура: Соотношение параллелей классов школ I, II и III ступеней обучения:

а) начальная школа (I ступень)

1:0:0 (параллель), 2:0:0 и т.д.

б) основная школа (I, II ступени)

1:1:0 (параллели), 2:2:0 и т.д.,

основная школа (II ступень)

0:1:0 (параллели), 0:2:0 и т.д.

в) средняя школа полная (I, II и III ступени)

1:1:1 (параллели), 2:2:2 и т.д.,

средняя школа (II и III ступени)

0:1:1 (параллели), 0:2:2 и т.д.,

средняя школа (III ступень)

0:0:1, 0:0:2 и т.д.

3.14 автономная школа: Школа с равным числом параллелей классов по всем возрастным группам.

Пример -

3.15 сетевая школа: Школа с неравным числом параллелей классов (меньшим в начальной школе и большим в старшей). Рассчитана на обслуживание близ расположенных школ низшей ступени, в основном в сельских поселениях.

Примеры

3.16 формы ведения занятий:

Фронтальные занятия - все учащиеся сидят лицом к классной доске и учителю.

Групповые занятия - занятия с разделением классной группы на подгруппы по 8, 6 или 4 человека, в соответствии с которыми группируются ученические столы. При этом учащиеся сидят лицом друг к другу и выполняют коллективные задания.

Индивидуальные занятия - занятия с рассредоточением учащихся по всему классному помещению для самостоятельного решения поставленных учителем задач. Учащиеся могут быть обращены лицом на периметр стен с закрепленным на них дидактическим материалом или проводить занятия с ТСО.

Смешанные формы ведения урока - одновременное ведение фронтальных, групповых и индивидуальных форм работы.

3.17 характеристики основных помещений:

Классное помещение - помещение для учащихся начальной школы.

Учебный кабинет - помещение для учащихся основной и старшей школы для проведения занятий по разным дисциплинам.

Специализированный кабинет - помещение для углубленных профильных курсов или по узкой дисциплине.

Лаборатория - помещение для занятий с демонстрацией опытов.

Практикум (лаборатория-практикум) помещение для лабораторных работ и практикумов с частью класса.

Лаборантская - помещение для хранения и подготовки оборудования к опытам учителем или лаборантом.

Лаборантская-практикум - помещение с совмещенной функцией лаборантской и практикума.

Ресурсный центр - помещение для учебной секции, где сосредоточены наглядные учебные пособия и ТСО.

Учебная секция - группа классных помещений (учебных кабинетов), рекреация, ресурсный центр и санузлы.

3.18 быстровозводимая школа: Школа, построенная с применением конструктивной системы, позволяющей построить здание школы за один строительный сезон.

3.19 комбинированное освещение: Сочетание бокового естественного освещения с верхним естественным освещением.

3.20 смешанное освещение: Сочетание бокового естественного освещения с искусственным.

3.21 городские поселения: Города, поселки

3.22 сельские поселения: Села, центры наслегов, производственные участки, заимки и т.д.

3.23 школы-интернаты: Общеобразовательные учреждения, состоящие из общеобразовательной школы и интерната (спального корпуса) для проживания учащихся во время учебы.

СОКРАЩЕНИЯ

И - Интернат

КЕО - Коэффициент естественной освещенности

ОУ - Общеобразовательное учреждение

П - Профильное обучение

У - Учебная группа помещений

О - Общешкольная группа помещений

ТСО - Технические средства обучения

4 ОБЩИЕ ПОЛОЖЕНИЯ

4.1 Правовая основа разработки настоящих норм для Республики Саха (Якутия) как субъекта Российской Федерации предусмотрена статьей 53 «Градостроительного Кодекса Российской Федерации».

4.2 Сеть общеобразовательных учреждений включает общеобразовательные школы I, II и III ступеней, а также гимназии, лицеи, школы-интернаты и др. Номенклатура видов общеобразовательных учреждений (далее - школ) принимается в соответствии с их классификацией, приведенной в приложении А.

4.3 Разные типы школ обеспечивают общеобразовательный процесс в соответствии с программами трех уровней образования:

- 1 ступень - начальное общее образование (1 - 4 классы),

- II ступень - основное общее образование (5 - 9 классы),

- III ступень - среднее (полное) образование (10 - 11 или 9 - 11 классы).

4.4 В разных градостроительных условиях должна быть обеспечена связь ступеней: в городских поселениях - при размещении школ в квартале, микрорайоне, жилом районе; в сельских поселениях - при размещении школ в селах, центрах наслегов и центрах улусов (районов).

4.5 Наполняемость класса устанавливается до 25 учащихся. В условиях реконструкции застройки и сложившегося фонда школ допускается увеличивать наполняемость класса до 30 учащихся. В сельских школах наполняемость класса-комплекта, объединяющего две возрастные группы, принимается до 20 учащихся; в основных и средних школах наполняемость класса, в зависимости от сложившихся условий, может приниматься 10, 12, 15, 16 и 18 учащихся.

4.6 Оптимальная вместимость городских общеобразовательных учреждений не должна превышать 1000 учащихся. Вместимость сельских школ не должна превышать: для начальных школ - 80 учащихся, для школ I, II ступеней - 250 учащихся, для школ I, II, III ступеней - 550 учащихся.

4.7 При наполняемости классов свыше 18 учащихся при проведении занятий по иностранному языку, по русскому языку в национальной школе, по якутскому языку в русскоязычной школе в 1 - 11 классах, по трудовому обучению в 5 - 11 классах, по физической культуре в 7 - 11 классах, по информатике и вычислительной технике, физике, химии и биологии во время практических занятий классная группа делится на две подгруппы. В школах с профильным обучением, лицеях и гимназиях для проведения практических работ класс может делиться на несколько подгрупп, исходя из дифференцированных или интегрированных программ обучения, а также для организации групповых работ и самостоятельных занятий учащихся. Число мест в помещениях студий и кружков принимается равным 8 - 12.

4.8 Структуру и вместимость зданий школ следует принимать с учетом приложений Б и В.

4.9 Площади помещений разных типов школ приведены в таблицах Е.1 - Е.12 (приложение Е).

5 ТРЕБОВАНИЯ К ОРГАНИЗАЦИИ СЕТИ ГОРОДСКИХ И СЕЛЬСКИХ ШКОЛ С УЧЕТОМ ОСОБЕННОСТЕЙ РАССЕЛЕНИЯ

5.1 Общеобразовательные школы следует рассматривать как основное звено общей системы учебно-воспитательных учреждений, включающей, помимо общеобразовательных, внешкольные учреждения и учреждения для трудового обучения.

5.2 Виды и типы общеобразовательных школ различаются организационно-педагогическими структурами (соотношением возрастных параллелей учащихся), содержанием, формами и методами организации учебного процесса и направленностью профильного обучения.

5.3 В городских поселениях здания общеобразовательных школ размещаются на территориях жилого квартала, микрорайона или жилого района. Здание школы должно быть удалено от красных линий магистральных улиц с регулярным движением транспорта на расстояние не менее 25 м. Допускается расположение общеобразовательных школ на территории, прилегающей к внутриквартальным проездам, на расстоянии не менее 15 м.

5.4 Радиус обслуживания городскими школами от дома до общеобразовательной школы в первом климатическом районе (I подзона) для учащихся I - II ступени обучения предусматривается 0,3 км пешеходной доступности; в первом климатическом районе (II подзона) - 0,4 км, для старших школьников - 0,5 км. Допускается размещение общеобразовательных учреждений на расстоянии транспортной доступности для учащихся I ступени - 15 мин. (в одну сторону), для учащихся II и III ступеней - не более 50 минут (в одну сторону). Климатические районы и подзоны определяются по СНиП 23-01.

5.5 В сельских поселениях рекомендуется строить школьную сеть на основе сочетания:

- начальных, основных и средних школ;

- основных и средних школ;

- начальных школ с уменьшенной наполняемостью класса, объединенных с детским садом (учебно-воспитательный комплекс);

- средних школ.

5.6 В каждом поселении рекомендуется предусматривать школу. При этом начальные школы следует проектировать для обслуживания одного или группы сел с числом жителей не менее 150 при условии соблюдения пешеходного радиуса обслуживания 500 м или его временного эквивалента, не превышающего 15 мин. транспортного движения.

Основные школы в малых и средних селах следует проектировать для обслуживания не менее 500 человек населения, а средние - не менее 1000, учитывая при этом обслуживание ими школ низовых звеньев.

В малых и средних селах рекомендуется проектировать школы с уменьшенной наполняемостью классов.

5.7 Для школ в сельских поселениях, в соответствии с градостроительными нормами, расстояние от стен здания до красной линии принимается 10 м, а расстояние до жилых домов и других зданий определяется по нормам инсоляции и освещенности.

5.8 Радиусы обслуживания сельскими школами принимаются: для учащихся I ступени не более 2 км пешком и не более 15 мин. (в одну сторону) при транспортном обслуживании. Для учащихся II и III ступеней радиус пешеходной доступности не должен превышать 4 км, а при транспортном обслуживании - не более 30 мин. Предельный радиус обслуживания учащихся II - III ступеней не должен превышать 15 км.

5.9 Транспортному обслуживанию подлежат учащиеся, проживающие от школы на расстоянии свыше 1 км. Подвоз сельских школьников осуществляется специальным школьным транспортом при расстоянии более 3 км. Предельный пешеходный подход учащихся к месту сбора на остановке не должен быть более 500 м. Остановка для транспорта оборудуется навесом, огражденным с трех сторон, защищается от проезжей части дороги барьером высотой не менее 1,0 м и должна иметь твердое покрытие и обзорность не менее 250 м.

5.10 Для учащихся, проживающих на расстоянии свыше предельно допустимого транспортного обслуживания, а также при транспортной недоступности в период неблагоприятных погодных условий, предусматривается пришкольный интернат вместимостью, определяемой заданием на проектирование.

5.11 Принципы организации сетей зданий школ в городах и сельской местности приведены в приложении Б.

5.12 Номенклатура видов и типов зданий общеобразовательных школ приведена в приложении В.

5.13 Число мест в здании общеобразовательной школы определяется по местным демографическим условиям. При этом следует руководствоваться ориентировочной демографической структурой населения для условий городов (110 мест на 1000 жителей) и сельской местности (120 мест на 1000 жителей), принимая следующие членения возрастных групп: 6; 7 - 15; 16 - 17 лет.

5.14 Для расчета вместимости зданий школ следует предусматривать число мест для 100 % учащихся младшего школьного возраста и до 75 % учащихся среднего и старшего школьного возраста при обучении в одну смену.

5.15 При расчете вместимости зданий школ следует учитывать все учебные помещения, кроме мастерских и спортивного зала.

5.16 Для модернизации сложившейся сети городских и сельских школьных зданий следует применять в застройке сетевые школы II и III ступеней обучения с нарастающим числом параллелей для обслуживания близ расположенных школ I ступени.

5.17 В сельской местности здания школ рекомендуется проектировать с выделенными помещениями многофункционального назначения с культурно-оздоровительными функциями для обслуживания как учащихся, так и населения села.

5.18 Планировочные решения школ должны быть компактными, предусматривать возможность универсального использования проектируемых помещений, максимально возможную унификацию блоков, а также возможность поочередного строительства, расширения школы в перспективе пристроем дополнительных блоков к неизменяемой части.

6 ТРЕБОВАНИЯ К ТИПАМ ШКОЛ ДЛЯ ГОРОДСКИХ И СЕЛЬСКИХ ПОСЕЛЕНИЙ, ВКЛЮЧАЯ ШКОЛЫ МАЛОКОМПЛЕКТНЫЕ И С МАЛОЙ НАПОЛНЯЕМОСТЬЮ КЛАССОВ

6.1 Типы школьных зданий должны соответствовать принятой структуре общеобразовательной школы: I ступень - начальная школа (4 года обучения), II ступень - основная школа (5 лет обучения), III ступень - средняя школа (2 года обучения).

6.2 Виды школьных зданий по возрастным, организационно-педагогическим структурам, формам и методам организации учебно-воспитательного процесса и профиля подготовки:

- общеобразовательные школы - начальная, основная и средняя;

- школы с углубленным изучением отдельных предметов;

- общеобразовательные школы-лаборатории (авторские школы);

- частные школы;

- гимназии;

- лицеи;

- вечерние (сменные) образовательные учреждения;

- учебно-воспитательные комплексы, объединяющие школу и детское учреждение.

Примерная номенклатура видов и типов зданий школ для городских и сельских поселений приведена в приложении А.

6.3 В сельских поселениях в целях рационального решения сети зданий школ и педагогической целесообразности организации учебно-воспитательного процесса наряду со школами с нормативной наполняемостью 25 учащихся используются здания школ с уменьшенной наполняемостью классов, в том числе малокомплектные.

6.4 Здания общеобразовательных школ следует проектировать, как правило, высотой в 2 - 3 этажа.

6.5 Учебные помещения не размещаются в подвальных и цокольных этажах здания.

6.6 Новые виды общеобразовательных учреждений (гимназии, лицеи, частные школы и т.п.) размещаются либо в отдельных зданиях, либо на базе функционирующих учреждений в отдельных отсеках с изолированным входом.

7 ТРЕБОВАНИЯ К РАЗМЕЩЕНИЮ И ЗОНИРОВАНИЮ УЧАСТКОВ ГОРОДСКИХ И СЕЛЬСКИХ ШКОЛ

7.1 Для общеобразовательных школ предусматривается самостоятельный земельный участок. Площадь участка зависит от вместимости школы и принимается в соответствии с требованиями к планировке и застройке городских и сельских поселений по СНиП 2.07-01 Ориентировочный размер площади участка школы (на одного учащегося):

50 кв. м - в школах от 40 до 400 учащихся;

60 кв. м - в школах от 400 до 500 учащихся;

50 кв. м - в школах от 500 до 600 учащихся;

40 кв. м - в школах от 600 до 800 учащихся;

33 кв. м - в школах от 800 до 1100 учащихся.

Исходя из ситуации, допускается уменьшать указанные размеры земельных участков школ на 20 - 40 %. В отдельных случаях участки школ в сельских поселениях могут быть увеличены на 30 %, если для организации учебно-опытной работы не предусмотрены специальные участки на территории поселения.

7.2 На земельных участках общеобразовательных школ могут предусматриваться следующие зоны: учебно-опытная, физкультурно-спортивная, отдыха, хозяйственная.

Площади основных зон участков общеобразовательных школ приведены в приложении Г.

7.3 К отдельным зонам предъявляются следующие требования:

- учебно-опытная зона, как правило, предусматривается в сельских школах и составляет не более 25 % площади участка. В городских школах она может быть представлена метеорологической и географической площадками, а также отделом цветочно-декоративных растений, включаемым в состав площади озеленения территории школы. Для школ с биологическим уклоном в номенклатуру закрытых сооружений помимо теплиц и оранжерей допускается включать сооружения для хранения малогабаритной сельскохозяйственной техники. На территории учебно-опытной зоны рекомендуется предусматривать: отдел начальных классов, отдел полевых и овощных культур, отдел цветочно-декоративных растений, метеорологическую и географическую площадку;

- в физкультурно-спортивной зоне рекомендуется предусматривать: легкоатлетическое спортядро с круговой беговой дорожкой длиной 250 м, баскетбольную, волейбольную и теннисную площадки, комбинированную площадку для спортивных игр и национальных видов спорта (площадку для спортивных единоборств). Для основных школ допускается принимать легкоатлетическое спортядро с круговой беговой дорожкой длиной 200 м. В городах в условиях реконструкции сложившейся застройки допускается уменьшать физкультурно-спортивную зону на размер легкоатлетического спортядра, с сохранением остальных элементов спортзоны.

Физкультурно-спортивную зону не разрешается размещать со стороны окон классных помещений. Площадки для игр с мячом и метания спортивных снарядов следует располагать на расстоянии не менее 25 м от окон здания, а при наличии ограждения высотой не менее 3 м - на расстоянии 15 м. Площадки для занятий другими видами спорта располагаются на расстоянии не менее 10 м.

Спортивно-игровые площадки должны иметь твердое покрытие.

- зона отдыха размещается вблизи зеленых насаждений в отдалении от спортивной и хозяйственной зон. Она включает площадки для подвижных игр и тихого отдыха. Эти площадки рекомендуется размещать вблизи главных выходов из здания. Допускается предусматривать использование площадок отдыха для проведения общешкольных мероприятий в виде торжественных сборов и «линеек»;

- хозяйственная зона располагается со стороны входа в производственные помещения столовой (буфета) на границе участка на расстоянии не менее 35 м от здания общеобразовательной школы, ограждается зелеными насаждениями и имеет отдельный въезд с улицы.

Территория хозяйственной зоны может быть использована для размещения зданий и сооружений инженерного обеспечения школы: котельной, трансформаторных и газораспределительных подстанций, емкостей для воды, канализационных сборников и т.д.

7.4 В неканализованных районах требуется строительство теплых туалетов по типу люфт-клозетов (с организацией вывоза нечистот). Пристраивать к зданиям общеобразовательных школ теплые туалеты через теплый переход по типу выгребных ям и люфт-клозетов допускается только при организации эффективной системы искусственной вытяжной вентиляции.

7.5 Мусоросборники следует устанавливать на бетонированной площадке на расстоянии не менее 25 м от окон и входа в столовую (буфет).

7.6 Въезды и входы на участок, проезды, дорожка к хозяйственным постройкам, к площадке для мусоросборников, а в сельских школах без канализации - к дворовым уборным покрываются асфальтом, бетоном или другим твердым покрытием. Подходы к зданию школы не менее чем на 100 м также имеют твердое покрытие.

7.7 Площадь озеленения должна составлять не менее 30 % общей площади участка школы. В площадь озеленения должны включаться площади зеленых насаждений учебно-опытной зоны, физкультурно-спортивной зоны и зоны отдыха, а также газонов и зеленых насаждений на территории школы.

7.8 На земельном участке школы должны предусматриваться круговые подъезды для пожарных машин к зданиям и доступ пожарных с автолестниц или автоподъемников в любое помещение.

7.9 На периферии участка школы или вблизи от него следует предусматривать стоянку автомашин для педагогов и сотрудников, преимущественно со стороны хозяйственной зоны, а в школах с выездной системой преподавания - площадку для автотранспорта, предназначенную для доставки учащихся и преподавателей.

7.10 Земельные участки общеобразовательных школ должны иметь ограждение по всему периметру высотой не менее 1,2 м в соответствии с требованиями СН 441 и предохранительные устройства (ворота, проходную и др.), препятствующие выбеганию учащихся на проезжую часть улицы.

7.11 В зоне главного входа рекомендуется предусматривать мощеную площадку для сбора учащихся и общешкольных мероприятий. Участок школы должен быть обустроен малыми архитектурными формами и освещен. Среднюю горизонтальную освещенность, учитывая протяженный период полярной ночи, следует проектировать в соответствии со СНиП 23-05.

8 ТРЕБОВАНИЯ К ФУНКЦИОНАЛЬНЫМ ГРУППАМ, СОСТАВУ И ПЛОЩАДЯМ ПОМЕЩЕНИЙ

8.1 Набор функциональных групп, состав и площади помещений общеобразовательных школ должны соответствовать их видам и типам, функционально-педагогической структуре и назначению.

8.2 Состав помещений общеобразовательных школ должен содержать учебную и общешкольную группы помещений и дифференцироваться на функциональные группы, приведенные в приложении Д.

8.3 Количество основных помещений классов, учебных кабинетов, учебных лабораторий для всех видов общеобразовательных школ принимается равным количеству учебных групп в соответствии с организационно-педагогической структурой.

8.4 Учащиеся I ступени в городских и сельских школах обучаются в закрепленных за каждым классом учебных помещениях, выделенных в отдельный блок.

8.5 Обучение учащихся II - III ступеней осуществляется по классно-кабинетной системе.

8.6 В сельской школе при малой наполняемости классов допускается использование учебных кабинетов по 2 дисциплинам. Наиболее благоприятным является следующее сочетание предметов: химия-биология, математика-черчение, черчение-рисование, история-география, литература-иностранный язык.

8.7 Расчётные показатели площади основных учебных помещений общеобразовательных школ принимаются не менее:

- 2,5 кв. м на одного учащегося при фронтальных формах занятий, 3,3 кв. м при групповых формах работы и индивидуальных занятиях;

- 2,8 кв. м на одного учащегося для лаборатории по естественным наукам;

- 6,0 кв. м на одно рабочее место в мастерских по изучению технологий и труда;

- 6,0 кв. м на одно рабочее место пользователей ПЭВМ с ВДТ на базе электроннолучевой трубки (ЭЛТ);

- 4,5 кв. м на одно рабочее место пользователей ПЭВМ с ВДТ на базе плоских дискретных экранов (жидкокристаллические, плазменные).

8.8 Рекомендуемые состав и площади отдельных функциональных групп помещений общеобразовательных школ приведены в таблицах Е.1 - Е.12 (приложение Е).

8.9 Общая площадь пола спортзалов принимается из расчета не менее 1,4 кв. м на 1 учащегося в школах вместимостью до 200 учащихся и не менее 1,0 кв. м на одного учащегося в школах вместимостью свыше 200 учащихся. Количество и размер залов определяется, исходя из назначения и типа здания. Спортивные залы рекомендуется размещать преимущественно на первом этаже. Размеры спортивных залов принимаются 9(15)´18´4,8 - 6,0 (Н) м, 12(15)´24´6,0 (Н) м.

В малокомплектных школах допускается проектировать малые залы для занятий оздоровительной гимнастикой.

В школах с уменьшенной наполняемостью классов допускается проектировать универсальные залы с совмещением функций спортивного и актового залов.

При проектировании спортивного зала школы в сельских поселениях рекомендуется предусматривать отдельный вход с вестибюлем и гардеробом (в соответствии с заданием на проектирование) для использования его жителями при проведении общепоселковых мероприятий.

8.10 При спортивных залах должны быть предусмотрены снарядные (в зависимости от площади спортзала), раздевальные для мальчиков и девочек, душевые, уборные для девочек и мальчиков, комната для инструктора.

В состав помещений физкультурно-спортивного назначения допускается включать помещение (зону), оборудованное тренажерными устройствами.

8.11 Размеры актового зала определяются числом мест из расчёта 0,7 кв. м на одно место и охвата 60 % общего количества учащихся школы, в малокомплектных школах - 100 %. При актовом зале школ вместимостью свыше 550 учащихся предусматриваются две артистические уборные, площадью не менее 10 кв. м каждая, склад декораций, бутафории и музыкальных инструментов, склад хранения костюмов, площадью 10 кв. м, кинопроекционная площадью 27 кв. м.

8.12 В школах с углубленным содержанием обучения, то есть для гимназий, лицеев, школ с углубленным изучением отдельных предметов, профилированных школ, школ с профильным обучением в старшей ступени следует предусматривать возможность использования актового зала в качестве лекционной аудитории, обеспечивающей обучение возрастной параллели учащихся, состоящей не более чем из трех классов.

8.13 Тип библиотеки зависит от вида общеобразовательной школы и ее вместимости.

Площадь читального зала библиотеки-информационного центра необходимо принимать из расчета не менее 0,3 кв. м на одного ученика.

8.14 Состав помещений медицинского пункта школы определяется исходя из вместимости школы. Расчетные показатели помещений медицинского персонала приведены в таблице Е.7 (приложение Е).

8.15 В общеобразовательных школах организуются горячее питание (завтраки). Питание рекомендуется организовать в столовой, работающей, как правило, на полуфабрикатах (допускается по местным условиям на сырье), а также в буфете-раздаточной. Столовые предусматриваются в школах с числом учащихся более 130 человек.

Выбор типа столовой по заданию на проектирование с соответствующим обоснованием.

Состав и площади помещений кухонного блока приведены в приложении И.

8.16 Площадь обеденного зала столовой следует принимать из расчета не менее 0,75 кв. м на одно посадочное место. Число посадочных мест определяется из расчета одной трети численности учащихся.

8.17 При столовых и буфетах устанавливаются умывальники из расчета один кран на 20 посадочных мест. Умывальники размещают в расширенных проходах, коридорах, ведущих в обеденный зал, или в отдельном помещении рядом с обеденным залом.

8.18 В сельских школах (средних и основных) требования к организации питания те же, что и в городских. В школах малой вместимости (до 80 учащихся) выделяются помещения для приема пищи с минимальным набором современного кухонного оборудования для разогрева пищи.

8.19 На каждом этаже должны размещаться санитарные узлы для мальчиков и девочек, оборудованные кабинами с дверями. Количество санитарных приборов определяется из расчёта 1 унитаз на 20 девочек, 1 умывальник на 30 девочек; 1 унитаз, 0,5 лоткового писсуара и 1 умывальник на 30 мальчиков. Площадь санитарных узлов для мальчиков и девочек следует принимать из расчета не менее 0,1 кв. м. на одного учащегося. Для персонала выделяется отдельный санузел. Для учащихся II и III ступеней организуются комнаты личной гигиены для девочек из расчета 1 кабина на 70 человек площадью не менее 3 кв. м.

Входы в санузлы не следует располагать напротив входа в учебные помещения или в непосредственной близости от них.

На каждом этаже предусматриваются помещения, оборудованные поддонами и подведенной к ним холодной и горячей водой, для хранения и обработки уборочного инвентаря, приготовления дезинфицирующих растворов.

8.20 В помещениях начальных классов, лабораториях, учебных кабинетах, мастерских, помещениях медицинского назначения, учительской, комнате технического персонала, как правило, предусматриваются умывальники.

8.21 Рекреации следует проектировать из расчета 2 кв. м на одного учащегося, как правило, в виде зальных помещений.

9 ОБЪЕМНО-ПЛАНИРОВОЧНЫЕ РЕШЕНИЯ С УЧЕТОМ КЛИМАТИЧЕСКИХ УСЛОВИЙ

9.1 Здания общеобразовательных школ проектируются не выше трех этажей. В поселениях, где на вооружении пожарных частей отсутствует специализированная автотехника (пожарные автолестницы или автоподъемники), проектировать не выше двух этажей.

9.2 Высота надземных этажей здания должна быть не менее 3,3 м (от пола до пола вышележащего этажа). Высота зрительного и спортивного залов принимается согласно приложению Ж; зрительного зала и лекционной аудитории - по технологическим требованиям.

9.3 Объёмно-планировочная структура здания должна быть компактной и соответствовать его назначению.

9.4 Архитектурно-типологическая структура здания в соответствии с функциональным зонированием должна иметь следующую пространственную организацию:

- помещения школы следует подразделять на две основные группы - учебную и общешкольную, в соответствии (приложение Д);

- учебная группа помещений должна быть дифференцирована на I, II и III ступени обучения и технологические группы помещений, обслуживающие эти возрастные группы.

9.5 Учебные помещения должны группироваться в учебные секции:

- для 1 - 4 классов в учебных секциях следует предусматривать не более шести классных помещений с рекреациями и санитарными узлами, а также по заданию на проектирование - универсальное помещение для групп продленного дня, которое допускается размещать вне учебной секции;

- для 5 - 11 классов в учебные секции должны входить учебные кабинеты, лаборатории и соответствующие рекреационные помещения, а также санитарные узлы;

- учебные секции 1 - 4 классов должны быть обособленными и непроходными для учащихся других возрастных групп. Допускается учебные секции 5 - 11 классов в общеобразовательных учреждениях проектировать необособленными;

- специализированные учебные кабинеты и мастерские следует группировать в учебные секции по признакам родственных дисциплин и технологий;

- допускается санитарные узлы для 5 - 11 классов размещать вне учебных секций, а в двухэтажных зданиях размещать на одном из этажей сосредоточенно.

9.6 Группу общешкольных помещений рекомендуется размещать изолированно от учебных секций.

9.7 Учебно-спортивные залы следует размещать не выше второго этажа и предусматривать не менее двух эвакуационных выходов. Вход в спортивный зал из раздевальных предусматривается непосредственно или через обособленный коридор. Снарядная должна соединяться со спортивным залом через дверь или открытый проем шириной не менее 2 м и высотой не менее 2,2 м. Длина снарядной для хранения гимнастического бревна должна быть не менее 5 м. Пол снарядной должен быть в одном уровне с полом спортивного зала, без порога.

9.8 Коридоры и рекреационные помещения, находящиеся вблизи зрительного зала-лекционной аудитории, следует проектировать с учетом использования их в качестве кулуаров (фойе).

9.9 Ширина рекреационных помещений при одностороннем расположении кабинетов и лабораторий должна приниматься не менее 4 м; ширина рекреационных помещений, примыкающих к кабинетам, лабораториям (при их двухстороннем расположении) и к классам - не менее 6 м.

9.10 Гардеробные рекомендуется располагать изолированно, с зонированием для начальной, основной и старшей школы. Площади гардероба должны рассчитываться с учетом размещения верхней одежды в зимнее время по нормативам, приведенным в таблице Е.7 (приложение Е). Нормы площади вестибюлей назначаются с учетом организации зон для переодевания и переобувания в зимнее время.

Гардеробы в школах размещаются на первом этаже с обязательным оборудованием ячеек для каждого класса.

9.11 На входах в здания общеобразовательных школ следует предусматривать двойные тамбуры.

9.12 Унитазы в уборных для учащихся следует размещать в закрытых кабинах. Кабины должны быть отделены перегородками-экранами высотой не менее 1,8 м (от пола), не доходящими до пола на 0,2 м. Размеры кабин рекомендуется принимать в плане не менее 0,8´1,0 м. В уборных для девочек следует предусматривать кабину для личной гигиены размерами не менее 1,8´1,2 м.

Проход между кабинами уборных и противоположной стеной должен приниматься не менее:

- при отсутствии писсуаров - 1,5 м,

- при наличии писсуаров - 2,0 м.

Расстояние между кранами индивидуальных умывальников должно быть не менее 0,65 м.

Высота верхней поверхности раковин умывальников над полом должна приниматься 0,5 м для учащихся 1 классов, 0,6 м - для учащихся 2 - 4 классов и 0,7 м - для старших учащихся.

Проход между умывальниками и стеной должен быть не менее 1,1 м, между двумя рядами умывальников - не менее 1,6 м.

9.13 Душевые кабины должны предусматриваться размером в плане не менее 0,8´1,2 м.

9.14 Подсчёт технико-экономических показателей необходимо производить в соответствии с правилами, установленными СНиП 2.08.02.

10 ПРОТИВОПОЖАРНЫЕ ТРЕБОВАНИЯ К ЗДАНИЯМ ШКОЛ И ТРЕБОВАНИЯ К ОПОВЕЩЕНИЮ О ПОЖАРЕ

10.1 Объёмно-планировочное решение здания должно соответствовать противопожарным требованиям СНиП 21-01, ППБ 01-03, СНиП 2.08.02.

10.2 Расстояние по путям эвакуации от дверей наиболее удаленных помещений принимается в соответствии со СНиП 2.08.02.

10.3 При расчете ширины путей эвакуации наибольшее количество людей, одновременно пребывающих на этаже в зданиях школ, должно определяться, исходя из вместимости учебных помещений, помещений для трудового обучения, а также спортивного зала и актового зала-лекционной аудитории, находящихся на данном этаже.

10.4 Ширина дверей выходов из помещений, в которых одновременно может находиться более 15 учащихся, должна быть не менее 0,9 м.

10.5 Наибольшее число мест и наибольшую этажность в зависимости от степени огнестойкости школ и школ-интернатов следует принимать по СНиП 2.08.02 и п. 6.4 и п. 9.1 настоящих норм.

10.6 Перед наружной дверью (эвакуационным выходом) должна быть горизонтальная входная площадка с глубиной не менее 1,5 ширины полотна наружной двери.

10.7 В учебных классах и кабинетах следует размещать только необходимые для обеспечения учебного процесса мебель, приборы, модели, принадлежности, пособия и т.п., которые должны храниться в шкафах, на стеллажах, или на стационарно установленных стойках.

10.8 Помещения общеобразовательных учреждений оборудуются автоматической пожарной сигнализацией независимо от площади и этажности в соответствии с НПБ 88-01.

10.9 Определение типов систем оповещения и управления эвакуацией людей при пожаре производится в соответствии с НПБ 104-03, и зависит от наименования и площади объекта, числа этажей и типа СОУЭ (системы оповещения и управления эвакуацией).

В одноэтажных школах и учебных корпусах площадью до 270 кв. м выбирается звуковой способ оповещения, а также должно быть предусмотрено разделение здания на зоны пожарного оповещения.

В школе оповещается сначала персонал, потом учащиеся. При размещении в одном здании дошкольных учреждений и начальной школы общей вместимостью более 50 человек они выделяются в самостоятельные зоны оповещения.

10.10 Для сельских населенных мест при отсутствии централизованных систем водоснабжения, следует предусматривать устройство не менее двух утепленных противопожарных резервуаров с хранимым запасом воды, определяемым расчетом, для обеспечения наружного и внутреннего пожаротушения, автономной насосной станцией и, возможно, сблокированной с ней дизель-электрической станцией (ДЭС) с мощностью, обеспечивающей потребности противопожарной насосной станции.

10.11 Из групп помещений, расположенных в подвальном или цокольном этажах зданий школ, необходимо предусматривать не менее двух эвакуационных выходов непосредственно наружу. Для этих групп помещений допускается устройство выходов на первый этаж через отдельные лестничные клетки, не связанные с открытыми лестницами и общими лестничными клетками.

Не допускается размещение в цокольных и подвальных этажах помещений для пребывания детей и учебных помещений школ.

10.12 Помещения зрительного зала и кружковых помещений должны быть выделены противопожарными перегородками 1-го типа и перекрытиями 3-го типа.

10.13 В случае размещения в одном здании дошкольного учреждения и начальной или малокомплектной школы (или жилых помещений для персонала) помещения дошкольного учреждения должны иметь обособленные выходы наружу, а пути эвакуации из помещений другого назначения не должны проходить через помещения дошкольного учреждения. В зданиях общей вместимостью более 50 человек, а также до 50 человек, но с детским дошкольным учреждением более 25 мест, помещения дошкольного учреждения следует отделять от помещений иного назначения противопожарными перегородками 1-го типа и перекрытием 3-го типа.

10.14 Из мастерских по обработке древесины и комбинированной мастерской по обработке металла и древесины необходимо предусматривать дополнительный выход непосредственно наружу через утепленный тамбур или через коридор, примыкающий к мастерским, в который нет выходов из классов, учебных кабинетов и лабораторий.

10.15 Помещения гардеробных площадью 200 кв. м и более необходимо оборудовать системой дымоудаления. Вентиляторы дымоудаления должны включаться от систем автоматической пожарной сигнализации. Аналогично должна быть предусмотрена блокировка систем приточно-вытяжной вентиляции при пожаре.

10.16 В зданиях с чердаками (за исключением зданий V степени огнестойкости) при устройстве стропил и обрешетки из горючих материалов не допускается применение кровли из горючих материалов.

10.17 Для отделки фасадов следует применять системы, разрешенные Госстроем России.

11 ТРЕБОВАНИЯ К ВНУТРЕННЕЙ СРЕДЕ ЗДАНИЙ

Эргономические параметры размещения мебели и оборудования

11.1 Основное помещение школы - класс-учебный кабинет - должно отвечать требованиям активного ведения занятий с применением различных форм обучения и использованием технических средств.

11.2 Учебные помещения включают: рабочую зону (размещение учебных столов для учащихся), рабочую зону учителя, дополнительное пространство для размещения учебно-наглядных пособий, технических средств обучения (ТСО), личных вещей учащихся - при фронтальных формах занятий; зону для индивидуальных занятий школьников и возможной активной деятельности - при групповых формах занятий.

Эти зоны как сумма пространств должны обеспечивать оптимальные условия обучения.

11.3 В зависимости от назначения учебных помещений могут применяться столы ученические (одноместные и двухместные), столы аудиторные, чертежные или лабораторные. Расстановка столов, как правило, трехрядная, но возможны варианты с двухрядной или однорядной (сблокированной) расстановкой столов.

11.4 Рекомендуется соблюдать следующие размеры проходов и расстояния между предметами оборудования (в см):

- между рядами двухместных столов - не менее 60;

- между рядами одноместных столов - не менее 50;

- между рядами столов и наружной продольной стеной - не менее 50 - 70;

- от последних столов до стены (перегородки), противоположной классной доске - не менее 70;

- между рядом столов и внутренней продольной стеной (перегородкой) или шкафами, стоящими вдоль этой стены, - не менее 100;

- между столами в ряду - не менее 50;

- от демонстрационного стола до учебной доски - не менее 100;

- от первой парты до учебной доски - не менее 240 - 270;

- угол видимости доски (от края доски длиной 3 м до середины крайнего места учащегося за передним столом) должен быть не менее 35° для учащихся II - III ступени школы и не менее 45° для школьников 6 - 7 лет;

- высота нижнего края учебной доски над полом (в рабочем состоянии) для первых классов - 70 - 80, 2 - 4 классов - 75 - 80, 5 - 11 классов - 80 - 90.

11.5 Кабинеты физики и химии должны быть оборудованы специальными демонстрационными столами, где предусмотрены пульты управления аппаратурой, подача воды, электричества, отвод канализации. Для обеспечения лучшей видимости учебно-наглядных пособий демонстрационный стол рекомендуется устанавливать на подиум.

11.6 В зоне учащихся устанавливаются двухместные ученические лабораторные столы (с надстройкой или без нее) с подводкой воды, электроэнергии (лаборатория физики) и только подводкой воды (лаборатория химии). Лаборатория химии оборудуется вытяжными шкафами, расположенными у наружной стены возле стола преподавателя.

11.7 Кабинет иностранного языка оснащается комплектом компьютерного оборудования с соответствующей периферией и программным обеспечением.

11.8 Кабинеты информатики оборудуются комплектом персональных компьютеров из расчета 1 компьютер на 1 ученика в классе средней расчетной наполняемости.

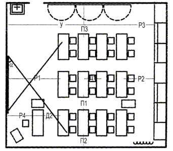
11.9 В Приложении П показана организация пространства и размещение мебели и оборудования учебных помещений для разных форм ведения занятий.

Естественное и искусственное освещение, инсоляция и ориентация помещений

11.10 Естественное освещение помещений школ следует проектировать в соответствии со СНиП 23-05.

11.11 Учебные помещения школы должны иметь естественное освещение. Без естественного освещения допускается проектировать: снарядные, умывальные, душевые, уборные при спортивном зале; комнаты инструкторов, тренеров; душевые и санузлы персонала; кладовые и складские помещения (кроме помещений для хранения легковоспламеняющихся жидкостей); радиоузлы, кинофотолаборатории, книгохранилища; бойлерные, насосные водопровода и канализации; камеры вентиляционные и кондиционирования воздуха; узлы управления и другие помещения для установки и управления инженерным и технологическим оборудованием зданий; двойные тамбуры.

11.12 В учебных помещениях следует проектировать боковое левостороннее освещение. При двустороннем освещении, которое проектируется при глубине учебных помещений более 6 м, обязательно устройство правостороннего подсвета, высота которого должна быть не менее 2,2 м от потолка. При этом не следует допускать направление основного светового потока впереди или сзади учащихся.

В учебно-производственных мастерских, актовых и спортивных залах также может применяться двустороннее естественное боковое освещение и комбинированное (верхнее и боковое).

11.13 В помещениях школ обеспечиваются нормированные значения коэффициента естественной освещенности (КЕО) в соответствии с гигиеническими требованиями, предъявляемыми к естественному и искусственному освещению. В учебных помещениях при одностороннем естественном боковом освещении КЕО должен быть 1,5 % (на расстоянии 1 м от стены, противоположной световым проемам). Неравномерность естественного освещения помещений, предназначенных для занятий учащихся, не должна превышать 3:1.

11.14 В соответствии со СНиП 2.08.02, коридоры, используемые в качестве рекреации, должны иметь естественное освещение. Длина коридоров не должна превышать при освещении через световые проемы в наружных стенах в одном торце 24,0 м, в двух торцах - 48,0 м. При большей длине коридоров необходимо предусматривать дополнительное естественное освещение через световые карманы. Расстояние между двумя световыми карманами должно быть не более 24,0 м, а между световым карманом и световым проемом в торце коридора - не более 30,0 м. Ширина светового кармана должна быть не менее половины его глубины без учета ширины прилегающего коридора. Через световой карман, которым может служить лестничная клетка, допускается освещать коридоры до 12,0 м, расположенные по обе ее стороны.

11.15 Помещения, имеющие естественное освещение, следует проветривать через фрамуги, форточки или другие устройства, за исключением помещений, где по технологическим требованиям не допускается проникновение воздуха, или необходимо предусматривать кондиционирование воздуха.

11.16 При искусственном освещении в учебных помещениях должны обеспечиваться нормируемые уровни освещенности и показатели качества освещения (показатель дискомфорта и коэффициент пульсации освещенности) в соответствии с гигиеническими требованиями к естественному и искусственному освещению.

В учебных помещениях предусматривается преимущественно люминесцентное освещение с использованием ламп ЛБ, ЛХБ, ЛЕЦ. Допускается использование ламп накаливания (при этом нормы освещенности снижаются на две ступени шкалы освещенности).

Не следует использовать в одном помещении люминесцентные лампы и лампы накаливания. Использование новых типов ламп и светильников согласовывается с территориальными органами санэпиднадзора.

11.17 В учебных помещениях следует применять систему общего освещения. Светильники с люминесцентными лампами располагаются параллельно светонесущей стене на расстоянии 1,2 м от наружной стены и 1,5 м от внутренней. Для общего освещения учебных помещений и учебно-производственных мастерских следует применять люминесцентные светильники следующих типов: ЛС002-2´40, ЛП028-2´40, ЛП002-2´40, ЛП034-4´36, ЦСП-5-2´40. Могут использоваться и другие светильники по типу приведенных с аналогичными светотехническими характеристиками и конструктивным исполнением.

11.18 Классная доска оборудуется софитами и освещается двумя установленными параллельно ей светильниками типа ЛПО-30-40-122 (125). Указанные светильники размещаются выше верхнего края доски на 0,3 м и на 0,6 м в сторону класса перед доской.

11.19 При проектировании системы искусственного освещения для учебных помещений необходимо предусмотреть раздельное включение линий светильников.

11.20 В учебных кабинетах, лабораториях уровни освещенности должны соответствовать следующим нормам: на рабочих столах - 300 лк, на классной доске - 500 лк, в кабинетах технического черчения и рисования - 500 лк, в дисплейных классах на столах - 300 - 500 лк, в актовых и спортивных залах (на полу) - 200 лк, в рекреациях (на полу) - 150 лк.

11.21 В кабинетах технических средств обучения при необходимости сочетать восприятие информации с экрана и ведение записи в тетради освещенность на столах учащихся должна быть 300 лк. При этом следует использовать либо только одно местное освещение, либо создавать систему «функционального» искусственного освещения с «темным коридором» перед экраном.

11.22 Рекомендуется проводить профилактическое ультрафиолетовое облучение детей, используя облучательные установки длительного действия или кратковременного (фотарии) в соответствии с рекомендациями по проведению профилактического ультрафиолетового облучения людей с применением источников ультрафиолетового излучения.

11.23 Размещение и ориентация зданий общеобразовательных школ должны обеспечивать непрерывную трехчасовую продолжительность инсоляции в классных помещениях 1 - 4 классов на период с 22 апреля по 22 августа.

В районах севернее 62,5° с.ш. допускается сокращение продолжительности инсоляции общеобразовательных школ на 0,5 ч. при условии компенсации недостаточности ультрафиолетового облучения учащихся техническими средствами.

11.24 Оптимальная ориентация окон учебных помещений - на южные, юго-восточные и восточные стороны горизонта. На северные стороны горизонта могут быть ориентированы окна кабинетов черчения, рисования, а также помещение кухни; ориентация кабинета информатики - на север, северо-восток.

Водоснабжение и канализация

11.25 В зданиях общеобразовательных школ следует предусматривать хозяйственно-питьевое, горячее водоснабжение, канализацию и водостоки. В спальных корпусах школ-интернатов, а также в зданиях школ, имеющих актовые залы, оборудованные стационарной киноаппаратурой, следует предусматривать внутреннее противопожарное водоснабжение. Эти системы следует проектировать в соответствии со СНиП 2.04.01 и требованиями настоящего раздела.

11.26 В случаях отсутствия в населенном пункте канализации и водопровода, а также спецтехники, в проектно-сметной документации по согласованию с государственным заказчиком предусматривать затраты на приобретение спецтехники (водовозок, ассенизационных машин). В этом случае водоснабжение и способ удаления нечистот и отбросов согласовывается с органами санэпиднадзора.

В случае отсутствия в населенном пункте водопровода следует предусматривать отдельную емкость для централизованного обеспечения питьевой водой в соответствии с гигиеническими требованиями к качеству воды.

11.27 Для школ вместимостью до 90 учащихся, сооружаемых в неканализованных поселениях, допускается устройство теплых туалетов выгребного типа (с организацией вывоза стоков), соединенных со зданием школы через двойной тамбур (теплую галерею)

11.28 Подводка холодной воды должна предусматриваться: к раковинам химических лабораторных столов и демонстрационных столов в лабораториях химии, физики и биологии.

11.29 Подводка холодной и горячей воды должна предусматриваться: к умывальникам, устанавливаемым по одному в каждой классной комнате 1 - 4 классов; к умывальникам, устанавливаемым по одному в кабинете черчения и изобразительного искусства, информатики, кружковых помещениях технического моделирования, юных натуралистов, студии живописи, рисунка, скульптуры; к умывальникам в учительской, столовой и кухне; к водоразборньм кранам, устанавливаемым для хозяйственных нужд; к раковинам и умывальникам в учебных мастерских, в комнате технического персонала; к душевым кабинам и к приборам кабин личной гигиены; к раковине в фотолаборатории и кинофотолаборатории; к умывальникам перед столовой, умывальникам санузлов и медицинского блока; к лабораторным шкафам в лабораториях химии, физики и биологии, а также к оборудованию столовых и буфетов, куда подводка холодной и горячей воды предусматривается согласно технологическим требованиям.

Температура горячей воды, поступающей к смесителям приборов, не должна превышать 60 °С.

11.30 Внутренний противопожарный водопровод следует предусматривать для зданий всех степеней огнестойкости и при реконструкции (капитальном ремонте) существующих 4-этажных зданий в количестве двух струй с расходом воды не менее 2,5 л/сек.

Отопление и вентиляция

11.31 В зданиях общеобразовательных школ следует предусматривать отопление и вентиляцию.

Отопление и вентиляцию следует проектировать в соответствии с требованиями СНиП 2.04.05 и требованиями настоящего раздела.

Расчетную температуру воздуха для проектирования отопления и кратность обмена воздуха в помещениях следует принимать в соответствии с приложением Н.

11.32 Теплоснабжение зданий общеобразовательных школ обеспечивается от центральных или местных котельных, возможно отопление на основе автономных систем, с использованием современного высокоэкономичного компьютеризированного котельного оборудования на жидком или газообразном топливе.

Не допускается проектирование встроенных и пристроенных котельных в зданиях общеобразовательных учреждений.

Системы отопления целесообразно выполнять с использованием современных приборов отопления, обладающих высокой теплоотдачей. В качестве нагревательных приборов могут применяться радиаторы, трубчатые нагревательные элементы, встроенные в бетонные панели, а также допускается использование конвекторов с кожухами. Отопительные приборы располагаются под оконными проемами и имеют регуляторы температуры. Отопительные приборы в спортивном зале и рекреациях младших классов ограждаются съемными решетками. Не следует устраивать ограждений из древесно-стружечных плит и других полимерных материалов. Средняя температура поверхности нагревательных приборов не должна превышать 80 °С.

11.33 В зданиях общеобразовательных школ до 200 учащихся, особенно в сельской местности, отопление рекомендуется решать на основе автономной котельной, а устройство вентиляции допускается без организованного механического притока.

11.34 Удаление воздуха из учебных помещений следует предусматривать через рекреации и санитарные узлы.

При проектировании приточной вентиляции с механическим побуждением в учебных помещениях следует предусматривать естественную вытяжную вентиляцию из расчета однократного обмена в 1 час.

При воздушном отоплении вытяжные каналы из учебных помещений проектировать не следует.

11.35 Отдельные системы вытяжной вентиляции рекомендуется предусматривать для следующих помещений (групп помещений): классных помещений и учебных кабинетов (при отсутствии воздушного отопления), лабораторий, актовых залов-лекционных аудиторий, учебных мастерских, спортивных залов, тиров, столовой, медпункта, киноаппаратной, санитарных узлов.

11.36 В городских условиях, при проектировании воздушного отопления, совмещенного с вентиляцией, следует предусматривать автоматическое управление системами, в том числе поддержание в рабочее время в помещениях расчетной температуры и относительной влажности в пределах 40 - 60 %, а также обеспечение во внеучебное время температуры воздуха не ниже 17 °С.

11.37 Рециркуляция воздуха в системах воздушного отопления учебных помещений не допускается.

11.38 Воздухообмен в столовых должен рассчитываться на поглощение теплоизбытков, выделяемых технологическим оборудованием кухни.

Подачу приточного воздуха в производственные помещения пищеблока следует предусматривать через обеденный зал. Объём подаваемого воздуха принимается по расчёту и должен быть не менее 20 куб. м/ч на одно посадочное место.

При установке модулированного кухонного оборудования подачу части приточного воздуха следует осуществлять через вентиляционные устройства этого оборудования.

Удаление воздуха из комплекса пищеблока следует предусматривать через производственные помещения.

11.39 Подачу приточного воздуха в киноаппаратную допускается предусматривать от приточной системы актового зала-лекционной аудитории при условии подключения воздуховода, идущего в киноаппаратную, к приточной системе зала ниже уровня пола киноаппаратной.

11.40 Воздушно-тепловые завесы тамбуров в здание следует проектировать для школ на три и более параллелей классов. Допускается устройство тепловых завес от приточной системы с установкой во втором тамбуре калорифера догрева и автоматической воздушной заслонки.

11.41 В помещениях, перечисленных в пунктах 6, 7 и 15 приложения Н, имеющих наружные окна с фрамугами или форточками, устройство вытяжных каналов не обязательно.

11.42 Применение асбестоцементных воздуховодов не допускается.

Электротехнические и слаботочные устройства

11.43 В зданиях общеобразовательных школ следует предусматривать электрооборудование, электроосвещение, системы электросвязи и передачи информации, автоматической пожарной сигнализации и оповещения о пожаре.

11.44 Электроснабжение, электрооборудование, электрическое освещение зданий и наружное освещение территории следует предусматривать в соответствии с требованиями ПУЭ, СНиП 23.05 и требованиями настоящего раздела.

11.45 Прокладка электрических осветительных и силовых сетей допускается под слоем штукатурки или в коробах, не распространяющих горение.

В кухне, кладовых, туалетных и других подсобных помещениях допускается открытая электропроводка.

11.46 Люминесцентные светильники в учебных помещениях должны предусматриваться с пускорегулирующими аппаратами с особо низким уровнем шума и быть рассеянного света.

11.47 При проектировании осветительных установок должны вводиться коэффициенты запаса 1,5 при люминесцентных лампах и 1,3 при лампах накаливания.

11.48 При подключении технических средств обучения в классных помещениях, учебных кабинетах, лабораториях, кружковых помещениях должны предусматриваться не менее трех штепсельных розеток: одна у классной доски, другая - на противоположной от доски стене помещения, третья - на стене, противоположной окнам. В учебных помещениях должна предусматриваться одна розетка с заземлением, за исключением кабинета информатики, где количество розеток рассчитывается исходя из оборудования кабинета.

11.49 Установка штепсельных розеток в помещениях пребывания учащихся должна предусматриваться на высоте 0,2 м от пола.

Установка выключателей в помещениях пребывания учащихся должна предусматриваться на высоте 1,8 м от пола.

11.50 Электрощитовые должны размещаться на первом этаже. Допускается размещение щитовой в подвале при условии низкого уровня грунтовых вод и устройства гидроизоляции от проникновения ливневых вод.

11.51 Светильники в учебных помещениях должны устанавливаться рядами, параллельно наружным стенам с окнами. Необходимо предусматривать раздельное (по рядам) включение светильников, имея в виду освещение в первую очередь части помещения, удаленной от окон.

11.52 Аварийное освещение для эвакуации людей должно предусматриваться в вестибюлях, гардеробных, коридорах, лестницах, рекреационных помещениях, спортивном и обеденном залах, зрительном зале, мастерских, киноаппаратной. Аварийное освещение для продолжения работы должно предусматриваться в электрощитовых, вентиляционных камерах, тепловых узлах, насосных, при этом должна быть обеспечена норма освещенности 2 лк.

Для обозначения выходов из зрительного зала должны предусматриваться световые указатели, присоединенные к сети аварийного освещения.

11.53 Наружное освещение земельных участков общеобразовательных школ должно проектироваться в соответствии со СНиП 23-05.

Необходимость устройства дополнительного освещения в период полярной ночи спортивных площадок, используемых в зимнее время для зимних видов спорта, должна устанавливаться заданием на проектирование.

11.54 В зданиях общеобразовательных школ должна предусматриваться радиофикация.

Радиоточки следует размещать в учительских, кабинетах директора, заместителя директора по учебно-воспитательной работе, старшего воспитателя, организатора внеклассной и внешкольной работы, врача, в канцелярии, киноаппаратной, радиоузле, комнате мастера, кабинете инструктора физического воспитания, технического персонала и рекреационных помещениях.

Установки звукоусиления следует предусматривать в зрительном зале, учебно-спортивных залах, форуме рекреационного центра, рекреационных помещениях.

11.55 В зданиях общеобразовательных школ необходимо предусматривать радиоузел с двусторонней связью, устанавливаемой в помещении радиоузла, который следует располагать в непосредственной близости с кабинетом директора.

11.56 Установка телефонов должна предусматриваться в кабинете директора (с параллельным аппаратом в канцелярии), в кабинетах заместителя директора по учебно-воспитательной работе, организатора внеклассной и внешкольной воспитательной работы (с параллельным аппаратом в комнате дежурного воспитателя), в учительской, (с параллельным аппаратом в комнате мастера, комнате инструктора физического воспитания), столовой, медицинском кабинете.

11.57 Установка электрочасов должна предусматриваться в вестибюлях, рекреационных помещениях, актовом зале-лекционной аудитории, обеденном и учебно-спортивном зале.

11.58 Установку электрозвонков, управляемых от сигнальных электрочасов, необходимо предусматривать в вестибюлях и рекреационных помещениях.

11.59 Сети для приема телевизионного вещания, применения видеотехники и замкнутых систем телевидения допускается предусматривать в классах, учебных кабинетах, лабораториях, мастерских, зрительном зале, лекционной аудитории, библиотеке, кружковых помещениях и помещениях для организации продленного дня, кабинете директора, учительской.

11.60 Молниезащита школьных зданий должна быть выполнена с учетом наличия телевизионных антенн и трубостоек телефонной сети или сети проводного вещания в соответствии с инструкцией РД 34.21.122-87 Инструкции по устройству молниезащиты зданий и сооружений.

Внутренняя отделка помещения

11.61 Внутренняя отделка помещений должна соответствовать санитарно-гигиеническим и противопожарным требованиям - с учетом действующих нормативов и должна выполняться из материалов, утвержденных Минздравом России.

11.62 К основным требованиям к внутренней отделке помещений школ можно отнести следующие:

- стены помещений на высоту не менее 1,8 м должны быть гладкими и иметь отделку, допускающую уборку влажным способом. Их окрашивают красками или используют иные отделочные материалы, имеющие соответствующие сертификаты. Стены помещений пищеблока (кухни), кладовой для овощей, охлаждаемых камер, моечной, а также санузлов рекомендуется облицовывать глазурованной плиткой на высоту 1,5 м, в душевых при спортивном зале - на высоту 1,8 м;

- для отделки потолков в помещениях с обычным режимом эксплуатации используют меловую или известковую побелку, допускается применение водоэмульсионной краски; потолки в помещениях с повышенной влажностью воздуха (производственные цехи пищеблока, душевые, туалетные и пр.) окрашивают масляной краской;

- полы помещений должны быть нескользкими, плотно пригнанными, с плинтусами. Для устройства полов в помещениях пищеблока, подсобных помещениях и санитарных узлах рекомендуется керамическая плитка. Полы в помещениях душевых, моечных, заготовочной пищеблока оборудуют сливными трапами с соответствующими уклонами полов (i = 0,001) и отверстиями;

- для отделки путей эвакуации принимать материалы, отвечающие требованиям СНиП 21-01.

Требования к энергосбережению

11.63 Здания общеобразовательных школ проектируются с учетом максимального энергосбережения в соответствии с ТСН 23-343 Республики Саха (Якутия).

11.64 Для строительства общеобразовательных школ на территории республики рекомендуются быстровозводимые конструктивные системы, применение новых термоэлементов стен, а также ограждающих конструкций с использованием эффективного утеплителя, обеспечивающего максимальный энергосберегающий эффект.

Конструктивные решения и материалы в каждом отдельном случае подлежат уточнению при согласовании технических условий на строительство.

11.65 Оконные проемы, ориентированные на север, северо-запад и северо-восток рекомендуется уменьшать. При этом отношение площади световых проемов в этих помещениях к площади пола, как правило, принимаются 1:10.

Приложение А

(справочное)

КЛАССИФИКАЦИЯ ВИДОВ ШКОЛ

Классификация школ (виды общеобразовательных школ):

начальная школа                 I ступень, 1 - 4 классы;

основная школа                   I и II ступени, 1 - 9 классы;

II ступень, 5 - 9 классы;

средняя школа                     I, II, III ступени, 1 - 11 классы

                                              (базовая, на группу поселений);

                                              II, III ступени, 5 - 11 классы;

                                              III ступень, 10 - 11 классы.

Приложение Б

(рекомендуемое)

ОРГАНИЗАЦИЯ СЕТИ ГОРОДСКИХ И СЕЛЬСКИХ ШКОЛ

Группа

Наполняемость класса

Вид школы

Обозначение вида школы

Соотношение количества параллелей I, II и III ступеней обучения

Вместимость школы

А

0 - 5

Начальная

НМ

1:0:0

20*

 

 

Основная

НОМ

1:1:0

45

Б

6 - 10

Основная

НОМ

1:1:0

90

 

 

Средняя

НОСМ

1:1:1

110

В

11 - 15

Основная

НОУ

1:1:0

108*

 

 

 

 

 

135

 

 

Средняя

НОСУ

1:1:1

132*

 

 

 

 

 

165

Г

16 - 20

Начальная

Н

2:0:0

160

 

 

 

 

3:0:0

240

 

 

Средняя

Н

1:1:1

176

 

 

 

 

 

198*

 

 

 

 

 

220

Д

21 - 25

Средняя

НОС

1:1:1

275*

 

 

 

НОС

2:2:2

550*

 

 

 

ОС

0:2:2

350*

Е

20 - 25

Средняя полная школа с профильным обучением

НОСП

1:1:1

 

 

 

 

2:2:2

 

Ж

20 - 25

Средняя школа с профильным обучением

ОСП

0:1:1

 

 

 

 

0:2:2

 

 

 

 

 

 

З

20

Гимназия

Г

0:1:1

 

 

 

 

 

0:2:2

 

 

 

 

 

0:3:3

 

И

20

Лицей

Л

0:0:2

 

 

 

 

 

0:0:3

 

* типы школ первоочередной разработки.

Варианты структурной организации сети школ в зависимости от специфики сельского расселения Республики Саха (Якутия) приведены на схеме

 - рекомендуемый вариант

 - возможный вариант

Приложение В

(рекомендуемое)

ПРИМЕРНАЯ НОМЕНКЛАТУРА ВИДОВ И ТИПОВ ЗДАНИЙ ШКОЛ ДЛЯ ГОРОДСКИХ И СЕЛЬСКИХ ПОСЕЛЕНИЙ

а) Для городского строительства

Виды зданий

Количество учащихся

Расположение в структуре города

 

Соотношение количества параллелей I, II и III ступеней обучения

жилой квартал или микрорайон

городское поселение

 

1 Начальная школа (I ступень):

100

1:0:0

*

 

 

на 4 класса (является составной частью основной или средней школы).

200

2:0:0

*

 

 

2 Основная школа в составе I - II ступени:

 

 

 

 

на 9 классов

225

1:1:0

*

 

 

на 18 классов

450

2:2:0

*

 

 

3 Средняя полная школа в составе I, II и III ступеней

 

 

 

 

на 11 классов

275

1:1:1

*

 

 

на 22 класса

550

2:2:2

*

 

 

4 Средняя полная школа в составе I, II и III ступеней с углубленным изучением отдельных предметов:

 

 

 

 

на 11 классов

275

1:1:1

 

*

 

на 22 класса

550

2:2:2

 

*

 

5 Средняя школа на 7 классов (II, III ступени), по 25 учащихся в классе

350

0:2:2

 

 

 

6 Средняя школа в составе II - III ступеней с профильным обучением:

 

 

 

 

на 18 классов

450

0:2:4

 

*

 

7 Гимназия в составе II - III ступеней:

 

 

 

 

на 7 (8) классов

140 (160)

0:1:1

 

*

 

на 14 (16) классов

280 (320)

0:2:2

 

*

 

на 21 (24) класса

420 (480)

0:3:3

 

*

 

8 Лицей в составе II - III ступеней:

 

 

 

 

на 8 (10) классов

160 (200)

0:2:2

 

*

 

на 12 (15) классов

240 (300)

0:3:3

 

*

 

в составе III ступени:

 

 

 

 

на 18 (27) классов

360 (540)

0:0:9

 

*

 

б) Для сельского строительства

Виды зданий

Количество учащихся

Расположение в системе расселения

 

Соотношение количества параллелей I, II и III ступеней обучения

малое село или жилая группа

центр наслега

центр улуса (района)

 

1 Начальная школа на 1 класс-комплект

20

1:0:0

*

 

 

 

2 Начальная школа на 2 класса-комплекта по 20 учащихся

40

1:0:0

*

 

 

 

3 Начальная школа на 4 класса по 20 учащихся

80

1:0:0

 

 

*

 

4 Начальная школа (I ступень):

100

1:0:0

 

 

*

 

на 4 класса (является составной частью основной или средней школы).

200

2:0:0

 

 

 

5 Основная школа на 9 классов по 12 учащихся

108

1:1:0

*

*

 

 

6 Основная школа в составе I - II ступени: на 9 классов

225

1:1:0

 

*

*

 

7 Средняя школа на 11 классов по 12 учащихся

132

1:1:1

*

*

 

 

8 Средняя школа на 11 классов по 18 учащихся

198

1:1:1

 

*

 

 

9 Средняя полная школа в составе I, II и III ступеней:

 

 

 

 

 

на 11 классов

275

1:1:1

 

*

*

 

на 22 класса

550

2:2:2

 

 

*

 

10 Средняя школа на 7 классов (II, III ступени), по 25 учащихся в классе

350

0:2:2

 

 

*

 

11 Средняя полная школа в составе I, II и III ступеней с углубленным изучением отдельных предметов:

 

 

 

 

 

на 11 классов

275

1:1:1

 

*

*

 

12 Гимназия в составе II - III ступеней:

 

 

 

 

 

на 7 (8) классов

140 (160)

0:1:1

 

 

*

 

на 14 (16) классов

280 (320)

0:2:2

 

 

*

 

на 21 (24) класса

420 (480)

0:3:3

 

 

*

 

13 Лицей в составе II - III ступеней:

 

 

 

 

 

на 8 (10) классов

160 (200)

0:2:2

 

 

*

 

на 12 (15) классов

240 (300)

0:3:3

 

 

*

 

в составе III ступени: на 18 (27) классов

360 (540)

0:0:9

 

 

*

 

в) Дополнительные типы зданий школ для сельского строительства (малокомплектные и с уменьшенной наполняемостью классов)

Наименование типов зданий

Организационно-педагогическая структура

Количество обслуживаемого населения, человек

Примечание

1 Начальная школа на 1 класс-комплект

20

1:0:0

150 - 250, зоны с преобладанием малых сел

Целесообразно объединение с жилым домом или детским садом на 15 мест

2 Начальная школа на 2 класса-комплекта по 20 учащихся

40

1:0:0

250 - 500, зоны с преобладанием малых сел

Возможно объединение с детским учреждением на 25 мест

3 Начальная школа на 4 класса по 20 учащихся

80

1:0:0

500, пригородные зоны

 

4 Основная школа на 9 классов по 12 учащихся

108

1:1:0

700 - 1000, зоны с преобладанием малых сел

 

5 Средняя школа на 11 классов по 12 учащихся

132

1:1:1

700 - 1000, зоны с преобладанием малых сел

 

6 Средняя школа на 11 классов по 18 учащихся

198

1:1:1

1000 - 1500, зоны с преобладанием малых и средних сел

 

7 Средняя школа на 7 классов (II, III ступени), по 25 учащихся в классе

350

0:2:2

2000 - 2500, в райцентрах

 

Приложение Г

(рекомендуемое)

ПЛОЩАДИ ОСНОВНЫХ ЗОН ЗЕМЕЛЬНЫХ УЧАСТКОВ ГОРОДСКИХ И СЕЛЬСКИХ ШКОЛ

а) Школы в городских поселениях

Зоны

Площади, м2, при количестве параллелей классов

в начальных школах

в средних школах

2

3

1

2

1 Физкультурно-спортивная

1004,0

1366,0

5606,0

6132,0

В том числе:

 

 

 

 

- школьный стадион (круговая беговая дорожка 250 м, совмещенная с прямой беговой дорожкой 110 м, комбинированное поле для футбола 60´28 м и ручного мяча и двумя секторами для прыжков в высоту и длину)

-

-

4200,0

4200,0

- площадка для спортивных игр (волейбольная 162 м2, баскетбольная 364 м2)

324,0

486,0

526,0

1052,0

- площадка для гимнастики 1 - 4 классов

200,0

400,0

200,0

200,0

- площадка для гимнастики 5 - 11 классов

-

-

200,0

200,0

- площадка комбинированная для спортивных игр, метания мяча и прыжков в высоту и длину

480,0

480,0

480,0

480,0

2 Учебно-опытная

480,0

720,0

900,0

900,0

В том числе:

 

 

 

 

- отдел начальных классов

400,0

600,0

400,0

400,0

- отдел цветочно-декоративных растений

80,0

120,0

400,0

400,0

- метеорологическая и географическая площадка

-

-

100,0

100,0

3 Отдыха

800,0

1200,0

625,0

1250,0

В том числе площадки:

 

 

(1250,0)

(1250,0)

- для подвижных игр 1 классов

200,0

300,0

100,0

200,0

- для подвижных игр 2 - 4 классов

600,0

900,0

300,0

600,0

- для подвижных игр 5 - 9 классов

-

-

125,0

250,0

- для тихого отдыха

-

-

100,0

200,0

4 Хозяйственная

500,0

500,0

500,0

625,0

Примечание - В скобках даны площади зон отдыха при совмещении их с местом проведения общешкольных мероприятий (торжественные линейки, построения, сборы и т.д.).

б) Школы в сельских поселениях

Зоны

Площади, м2

в начальных школах

в основных школах

в средних школах

до 90 учащихся

до 135 учащихся

до 110 учащихся

до 220 учащихся

1 Физкультурно-спортивная

200,0

845,0

5045,0

845,0

5606,0

В том числе:

 

 

 

 

 

- школьный стадион (круговая беговая дорожка 250 м, совмещенная с прямой беговой дорожкой 110 м, комбинированное поле для футбола 60´28 м и ручного мяча и двумя секторами для прыжков в высоту и длину)

-

-

4200,0

-

4200,0

- площадка для спортивных игр (волейбольная 162 м2, баскетбольная 364 м2)

-

365,0

365,0

365,0

526,0

- площадка для гимнастики 1 - 4 классов

200,0

-

-

-

200,0

- площадка для гимнастики 5 - 11 классов

-

-

-

-

200,0

- площадка комбинированная для спортивных игр, метания мяча и прыжков в высоту и длину

-

480,0

480,0

480,0

480,0

2 Учебно-опытная

370,0

1160,0

1370,0

1220,0

1870,0

В том числе:

 

 

 

 

 

- отдел начальных классов

200,0

100,0

200,0

100,0

200,0

- отдел полевых и овощных культур

-

800,0

800,0

800,0

1200,0

- отдел цветочно-декоративных растений

-

40,0

100,0

100,0

200,0

- теплица

170,0

170,0

170,0

170,0

170,0

- метеорологическая и географическая площадка

-

50,0

100,0

50,0

100,0

3 Отдыха

200,0

325,0

525,0

425,0

625,0

В том числе площадки:

 

(450,0)

(625,0)

(550,0)

(1100,0)

- для подвижных игр 1 классов

50,0

50,0

100,0

100,0

100,0

- для подвижных игр 2 - 4 классов

150,0

150,0

200,0

200,0

300,0

- для подвижных игр 5 - 9 классов

-

125,0

125,0

125,0

125,0

- для тихого отдыха

-

-

100,0

-

100,0

4 Хозяйственная

400,0

800,0

800,0

800,0

800,0

Примечание - В скобках даны площади зон отдыха при совмещении их с местом проведения общешкольных мероприятий (торжественные линейки, построения, сборы и т.д.)

Приложение Д

(рекомендуемое)

ФУНКЦИОНАЛЬНЫЕ ГРУППЫ И ПРИМЕРНЫЙ СОСТАВ ПОМЕЩЕНИЙ

Индекс функциональных групп

Перечень основных функциональных групп помещений

Наименование помещений

Общеобразовательная школа

Общеобразовательная школа с углубленным изучением отдельных предметов (профильная)

Гимназия

Лицей

1

2

3

4

5

6

7

УЧЕБНАЯ ГРУППА ПОМЕЩЕНИЙ

У-КНШ*

1 - 4 классы начальной школы

1 Класс

+

+

 

 

2 Универсальное помещение для групп продленного дня

 

+

 

 

4 Комната труда, моделирования и технической игрушки, изобразительного искусства, природы

 

+

 

 

5 Методический кабинет-учительская

+

+

 

 

6 Рекреация (зальная)

+

+

 

 

7 Компьютерный класс

 

+

 

 

8 Санузлы

+

+

 

 

У-КОШ*

Учебные кабинеты основной школы

5 - 9 классы

1 Учебный кабинет

+

+

+

+

2 Ресурсный центр

+

+

+

+

3 Рабочие комнаты для занятий по интересам

 

+

+

+

4 Рекреация (зальная)

+

+

+

+

5 Санузлы

+

+

+

+

У-КОС*

Учебные кабинеты старшей школы

(9) 10 - 11 классы

1 Кабинеты универсального назначения (оснащаются в зависимости от профиля обучения)

+

+

+

+

2 Комнаты индивидуальных занятий

+

+

+

+

3 Ресурсный центр

+

+

+

+

4 Рекреации

+

+

+

+

5 Санузлы

+

+

+

+

У-СК*

Специализированные учебные кабинеты основной и старшей школы

1 Кабинет естествознания с лаборантскими по физике, химии, биологии

+

 

+

 

2 Учебные кабинеты по естественным наукам на каждую дисциплину (физика, химия, биология) в составе:

 

 

 

 

- лаборатория

+

+

 

+

- практикум

+

+

 

+

- лаборантская

+

+

 

+

3 Специализированные кабинеты:

 

 

 

 

- иностранного языка

+

+

+

+

- информатики и вычислительной техники

+

+

+

+

- компьютерный класс

+

+

+

+

- технического черчения

+

+

+

+

4 Специализированные помещения и блоки помещений для профильного обучения

 

+

+

+

(по заданию на проектирование)

У-ТМ*

Помещения изучения технологий и трудового обучения

1 Комбинированная мастерская

+

 

+

 

2 Блоки мастерских-кабинетов по изучению технологий и обработке материалов (металл, дерево и пр.)

+

+

 

+

3 То же по электрорадиотехнологии

 

+

 

+

4 То же по домоводству (ткани, кулинария, бытовая электроника)

 

+

+

 

5 Кабинет изучения технологий

 

+

 

+

6 Универсальная мастерская по техническим видам труда

 

+

 

+

7 Блоки специализированных кабинетов (технология) для старших классов

 

+

 

+

Общешкольная группа помещений

У-ЦИБ*

Группа центра информации-библиотеки

1 Библиотека-справочно-информационный центр с зонами читательских мест

+

+

+

+

2 Технический центр

+

+

+

+

3 Учительская с методическим кабинетом и комнатой отдыха (основной и старшей школы)

+

+

+

+

У-ВАМ*

Вестибюльная группа, помещения администрации, медицинские комнаты

1 Вестибюль-гардероб

+

+

+

+

2 Помещения администрации школы (кабинет директора, кабинет завуча, канцелярия с приемной, с/у для преподавателей)

+

+

+

+

3 Кабинет врача, процедурная, кабинет зубного врача

+

+

 

+

О-РЦ*

Рекреационный центр (центр досуга)

Рекреационный центр (центр досуга) в составе:

 

+

+

+

1 форум

 

 

 

 

2 вестибюль-гардероб

 

 

 

 

3 административно-хозяйственные помещения

 

 

 

 

4 медицинский кабинет

 

 

 

 

5 комната родителей

 

 

 

 

6 комната персонала

 

 

 

 

7 санузлы

 

 

 

 

О-ЗЗ*

Группа зрительного зала

1 Зрительный зал с расширенной эстрадой (из расчета посадки не менее 60 % учащихся)

+

+

+

+

2 Лекционная аудитория

 

+

+

+

3 Обслуживающие помещения зрительного зала (кинопроекционная, артистические, карман эстрады и т.д.)

+

+

+

+

О-СЗ*

Группа спортивно-оздоровительная

1 Спортзалы (общая физическая подготовка, гимнастика, подвижные и спортивные игры, легкая атлетика, борьба)

+

+

+

+

 

 

2 Обслуживающие помещения:

+

+

+

+

 

 

- снарядные (инвентарные)

 

 

 

 

 

 

- раздевальные с душевыми и санузлами

 

 

 

 

 

 

- комната инструктора

 

 

 

 

О-ХВ*

Группа художественного воспитания

Студии и кружки:

 

+

+

+

1 изобразительное искусство

 

 

 

 

2 музыка и пение

 

+

+

+

3 хореография

 

+

+

+

4 универсальная студия

+

 

+

 

5 кабинет эстетики

 

+

+

 

6 фото-киностудия

 

+

+

+

О-ТТ*

Группа технического творчества

1. Универсальное помещение (кружок технического творчества)

+

+

 

+

2. Кабинет-практикум по технике, радиотехническому конструированию

 

+

 

+

3. Универсальная мастерская

+

+

 

+

4. Физико-техническое творчество

 

 

 

+

5. Конструирование малой механизации

 

 

 

+

6. Архитектура и дизайн

 

 

 

+

7. Радиотехническое конструирование

 

 

 

+

7. Биохимическая лаборатория

 

+

 

+

О-СК*

Столовая

1. Обеденный зал (на 2 посадки учащихся) с раздаточной

+

+

+

+

2. Кухонный блок с кладовыми (пищеблок)

+

+

+

+

* В соответствии с индексами функциональных групп помещений в приложениях Е - И приведены полный состав и нормативные показатели площадей помещений.

Приложение Е

(рекомендуемое)

Таблица Е.1 - СОСТАВ И РАСЧЕТНЫЕ ПОКАЗАТЕЛИ ПЛОЩАДЕЙ ПОМЕЩЕНИЙ НАЧАЛЬНЫХ ШКОЛ, ВКЛЮЧАЯ МАЛОКОМПЛЕКТНЫЕ

У-КНШ

Помещения

Площадь, м2 (не менее)

на одного учащегося

на один класс

на одно помещение

24 места

12 мест

1 Классное помещение для 1 - 4 классов, рассчитанное только на фронтальный урок

2,5

 

 

 

2 Классное помещение для 2 - 4 классов, рассчитанное на фронтальные, групповые и индивидуальные формы занятий

3,0

 

 

 

3 Комната тихого отдыха и уединения

 

 

10

 

4 Универсальное помещение для групп продленного дня

 

3

 

 

5 Комната труда, моделирования и технической игрушки, изобразительного искусства, природы

 

3

 

 

6 Учительская-методический кабинет

 

 

 

20 - 40

Примечания

1 В малокомплектной школе на один класс-комплект из 20 учащихся разных возрастов площадь классного помещения определяется из расчета 3,0 кв. м на одного учащегося, учитывая групповые формы занятий; комната труда принимается из расчёта 2,0 кв. м на одного учащегося, учительская - не менее 20 кв. м.

2 Универсальное помещение принимается одно на одну параллель учащихся начальной школы.

3 Комната труда принимается одна на школу в целом.

4 Учительская может размещаться за пределами учебной секции.

5 В рамке указан индекс функциональной группы в соответствии с приложением Д.

Таблица Е.2 - СОСТАВ И РАСЧЕТНЫЕ ПОКАЗАТЕЛИ ПЛОЩАДЕЙ ПОМЕЩЕНИЙ ОСНОВНЫХ ШКОЛ, ВКЛЮЧАЯ ШКОЛЫ С МАЛОЙ НАПОЛНЯЕМОСТЬЮ КЛАССОВ

У-КОШ

Помещения

Площадь, м2 (не менее)

на одного учащегося 24 места

на один класс

1 Учебный кабинет (рассчитанный на фронтальные формы работы)

2,5

 

2 Учебный кабинет (рассчитанный на фронтальные, групповые и индивидуальные формы работы)

3,0

 

3 Ресурсный центр*

 

12

4 Рабочие комнаты для занятий по интересам

 

10

* Допускается размещать в вариантах:

- при каждом классе-кабинете;

- централизованно на учебную секцию (на группу классов-кабинетов);

- на группу учебных секций в пределах одного этажа.

Примечание - В рамке указан индекс функциональной группы в соответствии с приложением Д.

Таблица Е.3 - СОСТАВ И РАСЧЕТНЫЕ ПОКАЗАТЕЛИ ПЛОЩАДЕЙ ПОМЕЩЕНИЙ СТАРШЕЙ ШКОЛЫ

У-КОС

Помещения

Площадь, м2 (не менее)

на одного учащегося

на один класс

24 места

12 мест

1 Учебный кабинет

2,5

 

 

2 Ресурсный центр*

 

 

10

3 Комнаты для индивидуальных занятий

 

 

15

* Допускается размещать в вариантах:

- при каждом классе-кабинете;

- централизованно на учебную секцию (на группу классов-кабинетов);

- на группу учебных секций в пределах одного этажа.

Примечание - В рамке указан индекс функциональной группы в соответствии с приложением Д.

Таблица Е.4 - СОСТАВ И РАСЧЕТНЫЕ ПОКАЗАТЕЛИ ПЛОЩАДЕЙ СПЕЦИАЛИЗИРОВАННЫХ ПОМЕЩЕНИЙ ОСНОВНОЙ И СТАРШЕЙ ШКОЛЫ

У-СК

Помещения

Площадь, м2 (не менее)

на 1 учащегося

на 1 помещение

24 места

12 мест

1 Кабинет естествознания

2,8

 

 

лаборантская-практикум по физике

 

 

36

лаборантская-практикум по химии

 

 

36

лаборантская-практикум по биологии

 

 

36

2 Учебные кабинеты по естественным наукам (физика, химия, биология):

 

 

 

лаборатория (лекционное помещение) на каждый предмет1)

2,8

 

 

два практикума на каждый предмет2)

 

3,0

 

лаборантская на каждый предмет

 

 

18 - 32

3 Специализированные кабинеты:

 

 

 

иностранного языка3)

 

3,0

 

технического черчения

 

3,0

 

информатики и вычислительной техники3)

 

6,0

 

компьютерный класс3)

 

6,0

 

4 Специализированные помещения для профильного обучения4)

3,0

 

 

1) Для школ с полной наполняемостью классов; для школ с уменьшенной наполняемостью классов допускается совмещение лабораторий.

2) Для лицеев и гимназий.

3) Число определяется программой обучения с начальных классов или со школы II ступени; количеством часов в неделю и делением класса на подгруппы (две или три).

4) Определяется заданием на проектирование.

Примечание - В рамке указан индекс функциональной группы в соответствии с приложением Д.

Таблица Е.5 - СОСТАВ И РАСЧЕТНЫЕ ПОКАЗАТЕЛИ ПЛОЩАДЕЙ ПОМЕЩЕНИЙ ИЗУЧЕНИЯ ТЕХНОЛОГИЙ И ТРУДОВОГО ОБУЧЕНИЯ

У-ТМ

Помещения

Площадь, м2 (не менее)

на 1 учащегося 12 мест

на 1 помещение

ОСНОВНАЯ И СТАРШАЯ ШКОЛЫ*

 

 

1 Комбинированная мастерская по металлу и дереву**

6

 

2 Мастерская по обработке металла и технологии

6

 

3 Мастерская по обработке дерева и технологии

6

 

4 Мастерская по обработке тканей и технологии

6

 

5 Кулинария

4,5

 

6 Бытовая техника

6

 

7 Кабинет изучения технологии

6

 

8 Инструментальная

 

18*

СТАРШАЯ ШКОЛА С ПРОФИЛЬНЫМ ОБУЧЕНИЕМ*

 

 

9 Мастерская-цех (универсальный) обработки материалов

15

 

10 Универсальная мастерская по техническим видам труда

11,5

 

11 Автодело в составе кабинетов по теории и практической работе

9 + 9

 

12 Электротехника

9

 

13 Радиоэлектроника

9

 

14 Кабинет машинописи и основ делопроизводства

6,5

 

15 Комната мастера

 

8 - 36***

16 Гардеробные

 

24 - 48***

17 Кладовые для хранения сырья, материалов и готовой продукции

 

24 - 96***

* Число и номенклатура помещений определяются заданием на проектирование.

** Предусматривается только в составе основной школы и гимназии вместо раздельных помещений по металлу и дереву.

*** Количество и площадь определяются в зависимости от назначения и состава помещений школы.

Примечания

1 Группа помещений по строкам 1 - 8 предназначена для школы II и III ступеней обучения.

2 Группа помещений по строкам 9 - 15 предназначена для школ с профильным обучением.

3 В помещении кулинарии, как правило, следует устанавливать электроплиты.

4 В рамке указан индекс функциональной группы в соответствии с приложением Д.

Таблица Е.6 - СОСТАВ И РАСЧЕТНЫЕ ПОКАЗАТЕЛИ ПЛОЩАДЕЙ ПОМЕЩЕНИЙ ЦЕНТРА ИНФОРМАЦИИ-БИБЛИОТЕКИ (ГРУППА МЕТОДИЧЕСКОГО ЦЕНТРА-БИБЛИОТЕКИ)

У-ЦИБ

Тип

Характеристика типа ЦИБ

Площадь, м2 (не менее, дифференцированно по зонам)

Всего на 1 место

В том числе по зонам

фонд хранения

общешкольный ресурсный центр

кабины для индивидуальных занятий

читательские места

I

На 10000 единиц хранения

15 читательских мест

110

7,7

35

28

11

36

II

На 20000 единиц хранения

30 читательских мест

220

7,8

70

55

23

72

III

На 30000 единиц хранения

45 читательских мест

325

7,2

105

81

31

108

Примечания

1 Тип библиотеки устанавливается в зависимости от назначения общеобразовательного учреждения заданием на проектирование:

расчетный показатель на единицу фонда хранения - 0,0035 м2;

на 1 читательское место - 2,4 м2.

2 Ориентировочно тип I рассчитан на среднюю однопараллельную школу с полной наполняемостью классов;

тип II - на двухпараллельную;

тип III - для гимназий, лицеев и школ с профильным обучением.

3 Площадь учительской-методического кабинета для общеобразовательных учреждений II и III ступеней принимается из расчета 6 м2 на одного преподавателя школы.

4 В рамке указан индекс функциональной группы в соответствии с приложением Д.

Таблица Е.7 - СОСТАВ И РАСЧЕТНЫЕ ПОКАЗАТЕЛИ ПЛОЩАДЕЙ ВЕСТИБЮЛЯ-ГАРДЕРОБА, АДМИНИСТРАТИВНО-ХОЗЯЙСТВЕННЫХ ПОМЕЩЕНИЙ, МЕДИЦИНСКИХ КОМНАТ

У-ВАМ

Помещения

Площадь, м2 (не менее) при количестве параллелей классов

Школа группы А и Б по приложению Б

Школа группы В и Г по приложению Б

Средняя школа, гимназия, лицей

1

1

1

2

1 Кабинет директора

12

16

16

25

2 Кабинет заместителя директора по учебно-воспитательной работе

8

8

8

10

3 Кабинет организатора внеклассной и внешкольной воспитательной работы

-

-

12

12

4 Кабинет заместителя директора по административно-хозяйственной работе и бухгалтерия

-

-

10

10

5 Канцелярия

8

8

8

12

6 Комната технического персонала

-

8

8

10

7 Кладовая уборочного инвентаря1)

4

4

4

4

8 Медицинская комната (кабинет врача)2)

12

14

18

21

9 Процедурная

-

-

12

16

10 Кабинет зубного врача

-

-

12

12

11 Комната родителей3)

-

-

12

16

12 Вестибюль

 на учащегося + персонал с учетом размещения зимней одежды

13 Гардеробная

14 Санитарные узлы (приложение К)

0,15 - 0,35 на учащегося + персонал

1) Следует предусматривать по одной на каждом этаже.

2) Принимается глубиной не менее 7 м с шириной не менее 2,4 м.

3) Совмещается с кабинетом социального педагога и комнатой психологической разгрузки.

Примечания

1 Медицинские комнаты (поз. 8, 9, 10) следует размещать в группе общешкольных помещений.

2 В рамке указан индекс функциональной группы в соответствии с приложением Д.

Таблица Е.8 - СОСТАВ И РАСЧЕТНЫЕ ПОКАЗАТЕЛИ ПЛОЩАДЕЙ ПОМЕЩЕНИЙ РЕКРЕАЦИОННОГО ЦЕНТРА

О-РЦ

Помещения

Площадь, м2 (не менее)

1 Форум

по заданию на проектирование (примерно 1,5 м2 на одного ученика)

2 Вестибюль, гардероб:

по расчету, исходя из пропускной способности в смену суммы обслуживаемых помещений (форума, зрительного зала, спортзалов, кружковых помещений и студий) с коэффициентом 1,5

- вестибюль

0,2 - 0,3 на одного посетителя

- гардероб

0,15 на одного посетителя

3 Помещения администрации:

 

- кабинет директора

25

- кабинет коменданта

25

- канцелярия-бухгалтерия

18

- кабинет замдиректора по воспитательной работе

8

4 Медицинский кабинет

18

5 Комната родителей

30

6 Комната дежурного персонала

12

7 Комната инженера и рабочих

не менее двух по 12 м2

8 Санузлы

по расчету (1 унитаз и 2 писсуара на 100 мужчин и 1 унитаз на 50 женщин)

Примечания

1 Рекреационный центр принимается для учебных заведений, рассчитанных на обслуживание наряду с учащимися также и взрослого населения. Возможно также предусматривать в составе школ с профильным обучением.

2 В рамке указан индекс функциональной группы в соответствии с приложением Д.

Таблица Е.9 - СОСТАВ И РАСЧЕТНЫЕ ПОКАЗАТЕЛИ ПОМЕЩЕНИЙ ГРУППЫ ЗРИТЕЛЬНОГО (УНИВЕРСАЛЬНОГО) ЗАЛА

О-ЗЗ

Помещения

Площадь, м2 (не менее)

Количество мест

1

Зрительный зал1)

0,7 на одно зрительское место

Количество мест в зале принимается из расчета посадки не менее 60 % учащихся школы и должно быть кратным вместимости классов. Дополнительно предусматриваются места для преподавателей из расчета 2 преподавателя на 1 классную группу

2

Эстрада

32 - 72

 

3

Кладовая-инвентарная

12 - 363)

 

4

Артистическая-костюмерная

8 - 123)

 

5

Киноаппаратная с перемоточной и тамбуром

27

 

6

Технический центр (радиоузел, дикторская, комната ремонта аппаратуры)

48

36 + 12

 

7

Лекционная аудитория с лаборантской

1 на одно место

На две-три группы (1 возрастную параллель учащихся)

1) Зрительный зал следует проектировать с учетом использования его в качестве киноаудитории, учебной аудитории по музыке и пению.

При количестве мест в зале менее 100 площадь на одно место принимается из расчета 0,8 м2.

Требования к параметрам зрительного зала и киноэкрана при кинодемонстрации принимается по СНиП 2.08.02.

2) Эстраду для школ с полной наполняемостью классов следует проектировать с учетом проведения на ней занятий по хореографии, при этом глубина эстрады должна быть не менее 7 м. Пол эстрады, как правило, выше пола зала на 0,9 м.

3) Количество определяется заданием на проектирование в зависимости от назначения и типа здания. Минимальный набор помещений ограничивается пунктами 1, 2, 3, 6.

Примечание - В рамке указан индекс функциональной группы в соответствии с приложением Д.

Таблица Е.10 - СОСТАВ И РАСЧЕТНЫЕ ПОКАЗАТЕЛИ ПЛОЩАДЕЙ ВСПОМОГАТЕЛЬНЫХ ПОМЕЩЕНИЙ ПРИ СПОРТИВНЫХ ЗАЛАХ

О-СЗ И О-Б

Помещение

Спортивные залы

12´15

18´15 (12)

24´15 (12)

36 (30)´18

Количество и площадь, м (не менее)

1 Раздевальные, включая уборные и душевые (приложение К)

36

2´18

36

2´18

72

4´18

(126) 84

(6) 4´21

2 Инвентарная (снарядная)

12

12

16

32

3 Помещение хранения уборочного инвентаря

4

4

4

4

4 Помещение инструктора-тренера и склад мелкого спортинвентаря

-

10

10

20

Примечания

1 Помещение тренера предусматривается с душевой и санузлом.

2 При всех типах школ рекомендуется предусматривать помещение для хранения лыж и вестибюль-грелку для занимающихся зимними видами спорта.

3 В рамке указан индекс функциональной группы в соответствии с приложением Д.

Таблица E.11 - СОСТАВ И РАСЧЕТНЫЕ ПОКАЗАТЕЛИ ПЛОЩАДЕЙ ПОМЕЩЕНИЙ ХУДОЖЕСТВЕННОГО (ЭСТЕТИЧЕСКОГО) ВОСПИТАНИЯ

О-ХВ

Помещения

Площадь, м2 (не менее)

Число мест в помещении

на 1 место

на помещение

1 Универсальная студия1)

-

721)

-

подсобное помещение

-

181)

-

раздевальная

 

12

 

2 Кабинет эстетики с полиэкраном2)

-

80

24

лаборантская

 

28

 

3 Кружки и студии специализированные:3)

 

 

 

живопись, рисунок, скульптура

 

108

3´36

8 на каждый предмет

кинофотостудия

-

36 - 54

-

класс пения и музыки

2,6

 

24

студия хореографии и драмкружка

9

 

12

студия прикладного искусства (дизайн)

6

 

12

4 Универсальные клубные помещения

-

36

-

5 Кладовые уборочного инвентаря

-

18 - 361)

-

6 Преподавательская

-

18 - 24

-

7 Санузлы

0,15

4 - 8

 

8 Вестибюль-гардероб4)

0,35´1,5

 

 

1) Число помещений и площадь определяются, исходя из назначения студии (изобразительное искусство, хореография, музыка, драмкружок и т.д.).

2) Предназначаются только для профильных учебных заведений, гимназий.

3) Минимальный набор помещений ограничивается п. 3 (изобразительное искусство, музыка и пение, хореография).

Расширенный состав помещений предназначается для профильных школ с гуманитарным направлением и эстетическим развитием учащихся, гимназий.

4) По расчету, исходя из суммы принятых помещений.

Примечания

1 При студии хореографии и драмкружка предусматриваются раздевальные и костюмерная.

2 В рамке указан индекс функциональной группы в соответствии с приложением Д.

Таблица Е.12 - СОСТАВ И РАСЧЕТНЫЕ ПОКАЗАТЕЛИ ПЛОЩАДЕЙ ПОМЕЩЕНИЙ БЛОКА ТЕХНИЧЕСКОГО ТВОРЧЕСТВА (КРУЖКОВЫЕ ПОМЕЩЕНИЯ)

О-ТТ

Помещение

Площадь, м2 (не менее)

на 1 место

на помещение

1 Универсальное помещение технического творчества*

9

 

- лаборантская

-

18

2 Кабинет-практикум по технике и радиотехническому конструированию

9

 

3 Физико-техническое творчество

10,5

 

4 Конструирование малой механизации

26

 

5 Техническое моделирование, авиамоделирование, автомоделирование, судомоделирование

7,5

 

6 Архитектура и дизайн

13,5

 

7 Подсобные

-

12 - 18**

8 Кино-фотолаборатория

-

24 - 54

9 Преподавательская

-

12 - 18

10 Вестибюль-гардероб

0,35´1,5

 

* В помещении две зоны: кружка по п. 5 и мастерской.

** Число определяется заданием на проектирование.

Примечания

1 Площади помещений по поз. 1 - 6 принимается из расчета 12 мест в кружке.

2 Минимальное число помещений для школы - одно-два помещения по пунктам 1 и 7.

3 Расширенный состав помещений (поз. 2 - 6) предназначен для лицеев и школ с техническим профилем обучения (уточняются заданием на проектирование).

4 В рамке указан индекс функциональной группы в соответствии с приложением Д.

Приложение Ж

(рекомендуемое)

РАЗМЕРЫ И ПЛОЩАДИ УЧЕБНО-СПОРТИВНЫХ ЗАЛОВ

О-СЗ И О-Б

Помещения

Площадь м2 в осях ограждающих конструкций

Размеры в м

Пропускная способность залов из расчета м2 на 1 занимающегося

Длина

Ширина

Высота до низа выступающих конструкций

Игровые виды спорта

Гимнастика

1 Спортивные залы

162 (270)

18

9 (15)

4,8 - 6

-

6 - 8

 

288 (360)

24

12 (15)

6 - 7

15

6 - 8

2 Места для зрителей

по заданию на проектирование

Примечания

1 Количество и типы залов принимаются в зависимости от вида учреждения, количества учащихся в нем, учебной программы и задач обслуживания населения.

2 В полу, ограждающих и несущих конструкциях спортзалов должны предусматриваться закладные детали и приспособления для крепления оборудования согласно планировочных нормалей этих помещений.

3 Вестибюль-гардероб принимается из расчёта 2´0,35 м2 на 1 место занимающихся в зале (залах) и 0,35 м2 на 1 зрительское место в зрительном зале.

4 Рекомендуется также руководствоваться Пособием «Проектирование спортивных залов, помещений для физкультурно-оздоровительных занятий и крытых катков с искусственным льдом» (к СНиП 2.08.02).

5 В рамке указан индекс функциональных группы в соответствии с приложением Д.

Приложение И

(рекомендуемое)

СОСТАВ И ПЛОЩАДИ ПОМЕЩЕНИЙ КУХОННОГО БЛОКА С ПОДСОБНЫМИ ПОМЕЩЕНИЯМИ

О-СК

Помещения

Условный тип общеобразовательного учреждения по числу классных групп

9 - 12

14 - 24

30 - 40

площадь, м2 (не менее)

1 Горячий цех

 

40*

62*

2 Холодный цех

35*

 

10*

3 Помещение для резки хлеба

 

10*

6*

4 Доготовочный цех

-

-

9

5 Мясной цех

9

17

18

6 Рыбный цех

 

 

 

7 Овощной цех

6

10

11

8 Моечная столовой посуды

18

30

30

9 Моечная кухонной посуды

 

8

10

10 Моечная полуфабрикатной тары

12

4

4

11 Охлаждаемая камера для хранения:

 

 

 

- молочных продуктов

6

6

10

- рыбы

6

6

6

- мяса

 

 

 

- пищевых отходов

-

6

6

12 Кладовая сухих продуктов

8

10

12

13 Кладовая овощей

8

13

15

14 Загрузочная-тарная

8

12

16

15 Бельевая, гардеробная персонала, душевые, уборные

11

13

18

* Уточняются с учетом размещения технологического оборудования.

Примечания

1 Состав рассчитан на приготовление пищи из сырья.

2 При ориентации школы на снабжение из базовой столовой школьного питания состав кухонного блока с подсобными помещениями может быть сокращен.

3 В рамке указан индекс функциональной группы в соответствии с приложением Д.

Приложение К

(обязательное)

РАСЧЕТНЫЕ ПОКАЗАТЕЛИ ПЛОЩАДЕЙ САНИТАРНЫХ УЗЛОВ И КОЛИЧЕСТВА САНИТАРНЫХ ПРИБОРОВ

Помещения

Единица измерения

Площадь, м2

Расчетное количество санитарных приборов

1 Уборные и умывальные для учащихся:

 

 

 

- девочек

1 учащийся

0,15

1 унитаз на 20 девочек, 1 умывальник на 30 девочек

- мальчиков

1 учащийся

0,15

1 унитаз на 30 мальчиков, 0,5 лоткового писсуара на 40 мальчиков, 1 умывальник на 30 мальчиков

2 Уборные и умывальные для персонала (индивидуальные)

2 сан. узла

3

1 унитаз, 1 умывальник

3 Кабина личной гигиены женщин (для персонала)

1 кабина

3

1 гигиенический душ, 1 унитаз, 1 умывальник

4 Уборные и умывальные при актовом зале-лекционной аудитории в блоке общешкольных помещений

2 сан. узла (женский и мужской)

 

см. табл. Е.5, пункт 8

5 Уборные и душевые при раздевальных спортзалов

1 раздевальная

2

1 унитаз, 1 умывальник,

4

2 душевые сетки

6 Уборные и душевые для персонала столовой

1 сан. узел и 1 душевая

-

1 унитаз, 1 умывальник, 1 душевая сетка

7 Кабина личной гигиены для девочек

1 кабина

3

1 гигиенический душ, 1 унитаз и 1 умывальник на 1 кабину, 1 кабина на 70 девочек

Примечание - В учебных мастерских следует предусматривать по 3 раковины.

Приложение Л

(обязательное)

УРОВНИ ОСВЕЩЕННОСТИ ПРИ ИСКУССТВЕННОМ ОСВЕЩЕНИИ ПОМЕЩЕНИЙ

Условия работы и уровни освещенности при искусственном освещении в зданиях общеобразовательных школ принимаются в соответствии со СНиП 23-05. Требования к освещению помещений (нормируемая освещённость, цилиндрическая освещенность, показатель дискомфорта, коэффициент пульсации освещенности) следует принимать по СНиП 23-05.

Требования к искусственному освещению помещений школ

Характеристика зрительной работы

Искусственное освещение

Освещенность на рабочей поверхности, лк

Цилиндрическая освещенность, лк

Показатель дискомфорта, м

Коэффициент пульсации, %

На рабочих столах

300

100

40

15

На классной доске

500

150

40

10

В кабинетах технического черчения и рисования

500

150

40

10

На столах в дисплейных классах

300 - 500

100 - 150

40

15

В актовых и спортивных залах, на полу

200

75

60

20

В рекреациях

150

50

60

20

Примечания

1 В помещениях образовательных школ, как правило, следует применять систему общего освещения.

2 Цилиндрическая освещенность - характеристика насыщенности помещения светом.

3 Показатель дискомфорта - критерий оценки дискомфортной блескости, появляющейся при неравномерном распределении яркости в поле зрения.

4 Коэффициент пульсации освещенности - критерий оценки относительной глубины колебаний освещенности в результате изменения светового потока.

Приложение М

(рекомендуемое)

ОРИЕНТАЦИЯ ОКОН УЧЕБНЫХ ПОМЕЩЕНИЙ

Помещения

оптимальная

допустимая

1 Классные

от 65° до 200°

не более 25 % от 200° до 295°

2 Кабинеты, лаборатории (кроме указанных в пп. 3 и 4 настоящей таблицы)

от 65° до 200°

не более 75 % от 200° до 65°

3 Кабинеты черчения и изобразительного искусства, кабинет информатики и вычислительной техники

от 300° до 60°

от 60° до 105° и от 255° до 300°

4 Лаборатория биологии

от 150° до 210°

от 90° до 150° и от 210° до 270°

5 Спальные-игровые

от 50° до 310°

 

Примечания

1 В случае устройства для основных помещений школы (классов и классов-кабинетов) наряду с боковым верхнего естественного освещения допускается любая ориентация здания по сторонам света.

2 Теплозащитные свойства окон назначаются в соответствии со СНиП 23-02 и ТСН 23-343 Республики Саха (Якутия).

Приложение Н

(обязательное)

РАСЧЕТНАЯ ТЕМПЕРАТУРА ВОЗДУХА И КРАТНОСТЬ ОБМЕНА ВОЗДУХА В ПОМЕЩЕНИЯХ

Помещения

Расчетная температура воздуха, °С

Кратность обмена воздуха в 1 час

1А климатический подрайон

1Д климатический подрайон

приток

вытяжка

Принимается в соответствии с табл. 19 и 20 СНиП 2.08.02-89*

1

Классные помещения, учебные кабинеты, лаборатории

21

18

16 м3/ч на 1 чел

2

Учебные мастерские

17

15

20 м3/ч на 1 чел

3

Актовый зал-лекционная аудитория, класс пения и музыки-клубная комната, студия живописи, рисунка, скульптуры

20

18

20 м3/ч на 1 чел

4

Учительская, кружковые помещения

21

18

-

1,5

5

Спальные комнаты школ-интернатов и интернатов при школах

18

16

-

1,5

6

Учебно-спортивные залы, студия хореографии

17

15

2,5

1,5

7

Библиотека, кабинеты администрации, комнаты отдыха

21

18

-

1

8

Кабинет врача (медицинская комната)

23

22

-

1,5

9

Рекреационные помещения

18

16

-

 

10

Душевые

26

25

-

5

11

Раздевальные:

 

 

 

 

 

при спортивном зале

21

20

-

1,5

 

при душевых

23

22

В объеме вытяжки из душевых

12

Уборные

20

18

50 м3/на 1 унитаз

13

Умывальные в отдельном помещении

23

22

-

1

14

Гардеробные и кладовые одежды и обуви

18

16

-

1,5

15

Вестибюль

18

16

 

 

16

Столовая:

 

 

 

 

 

горячий цех

17

15

По расчету

 

Цеха - холодный, доготовочный, мясной, рыбный, овощной

18

16

3

4

 

Моечная столовой и кухонной посуды

21

20

4

6

 

Кладовая овощей, кладовая сухих продуктов

15

12

-

2

 

Загрузочная, тарная

18

16

-

-

 

Обеденный зал

18

16

20 м3/ч на 1 чел.

17

Киноаппаратная

18

16

по объему вытяжки от кинопроекторов

18

Фотолаборатория, кинофотолаборатория, технический центр

21

18

-

2

19

Уголок живой природы

12

10

-

5

Примечания

1 При расчете систем воздушного отопления тепловыделения от одного учащегося в учебном помещении следует принимать 70 Вт и влаговыделения 45 г/ч.

2 В классных помещениях для I - IV классов и в угловых кабинетах, комнатах отдыха (спальнях-игровых) расчетную температуру воздуха следует принимать на 2 °С выше указанной в п. 1 настоящего приложения.

3 Объем удаляемого воздуха от вытяжного химического шкафа следует принимать в количестве 1100 м3/ч.

4 Клееварки должны быть оборудованы местной вытяжкой и несгораемыми укрытиями, локализующими тепловыделение.

Приложение П

(рекомендуемое)

ОРГАНИЗАЦИЯ ПРОСТРАНСТВА И РАЗМЕЩЕНИЕ МЕБЕЛИ И ОБОРУДОВАНИЯ УЧЕБНЫХ ПОМЕЩЕНИЙ ДЛЯ РАЗНЫХ ФОРМ ВЕДЕНИЯ ЗАНЯТИЙ

Примеры организации учебных помещений для классов-комплектов

А - на 18 учащихся, Б - на 20 учащихся, В - на 24 учащихся.

1 - стол учителя, 2 - стул учителя, 3 - стол ученический, 4 - стул ученический, 5 - шкаф секционный, 6 - доска учебная.

Примеры организации спальных-игровых для учащихся 1-го класса

А, Б - на 12 учащихся, В - на 20 учащихся.

1 - стол для занятий, 2 - кровать трехярусная раздвижная

Класс-кабинет для проведения фронтальных занятий

Класс-кабинет для проведения групповых занятий

Класс-кабинет для проведения фронтальных и групповых занятий

Класс-кабинет для проведения групповых занятий

Приложение Р

(справочное)

СВЕДЕНИЯ О РАЗРАБОТЧИКАХ ТЕРРИТОРИАЛЬНЫХ СТРОИТЕЛЬНЫХ НОРМ

Настоящие территориальные строительные нормы разработаны группой специалистов в составе:

ГУП ЯкутПНИИС

канд. техн. наук Ю.А. Буслаев

канд. техн. наук О.И. Матвеева

докт. арх. К.Г. Туралысов

арх. М.Н. Керемясов

арх. А.Б. Скрябина

канд. техн. наук Л.Г. Хаустова

ОАО ЦНИИЭПгражданстрой

инженер В.И. Магицин

докт. арх. С.Б. Моисеева

инженер З.Я. Чернецова

Ключевые слова: школы, типы, начальная, основная, средняя, наполняемость, малокомплектная, здания, земельные участки, группы, состав, помещения, площади, освещенность, температура, воздухообмен, пожарная безопасность, гигиенические требования

 




ГОСТЫ, СТРОИТЕЛЬНЫЕ и ТЕХНИЧЕСКИЕ НОРМАТИВЫ.
Некоммерческая онлайн система, содержащая все Российские Госты, национальные Стандарты и нормативы.
В Системе содержится более 150000 файлов нормативно-технической документации, действующей на территории РФ.
Система предназначена для широкого круга инженерно-технических специалистов.

Рейтинг@Mail.ru Яндекс цитирования

Copyright © www.gostrf.com, 2008 - 2026