Крупнейшая бесплатная информационно-справочная система онлайн доступа к полному собранию технических нормативно-правовых актов РФ. Огромная база технических нормативов (более 150 тысяч документов) и полное собрание национальных стандартов, аутентичное официальной базе Госстандарта. GOSTRF.com - это более 1 Терабайта бесплатной технической информации для всех пользователей интернета. Все электронные копии представленных здесь документов могут распространяться без каких-либо ограничений. Поощряется распространение информации с этого сайта на любых других ресурсах. Каждый человек имеет право на неограниченный доступ к этим документам! Каждый человек имеет право на знание требований, изложенных в данных нормативно-правовых актах!

  


 

Открытое акционерное общество

Проектно-конструкторский и технологический институт промышленного строительства
ОАО ПКТИпромстрой

УТВЕРЖДАЮ
Генеральный директор, к.т.н.
_____________ С.Ю. Едличка
«09» марта 2004 г.

ТЕХНОЛОГИЧЕСКАЯ КАРТА
НА ПОГРУЗОЧНО-РАЗГРУЗОЧНЫЕ РАБОТЫ
И СКЛАДИРОВАНИЕ ГРУЗОВ КОЗЛОВЫМ КРАНОМ
КК 20-11,3-9

68-04 ТК

Главный инженер

__________ А.В. Колобов

Начальник лаборатории

__________ Б.И. Бычковский

2004

Настоящая технологическая карта является обязательным организационно-технологическим документом при производстве погрузочно-разгрузочных работ и складировании грузов и содержит основные решения по организации и технологии погрузочно-разгрузочных работ козловым краном КК 20-11,3-9.

В технологической карте даны общие указания по производству работ козловым краном КК 20-11,3-9, технология выполнения погрузочно-разгрузочных работ и складирования, технологическая оснастка и схемы строповки, а также требования по безопасности и охране труда, экологической и пожарной безопасности при производстве работ.

Устройство подкрановых путей и привязка козлового крана на местности настоящей картой не рассматривается.

В разработке технологической карты участвовали сотрудники ОАО ПКТИпромстрой:

- Савина О.А. - разработка технологической карты, компьютерная обработка и графика;

- Черных В.В. - общее технологическое сопровождение;

- Холопов В.Н. - проверка технологической карты;

- Бычковский Б.И. - разработка технологической карты, техническое руководство, корректура и нормоконтроль;

- Колобов А.В. - общее техническое руководство разработкой технологических карт;

- к.т.н. Едличка С.Ю. - общее руководство разработкой технологической документации.

Контактный телефон (095) 214-14-72.

Факс (095) 214-95-53.

E-mail: pkti@co.ru

http://www.pkti.co.ru

СОДЕРЖАНИЕ

1 ОБЛАСТЬ ПРИМЕНЕНИЯ

1.1 Технологическая карта разработана на погрузочно-разгрузочные работы и складирование грузов козловым краном КК 20-11,3-9 при работе на складских, сборочно-укрупнительных площадках.

1.2 Технологической картой предусмотрены погрузочно-разгрузочные работы на следующие виды изделий, материалов и конструкций:

- стальные трубы диаметром 600 - 1600 мм;

- пакеты стальных труб диаметром 50 - 400 мм;

- элементы строительных конструкций;

- пакеты досок;

- мешки с сыпучими материалами.

1.3 Масса грузов не должна превышать номинальной грузоподъемности козлового крана КК 20-11,3-9.

1.4 Устройство подкрановых путей и привязка крана на местности настоящей картой не рассматривается.

1.5 Привязка технологической карты к местным условиям производится специализированной организацией.

1.6 Форма использования карты предусматривает обращение ее в сфере информационных технологий с включением в базу данных по технологии и организации строительного производства автоматизированного рабочего места технолога строительного производства (АРМ ТСП), подрядчика и заказчика.

2 ОРГАНИЗАЦИЯ И ТЕХНОЛОГИЯ ВЫПОЛНЕНИЯ РАБОТ

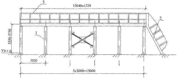
2.1 Кран козловой электрический специальный КК 20-11,3-9, общий вид которого представлен на рисунке 1, предназначен для выполнения погрузочно-разгрузочных, сборочно-укрупнительных работ на складских площадках и складирования грузов. При экономической целесообразности кран может быть использован и для монтажа (бетонирования) конструкций до определенной высоты. Кран рассчитан на динамическое давление ветра нерабочего состояния до 700 Па на высоте 10 м над поверхностью земли. На кране разрешается работать при температуре воздуха от +40 °С до минус 40 °С, динамическом давлении ветра до 125 Па или скорости ветра 14 м/с на высоте 10 м над поверхностью земли.

2.2 Производство погрузочно-разгрузочных работ, работ по сборке и укрупнению конструкций и складированию грузов включает следующие операции:

- перемещение крана и установка его в рабочее положение;

- подбор съемных грузозахватных приспособлений;

- осмотр и строповка груза;

- подача сигналов машинисту крана;

- погрузка-выгрузка груза с подъемом или опусканием его;

- подача груза к месту укрупнения элементов с фиксацией его в необходимом положении;

- укладка подкладок и прокладок под конструкции или детали;

- расстроповка груза;

- возвращение крана к месту зацепки груза;

- замена строп (в случае необходимости).

2.3 На начальном этапе подключения козлового крана работы следует осуществлять в следующей последовательности:

- лицо, ответственное за безопасное производство работ краном, проверяет правильность установки знаков безопасности на границе опасной зоны от работы крана;

- стропальщики подбирают съемные грузозахватные приспособления (СГЗП), соответствующие массе и характеру груза согласно схемам строповок и таблице масс перемещаемых грузов, проверяют исправность СГЗП путем осмотра наличия на них клейм или металлических бирок с обозначением номера, грузоподъемности и даты испытания, проверяют массу груза, предназначенного к перемещению краном; после этого машинист может привести кран в рабочее положение;

- убедившись в соответствии всех параметров требованиям норм и правил, стропальщик подает сигнал машинисту крана переместить грузовую тележку к месту строповки груза, после чего стропальщики осуществляют строповку перемещаемого груза.

2.4 В местах постоянной погрузки и разгрузки автомашин и полувагонов должны быть устроены эстакады или подвесные площадки для стропальщиков. Настил эстакад должен быть ниже борта полувагона на 150 мм. Эстакады должны быть устроены вдоль вагона с противоположной стороны от направления перемещения грузов. При устройстве эстакад необходимо руководствоваться ГОСТ 9238-83 «Габариты приближения строений и подвижного состава железных дорог колеи 1520 (1524) мм». Опускать груз на автомашину, а также поднимать с нее груз при нахождении людей в кузове или кабине автомашины не разрешается.

Рисунок 1 - Общий вид козлового крана КК 20-11,3-9

2.5 Разгрузка и загрузка полувагонов козловым краном производятся по технологии, утвержденной владельцем крана, в которой должны быть определены места нахождения стропальщиков при перемещении грузов, а также возможность безопасного выхода на эстакады и навесные площадки.

2.6 Разгрузка полувагонов, технологическая схема которой приведена на рисунке 2, осуществляется в следующей последовательности:

- стропальщик № 2 поднимается на стационарные подмости так, чтобы ему был виден стропуемый груз;

- стропальщик № 1 спускается с подмостей по приставной лестнице в полувагон и стропует груз; на стропах, закрепленных за груз, должны быть закреплены оттяжки соответствующей длины, концы которых передаются за борт полувагона стропальщику № 3;

- стропальщики убеждаются в том, что груз надежно закреплен и ничем не удерживается, что на грузе, под грузом, внутри груза нет незакрепленных деталей и инструмента и что груз во время подъема не может за что-либо зацепиться, а также в отсутствии людей возле грузов, между грузами, оборудованием и т.д.;

- стропальщик № 1 поднимается по лестнице из полувагона на подмости и спускается на площадку, а стропальщик № 2 подает сигнал машинисту крана приподнять груз на высоту до 0,3 м, чтобы убедиться в правильности строповки и равномерности натяжения ветвей стропа;

- затем груз поднимают на 0,5 м выше оставшихся в полувагоне грузов и выводят на середину полувагона;

- после того как груз успокоится от раскачивания, по сигналу стропальщика № 2 груз поднимается над бортом полувагона так, чтобы был виден машинисту крана, после чего стропальщик № 2 спускается с подмостей на площадку;

- оба стропальщика отходят на безопасное расстояние и стропальщик № 2 дает сигнал на подъем груза на 0,5 м выше борта полувагона, а затем на перемещение груза к месту разгрузки;

- по ходу перемещения груза стропальщик № 2 движется за грузом, находясь в поле зрения машиниста крана, а стропальщики №№ 1 и 3 сопровождают груз, направляя и удерживая его оттяжками от случайного разворота;

- груз перемещается на склад, где по команде стропальщика № 2 с помощью оттяжек соответствующей длины груз разворачивается и наводится на место складирования;

- по команде стропальщика № 2 груз опускается на высоту 0,5 м от места складирования, после чего стропальщики №№ 1 и 3 с помощью оттяжек окончательно наводят его на место укладки в плане и по команде стропальщика № 2 груз опускается на место складирования;

- стропы ослабляются и стропальщики №№ 1 и 2 производят расстроповку груза, после чего оттяжки собираются в связки;

- стропальщики №№ 1 и 2 поднимаются на подмости, и грузовая тележка перемещается за новым грузом.

Рисунок 2 - Технологическая схема разгрузки полувагонов

Затем все операции повторяются.

Схема организации погрузочно-разгрузочных работ и складирования грузов показана на рисунках 3, 4.


Рисунок 3 - Схема организации погрузочно-разгрузочных работ и складирования грузов

Рисунок 4 - Разрез 1-1


Для доступа стропальщиков к перемещаемому грузу используются складные (АОЗТ ЦНИИОМТП - проект № 495-2.00.000) подмости, показанные на рисунке 5. Возможно также использование стационарных подмостей (Мосгоринжстрой - проект № 80-145), представленных на рисунке 6.

1, 2 - лестницы; 3 - ферма; 4 - настил; 5 - фиксатор; 6 - поворотные колеса

Рисунок 5 - Подмости складные

1 - стойки; 2 - лестница; 3 - ограждение

Рисунок 6 - Подмости стационарные

Величина опасной зоны при работе крана согласно приложению Г.1 СНиП 12-03-2001 определяется по формуле:

Rо.з = 0,5Вмин + Lмакс + Хотл,

где Вмин - минимальный габаритный размер перемещаемого груза;

Lмакс - максимальный габаритный размер перемещаемого груза;

Хотл - минимальная величина отлета груза при его падении, определяемая по СНиП 12-03-2001, составляет 3,5 м при высоте подъема 9 м.

3 ТРЕБОВАНИЯ БЕЗОПАСНОСТИ И ОХРАНЫ ТРУДА, ЭКОЛОГИЧЕСКОЙ И ПОЖАРНОЙ БЕЗОПАСНОСТИ

3.1 Погрузочно-разгрузочные работы следует производить согласно СНиП 12-03-2001 «Безопасность труда в строительстве. Часть 1. Общие требования», ГОСТ 12.3.009-76* «Работы разгрузочно-погрузочные. Общие требования безопасности», ПБ 10-382-00 «Правила устройства и безопасной эксплуатации грузоподъемных кранов», утвержденных Госгортехнадзором России, и ПОТ РМ-007-98 «Правила по охране труда при погрузочно-разгрузочных работах и размещении грузов».

3.2 К выполнению погрузочно-разгрузочных работ с помощью козлового крана КК 20-11,3-9 допускаются лица не моложе 18 лет, прошедшие медицинское обследование и признанные годными к данной работе, обученные по специальной программе в учебных заведениях (пунктах), имеющих лицензию Госгортехнадзора России по программам, согласованным с Госгортехнадзором России, аттестованные квалификационной комиссией в соответствии с ПБ 10-382-00 «Правила устройства и безопасной эксплуатации грузоподъемных кранов» Госгортехнадзора России и получившие удостоверение на право производства погрузочно-разгрузочных работ, а также имеющие квалификационную группу по электробезопасности не ниже II.

3.3 Стропальщики, занятые на погрузочно-разгрузочных работах, должны предварительно пройти курс обучения и инструктаж согласно ГОСТ 12.0.004-90 и расписаться после его проведения в журналах. По характеру и времени проведения инструктажи подразделяются на:

- вводный инструктаж;

- первичный инструктаж на рабочем месте;

- повторный инструктаж (не реже одного раза в три месяца);

- внеплановый инструктаж;

- целевой инструктаж.

3.4 Козловой кран, находящийся в работе, должен быть снабжен табличкой с ясно обозначенным регистрационным номером, грузоподъемностью и датой следующего частичного или полного технического освидетельствования.

3.5 Кран, грузозахватные приспособления и тара, не прошедшие технического освидетельствования, к работе не допускаются.

3.6 Запрещается выполнение работ на козловом кране при скорости ветра, превышающей значение, допустимое для работы данного крана и указанное в его техническом паспорте, а также при сильном снегопаде, тумане, дожде и во всех других случаях, когда машинист плохо различает сигналы стропальщика или перемещаемый груз.

3.7 Пожарную безопасность в местах производства погрузочно-разгрузочных работ следует обеспечивать в соответствии с требованиями ППБ 01-03 «Правила пожарной безопасности в Российской Федерации», и другими нормативными документами, действующими в строительстве.

3.8 Площадки для погрузочных и разгрузочных работ должны быть спланированы и иметь уклон не более 5°, а их размеры и покрытие - соответствовать проекту производства работ. В соответствующих местах необходимо установить надписи: «Въезд», «Выезд», «Разворот» и др.

Спуски и подъемы в зимнее время должны очищаться от льда и снега и посыпаться песком или шлаком.

3.9 Места производства погрузочно-разгрузочных работ, включая проходы и проезды, должны иметь достаточные естественное и искусственное освещение в соответствии с ГОСТ 12.1.046-85 «ССБТ. Строительство. Нормы освещения строительных площадок» и СНиП 23-05-95* «Естественное и искусственное освещение». Освещенность должна быть равномерной, без слепящего действия на работающих.

3.10 На рабочей площадке в каждой смене должно быть назначено приказом руководителя организации лицо, ответственное за безопасное производство работ краном, из числа мастеров, прорабов, начальников участков, а также бригадиров. На складах в качестве лиц, ответственных за безопасное производство работ с краном, по согласованию с региональным органом госгортехнадзора могут быть назначены заведующие складами.

3.11 Лицо, ответственное за безопасное производство работ краном, обязано:

- проверить исправность грузоподъемных механизмов, такелажа, приспособлений и прочего погрузочно-разгрузочного инвентаря;

- организовать ведение работ краном в соответствии с правилами безопасности, техническими условиями, технологическими картами и регламентами;

- инструктировать машиниста крана и стропальщиков по безопасному выполнению предстоящей работы, обращая внимание на опасные факторы, особые условия на месте ведения работ, недопущение перегрузки крана, правильность строповки и зацепки грузов, безопасность выполнения работ по загрузке и разгрузке полувагонов, платформ и автотранспорта, соблюдение стропальщиками личной безопасности;

- не допускать использование немаркированных, неисправных или не соответствующих по грузоподъемности и характеру груза съемных грузозахватных приспособлений и тары;

- непосредственно руководить работами при перемещении грузов, на которые не разработаны схемы строповки, а также в других случаях, предусмотренных проектами производства работ или технологическими регламентами;

- обеспечивать рабочих необходимыми инвентарем и средствами для безопасного производства работ краном;

- разъяснять значение подаваемых сигналов и свойств материала, поданного к погрузке (разгрузке);

- следить за исполнением машинистом крана и стропальщиками производственных инструкций, технологических карт и регламентов.

3.12 Во время работы кран обслуживается машинистом, рабочее место которого находится в кабине управления, и стропальщиками, прошедшими надлежащее обучение и проверку знаний по безопасности труда. В тех случаях, когда зона, обслуживаемая краном, полностью не обозревается из кабины машиниста, вследствие чего машинисту не видно место строповки груза или его укладки, для передачи сигналов стропальщика машинисту должен быть назначен сигнальщик из числа стропальщиков. Машинист является лицом, ответственным за безаварийную работу крана, сохранность грузов, несет полную ответственность за нарушение требований по управлению и обслуживанию крана, изложенных в «Инструкции по эксплуатации и монтажу крана козлового КК 20-11,3-9» и контролирует работу стропальщиков.

3.13 Для правильной эксплуатации крана владелец должен обеспечить машиниста крана, стропальщиков, слесарей, электромонтеров инструкциями, определяющими их права, обязанности и порядок безопасного производства работ с учетом конкретных условий работы крана.

3.14 Места складирования материалов и конструкций должны быть размечены на площадке складирования. Стропальщики должны знать места складирования грузов. Изделия, конструкции, материалы и оборудование, поставляемые в полувагонах, при складировании укладываются следующим образом:

- кирпич в пакетах на поддонах - не более чем в два яруса, в контейнерах - в один ярус, без контейнеров - высотой не более 1,7 м;

- фундаментные блоки и блоки стен подвалов - в штабель высотой не более 2,6 м на подкладках и с прокладками;

- стеновые панели - в кассеты или пирамиды (панели перегородок - в кассеты вертикально);

- стеновые блоки - в штабель в два яруса на подкладках и с прокладками;

- плиты перекрытий - в штабель высотой не более 2,5 м на подкладках и с прокладками;

- ригели и колонны - в штабель высотой до 2 м на подкладках и с прокладками;

- круглый лес - в штабель высотой не более 1,5 м с прокладками между рядами и установкой упоров против раскатывания, ширина штабеля менее его высоты не допускается;

- пиломатериалы - в штабель, высота которого при рядовой укладке составляет не более половины ширины штабеля, а при укладке в клетки - не более ширины штабеля;

- мелкосортный металл - в стеллаж высотой не более 1,5 м;

- санитарно-технические и вентиляционные блоки - в штабель высотой не более 2 м на подкладках и с прокладками;

- крупногабаритное и тяжеловесное оборудование и его части - в один ярус на подкладках;

- стекло в ящиках и рулонные материалы - вертикально в 1 ряд на подкладках;

- черные прокатные металлы (листовая сталь, швеллеры, двутавровые балки, сортовая сталь) - в штабель высотой до 1,5 м на подкладках и с прокладками;

- трубы диаметром до 300 мм - в штабель высотой до 3 м на подкладках и с прокладками с концевыми упорами;

- трубы диаметром более 300 мм - в штабель высотой до 3 м в седло без прокладок с концевыми упорами.

Складирование других материалов, конструкций и изделий следует осуществлять согласно требованиям стандартов и технических условий на них.

3.15 При отсутствии стандартов и технических условий заводов-изготовителей рекомендуются представленные на рисунке 7 примеры складирования основных видов материалов, изделий и конструкций.

3.16 Материалы, изделия и конструкции следует располагать таким образом, чтобы маркировка изделий была обращена в сторону прохода.

3.17 Перед началом погрузочно-разгрузочных работ должен быть установлен порядок обмена условными сигналами между стропальщиком и машинистом крана.

3.18 При производстве работ с краном запрещается:

- работа на неисправном кране;

- пребывание посторонних лиц на кране во время работы;

- работа крана с превышением грузовых характеристик;

- работа крана с режимом работы ограничителя грузоподъемности, не соответствующим режиму работы крана;

- работа крана в ночное и вечернее время без электрического освещения;

- оставлять без наблюдения работающую отопительную установку кабины машиниста крана;

- включать электрооборудование крана при неработающем двигателе шасси;

- выполнять ускоренный подъем (опускание) груза при однократной запасовке каната;

- пользоваться открытым огнем;

- на работающем кране производить крепление, смазку, регулировку, осмотр канатов, электроаппаратуры, контроллеров и других токоведущих частей, когда они находятся под напряжением;

- хранить на кране легковоспламеняющиеся вещества и промасленные обтирочные материалы;

- применять самодельные плавкие вставки в предохранителях;

- проводить настройку и регулирование ограничителя грузоподъемности лицам, не имеющим специальной подготовки и удостоверения на право проведения указанных работ.

Рисунок 7 - Примеры складирования материалов, изделий и конструкций

3.19 При работе крана не допускается:

- подъем груза, засыпанного или примерзшего к земле, защемленного другими грузами, укрепленного болтами или залитого бетоном; находящегося в неустойчивом состоянии;

- оттягивание груза во время его подъема, перемещения и опускания;

- выравнивание перемещаемого груза руками, а также поправка стропов на весу;

- работа при выведенных из действия или неисправных приборах безопасности и тормозах;

- освобождение с помощью крана защемленных грузозахватных устройств;

- подъем и перемещение груза, масса которого неизвестна или превышает грузоподъемность крана;

- подъем груза, не имеющего маркировки.

3.20 В местах производства погрузочно-разгрузочных работ запрещается нахождение лиц, не имеющих непосредственного отношения к производимой работе или крану.

3.21 Строповка грузов должна производиться в соответствии с разработанными способами правильной строповки и зацепки грузов, которым должны быть обучены стропальщики и машинисты кранов. Графическое изображение способов строповки и зацепки, а также перечень основных перемещаемых грузов с указанием их массы должны быть выданы на руки стропальщикам и машинисту крана и вывешены в местах производства работ. Для строповки предназначенного к подъему груза должны применяться стропы, соответствующие массе и характеру поднимаемого груза, с учетом числа ветвей и угла их наклона; стропы следует подбирать так, чтобы угол между их ветвями не превышал 90°. Примеры схем строповок грузов и таблицы масс грузов и применяемых грузозахватных приспособлений представлены в приложении А.

3.22 Перемещение груза не должно производиться при нахождении под ним людей.

3.23 При перемещении груза краном нахождение работающих на грузе и в зоне его возможного падения не допускается.

3.24 Запрещается подъем или опускание груза при нахождении людей в кузове или в кабине поданной под разгрузку (погрузку) автомашины.

3.25 После окончания работы и в перерыве между работами груз и грузозахватные приспособления не должны оставаться в поднятом положении.

3.26 Способы строповки грузов должны исключать возможность падения или скольжения застропленного груза. Установка (укладка) и крепление грузов должны обеспечивать их устойчивость при транспортировании и складировании, разгрузке транспортных средств и разборке штабелей, а также возможность механизированной погрузки и выгрузки.

3.27 Перемещение мелкоштучных грузов должно производиться в специально для этого предназначенной таре, при этом должна исключаться возможность выпадения отдельных грузов.

3.28 Перемещение груза неизвестной массы должно производиться только после определения его фактической массы.

3.29 Груз или грузозахватное приспособление при их горизонтальном перемещении должны быть предварительно подняты на 500 мм выше встречающихся на пути предметов.

3.30 Не допускается нахождение людей в полувагонах при перемещении груза.

3.31 Опускать перемещаемый груз разрешается лишь на предназначенное для этого место, где исключается возможность падения, опрокидывания или сползания устанавливаемого груза. На место установки груза должны быть предварительно уложены соответствующей прочности подкладки и прокладки. Укладку и разборку груза следует производить равномерно, без нарушений установленных для складирования груза габаритов и без загромождения проходов. При подъеме груза он должен быть предварительно приподнят на высоту не более 200 - 300 мм для проверки правильности строповки и надежности действия тормозов.

3.32 Для разворота длинномерных и громоздких грузов должны применяться оттяжки из пенькового каната или стального гибкого троса.

3.33 Обязанности машиниста во время работы крана.

Допуск к работе машинистов должен оформляться приказом (распоряжением) владельца крана. Перед допуском к работе владелец обязан выдать (под роспись) машинисту производственную инструкцию по безопасной эксплуатации крана и ознакомить его с приказом о порядке работы крана вблизи линий электропередачи. Производственная инструкция разрабатывается владельцем на основании РД 10-103-95 «Типовая инструкции для крановщиков (машинистов) по безопасной эксплуатации мостовых и козловых кранов» с учетом требований инструкции по эксплуатации крана, а также специфики местных условий эксплуатации крана.

Машинист крана, прошедший обучение и имеющий на руках удостоверение на право обслуживания и управления краном, должен знать:

- производственную инструкцию, инструкцию предприятия-изготовителя по эксплуатации крана, параметры и техническую характеристику крана (грузоподъемность крана указана в паспорте и инструкции по эксплуатации и подразделяется на полезную, нетто, промежуточную и брутто).

- устройство крана, устройство и назначение его механизмов и приборов безопасности;

- факторы, влияющие на устойчивость крана, и причины потери устойчивости;

- ассортимент и назначение применяемых на кране смазочных материалов и рабочих жидкостей;

- установленный на предприятии порядок обмена сигналами со стропальщиками и знать знаковую сигнализацию при перемещении грузов кранами согласно приложению Б;

- безопасные способы строповки и зацепки грузов. Необходимо также уметь определять пригодность к работе канатов и съемных грузозахватных приспособлений (стропов, клещей, траверс, тары);

- приемы освобождения от действия электрического тока лиц, попавших под напряжение, и способы оказания им первой помощи;

- инженерно-технического работника по надзору за безопасной эксплуатацией грузоподъемных кранов, ГЗП и тары; ИТР, ответственного за содержание грузоподъемных кранов в исправном состоянии, а также лиц, ответственных за безопасное производство работ кранами.

Машинист крана координирует работу своего стропальщика, отвечает за действия прикрепленного к нему для прохождения стажировки ученика и за нарушение указаний по управлению и обслуживанию крана, изложенных в производственной инструкции.

3.34 Обязанности машиниста крана перед началом работы крана

3.34.1 Прежде чем приступить к работе, машинист должен убедиться в исправности всех механизмов, металлоконструкций и других частей крана. При этом он должен:

- осмотреть механизмы крана, их крепление и тормоза, а также ходовую часть;

- проверить наличие и исправность ограждений механизмов;

- проверить смазку передач, подшипников и канатов, а также состояние смазочных приспособлений и сальников;

- осмотреть в доступных местах металлоконструкции крана;

- осмотреть крюк и его крепление в обойме;

- проверить наличие и исправность приборов и устройств безопасности на кране;

- проверить исправность освещения крана и фар;

- осмотреть систему гидропривода, гибкие шланги, насосы и предохранительные клапаны на напорных линиях.

3.34.2 Машинист крана обязан вместе со стропальщиком проверить соответствие грузозахватных приспособлений массе и характеру груза, их исправность и наличие на них клейм или бирок с указанием грузоподъемности, даты испытания и номера.

3.34.3 При приемке работающего крана осмотр должен проводиться совместно с машинистом, сдающим смену. Для осмотра крана владелец обязан выделить машинисту в начале смены необходимое время.

3.34.4 Осмотр крана должен осуществляться только при неработающих механизмах.

3.34.5 При осмотре крана машинист должен пользоваться переносной лампой напряжением не более 42 В.

3.34.6 После осмотра крана перед его пуском в работу машинист, убедившись в соблюдении требуемых габаритов приближения, обязан опробовать все механизмы на холостом ходу и проверить при этом исправность действия:

- механизмов крана и электрической аппаратуры;

- приборов и устройств безопасности, имеющихся на кране;

- тормозов;

- гидросистемы.

3.34.7 При обнаружении во время осмотра и опробования крана неисправностей или недостатков в его состоянии, препятствующих безопасной работе, и невозможности их устранения своими силами машинист, не приступая к работе, должен доложить об этом инженерно-техническому работнику, ответственному за содержание крана в исправном состоянии, и поставить в известность лицо, ответственное за безопасное производство работ кранами.

3.34.8 Машинист крана не должен приступать к работе на кране, если имеются следующие неисправности:

- трещины или деформации в металлоконструкциях крана;

- дефекты механизма подъема груза, угрожающие безопасности работы;

- повреждения деталей тормоза механизма подъема груза;

- износ крюков в зеве, превышающий 10 % первоначальной высоты сечения, неисправность устройства, замыкающего зев крюка, нарушение крепления крюка в обойме;

- отсутствие ограждений механизмов.

3.34.9 Перед началом работы машинист крана обязан:

- ознакомиться с проектом производства работ, технологическими картами погрузки, разгрузки и складирования грузов;

- получить наряд-допуск на работу крана на расстоянии ближе 30 м от линии электропередачи;

- проверить достаточность освещенности рабочей зоны;

- убедиться в наличии удостоверений и отличительных знаков у стропальщиков.

3.34.10 Приняв кран, машинист делает соответствующую запись в вахтенном журнале и после получения задания и разрешения на работу от лица, ответственного за безопасное производство работ кранами, приступает к работе. Форма вахтенного журнала должна соответствовать «Правилам» Госгортехнадзора России.

3.35 Обязанности машиниста крана во время работы крана.

3.35.1 При работе крана машинист должен руководствоваться требованиями и указаниями, изложенными в инструкции предприятия-изготовителя, и производственной инструкцией.

3.35.2 Машинист во время работы механизмов крана не должен отвлекаться от своих прямых обязанностей, а также выполнять чистку, смазку и ремонт механизмов.

3.35.3 При необходимости ухода с крана машинист крана обязан выключить приборы в кабине машиниста, ограничитель грузоподъемности, остановить двигатель шасси и убрать ключ включения стартера.

При отсутствии машиниста крана другим лицам управлять краном не разрешается.

3.35.4 Входить на кран и сходить с него во время работы механизмов (поворота, подъема, выдвижения стрелы) не разрешается.

3.35.5 Прежде чем осуществить какое-либо движение краном, машинист обязан убедиться в том, что в зоне работы крана нет посторонних людей.

3.35.6 Если в работе механизмов крана был перерыв, то перед их включением машинист крана обязан дать предупредительный сигнал.

3.35.7 Машинист должен работать под непосредственным руководством лица, ответственного за безопасное производство работ кранами, при загрузке и разгрузке полувагонов, при перемещении груза, на который не разработана схема строповки, а также в других случаях, предусмотренных проектами или технологическими регламентами.

3.35.8 При перемещении грузов машинист крана должен руководствоваться следующими правилами:

- работать краном можно только по сигналу стропальщика. Если стропальщик дает сигнал, действуя в нарушение требований инструкции, то машинист по такому сигналу не должен выполнять требуемого маневра крана. За повреждения, причиненные действием крана вследствие неправильно поданного сигнала, несут ответственность как машинист крана, так и стропальщик, подавший неправильный сигнал. Обмен сигналами между стропальщиком и машинистом должен осуществляться по установленному на предприятии (в организации) порядку. Сигнал «Стоп» крановщик обязан выполнять независимо от того, кто его подает;

- перед подъемом груза следует предупреждать звуковым сигналом стропальщика и всех находящихся около крана лиц о необходимости уйти из зоны перемещаемого груза, возможного падения груза. Перемещать груз можно только при отсутствии людей в зоне работы крана. Стропальщик может находиться возле груза во время его подъема или опускания, если груз находится на высоте не более 1 м от уровня площадки;

- загружать и разгружать автомашины и прицепы к ним, железнодорожные полувагоны разрешается только при отсутствии людей на транспортных средствах, в чем машинист должен предварительно убедиться;

- устанавливать крюковую подвеску крана над грузом следует так, чтобы при подъеме груза исключалось косое натяжение каната;

- при подъеме груза необходимо предварительно поднять его на высоту 200 - 300 мм, чтобы убедиться в правильности строповки, устойчивости крана и исправности действия тормозов, после чего можно поднимать груз на нужную высоту;

- перемещаемые в горизонтальном направлении грузы (грузозахватные приспособления) следует предварительно приподнять на 500 мм выше встречающихся на пути предметов;

- при перемещении груза, находящегося вблизи железнодорожного вагона или автомашины, следует предварительно убедиться в отсутствии стропальщика и других людей между перемещаемым грузом и транспортными средствами. Укладка грузов в полувагоны, на платформы и вагонетки, а также снятие его должны выполняться без нарушения равновесия полувагонов, вагонеток и платформ;

- перемещать мелкоштучные грузы следует в специально предназначенной для этого таре, при этом должна исключаться возможность выпадения отдельных грузов.

- укладывать и разбирать груз следует равномерно, не нарушая установленные для складирования грузов габариты и не загромождая проходы;

- строповку грузов следует выполнять в соответствии со схемами строповки согласно приложению А. Для строповки должны применяться стропы, соответствующие массе и характеру поднимаемого груза, с учетом числа ветвей и угла их наклона; стропы общего назначения подбираются так, чтобы угол между их ветвями не превышал 90°;

- опускать перемещаемый груз разрешается только на предназначенное для этого место, где исключается возможность падения, опрокидывания или сползания устанавливаемого груза. На место установки груза должны быть предварительно уложены подкладки соответствующей прочности.

3.35.9 К выполнению работ во взрывоопасных зонах или с ядовитыми, едкими грузами машинист крана может приступить только после получения специального (письменного) указания от лица, ответственного за безопасное производство работ кранами.

3.35.10 При выполнении работ машинисту крана запрещается:

- допускать к обвязке или зацепке грузов случайных лиц, не имеющих прав стропальщика, а также применять грузозахватные приспособления, не соответствующие массе и характеру груза, без бирок или клейм. В этих случаях машинист должен прекратить работу краном и поставить в известность лицо, ответственное за безопасное производство работ кранами;

- поднимать груз, масса которого превышает грузоподъемность крана. Если машинист не знает массы груза, то он должен получить в письменном виде сведения о фактической массе груза у лица, ответственного за безопасное производство работ кранами;

- резко тормозить при перемещении груза;

- подтаскивать груз по земле, рельсам и лагам крюком крана при наклонном положении канатов, а также передвигать железнодорожные вагоны, платформы, вагонетки или тележки при помощи крюка;

- отрывать крюком груз, засыпанный землей или примерзший к земле, заложенный другими грузами, укрепленный болтами, залитый бетоном и т.п.;

- освобождать краном защемленные грузом грузозахватные приспособления (стропы, цепи, клещи и т.п.);

- неправильно застропованный (обвязанный) груз, находящийся в неустойчивом положении, а также в таре, заполненной выше бортов;

- укладывать груз на электрические кабели и трубопроводы, а также на краю откоса или траншеи;

- поднимать груз с находящимися на нем людьми, а также груз, поддерживаемый руками;

- передавать управление краном лицам, не имеющим прав на управление краном, а также допускать к самостоятельному управлению учеников и стажеров без своего наблюдения за ними;

- выполнять погрузку и разгрузку автомашин при нахождении водителя или других людей в кабине;

- работать при выведенных из действия или неисправных приборах безопасности и тормозах.

3.35.11 При возникновении неисправностей машинист обязан опустить груз, прекратить работу крана и сообщить об этом лицу, ответственному за безопасное производство работ кранами. Также должен действовать машинист в следующих случаях:

- при приближении грозы, сильном ветре, скорость которого превышает паспортные требования;

- при недостаточной освещенности места работы крана, сильном снегопаде или тумане, а также в других случаях, когда машинист плохо различает сигналы стропальщика или перемещаемый груз;

- при температуре воздуха ниже минус 40 °С и выше 40 °С.

3.36 Обязанности машиниста крана в аварийных ситуациях.

3.36.1 При потере устойчивости крана машинист должен немедленно прекратить подъем, подать предупредительный сигнал, опустить груз на землю или площадку и установить причину аварийной ситуации.

3.36.2 Если элементы крана оказались под напряжением, машинист должен предупредить работающих об опасности, покинуть кабину крана, не касаясь металлоконструкций и соблюдая меры личной безопасности от поражения электрическим током.

3.36.3 Если во время работы крана работающий (стропальщик) соприкоснулся с токоведущими частями, машинист крана прежде всего должен принять меры по освобождению работающего от действия электрического тока, соблюдая меры личной безопасности, и оказать необходимую первую помощь.

3.36.4 При возникновении на кране пожара машинист обязан немедленно вызвать пожарную охрану, прекратить работу и приступить к тушению пожара, пользуясь имеющимися на кране первичными средствами пожаротушения.

3.36.5 При возникновении стихийных природных явлений (ураган и т.п.) машинист должен прекратить работу, опустить груз на землю, рукоятки контроллеров поставить в нулевое положение, выключить вводной рубильник, покинуть кабину и уйти в безопасное место.

3.36.6 При возникновении других аварийных ситуаций машинист должен выполнять требования безопасности, изложенные в инструкции предприятия-изготовителя по эксплуатации крана.

3.36.7 Если во время работы крана имели место авария или несчастный случай, то машинист крана должен немедленно поставить в известность об этом лицо, ответственное за безопасное производство работ кранами, и обеспечить сохранность обстановки аварии или несчастного случая, если это не представляет опасности для жизни и здоровья людей.

3.36.8 Обо всех аварийных ситуациях машинист обязан сделать запись в вахтенном журнале и поставить в известность инженерно-технического работника, ответственного за содержание грузоподъемных машин в исправном состоянии.

3.37 Обязанности машиниста крана по окончании работы крана.

3.37.1 По окончании работы крана машинист обязан соблюдать следующие требования:

- не оставлять груз в подвешенном состоянии;

- кран поставить на место, предназначенное для стоянки;

- рукоятки контроллеров поставить в нулевое положение;

- выключить вводной рубильник;

- укрепить кран противоугонными захватами;

- занести в вахтенный журнал сведения о выявленных дефектах и неисправностях узлов и элементов крана.

3.37.2 При работе крана в несколько смен машинист, сдающий смену, должен сообщить своему сменщику обо всех неполадках в работе крана и сдать смену, сделав в вахтенном журнале соответствующую запись.

3.38 Обслуживание крана.

3.38.1 При обслуживании крана машинист должен выполнять требования, изложенные в инструкции предприятия-изготовителя по эксплуатации крана.

3.38.2 Машинист крана обязан:

- содержать механизмы и оборудование крана в чистоте и исправности;

- своевременно выполнять смазку всех механизмов крана и канатов;

- знать сроки и результаты проведенных технических освидетельствований и технических обслуживании (ТО-1, ТО-2, СО) крана;

- знать сроки и результаты проведенных слесарями и электромонтерами профилактических периодических осмотров крана и его отдельных механизмов и узлов по записям в журнале периодических осмотров.

3.38.3 Устранение неисправностей, возникающих во время работы крана, проводится по заявке машиниста. Другие виды ремонта проводятся согласно графику планово-предупредительного ремонта.

3.39 Обязанности стропальщика перед началом работ.

3.39.1 До начала работы стропальщик обязан:

- ознакомиться при производстве погрузочно-разгрузочных работ с технологической картой и поставить в ней свою подпись;

- получить от лица, ответственного за безопасное производство работ кранами, инструктаж и задание о виде работ, массе получаемых грузов, о месте и габаритах их складирования;

- подобрать грузозахватные приспособления, соответствующие массе и характеру поднимаемого груза. Стропы должны подбираться с учетом числа ветвей такой длины, чтобы угол между ветвями не превышал 90°;

- проверить исправность грузозахватных приспособлений и наличие на них клейм или бирок с обозначением номера, даты испытания и грузоподъемности, а также проверить исправность тары и наличие на ней надписи о ее назначении, номера, информации о собственной массе и предельной массе груза, для транспортировки которого она предназначена;

- проверить наличие и исправность вспомогательных инвентарных приспособлений;

- проверить освещение рабочего места. При недостаточном освещении стропальщик, не приступая к работе, обязан доложить об этом лицу, ответственному за безопасное производство работ кранами.

3.39.2 Стропальщик не должен приступать к работе, не ознакомившись с проектом производства работ, без защитной каски и сигнального жилета.

3.40 Обязанности стропальщика при обвязке и зацепке грузов.

3.40.1 При обвязке и зацепке груза стропальщик должен руководствоваться следующими указаниями:

- обвязку или зацепку грузов следует производить в соответствии со схемами строповки грузов, строповку редко поднимаемых грузов, на которые не разработаны схемы их строповки, следует производить под руководством лица, ответственного за безопасное производство работ кранами;

- проверить массу груза, предназначенного к перемещению краном, по списку грузов или по маркировке на грузе; если стропальщик не имеет возможности определить массу груза, то он должен узнать ее у лица, ответственного за безопасное производство работ кранами;

- при обвязке груза канаты и цепи должны накладываться на его основной массив (раму, каркас, корпус, станину) без узлов, перекруток и петель; под ребра грузов следует использовать специальные подкладки, предохраняющие стропы от повреждений;

- обвязывать груз надлежит таким образом, чтобы во время его перемещения исключалось падение отдельных его частей (блоки, бревна, прутки) и обеспечивалось устойчивое положение груза при перемещении: для этого строповка длинномерных грузов должна производиться не менее чем в двух местах;

- неиспользованные для зацепки груза концы многоветвевого стропа следует укрепить так, чтобы при перемещении груза краном исключалась возможность задевания ими за встречающиеся на пути предметы;

- убедиться, что предназначенный к подъему груз ничем не укреплен, не защемлен, не завален и не примерз к земле.

3.40.2 При обвязке и зацепке грузов стропальщику запрещается:

- производить строповку груза, масса которого неизвестна или превышает грузоподъемность крана;

- пользоваться поврежденными или немаркированными грузозахватными приспособлениями и тарой, соединять звенья разорванных цепей болтами или проволокой, связывать канаты;

- производить строповку груза иными способами, чем указано на схемах строповки;

- применять для обвязки и зацепки грузов не предусмотренные схемами строповки приспособления (ломы, штыри и др.);

- производить зацепку груза, не имеющего маркировки, а также зацепку его за поврежденные петли;

- производить строповку и подвешивание грузов на крюк крана на расстоянии ближе 30 м от крайнего провода линии электропередачи без наряда-допуска и без присутствия ответственного лица, назначенного приказом по предприятию, фамилия которого должна быть указана в наряде-допуске;

- поправлять ветви стропов в зеве крюка ударами молотка или других предметов;

- поправлять ударами молотка, лома и другими предметами стропы на поднимаемом грузе;

- допускать к строповке и расстроповке грузов лиц, не имеющих удостоверения стропальщика;

- подвешивать груз не за все имеющиеся на изделии петли.

3.41 Обязанности стропальщика при подъеме и перемещении груза.

3.41.1 Перед подачей сигнала о подъеме груза стропальщик должен:

- убедиться, что груз надежно закреплен и ничем не удерживается;

- проверить, нет ли на грузе незакрепленных деталей и инструмента; перед подъемом труб большого диаметра проверить, чтобы в них не было земли, льда или других предметов, которые могут выпасть при подъеме;

- убедиться, что груз не может во время подъема и перемещения за что-либо зацепиться;

- убедиться в отсутствии людей возле груза, между поднимаемым грузом и штабелями или автотранспортом.

3.41.2 Перед подъемом груза краном стропальщик должен проверить также отсутствие людей возле самого крана, на неповоротной платформе крана, в зоне опускания стрелы и груза, а самому выйти из опасной зоны.

3.41.3. Стропальщик при подъеме и перемещении груза краном должен:

- предварительно подать сигнал для подъема груза на высоту 200 - 300 мм, проверить при этом правильность строповки, равномерность натяжения стропов, устойчивость крана и действие тормозов и только после этого подавать сигнал о подъеме груза на необходимую высоту; при необходимости исправления строповки груз должен быть опущен; проверить по указателю грузоподъемности, что установленный машинистом вылет соответствует массе поднимаемого груза;

- перед горизонтальным перемещением груза убедиться, что груз поднят на высоту не менее 0,5 м выше встречающихся на пути предметов;

- сопровождать груз при перемещении и следить, чтобы он не перемещался над людьми и не мог за что-либо зацепиться; если сопровождать груз не представляется возможным, то за его перемещением должен следить машинист крана;

- для предотвращения самопроизвольного разворота длинномерных и громоздких грузов во время их подъема и (или) перемещения применять специальные оттяжки;

- укладку груза производить равномерно, без нарушения установленных для складирования габаритов и без загромождения проходов и проездов, чтобы расстояние от выступающих элементов поворотной части крана до груза было не менее одного метра, при невозможности выполнения этого условия работы должны быть прекращены.

3.41.4 При подъеме и перемещении груза стропальщику запрещается:

- находиться на грузе во время подъема или перемещения, а также допускать подъем или перемещение груза, если на нем находятся другие люди;

- находиться под поднятым грузом или допускать нахождение под ним других людей;

- оттягивать груз во время его подъема, перемещения и опускания;

- находиться и допускать пребывание людей в кузове автомобиля;

- производить погрузку и разгрузку автомашин, если в них находятся люди.

3.41.5 Если во время подъема или перемещения груза стропальщик заметит неисправность крана, он обязан немедленно подать сигнал о прекращении подъема (перемещения) груза и сообщить о неисправности машинисту.

3.42 Обязанности стропальщика при опускании груза.

3.42.1 Стропальщик перед опусканием груза обязан:

- предварительно осмотреть место, на которое необходимо опустить груз, и убедиться в невозможности падения, опрокидывания или сползания груза;

- на место установки груза в случае необходимости предварительно уложить прочные подкладки для удобства извлечения стропов из-под груза;

- снимать стропы с груза или крюка лишь после того, как груз будет надежно установлен, а при необходимости и закреплен.

При работе на штабелях высотой более 1,5 м необходимо применять переносные инвентарные площадки и стремянки для перехода с одного штабеля на другой.

3.42.2 Прокладки и подкладки в штабелях следует располагать в одной вертикальной плоскости. Прокладки должны быть одинакового сечения и достаточной прочности.

Запрещается применение прокладок круглого сечения при складировании строительных материалов в штабели.

3.42.3 Для размещения материалов должны быть подготовлены выровненные и утрамбованные, а в зимнее время очищенные от снега и льда площадки.

4 ПОТРЕБНОСТЬ В МАТЕРИАЛЬНО-ТЕХНИЧЕСКИХ РЕСУРСАХ

4.1 Технические характеристики козлового крана КК 20-11,3-9 приведены в таблице 1.

Таблица 1 - Технические характеристики козлового крана КК 20-11,3-9

№ п/п

Технические характеристики

Величина

1

Грузоподъемность главного крюка, т

20,0

2

Пролет, м

11,3

3

Вылет главного крюка на консоли, м

6,3

4

Высота подъема, м

9,0

5

Режим работы крана

Средний

6

Габаритные размеры, м

 

 

длина

30,8

 

ширина

11,5

 

высота

12,8

7

Скорость, м/мин

 

 

подъема главного крюка

10,0

 

передвижения тележки

40,0

 

передвижения крана

100

8

Масса крана, т

65

9

Наибольшее давление на ходовое колесо, кН

175

10

Напряжение, В

380

11

Установленная мощность электродвигателей, кВт

65

4.2 Для производства погрузочно-разгрузочных работ и складирования необходимы механизмы, приспособления и инвентарь, технические характеристики которых приведены в таблице 2.

Таблица 2 - Ведомость потребности в машинах, инструменте, инвентаре

№ п/п

Наименование

Тип, марка, ГОСТ

Ед. изм.

Количество

Примечание

1

2

3

4

5

6

1

Кран козловый

КК 20-11,3-9

шт.

1

 

2

Подмости складные

Проект 495-2.00.000

ОАЗТ ЦНИИОМТП

шт.

1

 

3

Подмости стационарные

Проект 80-145 Мосгоринжстрой

шт.

1

 

4

Строп четырехветвевой

4СК1-5,0/4000

ГОСТ 25573-82*

шт.

1

 

5

Строп двухветвевой

2СК-10,0/5000

ГОСТ 25573-82*

шт.

1

 

6

Строп кольцевой

СКК1-5,0/6000

ГОСТ 25573-82*

шт.

2

 

7

Балансирная траверса

Проект 4047 Мосоргстрой

шт.

1

 

8

Траверсный футляр

Р408Б К.М.З. Главмосстрой

шт.

1

 

9

Комплект знаков по безопасности и охране труда

ГОСТ Р 12.4.026-2001

компл.

1

Для информации по безопасности труда

10

Каска строительная

ГОСТ 12.4.087-84

шт.

7

-

11

Рукавицы

ГОСТ 12.4.010-75*

пар

7

-

5 ТЕХНИКО-ЭКОНОМИЧЕСКИЕ ПОКАЗАТЕЛИ

5.1 Погрузку и выгрузку материалов и грузов (конструкции, детали и т.п.) козловым краном КК 20-11,3-9 осуществляет звено из трех человек согласно таблице 3.

Таблица 3 - Численно-квалификационный состав звена

Состав звена

Масса груза, т, до

10

25

Машинист крана 5 разр.

1 чел.

1 чел.

Такелажники 4 разр.

-

3 чел.

Такелажники 3 разр.

3 чел.

-

5.2 Нормы времени на выполнение погрузочно-разгрузочных работ на 100 тонн грузов указаны в таблице 4.

Таблица 4 - Нормы времени на выполнение погрузочно-разгрузочных работ на 100 тонн грузов (сборник Е 1 - внутрипостроечные транспортные работы)

Масса груза, т, до

Погрузка или выгрузка грузов с перемещением на расстояние до 10 м

Добавлять на перемещение на каждые следующие 10 м

Машинист, маш.-ч.

Такелажники, чел.-ч.

Машинист, маш.-ч.

Такелажники, чел.-ч.

1,0

6,6

19.8

1,20

3,60

1,5

4,5

13,5

0,76

2,28

2,0

3,7

11,1

0,61

1,83

3,0

2,5

7,5

0,41

1,23

5,0

1,8

5,4

0,24

0,72

6 ПЕРЕЧЕНЬ НОРМАТИВНО-ТЕХНИЧЕСКОЙ ЛИТЕРАТУРЫ

1 СНиП 12-03-2001 «Безопасность труда в строительстве. Часть 1. Общие требования».

2 СНиП 12-04-2002 «Безопасность труда в строительстве. Часть 2. Строительное производство».

3 СНиП 23-05-95* «Естественное и искусственное освещение».

4 ГОСТ 12.0.004-90 «ССБТ. Организация обучения безопасности труда. Общие положения».

5 ГОСТ 12.1.004-91* «ССБТ. Пожарная безопасность. Общие требования».

6 ГОСТ 12.1.046-85 «ССБТ. Строительство. Нормы освещения строительных площадок».

7 ГОСТ 12.3.002-75 «ССБТ. Процессы производственные. Общие требования безопасности».

8 ГОСТ 12.3.009-76* «ССБТ. Работы погрузочно-разгрузочные. Общие требования безопасности».

9 ГОСТ 12.3.020-80* «ССБТ. Процессы перемещения грузов на предприятиях. Общие требования безопасности».

10 ГОСТ Р 12.4.026-2001 «ССБТ. Цвета сигнальные, знаки безопасности и разметка сигнальная. Назначение и правила применения. Общие технические требования и характеристики. Методы испытаний».

11 ГОСТ 9238-83 «Габариты приближения строений и подвижного состава железных дорог колеи 1520 (1524) мм».

12 ЕНиР. Единые нормы и расценки на строительные, монтажные и ремонтно-строительные работы. Сборник 1. Внутрипостроечные транспортные работы.

13 ПБ 10-382-00 «Правила устройства и безопасной эксплуатации грузоподъемных кранов» Госгортехнадзора России.

14 ПОТ РМ-007-98 «Правила по охране труда при погрузочно-разгрузочных работах и размещении грузов».

15 ППБ 01-03 «Правила пожарной безопасности в Российской Федерации».

16 РД 10-103-95 «Типовая инструкция для крановщиков (машинистов) по безопасной эксплуатации мостовых и козловых кранов».

Приложение А

(обязательное)

Схемы строповок грузов

ТАБЛИЦА МАСС ГРУЗОВ И ПРИМЕНЯЕМЫХ ГРУЗОЗАХВАТНЫХ ПРИСПОСОБЛЕНИЙ

Наименование элементов

Тип, марка, ГОСТ

Масса, т

№№ схем строповок

Количество одновременно поднимаемых элементов, шт.

Грузозахватные приспособления

Кол.

Строп

Характеристика

Q, тс

L, мм

Р, кг

Пакет стальных труб (металлопроката)

Æ 50 - 300 мм

2,0

86

1 пакет

4-х ветвевой

5,0

4000

42,0

1

кольцевой

5,0

6000

12,5

2

Стальная труба

Æ 300 - 1600 мм

0,3

111

1

То же

5,0

4000

42,0

1

 

5,0

6000

12,5

2

Пакет досок

 

 

167

1 пакет

4-х ветвевой

5,0

4000

42,0

1

кольцевой

5,0

6000

12,5

2

Схемы строповок грузов

ТАБЛИЦА МАСС ГРУЗОВ И ПРИМЕНЯЕМЫХ ГРУЗОЗАХВАТНЫХ ПРИСПОСОБЛЕНИЙ

Наименование элементов

Тип, марка, ГОСТ

Масса, т

№№ схем строповок

Количество одновременно поднимаемых элементов, шт.

Грузозахватные приспособления

Кол.

Строп

Характеристика

Q, тс

L, мм

Р, кг

Стеновые панели

НП1-1

8,866

11

1

2-х ветвевой

10,0

5000

80,0

1

В6-1-1

7,025

Плиты перекрытия

П9-2-1

7,400

12

1

4-ветвевой

10,0

5000

108,0

1

Лестничные площадки

ЛП48-27

5,02

Дорожные плиты

1П30.18

2,2

63

1

4-ветвевой

10,0

5000

108,0

1

Наружные стеновые панели

Н1-1

6,58

38

1

Балансирная траверса

10,0

 

60,0

1

Схемы строповок грузов

ТАБЛИЦА МАСС ГРУЗОВ И ПРИМЕНЯЕМЫХ ГРУЗОЗАХВАТНЫХ ПРИСПОСОБЛЕНИЙ

Наименование элементов

Тип, марка, ГОСТ

Масса, т

№№ схем строповок

Количество одновременно поднимаемых элементов, шт.

Грузозахватные приспособления

Кол.

Строп

Характеристика

Q, тс

L, мм

Р, кг

Лестничный марш

ЛМ28-11

1,27

14

1

4-х ветвевой

10,0

5000

108,0

1

тяги-удлинители

2,5

1450

27,8

2

вилочный захват

5,0

-

-

2

Лестничные марши с площадками

ЛПМ 4727

4,13

75

1

4-х ветвевой

10,0

5000

108,0

1

тяги-удлинители

2,5

1450

27,8

2

Кирпич на поддонах

-

1,6

18

2 под.

4-ветвевой

10,0

5000

108,0

1

кольцевой

3,2

4000

7,38

4

Схемы строповок грузов

ТАБЛИЦА МАСС ГРУЗОВ И ПРИМЕНЯЕМЫХ ГРУЗОЗАХВАТНЫХ ПРИСПОСОБЛЕНИЙ

Наименование элементов

Тип, марка, ГОСТ

Масса, т

№№ схем строповок

Количество одновременно поднимаемых элементов, шт.

Грузозахватные приспособления

Кол.

Строп

Характеристика

Q, тс

L, мм

Р, кг

Блоки бетонные для стен подвалов

ФБС 24.6.6-т

1,08

4

1

4-х ветвевой

10,0

5000

108,0

1

Блоки бетонные для стен подвалов

ФБС 24.6.6-т

1,08

5

2

То же

10,0

5000

108,0

1

Элементы шахт лифтов

4ШЛ3-1А

5,68

8

1

-«-

10,0

5000

108,0

1

Кабина лифта

-

1,2

27

1

-«-

10,0

5000

108,0

1

Приложение Б

(рекомендуемое)

Рекомендуемая знаковая сигнализация при перемещении грузов кранами*

Операция

Рисунок

Сигнал

Поднять груз или крюк

Прерывистое движение рукой вверх на уровне пояса, ладонь обращена вверх, рука согнута в локте

Опустить груз или крюк

Прерывистое движение рукой вниз перед грудью, ладонь обращена вниз, рука согнута в локте

Передвинуть кран (мост)

Движение вытянутой рукой, ладонь обращена в сторону требуемого движения

Передвинуть тележку

Движение рукой, согнутой в локте, ладонь обращена в сторону требуемого движения тележки

Стоп (прекратить подъем или передвижение)

Резкое движение рукой вправо и влево на уровне пояса, ладонь обращена вниз

Осторожно (применяется перед подачей какого-либо из перечисленных выше сигналов при необходимости незначительного перемещения)

Кисти рук обращены ладонями одна к другой на небольшом расстоянии, руки при этом подняты вверх

* Рекомендуемая форма стропальщика: жилет и каска - желтого цвета, рубашка - голубого, повязка - красного.

 




ГОСТЫ, СТРОИТЕЛЬНЫЕ и ТЕХНИЧЕСКИЕ НОРМАТИВЫ.
Некоммерческая онлайн система, содержащая все Российские Госты, национальные Стандарты и нормативы.
В Системе содержится более 150000 файлов нормативно-технической документации, действующей на территории РФ.
Система предназначена для широкого круга инженерно-технических специалистов.

Рейтинг@Mail.ru Яндекс цитирования

Copyright © www.gostrf.com, 2008 - 2026