Крупнейшая бесплатная информационно-справочная система онлайн доступа к полному собранию технических нормативно-правовых актов РФ. Огромная база технических нормативов (более 150 тысяч документов) и полное собрание национальных стандартов, аутентичное официальной базе Госстандарта. GOSTRF.com - это более 1 Терабайта бесплатной технической информации для всех пользователей интернета. Все электронные копии представленных здесь документов могут распространяться без каких-либо ограничений. Поощряется распространение информации с этого сайта на любых других ресурсах. Каждый человек имеет право на неограниченный доступ к этим документам! Каждый человек имеет право на знание требований, изложенных в данных нормативно-правовых актах!

  


 

ПРАВИТЕЛЬСТВО МОСКВЫ

МОСКОМАРХИТЕКТУРА

РЕКОМЕНДАЦИИ
по развитию и реконструкции
сети объектов образования
(общеобразовательные школы)

2005

1. РАЗРАБОТАНЫ «Институтом общественных зданий» - ФГУП ИОЗ (доктор архитектуры Степанов В.И. - научный руководитель, канд. арх. Степанов А.В., арх. Кирюшина Л.А., арх. Белобородое М.А., арх. Сошин А.В.,. при участии арх. Будекиной С.А., арх. Леонова А.А., арх. Шурыгина Д.М., арх. Силаева А.А.) - и «Институтом общего среднего образования» Российской Академии Образования - ИОСО РАО (член-корреспондент РАО доктор педагогических наук Т.С. Назарова, доктор педагогических наук А.В. Николаенко).

2. ПОДГОТОВЛЕНЫ к утверждению и изданию Управлением перспективного проектирования, нормативов и координации проектно - изыскательских работ, Москомархитектуры

3. СОГЛАСОВАНЫ Департаментом образования города Москвы Москомархитектурой.

4. УТВЕРЖДЕНЫ приказом Москомархитектуры от 27.05.05 г. № 71

Принятые сокращения

Н - начальная школа

НО - основная школа

НОС - средняя школа

НОСД - средняя школа с дифференцированным (профильным) обучением.

№... - номер школы

МШ - музыкальная школа

ДЮСШ - детская юношеская спортивная школа

УПК (М) - учебно-производственный комбинат (мастерские)

СПШ - старшая профильная школа

БК-П - блок кабинетов профильного обучения

ОВШ - общеобразовательная вспомогательная школа

УЦ-ПО - учебный центр профильного обучения

УЦ-ЕН - учебный центр естественнонаучного профиля обучения

УЦ-Т - учебный центр технического профиля обучения

УЦ-СГ - учебный центр социально-гуманитарного направления обучения

УЦ-С - учебный центр спорта

Б - бассейн

СЗ - спортзал

Введение

Настоящие Рекомендации разработаны в соответствии с Городской целевой программой «Модернизация московского образования (Столичное образование - 3)», как методическая основа дальнейшего совершенствования и развития материально - технической базы общеобразовательных учреждений города Москвы посредством реконструкции и модернизации сложившейся городской сети этих учреждений.

В настоящих Рекомендациях приводятся несколько различных возможных вариантов реконструкции сети общеобразовательных школ на примере конкретных районов города Москвы.

Реконструкция сети зданий школ должна основываться на требованиях действующих строительных норм (МГСН 1.01-99) и норм проектирования общеобразовательных школ (МГСН 4.06-03), а так же на учете перспективы развития образования и воспитания подрастающего поколения, определяемой программой «Модернизация московского образования (Столичное образование - 3)» (рис. 1, 2, 3).

Основными направлениями Рекомендаций являются:

1) Разработка методов достижения сложившейся материально- технической базы общеобразовательных школ современного нормативного уровня (МГСН 4.06-03 «Общеобразовательные учреждения»).

2) Методика расчета сетевых нормативных показателей для групп помещений профильного обучения 8 - 11 классов.

3) Методика расчета количества и параметров учебно-спортивных залов для общеобразовательных школ в соответствии с современными программами физического воспитания учащихся 1 - 4, 5 - 9, 10 - 11 классов.

4) Формирование основ реконструкции сложившейся сети общеобразовательных школ посредством создания новых типов базовых и сетевых общеобразовательных школ II - III ступеней обучения, учебных центров, содержащих в себе специализированные функциональные группы помещений.

1. Социально-педагогические основы и направления развития и совершенствования материальной базы общеобразовательных школ

1.1. Социально - педагогической основой развития и совершенствования материальной базы общего образования является заинтересованность общества в подготовке и воспитании всесторонне развитого, интеллектуального поколения людей.

1.2. Разностороннее развитие личности школьника подразумевает создание соответствующей материальной среды, адекватной задачам обучения и воспитания. Материальная среда общеобразовательной школы должна обеспечивать:

1. Условия получения широкого спектра познания об окружающем мире

2. Возможность теоретического освоения общеобразовательных дисциплин

3. Условие проверки (опытом) отдельных теоретических познаний

4. Возможность творческого осмысления приобретаемых знаний

5. Условия получения полноценного физического развития и эстетического воспитания.

1.3. Указанные выше компоненты материальной среды, как правило, отсутствуют в существующих зданиях школ, построенных по проектам прошлых лет.

Решение проблемы восполнения отсутствующих компонентов материальной среды в каждой отдельной существующей школе, как показала практика реконструкции школьных зданий, не целесообразно и не всегда возможно в сложившейся затесненной застройке.

Наиболее рациональным и экономически оправданным является подход к модернизации сети школьных зданий выбранной городской территории на основе строительства новых сетевых, базовых школ и учебных центров.

1.4. Направление развития недостающей материальной базы при каждой школе ведет к перерасходу средств на строительство и эксплуатацию, ограничению возможностей развития этой базы, дефициту квалифицированных педагогических кадров.

Сетевой подход к реконструкции и развитию материальной среды общеобразовательных школ, когда на группу реконструируемых школ предусматривается учебный центр с концентрированной базой специализированных учебных помещений для полноценного обучения, обеспечивает относительную экономию средств в расчете на сеть зданий при высоком качестве материальной базы в основном профильного дифференцированного обучения, а так же физического развития и художественно-эстетического воспитания старших школьников окружающих школ с менее развитой материальной средой.

1.5. Действующие нормы проектирования общеобразовательных учреждений (МГСН 4.06-03) дают основу для модернизации существующего фонда зданий школ по общей группе учебных помещений начальной, основной и старшей школы (см. табл. 1).

Вместе с тем, нормируемый состав помещений школ городского заказа не обеспечивает развития профильного обучения для 8 - 11 классов (требования Закона об Образовании) и введение занятий игровыми видами спорта в программу физического развития школьников.

1.6. Как показывает анализ материальной среды существующих школьных зданий Москвы, нормируемая (расчетная) площадь на 1-го учащегося находится в пределах 3,7 - 4,7 м2 (по МГСН 4.06-03 она составляет 11 - 12 м2).

В качественном отношении состав помещений существующих школ не полноценно отвечает современным социально-педагогическим задачам обучения и воспитания, и в первую очередь не обеспечивает требуемую для полноценного проведения занятий норму площади в учебных помещениях (2,5 - 3,5 м2 на учащегося). К тому же в составе школьных помещений практически отсутствуют специализированные учебные кабинеты для учащихся старших возрастов, а площадь и габариты спортивных помещений не позволяют проводить занятия легкой атлетикой, игровыми видами спорта и плаванием.

Таблица 1

Сравнение состава и площадей помещений средних общеобразовательных школ по нормативам последних лет

Наименование помещений

МГСН 4.06-96 (1996 г)

Дополнение 1 к МГСН 4.06-96 (1999 г)

МГСН 4.06-03 (2003 г)

Тип школы, классов

22 кл.

33 кл.

24 кл.

36 кл.

22 кл.

33 кл.

Наполняемость классов, уч-ся

30 (25)

30 (25)

30

30

25

25

Вместимость здания, уч-ся

660* (550)

990* (875)

720

1080

550

875

1

2

3

4

5

6

7

Учебная группа помещений

Классы начальной школы:

 

 

 

 

 

 

1-е классы

152

2´76

228

3´76

140

2´70

210

3´70

125

2´62,5

187,5

3´62,5

2 - 4 классы

456

684

420

630

375

562,5

6´76

9´76

6´70

9´70

6´62,5

9´62,5

Классы-кабинеты основной школы (5 - 9 классы)

760

1140

490

700

375

562,5

10´76

15´76

7´70

10´70

6´62,5

9´62,5

Кабинеты средней полной школы (10 - 11 классы)

304

456

280

420

187,5

312,5

4´76

6´76

4´70

6´70

3´62,5

5´62,5

Кабинеты естественных наук (лаборатории) +

228

3´76

228

3´76

210

3´70

280

4´70

225

3´75

300

4´75

лаборантские

150

3´50

150

3´50

108

3´36

144

4´36

108

3´36

144

4´36

Кабинеты иностранного языка

240

6´40

360

9´40

120

3´40

160

4´40

126

3´42

168

4´42

Кабинеты информатики

90

90

140

90 + 50

140

90 + 50

298,5

3´87,5 + 36

298,5

3´87,5 + 36

Кабинет технического черчения

76

76

70

70

87,5

87,5

Мастерские (технология)

410

4´90 + 50

410

4´90 + 50

320

3´90 + 50

320

3´90 + 50

336,5

3´87,5 + 50 + 24

336,5

3´87,5 + 75 + 24

Электротехника

10

108

-

70

-

75

Библиотека

235

325

100

150

410

330 + 80

595

495 + 100

Общешкольная группа помещений

Зрительный зал

336

262

593

413

262

192

378

288

330

231

495

346

Эстрада

72

180

90

90

70

90

Подсобные помещения

105

141

100

136

102

114

Группа помещений свободного творчества

414

540

227

298

320

464

Учебно-спортивные залы

828

648 + 180

(18´36, 12´15) 250

1116

648 + 288 + 180

(18´36, 12´24, 12´15) 360

432

288 + 144

630

450 + 180 + 212

540

18´36 + 144

702

18´36 + 162

Столовая (обеденный зал + кухонный блок)

482

689

328

532

315

130 + 185

473

193 + 280

Итого: расчетная площадь

8195

11036

5973

8433

6797

9171

На 1 учащегося

12,40

11,20

8,3

7,8

12,3

11,1

Рис. 1 Модель разностороннего развития личности

Рис. 2 Модель шкалы полного дня

Рис. 3 Тенденции роста нормируемой площади (на одно ученическое место) основных функциональных групп помещений средней общеобразовательной шкалы.

ТО - группа помещений теории и общеобразовательных дисциплин; УЦ - группа помещений учебного центра (управление, информация, технический центр); П - группа практики (мастерские с политехническим уклоном); С - группа спорта; Т - группа помещений творчества (техническое, любителей природы, изобразительное искусство); Б - группа помещений столовой и хозпомещения (быта).

2. Основы формирования сетевых общеобразовательных школ для 8 - 11 классов (специализированные функциональные группы помещений)

2.1. Формирование сетевых школ II - III ступени обучения

2.1.1. Основным рекомендуемым способом модернизации сложившейся сети школьных зданий является сетевой подход, при котором на сеть школ района предусматривается сетевая школа - (специализированный учебный центр) для учащихся 8 - 11 классов.

2.1.2. Примерная номенклатура типов сетевых школ учебных центров приведена в таблице 2. По содержанию и назначению они подразделяются на следующие типы:

старшая профильная школа;

учебный - спортивный центр;

учебно-воспитательный центр - школа творчества;

оздоровительная школа (5 - 11 классы).

2.1.3. Состав и площади помещений сетевых школ - учебных центров определяются заданием на проектирование, исходя из численности школьников 5 - 11 или 8 - 11 классов конкретного района, пешеходной или транспортной доступности школ - центров, особенностей планировки структуры района.

2.1.4. Специализированные функциональные группы помещений для сетевых школ подразделяются на следующие виды:

профильного обучения;

учебно-спортивные;

художественно-эстетического воспитания;

оздоровительно-медицинские.

2.1.5. Сетевые школы - учебные центры помимо специализированных функциональных групп помещений должны в своем составе иметь так же основные функциональные группы помещений общеобразовательных школ.

2.1.6. На основе специализированных групп помещений могут создаваться различные типы сетевых школ. Они могут также входить в состав кооперированных учебно-воспитательных центров.

2.2 Специализированная группа помещений профильного обучения 8 - 11 классов (старшая профильная школа)

2.2.1. Профильное обучение на практике, как правило, организуется по трем основным направлениям: естественно-научное (ЕН), техническое (Т) и социально-гуманитарное (СГ). Доля каждого направления определяется заданием на проектирование СПШ в соответствии с потребностями в кадрах конкретных жилых районов, научных учреждений и производства. В настоящих рекомендациях для примеров расчета эти доли принимаются равными - по 1/3.

Табл. 2

Сетевые школы - учебные центры для учащихся 5 - 11, 8 - 11 или 10 - 11 классовобщеобразовательных школ со специализированными группами помещений.

(Тип) вид здания оптимально (300 - 480 учащихся/мест)

Группа профильного обучения

Группа учебно-спортивная

Группа художественно-эстетического воспитания

Группа творческой деятельности

Медицинская оздоровительная группа

1

Общеобразовательная школа III ступени обучения

2

Старшая профильная школа

3

Учебно-спортивный центр

4

Учебно-воспитательный центр - школа творчества

5

Оздоровительная школа (5 - 11 классы)

Условные обозначения:  - оптимальная программа;  - 1/2 программы;  - 1/4 программы;  - 3/8 программы;  - 1/8 программы;  - О программы

Примечание:

- Конкретные величины указанных специализированных функциональных групп определяется заданием на проектирование, исходя из сложившегося фонда школ района.

- Дополнительно смотри Пособие к МГСН 4.06-03 выпуск 1

2.2.2. В состав специализированного блока учебных кабинетов для профильного обучения включаются: 1) лаборатории или специализированные кабинеты для теоретических занятий учебной группы в целом; 2) помещения для практических работ (практикумы) на 1/2 учебной группы каждая; 3) лаборантские с рабочим местом преподавателя и лаборанта; 4) ресурсный центр для хранения оборудования и учебно-наглядных пособий, как отделение центра информации - библиотеки школы.

2.2.3. Практикум, как основное помещение для реализации программ дифференцированного профильного обучения, предназначен для учащихся 8 - 11 классов.

2.2.4. Одно помещение практикума обеспечивает 6,5 учебных часов (расчетных) занятий в день (4 часа в первой половине дня и 2,5 часа во второй); в неделю - 32,5 часов (6,5´5), что корреспондируется с базисными учебными планами - 30 - 36 часов занятий в неделю.

2.2.5. Расчетная вместимость одного помещения практикума составляет 10 учащихся или половина классной группы (20 учащихся), расчетная пропускная способность в день - 65 учащихся (10´6,5).

2.2.6. Как правило, учебными планами в практикумах предусматриваются сдвоенные уроки. Учитывая это обстоятельство, расчетная пропускная способность в день одного практикума при сдвоенных уроках равняется 33 (65:2) учащихся, в учебную неделю - 165 (33´5) учащихся.

2.2.7. Расчетная посещаемость одним учащимся в неделю практикума принимается 2 - 2,5 раза. Отсюда, один практикум может обеспечивать занятия 66 - 83 учащихся 8 - 11 классов (при 100 % загрузке помещения). Имея в виду, что нормируемая загрузка помещения не должна превышать 75 % времени, расчетное число учащихся в неделю на один практикум любого направления принимается 50 - 60 человек.

2.2.8. При организации минимум трех направлений профильного обучения (социально-гуманитарный, естественно-научный и технический) требуется три помещения для практических занятий с фактической пропускной способностью 180 - 150 учащихся.

В однокомплектной школе с числом учащихся 8 - 11 классов (80 человек) загрузка этих помещений составит 44 - 53 % от нормируемой.

2.2.9. В школе с двумя параллелями 8 - 11 классов (160 учащихся) загрузка помещений практикумов составит 90 - 107 % от нормируемой.

2.2.10. Примерные составы и площади помещений для профильного обучения 8 - 11 классов общеобразовательных школ по естественно-научному, техническому (технологическому) и социально-гуманитарному направлениям приведены в табл. 3, 4 и 5.

2.2.11. Методика расчета числа мест приведена в Пособии к МГСН 4.06-03 выпуск 2 «Старшие профильные школы».

2.2.12. Материально - техническую базу профильного обучения, одновременно можно рассматривать как сферу творческой деятельности школьников во внеучебное время, т.к. она содержит соответствующую материальную среду.

Таблица 3

Состав и площади помещений специализированных блоков помещений естественно-научного профиля (физика, химия, биология) для профильного обучения учащихся 8 - 11 классов

Наименование помещений

Количество профилей обучения

1

2

3

4

5

6

7

Расчетное число мест

10

20

30

40

50

60

70

Площадь, м2

1

Аудитория

 

 

 

100

100

100

100

2

Лаборатория (20 мест)

70

140

2´70

140

2´70

210

3´70

210

3´70

210

3´70

210

3´70

3

Практикум (10 мест)

50

100

2´50

150

3´50

200

4´50

250

5´50

300

6´50

350

7´50

4

Лаборантская

18

36

2´18

72

2´36

72

2´36

108

3´36

108

3´36

144

4´36

5

Ресурсный центр

12

24

36

48

60

72

84

Расчетная площадь

150

300

398

630

728

790

888

на 1 место

15

15

13,3

15,8

14,6

13,1

12,6

Примечание:

1) Жирной чертой выделен основной расчетный планировочный модуль.

2) Удвоенное число практикумов и лабораторий является оптимальным решением, т.к. создает более гибкие условия функционирования, а дополнительные помещения в виде аудитории - обеспечивает полноценное обучение по системе «ученик - группа - класс - поток».

3) Сопоставление удельных показателей показывает, что с увеличением числа направлений профильного обучения улучшаются: а) технико-экономические показатели; б) качественный состав помещений блоков.

4) Расчетное число мест профильного обучения определяется числом мест в помещении для опытно-практических работ (практикумах).

5) Один практикум - эквивалент одному профилю обучения.

Таблица 4

Состав и площади специализированных блоков помещений профильного обучения учащихся 8 - 11 классов технического направления и технологий

Наименование помещений

Количество профилей обучения

1

2

3

4

5

6

7

Расчетное число мест

10

20

30

40

50

60

70

Площадь, м2

1

Учебный кабинет изучения технологии и техники с лаборантской

90

70 + 20

180

2´90

300

4´90

270

3´90

450

5´90

540

6´90

600

7´90

2

Практикум (10 мест)

135

270

2´135

450

3´135

540

4´135

675

5´135

810

6´135

945

7´135

3

Комната мастера

-

8

16

24

32

40

48

4

Кладовая дли хранения сырья, материалов и готовой продукции

12

24

36

48

60

72

84

5

Ресурсный центр

12

24

36

48

60

72

84

Расчетная площадь

249

506

838

930

1272

1534

1761

на 1 место

24,9

25,3

27,9

23,3

25,4

25,6

25,2

Примечание:

1) Площадь помещений практикумов принята оптимальной 132 м2, минимальная площадь может быть 90 м2 (электроника); максимальная - 270 м2 (связано с техническим оборудованием).

2) Жирной чертой выделен основной расчетный планировочный модуль.

3) Вместимость определяется числом мест в помещениях практикумов.

Таблица 5

Состав и площади специализированных блоков помещений социально - гуманитарных наук профильного обучения учащихся 8 - 11 классов

Наименование помещений

Количество профилей обучения

1

2

3

4

5

6

Расчетное число мест

10

20

30

40

50

60

Площадь, м2

1

Аудитория с полиэкраном

 

 

100

100

100

100

2

Учебный кабинет (20 мест)

70

70

140

2´70

140

2´70

210

3´70

210

3´70

3

Практикум

36

2´18

72

36 + 2´18

144

72 + 2´36

162

72 + 2´36 + 18

180

72 + 2´36 + 2´18

252

2´72 + 2´36 + 2´18

4

Ресурсный центр

12

24

36

48

60

72

Расчетная площадь

118

166

420

450

550

634

на 1 место

18,8

8,3

14

11,3

11

10,6

Примечание:

1). Один кабинет на два направления: литература - язык; география - история; информатика - математика.

2). Практикум по информатике и географии требуют 6 м2 на одно место, т.е. практикум на 10 мест = 60 м2

3). Жирной чертой выделен основной расчетно-планировочный модуль

2.3. Специализированная группа учебно-спортивных помещений (учебный центр)

2.3.1. Расчет учебно-спортивных помещений, как правило, производится на основе: 1) учебной программы по физической культуре для школьников 5 - 11 классов; 2) типов и функциональных возможностей спортзалов по видам спортивных занятий и их пропускной способности; 3) дефицита спортивно-оздоровительных помещений в общеобразовательных школах жилого района.

2.3.2. Учебными программами по физическому развитию учащихся общеобразовательных школ, предусматриваются: теоретические занятия, занятия гимнастикой, легкой атлетикой, подвижными играми, спортивными играми (волейбол, баскетбол, футбол, ручной мяч), лыжами, кроссом или конькобежной подготовкой, плаванием, борьбой.

2.3.3. Распределение учебного времени по различным видам занятий физкультурой (сетка часов) приведено в таблице 6.

Доля времени по видам занятий составляет:

1. В начальной школе (1 - 4 классы) - гимнастика - 28 часов (32 %), подвижные игры - 20 часов (22 %), лыжи-коньки - 16 часов(18 %), плавание (3 - 4 классы) - 26 часов (28 %).

2. В основной и старшей школе (5 - 11 классы): гимнастика - 16 часов (18 %), легкая атлетика - 20 часа (22 %), спорт-игры - 16 часов (18 %), лыжи-коньки - 16 часов (18 %), плавание - 14 часов (14 %), борьба - 6 часов (8 %).

2.3.4. Параметры спортзалов (9´18 - 12´24 м) существующих школ, построенных по проектам прошлых лет, в основном были ориентированы на гимнастику и подвижные игры, составляющие в современной учебной программе начальной школы в сумме 54 % всех учебных занятий по физкультуре, а в основной и старшей школе, где приоритет отдан игровым видам спорта, лишь 18 - 20 %.

2.3.5. Решать задачу обеспечения материальной базы физического развития учащихся основной и старшей школах (5 - 11 классы), для которых определяющими являются игровые виды спорта, плавание, лёгкая атлетика (80 % годового времени), рекомендуется при модернизации школьной сети района за счёт размещения в ней новых базовых (сетевых) школ с развитым составом спортивных помещений.

X) - характеристика и назначение спортзалов и бассейна (см. табл. 7).

2.3.6. Расчет спортивно-оздоровительных помещений базовых сетевых школ следует производить с учётом следующий конкретных условий:

1) функциональная характеристика сложившегося фонда зданий; 2) наличие соответствующей свободной территории; 3) количества учащихся, занимающихся в сетевых школах (5 - 11 классы) и др. сопутствующих факторов (см. табл. 6, 7).

2.3.7. Методика расчета сети школьных спорт. помещений на примере жилого района «Коньково» приведена в Пособии к МГСН 4.06-03, выпуск 2.

2.3.8. Для усиления материальной среды по занятиям легкой атлетикой рекомендуется на земельном участке предусматривать легкоатлетическое ядро с круговой беговой дорожкой 333 м или 250 м.

Таблица 6

Распределение учебного времени (сетка часов) по различным видам занятий физической культурой в общеобразовательных школах

 

Классы

 

I

II

III

IV

V

VI

VII

VIII

IX

X

XI

Теоретические сведения

В процессе уроков (часы)

Гимнастика

28

28

28

28

16

16

16

16

16

16

16

Легкая атлетика

-

-

-

14

20

20

20

20

20

20

20

Подвижные игры

24

24

24

14

-

-

-

-

-

-

-

Спортивные игры (волейбол, баскетбол, футбол, ручной мяч)*

-

-

-

-

16

16

16

16

16

16

16

Лыжная, или кроссовая или конькобежная подготовка**

16

16

16

16

16

16

16

16

16

16

16

Плавание***

 

 

26

26

14

14

14

14

14

14

14

Борьба****

 

 

 

 

 

 

 

10

10

 

 

Примечание:

*) Для учащихся - V - VII классов, как правило, две игры, для VIII класса - одна.

**) Кроссовая и конькобежная подготовка для бесснежных районов (вместо лыж).

***) За счет сокращения времени на другие виды занятий.

****) По усмотрению учителя за счет времени, предусмотренного для других видов занятий.

Примечание: По материалам Комплексной Программы физического воспитания учащихся 1 - 4, 5 - 9, 10 - 11 классов общеобразовательных школ (Академия Педагогических Наук СССР (1985 г.).

Таблица 7

Функциональные характеристики по видам занятий учебно-спортивных помещений общеобразовательных школ

 

Гимнастика

Подвижные игры

Спортивные игры

Легкая атлетика (элементы)

Плавание

Оздоровительная

Художественна я

Спортивная

Волейбол

Баскетбол

Гандбол

Бадминтон

Теннис

Борьба

Обучение, Оздоровительное

Учебно-спортивное

Спортзалы:

 

 

 

 

 

 

 

 

 

 

 

 

 

12´12

-

 

 

 

 

 

 

 

 

-

 

 

 

9´18

-

 

 

-

 

 

 

-

 

 

 

 

 

15´12

 

 

 

 

 

 

 

 

 

 

 

 

 

18´15

-

-

 

-

 

 

 

-

 

 

 

 

 

21´15

-

-

 

 

 

 

 

-

 

 

 

 

 

24´12

-

-

 

 

 

 

 

-

 

 

 

 

 

24´15

-

-

-

 

 

 

 

-

 

 

 

 

 

30´18

-

-

-

 

-

-

 

-

 

 

-

 

 

36´18

-

-

-

 

-

-

 

-

 

 

 

 

 

42´24

-

-

-

-

-

-

-

-

-

 

-

 

 

Бассейны с ваннами:

 

 

 

 

 

 

 

 

 

 

 

 

 

10´6

-

-

 

 

 

 

 

 

 

 

 

-

 

25´11

 

 

 

 

 

 

 

 

 

 

 

 

-

Таблица 8

Функциональные характеристики и пропускная способность учебно-спортивных залов общеобразовательных школ

Размеры

м

Площ. зала, м2

Пропускная способность залов (уч-ся)

Расчётная площади пола зала на 1 уч-ся, м2

Обслуживаемое число уч-ся

Площадь обслуживающих помещений, м2

Суммарная площадь спорт помещений (зал + обсл. пом.), м2

Площадь блока спорт помещений на 1 уч., м2

1 уч. час

В день (6 часов учебного времени)

В учебную неделю (5 дней)

В неделю (гимнастика)

В неделю

2/3

гимнас.

1/3 игров.

2 часа в неделю (гимнастика)

3 часа в неделю (2/3 гим. 1/3 игр.)

Гимнас.

Игр.в.с.

Гимнас.

Игр.в.с.

Гимнас.

Игр.в.с.

2 ч.

3 ч.

15´12

180

18

14*

108

84

140

420

540

500

360 + 140

0,66

0,72

1,00

1,1

270/250

180/167

12

2´18 + 12 + 4

232

0,46

18´15

270

22

14

162

84

810

420

810

680

540 + 140

0,66

0,79

1,0

1,2

405/340

270/227

62

2´18 + 12 + 4 + 10

332

0,49

24´15 (12)

360 (288)

36 (28)

18 (14)

216 (168)

1080 (840)

1080 (840)

1080

720 + 360

0,66

10

540/420

360/280

Ж

4´18 + 16 + 4 + 10

462

0,42

108 (84)

540 (420)

30´18

540

54

36*

324

216

1620

1080

1620

1440

1080 + 360

0,66

0,75

10

1,13

810/720

540/480

140 (182) 4 (6)´21 + 32 + 4 + 20

680 (722)

0,5

36´18

648

60*

36*

360

216

1800

1080

1800

1560

1200 + 360

0,72

0,83

1,1

1,25

900/780

600/520

140 (182)

938 (788)

0,6 (0,5)

4 (6)´21 + 32 + 4 + 20

42´24

1008

100

67*

600

402

3000

2010

3000

2670

2000 + 670

0,67

0,76

1,0

1,13

1500/1335

1000/890

280 (356)

8 (12)´21 + 8 + 2´32 + 40

1364 (1288)

0,51

Примечание:

*) Справочное пособие к СНиП «Проектирование спортивных залов, помещений для физкультурно-оздоровительных занятий» (1991 г.).

2.4. Специализированная группа помещений - художественно-эстетического воспитания

2.4.1. Художественно-эстетическое воспитание, является одним из важнейших элементов разностороннего развития школьника и требует соответствующей материально-технической базы.

Эта база в существующих школах чрезвычайно бедна и, как правило, ограничивается одним или двумя небольшими помещениями, а подчас полностью отсутствует.

2.4.2. Основы формирования этой группы помещений заложены в нормах проектирования общеобразовательных учреждений МГСН 4.06-03, таблица Ж2.

Основными помещениями являются студии: 1) изобразительного искусства; 2) музыки и пения; 3) хореографии танцев; 4) драмкружка и т.д. Студия является наиболее универсальным помещением, её оптимальные размеры - 12´12 м (144 м2), площадь подсобных помещений от 18 до 50 м в зависимости от их назначения.

2.4.3. Примерный состав специализированных помещений художественно-эстетического воспитания для сетевых школ, приведены в таблице 9.

2.5. Специализированная функциональная группа помещений творческого развития

В группу помещений творческого развития включены три сферы деятельности: Природа, Техника и Искусство, в которых наряду с углубленным изучением предмета решаются задачи по творческому развитию учащихся (юные натуралисты, юные техники, изобразительное искусство).

Указанные специализированные группы помещений могут формироваться в составе отдельных сетевых школ или входить в разнообразные учебно-воспитательные центры жилых районов.

Таблица 9

Примерный состав специализированной группы помещений художественно-эстетического воспитания

Наименование помещений

Площади помещений, м2

1

Учебный кабинет эстетики и синтеза искусств с полиэкраном

90

2

Студия изобразительного искусства, на 12 мест

144

Подсобные помещения:

 

живописи

36

скульптуры

36

кладовая хранения работ и материалов

50

комната преподавателя

18

3

Студия музыки и пения на 24 места

144

Комната хранения муз. инструментов

54

3´18

Комната преподавателя

18

4

Студия хореографии на 12 мест

144

Раздевальная

50

2´25

Комната хранения костюмов

50

Комната преподавателя

18

5

Студия драматического искусства - кукольный театр (12 мест)

144

Подсобные комнаты - артистические

100

4´25

Комната хранения костюмов

50

Комната преподавателей

18

6

Студия строительного искусства и архитектуры (12 мест)

144

Подсобные помещения

108

3´36

Комната преподавателя

18

7

Студия универсальная

144

Подсобные помещения

50

Комната преподавателя

18

Таблица 10

Примерный состав специализированных групп помещений творческого развития

Наименование помещений

Сферы творческой деятельности

«Природа»

«Техника»

«Искусство»

м2

1

Музей - информационный центр

325

325

325

2

Учебные кабинеты теории

280

4´70

280

4´70

280

4´70

3

Рабочие комнаты - практикумы для опытной работы

216

4´36 + 4´13

-

-

4

Учебные кабинеты биологии

108

-

-

5

Кладовые - комнаты хранения макетов, пособий

50

50

50

6

Рабочие комнаты творческой деятельности

-

360

2´108 + 4´18

250

4´50 + 2´25

 

Универсальные кабинеты по общеобразовательным дисциплинам

840

12´70

Далее см. Пособие к МГСН 4.06-03

Приложение табл. Ж-14

Приложение табл. Ж-13

Приложение табл. Ж-12

Примечание:

1) Состав и площади функциональных групп помещений (зрительного зала, административных, столовой и т.д. см. по расчетным показателям общеобразовательной школы).

2) Наполняемость учебной группы - 20 учащихся.

2.6. Специализированная функциональная группа помещений оздоровительно-медицинского назначения (оздоровительная школа)

2.6.1. Оздоровительная общеобразовательная школа трактуется, как сетевая школа, позволяющая на её базе обучать постоянно и эпизодически учащихся с ослабленным здоровьем.

2.6.2. В составе этой группы предусматриваются помещения следующего назначения:

- оздоровительно-медицинская;

- психологической и эмоциональной разгрузки;

- терапевтической коррекции;

- информации и разработки индивидуальных, альтернативных, оздоровительных и учебно-воспитательных программ;

2.6.3. Каждая учебная группа численностью 12 учащихся проводит в данной школе 50 % учебного времени, остальное время она проводит в соседней школе района либо в режиме надомного обучения. Учебная группа численностью 20 - 24 учащихся обучается постоянно (100 % времени).

2.6.4. Предусматривается индивидуальный подход к обучению учащихся, для чего должны разрабатываться индивидуальные методические и учебно-оздоровительные программы на основе различных форм обучения и индивидуальных особенностей детей.

2.6.5. Оздоровительные мероприятия, осуществляемые в данной школе, включают помимо медицинского наблюдения, различные коррекционные и компенсационные мероприятия, а также эмоционально-художественные и оздоровительно-спортивные занятия (см. табл. 11, 12, 13).

2.6.6. Сетевые школы - учебные центры, помимо специализированных функциональных групп помещений, должны в своем составе иметь основные функциональные группы общеобразовательных школ (учебные и общешкольные). В каждом конкретном случае их число и площадь принимается исходя из градостроительной ситуации. Следует так же предусматривать рекреационный центр - досуга (см. МГСН 4.06-03, табл. Ж-8).

2.6.7. Возможна кооперация сетевых школ разного назначения в единые учебные комплексы.

Таблица 11

Примерный состав помещений оздоровительного назначения

Функциональные группы

Наименование помещений

Площадь, м2

1

Спортзалы - оздоровительные

Спортзал 12´24*

288

Зал лечебной гимнастики и реабилитации (12´12 м)

144

- раздевальные

165

6´27,5

- снарядные

64

2´32

- комната инструктора

18

2´9

- комната уборочного инвентаря

8

4 + 4

Бассейн

Ванна 16´9 глубиной 0,8 м - 1,2 м

288

- раздевальные при ванне

130

2´65

- инструкторская

12

- медсестра с лабораторией

12

2´6

- служебно-бытовые помещения

21

12 + 9

2

Психологической разгрузки и эмоционально-художественного воспитания

Плескательно-игровой бассейн с ванной 6´12 м, глубиной 0,6 - 0,4 м

144

раздевальные

55

2´27,5

Студия музыки с подсобными помещениями

144

Студия изобразительного искусства с подсобными помещениями

144

Студия хореографии с подсобными помещениями

144

Зал творческой деятельности и прикладного искусства

144

Помещения при студиях для хранения инвентаря, комнаты преподавателей, с/у

100

3

Помещения терапевтической коррекции

Изостудия

38

Кабинет музыкальных занятий

32

Театрально-художественная мастерская

50

Кукольная (изготовление) мастерская с кладовой

40

Кладовые

60

4´15

Санузлы учащихся

по нормам

Таблица 12

Примерный состав медицинской группы помещений

Функциональная группа

Название помещений

Площадь, м2

1

Медицинские помещения

Кабинет врача-педиатра

15

Кабинет медицинской сестры

14

Процедурная

18

Кабинет врача ЛФК

17

Кладовая

8

Зал групповых занятий ЛФК с кладовой и раздевалкой

64

50 + 8 + 6

Фитокабинет

14

Кабинет физиотерапии

24

Кладовые

16

2´8

Кабинет стоматолога

14

Кабинет логопеда

42

3´14

Кабинет массажа

24

Комната отдыха массажистов с санитарным узлом

16

Кабинет психолога

17

Кабинет «вода-песок» с подсобными помещениями

22

16 + 6

Кабинет групповой психотерапии

31

Кабинет терапии

12

Кабинет дефектолога

14

Инвентарная

24

Комнаты хранения чистого и грязного белья

12

6 + 6

Санузлы для учащихся

12

Санузлы для персонала

8

Комната личной гигиены для женщин (при санузле для женщин)

8

Таблица 13

Примерный состав группы помещений информации и разработки альтернативных учебных программ

Функциональная группа

Название помещений

Площадь, м2

1

Помещения информации и разработки индивидуальных учебных программ

Библиотека и медиатека с местами для занятий учащихся

180

Зал множительной техники

50

Методический кабинет для разработки индивидуальных учебных программ

60

Учительская

80

Комнаты для индивидуальных занятий (рабочие комнаты)

60

3´20

Компьютерные классы (на 6 чел).

100

2´50

3. Характеристика сложившейся сети школьных зданий г. Москвы (по сектору Центр - Периферия)

Сеть школьных зданий Москвы формировалась этапами в течение многих десятилетий и весьма не однородна по территории от центра к периферии.

В настоящих Рекомендациях приведены характеристики жилых районов от центра к периферии юго-западного направления (рис. 4). Это районы «Басманный» в пределах Садового кольца, район «Хамовники» за пределами Садового кольца, район «Черемушки», район «Коньково» и район нового современного строительства «Южное Бутово».

3.1. Сеть школьных зданий района «Басманное» (Центральный административный округ) сформировалась из зданий школ, построенных по индивидуальным проектам до 30-х годов, зданий школ 30 - 40-х годов, возведенных по первым типовым проектам, в которых были предусмотрены в основном только классные комнаты, школ 50-х годов, в которых дополнительно к классным помещениям были предусмотрены: спортзал 9´18 м и актовый зал на 5-м этаже. Главной задачей этого периода школьного строительства было наращивание фонда классных помещений, необходимых для решения задачи обеспечения всеобщей грамотности. Такие школы с некоторыми изменениями сохранились до наших дней. Многие из них, пришли в негодность и подлежат сносу, некоторые могут быть модернизированы.

Примеры таких проектов 30-х и 50-х годов приведены на рис. 5 и 6, технические данные - в табл. 3-1, 3-2. В подобных проектах, как правило, на одного учащегося в среднем приходится 2,8 - 3,8 м2 расчетной площади.

Земельные территории этих школ, как правило, малы (от 0,34 га до 0,4 га) и не позволяют осуществить пристройки в целях модернизации этих зданий.

3.2. Сеть школьных зданий района «Хамовники» состоит отчасти из тех же типов зданий школ, что и в «Басманном», но к ним добавлены школы типа МЮ (рис. 7, табл. 11) со спортзалом 9´18 м. На одно ученическое место в среднем приходится примерно 3,6 м2 расчетной площади. Земельная территория в пределах 0,3 - 1 га. В отличие от района ЦАО, здесь имеются некоторые возможности на отдельных участках возвести дополнительно учебные блоки-пристройки.

3.3. В районе «Черемушки» основу существующей сети школ составляют школы типа МЮ, а так же школы типа 65-426/1. На одного учащегося в среднем приходится 4,1 м2 площади. Здания имеют участки размером от 1,2 до 2,4 га, что в отличие от предшествующих районов позволяет найти место для пристроек строительства новых сетевых школ для расширения материально-педагогической базы и приближения к современным требованиям.

3.4. В районе «Коньково» сеть школьных зданий сформирована из типовых школ 80-х годов. Это здания типа 65-426/1 и типа У-76 (данные приведены в табл. 3-4, 3-5, а также на рис. 8, 9). Материально-техническая характеристика зданий значительно выше: на одного учащегося приходится в среднем 6 м2 нормируемой площади.

Участки школ с частью земельных территорий приближается к 2 га, что дает возможность осуществления пристроек и строительства новых сетевых школ и учебных центров.

3.5. Район «Южное Бутово» (новое строительство) формируется из зданий типа V-92 с более современной материальной средой 6,4 м2 на одного учащегося (данные приведены в табл. 3-6 и на рис. 10), которые имеют в своем составе спортзалы размером 12´24 м и др. общешкольные помещения. Однако это ниже контрольных показателей действующих норм на строительство массовых школ.

Размеры участков школ также позволяют предусмотреть пристройки и новое строительство сетевых школ.

Планом развития района предусмотрена также территория (порядка 4 га) для строительства Учебно-воспитательного комплекса, который по идее должен компенсировать недостающие помещения в целом по сети школ.

Рис. 4 Схема размещения районов - пример реконструкции школьной сети

Б - «Басманный»; Х - «Хамовники»; Ч - «Черемушки»; К - «Коньково»; ЮБ - «Южное Бутово».

Таблица 3-1

Структурная карта основных функциональных групп помещений проекта школы на 22 класса (по нормам 1935 г.) на 880 учащихся

Учебная группа помещений

Общешкольная группа помещений

Наименование помещений

Состав, площадь (м2)

Всего

Наименование помещений

Состав, площадь (м2)

Основные учебные:

70 м2

70´2

-

Обеденный зал

60

50 м2

50´22

1240/24

Прочие (вестибюль)

Рекреация

560

500

Вспомогательные

-

70

 

 

Библиотека

-

70

 

 

Итого по группе

1380

Итого по группе

1120

Всего площадь, расчетная по зданию

2500/2,8

Примечания:

1. По учебной группе помещений в колонке «Всего» в числителе дана суммарная площадь помещений, в знаменателе - их количество.

Таблица 3-2

Структурная карта основных функциональных групп помещений проекта школы (по нормам 1956 г.) на 920 учащихся 23 класса

Учебная группа помещений

Общешкольная группа помещений

Наименование помещений

Состав, площадь (м2)

Всего

Наименование помещений

Состав, площадь (м2)

Основные учебные:

 

 

 

 

- более 70 м2

80´2

1495/29

Спортивно-оздоровительные

173/1

- 70 - 50 м2

50´22; 69´1; 62´1; 70´1

Зрительный зал

184/1

- менее 50 м2

17´2

 

Прочие (вестибюль)

684

Мастерские

52´1; 69´1

121/2

Рекреации

500

Вспомогательные

-

220

 

 

Библиотека

-

80

 

 

Прочие (администрация)

-

70

 

 

Итого по группе

1865

Итого по группе

1541

Всего площадь расчетная по зданию 3527/3,83

Примечания:

1. По учебной группе помещений в колонке «Всего» в числителе дана суммарная площадь помещений, в знаменателе - их количество.

2. По общешкольной группе помещений в колонке «Состав, площадь (м2)» в числителе дана суммарная площадь помещений, в знаменателе - их количество.

Рис. 5 Проект школы по нормам 1935 г. на 880 учащихся (22 класса)

Рис. 6 Проект школы по нормам 1956 г. на 920 учащихся (23 класса)

Рис. 7 Типовой проект школы МЮ

Главный фасад, план 1-го этажа, план основного этажа, разрез

1 - основные учебные помещения, 3 - административные, 4 - спортзал, 7 - столовая, рекреации заштрихованы.

Таблица 3-3

Структурная карта основных функциональных групп помещений типового проекта МЮ

Учебная группа помещений

Общешкольная группа помещений

Наименование помещений

Состав, площадь (м2)

Всего

Наименование помещений

Состав, площадь (м2)

Основные учебные:

165´1

541,2/5

Спортивно-оздоровительные, в т.ч. зал и обслуживающие помещения

234/(9´18) + 67

- более 70 м2

102´3; 70,1´1

- 70 - 50 м2

50´15;52´1; 63,4´2

928,6/18

Зрительного зала, в т.ч. зал и обслуживающие помещения

192/159 + 33

- менее 50 м2

30,8´3

92,4/3

 

 

Вспомогательные

30,8´1; 65,6/3

 

Столовая

101,2/32 + 69,2

Библиотека

17,4´2; 66,9

 

Прочие (вестибюль)

207,7

Прочие (административные)

-

235,5/12

Рекреации

495,45

Итого по группе

1930,4

Итого по группе

1229

Всего площадь расчетная по зданию 3159,4/3,6

 

Примечания:

1. По учебной группе помещений в колонке «Всего» в числителе дана суммарная площадь помещений, в знаменателе - их количество.

2. По общешкольной группе помещений в колонке «Состав, площадь (м2)» в числителе дана суммарная площадь помещений, в знаменателе - площадь залов + площадь обслуживающих помещений.

Таблица 3-4

Структурная карта основных функциональных групп помещений типового проекта 65-426/1

Учебная группа помещений

Общешкольная группа помещений

Наименование помещений

Состав, площадь (м2)

Всего

Наименование помещений

Состав, площадь (м2)

Основные учебные: - более 50 м2

 

 

Спортивно-оздоровительные, в т.ч. зал и обслуживающие помещения

344,2/(24´12) + 78

- 50 м2

66´5; 54´6

50´15

1640/31

Зрительного зала, в т.ч. зал и обслуживающие помещения

274/233 + 41

- менее 50 м2

48´5

 

Свободного творчества

19,4

Вспомогательные

50´1; 16´4

114/5

Столовая

240/164 + 76

Библиотека

-

49,9

Прочие (вестибюль)

314

Прочие (админ.)

-

238/15

Рекреации

856

Итого по группе

2041

Итого по группе

2047

Всего площадь расчетная нормируемая по зданию 4089/4,1

Примечания:

1. По учебной группе помещений в колонке «Всего» в числителе дана суммарная площадь помещений, в знаменателе - их количество.

2. По общешкольной группе помещений в колонке «Состав, площадь (м2)» в числителе дана суммарная площадь помещений, в знаменателе - площадь залов + площадь обслуживающих помещений.

Рис. 8 Типовой проект школы 65-426/1

Главный фасад, план 1-го этажа, план 2-го этажа, разрез

1 - основные учебные помещения, 2 - библиотека, 3 - административные, 4 - спортзал, 5 - зрительный зал, рекреации заштрихованы.

Таблица 3-5

Структурная карта основных функциональных групп помещений типового проекта V-76

Учебная группа помещений

Общешкольная группа помещений

Наименование помещений

Состав, площадь (м2)

Всего

Наименование помещений

Состав, площадь (м2)

Основные учебные:

- более 70 м2

75´11

825/11

Спортивно-оздоровительные, в т.ч. зал и обслуживающие помещения

465,3/288 + 75 + 97,5

- 70 - 50 м2

59´4; 56´22

1468/26

Зрительного зала, в т.ч. зал и обслуживающие помещения

272/216 + 56

- менее 50 м2

37´2

74/2

 

 

Вспомогательные

18´5; 15´3; 56´1

191/9

Столовая

417/183 + 234

Библиотека

 

69

Прочие (вестибюль)

290,6

Прочие (административные)

 

407

Рекреации

2616

Итого по группе

3034,2

Итого по группе

4060

Всего площадь расчетная нормируемая по зданию 7094/6

Примечания:

1. По учебной группе помещений в колонке «Всего» в числителе дана суммарная площадь помещений, в знаменателе - их количество.

2. По общешкольной группе помещений в колонке «Состав, площадь (м2)» в числителе дана суммарная площадь помещений, в знаменателе - площадь залов + площадь обслуживающих помещений.

Рис. 9 Типовой проект школы У-76

Главный фасад, план 1-го этажа, план 2-го этажа, разрез

1 - основные учебные помещения, 3 - административные, 4 - спортзал, 5 - зрительный зал, заштрихованы рекреации

Таблица 3-6

Структурная карта основных функциональных групп помещений типового проекта V-92

Учебная группа помещений

Общешкольная группа помещений

Наименование помещений

Состав

Площадь (м2)

Всего

Наименование помещений

Состав

Площадь (м2)

Основные учебные: - более 70 м2

92´2; 75´4;

74´3

705,5/9

Спортивно-оздоровительные, в т.ч. зал и обслуживающие помещения

574/288 + 152 + 144

- 70 - 50 м2

58´1;56´18;

54´2

1170/21

Зрительного зала, в т.ч. зал и обслуживающие помещения

198/142 + 56

- менее 50 м2

37´2

74/2

Свободного творчества

165/4

Вспомогательные

37´3; 73´1; 18´3; 16´2

258/10

Столовая

363/170 + 193

Библиотека

 

73

Прочие (вестибюль)

483

Прочие

 

482,5

Рекреации

858

Итого по группе

2762

Итого по группе

2641

Всего площадь расчетная нормируемая по зданию 5403/6,4

Примечания:

1. По учебной группе помещений в колонке «Всего» в числителе дана суммарная площадь помещений, в знаменателе - их количество.

2. По общешкольной группе помещений в колонке «Состав, площадь (м2)» в числителе дана суммарная площадь помещений, в знаменателе - площадь залов + площадь обслуживающих помещений.

Рис. 10 Типовой проект школы У-92

Боковой фасад; план 1-го этажа; план 2-го этажа; разрез; 1 - основные учебные помещения, 3 - административные, 4 - спортзал, 5 - зрительный зал; рекреации заштрихованы

Таблица 3-7

Технико-экономическая характеристика зданий школ, построенных по проектам прошлых лет

Наименование показателей

Типовые проекты

МЮ

65-426/1

V-76

V-92

Основные показатели

По проекту

по МГСНх)

По проекту

по МГСНх)

По проекту

по МГСНх)

По проекту

по МГСНх)

Наполняемость классов-кабинетов (уч.)

36

16

36

16

36

16

36

16

Вместимость здания (уч.)

880

240

1000

256

1176

352

844

256

Удельный показатель нормируемой (расчетной) площади (м2)

3,6

13,0

4,1

16,0

6,0

20,1

6,4

21,1

В т.ч. по учебной группе

2,2

8,0

2,0

8,0

2,57

8,6

3,3

10,8

По общешкольной группе

1,4

5,1

2,1

8,0

3,45

11,5

3,1

10,3

Примечание:

х) показатели при перерасчете на действующие нормы

4. Расчет материальной среды базовых школ на основе системного (комплексного) подхода к организации сети зданий общеобразовательных школ жилого района (на примере района «Басманный»)

4.1. На территории района «Басманный» (в пределах Садового кольца) расположено 12 объектов образования. Из них 5 специализированных школ: спортивная, музыкальная, вспомогательная, национальная (еврейская) школы и УПК (учебно-производственный комбинат). Среди общеобразовательных учреждений (всего 7) находятся гимназия и школа с изучением французского языка. Остальные 5 школ относятся к традиционным общеобразовательным школам. Все эти школы, построенные еще до 50-х годов по первым типовым проектам и имеют устаревший состав помещений, не отвечающий современным педагогическим требованиям. Несколько позже к отдельным из них были пристроены спортзалы (8´16, 8´21 и 9´13 м). Общая площадь 5-ти этих зданий составляет (3401 + 3232 + 3154 + 3588 + 4662) 18037 м2. В них обучается (483 + 345 + 523 + 608 + 523) 2482 учащихся. Таким образом, на 1 учащегося приходится 18037/2482 = 7,3 м2 общей площади или 5,5 м2 нормируемой площади. Анализ состава помещений общеобразовательных школ района приведен в табл. Б-1.

4.2. Нормами проектирования общеобразовательных учреждений МГСН 4.06-03 на одного учащегося предусматривается 12,4 м2 расчетной площади. Дефицит составляет (12,4 - 5,5) 6,9 м2 (без учета создания материальной базы профильного обучения и бассейна для обучения плаванию).

4.3. При реконструкции каждой школы отдельно к ним необходимо пристроить блоки недостающих помещений (довести до уровня современных норм) суммарной расчетной площади (6,9´2482) 17126 м2 (22606 м2 общей площади). Без учета создания базы специализированных учебных кабинетов для дифференцированного профильного обучения старших классов. Для создания этой базы к каждой школе необходимо пристроить дополнительно, (согласно расчетным таблицам 3, 4 и 5) блок помещений с расчетной площадью (564 + 727 + 332 м2) 1623 м2, а по 5 школ это составит (1623´5) 8115 м2. При этом происходит распыление базы профильного обучения и образуются группы помещений с низкой эффективностью использования (при каждой школе).

4.4. Более целесообразным для решения «подтягивания» материальной базы школ до уровня современных норм является путь системного (сетевого) подхода, когда все сосредоточено в «одном месте» создается концентрированная база, обеспечивающая потребности не одной школы, а всей сети окружающих школ.

В районе «Басманный» таким реальным местом является школа 310, которая подлежит сносу. Благодаря сносу появляются условия для создания концентрированной базы специализированных кабинетов и некоторое улучшение базы спорта для группы из 5-ти общеобразовательных школ. Ограничивающим фактором здесь является малая площадь участок - (0,43 га) освобождающегося участка. Схема организации сети школ района «Басманный» приведена на рис. Б-1 (предложение).

4.5 Расчет дополнительных помещений школы № 310 (Б. Харитоньевский пер.)

4.5.1. Общее количество учебных групп учащихся района исходя из наполняемости классной группы 25 чел., составляет (2482:25) 100 классов или 9 параллелей учащихся 1 - 11 классов. Из них старшие 8 - 11 классы, которым необходима более совершенная материально-техническая база (специализированные блоки помещений профильного обучения и игровые спортзалы) составляют 38 классов.

4.5.2. Расчет централизованной группы помещений профильного обучения на сеть школ района (5 школ) проводится следующим образом.

В общей структуре возрастных классов на район «Басманный» приходится 38 классов (8 - 11 классы), которые в соответствии с задачами дифференцированного обучения должны иметь соответствующую базу.

В неделю должны проходить обучение в помещениях практикумов 960 учащихся. Каждый учащийся занимается в практикумах примерно 2,5 раза. Следовательно, реально требуется 384 места (960/2,5), а на каждый учебный день недели необходимо иметь 76 мест (384/5). Иными словами необходимо 7 учебных помещений по 10 мест.

На район необходимо предусмотреть три блока профильного обучения по направлениям физики, химии и биологии в соответствии с нормами должны иметь по два помещения практикума и по одному помещению лабораторий. Этого достаточно для формирования материальной базы естественных наук.

Дополнительно необходимо иметь один блок изучения техники и технологий с соответствующим набором практикумов и лабораторий, а так же один блок дифференцированного обучения гуманитарным дисциплинам.

Примерный состав и площадь помещений, указанных выше блоков профильного обучения приведены ниже в табл. Б-3.

4.5.3. Расчет спортзалов на сеть школ района (пять школ) проводится следующим образом.

Рассчитывается с ориентацией в основном на спортзалы игрового назначения, т.к. в учебной программе по физкультуре отводится 20 % времени на гимнастику и 80 % на игровые виды спорта и плавание.

В соответствии с данными расчетной таблицы 8 на сеть школ района требуется 2 зала размером 30´18 м и 2 зала размером 24´15 (12) м, 2 зала 15´12 м.

Существующие школы двух спортзалов не имеют, в двух имеются залы 8´21 м, 12´24 м и 9´18 м, по пятой школе данных по спортзалу нет.

Следовательно, на сеть школ района дополнительно потребуется 2 зала 30´18 м и 1 зал 24´15 м или другие варианты в зависимости от возможностей участка. Предусматривать полноценный плавательный бассейн на 5 школ не рационально из-за его неполноценной загрузки по учебным часам. В этих условиях целесообразно предусмотреть бассейн с ванной 10´6 (12´6) м для реализации программы обучения плаванию учащихся 3 - 4 классов.

Бассейн с подобной ванной дает возможность заниматься в час 12 - 15 учащимся, в течение учебного дня - до 75 учащимся, а в течение недели 375 учащихся. Общее количество учащихся 3 - 4 классов составляет 400 человек (16 классов). На плавание учебной программой отводится в неделю 3 часа на класс, таким образом, все учащиеся 3 - 4 классов района «Басманное» будут обеспечены учебным плаванием. Во внеучебное время бассейн может использоваться для оздоровительных процедур учащихся 1 - 2 классов и детского населения района. Примерный состав и площади необходимых помещений приведен в табл. Б-4.

4.5.4. Таким образом, с учетом решения материальной среды базы специализированного обучения при каждой из пяти школ потребуется 25240 м2 (17126 + 8115) или 33318 м2 общей площади, с удельными показателями на сеть зданий: расчетная площадь - 10,16 м2, общая - 13,42 м2. Это значительно выше, чем мы получаем при создании базовой школы с концентрированным составом специализированных учебных кабинетов и некоторого (не полного) расширения базы спорта (последнее зависит от наличия соответствующих земельных участков при школах данного жилого района): расчетная площадь - 6,75 м2, общая площадь - 8,37 м2.

Сопоставляя суммарную расчетную площадь, требуемую к отдельным школам с расчетными показателями, образуемыми при организации базовой сетевой школы, имеем экономию на одно ученическое место порядка к МГСН 4.06-03 и 3,41 м2 (33,5 %).

4.6. Примером сетевой школы может служить проект общеобразовательной школы № 310 по Б. Харитоньевскому пер. вл. 4 (чертежи приведены на рис. Б-1, Б-3, Б-4). Основная концепция здания сводится к созданию двухкомплектной школы (22 класса), но с развитым комплексом специализированных кабинетов по естественным наукам, технике и социально-гуманитарным дисциплинам, позволяющим охватить 14 классов 8 - 11 профильного обучения, 10 - 11 классов постоянного обучения и 8 - 9 классов приходящих, сформированных вокруг учебно-информационного центра (верхний 4-й этаж) и блока спортивных помещений: игрового спортзала 30´18 м, гимнастического зала 18´15 и бассейна с ванной 10´6 м для обучения плаванию.

Блок специализированных кабинетов содержит расширенную базу практикумов по естественным наукам, технике и социально-гуманитарным дисциплинам. Состав и площади помещений блока приведены в табл. Б-3 и скорректированы в табл. Б-5.

Размер участка данной школы не позволяет предусмотреть спортблок, необходимый для сети школ жилого района «Басманное», как это удалось сделать по блоку кабинетов профильного обучения 8 - 11 классов.

Оставшуюся часть, необходимых по расчету спортзалов (табл. Б-4) целесообразно разместить в зоне существующих спортшкол по Б. Харитоньевскому переулку при условии расширения земельного участка существующей спортшколы. Предложенная реконструкция сети школ основана на том, что учащиеся 8 - 11 классов, обучающиеся в общеобразовательных школах района, будут посещать 2 - 3 раза в неделю базовую школу № 310 для углубленных занятий выбранного ими направления профильного обучения. Учащиеся 3 - 4 классов этих же школ будут обучаться плаванию в базовой сетевой школе.

Таблица Б-1

Технические показатели существующих школ района «Басманное» (в пределах Садового кольца)

Наименование объекта

Адрес учреждения

Проектная мощность (мест/учащ.)

Тип,

год строительства

Общая площадь

нормир. площ. здания

м2

Площадь участка (га)

1

2

3

4

5

6

7

1.

Школа № 312

Потаповский пер., 16, стр. 10

420/483

ТП 1937 года, 1937 г. о/с

3401

2721 - 2616

0,34

2.

Школа № 661

Ул. Покровка, 10

350/345

ТП 1936 года, 1936 г. о/с

3232

2586 - 2486

0,45

3.

Школа № 1227 (гимназия)

Б. Трехсвятительский пер., 4/3

650/724

Приспос. пом., до 1917 г.

3517

0,18

4.

Школа № 613

Ул. Чаплыгина, 9, стр. 3

500/523

ТП 1936 - 1937 гг., 1939 г. о/с

3154

2523 - 2426

0,65

5.

Школа № 310

Б. Харитоньевский пер., 4

500/603

ТП 1952 года, 1952 г. о/с

3588

2870 - 2760

0,43

6.

Школа № 330

Б. Казенный пер., 9

660/523

Инд. пр., до 1917 г. о/с

4662

3730 - 3586

0,31

7.

Школа № 1225 (франц.)

Лялин пер., 12.23/29

600/511

Инд. пр., 1953 г. встр.

5213

0,35

Специализированные школы

8.

Вспомогат. школа № 359

Армянский пер., 3-5, стр. 9

 

Присп. пом., 1939 г. о/с

3795

0,46

9.

Спортивная школа № 21

Б. Харитоньевский пер., 22

 

Инд. пр. о/с

1272

0,28

10.

Музыкальная школа № 5

Ул. Покровка, 39

 

Присп. пом. о/с

864

0,12

11.

Национ. гос. школа

Ул. Огородная Слобода, 7а

 

ТП 1936 - 1937 гг. 1938 г.

3729

0,54

12.

УПК

Лялин пер., 3а

 

ТП 1936 года, 1938 г. о/с

3401

0,37

 

ИТОГО

 

 

 

13061

 

Таблица Б-2

Состав и площади помещений существующих общеобразовательных школ района «Басманное» (в пределах Садового кольца).

Наименование помещений

Номера школ

№ 661

№ 310

№ 613

№ 312

Мест по проекту

350

500

500

420

Количество учащихся

345

603

523

483

Площадь, м2

Количество

1

2

3

4

5

Учебная группа помещений

Основные учебные:

 

 

 

 

- более 60 м2

262,3

4

270,9

5

279,3

5

273,4

4

- от 90 м2

459

9

784,3

16

638

13

387,6

7

- от 50 до 40 м2

345,8

7

107,5

6

199,2

6

446,4

9

- менее 40 м2

66,8

4

107,5

6

199,2

6

357,9

3

Технология (мастерские)

-

190,3

3

125,2

2

99,53

1

библиотека

81,1

95,3

85

87,4

Прочие (администрация)

425,9

342,9

455,9

428,8

14

7

11

11

Всего по учебной группе

1640,9

1898,7

1981,8

2081,03

Общешкольная группа помещений

Спортзалы

 

147,8 (8´16)

166,4 (8´21)

303,4 (12´24)

158,7 (9´13)

Вспомогательные помещения

 

141,3 в подвале

 

81,04

Зрительный зал

156,3

189,9

103,6

 

Вспомогательные помещения

 

41,8

 

 

Столовая (обеденный зал)

167,3

119,4

412,3

157,13

Прочие (вспомогательные помещ.)

158,6

167,24

163

84,63

Коридоры, рекреации

424

396,8

661,28

649,69

Итого по группе

906,2

1204,24

1506,58

1131,19

Всего по школе

2547,1

3102,94

3488,38

3212,22

На одного учащегося

7,4

5,1

6,7

6,6

Примечание:

1) Данные таблицы составлены по показателям существующих зданий школ (№ 661, 310, 613, 312)

2) По школе.№ 330 конкретные данные по составу помещений отсутствуют

3) Расчетная площадь на 1 ученическое место по МГСН 4.06-03 составляет 12,4 м2

Таблица Б-3

Предложение по состав и площадям помещений блока специализированных учебных кабинетов для профильного обучения учащихся 8 - 11 классов района «Басманное» (в пределах Садового кольца).

Наименование помещений

Площадь, м2

Специализированная группа учебных кабинетов

 

ЕН - естественнонаучного направления

280

4´70

лаборатории физики, химии, биологии

300

6´50

- практикумы

- лаборантские

144

4´36

- ресурсный центр

72

Т* - направление техники и технологий:

 

учебный кабинет с лаборантской

116хх

практикум

135

кладовая для хранения сырья и материалов

24

Г - социально-гуманитарное направление:

76

учебный кабинет практикум

54

3´18

ресурсный центр

12

ВГ - на 120 учащихся

СУ учащихся

63

18

Расчетная площадь

1294

Примечание:

хх) С учетом наличия в районе учебно-производственного комбината.

Таблица Б-4

Примерный состав и площадь спортивных помещений для обслуживания общеобразовательных школ района «Басманное» (в пределах Садового кольца)

Наименование помещений

Площадь, м2

Спортзалы

 

30´18

540

30´18

540

15´12

180

24´15 (12)

360 (288)

раздевальные

288

12´24

снарядные

108

2´(36 + 18)

комната инструктора

60

4´15

вестибюль-гардероб

63

Бассейн с ванной 10´6 м

180

раздевальные

18

2´9

шкафы

24

2´12

душевые

20

2´(5´2)

уборные

8

2´4

помещение инструктора

72

12´6

помещение медсестры с лаборантской

12

2´6

вестибюль - гардероб (30 уч.´1,5 по 0,35 м2)

20

Примечание:

Расчет блока спортзалов и бассейна для обучения плаванию проведен в соответствии с учебной программой по физическому развитию школьников.

Рис. Б-1. Предложение по реорганизации сети школ района «Басманное», (в пределах Садового вальца).

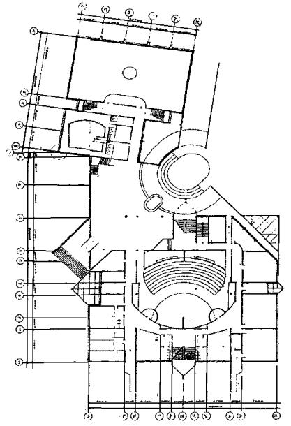
Рис. Б-2. Проект школы по Б. Харитоньевскому пер., вл. 4. Схема генплана. (Базовая школа сетевого обслуживания с профильным обучением учащихся 10 - 11 классов).

Рис. Б-3 Проект школы № 310 по Б. Харитоньевскому пер., вл. 4, план 1-го этажа

Рис. Б-4 Проект школы № 310 по Б. Харитоньевскому пер., вл. 4 Аксонометрия

Таблица Б-5

Примерный состав и площади помещений общеобразовательной школы с профильным обучением учащихся 8 - 11 классов в районе «Басманное» по адресу Б. Харитоньевский пер., вл. 4

Наименование помещений

36 классов СШД (ПО)

420 + 1080 = 420 + 1080 = 1500 уч.

1

2

Начальная школа:

1-е классы

70

спальные игровые

70

рекреация

70

2 - 4 классы

210

3´70

универсальные помещения продленного дня

70

комнаты труда

90

рекреация

150

учительская - методический кабинет

40

Основная школа:

 

5 - 9 классы

350

5´70

рекреация

250

Старшая школа:

280

Учебные кабинеты 10 - 11 классов Рекреация

280

4´70

Рекреация

432

Специализированные кабинеты основной и старшей школы:

 

Естественные науки (физика, химия, биология):

210

3´70

Лаборантская

300

6´50

Практикум

72

4´18

Специализированные кабинеты:

 

Иностранного языка

120

3´40

Информатики и вычислительной техники

140

тех черчения и рисования

90

компьютерный класс

70

аудитория на 3 группы

100

Кабинет изучения техники и технологий с лаборантской

108

90 + 18

Практикум

135

Клад, хранения материалов

24

Кабинет социально-гуманитарного направления

76

Практикум

54

3´18

Ресурсный центр

12

Помещения изучения технологий (трудовое обучение):

 

Мастерская по обработке металла и технологии

90

Инструментальная

24

Мастерская по обработке дерева и технологии

90

Мастерская по обработке тканей и технологии

90

Кулинария

50

Электрорадиотехнология

108

Библиотека - справочио-информационный центр

575

Методический кабинет с учительской (5 - 11 классов) и зоной отдыха

90

Вестибюльная группа учебных помещений, администрация, медицинские комнаты:

 

Кабинет директора

25

Кабинет замдиректора по учебно-воспитательной работе

10

Кабинет организатора внеклассной и внешкольной работы

12

Кабинет замдиректора по административно-хозяйственной работе

10

Канцелярия

12

Комната техперсонала

12

Кладовая уборочного инвентаря

8

Кабинет врача

21

Процедурная

16

Кабинет зубного врача

12

Санузлы учащихся

108

Санузлы персонала

12

Вестибюль-гардероб:

440

378 + 62

Группа зрительного зала

Зрительный зал

446

336

аудитория

-

эстрада

70

кладовая инвентарная

12

артистические

18

Технический центр

72

Группа свободного творчества во внеурочное время:

108

3´36

Кружки изобразительного искусства

108

3´36

Хореография

108

90 + 18

Музыки и пения

50

Технического творчества

90

Фото-киностудия

36

Юннатско-биологической деятельности уборные

90

Группа спортивно- оздоровительная:

 

Учебно-спортивные залы

648

Малый спортзал - студия хореографии

180

раздевальные

168

8´21

снарядная

48

32 + 16

помещение хранения

4

уборочного инвентаря

30

20 + 10

Бассейн с ванной 10´6 м

180

раздевальные

78

2´39

шкафы

30

2´15

душевые

20

2´(5´2)

уборные

8

2´4

помещения инструктора

18

помещение медсестры с лаборантской

12

2´6

Вестибюль-гардероб (30 уч.´1,5 по 0,35 м2)

20

Столовая:

 

Обеденный зал с раздаточной

252

360

Кухонный блок с подсобными помещениями

280

Итого:

 

Расчетная площадь

8316

Расчетная площадь на одного учащегося

9,24

5. Анализ сложившейся сети общеобразовательных школ и предложения по ее реконструкции (на примере жилого района «Хамовники»)

5.1. Жилой район «Хамовники» находится в Юго-Западном административном районе г. Москвы. Сеть общеобразовательных школ района сформирована из зданий, построенных по типовым проектам 30 - 50-х годов, в том числе серии МЮ (11 объектов), и по индивидуальным проектам (4 объекта). В них обучаются 8698 учащихся.

5.2. Планировочные схемы зданий этих школ показаны на рис. 5, 6 и 7, а их характеристики по площадям помещений приведены в табл. Х-1.

5.3. Суммарная общая площадь зданий составляет 61738 м2, расчетная площадь 46772 м2, соответственно на 1 ученическое место - 7, 10 и 5,38 м2.

Дефицит расчетной площади общеобразовательных школ по отношению к МГСН 4.06-03 равен 7,02 м2 (12,4 - 5,38).

5.4. Для того, чтобы привести сложившуюся районную сеть школ к требованиям современных норм, необходимо в данном районе дополнительно построить новые учебные помещения общей расчётной площадью 61059,96 м2(7,02´8698).

5.5. Задачей реконструкции школьной сети является не только увеличение в полтора с лишним раза площади школьных зданий, но и повышение качества материальной базы общего образования района.

В этой связи необходимо при новом строительстве предусматривать специализированные помещения для 8 - 11 классов и недостающие по современным нормативам спортивные помещения.

Эта проблема может быть решена только при наличии свободных земельных территорий, на которых можно было бы возвести дополнительные новые строения с более совершенным составом помещений, работающих на всю сеть зданий школ района «Хамовники».

Площади участков на территории района «Хамовники» (0,35 до 1,1) приведены в табл. Х-1.

С учётом ограниченных возможностей расширения школьных зданий, для качественного решения задачи реконструкции и модернизации сложившейся сети школ района «Хамовники», предусматривается строительство блока специализированных помещений для профильного обучения учащихся 10 - 11 классов существующих школ района.

5.6. Общее число учащихся района «Хамовники» составляет 8698 человек, из них учащихся 10 - 11 классов - 1350 человек.

Одна параллель учащихся 10 - 11 классов составляет 50 человек. Всего необходимо создать базу для обучения 27 параллелей учащихся старшего возраста или по 9 параллелей старших классов по каждому основному направлению обучения: естественнонаучному, техническому, социально-гуманитарному, т.е. охватить по 450 учащихся по каждому направлению.

5.7. Пропускная способность одного места в неделю определяется из расчета 2,5 занятий (2 смены по 2 часа) в день в течение 5 учебных дней неделю, т.е. в 3´5:2,5 = 6 раз. Следовательно, для охвата 450 учащихся одним профильным направлением надо создать около 80 мест, при односменных занятиях. При занятиях в две смены в течение дня потребуется 40 мест. При односменных занятиях необходимая вместимость блока равна 240 (80´3) мест, при двусменном - 120 (40´3) мест.

Для естественно - научных дисциплин необходима расчетная площадь 564 м2; для направления техники и технологий - 727 м2*; для социально-гуманитарного направления - 332 м2.

5.8. На всю сеть зданий школ жилого района «Хамовники» потребуется создать базу профильного обучения на 120 мест с расчетной площадью 1623 м2 (564 + 727 + 332) для обучения на ее базе 1350 учащихся 10 - 11 классов (при равных долях каждого из трех направлений).

5.9. С учётом реальной ситуации со свободными земельными территориями в районе «Хамовники», эту задачу целесообразнее решить проектированием одного центра продлённого обучения с обслуживанием учащихся 10 - 11 классов существующих школ района.

5.10. Вторым направлением совершенствования сложившейся сети зданий района «Хамовники» является развитие материальной базы школьных занятий по физкультуре в соответствии со школьной программой физического развития учащихся.

В соответствии с действующими нормами для сети школ района «Хамовники» необходимо иметь набор спортзалов, приведённый в таблице Х-2.

Таблица Х-1.

Технические показатели существующих общеобразовательных школ, расположенных на территории жилого района «Хамовники»

пп

Наименование объекта

Адрес

Вместимость школы (уч.)

Площадь м2

Тип, год строительства

Площадь участка, Га

По проекту

Фактическая

Расчетная

Общая

1

2

3

4

5

6

7

8

9

1.

Общеобразовательная вспомогательная школа № 30 ВСШ

1-й Тружеников пер., 18 с. 4

270

220

2619

3457

Т.П. 1936 г.; о/с 1970 г. пристр.

0,6

2.

Общеобразовательная школа № 47 (гимназия)

1-й Неопалимовский пер., 10

450

487

2477

3269

Т.П. 1936 г., о/с 1960 г. пристр.

0,4

3.

Общеобразовательная школа № 1253 (англ.)

Зубовский бул., 5 с. 1, 2 (Б. Чудов пер., 8 с. 2)

600

700

5620

7418

Инд. 1930 г., пр. о/с, 1970 г. встр.

0,8

4.

Общеобразовательная школа № 558

Ул. Тимура Фрунзе, д. 3

450

800

2915

3848

Т.П. 1937 г., о/с 1960 г. встр.

0,35

5.

Общеобразовательная школа № 35

Мал. Савинский пер., д. 8 с.1

540

840

3322

4385

Т.П. 1937 г., о/с

0,52

6.

Общеобразовательная школа № 171

Ул. 2-я Фрунзенская, д. 7а

450

650

3189

4209

Т.П. МЮ, о/с 1960 г.

0,8

7.

Общеобразовательная школа 23

Комсомольский пр., д. 43 с. 1

540

540

2867

3785

Т.П. 1936 г., о/с

0,7

8.

МУПК № 1 «Хамовники»

Ул. Хамовнический вал, д. 6 с. 1

-

-

3296

4351

Т.П. 1939 г., о/с.

0,8

9.

Общеобразовательная школа № 45

Ул. Усачева, д. 66а

450

667

2789

3682

Т.П. 1935 г., о/с встр. 1970 г.

0,48

10.

Общеобразовательная школа № 168

Ул. Хамовнический вал, д. 26

540

650

3089

4077

Т.П. МЮ, о/с 1961 г.

0,88

11.

Общеобразовательная школа 54

Ул. Доватора, д. 5/9

450

605

2981

3935

Инд. П. 1938 г., о/с 1966 г. встр.

0,48

12.

Гуманитарный лицей 1535

Ул. Усачева, д. 52

400

360

4167

5500

Инд. П. 1929 г., о/с

0,96

13.

Детский юношеский

Ул. Савельева, д. 5

700

200

2411

3183

Т.П. 1936 г., о/с 1960

 

14.

Общеобразовательная школа 34

Ул. Плющиха, д. 39/41

450

786

2834

3741

Инд. П. 1936 г., о/с

0,5

15.

Общеобразовательная школа 40

Хользунков пер., д. 8 с. 2

450

573

3112

4108

Т.П. 1938 г., о/с 1977 г. пристр.

1,1

16.

Лицей

Ул. Т. Фрунзе, 28 с. 5

540

620

2380

3141

Т.П. 1938 г., о/с 1977 пристр.

0,5

17.

Николо-Хамовническая православная гимназия

Ул. Л. Толстого, 4 с. 2, 4

 

 

379

500

Присп. до 1917 г., 1977 г. пристр.

 

 

 

Итого:

7280

8698

46772

61738

 

8,55

Таблица Х-2.

Размеры, м

Количество залов, шт.

Площадь м2

42´24

1

1008

36´18

4

2592

4´648

30´18

2

1080

2´540

24´12

5

1800

5´360

18´15

6

1620

6´270

Итого площадь (без обслуживающих помещений):

8100

В существующих школах района «Хамовники» имеются следующие спортзалы:

- в школах серии МЮ - 2 зала 9´18 м общей площадью 324 м2;

- в типовых и индивидуальных проектах 30-х годов (как правило встроенные или пристроенные в 60 - 70-х годах залы) 11 залов 9´18 м общей площадью 1782 м2;

Всего площадь существующих залов составляет 2106 м2.

5.11. Сеть зданий школ района необходимо, дополнить следующими спортзалами: 42´24 (1 зал) + 36´18 (6 залов) + 24´12 (3 зала), общей площадью 5994 м2.

Конкретная ситуация не позволяет на территории района «Хамовники» вести новое школьное строительство. Эта проблема может быть решена при условии выделения участка для строительства спортивного центра или за счёт спортивного комплекса «Лужники», непосредственно прилегающем к району «Хамовники», где учащиеся старших классов могут быть обеспечены базой для игрового спорта, легкой атлетики и плавания.

5.12. В связи с отсутствием свободной территории предложения по реорганизации сети школ в «Хамовниках» сводятся к созданию учебного центра профильного обучения при школе № 40 (см. рис. Х-2), рассчитанного только на обслуживание учащихся 10 - 11 классов окружающих общеобразовательных школ с обучением их в две смены.

Таблица Х-3.

Состав и площади специализированного блока учебных кабинетов для профильного обучения учащихся 10 - 11 классов существующих общеобразовательных школ района «Хамовники»

Наименование помещений

Площадь, м2

Специализированная группа учебных кабинетов (9 параллелей)

ЕН - естественнонаучное направление:

 

лаборатории физики, химии, биологии

210

3´70

практикумы

150

3´50

лаборантские

108

3´36

ресурсный центр

36

Т* - направление техники и технологий:

 

учебный кабинет с лаборантской

180

2´90

практикум**

405

3´135

комната мастера

16

кладовая для хранения сырья и материалов

36

Г - социально-гуманитарное направление:

 

учебный кабинет

140

2´70

практикум

144

72 + 2´36 + 36

ресурсный центр

36

аудитория

108

кабинет информатики и вычислительной техники

180

90 + 90

учительская с методическим кабинетом

100

40 + 60

администрация

60

ВГ - на 270 учащихся (0,35 м2´1,5 с учетом сменности)

79

СУ учащихся (по 0,15 м2)

20

ИТОГО

2008

Примечание:

*) С учетом наличия в районе межшкольного учебно-производственного комбината.

**) По профилю автодела.

Рис. Х-1 Схема реконструкции сети общеобразовательных школ района «Хамовники».

Рис. Х-2 Схема размещения блока профильного обучения учащихся на земельной территории существующей школы района «Хамовники»

Ступени обучения - Начальная, Основная, Старшая.

6. Реконструкция сети общеобразовательных школ посредством строительства сетевых школ для учащихся 10 - 11 классов (на примере жилого района «Черемушки»)

6.1. Жилой район «Черемушки» находится в Юго-Западном административном районе (строительство конца 50-х годов).

Сеть общеобразовательных школ района сформирована из зданий построенных по типовым проектам серий МЮ табл. 3-3 (7 объектов), V-76 (2 объекта) и 65-426/1 (1 объект). В них обучаются 7072 учащихся (данные приведены в табл. 4-1).

Планировочные схемы зданий этих школ приведены на рис. 9, а их характеристики по составу и площадям помещений приведены в табл. Ч-1.

6.2. Суммарная общая площадь зданий составляет 48620 м2, расчетная площадь - 40391 м2; соответственно на 1 ученическое место - 6,88 и 5,71 м2.

Дефицит расчетной площади общеобразовательных школ по отношению к МГСН 4.06-03 равен 6,69 м2 (12,4 - 5,71).

Для того, чтобы привести сложившуюся районную сеть школ к требованиям современных норм, необходимо в данном районе дополнительно построить новые учебные помещения суммарной площадью 4731 1,68 м2.

6.3. Задачей реконструкции школьной сети является не только увеличение в полтора раза площади школьных зданий, но и повышение качества материальной базы общего образования района.

В этой связи необходимо при новом строительстве предусматривать специализированные учебные помещения для профильного обучения старших классов и недостающие по современным нормам спортивные помещения.

Эта проблема решается только при наличии в районе свободных земельных участков, пригодных для возведения новых строений с более совершенным составом помещений, для обслуживания всей сети зданий школ района «Черемушки».

Площади участков школ на территории района «Черемушки» (от 1,9 до 1,2 га) приведены в табл. 4-1.

6.4. Для качественного решения задачи реконструкции и модернизации школьной сети района предусматривается строительство специализированного учебного центра для профильного дифференцированного обучения учащихся 8 - 11 классов существующих школ района.

6.5. Общее число учащихся района «Черемушки» составляет 7072 человек, из них учащихся 8 - 11 классов равно 2100 человек, в т.ч. 10 - 11 классов - 1080 человек. Для этого числа учащихся необходимо создать материально-техническую базу профильного обучения.

Одна параллель учащихся 8 - 11 классов составляет 100 (25´4) человек. Всего необходимо создать базу для обучения 21 параллели учащихся старшего возраста или по 7 параллелей старших классов по каждому основному профилю естественнонаучному, изучению техники, социально-гуманитарным дисциплинам, т.е. охватить по 700 учащихся по каждому направлению или 350 учащихся при обучении в две смены.

Реальная оборачиваемость одного места в неделю определяется из расчета 2,5 занятий (три смены по 2 часа) в день в течение 5 учебных дней, т.е. в неделю 3´5:2,5 = 6 раз. Следовательно, для охвата 700 учащихся одним профильным направлением надо создать 120 мест при односменных занятиях. При занятиях в две смены в течение дня потребуется 60 мест. При односменных занятиях требуемая вместимость учебного центра равна 360 (120´3) мест, а при двухсменных - 180 (60´3) мест.

Для блока помещений естественнонаучных дисциплин необходима расчетная площадь 688 м2 (состав и площади приведены в разделе 2, табл. 3) для блока изучения техники и технологий - 1172 м2 (состав и площади помещений приведены в разделе 2, табл. 4), для социально-гуманитарных наук - 468 м2. (состав и площади помещений приведены в разделе 2, табл. 5).

6.6. На всю сеть зданий школ жилого района «Черемушки» потребуется создать базу профильного обучения на 180 мест с расчетной площадью 2328 м2 (688 + 1172 + 468) для обучения на ее базе 2572 учащихся 8 - 11 классов. Практически согласно табл. 4, 5 и 6 расчетная площадь равна (2272 + 1272 + 450).

6.7. Вторым направлением совершенствования сложившейся сети зданий школ района «Черемушки» является с развитие материальной базы занятий физкультурой в соответствии со школьной программой физического развития учащихся.

Таблица Ч-1

Технические показатели существующих общеобразовательных школ жилого района «Черемушки»

пп

Наименование объекта

Адрес

Вместимость школы (уч.)

Площадь, м2

Тип, год строительства

Площадь участка (га)

По проекту

Фактическая

Расчетная

Общая

1.

Школа № 1110

Ул. Цюрупы, д. 22/2

400

444

3159

4170

Т.П. МЮ

1,9

2.

Школа № 3

1 - Ул. Черемушкинская, д. 62-2

1000

1040

7094

7565

Т.П. V-76

3,2

3.

Школа № 15

Ул. Херсонская, д. 2

880

611

4090

4300

Т.П. 65-426/1, 1966 г.

2,4

4.

Школа № 190

Ул. Профсоюзная, д. 40-2

880

770

3159

4170

Т.П. МЮ, 1961 г.

1,2

5.

Школа № 523

Ул. Цюрупы, д. 146

880

758

3159

4170

Т.П. МЮ

1,92

6.

Школа № 193

Ул. Н. Черемушкинская, д. 56

880

706

3159

4170

Т.П. МЮ

1,2

7.

Школа № 539

Ул. Херсонская, д. 22

880

710

3159

4170

Т.П. МЮ

2,32

8.

Школа № 562

Ул. Перекопская, д. 21

880

682

3159

4170

Т.П. МЮ

1,32

9.

Школа № 1115

Н. Черемушки, кв. 32а, к. 14а

1000

593

7094

7565

Т.П. V-76

-

10.

Школа № 1205

Ул. Арх. Власова, д. 19, корп. 1

880

628

3159

4170

Т.П. МЮ, 1960 г.

1,48

И.

Интернат 19*

Ул. Н. Черемушкинская, д. 48

(600)

(456)

-

-

-

2,24

12.

Интернат61*

Ул. Цюрупы, д. 10

(600)

(308)

-

-

-

3,36

13.

Интернат № 68*

Ул. Арх. Власова, д. 19

(600)

(178)

-

-

1960 г.

-

14.

Школа № 190 (филиал начальные классы)

Ул. Арх. Власова, д. 9-3

100

130

-

-

1960 г.

-

 

 

Итого:

8660

7072

40391

48620

 

22,52

Примечание:

Школы городского значения в расчет не принимаются

Таблица Ч-2

В соответствии с действующими нормами для сети школ района «Черемушки» необходимо иметь следующий набор спортзалов, приведенных в следующей таблице:

Размеры залов, м

Количество залов, шт.

Площадь, м2

42´24

1

1008

36´18

3

1944

3´648

30´18

2

1080

2´540

24´15

4

1440

4´360

18´15

4

1080

4´270

Итого площадь (без обслуживающих помещений)

6552

В существующих школах района «Черемушки» имеются следующие спортзалы:

школ серии МЮ - (7 залов) 9´18 м площадью 1134 м2;

школ серии 65-426/1 - (1 зал) 24´12 площадью 288 м2;

школ серии V-76 - (2 зала) 24´12 площадью 576 м2;

Суммарная площадь существующих спортзалов составляет 1998 м2.

6.8. Сеть зданий школ района необходимо дополнить следующими спортзалами: (1 зал) 42´24´30´18 (5 залов) с бассейном с двумя ваннами.

6.9. Конкретная ситуация позволяет на территории района «Черёмушки» создать два центра с расширенной спортбазой при школах № 539 и № 523. Состав и площади помещений центров приведены в табл. Ч-3.

При этом суммарная расчетная площадь центров составляет 4688 м2.

6.10. Предложения по реорганизации сети общеобразовательных школ района «Черёмушки» заключается в следующем:

Предусматривается преобразование традиционных школ района в неполные средние школы в составе 1 - 9 классов, а также перевод всех школьников 10 - 11 классов в новый учебный центр профильного обучения с занятиями в одну смену. Во вторую смену и внеурочное время учебная база центра предоставляется учащимся 8 - 9 классов для занятий на факультативной основе. За счет оттока учащихся старших возрастов (10 - 11 классов) из традиционных школ в учебной центр повышается удельный показатели расчетной площади в действующих школах района (для 1 - 9 классов): 10,59 м2 на одного учащегося и соответственно возрастает качество материальной базы обучения этого контингента учащихся.

В виду периферийного размещения учебного центра целесообразна организация подвоза учащихся на школьных автобусах по территории района (схема; приведена на рис.Ч-2).

По функциональной организационной структуре сеть зданий школ строится по формуле: НОХП (11 объектов основных школ) + два СЦ (спортивных центра - один в составе спортзал 42´24 + спортзал 30´18 + бассейн с двумя ваннами - второй в составе 4-х спортзалов 30´18) + один Учебный Центр для профильного обучения старших классов (УЦ-ПО) (рис. Ч-3, Ч-4, Ч-5).

Таблица Ч-3

Примерный состав и площади помещений специализированных блоков учебных кабинетов для профильного обучения 10 - 11х) классов района «Черемушки»

Наименование помещений

Площадь, м2

Старшая школа:

 

Учебные кабинеты универсальные 10 - 11 классов

2100

30´70

Рекреация

2000

Специализированная группа учебных кабинетов:

 

Аудитория с полиэкраном

100

ЕН - естественнонаучное направление:

 

- лаборатории физики, химии и биологии

210

3´70

- практикумы

250

5´50

- лаборантские

108

3´36

- ресурсный центр

60

Т* - изучение техники и технологий:

 

- учебный кабинет с лаборантской

450

5´90

- практикум

675

5´135

- комната мастера

32

- кладовая для хранения сырья и материалов

60

Г - социально - гуманитарное направление:

 

- учебный кабинет

140

2´70

- практикум

162

72 + 2´36 + 18

- ресурсный центр

Специализированные кабинеты общего профиля:

48

иностранного языка

400

10´40

информатики и вычислительной техники

270

3´90

технического черчения

180

2´90

Справочно-информационный центр - библиотека

Технический центр

325

72

Методический кабинет с учительской и зоной отдыха

180

Зрительный зал

300

210

Эстрада

90

Кладовая

12

Артистические

18

Группа свободного творчества:

288

2´144

Студия изобразительного искусства и дизайна

207

144 + 63

Студия хореографии и музыки

168

144 + 24

Фото киностудия

50

Столовая:

 

- Обеденный зал

400*

336

- Кухонный блок

250

Вестибюльная группа:

 

Администрация

40

Кабинет директора

10

Кабинет замдиректора по учебно-воспитат. работе

10

Кабинет организатора вне учебной деятельности

10

Кабинет замдиректора по адм.-хоз. делам

12

Канцелярия

12

Комната техперсонала

8

Кладовая

21

Кабинет врача

16

Процедурная

12

Кабинет зубного врача

180

Санузлы учащихся

24

Санузлы персонала

490

Вестибюль-гардероб

10296

ИТОГО:

 

Примечание:

* - С учетом приходящих 8 - 9 классов окружающих школ района

Таблица Ч-4

Примерный состав и площадь помещений сетевых учебно-спортивных школ для обслуживания учащихся общеобразовательных школ района «Черемушки» (на земельных участках школ № 539 - ЦС-1 и № 523 - ЦС-2.

Наименование помещений

Площадь

ЦС-1

ЦС-2

Спортзалы

 

 

42´24

1008

540

2700

4´540

30´18

252

12´21

336

16´21

раздевальные

96

3´32

128

4´32

снарядные

60

20 + 40

80

4´20

комната инструктора

комн. уборочного инвентаря

12

4 + 8

16

4´4

вестибюль-гардероб

48

63

Бассейн

 

-

С ваннами 25´11,5 и 10´6

720

540 + 180

-

раздевальные

234

6´39

-

шкафы

72

6´12

-

душевые

60

6´(5´2)

-

уборные

24

6´4

-

помещение инструктора

36

2´(12 + 6)

-

помещение медсестры с лаборантской

24

2´(2´6)

-

вестибюль-гардероб (45 уч.´1,5 по 0,35 м2)

24

-

Примечание:

1) Расчет блока спортзалов и бассейна для обучения плаванию проведен исходя из полной реализации учебной программы по физическому развитию школьников района.

2) Состав помещений центров следует дополнить группой административных помещений, включая и технические.

Рис. Ч-2 Схема реконструкции сети школ района «Черемушки»

НО - Начальное обучение; УЦ - ПО - Учебный Центр - Профильное Обучение; УЦ - С - Учебный Центр - Спорт

Рис. Ч-3 Схема размещения учебного центра профильного обучения учащихся района «Черемушки».

УЦ - ПО - Учебный центр - Профильного обучение; НОС - ступени обучения: Начальная, Основная, Старшая

Рис. Ч-4 Схема размещения учебно-спортивного центра для (ЦС-2) учащихся школ района «Черемушки».

УЦ - С - Учебный центр-Спорт; НОС - ступени обучения: Начальная, Основная, Старшая

Рис. Ч-5 Схема размещения учебно-спортивного центра (ЦС-1) для учащихся школ района «Черемушки».

УЦ - С - Учебный центр - Спорт; НОС - ступени обучения: Начальная, Основная, Старшая

7. Реконструкция сети общеобразовательных школ посредством дополнительного строительства сетевых школ II - III ступеней обучения (СПШ) для учащихся 8 - 11 классов на примере района «Коньково»

7.1. Жилой район «Коньково» является составной частью Юго-Западного административного округа.

Сеть зданий общеобразовательных школ «Коньково» сформирована зданиями серии 65-426/1 (11 объектов), зданиями серии V-76 (2 объекта) и зданиями серии МЮ (1 объект). В них обучаются 13898 учащихся (см. табл. К-1).

Суммарная расчетная площадь школьных зданий составляет 61565 м2, соответственно на 1 ученическое место - 4,46 м2.

Дефицит удельной расчетной площади общеобразовательных школ по отношению к МГСН 4.06-03 - составляет 7,94 м2 (12,4 - 4,46).

7.2. Для того, чтобы привести сложившуюся сеть школ к требованиям современных норм, необходимо в данном районе дополнительно построить новые учебные помещения суммарной расчетной площадью 109540,24 м2.

7.3. Задачей реконструкции школьной сети является не только удвоение площади школьных зданий, но и повышение качества материальной базы общего образования района.

Для этого необходимо при новом строительстве предусматривать специализированные учебные помещения для профильного обучения старших 8 - 11 классов и недостающие по современным нормам спортивно-оздоровительные помещения.

7.4. Для качественного решения задачи реконструкции и модернизации школьной сети района предусматривается строительство специализированного учебного центра для профильного дифференцированного обучения учащихся 8 - 11 классов существующих школ района.

Общее число учащихся 8 - 11 классов (четыре возрастных контингента) - 5400 человека или 54 параллели указанных классов, принимая во внимание то, что одна параллель учащихся 8 - 11 классов составляет 100 (24´4) человек. В итоге по каждому основному направлению обучения естественнонаучному, техники и технологии социально-гуманитарному (три направления) необходимо создать базу для обучения 18 параллелей старших классов, т.е. охватить 1800 учащихся по каждому из трех направлений.

Реальная оборачиваемость одного места в неделю определяется из расчета 2,5 занятий (три смены по 2 часа) в день в течение 5 учебных дней, места в неделю т.е. 3´5:2,5 = 6 раз.

Следовательно, для охвата 1800 учащихся одним профильным направлением надо создать 300 мест (1800:6), при односменных занятиях. При занятиях в две смены в течение дня потребуется 150 мест.

Для направления естественно - научных дисциплин необходим блок помещений расчетной площадью 1752 м2; для направления техники и технологий - 2854 м2, для социально-гуманитарного направления - 1234 м2.

7.5. Согласно расчетам на всю сеть зданий школ жилого района «Коньково» потребуется создать базу профильного обучения на 450 мест с расчетной площадью 5824 м2 (1716 + 2874 + 1234) (для обучения 5400 учащихся 8 - 11 классов).

7.6. В соответствии с реальной ситуацией в районе «Коньково» реконструкцию школьной сети целесообразно осуществлять посредством строительства решена в трех разных СПШ, специализированных, каждая по одному направлению: естественно - научному, техническому и социально-гуманитарному. Примерный состав и площади помещений школ приведены в табл. К-4.

7.7. Отток учащихся старших 8 - 11 классов в СПШ из существующих общеобразовательных школ позволит превратить их в неполные средние школы, повысит удельную площадь на одного учащегося до 7,06 м2 и приблизить их удельные показатели к уровню технико-экономических показателей новых норм.

7.8. Вторым направлением, совершенствования сложившейся сети зданий школ района «Коньково», является развитие материальной базы учебно-спортивных помещений для реализации школьной программы физического развития учащихся.

7.9. В соответствии с действующими нормами для сети школ района «Коньково» необходим набор спортзалов, приведенный в таблице К-3:

Таблица К-1

Технические показатели существующих общеобразовательных школ жилого района «Коньково»

пп

Наименование объекта

Адрес

Вместимость школы (уч.)

Площадь м2

Тип, год строительства

Площадь участка

По проекту

Фактическая

Расчетная

Общая

1.

Школа № 1 7

Ул. Введенского, д. 28

1000

1107

4090

4900

Т.П. 65-426/1, 1972 г.

1,6

2.

Школа J& 20

Ул. Ак. Арцимовича, д. 7

1000

1019

4090

4300

Т.П. 65-426/1, 1972 г.

1,92

3.

Школа № 49

Ул. Ген. Антонова, д. 4а

1000

1332

4090

4900

Т.П. 65-426/1, 1970 г.

1,5

4.

Школа № 103

Ул. Волгина, д. 11

1000

702

4090

4300-

Т.П. 65-426/1, 1969 г.

1,6

5.

Школа № ИЗ

Ул. Профсоюзная, д. 1186

1000

1015

4090

4900

Т.П. 65-426/1, 1970 г.

1,84

6.

Школа № 170

Ул. Профсоюзная, д. 966

1000

898

4090

4300

Т.П. 65-426/1, 1967 г.

1,92

7.

Школа № 176

Ул. Профсоюзная, д. 9

1000

759

4090

4300

Т.П. 65-426/1, 1967 г.

1,68

8.

Школа № 791

Ул. Бутлерова, д. 3

1000

761

4090

4300

Т.П. 65-426/1, 1967 г.

1,5

9.

Школа № 793

Ул. Бутлерова, д. 2

1000

1096

4090

4300

Т.П. 65-426/1, 1969 г.

1,6

10.

Школа № 798

Ул. Ак. Капицы, д. 12

1000

1265

7094

7565

Т.П. V-76, 1984 г.

1,53

11.

Школа № 863

Ул. Введенского, д. 27а

1000

1156

4090

4900

Т.П. 65-426/1, 1971 г.

1,93

12.

Школа № 1086

Ул. Введенского, д. 3

1000

799

4090

 

Т.П. И-1577А, 1990 г.

1,6

13.

Школа № 1104

Ул. Ак. Капицы, д. 14а

1000

1340

7094

7565

Т.П. V-76, 1985 г.

1,8

14.

Вечерняя школа № 115

Ул. Бутлерова, д. 5

1000

547

3159

4170

Т.П. МЮ, 1969 г.

1,4

15.

Балетная школа «Вдохновение» № 1405

Ул. Ак. Капицы, д. 16

280

102

-

2235

Т.П. VI-52, 1984 г.

0,3

 

 

Итого:

14124

13249

59176

60530

 

23,52

13898

62337

66935

Табл. К-2

Примерный состав и площади помещений специализированных блоков профильного обучения для учащихся 8 - 11 классов существующих школ района «Коньково»

Наименование помещений

Площадь, м2

Специализированная группа учебных кабинетов

ЕН - естественные науки:

 

- лаборатории физики, химии и биологии

420

6´70

- практикумы

900

18´15

- лаборантские

216

6´36

- ресурсный центр

216

6´72

Т - изучение техники и технологий:

 

- учебный кабинет с лаборантской

540

6´90

- практикум

1620

12´135

- комната мастера

26

48 + 48

- кладовая для хранения сырья и материалов

168

84 + 84

Г - социально-гуманитарные направления:

 

- учебный кабинет

420

6´70

- практикум

576

252 + 252 + 72

- ресурсный центр

140

2´70

Таблица К-3

Размеры типов залов, м

Количество залов

Площадь, м2

42´24

1

1008

36

8

5184

8´648

30´18

1

540

24´15

8

2880

8´360

18´15

9

2430

9´270

Итого площадь (без обслуживающих помещений)

12042

Примечание:

В существующих школах района «Коньково» имеются следующие спортзалы:

- в школах серии МЮ - (1 зал) 9´18 м площадью 162 м2;

- в школах серии 65-426/1 - (11 залов) 24´12 площадью 3168 м2;

- в школах серии V-76 - (2 зала) 24´12 площадью 576 м2;

Итого общая площадь залов составляет 3906 м2.

7.10. Сеть зданий школ района следует дополнить следующими спортзалами: один зал размером 42´24 м и 12 залов размером 30´18 м, а также бассейном (см. табл. К-5)

Конкретная ситуация позволяет на территории района «Коньково» создать 3 спорт центра при старших профильных школах.

7.11. Предложения по реорганизации сети общеобразовательных, школ жилого района «Коньково» заключается в создании трех разных по направлениям профильного обучения СПШ с развитыми блоками физкультурно-оздоровительных помещений.

В этих СПШ предусматривается обучение учащиеся 8 - 11 классов. Тем самым одновременно разукрупняются существующие средние школы и превращаются в неполные основные школы с показателем удельной расчетной площади приближающейся к действующим нормам.

Таблица К-4

Примерный состав и площади помещений специализированных профильных школ II - III ступеней обучения для учащихся 8 - 11 классов существующих общеобразовательных школ района «Коньково»

 

84 класса

1680 уч.

84 класса

1680 уч.

84 класса

1680 уч.

0:0:14:14

1 - 4, 5 - 7, 8 - 9, 10 - 11

0:0:14:14

1 - 4, 5 - 7, 8 - 9, 10 - 11

0:0:14:14

1 - 4, 5 - 7, 8 - 9, 10 - 11

Наименование помещений

СПШ-Енx)

СПШ-Тх)

СПIII-СГх)

1

2

3

4

Основная школа:

 

 

 

Учебные кабинеты 8 - 9 классы

1960

28´70

1960

28´70

1960

28´70

рекреация

1680

1680

1680

Старшая школа:

 

 

 

Учебные кабинеты 10 - 11 классы

1120

16´70

840

12´70

1540

22´70

рекреация

1680

1680

1680

Специализированные кабинеты:

 

 

 

Специализированный блок кабинетов естественных наук (физика, химия, биология)

 

 

 

- Учебный кабинет

630

9´70

1080

12´90

210

3´70хх)

- Лаборатория

-

-

-

- Практикум

900

18´50

1620

12´135

252

2´72 + 2´36 + 2´18

- Лаборантская

324

9´36

1020

12´18

-

- Аудитория с полиэкраном

200

2´100

100

270

200

2´100

- Ресурсный центр

324

144

72

- Универсальная мастерская

-

144

-

- Кладовая хранения материалов

-

144

-

- Комната мастера

-

80

2´40

-

Специализированные кабинеты общего типа:

 

 

 

- Иностранного языка

240

6´40

240

6´40

240

6´40

- Информатики и вычислительной техники

180

90 + 90

180

90 + 90

180

90 + 90

- Тех черчения и рисования

90

180

90 + 90

152

76 + 76

- Компьютерный класс - аудитория на три группы

108

108

108

Помещение изучения технологий (трудовое обучение):

 

 

 

- Мастерская по обработке металла и технологии

90

90

90

- Инструментальная

24

24

24

- Мастерская по обработке дерева и технологии

90

90

90

- Мастерская по обработке тканей и технологии

90

90

90

- Кулинария

50

50

50

Библиотека - справочно-информационный центр

1008

1008

2016

Технический центр

72

72

72

Методический кабинет с учительской (8 - 11 классов) и зоной отдыха

180

180

180

Вестибюльная группа учебных помещений, администрация, медицинские кабинеты:

 

 

 

- Кабинет директора

40

40

40

- Кабинет зам. директора по учебно-воспитательной работе

10

10

10

- Кабинет организатора внеклассной и внешкольной работы

12

12

12

- Кабинет зам. директора по адм.-хоз. работе

10

10

10

- Канцелярия

12

12

12

- Комната техперсонала

12

12

12

- Кладовая уборочного инвентаря

8

8

8

- Кабинет врача

21

21

21

- Процедурная

16

16

16

- Кабинет зубного врача

12

12

12

- Санузлы учащихся

252

252

252

- Санузлы персонала

24

24

24

- Вестибюль-гардероб

588

588

588

Группа зрительного зала:

 

 

 

- Зрительный зал (на 1/4 учащихся)

420

300

428

420

- аудитория

 

 

 

- эстрада

90

90

90

- кладовая-инвентарная

12

12

12

- артистические

18

18

18

Технический центр

70

70

70

Группа свободного творчества во внеурочное время:

 

 

 

- Студия изобразительного искусства

144

144

288

2´144

- Студия хореографии

144

144

288

2´144

- Студия музыки

144

144

288

2´144

- Техническое творчество

90

90

90

- Фото-киностудия

36

36

36

- Юннатско-биологическая деятельность

72

72

72

 

2160

4´540

1120

(140 + 4´21 + 32 + 4 + 20)´4

2160

4´540

1120

(140 + 4´21 + 32 + 4 + 20)´4

2160

4´540

1120

(140 + 4´21 + 32 + 4 + 20)´4

Столовая:

 

 

 

- Обеденный зал с раздаточной (по 0,8 м2)

420 (560)

336 (448)

420 (560)

336 (448)

420 (560)

336 (448)

- кухонный блок с подсобными помещениями

250

250

250

Спорт зал* 42´24 с элементами легкой атлетики

1008

 

 

Обслуживающие помещения

280

8´21 + 8 + 2´32 + 40

 

 

Бассейн:

 

 

 

С ванной 25´11,5 (2)

1080

2´540

 

 

С ванной 10´6 (1)

180

 

 

- раздевальные

390

10´39

 

 

- шкафы

120

10´12

 

 

- душевые

100

10´(5´2)

 

 

- уборные

40

10´4

 

 

- пом. Инструктора

54

3´(12 + 6)

 

 

- пом. медсестры с лаборантской

36

3´(2´6)

 

 

Вестибюль-гардероб (75 уч.´1,5 по 0,53 м2)

40

 

 

Итого расчетная площадь

20281

18861

17139

Расчетная площадь на 1 уч-ся

12,07

11,2

10,2

Примечание:

х) Согласно пункту 1.7

хх) Дополнительно используются универсальные кабинеты

Примечание:

СПШ, «ЕН» - естественно-научный профиль обучения

СПШ, «Т» - технический профиль обучения

СПШ, «СГ» - социально-гуманитарный профиль обучения

Таблица K-5

Дополнительные спортзалы и бассейн сетевого назначения на группу общеобразовательных школ района «Коньково»

Наименование помещений

Площадь, м2

Спортзалы

 

42´24 (1)

1008

30´18 (12)

6480

12´540

Обслуживание помещение:

 

Раздевальные снарядные

280

8´21 + 8 + 2´32 + 40

Комната инструктора

1680

(4´21 + 32 + 4 + 20)´12

Вестибюль-гардероб

220

Бассейн

 

С ванной 25´11,5 (2)

1080

2´540

С ванной 10´6 м (1)

180

Раздевальные

390

10´39

Шкафы

120

10´12

Душевные

100

10´(5´2)

Уборные

40

10´4

Помещение инструктора

3´(12 + 6)

Помещение медсестры с лаборантской

36

3´(2´6)

Вестибюль-гардероб

40

Рис. К-1. Схема реконструкции сложившейся сети школ в районе «Коньково».

Рис. К-2 Схема размещения СПШ естественнонаучного направления с развитым блоком спортивно-оздоровительных помещений в районе «Коньково» (на территории общеобразовательной школы № 20)

Рис. К-2 Схема размещения СПШ  направления техники и технологии с блоком спортивно-оздоровительных помещений в районе «Коньково» (на территории общеобразовательной школы № 863)

Рис. К-2 Схема размещения СПШ социально-гуманитарного направления с блоком спортивно-оздоровительных помещений в районе «Коньково» (на территории общеобразовательной школы № 170)

8. Совершенствование сети общеобразовательных школ посредством организации единого учебного центра для обслуживания учащихся школ района (на примере жилого района «Южное Бутово»)

8.1. В отличие от районов со сложившейся сетью школ, районы нового строительства, к которым относится и «Южное Бутово», потенциально создают возможности проектирования сети общеобразовательных школ в полном соответствии с требованиями современных норм.

«Южное Бутово» - это район нового строительства с проектируемой численностью населения 150 тыс. жит. Размеры территории строительства - 4´2 км. На участке между микрорайоном № 4 и жилым комплексом «Д», предполагается строительство экспериментальной школы. Вблизи неё запланировано строительство 16-ти типовых зданий школ.

8.2. Участок экспериментальной школы размером 4 га предлагается для строительства единого учебно-воспитательного центра (СПШ) для обслуживания указанных 16-ти соседних школьных зданий вместимостью 22 класса (каждая типа У-92), в части профильного обучения учащихся старших классов и улучшения качества учебно-спортивной базы окружающих зданий школ.

Единый учебный Центр рассчитан на 1400 собственно учащихся при обучении в одну смену и наполняемостью классной группы 25 человек.

8.3. Организационно-педагогическая структура учебного центра имеет увеличенное число параллелей учащихся 5 - 11 классов и современный состав специализированных помещений профильного обучения и физического развития.

8.4. Создание базовых образовательных учреждений с развитым составом помещений, соответствующих задачам реформы образования и новым нормам проектирования, является рациональным градостроительным и экономически эффективным решением реконструкции существующей сети общеобразовательных школ.

8.5. Применяемые в районе «Южное Бутово», типовые проекты У-92 имеют устаревшую материальную базу по отношению к новым московским нормам, в том числе в их составе отсутствуют специализированные кабинеты, лаборатории и практикумы профильного обучения. В этой связи размещение в этом районе единого базового учебного центра имеет первостепенное значение для качественного улучшения материально-технической базы общего образования и применения передовых педагогических технологий. Схема размещения центра приведена в схеме ЮБ-1.

8.6. Создание материально-технической базы специализированного профильного обучения учащихся района «Южное Бутово» может решаться в двух направлениях:

1) Путём пристройки к каждой типовой школе блока-комплекса специализированных помещений, градостроительно нерационально и экономически невыгодно, т.к. требует дополнительных территорий и

больших площадей нового строительства данные о необходимых объемах строительства приведены на рис. ЮБ-2.

2) С учётом градостроительной ситуации более приемлемым является создание концентрированной базы специализированных профильных учебных помещений в едином учебном центре (рис. ЮБ-3).

Суммарная расчётная площадь отдельных учебных блоков для 9-ти отдельных школьных зданий типа для учащихся 8 - 11 классов число, которых равняется 2250 человек может составить в минимальном варианте 19800 м2, а в оптимальном - 43200 м2.

8.7. Единый учебный центр с общей расчётной площадью 15023 м2, (из них 7500 м2 для дополнительного обучения 2250 учащихся старших классов соседних школ), в 2,6 раза экономичнее, чем отдельные пристройки к типовым школам (сх. ЮБ-2, рис. ЮБ-3, ЮБ-4).

По расчётам, создание единого учебного центра дает возможность охватить специализированным обучением по разным направлениям (социально-гуманитарному, естественнонаучному, техническому) либо 8 - 11 классы 50 % школ «Южного Бутово», либо все 100 % школ, но с охватом только 10 - 11 классов.

8.8. Исходя из того, что единый учебный центр в районе «Южное Бутово» рассчитан не только на самообслуживание, но и на обслуживание учащихся старших классов соседних школ района. Основные технико-экономические показатели центра и пристроек к типовым школам в соответствии с приводимыми расчётами выглядят следующим образом:

- нормируемая площадь на 1 учащегося в учебном центре в расчёте на сеть обслуживаемых школ составляет 4,2 - 4,5 м2, а в отдельной типовой школе - 8,35 м2;

- общая площадь (без подвала) на 1 учащегося в учебном центре в расчете на сеть школ района составляет 5,9 - 6,4 м2, в отдельной типовой школе - 10,75 м2;

- строительный объем (без подвала) на 1 учащегося в учебном центре в расчете на сеть школ составляет 31,0 - 33,2 м3, в отдельной типовой школе - 43,1 м3;

- стоимость 1 ученического места в расчете на сеть обслуживаемых школ в учебном центре составляет 3,43 - 3,68 тысяч долларов США, в отдельном типовом проекте - 4,71 тысяч долларов США.

Одновременно, при меньших затратах на сеть школ района при создании единого учебного центра создается более совершенная и качественная материальная среда образования и воспитания, эффективно сосредоточенная по времени и месту строительства (см. рис. 10п-5).

8.10. Проведенный сопоставительный анализ сети школ на примере жилого района «Южное Бутово» показал, что развитие специализированной базы профильного обучения при каждой школе не эффективен и подчас невозможен из-за отсутствия необходимых свободных территорий.

При этом, сосредоточение в одном месте строительства дает значительный экономический эффект: на 7200 учащихся района порядка 8082000 долларов США или 1120 долларов на 1 учащегося (по расчётам Института Общественных Зданий).

* * *

Выдвинутые выше предложения по модернизации сложившейся сети общеобразовательных школ районов Москвы ориентированы на создание технико-экономических показателей на одного учащегося, в расчете на сеть школ, в пределах расчетной площади 11 м2 и общей площади 15 м2.

Таблица ЮБ-1

Сопоставление материально-технической базы типовой и экспериментальной школы (старшей профильной школы)

 

V-92

Единый учебный центр

1. Количество основных учебных помещений

17

44

2. Число классных групп при к = 1,3 (22/17)

22

56

3. Число учащихся

660

1320

4. Нормируемая площадь м2,

5512

8,35

17352

10,33

6. Характеристика учебной среды:

 

(по заданию без учета сети зданий района)

- состав учебных специализированных помещений

Отсутствуют

20 - 27

- набор помещений для групповых занятий (включая иностран. яз.)

2

15

- учебно-методический центр - библиотека (зона индивидуальных занятий)

50 м2 (1 помещение)

750 м2 (несколько зон)

7. Характеристика внутренней учебной среды:

 

Верхнее естественное освещение к.е.о. - 2,5 % и равномерность освещения по всей горизонтальной плоскости + сквозное проветривание

- освещенность в классе

К.е.о. менее 1,5 %

- норма площади в классе на 1 уч.

1,7 м2

2,5 м2

- норма площади рекреаций на 1 уч.

0,8 м2

2 м2

8. Функциональная структура здания

Один жесткий блок

Возможность эксплуатации в разных организационно-педагогических структурах от 1:6:6 до 0:6:12

9. Возможность дополнительного обучения на специализированной учебной базе учащихся 8 - 11 классов соседних школ

невозможно

2250 м2

10. Суммарный охват учащихся по сети школ на экспериментальной учебной базе

 

3570 (3930)* уч.

11. Нормируемая площадь на 1 уч-ся в расчете на сеть зданий района

-

4,86 (4,42)*

12. Общая площадь на 1 уч-ся в расчете на сеть зданий

-

7,54 (6,85)*

13. Дополнительный охват населения и учащихся соседних школ общешкольной группой помещений (залы, студии и кружки) на коммерческой основе

 

2000 чел. (в неделю)

14. Расчётная площадь на 1 уч-ся в расчете на сеть зданий, с учетом общешкольной группы помещений, м2

 

2,9

15. Сметная стоимость в ценах 1991 г. тыс. руб.

 

 

- общая на объект

на 1 место

8515,1

12,9

27428,5

20,8

- в расчете на сеть зданий

 

6,98

Примечания:

х) В скобках даны показатели при экстремальных условиях эксплуатации (аналогично типовым зданиям), без скобок - оптимальные.

СХЕМА РАЗМЕЩЕНИЯ ОБЩЕОБРАЗОВАТЕЛЬНЫХ ШКОЛ И СТАРШЕЙ ПРОФИЛЬНОЙ ШКОЛЫ В НОВОМ ЖИЛОМ РАЙОНЕ «ЮЖНОЕ БУТОВО»

Рис. ЮБ-1

Рис. ЮБ-2 Сеть девяти зданий школ типа У-92 (на 22 класса) со специализированным обучением учащихся 8 - 11 классов на базе Единого учебного центра.

Примечание: расчетная площадь Единого учебного Центра 7500 м2 для обучения учащихся 9 школ (тип У-92) жилого района «Южное Бутово».

Рис. ЮБ-3 Сеть девяти зданий школ типа У-92 (на 22 класса) с блоками-пристройками специализированных помещений для учащихся 8 - 11 классов (с показателями расчетной площади)

Примечание: суммарная величина расчетной площади блоков пристроек специализированных помещений для профильного обучения учащихся 8 - 11 классов района «Южное Бутово»:

а) минимальный вариант: на 1 школу 2200 м2; на группу 9 школ - 19800 м2

б) оптимальный вариант: на 1 школу 4800 м2; на группу 9 школ - 43200 м2.

Экспликация:

1. - Здание Единого учебного центра. 2. - Закрытые теплые павильоны для опытно-биологической круглогодичной работы. 3. - Спортивное ядро с круговой дорожкой 333 м. 4. - Площадки для тихого отдыха. 5. - Школьный двор

Рис. ЮБ-4 Генплан Единого учебного центра в жилом районе «Южное Бутово»

Рис. ЮБ-5. Здание единого учебного Центра СПШ. Аксонометрия.

СОДЕРЖАНИЕ

Введение. 2

1. Социально-педагогические основы и направления развития и совершенствования материальной базы общеобразовательных школ. 2

2. Основы формирования сетевых общеобразовательных школ для 8 - 11 классов (специализированные функциональные группы помещений) 5

3. Характеристика сложившейся сети школьных зданий г. Москвы (по сектору Центр - Периферия) 15

4. Расчет материальной среды базовых школ на основе системного (комплексного) подхода к организации сети зданий общеобразовательных школ жилого района (на примере района «Басманный») 24

4.5 Расчет дополнительных помещений школы № 310 (Б. Харитоньевский пер.) 25

Предложение по состав и площадям помещений блока специализированных учебных кабинетов для профильного обучения учащихся 8 - 11 классов района «Басманное» (в пределах Садового кольца). 28

5. Анализ сложившейся сети общеобразовательных школ и предложения по ее реконструкции (на примере жилого района «Хамовники») 33

6. Реконструкция сети общеобразовательных школ посредством строительства сетевых школ для учащихся 10 - 11 классов (на примере жилого района «Черемушки») 37

7. Реконструкция сети общеобразовательных школ посредством дополнительного строительства сетевых школ II - III ступеней обучения (СПШ) для учащихся 8 - 11 классов на примере района «Коньково». 43

8. Совершенствование сети общеобразовательных школ посредством организации единого учебного центра для обслуживания учащихся школ района (на примере жилого района «Южное Бутово») 52

 

 




ГОСТЫ, СТРОИТЕЛЬНЫЕ и ТЕХНИЧЕСКИЕ НОРМАТИВЫ.
Некоммерческая онлайн система, содержащая все Российские Госты, национальные Стандарты и нормативы.
В Системе содержится более 150000 файлов нормативно-технической документации, действующей на территории РФ.
Система предназначена для широкого круга инженерно-технических специалистов.

Рейтинг@Mail.ru Яндекс цитирования

Copyright © www.gostrf.com, 2008 - 2026