Крупнейшая бесплатная информационно-справочная система онлайн доступа к полному собранию технических нормативно-правовых актов РФ. Огромная база технических нормативов (более 150 тысяч документов) и полное собрание национальных стандартов, аутентичное официальной базе Госстандарта. GOSTRF.com - это более 1 Терабайта бесплатной технической информации для всех пользователей интернета. Все электронные копии представленных здесь документов могут распространяться без каких-либо ограничений. Поощряется распространение информации с этого сайта на любых других ресурсах. Каждый человек имеет право на неограниченный доступ к этим документам! Каждый человек имеет право на знание требований, изложенных в данных нормативно-правовых актах!

  


 

Система нормативных документов в строительстве

СВОД ПРАВИЛ ПО ПРОЕКТИРОВАНИЮ И СТРОИТЕЛЬСТВУ

ПРОЕКТИРОВАНИЕ И МОНТАЖ ПОДЗЕМНЫХ ТРУБОПРОВОДОВ
ДЛЯ СИСТЕМ ГОРЯЧЕГО
ВОДОСНАБЖЕНИЯ И ТЕПЛОСНАБЖЕНИЯ
ИЗ НАПОРНЫХ АСБЕСТОЦЕМЕНТНЫХ
ТРУБ И МУФТ

СП 41-106-2006

Москва

2006

Предисловие

1 РАЗРАБОТАН ОАО «НИИпроектасбест», НО «Хризотиловая ассоциация», Государственным унитарным предприятием г. Москвы «Научно-исследовательский институт московского строительства» (ГУП «НИИМосстрой»), ЗАО «НИИасбестцемент» и группой специалистов

ВНЕСЕН НО «Хризотиловая ассоциация»

УТВЕРЖДЕН И ВВЕДЕН в действие НО «Хризотиловая ассоциация» приказом от 16 декабря 2005 г. № 31

2 ОДОБРЕН Департаментом строительства и ЖКХ Минрегиона России 23.12.2005 г.

3 ВЗАМЕН СП 41-106-2004

Содержание

Введение

1 Область применения

2 Нормативные ссылки

3 Проектирование тепловых сетей

4 Транспортирование и хранение асбестоцементных труб, муфт и резиновых уплотнительных колец

5 Монтаж тепловых сетей из асбестоцементных труб и муфт

6 Испытания теплопроводов

7 Сдача и приемка в эксплуатацию

8 Эксплуатация

9 Требования безопасности при работе с асбестоцементными трубами и муфтами

Приложение А Специальные узлы (коллекторы)

Приложение Б (справочное) Показатели свойств тепловой изоляции

Приложение В (справочное) Расчетное значение плотности теплового потока

Приложение Г Номограмма для выбора опорной площади упоров

Приложение Д Испытания трубопроводов горячего водоснабжения и теплоснабжения из напорных асбестоцементных труб и муфт

Приложение Е (рекомендуемое) Коэффициент а1 для определения суммарной эквивалентной длины местных сопротивлений

Библиография

Введение

Настоящий Свод правил содержит правила по проектированию и монтажу подземных тепловых сетей из напорных асбестоцементных труб. Выполнение этих правил обеспечит соблюдение обязательных требований к тепловым сетям, установленных действующими нормативными документами.

В Своде правил установлены общие правила к способам соединения асбестоцементных труб между собой и со стальными соединительными частями, рассмотрены вопросы проектирования тепловых сетей, методы прокладки трубопроводов, хранения асбестоцементных труб и муфт, правила безопасности труда.

В разработке Свода правил принимали участие: канд. техн. наук А.В. Сладков, канд. техн. Наук А.Г. Нейман, канд. техн. наук А.А. Отставнов, канд. техн. наук В.Г. Петров-Денисов (ГУП «НИИМосстрой»), Н.И. Филлипович (ЗАО «НИИасбестцемент»), канд. техн. наук В.В. Иванов, Ж.В. Репина, Н.А. Чемякина (ОАО «НИИпроектасбест»), В.А. Бабич (ОАО «НИИтракторосельхозмаш»), д-р техн. наук Г.Х. Умеркин, Н.А. Елкина (ОАО «ВНИПИэнергопром»), М.Е. Мишин (ООО НПП «Пенополимер»), В.А. Глухарев (ФГУ ФЦС), Л.С. Васильева (ФГУП ЦНС).

СП 41-106-2006

СВОД ПРАВИЛ ПО ПРОЕКТИРОВАНИЮ И СТРОИТЕЛЬСТВУ

ПРОЕКТИРОВАНИЕ И МОНТАЖ ПОДЗЕМНЫХ ТРУБОПРОВОДОВ
ДЛЯ СИСТЕМ ГОРЯЧЕГО ВОДОСНАБЖЕНИЯ И ТЕПЛОСНАБЖЕНИЯ
ИЗ НАПОРНЫХ АСБЕСТОЦЕМЕНТНЫХ ТРУБ И МУФТ

Design and erection of underground pipelines made of pressure asbestos-cement pipes and couplings for hot water and heat supply systems

Дата введения 2006 03 01

1 Область применения

1.1 Настоящий Свод правил распространяется на проектирование и монтаж подземных трубопроводов теплоснабжения и горячего водоснабжения из напорных асбестоцементных труб и муфт для теплопроводов при бесканальной прокладке. Трубопроводы предназначены для теплоносителя воды с температурой не более 115 °С и рабочим давлением до 1,6 Мпа включительно. По надежности теплоснабжения трубопроводы предназначены для потребителей 2-й и 3-й категорий по СНиП 41-02. Для 2-й категории потребителей следует применять трубы с рабочим давлением не менее 1,2 МПа. Расчетный срок службы трубопроводов 25 лет.

При эксплуатации и испытаниях не допускается повышение температуры и давления теплоносителя более указанных техническими условиями на трубы, муфты и резиновые уплотнительные кольца.

1.2 Не допускается применение подземных трубопроводов из асбестоцементных труб в сейсмических районах, где возможны землетрясения 6 баллов и более, в районах вечной мерзлоты и в просадочных грунтах.

2 Нормативные ссылки

В настоящем Своде правил использованы ссылки на следующие нормативные документы.

ГОСТ 12.1.004-91 ССБТ. Пожарная безопасность. Общие требования

ГОСТ 12.1.007-76 ССБТ. Вредные вещества. Классификация и общие требования безопасности

ГОСТ Р 12.4.026-2001 ССБТ. Цвета сигнальные, знаки безопасности и разметка сигнальная. Назначение и правила применения. Общие технические требования и характеристики. Методы испытаний

ГОСТ 12.4.121-83 ССБТ. Противогазы промышленные фильтрующие. Технические условия

ГОСТ 30732-2001 Трубы и фасонные изделия стальные с тепловой изоляцией из пенополиуретана в полиэтиленовой оболочке. Технические условия

СНиП 3.01.04-87 Приемка в эксплуатацию законченных строительством объектов. Основные положения

СНиП 3.02.01-87 Земляные сооружения, основания и фундаменты

СНиП 3.05.03-85 Тепловые сети

СНиП 12-01-2004 Организация строительства

СНиП 12-04-2002 Безопасность труда в строительстве. Часть 2. Строительное производство

СНиП 41-02-2003 Тепловые сети

СНиП 41-03-2003 Тепловая изоляция оборудования и трубопроводов

СНиП III-42-80* Магистральные трубопроводы

СанПиН 2.2.3.757-99 Работа с асбестом и асбестосодержащими материалами

СП 41-103-2000 Проектирование тепловой изоляции оборудования и трубопроводов

СП 41-105-2002 Проектирование и строительство тепловых сетей бесканальной прокладки из стальных труб с индустриальной теплоизоляцией из пенополиуретана в полиэтиленовой оболочке

РД 10-231-98 Стропы грузовые общего назначения. Требования к устройству и безопасной эксплуатации

ПБ 10-573-03 Правила устройства и безопасной эксплуатации трубопроводов пара и горячей воды.

3 Проектирование тепловых сетей

3.1 Общие положения

3.1.1 При проектировании тепловых сетей бесканальной прокладки из асбестоцементных труб следует руководствоваться требованиями СНиП 41-02 и СП 41-105.

3.1.2 Для тепловых сетей и систем горячего водоснабжения следует применять асбестоцементные трубы, муфты и резиновые кольца, по своим характеристикам удовлетворяющие требованиям пунктов 10.3 и 10.4 СНиП 41-02 и имеющие санитарно-эпидемиологическое заключение о возможности применения для питьевого водоснабжения. Для выполнения поворотов, ответвлений и переходов с одного диаметра на другой рекомендуется применять стальные фасонные части по ГОСТ 30732 с неподвижной опорой или специальные узлы, приведенные на рисунках 1 и 2 - и в приложении А [1].

1 - наконечник; 2 - бетонный монолит; 3 - асбестоцементная муфта; 4 - кронштейн с гайкой; 5 - уплотнительное кольцо; 6 - патрубок; 7 - арматурный каркас; 8 - стальной отвод; 9 - проушина

Рисунок 1 - Узел ответвления стального трубопровода Dу = 150 мм налево от асбестоцементного Dу = 200 мм

1 - стальная труба с фланцем; 2 - уплотнительное кольцо; 3 - наконечник; 4 - патрубок; 5 - бетонный монолит; 6 арматурный каркас; 7 - кронштейн с гайкой; 8 - асбестоцементная муфта; 9 - проушина

Рисунок 2 - Узел перехода стального трубопровода Dy= 150 мм

3.1.3 Теплопроводы из асбестоцементных напорных труб в бесканальной прокладке следует размещать под непроезжей частью улиц и внутри кварталов жилой застройки. Бесканальная прокладка теплопроводов под проезжей частью автомобильных и магистральных дорог, улиц общегородского значения, на территории детских и лечебных учреждений не допускается.

3.1.4 Тепловые сети из асбестоцементных труб рекомендуется прокладывать в сухих, маловлажных или в ненасыщенных водой грунтах. При прокладке трубопроводов в насыщенных водой грунтах следует предусматривать попутный дренаж.

3.1.5 Для тепловых сетей отопления и горячего водоснабжения из асбестоцементных труб следует применять фланцевую запорную и регулирующую арматуру в соответствии со СНиП 41-02.

3.1.6 В местах изменения диаметра трубопровода, расположения отводов и разветвлений следует предусматривать узлы поворота и гнутые элементы заводского изготовления с радиусом гиба не менее одного диаметра трубы (по условному проходу) из стальных и асбестоцементных труб.

Металлические участки теплопроводов должны быть защищены антикоррозионным покрытием и теплоизолированы согласно СНиП 41-02 и СНиП 41-03.

3.1.7 В местах прохода теплопроводов из асбестоцементных труб сквозь стены зданий и теплофикационных камер следует предусматривать установку гильз с мягкой заделкой герметиком или уплотнением смоляной прядью на случай неравномерной осадки. В качестве гильзы используется отрезок стальной трубы с внутренним диаметром на 40 - 60 мм больше наружного диаметра асбестоцементной трубы или диаметра оболочки теплоизоляции асбестоцементной трубы для теплоизолированных труб.

3.1.8 Заглубление тепловых сетей от поверхности земли или дорожного покрытия должно быть не менее 1300 мм до верхней поверхности изоляционной конструкции асбестоцементных труб.

3.2 Выбор труб

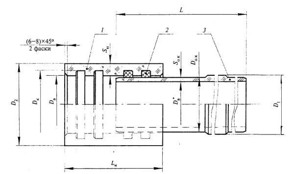
3.2.1 Размеры труб ТТ9 и муфт ТМ9 по ТУ 5786-055-00281588 [2], рекомендуемых к применению как пример, приведены соответственно в таблицах 1 и 2. Условные обозначения размеров приведены на рисунке 3.

1 - муфта; 2 - кольцо; 3 - труба; Dк - диаметр канавки; Dв - внутренний диаметр муфты; D2 - наружный диаметр муфты; Dо.к - диаметр обточенного конца; Sм - толщина стенки муфты; Lм - длина муфты; D1 - наружный диаметр трубы; Dв* - внутренний диаметр трубы; Sо.к - толщина стенки трубы по обточенному концу; L - длина трубы

Рисунок 3 - Схема соединения асбестоцементной трубы и муфты

Таблица 1 - Асебестоцементные трубы ТТ9 по ТУ 5786-055-00281588

Размеры в миллиметрах

Условный проход Dу

Внутренний диаметр Dв*

Наружный диаметр обраб./необраб. Dо.к/D1*

Толщина стенки обраб./необраб. Sо.к/S*

Длина L

100

96

122-1,5/25

3950-50

150

135

168-1,5/171

3950-50

200

181

224-2/230

3950-50

250

228

274-2/280

3950-50

300

270

324-2,5/330

3950-50

400

356

427-3/433

3950-50

500

441

528-3/534

3950-50

200

188

224-2/230

5000-50

250

234

274-2/280

5000-50

300

276

324-2/330

5000-50

400

363

427-3/433

5000-50

500

450

528-3/534

5000-50

*Справочные размеры, определяются технологией изготовителя.

Таблица 2 - Асбестоцементные муфты ТМ9 по ТУ 5786-055-00281588

Размеры в миллиметрах

Условный проход Dу

Внутренний диаметр Dв(+0,5-1)

Наружный диаметр D2*

Толщина стенки Sм, не менее

Диаметр канавок Dк(+0,5-1)

Длина Lм**(+5-1)

100

127

179

26

150

220

150

173

231

29

196

220

200

229

297

34

252

230

250

279

353

37

302

230

300

329

411

41

352

230

400

433

533

50

456

240

500

534

642

54

557

240

*Справочные размеры, определяются технологией изготовителя.

**Превышение положительного отклонения размеров не является браковочным признаком.

Возможно применение напорных асбестоцементных труб и муфт для теплопроводов, а также резиновых уплотнительных колец по другим техническим условиям. При этом применяемые асбестоцементные и резинотехнические изделия должны удовлетворять требованиям действующих нормативных документов и настоящего Свода правил.

3.2.2 Трубы и муфты должны быть водонепроницаемыми. Требования по отклонениям от прямолинейности, условиям испытаний на водонепроницаемость, разрушение, раздавливание и изгиб определяются техническими условиями. При этом соотношения испытательных давлений и рабочего давления должны быть не менее чем приведенные в таблице 3.

3.2.3 Для уплотнения соединений труб с муфтами должны использоваться резиновые кольца фигурного сечения. Размеры колец по ТУ 2531-262-00149245 [3] приведены в таблице 4, а конструкция и условные обозначения на рисунке 4.

Таблица 3 - Значения давлений для испытаний на водонепроницаемость и на разрушение внутренним давлением

Условный проход Dy, мм

Давление испытания на водонепроницаемость, не менее

Давление испытания на разрушение, не менее, при Рраб, МПа

0,6

0,9

1,0

1,2

1,6

100

2Рраб

6Рраб

5,3 Рраб

4,5Рраб

4Рраб

3,62Рраб

150-200

2Рраб

5Рраб

4,6Рраб

3,7Рраб

4,3Рраб

3,45Рраб

250-500

2Рраб

4,5Рраб

4Рраб

3,2Рраб

3,75Рраб

3,31Рраб

Таблица 4 - Уплотнительные резиновые кольца

Условный проход Dy, мм

Внутренний диаметр кольца d1, мм

Число глухих отверстий в кольце, шт.

номинальный

предельное отклонение

100

114

+2

-2,5

40

150

165

56

200

222

72

250

272

88

300

322

104

400

425

136

500

526

168

d1 - внутренний диаметр кольца, мм; п - число глухих отверстий в стенке кольца

Рисунок 4 – Уплотнительное резиновое кольцо

3.2.4 Резиновые уплотнительные кольца должны быть изготовлены из теплостойкой резины и обеспечивать срок эксплуатации не менее 25 лет при температуре не более 115 °С и давлении не более 1,6 МПа. Кольца должны выдерживать ежегодные испытания трубопроводов давлением не более 3,2 МПа и температурой не менее 150 °С в течение 2 ч. Свойства колец должны быть подтверждены сертификатом.

3.3 Гидравлический расчет

3.3.1 Суммарные потери давления в трубопроводах на трение и в местных сопротивлениях ΔР, Па

ΔР = Rl'                                                                                 (1)

где R - удельные потери на трение, Па/м;

l' - приведенная длина трубопровода, м.

3.3.2 Удельные потери на трение R, Па/м

,                                                           (2)

где λ - коэффициент гидравлического трения по длине,

Gd - суммарный расчетный массовый расход воды, кг/ч (см. СНиП 41-02);

ρ - средняя плотность воды на рассчитываемом участке, кг/м3, в зависимости от ее температуры (может быть принята равной 1000 кг/ м3);

Dв - внутренний диаметр труб, мм.

3.3.3 Коэффициент гидравлического трения по длине трубопровода

,                                                           (3)

где kэ - эквивалентная шероховатость внутренней поверхности труб, для асбестоцементных труб kэ=0,00008;

Re - число Рейнольдса.

Число Рейнольдса равно

,                                                                             (4)

где V - скорость движения воды по трубопроводу, м/с, которая равна

,                                                                            (5)

ν - коэффициент кинематической вязкости воды, м2/с, зависит от расчетной температуры, с запасом можно принимать для 60 °С ν = 0,47·10-6 м2/с.

3.3.4 Приведенная длина трубопровода l', м

l' = l + lэ,                                                                           (6)

где l - длина трубопровода, м;

lэ - эквивалентная длина местных сопротивлений, м.

Эквивалентная длина, м, равна

,                                                                         (7)

где  - сумма коэффициентов местных сопротивлений отдельных элементов теплопроводов на отдельном участке.

При отсутствии данных о характере и количестве местных сопротивлений на трубопроводах тепловых сетей суммарную эквивалентную длину местных сопротивлений на участке трубопроводов допускается определять умножением длины трубопровода на поправочный коэффициент а1, принимаемый по приложению Е настоящего Свода правил.

3.3.5 Приближенные значения удельных потерь давления на трение могут быть приняты по номограммам (рисунок 5).

3.3.6 Напор определяется по формуле

,                                                                                 (8)

где h - напор, м;

Р - давление, МПа;

g - ускорение свободного падения, м/с2.

Dy - условный диаметр труб, мм; G - расход теплоносителя, кг/ч; V - средняя скорость теплоносителя, м/с; Ру - удельное падение давления, Па/м

Рисунок 5 - Номограмма для гидравлического расчета трубопроводов из асбестоцементных труб

3.4 Компенсация температурных деформаций

3.4.1 Компенсация температурных деформаций теплопроводов из асбестоцементных труб обеспечивается конструкцией соединений. Для этого между торцами соседних труб, находящихся в асбестоцементной муфте, следует оставлять расстояние не меньше возможного перемещения концов соединенных труб. Температурное удлинение трубы определяется

,                                                                            (9)

где Δl - температурное удлинение трубы, м;

a - коэффициент температурного удлинения, мм/м·°С (для асбестоцемента a = 1·10-6);

L - длина трубы, м;

Δt - перепад температур, °С.

3.4.2 Монтажный зазор между торцами труб, учитывая, что длина их не превышает 5 м, допускается без расчета принимать равным 10 - 15 мм.

3.5 Тепловая изоляция

3.5.1 Тепловую изоляцию трубопроводов следует выполнять в соответствии с методиками, требованиями и рекомендациями СНиП 41-03 и СП 41-103, применяя теплоизолирующие материалы, имеющие необходимые для подземной бесканальной прокладки прочность и влагостойкость.

3.5.2 Рекомендуется применение асбестоцементных труб в индустриальной (выполненной в цеховых условиях) теплогидроизоляции из:

- пенополиуретана в полиэтиленовой оболочке (ППУ). Конструкция и размеры теплоизоляции труб представлены на рисунках 6, 8 и в таблице 5. Показатели свойств теплоизоляции приведены в приложениях Б и В;

- паропроницаемой пенополимерминеральной теплоизоляции (ППМ), представляющей собой модифицированный пенополиуретан с минеральным наполнителем и прочным поверхностным слоем, не требующим дополнительной гидроизоляции по ТУ 5768-004-13300749 [4]. Конструкция и размеры теплоизоляции труб представлены на рисунках 7, 9 и в таблице 6. Основные показатели свойств теплоизоляции приведены в приложениях Б и В.

3.5.3 Пенополиуретановая теплоизоляция асбестоцементных труб может быть снабжена не менее чем двумя линейными проводниками-индикаторами системы оперативного дистанционного контроля (ОДК) состояния влажности теплоизоляции в процессе эксплуатации теплопроводов.

3.5.4 Теплоизолированные асбестоцементные трубы рекомендуется комплектовать стальными фасонными изделиями с теплоизоляцией из пенополиуретана в полиэтиленовой оболочке (отводы, тройники, тройниковые ответвления, переходы и пр.) по ГОСТ 30732.

1 - центрирующая проставка; 2 - изоляция из пенополиуретана; 3 - труба-оболочка из ПЭ 63 (ПЭ 83); 4 - асбестоцементная труба; 5 - проводники-индикаторы системы оперативного дистанционного контроля состояния пенополиуретана (показаны условно); 6 - гидроизоляция торцов пенополиуретановой теплоизоляции

Рисунок 6 - Асбестоцементная труба с теплоизоляцией из пенополиуретана в полиэтиленовой оболочке

1 - изоляция из ППМ; 2 - асбестоцементная труба; Двн - внутренний диаметр трубы; Дн - наружный диаметр трубы; Диз - внешний диаметр изоляции; L - длина трубы; а толщина изоляции

Рисунок 7 - Асбестоцементная труба с теплоизоляцией из ППМ

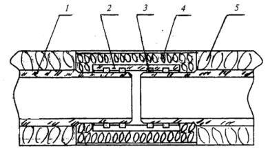
1 - асбестоцементная труба; 2 - асбестоцементная муфта; 3 - резиновые уплотнительные кольца; 4 - полуцилиндры (сегменты) из ППУ; 5 - термоусаживающаяся полиэтиленовая муфта; 6 - полиэтиленовая оболочка теплоизоляции; 7 - теплоизоляция из ППУ; 8 - слой песка

Рисунок 8 - Схема муфтового соединения теплоизолированных асбестоцементных труб в ППУ изоляции

1 - асбестоцементная труба; 2 - асбестоцементная муфта; 3 - резиновые уплотнительные кольца; 4 - изоляция стыка из ППМ; 5 - теплоизоляция из ППМ

Рисунок 9 - Схема муфтового соединения теплоизолированных асбестоцементных труб в ППМ изоляции

Таблица 5 - Асбестоцементные трубы ТТ9 с пенополиуретановой теплоизоляцией в полиэтиленовой оболочке

Размеры в миллиметрах

Условный проход Dy

Наружный диаметр асбестоцементной трубы D1

Наружный диаметр изоляции по полиэтиленовой оболочке

Толщина стенки полиэтиленовой оболочки

Толщина слоя пенополиуретана S

номинальный диаметр D

предельное отклонение (+)

номинальная толщина S1

предельное отклонение (+)

100

125

160

4,7

3,0

0,5

14,5

150

171

250

7,4

3,9

0,7

35,6

200

230

315

9,8

4,9

0,7

37,6

250

280

400

11,7

6,3

0,8

53,7

300

330

450

13,2

7,0

0,9

53,0

400

433

560

16,3

8,8

1,1

54,7

500

534

710

20,4

11,1

1,3

76,9

Таблица 6 - Асбестоцементные трубы ТТ9 с ППМ теплоизоляцией

Размеры в миллиметрах

Условный проход

Наружный диаметр асбестоцементной трубы

Наружный диаметр изоляции

Толщина слоя ППМ

100

122

205

41,5

125

40,0

150

168

257

44,5

171

43,0

200

224

309

42,5

230

39,5

250

274

359

42,5

280

39,5

300

324

412

44,0

330

41,0

400

427

517

45,0

433

42,0

500

528

616

44,0

534

41,0

4 Транспортирование и хранение асбестоцементных труб, муфт и резиновых уплотнительных колец

4.1 Асбестоцементные трубы и муфты, а также резиновые кольца можно перевозить любыми видами транспорта. При перевозке асбестоцементные изделия должны быть плотно уложены и надежно закреплены с целью предотвращения повреждений от соударений. Рекомендуется использовать для фиксации приспособления из деревянного бруса сечением 100×100 мм. Перевозка асбестоцементных изделий в кузове самосвала или с погрузкой навалом запрещается.

4.2 При погрузо-разгрузочных работах и транспортировании должны быть приняты меры, исключающие повреждение труб, муфт и изолирующего слоя от соударений и воздействия грузозахватных приспособлений.

4.3 Погрузку и разгрузку труб следует производить механизированным способом. Сбрасывание их с платформ транспортных средств не допускается.

4.4 Во избежание повреждения труб при погрузо-разгрузочных работах рабочие поверхности применяемых грузозахватных приспособлений должны иметь мягкие прокладки из резины, брезента и др.

4.5 Асбестоцементные трубы должны храниться в штабелях в складах или на открытых площадках. Конструкции упоров, ограничивающих раскатывание штабеля, не должны повреждать поверхности труб и теплоизоляции. Высота штабеля не должна превышать: 3 м - для труб Dy до 150 мм; 3,5 м - для труб Dy свыше 150 мм.

4.6 Асбестоцементные муфты следует хранить в штабелях высотой не более 1,5 м. Укладка муфт в штабели должна производиться на торец.

4.7 Резиновые кольца следует хранить в закрытых помещениях при температуре 0 - 35 °С, не допуская воздействия прямых солнечных лучей, теплоты от нагревательных приборов, загрязнений и паров растворителей, масел, агрессивных жидкостей. Для обеспечения вышеуказанных требований рекомендуется применение специальной тары, а также исключение хранения в одном складе с горюче-смазочными материалами, растворителями, щелочами и кислотами, а также ближе чем на 1 м от отопительных приборов. Допускается хранение колец в неотапливаемых складах при температуре не ниже минус 15 °С, в условиях, исключающих их деформацию.

4.8 Укладку теплоизолированных асбестоцементньтх труб в транспортное средство следует производить ровными рядами, не допуская перехлестов. Рекомендуемое число одновременно перевозимых труб и число ярусов в одной укладке (приспособлении) приведены в таблицах 7, 8.

Таблица 7 - Рекомендуемое число одновременно перевозимых труб в ППУ изоляции и число ярусов в одной укладке

Уловный проход труб Dy, мм

Диаметр оболочки, мм

Число труб, шт.

Число ярусов, шт.

100

160

30

4

150

250

17

3

200

315

9

2

250

400

7

2

300

450

5

2

400

560

5

2

500

710

5

2

Таблица 8 - Рекомендуемое число одновременно перевозимых труб в ППМ изоляции и число ярусов в одной укладке

Уловный проход труб Dy, мм

Диаметр оболочки, мм

Число труб, шт.

Число ярусов, шт.

100

205

30

4

150

257

17

3

200

309

9

2

250

359

7

2

300

412

5

2

400

517

5

2

500

616

5

2

4.9 Теплоизолированные асбестоцементные трубы и стальные; фасонные изделия, при условии хранения или транспортирования на открытом воздухе в течение двух недель и более, должны быть защищены от воздействия осадков, брызг воды и прямых солнечных лучей. Складирование и хранение теплоизолированных пенополиуретаном изделий в местах, подверженных затоплению водой, не допускается.

4.10 При условии соблюдения требований к условиям хранения установка резиновых уплотнительных колец в теплопроводы допускается не позднее одного года с даты изготовления, указанной в сопроводительном документе на партию.

5 Монтаж тепловых сетей из асбестоцементных труб и муфт

5.1 Общая часть

5.1.1 Организационно-техническая подготовка к строительству тепловых сетей из асбестоцементных труб должна осуществляться в соответствии со СНиП 12-01, СНиП 3.05.03, общими требованиями СП 41-105 и требованиями настоящего Свода правил.

5.1.2 К сооружению тепловых сетей следует приступать только после согласования и утверждения в установленном порядке всей технической документации.

5.1.3 При раскладке труб нельзя допускать попадания в них поверхностных или сточных вод. Трубы, муфты, арматура и готовые узлы перед монтажом должны быть осмотрены и очищены снаружи и особенно изнутри от загрязнений и посторонних предметов.

5.1.4 Концы трубопровода, уложенного в траншею, а также отверстия запорной арматуры во время перерыва в укладке следует закрывать заглушками.

5.1.5 Монтаж теплопроводов следует производить при положительной температуре окружающего воздуха. При температуре воздуха ниже минус 10 °С транспортирование и монтаж теплоизолированных изделий не рекомендуются.

При монтаже асбестоцементного трубопровода в условиях отрицательных температур резиновые кольца следует выдержать в распакованном виде при температуре не ниже 15 °С не менее четырех часов или прогреть в воде при температуре (50 - 60) °С 30 мин, после чего окончательно установить в трубопровод в течение 15 мин нахождения на открытом воздухе.

5.1.6 На углах поворотов и в местах ответвлений, выполненных при помощи стальных отводов, необходимо предусматривать неподвижные опоры (способ выбора площади упоров приведен в приложении Г) или специальные узлы поворотов, ответвлений и переходов (приложение А). Узлы имеют различную конструкцию, где стальные фасонные части и асбестоцементные муфты находятся внутри монолитного бетонного блока. Узлы совмещают в себе неподвижную опору, теплоизоляцию и гидроизоляцию.

5.1.7 При сооружении неподвижной опоры или установке специального узла (поворотов, ответвлений и переходов) необходимо обеспечить опорную стенку котлована с ненарушенной структурой грунта. Зазор между опорной поверхностью коллектора или опоры и стенкой котлована должен быть плотно заполнен бетонной смесью.

5.1.8 Строительство тепловых сетей включает в себя следующие основные процессы:

- разбивку трассы;

- земляные работы;

- устройство неподвижных опор или установку специальных узлов поворотов, ответвлений или переходов;

- транспортирование и хранение теплоизолированных труб и фасонных изделий;

- раскладку труб;

- проверку целостности проводников-индикаторов системы ОДК;

- соединение труб;

- монтаж труб и элементов трубопровода;

- теплоизоляцию трубопровода;

- монтаж системы ОДК;

- испытания теплотрассы и системы ОДК, устранение неисправностей;

- теплоизоляцию стыков;

- засыпку траншей и котлованов, выполнение благоустройства;

- приемосдаточные испытания.

5.1.9 Разбивку трассы тепловых сетей следует производить в соответствии с проектом организации строительства (ПОС) и проектом производства работ (ППР), которые должны быть согласованы с эксплуатирующими организациями.

5.2 Земляные работы

5.2.1 Разработка траншей, котлованов и работы по устройству основания для бесканальной прокладки теплопроводов из асбестоцементных труб следует производить в соответствии с требованиями СНиП 3.02.01, СНиП III-42 и настоящего раздела.

5.2.2 При бесканальной прокладке дополнительно должно быть выполнено следующее:

- рытье траншеи механизмами должно производиться с недобором по глубине 0,1 - 0,15 м. Зачистка до проектной отметки производится вручную. В случае разработки грунта ниже проектной отметки на дно должен быть подсыпан песок до проектной отметки с тщательным уплотнением (коэффициент уплотнения не менее 0,98) слоем не более 0,5 м;

- осуществлено устройство:

а) приямков для соединения и устройства изоляции стыков труб;

б) расширенной траншеи для устройства камер, дренажной системы и др.;

- обеспечено достаточное пространство для укладки, поддержки и сборки труб на заданной глубине, а также для удобства уплотнения материала при обратной засыпке теплопроводов;

- на дне траншеи следует предусматривать песчаную подсыпку толщиной 0,1 - 0,15 м. Перед устройством песчаного основания или пластового дренажа следует провести осмотр дна траншеи, выровненных участков перебора грунта, проверку соответствия проекту уклонов дна траншеи. Результаты осмотра оформляются актом на скрытые работы.

5.2.3 Наименьшую ширину траншей по дну при двухтрубной бесканальной прокладке тепловых сетей следует принимать для труб:

- диаметром до 250 мм - 2d1 + а + 0,6 м;

- диаметром свыше 250 мм - 2d1 + а + 0,8 м;

где d1 - наружный диаметр оболочки теплоизоляции, м;

а - расстояние в свету между оболочками теплоизоляции труб, м.

5.2.4 Размеры приямков под изоляцию стыков труб следует принимать:

- ширина 2d1 + а + 1,2 м;

- длина для стыка с термоусадочным полотном 1,2 м;

глубина для труб диаметром до 200 мм - 0,3 м;

для труб диаметром 250 мм и более - 0,4 м.

5.2.5 При укладке труб на бетонное или скальное основание или при опасности подтопления во время монтажа трубы диаметром до 400 мм следует укладывать на основание из песка, обеспечивающее расстояние 200 мм от оболочки трубы до твердого основания, а для труб диаметром 400 мм и более расстояние 300 мм. Основание перед укладкой труб должно быть утрамбовано с коэффициентом уплотнения » 0,98.

5.2.6 Обратная засыпка при бесканальной прокладке должна производиться послойно с одновременным уплотнением каждого слоя.

Над верхом полиэтиленовой оболочки изоляции асбестоцементных труб обязательно устройство защитного слоя из песчаного фунта толщиной не менее 150 мм. Засыпной материал не должен содержать камней, щебня, гранул с размером зерен более 16 мм, остатков растений, мусора. Стыки засыпают после гидравлических испытаний и монтажа изоляции. Над каждой трубой по всей длине трассы на слой песка толщиной 150 мм над верхом теплоизоляции необходимо укладывать маркировочную ленту.

Засыпка теплопровода мерзлым грунтом запрещается.

В тех местах, где глубина выемки грунта, грунтовые характеристики или стесненные условия прокладки не позволяют вырыть обычную траншею с откосами, следует осуществлять крепление грунта по стенкам траншеи и приямков.

При высоком уровне стояния грунтовых вод (выше дна траншеи) в период строительства должна производиться их откачка. Затопление траншеи с уложенными в нее трубами в процессе монтажа трубопровода не допускается.

5.2.7 Перед монтажом участка трубопровода проводится проверка состояния изоляции и исправности сигнальных проводников системы ОДК состояния влажности пенополиуретановой теплоизоляции в каждой трубе и фасонном элементе.

5.2.8 При проверке состояния изоляции и исправности проводников системы ОДК следует руководствоваться соответствующими требованиями СП 41-105.

5.2.9 Перед монтажом в траншее трубы и фасонные детали располагают на расстоянии » 1,5 м от края траншеи на временных опорах, предохраняющих от самопроизвольного скатывания и от повреждения изоляции. Элементы трубопровода должны быть разложены в том порядке, в каком намечена их укладка в траншею.

5.2.10 Все элементы подвергают тщательному осмотру с целью обнаружения трещин, сколов и надрезов полиэтиленовой оболочки. Изделия, на которых обнаружены надрезы и трещины оболочки длиной более 300 мм и глубиной более ⅓ толщины стенки, подлежат отбраковке. Мелкие дефекты и проколы допускается ремонтировать на месте укладки сваркой согласно требованиям раздела 8 настоящего Свода правил.

5.3 Монтаж асбестоцементных теплопроводов

5.3.1 Перемещения теплоизолированных труб и фасонных деталей должны быть плавными, без ударов об окружающие предметы, стенки и дно траншеи. Укладка теплоизолированных асбестоцементных труб в траншею должна производиться при помощи грузоподъемных механизмов. Применяемые грузозахватные приспособления должны иметь мягкие рабочие поверхности для исключения повреждения оболочек и теплоизоляции труб и фасонных деталей.

5.3.2 Перед соединением асбестоцементных труб выполняют установку резиновых уплотнительных колец в канавки муфт, очищенные от загрязнений, проверенные на отсутствие повреждений и смазанные.

Кольца перед установкой также очищают от загрязнений и проверяют на отсутствие повреждений гребешков и трещин на уплотняющих поверхностях. Для выявления трещин кольцо следует растянуть или круто изогнуть, скрутить. Применение поврежденных колец, а также колец, которые хранились в ненадлежащих условиях (см. 4.7 и 4.10 настоящего Свода правил) или хранились более года, не допускается.

При установке кольца расправляют в канавке до равномерного выступания. Глухие отверстия в теле колец должны быть обращены к центру муфты.

5.3.3 Уплотняемые поверхности труб и муфт, на которые опираются гребешки резинового кольца, до соприкосновения с резиновым кольцом должны быть обильно смазаны густым мыльным раствором или графито-глицериновой пастой. Паста готовится в виде смеси 40 % графитовой пудры, 45 % глицерина и 15 % воды.

Для трубопроводов горячего водоснабжения в качестве смазки уплотняемых поверхностей должен применяться пищевой глицерин или консистентные (нежидкие) пищевые жиры, если применение жиров допускается техническими условиями на резиновые кольца.

5.3.4 Для выполнения ветвей трубопровода, некратных по длине трубам, допускается подгонка труб по длине. Для этого готовую трубу укорачивают до заданной длины и, удалив теплоизоляцию на длине, равной длине применяемых муфт, производят механическую обработку конца трубы, выдерживая предусмотренные техническими условиями размеры, допуски, разностенность и шероховатость. При механической обработке следует выполнять требования раздела 9 настоящего Свода правил.

5.3.5 Сборка муфтовых соединений на дне траншеи должна производиться над приямками. Рекомендуемые размеры приведены в 5.2.4 настоящего Свода правил.

5.3.6 Сборка трубопровода начинается на бровке траншеи, до опускания труб на дно. На одну трубу с двух концов натягивают муфты так, чтобы тело муфты оказалось полностью надетым на проточенный конец трубы, после чего трубу с муфтами опускают на дно траншеи. Следующую трубу опускают без муфт. Третья труба вновь с муфтами и т.д. Затем две смежных трубы укладывают соосно, приспособлением взаимно фиксируют их для обеспечения в процессе монтажа температурного компенсационного зазора 10 - 15 мм между торцами и передвигают муфту на свободную трубу на половину длины плюс половину температурного зазора.

Муфты по проточенным концам труб следует передвигать только при помощи приспособлений, избегая перекосов. Передвижка муфт при помощи ударного инструмента запрещается.

5.3.7 Дно траншеи должно быть выровнено. При необходимости выполняется подсыпка песком с послойным уплотнением и увлажнением.

Уложенные на дно траншеи и соединенные трубы выравниваются по шнуру, под визирку. Угол между осями двух смежных труб (изгиб в стыке) допускается не более 3°. Выравнивание труб следует производить подбивкой песка с последующим орошением водой. При выравнивании труб не допускается подкладывать под них обрезки досок, камни, твердые комья земли и пр.

5.3.8 После соединения теплоизолированных ППУ изоляцией асбестоцементных труб и соединения проводников-индикаторов системы ОДК выполняют теплоизоляцию муфтового соединения.

Для теплоизоляции муфтовых соединений, которую следует выполнять при температуре наружного воздуха не ниже минус 10 °С, используют полуцилиндры (сегменты) из пенополиуретана с вырезкой и подгонкой их по конфигурации стыка. Полуцилиндры (сегменты) закрепляют полимерными или металлическими бандажными лентами не менее чем в двух местах и покрывают термоусаживающейся манжетой с подслоем герметика (например, силиконового) с нахлестом на полиэтиленовые оболочки теплоизоляции труб не менее 100 мм для диаметров оболочки до 250 мм и не менее 150 мм для диаметров больше чем 250 мм.

Термоусадку манжеты выполняют при помощи горелки со специальным насадком, формирующим плоский факел. Горелка питается от баллона с пропаном, оборудованного газовым редуктором для снижения давления до 0,2 МПа. Во время нагрева манжеты расстояние от кромки насадка до нагреваемой поверхности должно составлять 100 - 150 мм. Нагрев рекомендуется выполнять, начиная от середины стыка по окружности, непрерывными колебательными движениями от одного края изоляции стыка к другому. При этом необходимо следить, чтобы не допустить пережога материала манжеты.

Нагрев термоусаживающейся манжеты следует производить до выступания из-под кромок равномерного валика расплавленного герметика.

При пониженной температуре воздуха нагрев термоусадочной ленты на оболочках диаметром 315 мм и более рекомендуется выполнять одновременно двумя горелками.

5.3.9 При монтаже и приемке системы ОДК состояния влажности пенополиуретановой теплоизоляции следует руководствоваться соответствующими требованиями СП 41-105.

5.3.10 По окончании изоляции стыков по всей длине трубопровода производится заключительный контроль исправности сигнальных проводников и сопротивления изоляции.

5.3.11 Тепловая изоляция теплопроводов в камерах выполняется пенополиуретановыми или ППМ полуцилиндрами (сегментами) с подгонкой их по месту.

5.3.12 Не допускается устройство стыков теплопроводов в местах прохода их через стены теплофикационных камер, подвалов, а также в пределах конструкции сопряжения бесканальных участков с канальными участками. В этих местах на теплопроводах должна быть ненарушенная заводская изоляция.

5.3.13 Расстояние от стыка трубопровода до наружной поверхности стенки тепловой камеры или до конструкции сопряжения канального и бесканального участков должно быть не менее 2 м.

5.3.14 Монтаж сборных элементов дренажных колодцев производится после инструментальной проверки основания из песка, щебня по степени уплотнения или прочности тощего бетона под конструкции колодцев.

5.3.15 В случае применения засыпной теплоизоляции, например, гидрофобизированного керамзита, после планировки дна траншеи на него укладывается полиэтиленовая пленка шириной, обеспечивающей обертывание трубопровода с теплоизоляцией и нахлест сверху не менее 800 мм. Подушка, на которую укладываются трубы, выполняется слоем керамзита, толщина которого определяется тепловым расчетом.

5.3.16 В местах, где бесканальная прокладка трубопроводов из асбестоцементных труб недопустима, возможна прокладка:

- в каналах, образованных разгрузочными бетонными плитами, уложенными на уступы стенок траншеи, выполненные на уровне верхней отметки засыпной теплоизоляции;

- в каналах, образованных лотками;

- в туннелях или в футлярах.

Подземная прокладка по территории детских и лечебных учреждений, школ допускается только в монолитных (герметичных) бетонных лотках.

5.3.17 В местах пересечения с железнодорожными и трамвайными путями и с автомобильными дорогами подземные трубопроводы из асбестоцементных труб должны укладываться в каналы, исключающие воздействие транспорта на трубопровод.

6 Испытания теплопроводов

6.1 Испытания проводятся строительно-монтажной организацией в два этапа: предварительные и приемочные испытания.

6.1.1 Предварительные испытания на прочность и герметичность выполняются после частичной засыпки труб песком не менее половины длины каждой трубы на 0,3 - 0,5 м выше верха трубы. Муфты не засыпаются и не теплоизолируются с целью наблюдения за ними в процессе испытаний.

Предварительные испытания допускается выполнять без участия представителей заказчика и эксплуатационной организации.

По результатам предварительных испытаний строительно-монтажной организацией составляется акт, утверждаемый главным инженером организации.

6.1.2 Приемочные испытания на прочность и герметичность проводят после выполнения теплоизоляции соединительных муфт и полной засыпки трубопровода. В составе комиссии по проведению приемочных испытаний должны быть представители заказчика и эксплуатационной организации. По результатам испытаний составляется акт.

6.2 Трубопроводы при предварительных и приемочных испытаниях следует испытывать участками длиной не более 0,5 км.

6.3 Величина испытательного давления Ри при предварительных испытаниях принимается с коэффициентом 2,0 от расчетного рабочего давления, для трубопроводов к объектам 2-й категории надежности теплоснабжения и с коэффициентом 1,5 от расчетного рабочего давления для трубопроводов к объектам 3-й категории надежности теплоснабжения.

6.4 До проведения предварительных и приемочных испытаний трубопроводов должны быть закончены все работы:

- по установке соединительных асбестоцементных муфт;

- по устройству неподвижных опор с выдержкой до набора прочности бетоном;

- по установке фланцевых заглушек;

- по подготовке средств наполнения, опрессовки и опорожнения испытываемого участка;

- по монтажу временных коммуникаций, приборов и кранов, необходимых для проведения испытаний.

6.5 Для измерения гидравлического давления при проведении предварительных и приемочных испытаний трубопроводов следует применять поверенные в установленном порядке пружинные манометры класса точности не ниже 1,5. Порядок проведения испытаний приводится в приложении Д.

7 Сдача и приемка в эксплуатацию

7.1 Сдача и приемка в эксплуатацию законченных строительством тепловых сетей из асбестоцементных напорных труб и муфт должны производиться в соответствии со СНиП 3.01.04 и настоящим Сводом правил.

7.2 Дополнительно к обязательному перечню актов приемки тепловых сетей в эксплуатацию комиссии должен быть представлен акт приемки системы ОДК состояния влажности пенополиуретановой теплоизоляции по форме приложения Ж к СП 41-105.

8 Эксплуатация

8.1 В случае обнаружения повреждений в асбестоцементных трубах или муфтах (поперечные или продольные трещины, сколы и др.), возникших после монтажа трубопровода или испытаний, необходимо произвести замену трубы или муфты.

8.2 При повреждениях полиэтиленовой оболочки теплоизоляции на глубину не более 20 % толщины стенки оболочки место повреждения следует очистить от загрязнений (пыль, масло и др.) и наложить бандаж из термоусадочной ленты с подслоем герметика. Бандаж должен выходить в осевом направлении за пределы поврежденного участка не менее чем на 100 мм.

8.3 При несквозном повреждении полиэтиленовой оболочки теплоизоляции на глубину более 20 % толщины стенки оболочки (надрез, глубокая риска и т.д.) или при проколе повреждение следует раскрыть под углом 45°, обезжирить ацетоном и заварить.

8.4 При локальном механическом повреждении ППУ изоляции труб на участке длиной не более 400 мм поврежденную теплоизоляцию с асбестоцементной трубы следует удалить на участке 400 - 420 мм, обеспечив отрезку теплоизоляции перпендикулярно оси трубопровода. При удалении теплоизоляции повреждение проводников-индикаторов системы ОДК не допускается.

Удаленная теплоизоляция восстанавливается с применением пенополиуретановых полуцилиндров с прирезкой их по длине и для размещения проводников-индикаторов системы ОДК. Гидроизоляция выполняется термоусадочной лентой с подслоем герметика.

При повреждении ППУ теплоизоляции трубопровода на участке протяженностью более 400 мм (до 3 м) следует в качестве гидроизоляции использовать полиэтиленовую оболочку такого же диаметра. Перед монтажом новой оболочки ее следует разрезать по образующей, а после монтажа свести края разреза и герметично сварить их между собой и с краями основной оболочки.

Трубы, имеющие поврежденную ППУ изоляцию на длине более чем 3 м, подлежат ремонту в условиях предприятия изготовителя теплоизоляции.

В процессе сварки следует избегать перегрева пенополиуретана, вызывающего его разложение. Сварку следует проводить на открытом воздухе, а в помещении только под местной вытяжной вентиляцией.

8.5 Допускается устранять повреждения ППМ изоляции на месте монтажа теплопроводов (или при их изготовлении), если площадь повреждений на одной трубе не превышает 5 % площади внешней поверхности ППМ изоляции. Повреждения ППМ изоляции устраняют путем заливки ППМ ремонтным составом, приготовляемым на месте в инвентарной опалубке, или ремонтной полимерминеральной мастикой. Изделия, имеющие повреждения ППМ изоляции более 5 % площади наружной поверхности, монтажу не подлежат.

8.6 При нарушении герметичности муфтового соединения следует убедиться в точности установки муфты относительно торцов труб. При неправильном положении муфты герметичность достигается путем ее подвижки.

Если положение муфты правильное, необходимо демонтировать муфту, установить причину негерметичности и устранить ее.

Любые работы на трубопроводе допускается производить только при отсутствии избыточного давления.

8.7 Для замены дефектной асбестоцементной трубы необходимо снять теплоизоляцию стыков, разъединить проводники-индикаторы системы ОДК и сдвинуть муфты на соседние трубы. Дефектную трубу извлечь и на ее место уложить новую трубу. После укладки трубы надвинуть на ее проточенные концы муфты с соседних труб, соединить проводники-индикаторы системы ОДК и восстановить вновь изоляцию стыков.

8.8 Для замены дефектной муфты следует снять теплоизоляцию стыка, разъединить проводники-индикаторы системы ОДК и сдвинуть муфту на соседнюю трубу. На эту же трубу, разобрав стык, сдвинуть следующую муфту. Извлечь трубу с муфтами из траншеи. Заменить дефектную муфту на исправную, надвинуть муфту с резиновыми кольцами на трубу. Трубу с муфтами опустить в траншею на прежнее место, муфты сдвинуть в рабочее положение, соединить проводники-индикаторы системы ОДК и восстановить тепло- и гидроизоляцию стыков.

8.9 При демонтаже и монтаже муфт следует пользоваться приспособлениями, фиксирующими взаимное положение соседних труб с обеспечением температурного зазора.

9 Требования безопасности при работе с асбестоцементными трубами и муфтами

9.1 При производстве строительно-монтажных работ по сооружению асбестоцементных тепловых сетей, их приемке и последующей эксплуатации должны соблюдаться требования СНиП 12-04, ПБ 10-573, СанПиН 2.2.3.757 и настоящего Свода правил.

9.2 К работам по устройству тепловых сетей из асбестоцементных труб с теплоизоляцией из пенополиуретана в полиэтиленовой оболочке и ППМ изоляции допускаются лица, достигшие 18 лет, прошедшие медицинское освидетельствование, специальное обучение, вводный инструктаж и инструктаж по технике безопасности на рабочем месте.

9.3 При любых действиях, связанных с механической обработкой асбестоцементных труб, производимых в ходе строительно-монтажных или ремонтных работ, приводящих к появлению асбестосодержащей пыли, отходов в виде стружки и боя, должны быть соблюдены следующие требования:

- рабочие, выполняющие механическую обработку асбестоцементных изделий, в обязательном порядке должны использовать индивидуальные средства защиты респираторы для защиты органов дыхания от асбестоцементной пыли и защитную спецодежду;

- резка, обработка труб и муфт, зачистка их должны выполняться стружкообразующим лезвийным инструментом (пилы, фрезы, резцы, сверла) с минимальным образованием пыли. Не допускается обработка асбестоцементных изделий при помощи любого абразивного инструмента;

- асбестоцементная пыль и стружка, образовавшиеся в результате механической обработки асбестоцементных изделий, должны быть увлажнены и собраны в закрывающиеся емкости, а затем в закрывающиеся контейнеры. При погрузке асбестосодержащих отходов производства в емкости и контейнеры рабочие должны использовать индивидуальные средства защиты: респираторы для защиты органов дыхания от асбестоцементной пыли и защитную спецодежду;

- при входе в рабочие помещения, в которых производится механическая обработка асбестоцементных изделий, связанная с выделением в воздух асбестоцементной пыли, концентрация которой может превысить допустимые пределы, должны быть установлены знаки безопасности по ГОСТ Р 12.4.026 с поясняющей надписью: «Работать с применением средств защиты органов дыхания»;

- обеспыливание спецодежды должно производиться при помощи всасывающих устройств, снабженных пылеуловителями. Обдув и встряхивание спецодежды, загрязненной асбестоцементной пылью, запрещается.

9.4 Твердые отходы асбестоцементных изделий - бой, дефектные изделия разрешается хранить в крытых складах и на площадках, оборудованных навесами для защиты от воздействия атмосферных осадков. Перевозить такие отходы следует в контейнерах или в транспортных средствах, кузова которых исключают просыпание.

9.5 Транспортирование асбестоцементных отходов на полигон твердых бытовых отходов (ТБО) или к месту их дальнейшей переработки производится в соответствии с правилами перевозки опасных грузов автомобильным транспортом.

9.6 При хранении теплоизолированных труб, фасонных изделий и элементов пенополиуретановой изоляции на объекте строительства и на месте монтажа, учитывая, горючесть пенополиуретана и полиэтилена, следует соблюдать правила пожарной безопасности ГОСТ 12.1.004. Запрещается разводить огонь и проводить огневые работы ближе 2 м от места складирования изолированных труб, фасонных изделий и элементов пенополиуретановой изоляции. Запрещается хранение совместно с теплоизолированными пенополиуретаном изделиями и элементами пенополиуретановой теплоизоляции горючих и легковоспламеняющихся жидкостей.

9.7 При воспламенении пенополиуретановой теплоизоляции следует пользоваться любыми имеющимися средствами пожаротушения. При пожаре в закрытом помещении следует пользоваться противогазами марки БКФ по ГОСТ 12.4.121, так как при сгорании пенополиуретана выделяется ядовитое вещество фосген.

9.8 При термоусадке бандажей пламенем пропановой горелки необходимо тщательно следить за нагревом и не допускать расплавления, чтобы избежать ожогов от расплавившегося полиэтилена.

9.9 Отходы пенополиуретана, полиэтилена и ППМ изоляции при резке изолированных труб и освобождении стальных фасонных деталей от теплоизоляции должны быть сразу после окончания операции собраны и складированы в специально отведенном на стройплощадке месте на расстоянии не менее 2 м от теплоизолированных труб, фасонных деталей и элементов пенополиуретановой теплоизоляции.

9.10 Изоляция труб и деталей (вспененный полиуретан, полиэтилен и ППМ) не взрывоопасна, при обычных условиях не выделяет в окружающую среду токсичных веществ и не оказывает при непосредственном контакте вредного влияния на организм человека. Обращение с ней не требует особых мер предосторожности (класс опасности 4 по ГОСТ 12.1.007).

9.11 Использование асбестоцементных отходов (боя от труб и муфт) для засыпки траншей трубопроводов и подсыпки транспортных дорог не допускается.

9.12 Монтажники должны быть обеспечены спецодеждой, защитными касками, рукавицами. До начала работ бригады должны быть обеспечены инструментом, приспособлениями и оснасткой, соответствующими выполняемой работе.

9.13 До начала работ применяемые грузозахватные приспособления должны быть проверены и испытаны в соответствии с РД 10-231.

9.14 Запрещается производить работы под грузом, подвешенным на грузоподъемном устройстве.

Теплоизолированные асбестоцементные трубы следует опускать в траншею на высоту 300 - 400 мм от основания. После этого монтажники направляют и укладывают трубы в проектное положение. Расстроповка труб разрешается только после установки их в проектное положение и раскрепления средствами, предусмотренными проектом. Запрещается оставлять поднятые элементы трубопроводов на весу.

9.15 Запрещается помещать в монтируемый трубопровод инструменты, материалы, спецодежду и другие предметы даже на короткое время.

9.16 С целью обеспечения безопасных условий работы при проведении гидравлических испытаний готовность трубопровода к испытанию проверяется инженерно-техническим работником монтажной организации, ответственным за проведение испытаний. В процессе испытаний запрещается оставлять испытываемый трубопровод под давлением без надзора.

9.17 Во избежание несчастных случаев осмотр испытуемого трубопровода разрешается производить только после снижения давления до рабочего. Осмотр трубопровода должен производиться специально выделенными для этой работы и проинструктированными работниками. Во время осмотра нахождение вблизи трубопровода кого-либо, кроме этих работников, не допускается.

9.18 Все обнаруженные дефекты должны отмечаться на трубопроводе с минимальным воздействием на него мелом или краской. Устранение дефектов, как и любые другие работы на трубопроводе, разрешается производить только при отсутствии в нем избыточного давления.

9.19 Персонал, занятый проведением гидравлических испытаний, должен находиться в безопасном месте, огражденным экраном на случай выбивания заглушек и разрушения прокладок. Заглушки, фланцевые и другие соединения, которые могут быть сорваны или разрушены при повышении давления в трубопроводе во время испытаний, должны быть отмечены предупредительными, знаками, как места повышенной опасности.

Приложение А

Специальные узлы (коллекторы)

Специальные узлы поворотов, переходов или ответвлений [1] служат для выполнения поворотов, ответвлений и переходов с одного диаметра на другой и имеют следующую конструкцию: к фасонным частям (например, к отводу, если выполняется поворот) приварены стальные наконечники, по форме и размерам повторяющие проточенный конец асбестоцементной трубы. На наконечники установлены асбестоцементные муфты с резиновыми уплотнительными кольцами. Вся конструкция размещена в бетонном моноблоке, на поверхность которого выходят торцы асбестоцементных муфт. Для обеспечения надежного уплотнения во время эксплуатации рекомендуется рабочие поверхности наконечников лудить оловянно-свинцовым припоем, а для питьевой воды - пищевым оловом. Узел имеет арматурный каркас и проушины для строповки. Для исключения перемещения вдоль траншеи под действием осевых сил от внутреннего давления в трубопроводе в конструкции узлов имеются развитые опорные лопасти. Для крепления монтажной оснастки и заглушек на поверхностях узла концентрично муфтам предусмотрены резьбовые отверстия в кронштейнах, закрепленных на наконечниках. Узлы совмещают в себе неподвижную опору, теплоизоляцию и гидроизоляцию, их применение рекомендуется в трубопроводах как с индустриальной, так и с засыпной теплоизоляцией.

Приложение Б

(справочное)

Показатели свойств тепловой изоляции

Таблица Б.1 - Показатели свойств тепловой изоляции асбестоцементных труб из пенополиуретана (ППУ) в полиэтиленовой оболочке

№ п.п.

Наименование показателя свойств, единица измерения

Значение

1

Плотность теплоизоляции из ППУ, кг/м3, не менее

60

2

Прочность ППУ при сжатии при 10 % деформации, МПа, не менее

0,3

3

Объемная доля закрытых пор ППУ, %, не менее

88

4

Водопоглощение ППУ при кипячении в течение 90 мин, % по объему, не более

10

5

Теплопроводность при температуре 50 °С, не более

0,033

6

Поредел текучести полиэтилена оболочки, МПа, не менее

19

7

Относительное удлинение полиэтилена оболочки при разрыве, %, не менее

350

Таблица Б.2 - Показатели свойств пенополимерминеральной теплогидроизоляции (ППМ) труб

№ п.п.

Наименование показателя свойств, единица измерения

Значение

1

Плотность, кг/м3

270±50

2

Предел прочности, МПа, не менее:

 

 

при сжатии

1,2

 

при сдвиге в осевом направлении

0,2

3

Водопоглощение при полном погружении за 1 сут по массе, %, не более

1,5

4

Теплопроводность в сухом состоянии при t = 50 °С, Вт/м·°С, не более

0,047

Приложение В

(справочное)

Расчетное значение плотности теплового потока

Таблица В.1 - Расчетное значение плотности теплового потока (линейных тепловых потерь) двухтрубной бесканальной прокладки тепловых сетей из асбестоцементных труб, теплоизолированных пенополиуретаном

Условный диаметр асбестоцементных труб и наружный диаметр полиэтиленовой оболочки, мм

Плотность теплового потока (линейные тепловые потери), Вт/м, при числе часов работы в год

5200 и менее

более 5200

для подающей трубы (90 °С)

для обратной трубы (50 °С)

для подающей трубы (90 °С)

для обратной трубы (50 °С)

100×160

78,79

37,89

73,11

31,75

150×250

58,78

30,11

54,57

25,51

200×315

69,37

34,99

64,40

29,57

250×400

64,27

33,02

59,68

28,00

300×450

72,43

36,77

67,25

31,11

400×560

85,32

42,63

79,21

35,96

500×710

79,85

40,68

49,46

35,20

Таблица В.2 - Расчетное значение плотности теплового потока (линейных тепловых потерь) двухтрубной бесканальной прокладки тепловых сетей из асбестоцементных труб в пенополимерминеральной теплогидроизоляции

Условный диаметр асбестоцементных труб и наружный диаметр, мм

Плотность теплового потока (линейные тепловые потери), Вт/м, при более 5000 ч работы в год

для подающей трубы (90 °С)

для обратной трубы (50 °С)

100×205

41

19

150×257

49

23

200×309

62

28

250×359

71

32

300×412

79

35

400×517

95

42

500×616

113

49

Приложение Г

Номограмма для выбора опорной площади упоров

Dy - условный диаметр труб, мм;

а - угол поворота теплотрассы, град.;

Ри - испытательное внутреннее давление, МПа;

q - прочность грунта, воспринимающего нагрузку, МПа;

Ω - опорная площадь упора, м2

Рисунок Г.1

Приложение Д

Испытания трубопроводов горячего водоснабжения и теплоснабжения из напорных асбестоцементных труб и муфт

Испытания асбестоцементных трубопроводов горячего водоснабжения и теплоснабжения из напорных асбестоцементных труб и муфт производятся в соответствии с требованиями раздела 6 настоящего Свода правил в изложенном ниже порядке.

Д.1 Предварительные испытания

Д.1.1 Перед началом гидравлических испытаний трубопровод должен быть заполнен водой и выдержан в таком состоянии не менее 24 ч для полного насыщения труб и муфт водой.

Д.1.2 Во избежание гидроударов рекомендуется заполнение трубопровода водой с объемным расходом не более 5 м3/ч. При заполнении трубопровода водой воздух должен быть удален через открытые воздушные вентили.

Д.1.3 Трубопровод подвергается гидравлическим испытаниям участками длиной не более 500 м каждый.

Д.1.4 При проведении испытаний на герметичность давление в трубопроводе доводится до 0,2 МПа (2 кгс/см2) и выдерживается 30 мин. После выдержки проводится осмотр испытываемого участка с отметкой дефектных мест. Производится устранение дефектов и повторное заполнение трубопровода водой. При испытаниях на прочность давление повышается плавно, ступенями по 0,1 - 0,3 МПа с выдержкой на каждой ступени не менее 5 мин. Под испытательным давлением, равным 2,0 от рабочего (для потребителей 2-й категории теплоснабжения) и 1,5 от рабочего (для потребителей 3-й категории теплоснабжения), трубопровод выдерживается 30 мин, после чего давление снижается до рабочего и проводится осмотр трубопровода для определения его состояния и выявления дефектов.

Д.1.5 По результатам осмотра трубопровод (участок трубопровода) считается выдержавшим испытания, если при испытаниях не произошло разрушения труб и муфт, определяемого визуально перемещения неподвижных опор и деформации их металлоконструкций, нет локальных течей, кроме течей из-под заглушек или иной арматуры, смонтированных специально только для проведения испытаний.

Д.1.6 Асбестоцементный трубопровод считается выдержавшим предварительные испытания по условиям герметичности, если для подержания испытательного давления на прочность величина расхода подкачиваемой в процессе испытаний воды не превысила значения, приведенного в таблице Д.1 настоящего приложения.

Д.1.7 Результаты испытаний, осмотра, выявленные дефекты и меры, принятые по их устранению, заносятся в акт испытаний.

Д.2 Приемочные гидравлические испытания

Д.2.1 Приемочные гидравлические испытания трубопровода (по участкам длиной не более 500 м) следует производить после получения положительных результатов предварительных испытаний и после засыпки трубопровода грунтом в соответствии с требованиями СНиП 3.02.01.

Д.2.2 Трубопровод заполняется водой с объемным расходом не более 5 м3/ч на 24 ч для водонасыщения асбестоцементных труб и муфт. При заполнении водой воздух удаляется через открытые воздушные вентили.

Если трубопровод был заполнен водой до засыпки грунтом, то указанная продолжительность водонасыщения устанавливается с момента засыпки трубопровода.

Д.2.3 Испытания на герметичность производятся по методике Д.1.4 настоящего приложения. Если расход воды, необходимый для поддержания давления, укладывается в требования Д.2.6, переходят к испытаниям на прочность. При получении неудовлетворительных результатов испытания прекращают, отыскивают и устраняют дефекты и повторяют предварительные испытания с составлением акта, в котором отмечается характер дефекта и меры, принятые по его устранению.

Д.2.4 При положительных результатах испытаний на герметичность выполняются испытания на прочность. Для этого в испытываемом участке давление плавно повышается ступенями по 0,1 - 0,3 МПа (1 - 3 кгс/см2) с выдержкой на каждой ступени не менее 5 мин.

Д.2.5 Под испытательным давлением трубопровод выдерживается 30 мин, изменения давления фиксируются через каждые 10 мин. При падении давления допускается подкачка в трубопровод дополнительного объема воды, который также следует фиксировать. Расход определяют делением значения объема воды, подлитого в насос для подкачки, на период времени выдержки под испытательным давлением.

Д.2.6 Асбестоцементный трубопровод признается выдержавшим предварительные и приемочные испытания на герметичность и прочность, если величина расхода воды, необходимой для подкачки в трубопровод для поддержания испытательного давления во время выдержки, не превысила допустимых значений, указанных в таблице Д.1.

Таблица Д.1 - Допустимый удельный расход воды для поддержания испытательного давления на 1 м испытываемого участка

Dу, мм

100

150

200

250

300

400

500

Расход воды, см3/мин-м

1,70

1,72

1,98

2,22

2,42

2,80

3,14

Д.2.7 По результатам испытаний составляется акт, содержащий заключение комиссии о возможности допуска трубопровода в эксплуатацию.

Приложение Е

(рекомендуемое)

Коэффициент а1 для определения суммарной эквивалентной длины местных сопротивлений

Типы компенсаторов

Условный проход трубопровода, мм

Значения коэффициента а.

Транзитные тепловые сети (без ответвлений)

Сальниковые

До 1400

0,2

П-образные с гнутыми отводами

До 300

0,3

П-образные со сварными или крутоизогнутыми отводами

200-350

0,5

То же

400-500

0,7

»

600-1400

1,0

Прочие тепловые сети

Сальниковые

До 400

0,3

»

450-1400

0,4

П-образные с гнутыми отводами

До 150

0,3

То же

175-200

0,4

»

250-300

0,6

П-образные со сварными или крутоизогнутыми отводами

175-250

0,6

То же

300-350

0,8

»

400-500

0,9

»

600-1400

1,0

Примечание - Суммарная эквивалентная длина местных сопротивлений на участке трубопровода определяется по формуле

lэ = l а1

где l - длина участка трубопровода по плану, м;

а1 - коэффициент, учитывающий долю падения давления в местных сопротивлениях по отношению к падению давлений на трение.

Библиография

[1] Специальные узлы поворотов, переходов или ответвлений (коллекторы), ОАО «НИИтракторосельхозмаш», патент Российской Федерации на полезную модель № 32853. Зарегистрирована в Государственном реестре полезных моделей Российской Федерации от 27 сентября 2003 г.

[2] ТУ 5786-055-00281588-02 «Трубы и муфты асбестоцементные для теплопроводов»

[3] ТУ 2531-262-00149245-00 «Кольца резиновые теплостойкие типа САМ для муфтовых соединений асбестоцементных труб»

[4] ТУ 5768-004-13300749-05 «Трубы и изделия на основе ППМ теплогидроизоляции», ОАО «ВНИПИэнергопром»

Ключевые слова: трубы асбестоцементные, трубопроводы подземные, водоснабжение горячее, теплоснабжение, проектирование, монтаж

 




ГОСТЫ, СТРОИТЕЛЬНЫЕ и ТЕХНИЧЕСКИЕ НОРМАТИВЫ.
Некоммерческая онлайн система, содержащая все Российские Госты, национальные Стандарты и нормативы.
В Системе содержится более 150000 файлов нормативно-технической документации, действующей на территории РФ.
Система предназначена для широкого круга инженерно-технических специалистов.

Рейтинг@Mail.ru Яндекс цитирования

Copyright © www.gostrf.com, 2008 - 2026