Крупнейшая бесплатная информационно-справочная система онлайн доступа к полному собранию технических нормативно-правовых актов РФ. Огромная база технических нормативов (более 150 тысяч документов) и полное собрание национальных стандартов, аутентичное официальной базе Госстандарта. GOSTRF.com - это более 1 Терабайта бесплатной технической информации для всех пользователей интернета. Все электронные копии представленных здесь документов могут распространяться без каких-либо ограничений. Поощряется распространение информации с этого сайта на любых других ресурсах. Каждый человек имеет право на неограниченный доступ к этим документам! Каждый человек имеет право на знание требований, изложенных в данных нормативно-правовых актах!

  


 

ПРАВИТЕЛЬСТВО МОСКВЫ МОСКОМАРХИТЕКТУРА

 

РЕКОМЕНДАЦИИ
по проектированию детских домов
для детей-сирот и детей, оставшихся без попечения родителей

 

2005

 

ПРЕДИСЛОВИЕ

1. РАЗРАБОТАНЫ: ГУЛ МНИИП «Моспроект-4» (архитекторы Любомудрова К Л., Кряжевских М.А., инженер Тихомирова И.Б.).

2. ПОДГОТОВЛЕНЫ К УТВЕРЖДЕНИЮ И ИЗДАНИЮ: Управлением перспективного проектирования, нормативов и координации проектно-изыскательских работ Москомархитектуры.

3. СОГЛАСОВАНЫ: Департаментом образования города Москвы, Москомархитектурой.

4. УТВЕРЖДЕНЫ И ВВЕДЕНЫ В ДЕЙСТВИЕ: приказом Москомархитектуры от 12.08.2005 № 107

СОДЕРЖАНИЕ

ВВЕДЕНИЕ

Детский дом для детей-сирот и детей, оставшихся без попечения родителей, (далее ДД) является самостоятельным типом общеобразо­вательного учреждения стационарного типа для детей и подростков, сирот и оставшихся без попечения родителей или родственников в раннем возрасте. Это учреждение создает оптимальные условия для социальной адаптации, воспитания, образования, оздоровления и профессиональной ориентации воспитанников.

Назначением ДД является обеспечение условий, максимально приближенных к домашним, для воспитания, образования, психологической, медицинской, бытовой и социальной реабилитации детей и подростков, оставшихся без попечения родителей и родственников.

1. ОБЛАСТЬ ПРИМЕНЕНИЯ.

1.1. Настоящие «Рекомендации» разработаны в развитие нормативных документов по проектированию и строительству, действующих на территории г. Москвы. Их положения распространяются на проектирование новых и реконструкцию существующих ДД.

1.2. Настоящие «Рекомендации» устанавливают основные положения и требования к размещению, участку, территории, архитектурно-планировочным решениям и инженерному оборудованию ДД.

1.3. Проектирование ДД должно вестись в соответствии с положениями настоящих «Рекомендаций», а также требованиями нормативно-методических документов в строительстве, действующих на территории г. Москвы.

2. НОРМАТИВНЫЕ ССЫЛКИ.

В настоящих Рекомендациях приведены ссылки на следующие нормативно-методические документы:

СНиП 2.08.02-89 «Общественные здания и сооружения»;

СНиП 21-01-97 «Пожарная безопасность зданий и сооружений»;

СНиП 2.07.01-89* «Градостроительство. Планировка и застройка городских и сельских поселений»;

НПБ 88-2001 «Установки пожаротушения и сигнализации. Нормы и правила проектирования»;

СНиП 41-01-2003 «Отопление, вентиляция и кондиционирование воздуха»;

СНиП 23-05-95* «Естественное и искусственное освещение»;

СНиП 2.04.01-85* «Внутренний водопровод и канализация зданий»;

СП 2.4.990-00 «Гигиенические требования к устройству, содержанию, организации режима работы в детских домах и школах-интернатах для детей-сирот и детей, оставшихся без попечения родителей»;

СанПиН 2.2.1/2.1.1.1076-01 «Гигиенические требования к инсоляции и солнцезащите помещений жилых и общественных зданий и территорий»;

СанПиН 2.4.2.1178-02 «Гигиенические требования к условиям обучения в общеобразовательных учреждениях»;

СанПиН 2.2.1/2.1.1.1278-03 «Гигиенические требования к естественному, искусственному и совмещенному освещению в жилых и общественных зданиях»;

СанПиН 2.1.2.1188-03 «Плавательные бассейны. Гигиенические требования к устройству, эксплуатации и качеству воды. Контроль качества»;

СН 441-72* «Указания по проектированию ограждений площадок и участков предприятий, зданий и сооружений»;

МГСН 4.06-03 «Общеобразовательные учреждения»;

МГСН 4.15-98 «Общеобразовательные учреждения для детей-сирот и детей, оставшихся без попечения родителей»;

МГСН 1.01-99 «Нормы и правила проектирования, планировки и застройки г. Москвы»,

МГСН 4.12-97 «Лечебно-профилактические учреждения»;

МГСН 2.06-99 «Естественное, искусственное и совмещенное освещение»;

МГСН 2.01-99 «Энергосбережение в зданиях»;

МГСН 4.07-96 «Дошкольные учреждения»;

«Рекомендации по проектированию образовательных учреждений для детей, нуждающихся в психолого-педагогической и медико-социальной помощи», М., 2000 г.;

«Рекомендации по проектированию сети и зданий детских внешкольных учреждений для г. Москвы», вып. 1, 2, 3, М, 1997г.;

«Пособие по проектированию учреждений здравоохранения к СНиП 2.08.02-89*»;

«Проектирование бассейнов» Справочное пособие к СНиП 2.08.02-89*;

«Проектирование клубов» Справочное пособие к СНиП 2.08.02-89*.

3. ОБЩИЕ ПОЛОЖЕНИЯ.

3.1. Основной целью деятельности ДД является формирование интеллектуально и духовно богатой, физически и нравственно сформировавшейся, гуманистически ориентированной личности, готовой к осознанному выбору и освоению профессии, а также своего места в обществе, обладающей трудовыми навыками, способствующими самостоятельной последующей жизни.

3.2. Основными задачами ДД являются:

- создание благоприятных условий, приближенных к домашним, способствующих умственному, эмоциональному и физическому развитию личности;

- обеспечение социальной защиты, медико-психолого-педагогической реабилитации и социальной адаптации воспитанников;

- создание условий для разработки и реализации индивидуальных воспитательных и образовательных программ, обеспечивающих разноуровневый и индивидуальный подход в обучении и воспитании;

- создание основы для осознанного выбора профессии;

- создание условий для реализации программ дополнительного образования, способствующих максимальному развитию творческих и потенциальных возможностей детей;

- обеспечение охраны и укрепления здоровья воспитанников;

- обеспечение охраны прав и интересов воспитанников.

3.3. Предметом деятельности ДД является:

- организация питания и проживания воспитанников в соответствии с установленными нормами;

- осуществление мер по социальной адаптации воспитанников к предстоящей самостоятельной жизни;

- организация образовательной деятельности по общеобразовательным программам (основным и дополнительным) и начального профессионального образования в соответствии с индивидуальными особенностями воспитанников;

- организация развивающего досуга (культурное и эстетическое развитие, оздоровление и занятия спортом);

- организация мероприятий, направленных на формирование законопослушного поведения воспитанников.

3.4. Контингент воспитанников ДД составляют дети-сироты и дети, оставшиеся без попечения родителей, в возрасте от 3 до 18 лет с нормальным интеллектом.

3.5. Структура и состав помещений ДД должны быть рассчита­ны на использование городской социальной инфраструктуры. Воспитанники ДД должны обслуживаться муниципальными общеобразовательными учреждениями, учреждениями дополнительного образова­ния, учреждениями начальной профессиональной подготовки (УПК), культурно-массовыми и спортивными учреждениями и т.п.

3.6. ДД в зависимости от организации жилой группы подразде­ляются на:

- ДД традиционного типа (далее ДД-1), в котором проживание воспитанников организуется по групповому (поло-возрастному) принципу, т.е. жилая группа рассчитана на проживание одновозрастных однополых воспитанников. Оптимальная вместимость жилой группы -10 детей;

- ДД семейного типа (далее ДД-2), в котором организация работы строится по принципу проживания воспитанников в «семье». «Семья» состоит из детей разного пола и возраста при условии постоянного пребывания «мамы»-воспитателя. Оптимальная вместимость жилой группы - не более 7 детей, в том числе 2-3 ребенка дошкольного возраста.

3.7. ДД в зависимости от наличия в составе группы помещений общего образования подразделяются на:

- ДД без указанной группы помещений с обслуживанием воспитанников находящимися в непосредственной близости муниципальными общеобразовательными учреждениями (далее ДД-3);

- ДД с указанной группой помещений, дающей возможность обучать воспитанников по установленными воспитательным и общеобразовательным программам (далее ДД-4).

3.8. Оптимальная вместимость ДД - 50-70 мест.

3.9. Состав и площади помещений ДД должны определяться заданием на проектирование в соответствии с Разделом 5 настоящих Рекомендаций.

4. ПОЛОЖЕНИЯ ПО РАЗМЕЩЕНИЮ, УЧАСТКУ И ТЕРРИТОРИИ.

4.1. ДД следует размещать в селитебной зоне города. ДД-4 следует размещать вблизи общеобразовательных школ с учетом радиуса пешеходной доступности.

4.2. Здания ДД следует размещать на обособленных земельных участках.

4.3. Площадь участка ДД принимается из расчета не менее 140-160 м2 на 1 воспитанника с учетом размещения на участке площадок и сооружений оздоровительного и досугового характера.

4.4. В составе территории участка ДД предусматриваются следующие зоны:

- учебная и общественная;

- проживания;

- физкультурно-оздоровительная;

- медицинского изолятора;

- хозяйственная.

4.5. Размеры и состав зон участков в зависимости от объемно-планировочного решения уточняются в процессе проектирования с учетом положений настоящего раздела.

4.6. В зоне размещения функциональных блоков учебного и общественного назначения рекомендуется предусматривать мощеную площадку для массовых сборов воспитанников из расчета 0,8 м2 на 1 воспитанника.

4.7. В зоне проживания рекомендуется предусматривать прогулочную территорию, оборудованную газонами, цветниками, навесами, скамейками для отдыха и т.п.

4.8. В физкультурно-оздоровительной зоне рекомендуется предусматривать игровые и спортивные площадки, теневые навесы для отдельных групп детей.

Площадь игровых площадок следует принимать 6-8 м2 на 1 воспитанника из расчета одновременного присутствия всех детей дошкольного возраста и 40-50% детей школьного возраста. Площадки должны иметь травянисто-песчаный покров. На игровых площадках для детей дошкольного и младшего школьного возраста рекомендуется предусматривать следующее оборудование: качели, качалки, грибки, скамейки для отдыха, песочные дворики с ящиками для хранения песка, столы для игр с песком, а также оборудование для развития всех основных видов движения (для лазания, скатывания, перелезания).

Теневые навесы - 2 м2 на 1 место - должны примыкать к игровым площадкам и быть рассчитаны на проведение игр в плохую погоду, а также на возможность проведения занятий с детьми на воздухе. Теневые навесы должны иметь дощатый пол и ветрозащитные стенки с двух-трех сторон.

4.9. В составе физкультурно-оздоровительной зоны для воспитанников среднего и старшего школьного возраста рекомендуется предусматривать:

- баскетбольную и волейбольную площадки;

- гимнастическую площадку (15×16 м);

- комбинированную площадку для спортивных игр, метания мяча и прыжков (60×40 м).

Состав и количество физкультурных площадок определяются в каждом конкретном случае заданием на проектирование.

В зимнее время на территории физкультурных площадок рекомендуется организовывать каток.

4.10. Медицинский изолятор должен иметь самостоятельный выход на участок и подъездные пути, обеспечивающие возможность проезда специального медицинского транспорта для госпитализации заболевших.

4.11. Хозяйственная зона должна размещаться со стороны производственных помещении пищеблока. На ее территории допускается размещать гараж с мастерскими, навесы для инвентаря и оборудования, мусоросборники и т.п. Отапливаемый гараж рекомендуется про­ектировать на 3 машины (1 - легковая, 1 - грузовая типа «газель», 1-автобус) и использовать как для хозяйственных нужд учреждения, так и для обучения автоделу воспитанников. В составе гаража допускается предусматривать мастерскую.

4.12. Площадь озеленения территории участка должна составлять не менее 50% от общей площади участка. Озеленение участка включает групповые и рядовые посадки деревьев и кустарников, декоративные растения, цветники и газоны. Во избежание снижения освещенности в помещениях, кустарники следует высаживать не ближе 5 м, а деревья - 10 м от здания.

4.13. Земельный участок должен иметь ограждение высотой 1,5-2 м в соответствии с требованиями СН 441-72*.

4.14. На участок ДД должно быть предусмотрено не менее двух въездов (один - хозяйственный).

4.15. Планировка участка должна обеспечивать подъезды пожарных машин ко всем зданиям и блокам, а также объезды вокруг них в соответствии с СНиП 21-01-97*. Подъезды должны иметь твердое покрытие и ширину не менее 3 м.

4.16. Участок ДД должен быть освещен в соответствии с требованиями СНиП 23-05-95*.

4.17. Для автомашин сотрудников ДД следует предусматривать открытую стоянку за пределами ограждаемой территории в соответствии с требованиями МГСН 1.01-99.

5. ПОЛОЖЕНИЯ ПО АРХИТЕКТУРНО-ПЛАНИРОВОЧНЫМ РЕШЕНИЯМ И ИНЖЕНЕРНОМУ ОБОРУДОВАНИЮ.

Общие положения.

5.1. В состав ДД входят следующие функциональные группы помещений:

- вестибюльная;

- проживания;

- общего образования;

- социально-бытовой адаптации;

- досуговая и физкультурно-оздоровительная;

- медицинская;

- медицинского изолятора;

- питания;

- административно-хозяйственная.

Архитектурно-планировочные решения ДД должны учитывать требования функционального зонирования помещений с учетом осуществляемой в них деятельности.

5.2. Основными функциональными требованиями к планировочной организации здания ДД являются требования обособления, изоляции и, одновременно, удобных технологических и коммуникационных связей между отдельными группами помещений. Допускается предусматривать проходы через отдельные функциональные группы помещений, исключая помещения групп проживания, общего образования и медицинского изолятора. Функциональная связь различных групп помещений может осуществляться через общее коммуникационное пространство.

5.3. Общая функционально-планировочная схема ДД представлена на Рис. 1.

5.4. Объемно-планировочная структура здания должна обеспечивать оптимальные условия осуществления протекающих в нем функциональных процессов, отражать специфику учреждения и обеспечивать соответствующие условия эксплуатации и необходимую связь с участком.

5.5. При проектировании помещений ДД рекомендуется пользоваться планировочными схемами отдельных помещений, приведенными в Приложении к настоящим Рекомендациям. Рекомендуемые площади помещений в зависимости от конкретных планировочных и конструктивных решений могут быть откорректированы (уменьшены или увеличены) не более чем на 15%.

5.6. Функциональные группы помещений могут размещаться в корпусах или блоках, непосредственно примыкающих друг к другу или соединенных отапливаемыми переходами. В случае непосредственного примыкания корпусов (блоков) должны предусматриваться пожарные отсеки площадью не более 5000м2, разделяемые противопожарными стенами 1-го типа (в соответствии с требованиями СНиП 21-01-97*), а из каждого пожарного отсека должно быть предусмотрено не менее двух эвакуационных выходов, один из выходов допускается предусматривать в соседний блок.

Рис. 1. Функционально-планировочная схема ДД.

1. Вестибюльная группа помещений. 2. Помещения проживания. 3. Помещения питания. 4. Помещения общего образования. 5. Досуговая и физкультурно-оздоровительная группа помещений. б. Помещения социально - бытовой адаптации. 7. Медицинская группа помещений. 8. Медицинский изолятор. 9. Административно-хозяйственная группа помещений.

Условные обозначения:

Функциональные связи:

Коммуникационное пространство:

5.7. Здания ДЦ не должны превышать 4 этажей при условии размещения помещений, рассчитанных на использование дошкольниками, не выше 3 этажа.

5.8. Ширина лестничных маршей должна быть не менее 1,35 м. Лестничные марши должны быть оборудованы поручнями на разной высоте (0,9 м и 0,7-0,75 м) в соответствии с положениями МГСН 4.15-98.

Ширину дверей помещений группы проживания и административно-хозяйственного назначения следует принимать 0,8 м; в помещениях остальных групп - не менее 0,9 м.

Ширину коридоров во всех группах помещений, рассчитанных на работу с детьми, следует принимать не менее 2,2 м; а в группе помещений административно-хозяйственного назначения следует принимать не менее 1,4 м.

Ширина рекреационных помещений в группе помещений общего образования должна приниматься не менее 4 м.

5.9. Высота наземных этажей здания ДД должна быть не менее 3,3 м (от пола до пола вышележащего этажа). Высота зрительного зала принимается по технологическим требованиям, высота спортзала и бассейна - 6 м (до низа несущих конструкций).

5.10. Внутренняя отделка помещений ДД должна быть выполнена из материалов, разрешенных для применения органами государственного санитарного надзора, допускающих влажную уборку, а также применение дезинфицирующих средств.

5.11. В помещениях рекреаций и холлах рекомендуется организовывать уголки релаксации с зелеными насаждениями, фонтанчиками, аквариумами и живыми уголками.

5.12. Естественное, искусственное и совмещенное освещение в помещениях следует проектировать в соответствии с требованиями СанПиН 2.2.1/2.1.1.1278-03.

5.13. Рабочие места в учебных помещениях, а также в помеще­ниях мастерских и кружковых должны иметь естественное освещение с КЕО не менее 1,5 на поверхности столов и освещаться боковым с левой стороны светом. Для организации мобильных форм (групповых и индивидуальных) ведения занятий необходимо предусматривать равномерное освещение по всей рабочей плоскости в помещении за счет дополнительного верхнего света или дополнительного искусственного освещения в глубине помещения.

5.14. Допускается не предусматривать естественного освещения:

- в зрительном зале;

- в коммуникациях и коридорах, не являющихся рекреационными помещениями;

- в умывальных, душевых и уборных при спортивном зале, тренажерном зале, бассейне;

- в санитарных узлах для персонала, комнатах личной гигиены женщин;

- в радиоузле;

- в столовой для персонала;

- в кладовых инвентаря, комнатах хранения уборочного инвентаря;

- в помещениях технических служб.

В зависимости от архитектурно-планировочного решения допускается проектировать с искусственным освещением санитарные узлы для детей и подростков в группе проживания (при соблюдении необходимой кратности обмена воздуха).

5.15. Санитарные узлы и туалетные комнаты в ДД проектируются с учетом специфики работы каждого подразделения в соответствии с положениями МГСН 4.15-98, МГСН 4.06-03, СП 2.4.990-00.

Внутренний водопровод и канализацию следует проектировать в соответствии с СНиП 2.04.01-85*.

Санитарные узлы для персонала следует размещать поэтажно. В состав оборудования санитарных узлов следует включать унитаз и умывальник.

Кабины личной гигиены для женщин (персонала) рекомендуется размещать в административно-хозяйственной группе помещений. В состав оборудования кабин входят: унитаз, умывальник, биде.

5.16. В комнатах хранения уборочного инвентаря следует предусматривать умывальник и слив. Данные помещения следует размещать поэтажно, кроме случаев, оговоренных особо в настоящих Рекомендациях.

5.17. Инсоляцию помещений, в которых находятся дети, следует предусматривать в соответствии с требованиями СанПиН 2.2.1/2.1.1.1076-01.

5.18. Отопление и вентиляцию зданий следует проектировать в соответствии с требованиями СНиП 41-01-2003, МГСН 2.01-99.

5.19. Энергоснабжение, электрооборудование, электрическое освещение здания и наружное освещение территории следует предусматривать в соответствии с требованиями МГСН 2.06-99, СанПиН 2.2.1/2.1.1.1278-03, МГСН 2.01-99.

5.20. Проектирование зданий должно осуществляться с учетом принципов максимального энергосбережения в соответствии с требованиями МГСН 2.01-99.

5.21. Здания следует проектировать не менее II степени огнестойкости в соответствии с СНиП 21-01-97*.

5.22. В зданиях должна быть предусмотрена автоматическая пожарная сигнализация в соответствии с требованиями НПБ 88-2001. Перечень помещений, в которых необходимо предусматривать автоматическую пожарную сигнализацию, следует определять в соответствии с МГСН 4.06-03 и МГСН 4.15-98. Сигнал о срабатывании системы АПС (автоматической пожарной сигнализации) выводится в помещение с круглосуточным пребыванием персонала.

5.23. На путях эвакуации из здания должно быть предусмотрено аварийное и эвакуационное освещение, проектируемое в соответствии с требованиями СНиП 21-01-97* и СНиП 23-05-95*.

Вестибюльная группа помещений.

5.24. Состав и площади помещений вестибюльной группы ДД определяются заданием на проектирование. Рекомендуемые состав и площади приведены в таблице 5.1.

5.25. Вход во все блоки различных групп помещений, как правило, осуществляется через вестибюльную группу.

5.26. Гардероб для верхней одежды персонала и посетителей рекомендуется предусматривать в отдельном помещении при вестибюле.

5.27. В состав вестибюльной группы рекомендуется включать комнату свиданий воспитанников с посетителями.

5.28. В состав вестибюльной группы следует включать пост дежурного администратора с помещением для отдыха.

5.29. Входы в вестибюль и служебные входы в здание следует оборудовать тамбурами.

Таблица 5.1.

Рекомендуемые состав и площади помещений вестибюльной группы.

№№

п.п.

Наименование помещений

Площадь помещений, м2

Примечание

На 1

место

Всего

1

2

3

4

5

1.

Вестибюль

0,2

Не менее

30

С учетом 100% численности персонала и посетителей (25% от числа воспитанников)

2.

Гардероб для верхней одежды персонала и посетителей

0,15

-

 

3.

Комната свиданий воспитанников с посетителями

-

12

 

4.

Помещение для отдыха дежурного администратора

-

10

В ночное время используется для вахтера

5.

Санитарный узел с умывальником

-

2

 

6.

Комната хранения уборочного инвентаря

-

3

 

Помещения проживания.

5.30. Состав и площади помещений проживания определяются заданием на проектирование. Рекомендуемые состав и площади приведены в таблице 5.2.

5.31. Помещения проживания следует размещать в корпусе или блоке, непосредственно примыкающем к блокам других групп помещений или соединенном с ними теплым переходом.

5.32. Интерьеры и оборудование помещений проживания должны быть максимально приближены к домашним.

5.33. Помещения проживания в ДД-1 рекомендуется проектировать в виде изолированных секций, организованных по возрастному принципу, и состоящих из двух жилых групп на 10 воспитанников каждая. Количество секций в ДД-1 определяется заданием на проектирование в зависимости от общего количества воспитанников ДД.

5.34. В состав жилой секции ДД-1 входят:

- две жилые группы;

- бытовая комната;

- кладовая хранения сезонной одежды;

- комната дежурного воспитателя;

- санитарный узел персонала;

- комната хранения уборочного инвентаря.

В состав оборудования комнаты дежурного воспитателя следует включать диван, кресло, стол, стул.

В составе помещений секции, рассчитанной на проживание детей дошкольного возраста, при обосновании допускается размещение кабинета логопеда (см. таблицу 5.6. настоящих Рекомендаций) и мастерской ручного труда для дошкольников (см. таблицу 5.4. настоящих Рекомендаций).

В секции для детей школьного возраста при обосновании допускается размещение кабинета психолога (см. таблицу 5.6. настоящих Рекомендаций).

5.35. В состав жилой группы ДД-1 для детей дошкольного возраста входят:

- раздевальная, оборудованная шкафом для сушки одежды и обуви, а также встроенными шкафами для раздельного хранения верхней одежды и обуви;

- две спальные комнаты на 5 мест (см. Приложение, Рис. П.1.), которые проектируются из расчета 3 м2 на 1 воспитанника и оборудуются кроватями и детскими стульями по числу воспитанников, а также стулом воспитателя;

- игровая - комната групповых занятий (см. Приложение, Рис. П.2.), в оборудование которой следует включать: мягкую мебель, столик для телевизора и видеомагнитофона, столы и стулья по количеству воспитанников, стеллажи для хранения пособий, игр и игрушек. При проведении групповых занятий (психотерапевтических, ситуационных игр и т.п.) столы могут быть составлены в один;

- санитарный узел, который следует оборудовать из расчета: 5 детских умывальников, 4 детских унитаза в открытых кабинах с перегородкой-экраном;

- душевая, которую следует оборудовать: 2 душевых поддона с душевой сеткой на гибком шланге, 1 полотенцесушитель, 2 ногомойки, скамья для раздевания, вешалка для одежды;

- гардеробная для хранения одежды воспитанников, оборудованная секционными шкафами с количеством секций по числу детей в группе.

При обосновании допускается организация питания дошкольников в жилых группах на площади игровой - комнаты групповых занятий. В этом случае в состав помещений группы следует включать буфетную с моечной посуды, оборудованную шкафом для хранения столовой посуды, 2-гнездовой мойкой, столом, шкафом для сушки посуды.

5.36. В состав жилой группы ДД-1 для детей школьного возраста входят:

- раздевальная, оборудованная шкафом для сушки одежды и обуви, а также встроенными шкафами для раздельного хранения верхней одежды и обуви;

- две спальные комнаты на 2 места (см. Приложение, Рис. П.4.);

- две спальные комнаты на 3 места (см. Приложение, Рис. П.3.);

- комната приготовления уроков, в состав оборудования которой следует включать ученические столы со стульями по количеству воспитанников, стол воспитателя со стулом;

- комната тихого отдыха (см. Приложение, Рис. П.5.), в состав оборудования которой следует включать мягкую мебель, журнальный столик, столик для телевизора и видеомагнитофона;

- санитарный узел;

- душевая;

- гардеробная для хранения одежды воспитанников, оборудованная секционными шкафами с количеством секций по числу детей в группе.

Спальные комнаты следует проектировать из расчета 6 м2 на I воспитанника. В оборудование спальных комнат следует включать: кровати, тумбочки, стулья по количеству проживающих в комнате. В жилой группе для девочек в спальных комнатах следует предусмотреть зеркало.

В ДД-4 в составе жилой группы для школьников комнаты приготовления уроков не предусматриваются, т.к. в этом случае приготовление уроков осуществляется в общеобразовательной группе помещений.

В состав оборудования санитарного узла следует включать: 4 унитаза в закрывающихся кабинах, 4 умывальника. В санитарном узле для мальчиков следует предусмотреть 2 писсуара. При санитарном узле для девочек следует предусматривать комнату личной гигиены, оборудованную биде, умывальником, унитазом.

В состав оборудования душевой следует включать: 2 душевых поддона с душевыми сетками на гибком шланге в закрывающихся кабинках, 1 полотенцесушитель, 2 ногомойки, скамья для раздевания, вешалка для одежды.

5.37. Помещения проживания в ДД-2 рекомендуется проектировать в виде изолированных жилых групп на 7 воспитанников каждая.

5.38. В состав жилой группы ДД-2 входят:

- раздевальная, оборудованная шкафом для сушки одежды и обуви, а также шкафом для раздельного хранения верхней одежды и обуви;

- спальная на 2 или 3 места для детей дошкольного возраста (см. Приложение, Рис. П.6. и П.8.), в состав оборудования которой следует включать кровати и стулья по числу проживающих. Площадь комнаты определяется из расчета 3 м2 на 1 воспитанника;

- 2 спальные комнаты на 2 или 3 места для детей школьного возраста (см. Приложение, Рис. П.7. и П.9.). Спальные комнаты для мальчиков и для девочек следует предусматривать отдельными из расчета 6 м2 на 1 воспитанника. В состав оборудования следует включать: кро­вати, тумбочки, стулья по количеству проживающих, секционный шкаф для хранения личных вещей и одежды детей с количеством секций по числу проживающих в комнате. В спальной комнате для девочек следует предусматривать комод с зеркалом;

- гостиная-столовая (см. Приложение, Рис. П. 10.), в состав оборудования которой следует включать обеденный стол, стулья, три ученических стола для индивидуальных занятий, диван, стеллаж. Данная комната может служить также для приготовления уроков, проведения занятий по групповой психотерапии и т.п.;

- комната тихого отдыха (см. Приложение, Рис. П.11.), в состав оборудования которой следует включать: мягкую мебель, журнальный столик, ковер, столик для телевизора и видеомагнитофона, стеллаж для хранения настольных игр и игрушек;

- 2 санитарных блока при жилых комнатах для мальчиков и для девочек. Каждый санитарный блок должен состоять из изолированного санитарного узла (оборудование: унитаз, умывальник; в санитарном узле для девочек - биде) и душевой (оборудование: 1 душевая сетка, полотенцесушитель; скамья для раздевания, вешалка для одежды);

- комната воспитателя, которую следует располагать рядом со спальной комнатой для дошкольников. В состав оборудования комнаты следует включать диван, стол, кресло, стул;

- буфетная с моечной посуды, в состав оборудования которой следует включать шкаф для хранения столовой посуды, 2-гнездовую мойку, стол, шкаф для сушки посуды;

- кладовая для хранения вещей воспитанников;

- бытовая комната;

- комната хранения уборочного инвентаря.

В жилых группах в ДД-4 рекомендуется объединять гостиную-столовую с комнатой тихого отдыха, т.к. приготовление уроков в этом случае осуществляется в общеобразовательной группе помещений.

Таблица 5.2.

Рекомендуемые состав и площади помещений проживания.

№№

п.п.

Наименование помещений

Площадь помещений, м2

Примечания

1

2

3

4

1. Жилая группа ДД-1

1.1. Для дошкольников

1.

Раздевальная

16

 

2.

Спальная на 5 мест (2 шт.)

15×2=30

Приложение, Рис.П.1.

3.

Игровая - комната групповых занятий

42

Приложение, Рис.П.2.

4.

Буфетная

6

 

5.

Санитарный узел

10

 

6.

Душевая

8

 

7.

Гардеробная для хранения одежды воспитанников

8

 

1.2. Для школьников

1.

Раздевальная

16

-

2.

Спальная на 3 места (2 шт.)

18×2=36

Приложение, Рис. П.3.

3.

Спальная на 2 места (2 шт.)

12×2=24

Приложение, Рис. П.4.

4.

Комната приготовления уроков

24

 

5.

Комната тихого отдыха

26

Приложение, Рис.П.5.

6.

Санитарный узел

10

 

7.

Душевая

8

 

8.

Гардеробная для хранения одежды воспитанников

8

 

2. Общие помещения жилой секции ДД-1

1.

Комната дежурного воспитателя

10

 

2.

Санузел персонала

3

В состав санузла входят: унитаз, умывальник, душ

3.

Кладовая хранения сезонной одежды

6

 

4.

Бытовая комната

6

 

5.

Комната хранения уборочного инвентаря

3

 

3. Жилая группа ДД-2

1.

Раздевальная

16

 

2.

Спальная на 2 места

 

 

2.а

- для дошкольников

6

Приложение, Рис.П.6.

2.б

- для школьников

12

Приложение, Рис.П.7.

3.

Спальная на 3 места

 

 

3а.

- для дошкольников

9

Приложение, Рис.П.8.

3б.

- для школьников

18

Приложение, Рис.П.9.

4.

Гостиная-столовая

24

Приложение, Рис.П.10.

5.

Комната тихого отдыха

24

Приложение, Рис.П.11.

6.

Санитарный блок для мальчиков

4

 

7.

Санитарный блок для девочек

4

 

8.

Комната воспитателя

6

 

9.

Буфетная с моечной посуды

9

 

10.

Кладовая для хранения вещей воспитанников

6

 

11.

Бытовая комната

6

 

12.

Комната хранения уборочного инвентаря

3

 

Помещения общего образования.

5.39. Состав и площади помещений общего образования определяются заданием на проектирование. Рекомендуемые состав и площади приведены в таблице 5.3. Данную группу помещений следует предусматривать в ДД-4.

5.40. Данная группа помещений обеспечивает проведение мероприятий, направленных на:

- обучение по образовательным программам в соответствии с возрастными и индивидуальными особенностями детей и подростков, на уровне, предусмотренном законом «Об образовании»;

- психолого-педагогическую помощь в усвоении образовательных программ.

5.41. Наполняемость учебных помещений принимается 10 чел.

5.42. В составе группы помещений общего образования предусмотрены универсальные классные помещения (см. Приложение, Рис. П. 12.) и специализированные кабинеты: физики-химии, иностранного языка, биологии, компьютерный класс (см. Приложение, Рис. П. 13.). Учебные помещения должны отвечать требованиям активного ведения учебного урока с организацией как фронтальных, так групповых и индивидуальных форм обучения с широким привлечением технических средств. Количество универсальных классных помещений определяется в каждом конкретном случае заданием на проектирование в зависимости от общей вместимости учреждения и возрастного состава воспитанников.

5.43. Учебные помещения должны быть оборудованы умывальниками.

5.44. Проектирование санитарных узлов при учебных помещениях осуществляется в соответствии с положениями МГСН 4.06-03.

Таблица 5.3.

Рекомендуемые состав и площади помещений общего образования.

№№

п.п.

Наименование помещений

Площадь помещений,

м2

Примечания

1

2

3

4

1,

Класс

35

Приложение, Рис. П. 12.

2.

Кабинет занятий физикой и химией с двумя лаборантскими

50+9x2

 

3.

Кабинет биологии с лаборантской

50+14

 

4.

Кабинет иностранного языка

40

 

5.

Компьютерный класс

32

Приложение, Рис. П. 13.

6.

Рекреация

 

Поэтажно, 2 м2 на 1 учащегося

7.

Методический кабинет

24

 

8.

Кабинет заведующего учебной частью

14

 

9.

Учительская

36

 

10.

Кладовая для хранения учебных пособий

8

 

11.

Санитарный узел для учащихся с умывальниками в шлюзе

10

3 унитаза, 3 умывальника

12.

Санитарный узел персонала с умывальником

2

 

13.

Комната хранения уборочного инвентаря

3

 

Помещения социальной и бытовой адаптации.

5.45. Состав и площади помещений социальной и бытовой адаптации определяются заданием на проектирование. Рекомендуемые состав и площади приведены в таблице 5.4.

5.46. Данные помещения предназначены для проведения мероприятий, направленных на:

- получение бытовых навыков, дающих возможность самообслуживания в последующем;

- социально-средовую адаптацию воспитанников;

- социально-бытовую адаптацию воспитанников.

Для воспитанников ДД-4 данная группа помещений предоставляет дополнительно возможность получения начального профессионального образования.

5.47. Кабинеты, составляющие помещения социальной и бытовой адаптации, как правило, рассчитываются на проведение занятий в группе из 10 чел.

5.48. Основное назначение зала ситуационных игр (см. Приложение, Рис. П.14.) - социально-средовая адаптация воспитанников. В состав его оборудования следует включать стол, за которым проводятся занятия всех присутствующих, закрывающиеся шкафы с пособиями, стол специалиста.

5.49. Кабинет социально-бытовой адаптации (кулинарного творчества)- см. Приложение, Рис. П. 15. - предназначен для развития у воспитанников бытовых навыков самообслуживания. Он представляет собой помещение, включающее зону приготовления пищи (кухня) и зону приема пищи (столовая). В оборудование кухни рекомендуется включать разделочный стол, плиту, холодильник, шкаф сухих продуктов, шкаф кухонной посуды, мойку. В оборудование столовой входят: обеденные столы со стульями, сервант.

В ДД-2 не предусматривается данный кабинет, т.к. развитие бытовых навыков осуществляется непосредственно в условиях жилых групп (самостоятельное мытье столовой посуды, накрывание на стол и т.п.). Для социально-бытовой адаптации используются также быто­вые комнаты жилых групп.

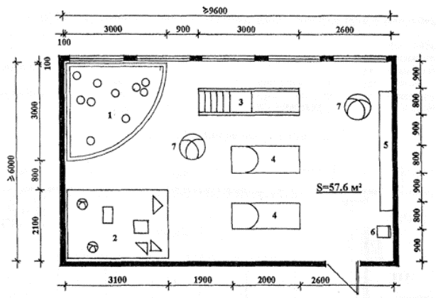
5.50. В состав помещений следует включать кабинет развивающих игр «лего». В состав оборудования данного кабинета следует включать столы на 1 воспитанника, которые в случае проведения групповых занятий могут быть составлены в один, стеллажи с пособиями, стол специалиста.

5.51. В состав помещений рекомендуется включать кабинет развивающих игр «компьютер» (см. Приложение, Рис. П. 13.), который оборудуется столами на 1 воспитанника с компьютерами, стеллажами, столом преподавателя с компьютером. В ДД-4 данный кабинет не предусматривается, т.к. его функции выполняет компьютерный кабинет в группе помещений общего образования.

5.52. Кабинет ручного труда для дошкольников (см. Приложение, Рис. П. 16.), представляет собой помещение, включающее зону изготовления поделок и зону кукольного театра. В состав оборудования зоны изготовления поделок следует включать круглый стол для всех занимающихся со стульями, стеллажи для хранения материалов, поделок и т.п., умывальник. Зону кукольного театра следует оборудовать ширмой. Основное назначение данного кабинета - развитие у детей моторики на основе уроков ручного труда с формированием обобщенных приемов умственной работы.

5.53. Кабинет творческого труда для детей школьного возраста (см. Приложение, Рис. П. 17.), предназначен для развития бытовых навыков самообслуживания: шитья, починки одежды, глажения и т.п. В состав оборудования кабинета следует включать стол (не менее 3 м длиной), стулья по количеству занимающихся, шкафы для хранения материалов, поделок и т.п., гладильную доску, кронштейны для вывешивания выполняемой продукции, примерочную с зеркалом, стол мастера со стулом, классную доску, умывальник, мусоросборник.

5.54. Многопрофильная мастерская ручного труда технической направленности для детей школьного возраста (см. Приложение, Рис. П. 18), предназначена для развития бытовых навыков самообслуживания. В состав оборудования данного помещения следует включать верстак с тисками, слесарный станок с тисками, рабочие столы, стол для клея и смазочных материалов, металлические шкафы для инструментов и рабочей одежды, стол мастера со стулом, классную доску, умывальник, мусоросборник. Смежно с мастерской следует размещать кладовую, оборудованную стеллажами для хранения материалов и продукции.

5.55. Кабинет творческого труда для детей школьного возраста и многопрофильная мастерская ручного труда для детей школьного возраста в ДД-4 выполняют функции мастерских начальной профессиональной подготовки.

Таблица 5.4.

Рекомендуемые состав и площади помещений социальной и бытовой адаптации.

П.П.

Наименование помещений

Площадь помещений, м2

Примечания

1

2

3

4

1.

Зал ситуационных игр 

35

Приложение, Рис. П.14.

2.

Кабинет социально-бытовой адаптации (кулинарного творчества)

32

Приложение, Рис. П. 15.

3.

Кабинет «лего»

22

 

4.

Кабинет «компьютер» 

32

Приложение, Рис.П.13.

5.

Кабинет ручного труда для дошкольников

30

Приложение, Рис. П. 16.

6.

Кабинет творческого труда для детей школьного возраста

36

Приложение, Рис. П. 17.

7.

Многопрофильная мастерская ручного труда для детей школьного возраста

54+12

Приложение, Рис. П. 18.

Досуговые и Физкультурно-оздоровительные помещения.

5.56. Состав и площади досуговых и физкультурно-оздоровительных помещений определяются заданием на проектирование. Рекомендуемые состав и площади приведены в таблице 5.5.

5.57. Эта группа помещений обеспечивает проведение мероприятий, направленных на:

- культурное и эстетическое развитие;

- проведение массовых мероприятий;

- развитие врожденных склонностей воспитанников, формирование их культурных интересов;

- физическое развитие.

5.58. В состав досуговых помещений рекомендуется включать актовый зал, рассчитанный на 120% от вместимости учреждения (в расчете на персонал и гостей). Места в зале рекомендуется предусматривать съемными, секционными со складированием по периметру зала. Освобождаемая в этом случае площадь зала может быть использована для проведения игр, танцев, музыкальных занятий для дошкольников и т.п.

5.59. В состав данной группы помещений следует включать универсальные кружковые помещения для формирования культурных интересов воспитанников. Состав, профиль и количество кружковых помещений в каждом конкретном случае определяется заданием на проектирование в зависимости от состава и интересов воспитанников. При организации кружковых помещений следует предусмотреть возможность их перепрофилирования с учетом требований изменяющегося контингента воспитанников.

В номенклатуру кружков рекомендуется включать кружки эстетического воспитания: театральный, танцевальный, музыкальный и хорового искусства, которые следует организовывать на базе актового зала.

Также рекомендуется предусматривать кружок автодела (теория). Практические занятия по автоделу, как правило, предусматриваются в гараже и мастерских.

5.60. Оптимальное количество кружковых помещений в ДД-3 -не более 2; в ДД-4 - не менее 5, т.к. в данном случае кружковые помещения несут на себе функции дополнительного образования.

5.61. Кружковые помещения, как правило, рассчитываются на проведение занятий в группе из 10 чел.

5.62. Учитывая вероятность наличия в контингенте воспитанников детей с девиантным поведением, планировка кружковых помещений для занятий, проведение которых связано с использованием цен­ного оборудования, должна обеспечивать выделение двух зон доступности:

- зону занятий с руководителем;

- зону ограниченной доступности (хранения ценного оборудования, сырья, изделий).

5.63. Расчетная одновременная загрузка спортзала - 10 чел. При зале предусматриваются 2 раздевальные, на 5 чел. каждая.

При спортивном зале предусматривается снарядная, смежная с ним.

5.64. Тренажерный зал рассчитан на проведение занятий в группе из 10 чел. При зале проектируется 2 раздевальные, на 5 чел. каждая.

5.65. Для организации досуга детей дошкольного и младшего школьного возраста при обосновании по заданию на проектирование допускается предусматривать игровой зал (см. Приложение, Рис. П.19.), в состав оборудования которого входят: сухой бассейн, ковер с мячами и геометрическими фигурами, горка для скатывания, туннели разной высоты, скамья, большие мячи диаметром не менее 90 см.

5.66. По заданию на проектирование в состав физкультурно-оздоровительных помещений допускается включать бассейн, проектирование которого следует осуществлять в соответствии с положениями справочного пособия «Проектирование бассейнов» к СНиП 2.08.02-89* и СанПиН 2.1.2.1188-03. Рекомендуемый размер ванны бассейна для обучения плаванию и оздоровления 6×10 м, глубина допускается 0,6 м - в мелкой части и 1,25 м - в глубокой. Одновременная загрузка бассейна - 10 чел.

5.67. Между душевой и бассейном предусматривается ножная ванна, глубиной 15 см. Размер ножной ванны 1,8 м по направлению движения от душевой к чаше бассейна и на ширину прохода.

5.68. При бассейне следует проектировать 2 раздевальные на 5 чел. каждая. Площадь раздевальной следует рассчитывать, исходя из нормы 0,72 м2 на 1 дошкольника и 1,2 м2 на 1 воспитанника школьного возраста. В раздевальной для девочек следует предусматривать установку для сушки волос.

5.69. В ДД рекомендуется дополнительно предусматривать помещения для хранения санок, лыж и велосипедов, площади которых определяются заданием на проектирование.

Таблица 5.5.

Рекомендуемые состав и площади досуговых и физкультурно-оздоровительных помещений

№№

п.п.

Наименование помещений

Площадь помещений, м2

Примечания

На 1 место

всего

1

2

3

4

5

Досуговые помещения

1.

Актовый зал

1,0

-

Кол-во мест - 120% от вместимости ДД

2.

Эстрада при зале

-

36

Глубина эстрады не менее 4 м

3.

Кинопроекционная с перемоточной и радиоузлом

 

10

 

4.

Помещение для артистов

-

10

 

5.

Фильмовидеотека

-

8

 

6.

Кладовая аппаратуры и музыкальных инструментов

-

14

 

7.

Санитарные узлы для мальчиков и для девочек с умывальниками в шлюзе

-

16×2

 

8.

Библиотека:

-

 

Размещаются смежно

8.а.

- книгохранилище на 10000 единиц хранения

-

35

8.б.

- комната выдачи книг

-

10

9.

Кружковая комната с подсобным помещением

-

35+6

 

10.

Изостудия с кладовой

-

38+12

 

11.

Комната хранения уборочного инвентаря

-

3

 

Физкультурно-оздоровительные помещения

1.

Спортивный зал

-

162

(9×18)

 

2.

Раздевальные для воспитанников с душевыми и санитарными узлами

-

16×2

По 2 душевые, 1 унитазу и умывальнику на раздевальную

3.

Снарядная

-

16

Смежно со спортивным залом

4.

Тренажерный зал - раздевальные

-

50

-

9×2

5.

Зал для занятий настольным теннисом

-

24

 

6.

Комната инструкторов-методистов с санузлом в шлюзе

-

10+3

С состав санузла входят: унитаз, умывальник, душ

7.

Игровой зал для дошкольников и младших школьников

-

58

Приложение, Рис. П.19.

8.

Комната хранения уборочного инвентаря

-

3

 

9.

Бассейн с ванной 6×10 м

-

114

 

10.

Инвентарная при бассейне

-

10

 

11.

Раздевальные на 5 чел. при бассейне

-

6×2

 

12.

Душевые при раздевальных включая ножную ванну

-

6×2

2 душевые сетки

13.

Уборные при раздевальных с умывальником

-

2×2

 

14.

Комната инструктора с санузлом

-

10+3

В состав оборудования санузла входят: унитаз, умывальник, душ

15.

Комната медсестры

-

10

Должны располагаться смежно и иметь выход на обходную дорожку

16.

Лаборатория анализа воды

-

8

17.

Узел управления

-

6

18.

Помещение хранения химических реактивов

-

4

 

19.

Реагентная

-

4

 

20.

Помещение хранения уборочного инвентаря

-

3

 

Медицинские помещения.

5.70. Состав и площади медицинских помещений определяются заданием на проектирование. Рекомендуемые состав и площади приведены в таблице 5.6.

5.71. Данные помещения предназначены для проведения мероприятий, направленных на лечение, оздоровление и профилактику физических и психических заболеваний у воспитанников.

5.72. Медицинские помещения следует проектировать с учетом положений МГСН 4.12-97 и Пособия по проектированию учреждений здравоохранения к СНиП 2.08.02-89*. Все кабинеты, входящие в данную группу (кроме указанных особо), рассчитаны на индивидуальную работу с воспитанниками.

5.73- Группу медицинских помещений следует располагать в непосредственной близости от помещений медицинского изолятора. При обосновании допускается размещение кабинетов логопеда и психолога в группе помещений проживания.

5.74. В ДД для проведения занятий групповой психотерапии рекомендуется использовать комнаты тихого отдыха в группе помещений проживания.

5.75. Кабинет групповых занятий ЛФК (см. Приложение, Рис. П.20.) рассчитан на проведение занятий в группе из 10 чел. Данное помещение рекомендуется использовать также для проведения гимнастических занятий для дошкольников.

Таблица 5.6.

Рекомендуемые состав и площади медицинских помещений.

№№

п.п.

Наименование помещений

Площадь помещений, м2

Примечания

1

2

3

4

1.

Кабинет врача - педиатра

12

 

2.

Кабинет логопеда

12

 

3.

Кабинет стоматолога

16

 

4.

Фитокабинет с кладовой

12+6

 

5

Кабинет психолога

12

 

6.

Кабинет физиотерапии

20

 

7.

Кабинет групповых занятий ЛФК с кладовой и раздевалкой

66+6+9

Приложение, Рис. П.20.

8.

Кабинет массажа на 1 место

8

 

Помещения медицинского изолятора.

5.76. Состав и площади помещений медицинского изолятора определяются заданием на проектирование. Рекомендуемые состав и площади приведены в таблице 5.7.

5.77. Вместимость изолятора следует предусматривать из расчета 5-10% от числа воспитанников.

5.78. Помещения изолятора следует размещать на первом этаже здания при организации самостоятельного выхода на участок.

5.79. Помещения изолятора соединяются с остальными помещениями ДД через тамбур-шлюз, в котором следует размещать умывальник и вешалку для смены халатов.

5.80. В состав помещений изолятора следует включать изоляционные палаты на 1 и 3 чел.

5.81. Между изоляционными палатами и коридором следует предусматривать глухие (не открывающиеся) окна для наблюдения за детьми.

5.82. Для организации питания детей, находящихся в изоляторе, в состав его помещений следует включать буфетную с моечной посуды. Моечную следует оборудовать тремя моечными ванными и баком для дезинфекции посуды.

5.83.В состав помещений изолятора следует включать санузел и туалетную. Рекомендуемое оборудование санитарного узла: унитаз, умывальник; туалетной: унитаз, умывальник, ванна. Вход в санузел и туалетную следует проектировать из коридора изолятора.

Таблица 5.7.

Рекомендуемый состав и площади помещений медицинского изолятора.

№№

п.п.

Наименование помещений

Площадь помещений, м2

Примечания

1

2

3

4

1.

Изоляционная палата на 1 место

6

 

2.

Изоляционная палата на 3 места

18

 

3.

Санитарный узел для воспитанников

4

 

4.

Туалетная для воспитанников

5

 

5.

Процедурная

8

 

6.

Кабинет дежурной медицинской сестры

10

 

7.

Раздевальная с санузлом для персонала

4+3

Состав оборудования санузла: душ, унитаз, умывальник

8.

Буфетная с моечной посуды

3+5

 

9.

Кладовая со шкафами для чистого и грязного белья

4

 

10.

Комната хранения уборочного инвентаря

3

 

Помещения питания.

5.84. Питание для воспитанников ДД организуется в одну смену; в ДД-1 - в общей столовой, в ДД-2 - в гостиных жилых групп.

5.85. Площадь обеденного зала в ДД-1 принимается из расчета 1,5 м2 на I посадочное место для школьников и 1,0 м2 на 1 посадочное место для дошкольников (в соответствии с положениями СП 2.4.990-00). При зале предусматривается умывальная из расчета 3 м2 (1 умывальник) на каждые 18-20 мест.

В случае организации питания дошкольников в жилых группах вместимость обеденного зала рассчитывается на количество школьников.

5.86. Производственные помещения кухни следует рассчитывать на работу на сырье. Кроме питания детей, помещения кухни должны обеспечивать питание персонала.

5.87. В кухне следует предусматривать раздаточную с удобным доступом к внутренним коммуникационным связям: коридору для доставки пищи в изолятор, лифту для подъема пищи в жилые группы ДД-2. Допускается размещать лифт смежно с раздаточной.

5.88. В производственные помещения кухни должен предусматриваться отдельный вход.

5.89. Для питания персонала предусматривается обеденный зал самообслуживания (или буфет) из расчета 1,0 м2 на 1 посадочное место. Его допускается располагать в составе помещений кухни или в группе административных помещений. Количество мест определяется заданием на проектирование, исходя из количества питающихся в учреждении, продолжительности обеденного времени и количества смен. При зале предусматривается подсобное помещение, площадью 8 м2, предназначенное для раздачи пищи, хранения и мойки посуды.

5.90. Учитывая специфику контингента воспитанников ДД (большое количество детей с хроническими заболеваниями в запущенной форме) в состав производственных помещений кухни следует включать кабинет диетсестры.

5.91. Состав и площади производственных помещений кухни определяются заданием на проектирование. Рекомендуемые состав и площади приведены в таблице 5.8.

Таблица 5.8.

Рекомендуемые состав и площади производственных помещений кухни

№№

п.п.

Наименование помещений

Площадь помещений, м2

Примечания

1

2

3

4

1.

70

 

2.

3.

24

 

4.

5.

Хлеборезка, хранение хлеба

8

 

6.

Цех мучных изделий

14

 

7.

Раздаточная

18

 

8.

Сервизная

8

 

9.

Моечная кухонной посуды

10

 

10.

Моечная столовой посуды

18

 

11.

Моечная котлов

10

 

12.

Охлаждаемая камера для хранения:

 

 

12.а.

- молочных продуктов

8

 

12.б.

- рыбы, мяса

8

 

12.в.

- яиц

6

 

13.

Кладовая сухих продуктов

6

 

14.

Кладовая овощей

12

 

15.

Кладовая суточного запаса

8

 

16.

Помещение первичной обработки овощей

12

 

17.

Загрузочная, кладовая тары

14

 

18.

Камера утилизации отходов с техническим сливом

4

 

19.

Комната заведующего производством

8

 

20.

Кабинет диетсестры

8

 

21.

Бельевая, гардеробная персонала, душевая, уборная

18

 

22.

Комната хранения уборочного инвентаря

4

 

Административно-хозяйственные помещения.

5.92. Состав и площади административно-хозяйственных помещений определяются заданием на проектирование. Рекомендуемые состав и площади приведены в таблице 5.9.

5.93. Кладовую чистого белья, кладовую грязного белья, комнату глажения и починки белья и одежды рекомендуется располагать рядом с постирочной.

5.94. Постирочная, дезкамера, кладовые, инвентарные, ремонтные мастерские могут располагаться в подвальном помещении.

5.95. Помещения постирочной, дезкамеры, кладовой сезонной одежды и обуви следует оборудовать принудительной вентиляцией.

5.96. В состав административно-хозяйственных помещений допускается включать помещение парикмахерской на 1 рабочее место.

Таблица 5.9.

Рекомендуемые состав и площади помещений административно-хозяйственного обслуживания.

№№

П.П.

Наименование помещений.

Площадь помещений, м2

Примечания.

1

2

3

4

1.

Кабинет директора

36

 

2.

Приемная

18

Смежно с кабинетом директора

3.

Канцелярия

12

 

4

Кабинет заместителя директора по хозяйственной части

10

 

5.

Помещение дежурного персонала технического обслуживания

14

 

6.

Бухгалтерия с кассой

18+4

 

7.

Комната сестры-хозяйки

12

 

8.

Комната психологической разгрузки персонала

18

 

9.

Комната отдыха персонала

36

 

10.

Компьютерный центр с архивом

24+10

 

11.

Помещение пожарного поста

12

 

12.

Кладовая чистого белья с починочной

20

 

13.

Кладовая грязного белья

16

 

14.

Постирочная с помещением для разборки белья и кладовой

10+22+8

 

15.

Дезкамера

6

 

16.

Парикмахерская

8

 

17.

Ремонтная мастерская с подсобным помещением (ремонт обуви)

10+3

 

18.

Ремонтная мастерская с подсобным помещением (ремонт мебели)

22+10

 

19.

Кладовые, инвентарные

80

 

20.

Санитарные узлы для мужчин и женщин с умывальниками

2×2

 

21.

Кабины личной гигиены для женщин

2

Разместить при санитарном узле

22.

Комната хранения уборочного инвентаря

3

 

23.

Гараж на 3 машины, мастерская

90

 

24.

Комната водителей

10

 

25.

Санузел с умывальником

2

 

 

ПРИЛОЖЕНИЕ

Планировочные схемы основных помещений ДД

Вариант 1

 

Вариант 2

Экспликация оборудования
1. Кровать. 2. Стул детский. 3. Стул воспитателя

Рис. П. 1. Варианты расстановки оборудования в спальных комнатах на 5 мест для детей дошкольного возраста в ДД - 1

Экспликация оборудования
1. Телевизор с видеомагнитофоном. 2. Кресло. 3. Диван. 4. Стол детский. 5. Стул детский. 6.Стеллаж

Рис. П. 2. Игровая - комната групповых занятий для дошкольников в ДД -1

Вариант 1

Вариант 2

 

Экспликация оборудования

1. Кровать. 2.Тумбочка. 3. Стул. 4.Зеркало (в спальных для девочек)

Рис. П. 3. Варианты расстановки оборудования в спальных комнатах на 3 места для детей школьного возраста в ДД-1.

Вариант 1

Вариант 2

Экспликация оборудования
1. Кровать. 2. Тумбочка. 3. Стул. 4. Зеркало (в спальных для девочек)

Рис. П. 4. Варианты расстановки оборудования в спальных комнатах на 2 места для детей школьного возраста в ДД-1.

Экспликация оборудования
1. Телевизор с видеомагнитофоном. 2. Мягкая мебель. 3. Журнальный столик. 4. Шкаф для настольных игр.

Рис П. 5. Комната тихого отдыха для детей школьного возраста вДД-1.

Вариант 1

Вариант 2

Экспликация оборудования
1. Кровать детская. 2. Стул детский

Рис. П. 6. Варианты расстановки оборудования в спальных комнатах на 2 места для детей дошкольного возраста в ДД 2.

Вариант 1

Вариант 2

Экспликация оборудования
1. Кровать. 2. Тумбочка. 3. Стул. 4. Комод о зеркалом (в спальнях для девочек) 5. Секционный платяной шкаф

Рис. П. 7. Варианты расстановки оборудования в спальных комнатах на 2 места для детей школьного возраста в ДД-2.

Вариант 1

Вариант 2

Экспликация оборудования
1. Кровать детская. 2. Стул детский

Рис. П. 8. Варианты расстановки оборудования в спальных комнатах на 3 места для детей дошкольного возраста в ДД-2.

Вариант 1

Вариант 2

Экспликация оборудования
1. Кровать. 2. Тумбочка. 3. Стул. 4. Комод с зеркалом (в спальнях для девочек). 5. Секционный платяной шкаф

Рис. П. 9. Варианты расстановки оборудования в спальных комнатах на 3 места для детей школьного возраста в ДД-2.

Экспликация оборудования
1. Обеденный стол. 2. Стул. 3. Стол для индивидуальных занятий. 4. Стеллаж. 5. Кресло. 6. Диван

Рис. П. 10. Гостиная - столовая в ДД - 2.

Экспликация оборудования
1. Мягкая мебель. 2. Журнальный столик. 3. Ковер. 4. Стеллаж. 5. Телевизор с видеомагнитофоном

Рис. П. 11. Комната тихого отдыха в ДД-2.

Экспликация оборудования
1. Ученический стол. 2. Стул. 3. Стол преподавателя. 4. Стул преподавателя. 5. Шкаф - стеллаж. 6. Классная доска. 7. Умывальник с вешалкой для полотенца (только для 1-4 классов)

Рис. П. 12. Класс на 10 человек

Экспликация оборудования
1. Стол ученический с компьютером. 2. Стул. 3. Стол педагога с компьютером и сервером. 4. Стеллаж

Рис. П. 13. Кабинет - «компьютер», компьютерный класс.

Экспликация оборудования
1. Рабочий стол. 2. Стул. 3. Стол специалиста. 4. Стол специалиста с компьютером. 5. Классная доска. 6. Шкаф- стеллаж

Рис. П. 14. Зал ситуационных игр.

Экспликация оборудования

1. Стол - шкаф кухонной посуды. 2. Стол - шкаф хранения сухих продуктов. 3. Плита. 4. Мойка. 5. Холодильник. 6. Сервировочная стойка с разделочным столом. 7. Обеденный стол. 8. Стул. 9. Сервант

Рис. П. 15. Кабинет социально-бытовой адаптации (кулинарного творчества).

Экспликация оборудования
1. Круглый рабочий стол. 2. Стульчик. 3. Шкаф – стеллаж. 4. Умывальник с вешалкой для полотенца. 5. Шкаф для хранения кукол. 6. Ширма. 7. Скамейка

Рис. П. 16. Кабинет ручного труда для дошкольников.

Экспликация оборудования
1. Рабочий стол. 2. Табурет. 3. Стол педагога. 4. Стул педагога. 5. Контейнер - вешалка готовой продукции. 6. Классная доска. 7. Мусоросборник. 8. Умывальник с вешалкой для полотенца. 9. Шкаф – стеллаж. 10. Примерочная. 11. Зеркало. 12. Гладильная доска. 13. Манекен. 14. Стол со швейной машиной

Рис. П. 17. Кабинет творческого труда для детей школьного возраста.

Экспликация оборудования
I - Мастерская: 1. Слесарный станок. 2. Верстак. 3. Стол для клея и смазочных материалов. 4. Стол педагога. 5. Стул педагога. 6. Рабочий стол. 7. Табурет. 8. Классная доска. 9. Металлические шкафы для хранения инструментов и рабочей одежды. 10.Умывальники с вешалкой для полотенца. 11. Мусоросборник. II -Кладовая: 12. Стеллажи.

Рис. П. 18. Многофункциональная мастерская ручного труда для детей школьного возраста.

Экспликация оборудования
1. Сухой бассейн. 2. Ковер с мячами и геометрическими фигурами. 3. Горка. 4. Туннель (разной высоты). 5. Скамья. 6. Стул. 7. Большой мяч

Рис. П. 19. Игровой зал для детей дошкольного и младшего школьного возраста.

Экспликация оборудования
I – Зал: 1. Стол методиста. 2. Стул. 3. Шведская стенка. 4. Маты для занятий. 5. Скамья. 6. Зеркало. II – Кладовая: 7. Шкаф – стеллаж . 8. Ящик для мячей. III – Раздевалка: 9. Шкаф методиста. 10. Скамья. 11. Крючки для одежды. 12. Умывальник с вешалкой для полотенца

Рис. П. 20. Кабинет групповых занятий ЛФК с раздевалкой и кладовой.

 

 




ГОСТЫ, СТРОИТЕЛЬНЫЕ и ТЕХНИЧЕСКИЕ НОРМАТИВЫ.
Некоммерческая онлайн система, содержащая все Российские Госты, национальные Стандарты и нормативы.
В Системе содержится более 150000 файлов нормативно-технической документации, действующей на территории РФ.
Система предназначена для широкого круга инженерно-технических специалистов.

Рейтинг@Mail.ru Яндекс цитирования

Copyright © www.gostrf.com, 2008 - 2026