Крупнейшая бесплатная информационно-справочная система онлайн доступа к полному собранию технических нормативно-правовых актов РФ. Огромная база технических нормативов (более 150 тысяч документов) и полное собрание национальных стандартов, аутентичное официальной базе Госстандарта. GOSTRF.com - это более 1 Терабайта бесплатной технической информации для всех пользователей интернета. Все электронные копии представленных здесь документов могут распространяться без каких-либо ограничений. Поощряется распространение информации с этого сайта на любых других ресурсах. Каждый человек имеет право на неограниченный доступ к этим документам! Каждый человек имеет право на знание требований, изложенных в данных нормативно-правовых актах!

  


 

B.C. Истомин

ПРАКТИЧЕСКОЕ РУКОВОДСТВО
по текущему ремонту асфальтобетонных покрытий городской дорожной сети

Допущено УМО вузов РФ по образованию в области транспортных машин и транспортно-технологических комплексов для межвузовского использования

Москва

Издательство Прима-Пресс-М

2001

Рецензенты: д.т.н., проф. МАДИ (ТУ) Носов В. П., зав. лабораторией содержания дорог ГП «РосдорНИИ» Розов Ю. Н.; кафедра строительства и эксплуатации дорог МАДИ (ТУ).

В книге приведены данные о введенной в действие с 2000 г. классификации улично-дорожной сети Москвы, наиболее распространенных конструкциях дорожных одежд в разделе, посвященном дорожно-строительным и ремонтным материалам, приведены также сведения о разработанных с участием специалистов ГУП "Доринвест" экологически чистых модификациях - холодных органо-минеральных и литых эмульсионных смесях. Предложены апробированные на объектах федеральной дорожной сети Москвы методики оценки и мониторинга ее эксплуатационного состояния, а также оптимизации объемов ремонтных работ с минимальными материально-техническими затратами. Даны рекомендации по организации и технологиям, в том числе ресурсосберегающим, ремонту дорожных асфальтобетонных покрытий. Рассмотрен порядок приемки ремонтных работ и оценки их качества. Изложены основные правила по обеспечению безопасности проведения работ и охране окружающей среды.

"Практическое руководство" предназначено для инженерно-технических работки-пособия для студентов высших учебных заведений, обучающихся по специальности "Автомобильные дороги и аэродромы", и слушателей системы дополнительного профессионального образования в дорожной отрасли.

Содержание

Глава 1. Улично-дорожная сеть Москвы

1.1. Основные элементы городских улиц и дорог

1.2. Классификация улично-дорожной сети Москвы

1.3. Конструкции дорожных одежд с асфальтобетонным покрытием

2. Требования к эксплуатационному состоянию дорожных покрытий

2.1. Дефекты и причины снижения эксплуатационных свойств асфальтобетонных дорожных покрытий

2.2. Оценка эксплуатационного состояния дорожных покрытий

2.3. Назначение объемов ремонтных работ

3. Дорожно-строительные и ремонтные материалы и полуфабрикаты

3.1. Горячие асфальтобетонные смеси

3.2. Литые асфальтобетонные смеси

3.3. Холодные органо-минеральные смеси

3.4. Литые эмульсионно-минеральные смеси

3.5 Дорожные мастики

3.6. Камни бортовые

4. Организация и технология ремонтных работ

4.1. Сроки производства ремонтных работ

4.2. Подготовительные работы

4.3. Транспортирование и укладка горячих асфальтобетонных смесей

4.4 Уплотнение асфальтобетонной смеси

4.5 Ремонт с использованием литого асфальта и холодных органно-минеральных смесей.

4.6. Заделка трещин

4.7. Укладка защитных слоев

5. Приемка работ

6. Техника безопасности и охрана труда при производстве ремонтных работ. Охрана окружающей среды

Предисловие

В условиях ускоренного роста протяженности и площадей улично-дорожной сети (в основном за счет реконструкции и строительства магистралей - МКАД, 3-го транспортного кольца и многих других) существенно увеличивается объем работ по ее содержанию в требуемом эксплуатационном состоянии.

В условиях ограниченного финансирования требуемое качество содержания дорог и улиц можно поддерживать только при инструментальном обследовании и адресном назначении объемов и видов ремонтных работ. В разделе 2 настоящего "Практического руководства" обобщены результаты первого этапа совместной работы ГУП "Доринвест" с научно-производственным объединением "Регион" по совершенствованию методов оценки эксплуатационных показателей улично-дорожной сети. Это позволит получить систему мониторинга состояния улично-дорожной сети, дающую возможность организации комплекса управления эксплуатационными показателями улично-дорожной сети на основе единого информационного банка данных и современных технологий диагностики дорожных объектов.

Для обеспечения работоспособности дорожных одежд в условиях постоянно увеличивающихся интенсивности движения и транспортных нагрузок по заданиям ГУП "Доринвест" разработаны новые модификации ремонтных материалов с улучшенными технологическими и эксплуатационными свойствами. Характеристики этих материалов, а также требования введенных в последние годы, нормативных документов к дорожно-строительным, ремонтным материалам и полуфабрикатам приведены в разделе 3.

Качество дорожно-ремонтных работ в первую очередь зависит от правильности выполнения всех технологических операций. Рекомендации по технологии производства работ и контролю качества по всем операциям (операционному контролю) приведены в разделе 4. Внедрение новых технологий ремонта ведущими подрядными организациями, например, ОАО "Асдор", показало их высокую эффективность на грузонапряженных магистралях.

В "Практическом руководстве" также изложены требования при приемке выполненных работ по текущему ремонту асфальтобетонных покрытий улично-дорожных сетей.

Отдельный раздел посвящен основным вопросам обеспечения безопасности производства ремонтных работ и охраны окружающей среды.

"Практическое руководство" предназначено для инженерно-технических работников подрядных организаций, выполняющих работы по текущему ремонту, служб заказчика по данному виду работ. Может быть использовано при повышении квалификации работников дорожной отрасли, а также для закрепления теоретических знаний студентами автодорожных вузов и техникумов.

Автор приносит благодарность специалистам ГУП "Доринвест" Тришкину С.К., Семенову А.Д., Суханову С.В., "НПО "Регион"" Киншакову В.М., ОАО "Асдор" Лупанову А.П., Суханову А.С. за помощь при подготовке "Практического руководства".

Глава 1. Улично-дорожная сеть Москвы

1.1. Основные элементы городских улиц и дорог

Городские дороги и улицы в пределах своих границ, т.е. между "красными линиями", слагаются из различных элементов, к которым относятся, одна или несколько проезжих частей, предохранительные полосы (полосы безопасности), тротуары, обочины, пешеходные дорожки, велосипедные дорожки, полосы зеленых насаждений различного типа (газоны, рядовая посадка, бульвары), центральные разделительные полосы между проезжими частями встречных направлений движения, разделительные полосы между центральными проезжими частями и проезжими частями боковых и местных проездов, между тротуаром и проезжей частью, трамвайные пути и разделительные полосы, отделяющие их от проезжих частей и тротуаров, технические полосы, резервные полосы, остановочные и конечные площадки общественного транспорта, ограждения различных типов, направляющие и регулирующие движение транспорта и пешеходов островки, автостоянки, откосы насыпей и выемок, подпорные стенки, а также элементы системы водоотвода, освещения, инженерных подземных сетей, средств организации и регулирования движения и обустройства улицы и дороги.

Сочетание этих элементов на улицах и дорогах различных категорий, а также в различных конкретных местных условиях весьма разнообразно (рис. 1.1).

Центральные проезжие части (или одна проезжая часть) предназначены для пропуска основного транспортного потока. На проезжих частях боковых проездов пропускается местный и общественный транспорт и иногда грузовой транспорт; на проезжих частях местных проездов пропускается только местный транспорт, обслуживающий застройку.

Центральные разделительные полосы разделяют встречные потоки движения транспорта, а остальные разделительные полосы разделяют односторонние по направлению, но разные по назначению транспортные потоки и отделяют пешеходное движение от транспорта. Разделительные полосы, кроме центральной, служат также для размещения подземных инженерных сетей, озеленения и различного обустройства городских улиц (опоры освещения и контактного провода, указатели, знаки, светофоры и т.п.).

Направляющие островки служат для организации и регулирования движения транспорта и пешеходов. Их устраивают конструктивно поднятыми над проезжей частью или в одном уровне с проезжей частью в виде разметки.

Рис. 1.1. Элементы городской улицы в поперечном профиле: а, б, в - варианты сочетания элементов: 1 - центральная проезжая часть (две или одна); 2 - центральная разделительная полоса; 3 - разделительная полоса между центральным и боковым проездом; 4 - проезжая часть бокового проезда; 5 - разделительная полоса между боковым, проездов и тротуаром; 6 -тротуар; 7 - полоса газона у "красной линии"; 8 - застройка, или "красная линия"; 9 -разделительная полоса между центральной проезжей частью и трамвайным полотном; 10 - трамвайное полотно, 11 - техническая, полоса.

В качестве конструктивного элемента для сопряжения проезжих частей с разделительными полосами служит бордюрный (бортовой) камень. Для сопряжения проезжей части с центральной разделительной полосой, кроме бордюрного камня, может применяться наклонная краевая плита шириной 1 м. В отдельных случаях на магистральных улицах регулируемого движения это сопряжение выполняют в виде разметки, т.е. устраивают центральную разделительную полосу в одном уровне с проезжей частью.

1.2. Классификация улично-дорожной сети Москвы

В зависимости от назначения и транспортных характеристик улично-дорожная сеть Москвы подразделяется на пять категорий [6]. В табл. 1.1 дано дифференцирование улично-дорожной сети для территории города за пределами центра и в табл. 1.2 - для территории центра.

Геометрические параметры элементов сети за пределами центра устанавливают с учетом их категорий и в зависимости от интенсивности движения транспорта и пешеходов на расчетный срок (табл. 1.3).

Пропускную способность одной полосы движения проезжей части улицы устанавливают по расчету в зависимости от видов транспорта, расчетной скорости движения, продольного уклона, количества полос движения, интенсивности перемещения транспортных средств с одной полосы движения на другую в целях реализации правого или левого поворота.

Таблица 1.1

Классификация улично-дорожной сети города

Категория улиц

Основное назначение улиц

Транспортная характеристика

Магистральные улицы:

Общегородского значения

Основные транспортные и функционально-планировочные оси города. Формируют направления преимущественного развития Московской системы расселения. Обеспечивают международные, республиканские, региональные и городские связи. Имеют выходы на внешние автомобильные дороги, к аэропортам, крупным зонам массового отдыха и поселениям в регионе.

Пропуск всех видов транспорта. Движение непрерывное. Пересечения с магистральными улицами в разных уровнях.

I класса

II класса

Основные транспортные каналы города. Обеспечивают связи различных функционально-планировочных частей города. Могут иметь выходы на внешние автомобильные дороги.

Пропуск всех видов транспорта. Режим движения - непрерывный и регулируемый. Пересечения с магистральными улицами - в одном и разных уровнях.

Районного значения

Основные оси районов. Обеспечивают связи в пределах жилых районов и производственных зон, а также между ними.

Пропуск всех видов транспорта. Режим движения регулируемый.

Улицы и дороги местного значения:

Улицы в жилой застройке

Транспортные и пешеходные связи в пределах жилых районов и микрорайонов. Связи с магистральными улицами общегородского и районного значения (за исключением улиц с непрерывным движением транспорта).

Пропуск легкового, специального и обслуживающего район грузового транспорта; в отдельных случаях допускается организация движения массового пассажирского транспорта.

Улицы и дороги в производственных и коммунально-складских зонах

Транспортные связи в пределах производственных и коммунально-складских зон.

Пропуск всех видов транспорта.

Таблица 1.2

Классификация уличной сети центра

Категория улиц

Основное назначение улиц

Транспортная характеристика

Магистральные улицы:

Общегородского значения

Транспортно-планировочные и архитектурно-функциональные оси исторического центра. Обеспечивают его связи с направлениями развития и элементами системы общегородского центра, функционально-планировочными частями города; имеют выходы на магистральные улицы общегородского значения города I класса.

Пропуск всех видов транспорта, за исключением грузового транспорта, не связанного с обслуживанием центра. Интенсивное пешеходное движение. Режим движения регулируемый.

I класса

II класса

Основные транспортные каналы исторического центра. Обеспечивают его внутренние связи, связи с функционально-планировочными элементами города; имеют выходы на магистральные улицы общегородского и районного значения города.

Пропуск всех видов транспорта, за исключением большегрузных автомобилей и грузового транспорта, не связанного с обслуживанием центра. Интенсивное пешеходное движение. Режим движения регулируемый.

Районного значения

Оси функционально-планировочных зон исторического центра. Обеспечивают его внутренние связи, имеют выход на магистральные улицы города

Пропуск всех видов транспорта, за исключением большегрузных автомобилей, грузового транспорта, не связанного с обслуживанием центра. Режим движения регулируемый.

Улицы и дороги местного значения:

Улицы в жилой застройке

Транспортные и пешеходные связи в пределах жилых районов и микрорайонов. Связи с магистральными улицами центра.

Пропуск легкового, специального и обслуживающего район грузового транспорта: в отдельных случаях допускается организация движения массового пассажирского транспорта.

Габариты улиц в центральной части города определяются условиями сохранения исторической планировки и застройки (табл. 1.4).

Нормативная пропускная способность одной полосы проезжей части улиц и дорог при пересечении: в разных уровнях - 1650-1850 приведенных авт./час; в одном уровне - 750-850 приведенных авт./час.

Таблица 1.3

Основные расчетные параметры уличной сети города

Категория магистралей

Расчетная скорость движения, км/ч

Ширина в «красных линиях», м

Ширина полосы движения, м

Число полос движения в обоих направлениях

Ширина пешеходной части тротуара, м

Магистральные улицы:

общегородского значения:

I класса

100

70-110

3,75

6-8

4,5-7,5

II класса

80-100

40-100

3,5-3,75

6-8

3,0-7,5

районного значения

60-70

35-45

3,25-3,75

4-6

3,0-6,0

Улицы и дороги местного назначения:

Улицы в жилой застройке

60

15-30

3,0-3,5

2-4

2,25-3,0

Улицы и дороги в производственных и коммунально-складских зонах

60

15-30

3,75

2-4

1,5-3,0

Таблица 1.4

Основные расчетные параметры магистральной сети центральной части города

Категория магистралей

Расчетная скорость движения, км/ч

Ширина в «красных линиях», м

Ширина полосы движения, м

Число полос движения в обоих направлениях

Ширина пешеходной части тротуара, м

Магистральные улицы:

общегородского значения:

I класса

90

35-110

3,5-3,75

6-8

Не менее 4,5

II класса

80

25-80

3,25-3,75

4-6

Не менее 3,0

районного значения

60

15-45

3,25-3,5

3-6

3,0-6,0

При движении по уличной сети смешанного потока различного вида транспорта приводят к одному расчетному виду - легковому автомобилю, применяя следующие коэффициенты:

легковые автомобили

1,0

автопоезда

по СНиП 2.05.02-85

грузовые автомобили грузоподъемностью:

 

1,5

2,0

8 т

2,5

14 т

3,0

свыше 14 т

3,5

автобусы

2,5

троллейбусы

3,0

сочлененные троллейбусы и автобусы

4,0

микроавтобусы

1,5

мотоциклы и мопеды

0,5

велосипеды

0,3

Число полос движения на улицах устанавливают по расчету и в зависимости от расчетной интенсивности движения транспорта, но не менее указанных в табл. 1.3 - для территории города за пределами центра и табл. 1.4 - для территории в пределах центра.

Вдоль магистральных улиц общегородского значения с непрерывным движением при необходимости транспортного обслуживания прилегающей застройки, а также для увеличения пропускной способности магистрали предусматривают местные и боковые проезды.

На местных проездах допускается организовывать как одностороннее, так и двустороннее движение транспорта.

Ширину местных проездов принимают: при одностороннем движении транспорта и без устройства специальных полос для стоянки автомобилей - не менее 7,0 м; при одностороннем движении и организации по местному проезду движения массового пассажирского транспорта - 10,5 м, при двустороннем движении и организации движения массового пассажирского транспорта - 11,25 м.

На боковых проездах, как правило, организовывают одностороннее движение. Ширину проезжей части бокового проезда определяют расчетом, принимают не менее 7,5 м.

На магистральных улицах общегородского значения с двух сторон от проезжей части следует устраивать полосы безопасности шириной 0,75 м - при непрерывном движении, 0,5 м - при регулируемом движении.

Для разделения отдельных элементов поперечного профиля улиц и разных направлений движения предусматривают разделительные полосы. Разделительные полосы, кроме центральной, должны быть приподняты над лотком проезжей части на 15 см. Центральные разделительные полосы располагают в одном уровне с проезжей частью с выделением их разметкой.

Ширину разделительных полос принимают по табл. 1.5. Не допускается установка на центральной разделительной полосе шириной менее 4 м сооружений, не связанных с обеспечением безопасности движения. При общей ширине дороги более 30 м на перекрестках при троллейбусном движении допускается установка опор контактной сети на разделительной полосе шириной менее 4 м при условии установки элементов типового барьерного ограждения.

Таблица 1.5

Параметры разделительных полос

Местоположение полосы

Ширина полосы, м.

Магистральных улиц

Улицы местного значения

Общегородского значения

Районного значения

Улицы в жилой застройке

с непрерывным движением

с регулируемым движением

Центральная разделительная

4,0

4,0

3,0

-

Между основной проезжей частью и местными проездами

3,0

3,0

-

-

Между проезжей частью и трамвайным полотном

6,0

3,0

3,0

-

Между проезжей частью и тротуаром

3,0

3,0

3,0

2,0

Между тротуаром и трамвайным полотном

-

3,0

2,0

-

Примечания. В условиях реконструкции допускается уменьшать ширину разделительных полос между основной проезжей частью и местным проездом на магистральных улицах общегородского значения до 2 м, между проезжей частью и крайним рельсом трамвайного пути до 2,8 м - на прямом участке и 3,1 м - на криволинейных участках радиусом не менее 250 м.

В условиях сложившейся застройки Москвы допускается уменьшать ширину центральной разделительной полосы на магистральных улицах общегородского значения до 2 м с обязательной установкой на ней барьерного ограждения. Переход от 2-3-метровой ширины центральной разделительной полосы к ширине полосы 4 м следует осуществлять на участке длиной не менее 100 м. При размещении на центральной разделительной полосе опор информационных указателей и мачт освещения ширина проезжей части должна быть увеличена до 5,5 м.

В конце проезжих частей тупиковых улиц устраивают площадки для разворота автомобилей с учетом обеспечения радиуса разворота 12-15 м. На отстойно-разворотных площадках для автобусов и троллейбусов должен быть обеспечен радиусом разворота 15 м. Использование разворотных площадок для стоянки автомобилей не допускается.

Для обеспечения подъездов к группам жилых зданий и объектов, а также к отдельным зданиям в кварталах предусматривают основные и второстепенные проезды. Ширину проезжих частей основных проездов принимают 6,0 м, второстепенных проездов - 5,5 м, ширину тротуаров назначают 1,5 м.

Для подъезда к отдельно стоящим трансформаторным подстанциям, газораспределительным пунктам, участкам школ и детских садов назначают проезды с шириной проезжей части 3,5 м. Тупиковые проезды к отдельно стоящим зданиям имеют протяженность не более 150 м и заканчиваются разворотными площадками размером в плане 12×12 м или кольцом с радиусом по оси улиц не менее 10 м.

Проезжую часть на прямолинейных участках улиц с односторонним движением и шириной до 15 м, как правило, устраивают с односкатным поперечным профилем.

Проезжую часть на прямолинейных участках улиц всех категорий при двустороннем движении транспорта и, как правило, с четным количеством полос, а также на кривых в плане радиусом 800 м и более для магистральных улиц общегородского значения с непрерывным движением и радиусом 600 м и более для магистральных улиц с регулируемым движением предусматривают с двускатным поперечным профилем.

Поперечный уклон проезжей части (кроме участков кривых в плане, на которых следует предусматривать устройство виражей) назначают одинаковыми по всей ширине проезжей части, равный 20 ‰. Минимальный поперечный уклон на магистралях и улицах города принимают 10 ‰, максимальный - 30 ‰. Поперечные уклоны элементов поперечного сечения улиц принимают: на тротуарах основной - 20 ‰, минимальный - 5 ‰, максимальный - 30 ‰; на газонах основной - 10 ‰, минимальный - 5 ‰, максимальный - 50 ‰.

1.3. Конструкции дорожных одежд с асфальтобетонным покрытием

Дорожная одежда с асфальтобетонным покрытием (рис. 1.2), как правило, состоит из собственно покрытия, основания и дополнительного слоя 5 основания.

Рис. 1.2. Типовые конструкции дорожных одежд для городских улиц: а) на двухслойных основаниях из крупнозернистого асфальтобетона и известнякового щебня; б) из крупнозернистого асфальтобетона и тощего бетона; в, г) на однослойных основаниях из монолитного бетона. 1 - верхний слой покрытия; 2 - нижний слой покрытия; 3 - верхний слой основания; 4 - основание; 5 - дополнительный слой основания; 6-грунт земляного полотна.

Покрытие непосредственно воспринимает вертикальные и горизонтальные нагрузки от автомобильного транспорта и подвергается воздействию атмосферных факторов. Оно должно быть износо- и термостойким, водопроницаемым, ровным и шероховатым. Поэтому покрытия строят из прочных материалов. Для снижения расхода дорожно-строительных материалов применяют покрытия, состоящие из двух слоев. Нижний слой 2, непосредственно не подверженный воздействию колес автомобилей, строят из менее прочных материалов, чем верхний слой 1.

Основание 4 воспринимает нагрузку, передаваемую через покрытие, и распределяет ее по земляному полотну. Благодаря этому в дорожной одежде не накапливаются остаточные деформации, которые могут вызвать местные разрушения и неровности покрытия. Основание может состоять из одного или двух слоев.

Для строительства основания используют материалы с меньшей прочностью, чем прочность материалов покрытия. Однако влага, перемещающаяся из земляного полотна в период зимнего промерзания, может переувлажнять основание. Поэтому к материалам предъявляют повышенные требования в отношении водо- и морозостойкости.

Дополнительный слой 5 оснований предназначен для дальнейшего распределения нагрузки (в этом случае он называется подстилающим); для отвода избыточной воды, поступающей из верхних слоев земляного полотна (дренирующий слой); для предохранения дорожной одежды от разрушения в случае пучения грунта под воздействием мороза (морозозащитный слой).

Толщина слоев дорожных одежд для улично-дорожной сети Москвы указаны в типовых решениях, разработанных институтом "Мосинжпроект" и ГУП "НИИ Мосстрой" [7]. На проезжей части магистральных дорог и улиц толщина верхнего слоя покрытия принимается не ниже 5 см. нижнего слоя - не ниже 7 см; объектах местного значения - соответственно 4 и 6 см. На тротуарах, рассчитанных, кроме нагрузки от пешеходов, на заезд уборочных машин, толщина верхнего слоя покрытия из песчаного асфальта находится в пределах 3-4 см, нижнего слоя 4-6 см.

В соответствии с рекомендациями ГУП "НИИ Мосстрой" [20] тип и марку асфальтобетона дорожных покрытий назначают по табл. 1.6, На тротуарах предусмотрена укладка песчаных асфальтобетонных смесей.

Толщина основания из крупнозернистого пористого асфальтобетона может достигать 16 см, тощего (укатываемого) бетона класса В - 7,5-18 см, монолитного бетона класса В 30-22 см, щебня марки не менее "400" - 15 см. Толщина песчаного дополнительного слоя зависит от грунтово-гидрологических условий и устанавливается расчетом.

Бортовой камень на дорожных одеждах с щебеночным основанием обязательно устанавливается на основании из бетона В 15 толщиной не менее 10 см (рис. 1.3). На бетонных основаниях дорожных одежд допускается только укладка выравнивающего слоя из цементобетонной смеси.


Таблица 1.6

Рекомендуемая область применения асфальтобетонных смесей с учетом принятой классификаций улично-дорожной сети города

Категории улиц

Асфальтобетонная смесь

Марка по ГОСТ 9128-97

Тип по ТУ 400-24-107-91 и ТУ 400-24-158-89

Мелкозернистая

Песчаная

Крупнозернистая пористая

Крупнозернистая

Песчаная

Литая

Тип

I

II

III

I

II

III

IV

V

Высокоплотная

Плотные

А

Б

В

Г

Д

Магистральные

Общегородского значения:

I класса

I

I

I

-

-

-

-

+

+

-

+

-

-

-

+

II класса

I

I

I

-

I

-

-

+

+

-

+

-

-

-

+

Районного значения

-

-

I

I

I

I

+

+

+

+

+

+

+

+

+

Местного значения

В жилой застройке

-

-

I

II

-

II, III

+

+

+

+

+

+

+

-

+

В производственных и коммунально-складских зонах

-

-

I

II

I

II

-

+

+

-

-

-

-

-

+

Проезды в кварталах

-

-

-

-

-

II, III

+

+

+

+

-

-

-

+

+

Бортовой камень на дорожных одеждах с щебеночным основанием обязательно устанавливается на основании из бетона В 15 толщиной не менее 10 см (рис. 1.3). На бетонных основаниях дорожных одежд допускается только укладка выравнивающего слоя из цементобетонной смеси.


Рис. 1.3. Узлы сопряжения бортового камня с дорожной одеждой: а - прямой рядовой (БР); б - выездной (БВ); в - прямой газонный (ПГ); 1 - бетон класса В 3,5-5; 2 - отметка проезжей части; 3 - бетон класса не ниже В 27,5; 4 - отметка тротуара; 5 - отметка покрытия внутриквартальной территории; 6 - отметка газона на поверхности сквера.

2. Требования к эксплуатационному состоянию дорожных покрытий

Основные показатели транспортно-эксплуатационного состояния улично-дорожной сети (безопасность и непрерывность движения, скорость и пропускная способность) непрерывно изменяются в процессе эксплуатации под воздействием транспортной нагрузки и природно-климатических факторов. В значительной степени эти показатели зависят от объективности назначения и качества проведения мероприятий по ремонту и содержанию дорожных покрытий.

2.1. Дефекты и причины снижения эксплуатационных свойств асфальтобетонных дорожных покрытий

Условия эксплуатации дорожных одежд в городах существенно отличаются от условий эксплуатации на внегородских автомобильных дорогах. Здесь выше интенсивность движения (хотя и ниже средняя скорость). Наличие люков, водоприемных сооружений, вынужденные многочисленные разрытия проезжей части, особенно на исторически сложившейся сети улиц, создают повышенные динамические воздействия на дорожные одежды. В условиях городов вследствие многочисленных торможений автотранспорта у светофоров, на нерегулируемых перекрестках, остановках пассажирского транспорта часто возникают сдвиговые деформации.

Наиболее распространенными дефектами асфальтобетонных покрытий являются износ, шелушение, выкрашивание, выбоины, трещины, сдвиги и волны (дефекты в целом дорожных одежд - просадки, проломы, разрушения кромок, колейность, в настоящем "Руководстве" не рассматриваются).

Износ покрытия происходит под воздействием касательных напряжений от движущегося транспорта, особенно при его торможении. Износ от грузовых автомобилей примерно в 2 раза больше в сравнении с легковыми.

На магистралях с интенсивным движением автомобилей покрытие шлифуется и даже истирается. В этом случае снижается прочность дорожкой одежды, уменьшается шероховатость, и покрытие, (особенно влажное) становится скользким, что вызывает дорожно-транспортные происшествия.

Из графика на рис. 2.1 видно, как изменяется один из основных показателей безопасности движения - коэффициент сцепления в зависимости от степени и вида шероховатости и скорости движения.

При минимально допустимом значении коэффициента сцепления 0,30 [9] поверхности - гладкая 1 с отдельными углублениями 2 и волнистая 3 - не обеспечивают требуемых сцепных свойств. Для движения со скоростью до 60-70 км/час допустимы поверхности с малой шероховатостью 4 и 5 с небольшими выступами шероховатости. Для таких слоев применяют мелкозернистый минеральный материал типа крупного песка или острогранных высевок размером 3-8 и 5-10 мм.

Рис. 2.1: Различные виды шероховатости покрытий: 1, 2, 3 -непригодные поверхности, излишне гладкие; 4, 5 - небольшая шероховатость, пригодны, в городских условиях при движении со скоростью до 60-70 км/час; 6, 7- с крупной шероховатостью, пригодны для движения со скоростью более 80-100 км/час.

Получаемые слои сходны с наждачной бумагой. Поверхности с крупной шероховатостью 6, 7 пригодны для движения со скоростью более 80-100 км/час. Однако при большой скорости движения в дождливую погоду на гладких покрытиях наблюдается явление гидропланирования (рис. 2.2), когда передние колеса теряют соприкосновение с покрытием из-за слоя воды, плохо отжимаемой из пространств между выступами щебня. При гидропланировании, возникающем на скорости автомобиля свыше 70-100 км/час, передние колеса не имеют сцепления с покрытием, теряется управление и возможен съезд автомобиля с дороги.

При крупной и равномерной шероховатой поверхности 6, 7 (рис. 2.1) гидропланирования не происходит, так как колеса выдавливают воду из углублений между выступами щебня. С другой стороны, острые выступы крупного щебня разрушают тонкую пленку воды, что обеспечивает непосредственный контакт между колесом автомобиля и покрытием. Поэтому для получения высокого коэффициента сцепления необходимо, чтобы средняя глубина шероховатой поверхности была 1-1,8 мм, а среднее расстояние между вершинами выступов - не более 12,5 мм.

Рис. 2.2. Схема гидропланирования на покрытии с мелкой шероховатостью при превышении скорости; 1 - покрытие; 2 - пленка воды; b - длина контакта колеса автомобиля с покрытием.

В случаях, когда асфальтобетон имеет недостаточную прочность и плотность, на поверхности покрытия под воздействием транспортной нагрузки агрессивных климатических факторов наблюдается шелушение с образованием неровностей глубиной до 5 мм. В дальнейшем происходит выкрашивание - отделение зерен минерального материала из покрытия и образование мелких раковин глубиной от нескольких миллиметров до 20 мм. Постепенно развиваясь, выкрашивание распространяется на значительную площадь и является признаком начала поверхностного разрушения покрытия.

Выбоины - местные разрушения покрытия глубиной от 20 до 100 мм и более с резко очерченными краями. Они возникают прежде всего из-за недостаточной связи между минеральными и органическими материалами, недоуплотнения покрытия, загрязнения, использования недоброкачественных материалов (пережог асфальтобетонной смеси, попадание необработанного щебня или песка в смесь и т.д.).

Особенно активно процесс образования выбоин развивается в весенний период, чему способствует чередование положительной и отрицательной температур воздуха и покрытия, наличие воды в порах покрытия. Проникая в раковины и микротрещины покрытия, вода оказывает расклинивающее действие, которое значительно увеличивается при ее замерзании. Связи между частицами материала ослабляются и под влиянием колес автомобиля образуется выбоина которая может быстро увеличиться.

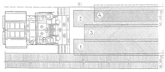
Наезжая на выбоину, колесо получает толчок, что приводит к повторному динамическому удару на некотором расстоянии за выбоиной (рис. 2.3). При многократном повторении этой нагрузки образуется следующая раковина или трещина, которые затем объединяются в одну большую выбоину.

Сдвиги - неровности, вызванные смещением материала покрытия при устойчивом основании; чаще всего образуются в местах торможения автомобилей (остановки, перекрестки). Под действием касательных сил происходит сдвиг верхнего слоя либо его сдвиг по поверхности нижнего слоя с образованием поперечных трещин на полосах наката.

Рис. 2.3. Динамика развития выбоин на покрытии: 1, 2 - трещины или раковины при выкрашивании; 3 - расклинивающее действие воды и льда и образование трещины в зоне повторного удара; 4 - вторичный удар колеса; 5, 6 - объединение смежных выбоин.

Другой разновидностью поперечных трещин являются сквозные (на всю ширину покрытия) температурные трещины (рис. 2.4). Эти трещины возникают в холодные периоды года вследствие резких перепадов температуры и недостаточной сопротивляемости асфальтобетона растягивающим усилиям. В начальной стадии образования температурных трещин интервал между ними составляет 25-30 м, в последствие, по мере старения вяжущего в асфальтобетоне, сокращается в 2-3 раза.

Рис. 2.4. Трещины и разрушения покрытия: 1 - продольные по оси дороги; 2 - поперечные; 3 - косые; 4 - частые поперечные на всю ширину; 5 -продольные по полосам наката; 6 - сетка трещин по полосам наката; 7 - сетка трещин на пучинистых участках.

Продольные трещины, расположенные через 20-40 см друг от друга на полосах наката, в сочетании с поперечными трещинами через 1-4 м на всю ширину проезжей части, бывают на асфальтобетонных покрытиях, построенных на непрочных основаниях из грунтов или каменных материалов, укрепленных минеральными вяжущими.

Продольные трещины на асфальтобетонных покрытиях часто появляются на стыке двух полос укладки покрытия при плохом сопряжении (технологические трещины). Продольные трещины на полосах наката образуются из-за недостаточной прочности отдельных слоев одежды и грунтового основания (недоуплотнение, переувлажнение), превышения нагрузок и интенсивности движения по сравнению с расчетными. Трещины продольно-косые возникают вследствие недостаточной прочности дорожной одежды, недоуплотнения грунтов полотна и их последующей осадки, особенно на высоких насыпях, а также над трубами.

Сетка трещин с мелкими ячейками (силовые трещины) на полосах наката размером сторон 10-20 см бывает на покрытии, как правило, при недостаточной прочности основания на участках оттаивания переувлажненного грунта в весенний период и период пучинообразования.

На покрытиях, уложенных на основаниях из цементобетона или асфальтобетона с трещинами, часто образуются отраженные трещины. Такие трещины растут снизу вверх и проявляются над их источником или вблизи него. Кромки отраженных трещин разрушаются достаточно быстро, особенно при вертикальных перемещениях нижележащих бетонных плит, и имеют частые сколы и разрушения.

2.2. Оценка эксплуатационного состояния дорожных покрытий

От правильного назначения вида и объема необходимых ремонтных работ зависит решение основной задачи дорожных эксплуатационных служб - обеспечение требуемого эксплуатационного состояния дорожных покрытий и, следовательно, всей улично-дорожной сети.

Назначение объемов работ по плановому текущему ремонту в строительный сезон выполняют по результатам всесторонней оценки эксплуатационно-технического состояния дорожных покрытий в весенний период, в первую очередь для фиксации зимне-весенних разрушений проезжей части.

В конце каждого месяца строительного сезона, одновременно с приемкой выполненных работ, намечают объемы текущего ремонта на следующий месяц. В процессе приемки целесообразно проводить оценку изменения эксплуатационного состояния улично-дорожной сети по результатам выполненных работ. Итоговая оценка результатов текущего ремонта происходит после окончания строительного сезона. Информация о техническом состоянии сети дорог, полученная в ходе натурных обследований, используется для принятия решений по обеспечению требуемого эксплуатационного состояния улично-дорожной сети. На основании этой информации выполняют:

- фиксированную оценку эксплуатационного состояния дорожного покрытия (эксплуатационные параметры) на конкретный период времени, включая изменения состояния покрытия, вызванные зимне-весенними разрушениями;

- установление адресов, видов и объемов требуемых ремонтных работ для текущего года или планируемых в последующем году;

- оценку изменения состояния покрытия за счет проведения ремонтных работ;

- контроль качества проведения ремонтных работ подрядными организациями и их приемку;

- обоснование затрат на ремонты, в зависимости от состояния сети в текущем и последующем годах, а также прогноз снижения эксплуатационных параметров состояния дорожно-уличной сети при ограниченном финансировании.

К основным эксплуатационным параметрам асфальтобетонных покрытий, как в нашей стране, так и за рубежом, принято относить:

- ровность поверхности покрытия;

- коэффициент сцепления поверхности покрытия;

- степень поврежденности поверхности покрытия;

Требования к указанным параметрам должны определяться соответствующими нормативными документами1. При этом необходимо помнить, что требования к состоянию покрытия имеют как минимум два критерия:

- обеспечение безопасности дорожного движения;

- обеспечение работоспособности дорожной одежды в течение запланированного срока службы.

1 - Требования нормативных документов по отдельным параметрам не всегда совпадают. В этом случае следует руководствоваться их совокупностью, отдавая приоритет безопасности движения.

В настоящее время действует только один нормативный документ, регламентирующий величину указанных эксплуатационных параметров для городских дорог и улиц - ГОСТ Р 50597-93 "Требования к эксплуатационному состоянию, допустимому по условиям обеспечения безопасности дорожного движения"[9], где величина показателей нормируется с учетом отнесения улиц и дорог к группам А, Б, В в зависимости от интенсивности движения: А (более 3000 авт/сутки), Б (от 1000 до 3000 авт/сутки) и В (менее 1000 авт/сутки).

Покрытие проезжей части не должно иметь просадок, выбоин, иных повреждений, затрудняющих движение транспортных средств, с разрешенной Правилами дорожного движения скоростью. Предельно допустимые повреждения покрытия, а также сроки их ликвидации приведены в табл. 2.1.

Предельные размеры отдельных просадок, выбоин и т.п. не должны превышать, по длине 15 см, ширине - 60 см и глубине - 5 см. Ровность покрытия проезжей части должна соответствовать требованиям, приведенным в табл. 2.2.

Таблица 2.1

Допустимые повреждения на эксплуатируемых дорожных покрытиях

Группа дорог и улиц по их транспортно-эксплуатационным характеристикам

Повреждения на 1000 м покрытия, м2, не более

Сроки ликвидации повреждений, сут., не более

А

0,3(1,5)

5

Б

1,5(3,5)

7

В

2,5(7,0)

10

Примечания:

1. В скобках приведены значения повреждений для весеннего периода.

2. Сроки ликвидации повреждений указаны для строительного сезона, определяемого погодно-климатическими условиями, приведенными в СНиП 3.06.03 по конкретным, видам работ.

Таблица 2.2

Допустимые показатели по ровности дорожных покрытий

Группа дорог и улиц по их транспортно-эксплуатационным характеристикам

Состояние покрытия ровности

Показатель ровности по прибору ПКРС-2, см/км, не более

Число просветов под 3-метровой рейкой, % не более

А

660

7

Б

860

9

В

1200

14

Примечание: Число просветов подсчитывают по значениям, превышающим указанные в СНиП 3.06.03.

Коэффициент сцепления покрытия должен обеспечивать безопасные условия движения с разрешенной Правилами дорожного движения скоростью и быть не менее 0,3 при его измерении шиной без рисунка протектора и 0,4 - шиной, имеющей рисунок протектора.

Состояние разделительных полос по степени деформации и ровности их покрытия должно соответствовать значениям, установленным для покрытий проезжей части. Устранение дефектов разделительной полосы следует осуществлять в течение не более 14 суток с момента обнаружения.

Отдельные бортовые камни подлежат замене, если их открытая поверхность имеет разрушения более чем на 20 % площади или на поверхности имеются сколы глубиной более 3,0 см. Не допускается отклонение бортового камня от его проектного положения.

В случаях, когда эксплуатационное состояние дорог и улиц не отвечает требованиям указанного стандарта, на них должны быть введены временные ограничения, обеспечивающие безопасность движения, вплоть до полного запрещения движения.

При плановом текущем ремонте на проезжей части ликвидируют дефекты на площадях до 200 м2, на тротуарах - до 100 м2. Годовой объем ремонта дорожных покрытий проезжей части, тротуаров и бортового камня допускается до 20 % от их площади и протяженности.

Ремонт дорожных покрытий магистралей и улиц федеральной сети картами большей площади с привлечением к его финансированию ассигнований в объемах, не превышающих утвержденных расходов на текущий ремонт дорог [4] , производится в случаях:

- не обеспечения требований нормативных документов [6, 8, 9] к их эксплуатационному состоянию (несоответствие требований по ровности, нормативным значениям поперечных уклонов проезжей части и тротуаров, нарушение линии бортового камня в плане и профиле, нарушение водоотвода, не обеспечение требований к магистралям федеральной дорожной сети по их внешнему виду и др.);

- при необходимости ремонта дорожных покрытий на магистралях и улицах, на которых запрещено производство капитального ремонта в связи с намечаемыми работами по ремонту и прокладке подземных инженерных коммуникаций;

- при необходимости приведения дорожных покрытий в требуемое эксплуатационное состояние ускоренными темпами (в сжатые сроки в связи с поручениями Правительства Москвы и предписаниями ОАТИ и ГИБДД).

Перечень объектов и участков (с указанием объемов), где требуется ремонт асфальтобетонного покрытия большими картами, согласовывается на заседаниях рабочей группы по выдаче разрешения на производство дорожно-ремонтных работ на основных улицах и магистралях, созданной распоряжением Премьера Правительства Москвы от 13.04.95 № 326-РП "О мерах по улучшению организации дорожно-ремонтных работ" [2]. Основанием для проведения ремонта является выданное рабочей группой разрешение установленного образца.

Работы "большими картами" выполняют преимущественно в строительный сезон с соблюдением общей технологической последовательности, включающей подготовительные работы, укладку и уплотнение горячей асфальтобетонной смеси.

Для принятия решений по назначению видов и объемов работ по ремонту дорожных покрытий номенклатуры дефектов и повреждений покрытия, приведенных в ГОСТ Р 50597-93, недостаточно. Требуемая работоспособность дорожных одежд может быть обеспечена при устранении дефектов и разрушений, рассмотренных в разделе 2.1 и обобщенных в табл. 2.3.

Таблица 2.3

Регистрируемые дефекты и разрушения дорожных покрытий

№ п/п

Вид дефекта

Характерные особенности дефекта

Степень развития разрушений

1

2

3

4

1

Поверхностные разрушения и деформации покрытия, не связанные с потерей прочности конструкции дорожной одежды

1.l

Температурные трещины

Разрушения дорожного покрытия, пересекающие дорогу в поперечном направлении и образующиеся за счет резкой усадки при сезонных температурных изменениях

Ширина раскрытия трещин до 1-3 см, без деформаций и неровностей на краях (возможны отдельные сколы и незначительное разветвление)

1.2

Технологические трещины и швы

Прямолинейные продольные и поперечные швы, возникающие при нарушении технологии укладки асфальтобетонного покрытия

Ширина раскрытия трещин до 1-3 см, иногда сопровождающиеся сколами краев

1.3

Редкие выбоины (расстояние между выбоинами 10 м и более)

Разрушение покрытия разной формы в виде углублений с резко выраженными краями глубиной более 3 см, как правило, проявляются в процессе развития разрушений трещин

Площадь отдельных выбоин до 1-3 дм2

1.4

Шелушение, выкрашивание

Разрушение дорожного покрытия за счет потери связи между зернами материала при плохом сцеплении зерен щебня с битумом

(Менее 3 см глубиной и 200 см2 по площади)

1.5

Сетка трещин с крупными (d>0,5 м) ячейками

Разрушения, как правило, возникающие в непосредственной близости с деформационными швами мостовых сооружений, трамвайными путями, люками смотровых колодцев или дождеприемных решеток

Сторона ячейки 0,5-1 м

1.6

Продольные волны, сдвиги

Пластические деформации дорожного покрытия в виде чередующихся впадин-складок, расположенных в поперечном направлении к продольной оси дороги на разных расстояниях друг от друга. Возникают на спусках, у светофоров и остановок общественного транспорта и т.д.

Чередование на покрытии впадин и гребней через 0,5-3,0 м

1.7

Разрушение кромки покрытия

Разрушение покрытия разной формы в виде углублений с резко выраженными краями глубиной более 2-3 см, расположенные в зоне деформационных швов мостовых сооружений и в непосредственной близости с трамвайными путями, люками смотровых колодцев или дождеприемных решеток

Сплошные или частичные разрушения в виде сетки трещин, выбоин, просадок и сколов кромок на расстоянии 0,2-1,0 м от конструкции

1

Деформации покрытия, вызванные разрушениями подземных сооружений или коммуникаций

1.1

Локальные просадки (проломы) покрытия

Деформации в виде отдельных впадин с пологими склонами различного размера, возникающие в результате осадок в местах размещения подземных коммуникации (коллекторов, каналов и т.д.), в зоне деформационных швов мостовых сооружений, в зоне смотровых и дождеприемных колодцев

 

1.2

Просадки или наклон люков и решеток

Изменение положения люков смотровых колодцев и решеток дождеприемных колодцев из-за разрушений несущих конструкций под воздействием транспорта

Глубина более 1-3 см

2

Разрушения и деформации покрытия, связанные с ослаблением дорожкой одежды

2.1

Частые поперечные или криволинейные трещины (расстояние < 5 м)

Разрушения дорожного покрытия: пересекающие дорогу в поперечном направлении или под углом к оси дороги и образующиеся на слабых основаниях и при недостаточной прочности дорожных основании или покрытий

Ширина раскрытия трещин более 1-3 см, наличие деформаций по краям трещины нарушение ревности в продольном направлении

2.2

Продольные центральные и боковые трещины и уступы

Продольные трещины, возникающие при осадке земляного полотна или дорожной одежды. Наиболее часто наблюдаются на участках, где проводились работы по уширению проезжей части при реконструкции

Ширина раскрытия трещин более 1-3 см, наличие деформаций по краям трещины, нарушение ровности в поперечном направлении

2.3

Силовые трещины

Разрушения возникающие, особенно в весенний период, при недостаточной прочности дорожных оснований или покрытий

Трещины образуют замкнутые фигуры размером менее 0,5 м

2.4

Частые выбоины

Произвольно расположенные по ширине покрытия разрушения разной формы в виде связанных между собой углублений с резко выраженными краями

Выбоины глубиной более 5-10 см, расстояние между выбоинами < 10м

2.5

Колейность (глубина колеи > 20 мм)

Деформации нежестких дорожных одежд в виде продольных борозд разной глубины. Образуются под воздействием колес автомобилей, идущих в один след, при непрочных дорожных одеждах и ослабленных основаниях. Наиболее часто наблюдаются в зоне остановок общественного транспорта и в пределах полосы наката на грузонапряженных участках дорог при недостаточной прочности дорожных оснований или покрытий

 

2.6

Просадки полотна дороги

Значительные по протяжению деформации нежестких дорожных одежд в виде впадин с пологими склонами различного размера, возникающие в результате осадок грунта или дорожной одежды, не связанные с наличием подземными коммуникациями. Наиболее часто наблюдаются в течение первых лет эксплуатации новых участков дорог и после разрытий

 

2.7

Наличие карт или частых заплат повторных ямочных ремонтов или заделки трещин

Наличие следов двух и более ремонтов на одном и том же участке покрытия, свидетельствующее о недостаточной прочности дорожных основании или покрытий

 

3

Дефекты покрытия, вызванные нарушением профиля поверхности проезжей части

3.1

Отсутствие или затруднение поверхностного водоотвода

Застой воды, вызванный наличием вогнутых участков поверхности проезжей части в продольном профиле или нарушения поперечных уклонов проезжей части

 

3.2

Несоответствие поперечных уклонов нормативным требованиям

Изменения поперечных уклонов

 

Оценка ровности дорожных покрытий должна проводиться по ГОСТ 30412-96 "Методы измерений неровностей оснований и покрытий", путем проведения сплошного или выборочного контроля. Сплошной контроль предназначен для обследования участков дорог протяжением более 1 км, выборочный менее 1 км. Выборочный контроль ровности и сцепных свойств покрытия осуществляют также при обследовании опасных участков дорог.

При сплошном контроле ровность оценивают с помощью передвижной установки ПКРС-2 со скоростью 50 км/час с допустимым отклонением ±2 км/час. При этом показатель ровности регистрируется в см/км.

Выборочный контроль ровности осуществляют на захватках (участках) длиной 300 м на обследуемом километре дороги путем измерения просветов под 3-метровой рейкой. Захватки выбирают на самых неблагоприятных по ровности участках, установленных визуальным осмотром. В процессе измерения рейку укладывают в продольном направлении через каждые 30 м в трех местах: на оси и в 1 м от кромок, и в поперечнике производят измерения в трех местах: на оси и по крайним полосам наката. Просветы под рейкой измеряют в 5 точках, расположенных на расстоянии 0,5 м друг от друга.

Сцепные качества дорожных покрытий характеризуются величиной коэффициента сцепления шин автомобиля с увлажненной поверхностью проезжей части. Сплошной контроль сцепления осуществляют с помощью передвижной установки ПКРС-2 (рис. 2.5) или других приборов, показания которых должны быть приведены к показаниям ПКРС-2. Коэффициент сцепления измеряют на каждой полосе движения при скорости автомобиля-лаборатории 60 км/час путем полного затормаживания измерительного колеса прицепного прибора. В момент измерения толщина водной пленки на покрытии должна быть не менее 1 мм. Измерения производят по левой полосе наката каждой полосы движения. Количество измерений на километр зависит от однородности поверхности покрытия и колеблется от 2 до 6. При проведении измерений необходимо фиксировать температуру воздуха и получаемые значения приводить к "расчетной температуре.

Рис. 2.5. Лаборатория КП-511 для оценки ровности и коэффициента сцепления: 1 - прицеп ПКРС-2У; 2 - датчик сцепления; 3 - датчик ровности; 4 - бак для воды; 5 - ручка управления поливом; 6 - блок записи измерений; 7 - педаль тормоза.

Выборочный контроль сцепных свойств покрытия осуществляют переносным прибором ППК-МАДИ-ВНИИБД (рис. 2.6), предназначенным для оперативного измерения коэффициента сцепления дорожных покрытий. Прибор устанавливают на оцениваемое покрытие таким образом, чтобы его имитаторы возвышались над поверхностью на 10-12 мм. Затем покрытие под имитатором увлажняют и при помощи сбрасывающего устройства сбрасывают груз. Коэффициент сцепления фиксируется на шкале при помощи измерительной шайбы.

На одном месте должно быть проведено не менее пяти измерений коэффициента сцепления. За окончательное значение принимается среднее арифметическое результатов всех измерений.

На объектах федеральной дорожной сети для оперативного непрерывного контроля с адресной фиксацией дефектов (табл. 2.3) используется мобильная видеолаборатория производства НПО "Регион". Оборудование лаборатории (рис. 2.7) позволяет фиксировать дефекты и разрушения со скоростью до 40-60 км/ч по ширине покрытия 7-12 м (2-3 полосы движения).

Рис. 2.6. Принципиальная схема прибора ППК-МАДИ-ВНИИБД: 1 - имитатор; 2 - пружина; 3 - груз; 4 - муфта; 5 - тяга; 6 - штанга.

Рис. 2.7. Схема подвижной видеолаборатории.

Обработка видеоматериалов осуществляется в камеральных условиях операторами на ПЭВМ. При обработке фиксируются имеющиеся на покрытии повреждения, их местоположение и степень развития разрушений (рис. 2.8).

Рис. 2.8. Фрагмент схематического плана поврежденности дорожного покрытия.

Выборочная оценка может производиться визуальным осмотром при проезде по дороге на автомобиле со скоростью не более 10-15 км/час. Повреждения регистрируются вручную с привязкой к пройденному пути автомобиля лаборатории, при этом фиксируется полоса движения, местоположение одиночных повреждений или начало и конец участка со сплошными повреждениями данного типа. Оценка степени поврежденности покрытия для последующего назначения требуемых видов ремонтных работ проводится по следующей методике:

1. По результатам обследования, выполненного раздельно по каждой полосе движения, объект разбивается на однородные участки по следующим критериям:

- однородность конструкции дорожной одежды;

- год строительства, реконструкции или ремонта участка дороги;

- размер интенсивности движения (одна группа);

- примерно одинаковый объем однотипных повреждений и степень их развития.

2. Показатели по однородным участкам заносят в соответствующие разделы дефектной ведомости (рис. 2.9). При необходимости набора статистических данных для участков дорог с разнотипными разрушениями может быть определен их суммарный объем в %-ном отношении:

S = [(Lдеф + К × N) / Lобщ] × 100%,

где: S - суммарный объем разрушений, %; Lдеф - общая протяженность сплошных дефектов на полосе; N - число одиночных дефектов на полосе; К - размерный коэффициент влияния одиночного дефекта на скорость движения автомобиля (К=0,02 км); Lобщ - протяженность однородного участка.

2.3. Назначение объемов ремонтных работ

По результатам обследования состояния дорожного покрытия назначают

Минимальная протяженность однородного участка зависит от технологии проведения ремонтных работ:

- 200-300 м для ремонтов большими картами;

- 50-100 м для ремонтов обычными картами и аварийных ремонтов;

- 300-800 м для капитальных ремонтов.

В связи с особенностями назначения ремонтных работ дефекты и повреждения необходимо классифицировать следующим образом:

1. Поверхностные разрушения и деформации покрытия, не связанные с потерей прочности конструкции дорожкой одежды.

2. Разрушения и деформации покрытия, вызванные недостаточной прочностью конструкции дорожной одежды.

3. Деформации покрытия вызванные разрешениями подземных коммуникаций.

4. Дефекты покрытия, связанные с нарушением геометрии поверхности проезжей части.

Заполнение графы 10 - "Рекомендуемый вид ремонта" - производится следующим образом:

Анализируются соответствие значений показателей в графах 2-4 их предельно допустимым значениям, сочетания дефектов и разрушений, указанные в графах 5-9.

В том случае, если показатели не превышают предельно допустимые, в графе 10 ставится прочерк. Наличие дефектов и разрушений, указанных в графах 7 и 8, является основанием для рекомендаций по назначению целевых обследований по установлению причин их возникновения.

В случае превышения предельных значений показателей в графах 2-4 или дефектов и разрушений в графах 5, 6 назначаются конкретные виды ремонта, выделяются участки, требующие первоочередного ремонта, и рассчитываются объемы работ.

При использовании мобильной лаборатории, наряду с дефектовкой дорожного покрытия, могут быть решены задачи раздельного подсчета объемов работ по всем операциям. В качестве примера на рис. 2.10-2.12 приведена последовательность: автоматизированного построения поперечных профилей назначенного к ремонту "большими картами" участка улицы, картограмма существующего покрытия и оптимизация объемов подготовительных работ (по фрезерованию и укладке выравнивающего слоя).

Рис. 2.9. Дефектная ведомость обследованного участка.

Рис. 2.10. Характерный поперечный профиль участка улицы.

Рис. 2.11. Картограмма поверхности обследованного участка.

Рис. 2.12. Оптимизация объемов подготовительных работ.

3. Дорожно-строительные и ремонтные материалы и полуфабрикаты

3.1. Горячие асфальтобетонные смеси

Асфальтобетонная смесь - материал, получаемый в результате смешивания в асфальтосмесительных установках в нагретом состоянии щебня (гравия), природного или дробленого песка, минерального порошка и нефтяного дорожного битума, взятых в определенных соотношениях. Уплотненную асфальтобетонную смесь называют асфальтобетоном. Асфальтобетонную смесь в зависимости от вязкости битума и температуры укладки подразделяют на горячую, теплую и холодную.

В настоящее время при строительстве и ремонте городских дорог и улиц теплые и холодные смеси практически не применяют. Поэтому в данном разделе будут рассмотрены только горячие смеси, которые готовят на вязких битумах и укладывают при температуре не ниже 120 °С [10]. Формирование структуры асфальтобетона в основном заканчивается в период его уплотнения самоходными дорожными катками.

Горячие асфальтобетонные смеси подразделяют по предельной крупности на крупнозернистые (до 40 мм), мелкозернистые (до 20 мм) и песчаные (до 5 мм). В зависимости от массовой доли щебня или песка различают пять типов асфальтобетонных смесей: тип А с массовой долей щебня 50-60 %, тип Б - 40-50 %; тип В - 30-40 %; тип Г - на песках из отсевов дробления, а также на смесях с природным песком при содержании последнего не более 30 % по массе и тип Д - на природных песках или смесях природных песков с отсевами дробления при массовой доле последних менее 70 %. Зерновые составы основных типов мелкозернистых и песчаных смесей приведены на рис. 3.1.

Асфальтобетоны подразделяют на высокоплотные с остаточной пористостью 1,0-2,5 %, плотные - 2,5-5 %, пористые - 5,0-10,0 % и высокопористые - 10,0-18,0 %; причем пористые и высокопористые смеси применяют только в нижних слоях покрытий и в основаниях.

Для приготовления плотных горячих асфальтобетонных смесей I марки типов А и Б применяют щебень марки 1200. В смесях типа Б можно также использовать щебень из гравия марки 1000. В состав асфальтобетонных смесей типа В может входить щебень марки 1000 из изверженных и метаморфических пород. Эти же материалы применяют и для приготовления асфальтобетонных смесей типа Б II марки.

В состав асфальтобетонной смеси II марки может входить щебень из менее прочных каменных пород. Так, в асфальтобетонных смесях типа А применяют щебень марки 1000, а в асфальтобетонных смесях типа В допускается использовать щебень из изверженных пород марки 800.

К асфальтобетонным смесям III марки относятся щебеночные асфальтобетоны типов Б и В, в состав которых входит щебень, марка которого на 200 единиц ниже, чем для смесей марки II.

Для приготовления асфальтобетонных смесей марок I и II применяют природный и дробленый песок с модулем крупности М - больше 2, а марки III с М меньше 2. Дробленый песок для смесей марки I получают дроблением горной породы, прочность на сжатие которой не менее 80 МПа, для смесей марки II - 60 МПа, марки III - 40 МПа. Песок получают также дроблением гравия марок Др 12, Др 16, Др 24 соответственно для смесей марок I, II и III.

Рис. 3.1. Зерновые составы минеральной части асфальтобетонных смесей: а - мелкозернистых непрерывного состава; б - мелкозернистых прерывистого состава; в - песчаных. На горизонтальных осях графиков указаны, размеры зерен минерального материала, мм, на вертикальных - массовая доля частиц мельче данного размера, %.

Песчаные плотные асфальтобетонные смеси типа Г подразделяют на три марки (I, II, III), а типа Д - на две (II и III). Для приготовления асфальтобетонных смесей типа Г марок I и II используют дробленый песок и отсевы продуктов дробления изверженных пород, прочность на сжатие которых не ниже 100 МПа для марки I и 80 МПа - для марки II. Асфальтобетонные смеси марки III приготовляют из горных пород прочностью не менее 60 МПа.

Минеральный порошок для приготовления плотных горячих асфальтобетонных смесей получают помолом известняка прочностью 50-60 МПа. В асфальтобетонных смесях марок II и III допустимо применение минерального порошка, получаемого помолом основных металлургических шлаков, а в смесях марки III - порошковых отходов промышленности.

В качестве вяжущего материала, используемого в смесях, укладываемых в Москве, применяют вязкие битумы типов БНД 60/90 и БНД 90/130 по ГОСТ 22245-90. Рекомендуемое содержание битума (% по массе) в высокоплотных смесях - 4,0-6,0; смесях типов А - 4,5-6,0; Б - 5,0-6,5; В - 6,0-7,0; Г и Д - 6,0-9,0. При использовании более вязких битумов возрастает прочность и жесткость асфальтобетонных покрытий, менее вязкие битумы увеличивают устойчивость покрытий при низкой температуре. Введение в битум полимеров (дивинилстирольных или бутадиенстирольных термоэластопластов) и пластификаторов позволяет получить полимерно-битумное вяжущее (ПБВ), стабилизирующее физико-механические свойства асфальтобетона при сезонных перепадах температуры. Полимерно-битумные вяжущие для асфальтобетонных смесей должны соответствовать требованиям ОСТ 218.010-98.

Вяжущие полимерно-битумные дорожные на основе блоксополимеров типа СБС

В табл. 3.1 и 3.2 приведены показатели свойств асфальтобетонов верхних слоев дорожных покрытий для климатических условий г. Москвы.

Пористость минеральной части асфальтобетонов должна быть не более: высокоплотных - 16 %, плотных типов: А и Б - 19 %; В, Г и Д - 22 %.

Для проверки соответствия качества смесей требованиям стандарта [10] проводят приемосдаточные и периодические испытания.

При приемосдаточных испытаниях отбирают в соответствии с ГОСТ 12801-84 одну пробу от партии (партией считают количество смеси одного состава, выпускаемое на одной установке в течение смены, но не более 600 т) и определяют: температуру смеси, зерновой состав минеральной части, водонасыщение, прочность при сжатии при температуре 50, 20 °С и водостойкость. Периодический контроль, осуществляемый не реже одного раза в месяц, а также при изменении материалов, включает: определение пористости минеральной части, остаточной пористости, водостойкости при длительном водонасыщении, прочности при температуре 0 °С, сцепление битума с минеральной частью смесей.

Таблица 3.1

Физико-механические свойства высокоплотных и плотных асфальтобетонов

Наименование показателя

Значение для асфальтобетона марки

I

II

III

1

2

3

4

Предел прочности при сжатии при температуре 50 °С, МПа, не менее, для асфальтобетонов:

высокоплотных

1,1

-

-

плотных типов:

А

1,0

0,9

-

Б

1,2

1,0

 

В

-

1,2

1,1

Г

1,3

1,2

1,1

Д

-

1,3

1,1

Предел прочности при сжатии при температуре 20 °С, для асфальтобетонов всех типов, МПа, не менее

2,5

2,2

2,0

Предел прочности при сжатии при температуре 0 °С, для асфальтобетонов всех типов, МПа, не менее

11,0

12,0

12,0

Водостойкость, не менее:

плотных асфальтобетонов

0,9

0,85

0,75

высокоплотных асфальтобетонов

0,95

-

-

плотных асфальтобетонов при длительном водонасыщении

0,85

0,75

0,65

высокоплотных асфальтобетонов при длительном водонасыщении

0,9

-

-

Таблица 3.2

Водонасыщение (% по объему) высокоплотных и плотных асфальтобетонов

Вид и тип асфальтобетонов

Значение для

образцов, отформованных из смеси

вырубок и кернов готового покрытия, не более

Высокоплотные

от 1,0 до 2,5

3,0

Плотные типов: А

от 2,0 до 5,0

5,0

Б, В и Г

от 1,5 до 4,0

4,5

Д

от 1,0 до 4,0

4,0

На каждую партию отгруженной смеси потребителю выдают документ о качестве, в котором указывают результаты приемосдаточных и периодических испытаний, в том числе: наименование изготовителя; номер и дату выдачи документа; наименование и адрес потребителя; вид, тип и марку смеси; массу смеси, а также результаты оценки водонасыщения; водостойкости, в том числе при длительном водонасыщении: прочности при сжатии при 50 и 0 °С; остаточной пористости асфальтобетона и пористости минеральной части смеси. В соответствии с требованиями стандарта [10] должна быть указана удельная эффективная активность естественных радионуклидов.

При отгрузке смеси потребителю каждый автомобиль сопровождают транспортной документацией, в которой указывают: наименование предприятия-изготовителя; адрес и наименование потребителя; дату изготовления; время выпуска из смесителя; температуру отгружаемой смеси; тип и количество смеси.

Потребитель имеет право проводить контрольную проверку соответствия смесей требованиям ГОСТ 9128-97. Для этого отбирают по 9 проб от каждой партии непосредственно из кузовов автомобилей-самосвалов. Пробы не смешивают и испытывают сначала три пробы. При получении положительных результатов испытаний остальные пробы не испытывают. При получении неудовлетворительных результатов испытаний хотя бы одной пробы проводят испытания оставшихся проб. В случае неудовлетворительных результатов испытаний одной пробы из шести партию бракуют.

3.2. Литые асфальтобетонные смеси

Литые асфальтобетонные смеси отличаются от рассмотренных в предыдущем разделе горячих смесей повышенным содержанием и большей вязкостью битума, повышенным количеством минерального порошка, более высокой (210-230 °С) температурой при их приготовлении и укладке. Каменные материалы в литом асфальтобетоне не образуют каркас из взаимно соприкасающихся зерен, поэтому данный ремонтный материал приобретает требуемую плотность без дополнительного уплотнения. Ремонтные работы с использованием литых смесей можно выполнять при температуре воздуха до -10 °С. Особенностью технологии производства работ является необходимость непрерывного перемешивания и подогрева литой смеси при ее транспортировании к месту укладки.

В соответствии с ТУ 400-24-158-9-80 [12] литые смеси подразделяют на пять типов (табл. 3.3), отличающихся размерами и массовой долей заполнителя в смеси, массовой долей асфальтового вяжущего вещества (смеси битума и минерального порошка) и, следовательно, назначением каждого типа.

Таблица 3.3

Классификация литых асфальтобетонных смесей

Основные классификационные особенности смеси

Назначение смеси

Тип смеси

Максимальный размер щебня, мм

Массовая доля, %

Битум / Минеральный порошок

зерен более 5 мм

асфальтовяжущего вещества

I

15

45-55

25-30

0,35-0,45

Новое строительство и капитальный ремонт проезжей части

II

20

35-50

20-25

0,40-0,55

III

40

45-65

15-20

0,50-0,65

IV

5

-

17-23

0,40-0,65

Покрытие тротуаров

V

20

35-50

22-28

0,55-0,75

Текущий ремонт дорожных покрытий

В дальнейшем будут рассмотрены показатели литой смеси типа V, рекомендуемой для использования при текущем ремонте асфальтобетонных покрытий.

Требования к каменным материалам литой смеси для текущего ремонта не ниже, чем к аналогичным материалам горячих смесей (раздел 3.1) типа В II марки. Рекомендуемая марка битума - БНД 60/90.

Ниже приведены показатели физико-механических свойств литого асфальтобетона типа V по нормам [12]: пористость минерального состава, % по объему не более 22; водонасыщение, % по объему, не более 0,5; подвижность смеси при - 200 °С, не менее 30; глубина вдавливания штамма при температуре 40 °С, мм, пределах 1-10.

Приемку смеси производят партиями. Размер партии устанавливается в количестве 2-сменной выработки одной смесительной установки при постоянном составе, изготовляемого из одних и тех же материалов и по одной и той же технологии.

Для проверки соответствия физико-механических свойств литого асфальтобетона требованиям ТУ 400-24-158-9-80 [12] пробы отбирают в момент выгрузки смеси из смесителя в транспортные средства. Потребитель имеет право производить контрольную проверку качества смеси, применяя для этой цели правила отбора и отбраковки в соответствии с ГОСТ 12801-84 и методы испытаний, предусмотренные настоящими техническими условиями.

При отгрузке потребителю предприятие-изготовитель обязано каждую транспортную единицу, доставляющую смесь к месту работы, сопровождать накладной (паспортом), в котором должны быть указаны: наименование предприятия-изготовителя; тип и температура смеси; номер, дата и время выдачи накладной; наименование и адрес потребителя.

3.3. Холодные органо-минеральные смеси

Органо-минеральная смесь дорожная ремонтная [15] (в дальнейшем - смесь) - продукт механического объединения взятых в определенных соотношениях минерального материала и вяжущего, специально приготовляемого на основе битума. Смесь приготавливается в мешалках периодического действия смесительных установок асфальтобетонных заводов. Вяжущее приготовляется в отдельной емкости с устройством для дозирования и перемешивания компонентов. Консистенция готовой смеси позволяет производить транспортирование ее автомобильным транспортом, укладку - вручную и уплотнение - колесами движущегося транспорта.

В уплотненном состоянии смесь образует искусственный строительный конгломерат, обладающий высокими эксплуатационными свойствами в части теплоустойчивости и сопротивления динамическим усилиям при годовых перепадах температуры.

Основные показатели смесей приведены в табл. 3.4, физико-механические свойства - в табл. 3.8.

Таблица 3.4

Показатели органо-минеральных ремонтных смесей

Марка смеси

Основные классификационные особенности смеси

Марка вяжущего

Минеральная часть

Массовая доля вяжущего, %

Период использования

d наибольший, мм

d наименьший, мм

I

В-1

10(8)

3

4,5-6,0

При температуре воздуха выше 5 °С

II

В-2

10

3(5)

4,0-5,5

Зимнее время

Вяжущее для приготовления смесей составляется из нефтяного битума, растворителя и модифицирующей добавки.

Для приготовления вяжущего должны применяться битумы нефтяные дорожные вязкие по ГОСТ 22245-90. Марка битума принимается в зависимости от марки вяжущего в соответствии с табл. 3.5.

В качестве растворителя для приготовления вяжущего используется моторное дизельное масло городское с улучшенными экологическими свойствами по ТУ 38-401-58-170-96.

Таблица 3.5

Рекомендуемые марки битума

Марка вяжущего

Марка применяемого битума

В-1

БНД 60/90

В-2

БНД 90/130, БНД 130/200

Модифицирующая добавка, являющаяся ноу-хау фирмы изготовителя, должна иметь сертификат качества, гарантирующий постоянство ее физико-химических свойств и соответствие медико-санитарным и экологическим требованиям. Соотношение названных компонентов вяжущего определяется вязкостью принятого битума и маркой смеси. Готовое вяжущее должно отвечать требованиям, представленным в табл. 3.6.

Таблица 3.6

Свойства комплексного вяжущего

Показатели свойств

Ед. изм.

Значения показателей свойств вяжущего для марок

В-1

В-2

Условная вязкость по вискозиметру с отверстием 5 мм при 60 °С, не более

с

45

35

Температура вспышки, не ниже

°С

210

170

Испытание на сцепление с мрамором

-

Выдерживает в соответствии с контрольным образцом

Минеральную часть смесей составляет щебень фракции 3-10 мм или 3-8 мм. Для смесей марки II может быть использован щебень фракции 5-10 мм. Для оптимизации структуры минерального остова смесей (в плотном теле) рекомендуется использовать щебень, зерновой состав которого укладывается в пределы, определяемые по табл. 3.7.

Таблица 3.7

Зерновой состав минеральной смеси

Массовая доля, % зерен минерального материала мельче, мм

10

5

3(2,5)

10-95

55-40

10-0

В смесях должен использоваться щебень, получаемый дроблением естественных горных пород по ГОСТ 8267-93, изверженных или метаморфических, с маркой по прочности при раздавливании в цилиндре не ниже "1000". Может быть использован щебень из гравия с маркой не ниже "800". Марка по морозостойкости для щебня всех видов должна быть не ниже F50.

Испытание смесей производится по ГОСТ 12801-84, определение подвижности смеси - по ТУ 400-24-158-9-80, но при температуре 20±2 °С.

Таблица 3.8

Физико-механические свойства органо-минеральных смесей

Наименование показателей

Ед. изм.

Нормативные значения для смесей марок:

I

II

Водонасыщение

% объема

7-10

7-9

Набухание, не более

-"-

1,4

1,2

Остаточная пористость

-"-

8-12

8-11

Пористость минерального остова, не более

-"-

24

26

Прочность при сжатии при температуре +20 °С, не менее

МПа

1,7

1,5

Коэффициент водостойкости, не менее

-

0,85

0,80

Слеживаемость

-

не более 10 по числу ударов

Подвижность, не менее

мм

12

16

При выпуске из асфальтосмесительной установки температура смеси I марки должна находиться в пределах 110-120 °С, II марки - 80-100 °С.

Хранение смесей I марки может осуществляться навалом на открытой площадке. Длительное хранение смесей марки II требует устройства крытой площадки. Возможно порционное затаривание смеси в полиэтиленовые емкости и мешки.

3.4. Литые эмульсионно-минеральные смеси

Литые эмульсионно-минеральные смеси (ЛЭМС), называемые также "сларри-сил" (США, скандинавские страны), "шлам" (Германия), "битумный ил" (Франция), готовят с использованием катионных эмульсий в мобильных установках непосредственно перед укладкой на дорожное покрытие (рис. 6.1 в разделе 6).

При использовании катионных эмульсий используется их свойство самопроизвольно распадаться при соприкосновении с поверхностью каменного материала и, благодаря одновременной абсорбции эмульгатора, вытеснять воду с этой поверхности. Вследствие распада эмульсии происходит быстрый (обычно в течение одного часа) переход от жидкого состояния к образованию твердого слоя. Естественное уплотнение без использования уплотняющих средств происходит за счет отделения воды и уменьшения объемов вяжущего. При этом происходит образование шероховатости зернами минерального материала, выступающими над поверхностью слоя. Коэффициент сцепления при добавках дробленого песка достигает 0,60-0,65.

Классификация эмульсионно-минеральных смесей приведена в табл. 3.9.

Показатели физико-механических свойств смесей должны соответствовать требованиям ТУ 5718-001-53737504-00 [14]. Время до потери подвижности не должно превышать 180 секунд для смесей вида А и 120 секунд для смесей вида Б, до открытия движения - соответственно 24 часа и 1 час. Следовательно, на эксплуатируемых дорожных покрытиях с учетом специфики организации ремонтных работ допускается использовать только смеси вида Б.

Таблица 3.9

Классификация эмульсионно-минеральных смесей

Тип смеси

Максимальная крупность зерен, мм

Назначение смеси, вида

А

Б

I

25

Места парковок, внутриквартальные проезды

 

II

5

Внутриквартальные проезды

Внутриквартальные проезды

III

10

Магистральные улицы и дороги

Магистральные улицы и дороги, ликвидация колееобразований

При приготовлении смесей следует использовать отсевы дробления щебня кубовидной формы из трудношлифуемых изверженных и метаморфических горных пород и дробленые пески из изверженных горных пород.

Ниже приведены основные показатели физико-механических свойств каменного материала:

- содержание пылеватых и глинистых частиц, не более, %

0,5

- марка каменного материала по дробимости, не менее

1000

- марка по истираемости

И-1

- марка по морозостойкости

F 50

Рекомендуемые зерновые составы приведены в табл. 3.10.

Таблица 3.10

Зерновые составы минеральной части смесей

Тип смеси

Количество частиц, % по массе, мельче данного размера, мм

10

5

2,5

1,25

0,63

0,315

0,14

0,071

I

100

100

90-100

65-90

40-65

25-42

15-30

10-20

II

100

90-100

65-90

45-70

30-50

18-30

10-21

5-15

III

100

70-90

45-70

28-50

19-34

12-25

7-18

5-15

Ориентировочной состав катионной битумной эмульсии:

- битум нефтяной дорожный, не менее, %

60;

- эмульгатор типа "Redicote", %

0,8-2,0;

- стабилизатор СаС12, не более, %

0,4;

- кислота НСl, % (до рН 2-5)

2-5;

- латекс, не менее, %

3;

Для регулирования времени распада эмульсии и консистенции смеси применяют портландцемент (ГОСТ 10178-85) или молотую гашеную известь (ГОСТ 9179-77).

В качестве регулятора скорости распада используют хлористые или уксуснокислые соли моноаминов, полиаминов, амидоаминов, четвертичные соли аммония и другие по техническим условиям заводов-изготовителей.

3.5 Дорожные мастики

Материал для заделки трещин должен образовывать упругий шарнир между расчлененным слоем асфальтобетона, препятствуя тем самым дальнейшему разрушению их кромок при воздействии транспортной нагрузки, а также надежно герметизировать трещины с целью защиты слоев дорожной одежды от агрессивных климатических факторов.

Используемые в Москве битумные мастики горячего применения получают, как правило, путем введения в битум полимеров, пластификаторов, катионоактивных адгезионных присадок, резиновой крошки и, в ряде случаев, минерального наполнителя.

Одним из основных показателей свойств данного ремонтного материала следует считать его теплоустойчивость - сохранение защитных свойств при максимально возможной температуре асфальтобетона в дорожном покрытии (на магистралях Москвы - до 70 °С). Этот показатель характеризуется температурой размягчения по "кольцу и шару" (ГОСТ 11506-73). Битумы, имеющие в среднем температуру размягчения 50 °С, по указанной выше причине не применимы для данного вида ремонтных работ.

Другим важным показателем мастики для заделки трещин является ее эластичность, характеризующая стойкость к динамическим нагрузкам от движущегося транспорта. Деформационная способность, как при максимальной, так и при минимальной температуре, характеризует срок службы мастики в покрытии.

Требуемая теплоустойчивость мастики может быть достигнута путем введения добавок таких полимеров, как полипропилен, полиэтилен, полистирол и др. В то же время, наряду с повышением температуры размягчения у таких композиций отмечается снижение эластичности и уменьшение деформативности при низкой температуре. Поэтому для комплексного улучшения свойств мастик (теплоустойчивости, деформативности и эластичности) целесообразно использовать добавки эластомеров - "Кратона D" [16] или бутадиенстирольного термоэластопласта линейной структуры [13].

Теплоустойчивость мастик на основе эластомеров повышается при введении в их состав тонкодисперсных минеральных наполнителей, чаще всего доломитовых или известняковых минеральных порошков (ГОСТ 16557-78), структурирующих битум.

В холодное время года работоспособность мастики зависит от температуры хрупкости (ГОСТ 11507-78). Повышение деформативности и эластичности композиций на основе дробленой резины и каучуков при низкой температуре может быть достигнуто путем введения пластификаторов, чаще всего индустриального масла типа И-40А.

При подборе составов мастик необходимо также учитывать их технологические показатели - вязкость, температуру при его заливке в трещины, температуру вспышки.

Требования к основным показателям дорожных мастик, используемых в Москве [13, 16], приведены в табл. 3.11.

Таблица 3.11

Показатели свойств дорожных мастик

Показатели

Нормативные значения для мастик

Метод определения

Битумно-полимерной (каучуковой)

Полимер-битумной

Температура размягчения, °С, не ниже

70

70

ГОСТ 11506-73

Глубина проникания иглы, мм, не менее, при температуре:

25 °С

20

20

ГОСТ 11501-78

0 °С

7

-

ГОСТ 11501-78

Температура хрупкости, °С, не выше

-25

-20

ГОСТ 11507-78

Технологичность (текучесть) при температуре 160 °С, не более, с

100

100

ТУ [13, 16]

Показатель однородности, %

5

-

ТУ [13]

Температура прилипания к пневматикам, °С

50

-

ТУ [13]

В соответствии с рекомендациями [4, 13, 21] битумно-полимерную (каучуковую) мастику целесообразно использовать на магистралях высших категорий с интенсивностью движения свыше 2000 авт./час. На других объектах улично-дорожной сети необходимой работоспособностью обладает полимер-битумная мастика.

Дорожные мастики поставляются по согласованию с потребителем в упаковке или в обогреваемых транспортных средствах, например, в битумных котлах - "кохерах". На каждое транспортное средство или тарное место выдается накладная с указанием предприятия-изготовителя, ТУ, по которому изготовлена мастика, номера партии и даты изготовления, массы нетто, адреса потребителя.

Мастика принимается партиями массой не более 10 т. В паспорте каждой партии, кроме сведений, приводимых в товарно-транспортной накладной, должны быть указаны результаты проведенных испытаний или подтверждение соответствия показателей свойств мастики требованиям технических условий (табл. 3.11).

Приемо-сдаточные испытания выполняют при отборе трех проб от каждой партии. При получении неудовлетворительных результатов даже по одному показателю первой пробы проводят испытания следующей пробы, результаты которых являются окончательными. Однородность битумно-полимерной (каучуковой) мастики оценивают по отклонениям в значениях показателя температуры размягчения в трех отобранных пробах. Температуру прилипания мастики и пневматику следует оценивать только при производстве ремонтных работ на участках с возможной статической транспортной нагрузкой (стоянки, остановки общественного транспорта и т.п.)

3.6. Камни бортовые

Бортовой камень является конструктивным элементом сопряжения проезжей части с тротуарами, разделительными полосами и газонами (раздел 1.1). Гранитный бортовой камень (ГОСТ 6666-81) устанавливают только на магистральных улицах общегородского значения, бетонный и железобетонный бортовой камень (ГОСТ 6665-91) - на улицах и дорогах всех категорий.

Гранитный бортовой камень может иметь прямоугольную форму (тип ГП) и криволинейное очертания (тип ГК). Длина бортового камня находится в пределах 700-2000 мм. Размеры в поперечном сечении бордового камня приведены в табл. 3.12.

Таблица 3.12

Размеры гранитных бортовых камней, мм

Марка

Высота

Ширина

1 ГП

300

150

2 ГП

400

180

3 ГП

600

200

4 ГП

200

100

5 ГП

200

80

ГПВ

200

150

ГК-5

300

150

ГК-8

300

150

У бортовых камней из горных пород обрабатывают чистой теской верхнюю лицевую горизонтальную грань по всей ширине, видимую часть лицевой вертикальной грани, полоску шириной 20 мм по кромке тыльной вертикальной грани и по краям торцовых граней. Допустимые отклонения в размерах бортовых камней из горных пород указаны в табл. 3.13.

Амплитуда неровностей на видимой поверхности не должна превышать 20 мм. Марка горных пород, из которых изготавливают бортовой камень, по прочности должна быть не менее M1200, по морозостойкости - не менее F100. Водопоглощение должно составлять не более 1 %.

Таблица 3.13

Допустимые отклонения в размерах бортовых камней из горных пород

Камни

Величина отклонения, мм

По высоте камня

По ширине горизонтальной линии

По правильности плоскости (просвет под линейкой или шаблоном) прямоугольности (просвет под угольником)

верхней

нижней

Прямые рядовые, прямые въездные, криволинейные, угловые высотой 300 мм

10

2

30

1

Прямые рядовые высотой 450 и 600 мм

20

2

30

2

Прямые рядовые и угловые шириной 100 мм

20

3

20

2

Прямые рядовые с верхней обработанной гранью

20

10

20

1

Ниже указано назначение наиболее распространенных марок бетонного и железобетонного бортового камня [11]:

- отделение проезжей магистральных улиц от тротуаров, газонов, площадок общественного транспорта - БР 100.30.18, БР 300.30.18:

- отделение проезжей части дорог от тротуаров на съездах, в тоннелях и 07 распределительных полос - БР 300.45.18;

- отделение проезжей части дорог от тротуаров на мостах - БР 300.60.20;

- отделение проезжей части внутриквартальных проездов от тротуаров и газонов - БР 100.30.15.

В условном обозначении марок камней буквы и цифры означают: первая группа из двух букв - тип камней; последующие группы цифр - длину, высоту и ширину камней в сантиметрах. В обозначении марок криволинейных камней после первой группы букв указывается радиус кривой в метрах.

Пример условного обозначения марки камня типа БР (прямого рядового) длиной 1000 мм, высотой 300 мм и шириной 180 мм: БР 100.30.18.

Бетон для изготовления бортового камня должен иметь марку по прочности на сжатие В 30 и на растяжение при изгибе - В 4.0. Отпускная прочность бетона должна быть не менее 100 % проектной марки на сжатие. Марка бетона по морозостойкости для климатических условий Москвы - F200. Для камней высшей категории качества морозостойкость должна быть на 50 циклов выше указанной.

Борт принимают партиями, в которые входят конструкции одного и того же типа, выполненные по одной технологии и из тех же материалов. Объем партии назначают равным суточной выработке технологической линии. Фактические размеры не должны отклоняться от проектных: по длине 6 мм (при длине борта до 1000 мм) и 10 мм (при длине борта до 3000 мм); по высоте 4 мм (при высоте 200-300 мм) и 5 мм (при высоте 450-600 мм); по ширине верхнего борта 3 мм и его фаске 2 мм. Отклонения от перпендикулярности боковых (торцевых) граней и продольных лицевых поверхностей допускаются до 2 мм.

На лицевой поверхности борта не должно быть: раковин диаметром более 6 мм и глубиной более 3 мм; местных наплывов бетона и впадин глубже 3 мм; околов бетона глубиной более 5 мм и длиной более 50 мм на 1 м ребра: расслоения бетона и обнажения арматуры; трещин, за исключением усадочных шириной до 0,1 мм; жировых и ржавых пятен. У борта высшей категории качества на поверхности не допустимы раковины диаметром более 5 мм и глубиной более 2 мм, а также околы на лицевой поверхности.

4. Организация и технология ремонтных работ

4.1. Сроки производства ремонтных работ

Ремонт дорожных покрытий подразделяют на плановый, в том числе предупредительный, и аварийный. Аварийный ремонт выполняют в течение всего года при таких разрушениях дорожных покрытий, которые могут быть причиной дорожно-транспортных происшествий (раздел 2). Плановый ремонт производят в строительный сезон, продолжительность которого зависит от вида используемого ремонтного материала. Оптимальные условия для проведения ремонтных работ установлены с учетом требований нормативных документов [4, 8, 10, 12-20] в зависимости от температуры окружающего воздуха (табл. 4.1).

Таблица 4.1

Допускаемая температура окружающего воздуха при производстве ремонтных работ

Вид ремонтных работ

Среднесуточная температура, при которой допускают производство данных работ

Аварийный ремонт с использованием литых асфальтобетонных смесей

При любой температуре

Аварийный и текущий ремонт с использованием холодных органоминеральных смесей

Не ниже -10 °С

Аварийный ремонт с использованием горячих асфальтобетонных смесей

Не ниже 0 °С, с соблюдением требований п. СНиП 3.06.03-85 /8/

Текущий ремонт с использованием литых асфальтобетонных смесей

Не ниже -10 °С

Текущий ремонт покрытий с использованием горячих асфальтобетонных смесей; заделка трещин

Не ниже +5 °С весной

+ 10 °С осенью

Укладка защитных слоев

Не ниже + 15 °С

Для ориентировочного установления начала и окончания конкретного вид ремонтных работ можно пользоваться графиком изменения среднесуточной температуры по данным СНиП А-6.74 "Строительная климатология и геофизика (рис. 4.1).

Рис. 4.1. Климатический график для установления сроков производства работ.

Следует учитывать, что ремонтные работы, за исключением работ с использованием холодных органо-минеральных смесей, затруднены в дождливые дни (при сумме осадков за день более 5 мм).

4.2. Подготовительные работы

При ремонте большими картами геометрические параметры нижележащего слоя должны соответствовать требованиям СНиП 3.06.03-85, состояние бортового камня - требованиям ГОСТ Р 50597-93.

Примеры назначения конкретных видов работ при подготовке к ремонту большими картами приведены в разделе 2.3.

При текущем ремонте на площадях до 200 м2 контуры намеченных к ремонту карт размечают прямыми линиями, параллельными и перпендикулярными оси проезжей части, захватывая неповрежденное покрытие на ширину до 5 см. Разрушенные места, находящиеся на расстоянии до 0,5 м друг от друга, объединяют в общую карту. Вырубка карт проводится на толщину разрушенного слоя покрытия (но не менее 4 см) по всей зоне ремонта.

При использовании в качестве ведущей машины компрессора вырубку поврежденного покрытия выполняют по очерченному контуру отбойным молотком, оснащенным наконечником в виде лопатки. Стенки кромок должны быть вертикальными. Более высокое качество работ обеспечивается при использовании дисковых фрез. Вырубленные куски асфальтобетона удаляют за пределы карты в зоне ремонтных работ таким образом, чтобы они не мешали выполнению последующих операций.

Таблица 4.2

Требования при приемке нижележащего слоя ([8], Приложение 2, пункт 5)

Контролируемый параметр

Конструктивный элемент

Допуски при приемке

Поперечный уклон

Все виды слоев

Не более 10 % результатов определений могут иметь отклонения от проектных значений от -0,015 до +0,030, остальные - до +0,010

Ровность (просвет под трехметровой рейкой)

Основания щебеночные и из тощего бетона

Не более 5 % результатов определений могут иметь значения просветов в пределах до 20 мм, остальные - до 10 мм

Нижележащие слои из асфальтобетона и монолитного цементобетона

Не более 5 % результатов определений могут иметь значения просветов в пределах до 10 мм, остальные - до 5 мм

Разница в уровне поверхности швах

Монолитные цементобетонные основания

Не более 20 % результатов определений могут иметь значения в пределах до 10мм, остальные - до 3 мм

Превышение граней смежных плит

Сборные цементобетонные основания

Не более 20 % результатов определений могут иметь значения в пределах до 10 мм, остальные - до 5 мм

По окончании работ кусковый асфальтобетон должен быть отправлен на переработку (АБЗ-4 "Капотня" или АБЗ-1). Несанкционированное складирование отходов на покрытии или газонах должно быть исключено.

Подготовленные карты очищают от пыли и мусора сжатым воздухом. При использовании в качестве ведущих машин холодных фрез удаление асфальтобетона производится наклонным погрузочным конвейером.

Требуемые глубины фрезерования и поперечный уклон устанавливают путем опускания фрезерного барабана с помощью гидропривода. Контроль установки фрезерного барабана осуществляется по шкалам индикаторов его левого и правого краев на пульте управления.

Фрезерование выполняют по направлению движения, при этом край фрезы должен проходить по очерченному контуру. При ширине контура больше ширины фрезерного валика выполняют два прохода по левому и правому контуру карты. Второй проход фрезы выполняют после возращения фрезы задним ходом к началу фрезеруемого участка.

Скорость фрезерования устанавливают в зависимости от толщины снимаемого слоя и свойств асфальтобетона.

Кромки карты (по ходу) в начале и конце участка фрезерования обрубают с использованием компрессорного оборудования.

Фрезерование асфальтобетонного покрытия вдоль бортового камня (полосу шириной 50 см), вокруг колодцев, решеток механизированным способом можно выполнять только при наличии фрезы с откидным, опорным колесом.

При использовании фрез с погрузочным конвейером отфрезерованный материал непосредственно погружается в кузов автомобиля-самосвала. При отсутствии погрузочного конвейера очистку карты выполняют вручную, или отфрезерованный материал с помощью автогрейдера формируют в вал. Погрузка материала в автомобиль-самосвал производится с помощью фронтального погрузчика.

В местах, не доступных для работы фрез, разломку выполняют с использованием компрессора.

Окончательная чистка карты осуществляется с помощью лопат и сжатого воздуха, при больших объемах работ - с помощью поливомоечных или подметально-уборочных машин.

Перед началом укладки асфальтобетонной смеси нижележащий слой обрабатывают (подгрунтовывают) органическим вяжущим: битумной эмульсией, жидким или вязким битумом. Предпочтение следует отдавать маловязким вяжущим (битумной эмульсии и жидкому битуму), обеспечивающим образование более равномерной пленки на поверхности и лучшее сцепление слоев. Разлив вяжущего производят автогудронаторами на ширину укладываемой полосы

Для подгрунтовки 1 м2 слоя из необрабатываемых минеральных материалов расходуется 0,5-0,8 л битума, а слоя из асфальтобетона - 0,2-0,3 л. Если в тех же условиях применяется 60 %-ная битумная эмульсия, то ее расход соответственно составляет 0,6-0,9 и 0,3-0,4 л.

Рабочие органы автогудронатора - битумный насос, распределительные трубы к сопла - должны быть отрегулированы таким образом, чтобы обеспечить равномерный, без пропусков, розлив вяжущего и заданный расход на единицу площади покрытия. Не следует оставлять в автогудронаторе на длительный срок не разлитое вяжущее, так как застывая, оно образует пробки в распределительных и циркуляционных трубках.

Длина участка разлива вяжущего равна длине захватки. Ее границы обозначают вешками, по которым ориентируется машинист автогудронатора. В начале или конце разлива, т.е. в период набора автогудронатором нормальной рабочей скорости или торможения перед установкой, могут получаться пропуски отдельных полос или, наоборот, битум разливается в избыточном количестве. Чтобы избежать этого, концы участков на протяжении 2-3 м закрывают плотной бумагой, толем, полиэтиленовой пленкой. Скорость автогудронатора и количество разливаемого вяжущего регулируют на этих защищенных участках. После окончания разлива эти материалы убирают с покрытия. Чтобы уменьшить растекание вяжущего на поверхности покрытия (при продольных уклонах более 20 %), разливают вяжущее при движении автогудронатора вверх по уклону.

При ремонте малыми картами с использованием ремонтеров типа АМКО-ДОР-80281 и автогудронаторов, оснащенных ручными распределителями [22], нагрев и распределение битума по основанию карт осуществляется механизированным способом. Стенки карт обмазывают кистью. При отсутствии средств механизации битум нагревают в передвижных битумных котлах, распределяют вяжущее по основанию карт с помощью лейки.

Допускается не производить обработку чистого нижележащего слоя из асфальтобетона при отсутствии движения транспорта до укладки смеси.

Ремонт и восстановление бортового камня включает следующие операции: инструментальную разбивку; подготовку земляного полотна; подготовку бортовых камней к установке; установку опалубки; устройство цементе бетонного основания; установку бортовых камней; укладку цементобетона в опалубку; заделку и расшивку швов.

При установке длинномерных бортовых камней монолитное цементобетонное основание не устраивается.

Схема установки бортового камня представлена на рис. 4.2.

Бортовые камни устанавливаются при помощи специальных машин или чаще всего, вручную с применением приспособлений, представленных на рис 4.3.

Рис. 4.2. Схема установки бортового камня: 1 - опалубка; 2 - бетонное основание под бортовой камень; 3 - участок до бетонирования; 4 - бортовой камень; 5 - песчаный подстилающий слой.

Рис. 4.3. Схемы приспособлений для установки бортовых камней.

Перед установкой бортовых камней длиной 1 м по тщательно выровненному и уплотненному земляному полотну распределяют песчаный подстилающий Слой толщиной 10 см, по которому устраивают бетонное основание толщиной 10 см (подушку). Установку бортовых камней производят по шнуру, натянутому между специальными металлическими штырями на высоте, соответствующей отметке верхней кромки камней. С двух сторон бортового камня устраивают бетонную обойму высотой 10 см в деревянной или металлической опалубке. Длинномерные бортовые камки длиной 3 и 6 м устанавливают непосредственно на песчаное основание или основание дорожной одежды, предусмотренное проектом, под стыками камней укладывают бетонные подкладки. Установку камней производят автокранами грузоподъемностью 3 т или автопогрузчиками.

Рис. 4.4. Схема заделки шва между бортовыми камнями: 1 - бортовой камень, 2 - цементный раствор состава 1:4; 3 - цементный раствор состава 1:2; 4 - верхний слой дорожного покрытия.

Бетонные подкладки, укладываемые под стыки длинномерных камней заподлицо с песчаным основанием, изготовляют из бетона М300 размером 40×20×10 см.

Ширина швов между бортовыми камнями не должна превышать 5 мм. Отклонения в плане и профиле - также более 5 мм. Заполнение швов производят цементным раствором состава 1:4, после чего расширяют раствором состава 1:2. Схема заделки шва между бортовыми камнями представлена на рис. 4.4.

Перед укладкой асфальтобетонных смесей поверхность бортового камня и обоймы в местах примыкания слоев дорожного покрытия должна быть обработана жидким битумом или битумной эмульсией с указанием расходов.

4.3. Транспортирование и укладка горячих асфальтобетонных смесей

Требуемое качество асфальтобетонных покрытий может быть обеспеченно как при соблюдении технологии производства работ, так и при обеспечении необходимого температурного режима при выполнении всех технологических операций, включая транспортные работы.

ГОСТ 9128-97 [10] регламентирует следующие интервалы температуры смесей при их выгрузке в автомобили-самосвалы.

Таблица 4.3

Температура смеси при отгрузке потребителю

Температура смеси, в °С, в зависимости от показателя битума

Глубины проникания иглы при 25 °С, 0,1 мм

Условной вязкости по вискозиметру с отверстием 5 мм при 60 °С, с

40-60

61-90

91-130

131-200

201-300

131-200

от 150 до 160

от 145 до 155

от 140 до 150

от 130 до 140

от 120 до 130

от 110 до 120

Примечания:

1. При использовании ПАВ и активированных минеральных порошков допускается снижать температуру горячих смесей на 20 °С.

2. Для высокоплотных асфальтобетонов и асфальтобетонов на полимерно-битумных вяжущих допускается увеличивать температуру готовых смесей на 20 °С, соблюдая при этом требования ГОСТ 12.1.005-88 к воздуху рабочей зоны. Перед загрузкой смеси кузов автомобиля-самосвала должен быть очищен и покрыт смазывающим составом, не содержащим нефтяные продукты, например, водной известковой суспензией.

При загрузке автомобиля-самосвала асфальтобетонной смесью за один прием крупный заполнитель будет скатываться по боковой поверхности образующегося конуса по периметру кузова. В результате на дорожном покрытии за асфальтоукладчиком будут появляться участки из расслоившейся смеси каждый раз, когда будет заканчиваться смесь, доставленная одним автомобилем-самосвалом. Для исключения расслоения смеси загрузку необходимо производить как минимум за три приема. Первую порцию (40 % от полной массы смеси) загружают в переднюю часть кузова, вторую (тоже 40 %) - в конец кузова; пространство между ними - оставшейся смесью.

При ремонте большими картами необходимое число автомобилей-самосвалов, подвозящих асфальтобетонную смесь для непрерывной работы асфальтоукладчиков, определяют по формуле:

N = Пy/(m × na),

где: Пу - производительность асфальтоукладчика, т/смену,

Пу = Ту × Кв × b × h × r × V,

где: Ту - продолжительность рабочей смены, час; Кв - коэффициент использования асфальтоукладчика (0,7-0,9); b - ширина укладываемой полосы, м; h - толщина укладываемого слоя, м; r - плотность асфальтобетонной смеси, т/м3; V - рабочая скорость асфальтоукладчика, м/час; m - грузоподъемность автомобиля-самосвала, т; nа - число рейсов, совершаемых одним автомобилем-самосвалом, определяемое по формуле:

na = (Тy х Кв) / ((2L / Vср) + Т1 + Т2)

где: L - дальность перевозки асфальтобетонной смеси, м; Vср - средняя скорость движения автомобиля-самосвала при пробеге в оба конца, м/час; Т1 - продолжительность выгрузки смеси в асфальтоукладчик и маневрирования на месте укладки смеси, час; Т2 - продолжительность загрузки автомобиля-самосвала на асфальтобетонном заводе с учетом ожидания погрузки, час.

При транспортировании асфальтобетонной смеси происходит ее остывание. Скорость остывания смеси зависит от следующих переменных величин: температуры смеси на момент ее изготовления, температуры окружающей среды, скорости ветра, обдувающего смесь, а также эффективности теплоизоляции, защищающей смесь. При транспортировке горячей асфальтобетонной смеси на большие расстояния без защитного полога она покрывается сверху коркой, которая остывает и начинает затвердевать. Тонкая корка является причиной образования комков смеси под плитой асфальтоукладчика и, следовательно, снижения качества уложенного покрытия.

Полог из непромокаемой ткани должен защищать смесь сверху так, чтобы его края закрывали боковые борта и задний борт кузова. Это требование обусловлено тем, что смесь должна быть адекватно защищена от воды и ветра. Полог должен иметь достаточное количество крепежных приспособлений, позволяющих надежно его закрепить, не допуская откидывания покрытия во время доставки смеси. Полог, который не закрывает смесь полностью во время транспортировки, представляет для асфальтобетонной смеси большую опасность, чем его отсутствие, поскольку воздушные струи, попадающие внутрь при движении самосвала, будут ускорять ее остывание. Кроме того, в дождливую погоду вода будет стекать с покрытия внутрь кузова вместо того, чтобы стекать по бокам, как в случае, когда борта закрыты полностью. Перед выгрузкой следует вначале удалить воду с полога, приподняв для этого кузов, и только потом произвести выгрузку смеси в асфальтоукладчик.

Минимально допустимая температура смесей при укладке в зависимости от толщины слоя и температуры воздуха должна соответствовать приведенной в табл. 4.4.

Перед загрузкой смеси стенки приемного бункера должны быть тщательно очищены и смазаны. В случае прилипания смеси к стенкам бункера последняя отделяется от него и перемешивается с горячей смесью, находящейся в бункере. Для обеспечения полного освобождения бункера от смеси предусматривается подъем боковых стенок бункера.

Таблица 4.4

Температурный режим укладки асфальтобетонной смеси

Толщина слоя, см

Минимальная температура смеси в асфальтоукладчике, °С, при температуре воздуха, °С

30

20

15

10

5

0

До 5

5-10

Примечание: Над чертой - при скорости ветра до 6 м/с, под чертой - 6-13 м/с.

Важное значение имеет правильная загрузка бункера асфальтоукладчика асфальтобетонной смесью. Если при загрузке бункера автомобиль подъезжает таким образом, что асфальтоукладчик незначительно отклоняется автомобилем назад, то при этом на асфальтобетонном покрытии образуется небольшое утолщение, которое легко определяется шаблоном. Чтобы этого избежать, автомобиль должен остановиться, не доезжая 0,5 м до асфальтоукладчика. Затем асфальтоукладчик продвигается к автомобилю, пока его направляющие ролики не придут в соприкосновение с задними колесами автомобиля. Важно, чтобы автомобиль стоял точно по оси асфальтоукладчика. При несоблюдении этого требования с асфальтоукладчиком будет соприкасаться лишь одна пара задних колес автомобиля, возникнет боковое смещение, и асфальтоукладчик сдвинется со своего прямолинейного направления. Машинист асфальтоукладчика, пытаясь выровнять движение укладчика с помощью рулевого управления, искривит линию укладки (рис. 4.5).

В процессе выгрузки из автомобиля асфальтобетонной смеси асфальтоукладчик продвигает автомобиль впереди себя до тех пор, пока он полностью не освободится от смеси. При этом необходимо путем регулирования угла наклона кузова автомобиля обеспечивать равномерную загрузку приемного бункера асфальтоукладчика. Нельзя допускать перегрузки приемного бункера или оставлять его пустым. В этом случае необходимо, чтобы машинист асфальтоукладчика при изменении массы смеси в приемном бункере постоянно регулировал подачу топлива в двигатель, чтобы сохранить равномерную скорость укладки.

Рис. 4.5. Неправильное (а) и правильное (б) расположение автомобиля-самосвала по отношению к асфальтоукладчику.

При выгрузке необходимо следить за тем, чтобы смесь не просыпалась на нижележащий слой. Просыпавшуюся смесь следует убрать лопатами, особенно с мест прохода гусениц или колес асфальтоукладчика.

При непродолжительных перерывах в доставке смеси последнюю не рекомендуют полностью вырабатывать из бункера асфальтоукладчика во избежание остывания питателя и затвердения на нем смеси. В этом случае бункер с оставшейся смесью закрывают до возобновления доставки смеси. При длительных перерывах в доставке смеси или в конце смены асфальтоукладчик должен быть освобожден от асфальтобетонной смеси: летом - при перерыве более 30 мин., при пониженных температурах воздуха - более 15 мин. Асфальтоукладчик должен при этом выдвигаться вперед, чтобы обеспечить возможность уплотнения всей уложенной смеси до ее остывания.

Толщина слоя из горячих асфальтобетонных смесей, укладываемых асфальтоукладчиками с трамбующим брусом и пассивной выглаживающей плитой, должна быть больше проектной на 15-20 %, при использовании асфальтоукладчика с трамбующим брусом и виброплитой - на 10-15 %.

Распределение асфальтобетонной смеси производится асфальтоукладчиками при скорости укладки 2-3 км/час (смеси с содержанием щебня более 40 %) и 4-5 км/час (менее 40 % щебня). Уплотняющие рабочие органы работают в режиме: частота оборотов валов трамбующего бруса 1000-1400 об/мин; вала вибратора плиты - 2500-3000 об/мин. Движение асфальтоукладчика начинают, когда заполнено все пространство перед шнеком.

Количество смеси, подаваемое в шнековую камеру, должно быть постоянным, насколько это возможно. Оптимальной считается такая глубина материала в шнековой камере, при которой уровень смеси доходит до середины шнекового вала.

Если в уложенном слое появляются разрывы, трещины, пустоты по краям полосы или поверхность получается неровной, то машинист регулирует скорость движения асфальтоукладчика, следит за тем, чтобы трамбующий брус работал без остановки, а выглаживающая плита периодически прогревалась горелкой.

Сразу после прохода машины асфальтобетонщик 5-го или 4-го разряда проверяет толщину слоя, поперечный уклон. Если толщина слоя смеси не соответствует заданной, то изменяют положение выглаживающей плиты регулировочными винтами. Этими же винтами устраняют отклонения поперечного профиля покрытия от заданного.

Ровность проверяют трехметровой рейкой. Под рейкой, уложенной в любом месте (в продольном и поперечном направлениях), не должно быть просвета. На возвышениях смесь слегка разрыхляют граблями и лопатой и срезают излишки, на впадинах добавляют смесь, рассыпая ее тонким слоем под каток. Места значительных просадок слегка разрыхляют граблями, а затем заполняют горячей смесью.

После распределения смеси асфальтоукладчиком на поверхности покрытия могут образовываться трещины от воздействия выглаживающей плиты. Вследствие расслоения смеси при транспортировании на поверхности могут появляться раковины из-за скопления крупных частиц в одном месте.

Трещины и раковины ликвидируют следующим образом. До того, как недоуплотненное покрытие остыло, рассыпают тонким слоем смесь без щебня. Затем ее разметают метлой, заполняя дефектные места. Избыток смеси удаляют и сразу же уплотняют катками.

Если в полосе укладки встречаются выступающие крышки колодцев, водоприемные решетки, выглаживающая плита асфальтоукладчика должна быть поднята. Укладку смеси на пропущенном месте следует производить вручную путем добавления смеси, взятой из приемного бункера. При установке дождеприемной решетки края должны быть ниже проектной отметки лотка с верховой стороны на 30 мм, а с низовой - на 20 мм; подход к решетке с верховой стороны должен иметь увеличение уклона на 2-3 м, а с низовой - на 0,5 м.

При окончании укладки смеси слой ее клинообразно утончается. При возобновлении работ клинообразная часть слоя обрубается вертикально по рейке или шнуру в направлении, перпендикулярном оси дороги. Толщина покрытия в местах обрубки должна быть не менее проектной. Для образования качественного поперечного стыка в месте обрубки слоя вертикальная грань ранее уложенного слоя смазывается битумной эмульсией, и на это место устанавливается плита асфальтоукладчика. Необходимо, чтобы плита перед началом укладки была прогрета обогревающими устройствами или горячей асфальтобетонной смесью. Другим способом устройства поперечного шва является укладка в поперечном направлении деревянного бруса по толщине равного толщине уплотненного слоя асфальтобетона. Для смягчения толчков от движущегося транспорта перед брусом укладывается клинообразный упор из асфальтобетонной смеси.

На больших картах при работе одним асфальтоукладчиком важное значение для получения качественного покрытия имеет длина хода асфальтоукладчика. Проходя одну полосу, асфальтоукладчик разворачивается или возвращается в исходное положение задним ходом и укладывает следующую смежную полосу. Качественное покрытие получается лишь в том случае, если укладываемая полоса будет примыкать к предыдущей полосе при температуре последней не ниже 70-80 °С. Покрытие в этом случае будет сплошным, бесшовным.

Оптимальную длину хода укладчика ly устанавливают в зависимости от состояния погоды - расчетом или принимают по табл. 4.5.

lу = [(Т0 - Тк) - tр Vос] V1V2/ [(V1 + V2) Vос].

где: Т0 - температура асфальтобетонной смеси в момент укладки, °С:

Тк - низший предел понижения температуры асфальтобетонной смеси, при котором еще обеспечивается качественное сопряжение смежных полос, °С:

tр - продолжительность разворота асфальтоукладчика после окончания укладки полосы, мин;

Vос - интенсивность остывания асфальтобетонной смеси в покрытии, °С/мин;

V1 - скорость рабочего хода асфальтоукладчика, м/мин;

V2 - транспортная скорость асфальтоукладчика, м/мин.

Интенсивность остывания асфальтобетонной смеси в покрытии зависит от толщины слоя, степени предварительного уплотнения покрытия, технологических свойств асфальтобетонной смеси, температуры воздуха, скорости ветра и составляет для неуплотненной смеси 5-6 °С/мин, а для уплотненной смеси - 1 - 1,5 °С/мин.

Таблица 4.5

Длина полосы укладки горячей асфальтобетонной смеси

Температура воздуха, °С

Длина укладываемой полосы, м, при работе

одним асфальтоукладчиком на защищенных от ветра/открытых участках

двумя асфальтоукладчиками

5-10

30-40/25-30

60-70

10-15

40-60/30-50

70-80

15-20

60-80/50-70

80-100

20-25

80-100/70-80

100-150

Более 25

100-150/80-100

150-200

Уложив одну полосу, переходят (по схеме, показанной на рис. 4.6) на соседнюю, пока не остыла кромка ранее уложенного слоя. При такой технологии особое внимание обращают на то, чтобы укладываемые полосы покрытия были сопряженными, а образующиеся продольные швы заделаны. В местах сопряжения добиваются полной однородности фактуры покрытия. В противном случае с этих мест, как правило, начинается разрушение покрытия, главным образом по причине недостаточного уплотнения.

До начала укладки новой полосы вертикальный край ранее уложенного асфальтобетона смазывают тонким слоем битумной эмульсии. При устройстве новой полосы неуплотненную смесь укладывают с таким расчетом, чтобы после уплотнения слой имел такую же толщину, как и ранее устроенная полоса. Несоблюдение в зоне шва этого правила приводит к тому, что смесь в этом месте недоуплотняется, что приводит либо к преждевременному разрушению в связи с повышенным водонасыщением, либо к образованию колеи в результате доуплотнения смеси в процессе движения (рис. 4.7).

Рис. 4.6. Схема перехода асфальтоукладчика с полосы на полосу: 1-22 - номера переходов; сплошными стрелками показан рабочий ход, пунктирными - холостой ход асфальтоукладчика, в кружках - последовательность участков укладки смеси, l - длила укладываемой полосы.

Рис. 4.7. Установка плиты асфальтоукладчика при укладке смежной полосы покрытия (а - правильная, б - неправильная установка плиты). 1 - плита асфальтоукладчика, 2- уровень неуплотненного слоя; 3 - толщина уплотненного слоя; 4 - линия сопряжения полос, 5 - неуплотненный слой второй полосы; 6- впадина вдоль шва, образующаяся под воздействием колес транспортных средств.

Качество покрытия улучшается при использовании одновременно двух асфальтоукладчиков. Количество асфальтоукладчиков зависит от ширины слоя. Асфальтоукладчики двигаются уступом, один за другим на расстоянии 10-30 м. При таком методе работ конструктивный слой укладывают на всю ширину и продольный шов заделывают настолько плотно, что обнаружить его практически не удается.

Организация работ в бригаде по укладке асфальтобетонной смеси. Конструктивные слои из асфальтобетонной смеси укладывают комплексные бригады. При работе с одним асфальтоукладчиком в состав бригады входят машинист асфальтоукладчика 6-го разряда- 1; помощник машиниста 5-го разряда- 1; асфальтобетонщики: 5-го разряда - 1; 4-го разряда - 1; 3-го разряда - 2; 2-го разряда - 2. Количество машинистов катков зависит от типа смеси, ширины укладываемого слоя и выбранной технологии уплотнения.

В начале смены асфальтобетонщики устанавливают ограждения и дорожные знаки, обозначают схему движения автомобилей-самосвалов, подогревают инструменты, в жаровне. Машинист асфальтоукладчика устанавливает его в исходное положение и готовит к работе. Асфальтобетонщик 5-го разряда вместе с машинистом устанавливает выглаживающую плиту в рабочее положение. Для этого под нее укладывают шаблон, толщина которого на 15-20 % больше проектной толщины укладываемого слоя. С помощью регулировочных винтов плиту опускают так, чтобы между ней и шаблоном не осталось просветов. Зафиксировав положение винтов, убирают шаблон.

Машинист осматривает рабочие органы асфальтоукладчика, для чего поднимает боковые стенки приемного бункера, осматривает вал с винтовыми лопастями и трамбующий брус, освобождает их от остатков застывшей смеси, устанавливает шиберные заслонки на задней стенке бункера в положение, обеспечивающее необходимую толщину асфальтобетонной смеси.

С помощью блоков управления автоматическими системами стабилизации угла поперечного уклона и слежения за ровностью покрытия в продольном направлении машинист устанавливает раму рабочих органов в необходимое положение и вводит в контакт щуп слежения со струной.

Асфальтобетонщик 3-го разряда измеряет температуру асфальтобетонной смеси, предварительно визуально определяет ее качество, подает сигнал на подход автомобиля-самосвала с асфальтобетонной смесью.

Если смесь жирная, пережженная, плохо перемешанная (со сгустками битума) или сухая, температура смеси ниже допускаемой, то ее не укладывают, а отправляют по указанию мастера участка на завод.

Автомобиль-самосвал задним ходом подают к месту выгрузки смеси в бункер асфальтоукладчика. Чтобы облегчить выгрузку смеси, к раме бункера асфальтоукладчика приваривают стойку с короткой цепью. Перед выгрузкой смеси асфальтобетонщик надевает звено цепи на нижний крючок заднего борта автомобиля-самосвала. При подъеме кузова натянувшаяся цепь открывает задний борт без помощи рабочего. Во время разгрузки смеси асфальтоукладчик толкает перед собой автомобиль-самосвал. При этом передача от двигателя автомобиля-самосвала к его ведущей оси должна быть выключена. Асфальтобетонщик очищает кузов автомобиля-самосвала от остатков смеси лопатой с удлиненной ручкой, снимает цепь с борта и подает сигнал на отход автомобиля-самосвала.

Скорость передвижения асфальтоукладчика машинист устанавливает в зависимости от конструкции уплотняющих рабочих органов, свойств смеси, темпа ее подвоза, толщины распределяемого слоя и погоды. При распределении асфальтобетонной смеси типов А и Б для плотного асфальтобетонного покрытия и смесей для пористых и высокопористых асфальтобетонов с содержанием щебня более 40 % скорость движения асфальтоукладчиков составляет 2-5 м/мин. Скорость движения асфальтоукладчиков может быть увеличена до 4-5 м/мин при распределении асфальтобетонных смесей типов В, Г и Д для плотного асфальтобетона, смесей для пористого и высокопористого асфальтобетона с содержанием щебня менее 40 % и высокопористого песчаного асфальтобетона.

В процессе работы машинист асфальтоукладчика и асфальтобетонщик 5-го разряда наблюдают за тем, чтобы смесь равномерно поступала к валу с винтовыми лопастями и распределялась по нижележащему слою. При заполненном бункере недостаток или избыток смеси у рабочих органов и на краях полосы указывает на неправильное положение шиберных заслонок: при недостатке смеси их поднимают, при излишке - опускают. Помощник машиниста проверяет натяжение копирной струны, контролирует качество укладки смеси, дает сведения машинисту о регулировании рабочих органов асфальтоукладчика, направляет движение автомобилей-самосвалов в рабочей зоне. Для получения непрерывной и ровной полосы смесь к асфальтоукладчику подают равномерно. При кратковременных перерывах в доставке смеси останавливают асфальтоукладчик и оставляют часть ее в бункере до подхода следующего автомобиля-самосвала.

Если в уложенном слое появляются разрывы, трещины, пустоты по краям полосы или поверхность получается неровной, то машинист регулирует скорость движения асфальтоукладчика, следит за тем, чтобы трамбующий брус работал без остановки, а выглаживающая плита периодически прогревалась горелкой.

Сразу после прохода машины асфальтобетонщик 5-го или 4-го разряда проверяет толщину слоя, поперечный уклон. Если толщина слоя смеси не соответствует заданной, то изменяют положение выглаживающей плиты регулировочными винтами. Этими же винтами устраняют отклонения поперечного профиля покрытия от заданного.

Если смесь укладывают одним асфальтоукладчиком, то обрабатывают продольный шов. Для этого остывший край ранее уложенной полосы обрубают по прямой линии отбойным молотком. Затем смесь прогревают нагревателями.

При их отсутствии горячую смесь из бункера асфальтоукладчика укладывают по краю полосы валиком шириной 15-20 см. При подходе асфальтоукладчика смесь убирают в приемный бункер, а прогретый край полосы смазывают горячим жидким битумом. В жаркую погоду, когда смесь на сопряжениях остается горячей, ее не прогревают.

В конце смены или при длительных перерывах устраивают поперечный рабочий шов. Для этого поперек полосы закрепляют брус, до которого укладывают смесь, тщательно заделывают сопряжение с брусом и уплотняют его катками. Возобновляя работу, убирают брус и прогревают край полосы, как описано выше. Дальнейшую обработку поперечного шва выполняют так же, как и продольного.

При разработке мероприятий по организации работ длина сменной захватки ориентировочно определяется по формуле:

l = Q / а × с,

где: l - длина сменной захватки, м; Q - количество асфальтобетонной смеси, выделяемой на объект, кг; а - ширина проезжей части, м; с - расход асфальтобетонной смеси, кг/м2 (табл. 4.6).

Таблица 4.6

Расход асфальтобетонной смеси на 100 м2 покрытия в зависимости от толщины слоя, т

Вид смеси

Плотность смеси кг/м

Толщина слоя, мм

35

40

45

50

60

70

80

Крупнозернистая:

2340

 

 

 

 

 

 

 

плотная

 

-

-

-

-

14

16,38

18,7

пористая

2300

-

-

-

-

13,8

16,1

18,4

Мелкозернистая типа:

 

 

 

 

 

 

 

 

А

2385

8,35

9,54

10,73

11,92

-

-

-

Б

2370

8,29

9,48

10,66

11,85

-

-

-

В

2340

8,19

9,36

10,53

11,7

-

-

-

Песчаная

2280

7,98

9,12

10,26

-

-

-

-

Укладка асфальтобетонной смеси вручную. При ручной укладке толщину смеси в неуплотненном состоянии принимают больше проектной на 25-30 %. Чтобы толщина слоя была одинаковой, выставляют маяки из укладываемой смеси, высоту которых проверяют нивелиром и шаблоном. Вместо маяков можно использовать деревянные бруски длиной 6 м и толщиной, равной толщине слоя неуплотненной смеси. Бруски устанавливают на расстоянии 1-1,5 м один от другого. По мере укладки смеси бруски передвигают вперед а оставшиеся на их месте пустоты заделывают смесью.

Горячую смесь из автомобиля-самосвала выгружают на металлический лист площадью 4-5 м. Лист размещают на основании в 3-4 м впереди места укладки и после укладки смеси перемещают вперед (вручную или на буксире за автомобилем-самосвалом). Совковыми лопатами смесь переносят к линии укладки и распределяют в прижим к ранее уложенной смеси. Бросать с лопаты смесь запрещается, так как она расслаивается по крупности и после уплотнения на покрытии остаются места с избытком или недостатком крупных зерен. Смесь разравнивают металлическими граблями на длинных ручках - вначале зубьями, а затем тыльной стороной, поверхность покрытия проверяют на ровность трехметровой рейкой. Все инструменты для ручной укладки - лопаты, грабли, скребки - в начале работы подогревают в жаровне. В процессе работы они нагреваются от соприкасания со смесью. Работать холодными инструментами нельзя, так как смесь прилипает к ним. После распределения смеси приступают к ее уплотнению.

Рис. 4.8. Ручной инструмент, используемый при укладке асфальтобетонных смесей.

4.4 Уплотнение асфальтобетонной смеси

Уплотнение асфальтобетонной смеси - основная технологическая операция, которая предопределяет физико-механические свойства покрытия. Недостаточное уплотнение асфальтобетонного покрытия - одна из основных причин его разрушения. Так, обследованием причин повреждения асфальтобетонных покрытий установлено, что 50 % всех разрушений объясняется недостаточным уплотнением. В процессе уплотнения при последовательных проходах катка смесь деформируется за счет уменьшения пористости, т.е. уменьшения объема уплотняемого слоя. При этом происходит формирование структуры асфальтобетонного покрытия.

В процессе уплотнения необходимо обеспечить такую степень плотности, при которой полностью исключается доуплотнение покрытия под воздействием автомобильного транспорта. Кроме того, при уплотнении должно быть обеспечено полное закрытие пор на поверхности покрытия, что препятствует поступлению в него воды.

На уплотняемость асфальтобетонных смесей оказывают влияние форма, шероховатость и количество щебня в смеси. Дробленые зерна с шероховатой поверхностью значительно повышают сопротивляемость асфальтобетона уплотнению, причем особенно это относится к дробленому песку. Поэтому в зависимости от перечисленных факторов, а также марки применяемого битума в смеси, ее вида и типа, толщины укладываемого слоя определяют состав уплотняющих средств и их технологический режим работы.

Уплотнение асфальтобетонных покрытий осуществляется тремя методами: укаткой, трамбованием и вибрацией. Для реализации этих методов созданы уплотняющие машины с гладкими металлическими вальцами, на пневматических шинах (метод укатки), трамбующие машины - оборудование асфальтоукладчиков (метод трамбования), вибрационные (метод вибрации).

Укатка - перекатывание металлического барабана или пневматического колеса по уплотняемой поверхности. В результате воздействия массы катка уплотняемый материал приобретает остаточную деформацию. Эта деформация по мере увеличения плотности будет уменьшаться и к концу укатки приблизится к нулю. Дальнейшее увеличение плотности материала может быть достигнуто лишь увеличением нагрузки на вальцы. Трамбование заключается в периодическом поднятии и свободном падении с определенной высоты на уплотняемый материал массивного тела. Вибрирование основано на передаче уплотняемому материалу колебаний, близких по частоте собственным колебаниям уплотняемого материала. Степень уплотнения асфальтобетонной смеси зависит от веса и типа уплотняющих средств, а также от числа их проходов по одному следу и характеризуется значением коэффициента уплотнения, который определяется как отношение плотности материала, взятого из покрытия, к плотности эталонного образца. Коэффициент уплотнения должен быть равен: для мелкозернистых смесей с содержанием щебня 40 % и более (типы А и Б) - не менее 0,99; для мелкозернистых смесей с содержанием щебня 30-40 % (тип В), песчаных смесей (типы Г и Д) и крупнозернистых смесей для нижнего слоя покрытия - не менее 0,98.

В процессе укатки обеспечивают такую максимальную степень уплотнения асфальтобетонной смеси, при которой полностью исключается доуплотнение покрытий под воздействием транспорта. Кроме того, при уплотнении должно быть обеспечено полное закрытие пор на поверхности покрытия, что препятствует поступлению воды в покрытие, обеспечивая его морозостойкость.

Интенсивность уплотнения, т.е. изменение плотности в единицу времени, зависит от максимально возможной плотности и уплотняемости материала.

Оптимального уплотнения можно достигнуть быстрее и экономичней при более высокой температуре асфальтобетонной смеси. Считается, что оптимальной температурой смеси при уплотнении является температура, на 60 °С превышающая температуру размягчения вяжущего, применяемого для приготовления асфальтобетонных смесей, т.е. 105-120 °С. Горячая смесь весьма пластична, податлива, она легко и быстро уплотняется. При высокой температуре вязкость битума относительно мала, поэтому минеральные зерна весьма подвижны и легко переориентируются под воздействием уплотняющих средств.

Особенности уплотнения асфальтобетонных смесей. Первый принцип уплотнения асфальтобетонных смесей состоит в том, что укатка должна начинаться в момент, когда асфальтобетонная смесь еще имеет высокую температуру и способна максимально уплотняться. С понижением температуры асфальтобетонных смесей производительность катков быстро уменьшается. Так, при понижении температуры асфальтобетонной смеси со 100 до 70 °С число проходов катка возрастает в три раза. В зависимости от температуры асфальтобетонной смеси в начале уплотнения при одном и том же количестве уплотняющих средств и одном времени уплотнения будет достигнута различная степень уплотнения (рис. 4.9).

Рис. 4.9. График зависимости коэффициента уплотнения Ку от температуры асфальтобетонной смеси Тс в начале уплотнения.

Уплотнение укаткой асфальтобетонных смесей наиболее эффективно при максимально высокой температуре асфальтобетонной смеси. Однако касательные усилия, развивающиеся в зоне контакта вальца катка и покрытия, могут превысить сопротивление асфальтобетонной смеси образованию сдвигов и разрыву сплошности (образование трещин). Остывание смеси в этом случае, необходимое для повышения ее вязкости (прочности), приводит к не использованию наиболее эффективного периода для уплотнения смеси.

В связи с этим необходимо максимально использовать на начальной стадии уплотнения (предварительное уплотнение) уплотняющие рабочие органы асфальтоукладчика. Уплотняющие рабочие органы асфальтоукладчика производят предварительное уплотнение после распределения смеси на всю ширину укладываемой полосы при максимальной температуре смеси и поэтому требуют минимальных затрат энергии. Предварительное уплотнение осуществляется посредством уплотняющих рабочих органов различного типа трамбующих, вибрационных, комбинированных. Вибрационные уплотняющие средства более эффективны, чем трамбующие. Предварительное уплотнение трамбующим брусом обеспечивает получение коэффициента уплотнения до 0,91, а вибрирующим брусом - 0,94. Наиболее эффективно комбинированное предварительное уплотнение одновременно трамбующим и вибрирующим брусьями.

В настоящее время серийно выпускаются асфальтоукладчики с рабочим органом, обеспечивающим высокую степень уплотнения смеси, применение которых может полностью исключить использование катков. Рабочий орган высокого уплотнения (рис. 4.10) включает в себя элементы предварительного и дополнительного уплотнения. Предварительное уплотнение осуществляется трамбовкой и вибрационным брусом, а полное - двумя рядами прессующих планок и дополнительным вибрационным брусом.

Рис. 4.10. Конструкция уплотняющего рабочего органа асфальтоукладчика с высокой степенью уплотнения: 1 - трамбующий брус; 2 - вибрационный брус; 3 - прессующие планки; 4 - вибрационный плавающий брус.

При использовании асфальтоукладчиков с уплотняющими рабочими органами, создающими высокую степень уплотнения, не требуется уплотнения укаткой смесей типов В и Д, а смеси других типов уплотняют сразу тяжелыми катками.

Предварительное уплотнение легкими катками может начинаться при достаточно высокой температуре смеси. Однако при остановке асфальтоукладчика по различным причинам непосредственно позади него остается неукатанная, недоступная для работы катков полоса.

Катки с гладкими металлическими вальцами передают давление на уплотняемую смесь через площадку шириной ас (рис. 4.11). При повторных проходах катка деформации асфальтобетона постепенно уменьшаются вследствие повышения плотности и жесткости уплотняемого слоя. Это, в свою очередь, приводит к уменьшению ширины площади воздействия вальца на уплотняемый материал: для легких катков - 6-4, средних- 7-5 и тяжелых - 10-6 см.

С уменьшением ширины площадки снижается глубина распределения уплотняющего напряжения σ, которая практически равна ширине площадки ас. Напряжение σ можно увеличить, применяя для уплотнения каток большей массы.

Поэтому уплотнение начинают легкими катками, когда уплотняющее давление по толщине слоя достаточно высокое. По мере уменьшения этого давления включают в работу средние и тяжелые катки. Толщина уплотняемого слоя в зависимости от типа катка находится в пределах: для легких катков - 6-7 см; средних катков - 8-9 см; тяжелых катков - 10-12 см.

Рис. 4.11. Схема распределения вертикальных напряжений в покрытии от массы катка: а - с гладкими вальцами, б - с пневмоколесами, в - площадка воздействия гладкого вальца на уплотняемое покрытие; 1-3 - проходы катка по одному следу, b - ширина площадки между точками а и с; φ - угол контакта, σ - напряжение; стрелка А показывает направление движения катка.

При движении двухосных трехвальцовых катков массой 6 т образуются полосы, различные по степени уплотнения (рис. 4.12). Средняя полоса 3 имеет наименьшее уплотнение, так как она уплотнена только одним передним катком. Две крайние полосы (1, 5) уплотнены сильнее расположенными сзади вальцами. Две внутренние полосы (2, 4) имеют наибольшее уплотнение, так как они подверглись воздействию переднего и заднего вальцов. Равномерное уплотнение всей полосы при укатке катками такого типа может быть достигнуто только в том случае, если каток будет смещаться в поперечном направлении каждый раз не более чем на половину ширины вальца. Однако температура асфальтобетонной смеси при этом снижается, что сказывается на равномерности уплотнения.

Недостатки таких катков объясняются также способом передачи ими нагрузки на уплотняемый материал посредством ведущего и ведомого вальцов. Эти вальцы ведут себя различно, хотя у обоих при движении возникают кроме вертикальных также и горизонтальные силы. Однако при этом у ведомого вальца, не связанного с приводом катка, горизонтальная сила действует в направлении движения, продвигая смесь впереди катка. У ведущего же вальца горизонтальная сила действует против направления движения катка, пытаясь подмять смесь под валец, затем вытолкнуть ее позади него (рис. 4.3).Поэтому должно быть обязательным правилом, что свежеуложенный слой асфальтобетонного покрытия сначала уплотняют ведущим вальцом, т.е. каток должен двигаться ведущими вальцами вперед. Это правило следует выполнять при уплотнении смеси легкими катками как двухосными трехвальцовыми, так и двухосными двухвальцовыми.

При наезде жестокого металлического вальца катка на незначительное возвышение или предварительно уплотненные места промежуточные участки оказываются при меньшем давлении, в результате чего уплотнение получается неоднородным. У катков на пневматических колесах этот недостаток устранен наличием в ходовой части специальных уравнительных систем, обеспечивающих контакт колес с опорной поверхностью и их равномерное нагружение.

Рис. 4.12. Уплотнение асфальтобетона двухосным трех вальцовым катком: 1, 5 - полосы, уплотненные задними вальцами; 2, 4 - полосы, уплотненные задними и передним вальцами; 3 - полоса, уплотненная передним, вальцом.

Рис. 4.13. Воздействие ведущего и ведомого вальцов на уплотняемый слой: 1 - направление движения катка; 2 - воздействие ведомого вальца; 3 - воздействие ведущего вальца.

В отличие от катков с гладкими вальцами в катках на пневмоколесах отмечается постоянная поверхность контакта (диаметром 30 см) уже после первых проходов. Поэтому оптимальная толщина уплотняемого слоя у них остается постоянной и более высокой, чем у катков с гладкими вальцами, если только давление достаточно, чтобы уплотнить весь слой (рис. 4.11). Внешнее давление должно превышать внутреннее сопротивление материала, как в начальный период уплотнения, так и при дальнейшем нарастании прочности слоя. В случае остывания органических вяжущих эффект действия катков на пневмоколесах не уменьшится, если повысить давление в шинах. В процессе уплотнения за счет усилий сжатия, направленных перпендикулярно "пятну" контакта, достигается наилучшее уплотнение асфальтобетона. Этому способствует также наличие на одной оси нескольких колес на небольшом расстоянии одно от другого, что обеспечивает перемещение материала в зоны между колесами, создавая повышенную уплотняемость смеси. Катки на пневматических колесах особенно эффективны при уплотнении асфальтобетонных смесей с высоким содержанием щебня, так как снижается вероятность дробления зерен щебня в смеси.

Метод вибрационного уплотнения получил широкое распространение, так как применение вибрации обеспечивает высокую степень уплотнения. Вибрационный метод уплотнения крайне эффективен при необходимости интенсивного уплотнения в короткие сроки, а также при пониженной температуре воздуха: виброкатки уплотняют асфальтобетонные покрытия при сравнительно небольшом количестве проходов. Мощность катка высока, и во многих случаях один виброкаток может заменить два и более катков статического действия. Однако, как и в случае применения катков статического действия с гладкими металлическими вальцами, толщина уплотняемого слоя обусловлена размером площади давления.

Комбинированные катки сочетают преимущества и возможности катков на пневмоколесах и вибрационных.

Уплотнять смеси начинают непосредственно после их распределения при температуре, при которой давление от катка не превышает сопротивления сдвигу уплотняемого слоя при определенной длительности нагружения. Рекомендуемая температура (°С) для эффективного уплотнения смесей приведена в табл. 4.7.

Как видно из приведенной таблицы температурный интервал каждого этапа уплотнения примерно одинаков и оставляет в среднем около 20 °С, но по продолжительности этапы сильно отличаются друг от друга из-за различной скорости остывания смеси сразу после ее раскладки в покрытие и в конце укатки.

Ориентировочное время остывания смеси от начала до конца ее уплотнения катками можно определить по формуле:

t = 2 √h3(T0 - Т)/(1 + 0,1Vв)(Т - Тв), мин,

где: h - толщина слоя смеси в рыхлом состоянии, см: Т0 - температура смеси в покрытии сразу после укладчика, °С; Т - температура смеси в момент окончания укатки, °С; Тв - температура наружного воздуха (основания) при укатке, °С; Vв - скорость ветра во время уплотнения смеси, м/с.

Таблица 4. 7

Температурные интервалы этапов уплотнения

Этап уплотнения смеси в покрытии

Температура (°С) смеси

тип А

тип Б

тип В

Начало предварительного

145-140

135-130

125-120

Начало основного

125-120

115-110

105-100

Начало заключительного

100-95

95-90

85-80

Окончание заключительного

80-75

75-70

65-60

Примечание. Температура начала укатки на последующем этапе соответствует окончанию работ на предыдущем этапе.

Можно пользоваться также графиком на рис. 4.14, построенным для слоя 5 см в плотном теле (в рыхлом около 6-6,5 см) по экспериментальным замерам температуры. Общее время охлаждения различных слоев смеси от 140-135 °С до 65-60 °С при определенных погодных условиях составит от 15 до 100 мин. В рамках этого времени необходимо выполнить весь объем работы по уплотнению.

Таблица 4.8

Временные интервалы уплотнения асфальтобетонных смесей

Толщина слоя покрытия, см

Ориентировочное время, отводимое по условиям остывания слоя (мин.) на выполнение операции его уплотнения всеми катками при температуре наружного воздуха

0-2 °С

4-5 °С

8-10 °С

13-15 °С

18-20 °С

23-25 °С

3-4

13-15

16-18

19-21

22-24

26-28

30-35

5-6

20-23

24-27

28-30

32-35

37-40

43-48

8-10

43-48

52-58

62-68

70-77

80-90

95-110

Примечание. Указанное время соответствует умеренному ветру (не более 3-5 м/с). При повышении его скорости до 8-10 м/с это время уменьшается на треть, в солнечную безветренную погоду увеличивается примерно па треть.

Общее время работы укладчика и всех трех катков (табл. 4.8) следует распределять между раскладкой и этапами уплотнения в пропорции примерно 1:1:2:2.

Необходимо учитывать, что даже при высокой организации работы отряда статических катков выполнить весь цикл уплотнения быстрее 23-24 мин. практически невозможно. Решается такая задача путем увеличения толщины раскладываемой смеси, сохраняющей необходимую температуру более продолжительное время, либо путем использования виброкатков с широкими вальцами (1950-2000 мм), имеющих более высокую производительность укатки.

Рис. 4.14. Скорость остывания слоя асфальтобетона толщиной 5 см в плотном виде при умеренном: ветре: t - время после укладки смеси: Т - температура слоя: l - температура основания 23-25 °С; 2 - 12-14 °С; 3 - 4-5 °С.

При уплотнении асфальтобетонных смесей можно условно выделить три этапа. На первом этапе происходит сближение частиц, которое продолжается до тех пор, пока дальнейшему уменьшению пустот не будет противостоять повышенное сопротивление. На втором этапе плотность асфальтобетона продолжает увеличиваться, а пустоты в нем уменьшаться в результате взаимного перемещения минеральных зерен и некоторой их перегруппировки или переориентации, что приводит к заполнению мелкими зернами пустот между крупными. Продолжительность этого этапа уплотнения зависит от формы зерен и шероховатости поверхности каменного материала, а также от характеристик уплотняющих машин.

После того как объем пустот в смеси уменьшится до 1-2 %, при дальнейшем уплотнении начинается процесс перетирания смеси, представляющий собой третий этап уплотнения, который характеризуется тем, что дальнейшего уменьшения объема пустот не происходит. Асфальтобетонные смеси различного состава ведут себя при уплотнении также различно: например, смеси, с высоким содержанием дробленых зерен или с небольшим содержанием вяжущего труднее уплотнить до требуемого состояния (Ку > 0,98).

Таблица 4.9

Катки и количество их проходов для уплотнения асфальтобетонных смесей

Содержание щебня в смеси

Тип выглаживающей плиты асфальтоукладчика

Этапы уплотнения

Масса катков, т

Кол-во проходов по одному следу

гладко-вальцовые катки

катки на пневматических шинах

вибрационные катки

До 40 %, песчаные

Пассивная

I

 

II

III

 

 

 

Вибрационная

I

 

II

III

 

 

Более 40 %

Пассивная

I

II

 

 

 

Вибрационная

I

II

 

 

Примечания: * - вибратор выключен, ** - вибратор включен.

Рекомендации по назначению типоразмеров катков и количества их проходов приведены в табл. 4.9.

Асфальтобетонные смеси типов А и Б и смеси для пористых и высокопористых асфальтобетонов с содержанием щебня более 40 %, распределенные асфальтоукладчиком с трамбующим брусом и пассивной выглаживающей плитой, уплотняют сначала катком на пневматических колесах массой 16 т, выполняющим 6-10 проходов по одному следу, окончательно - катком с металлическими гладкими вальцами массой 11-18 т при 6-8 проходах по одному следу или начинают уплотнение гладковальцовым катком массой 10-13 т при 8-10 проходах по одному следу, причем при первых двух проходах каток движется ведущими вальцами вперед, остальные проходы - ведомыми вальцами, заканчивают уплотнение тяжелым гладковальцовым катком массой 18 т (6-8 проходов по одному следу).

При наличии вибрационных катков эти смеси уплотняют катком массой 6-8 т с включенным вибратором за 5-7 проходов по одному следу. Первый проход выполняют ведущими вальцами вперед, остальные - гладковальцовым катком массой 11-18 т.

При уплотнении песчаных и щебенистых асфальтобетонных смесей с содержанием щебня менее 40 % несколько изменяются технология и состав звена катков. В этом случае уплотнение начинают легким катком массой 6-8 т при 2-4 проходах по одному следу при движении катка ведущими вальцами вперед на втором этапе уплотнения в состав звена могут входить или каток на пневматических колесах массой 16 т (6-10 проходов по одному следу), или гладковальцовый каток массой 10-13 т (8-10 проходов), на третьем этапе выполняют окончательное уплотнение гладковальцовым катком массой 11-18 т за 4-8 проходов по одному следу.

При уплотнении асфальтобетонных смесей вибрационным катком массой 6-8 т первые 2-4 прохода выполняют без включения вибратора ведущими вальцами вперед, на втором этапе уплотнение производят с включенным вибратором за 3-4 прохода по одному следу (на этом этапе уплотнения температура смеси должна быть не выше 90 °С) и заканчивают уплотнение гладковальцовым катком массой 11-18 т за 4-8 проходов по одному следу. В начале уплотнения скорость для всех катков должка быть 1,5-2 км/час, а после пяти-шести проходов по одному следу ее увеличивают: для катков с гладкими вальцами - до 3-5, для виброкатков - до 2-3, а для катков на пневмоколесах - до 5-8 км/час.

При распределении асфальтобетонных смесей асфальтоукладчиком с трамбующим брусом и виброплитой щебеночные асфальтобетонные смеси с содержанием щебня более 40 %) на первом этапе выполняют или гладковальцовым катком массой 10-13 т, или катком на пневматических колесах массой 16 т, или вибрационным катком массой 6-8 с включенным вибратором за 4-6 проходов по одному следу, на втором, заключительном, этапе уплотнение осуществляют гладковальцовым катком за 4-6 проходов по одному следу.

Смеси с содержанием щебня менее 40 % и песчаные асфальтобетонные смеси уплотняют на первом этапе катком массой 6 т за 2-4 прохода по одному следу, на втором - катком с гладкими металлическими вальцами массой 10-13 т (6-8 проходов) или катком на пневматических колесах массой 16 т (4-6 проходов); окончательное уплотнение осуществляют катком с гладкими металлическими вальцами массой 11-18 т (4 прохода). При уплотнении смесей вибрационным катком массой 6-8 т первые 2-4 прохода выполняют с выключенным вибратором и затем 4-6 проходов с включенным вибратором (температура смеси на этом этапе уплотнения должна быть не выше 90 °С); окончательное уплотнение осуществляют катком с гладкими металлическими вальцами массой 11-18 т (за 4 прохода) по одному следу. На первом этапе уплотнения следует обязательно соблюдать правила движения ведущими вальцами вперед как для статических катков с гладкими металлическими вальцами, так и для вибрационных.

Уплотнение асфальтобетонных смесей, содержащих полимерные добавки, следует начинать только катками с металлическими гладкими вальцами массой 6-8 т (щебеночные с содержанием щебня менее 40 % и песчаные асфальтобетонные смеси) или 10-13 т (щебеночные асфальтобетонные смеси с содержанием щебня более 40 %).

При распределении асфальтобетонной смеси слоем толщиной 10-18 см уплотнение следует выполнять сначала катком на пневматических колесах (6-8 проходов), а затем катком с гладкими металлическими вальцами массой 11-18 т (4-6 проходов по одному следу).

На всех этапах уплотнения асфальтобетонных смесей число проходов катка устанавливают пробным уплотнением.

Количество катков принимают, исходя из необходимости обеспечить требуемое уплотнение покрытия до его остывания до температуры 60-70 °С. Летом смесь остывает примерно за 60-80 мин. За это время асфальтобетонная смесь должна быть разгружена, распределена и уплотнена. По опытным данным, на уплотнение остается 50-60 мин.

Количество проходов одного катка N можно установить по формуле:

N=TK/(l/v + l1/v + Тн),

где; Т - продолжительность уплотнения, мин; К - коэффициент использования времени; l - длина уплотняемой полосы, м; l1 - длина пути, необходимого для перехода на следующую полосу, м; Тн - время для переключения скорости для обратного пути, равное 0,1 мин; V - рабочая скорость катка, м/мин. Определив требуемое количество проходов катка для уплотнения покрытия и зная ширину полосы движения одного катка, устанавливают необходимое количество катков.

Количество катков можно определить также по производительности каждого катка Q, м2/час, которую находят по формуле:

Qк=[1000(B - b)vKв]/N

где: В - ширина уплотняемой полосы, м: b - ширина перекрытия смежных полос укладки, м; v - рабочая скорость катка, км/ч; Кв - коэффициент использования рабочего времени, равный 0,85-0,9; N - количество проходов катка по одному следу.

Производительность определяют для каждого вида катков с учетом числа проходов. Затем находят общее количество катков при заданной сменной производительности.

Последовательность проходов катков при уплотнении смесей всех типов одинакова. При укладке смеси на всю ширину проезжей части с установленным бортовым камнем на двухскатном профиле катки должны двигаться по уплотняемому покрытию от краев полосы к середине, а затем от середины к краям, перекрывая каждый след на 200-300 мм. При работах на покрытии односкатного профиля уплотнение следует начинать с низовой стороны: на участках улиц и дорог с продольным уклоном более 30 %о - снизу вверх. На покрытии без бортового камня последовательность проходов меняется в соответствии со схемой на рис. 4.15.

При укладке смесей двумя (или несколькими) полосами в процессе уплотнения первоначальной полосы вальцы катка не должны приближаться к кромке, обращенной к оси проезжей части более чем на 100 мм.

Оставшаяся часть кромки уплотняется одновременно со смежной полосой. Ширина первой уплотненной полосы свежеуложенного слоя должна меняться в зависимости от жесткости смеси (рис. 4.16).

Рис. 4.15. Последовательность проходов катков по слою, уложенному на всю ширину проезжей части при отсутствии бортового камня.

Рис. 4.16. Схемы уплотнения смесей различных типов при их распределении двумя полосами при отсутствии бортового камня: а - жесткие смеси (типы А и Б ); б - пластичные смеси (типы В, Г и Д).

Последовательность проходов катков при текущем ремонте картами до 200 м2 указана на рис. 4.17.

В процессе работ по уплотнению запрещается останавливать катки на свежеуложенной карте, производить повороты на уплотняемой карте, останавливать катки на свежеуложенном покрытии карты по окончании работ. Для изменения направления движения катки следует выводить за пределы карты.

В местах, недоступных уплотнению катками (у бортовых камней), смесь уплотняют виброплитой (с перекрытием поверхности на 1/3 ширины пор), пока после проходов виброплиты не останется заметного следа.

По окончании укладки, или при вынужденных перерывах в работе, при уплотнении в концах уложенной полосы необходимо следить за тем, чтобы катки заходили на брус, установленный поперек проезжей части.

В процессе уплотнения покрытия запрещается:

- заправлять катки и асфальтоукладчики на свежеуложенном и перекрываемом асфальтобетонном покрытии. Для заправки следует выводить механизмы на обочины, боковые выезды или воротные заезды;

- останавливать катки на свежеуложенном покрытии. В случае аварийной остановки принять срочные меры к выводу катка из зоны работ;

- переключать скорости при резком торможении на уплотненном покрытии;

- производить повороты на неуплотненном покрытии. Для изменения направления движения катки следует выводить на уплотненную часть покрытия;

- оставлять катки на свежеуложенном покрытии по окончании работ.

Для предотвращения прилипания асфальтобетонной смеси к вальцам катка, их необходимо смачивать водой или водным однопроцентным раствором отходов мыловаренной промышленности. Не разрешается применять для этих целей соляровое масло и топочный мазут.

Рис. 4.17. Схема уплотнения асфальтобетонной смеси в картах: а - при ширине карты меньше ширины уплотнения слоя; б - при ширине карты больше ширины уплотнения слоя.

Перечень возможных дефектов на отремонтированном асфальтобетонном покрытии приведен в табл. 4.10.

В процессе уплотнения могут образоваться поперечные трещины при движении катка на высокой скорости или его большой массы, высокой температуры смеси в момент уплотнения (140-160 °С). Кроме того, трещины получаются при уплотнении пережженной смеси или недостаточного количества битума в ней.

Все дефекты лучше исправлять сразу же после их образования, пока смесь горячая.

Таблица 4.10

Наиболее распространенные дефекты отремонтированного асфальтобетонного покрытия и причины их образования

При резком повороте ведомого вальца возникают продольные трещины; а при изменении направления движения на одном и том же месте - наплывы или волнистая поверхность.

Наплывы срезают лопатой, а покрытие с трещинами и наслоениями мелко насекают или разравнивают граблями и вновь укатывают. Если это не помогает, то заменяют верхнюю часть слоя на всю толщину горячей смесью, а затем уплотняют. Исправление дефектов после окончательной укатки требует больших затрат труда и не дает хорошего качества. В этом случае дефектные места очерчивают по контуру прямыми линиями, затем участок покрытия вырубают так, чтобы его края были вертикальными. Их смазывают разжиженным битумом, заполняют вырубленные участки доброкачественной смесью и укатывают. После нескольких проходов катка наплывы смеси на швах срезают, заглаживают райбовкой, а затем горячим утюгом и окончательно укатывают.

Отремонтированные места более пористые и выделяются по цвету. Чтобы устранить это, заутюживают их края и обрабатывают поверхность тонким (0,2 мм) слоем разжиженного битума, который присыпают песком.

"Жирные" пятна на покрытии появляются после розлива излишнего количества битума по нижележащему слою. При уплотнении битум поднимается. Такие места вырубают, очищают основание от ненужного битума и закладывают хорошую асфальтобетонную смесь. Ликвидировать излишки битума можно россыпью минерального порошка или чистого песка.

4.5 Ремонт с использованием литого асфальта и холодных органно-минеральных смесей.

В соответствии с положениями действующих нормативных документов текущий ремонт с использованием литого асфальта типа V может производиться практически в течение всего года (при температуре до - 10 °С).

Подготовительные работы выполняются в соответствии с положениями п. 4.2 за исключением операций по подгрунтовке. В зимний период в состав подготовительных работ включается очистка ремонтируемых карт от пескосоляного насоса, снега, льда, удаление воды.

Транспортирование смеси к месту производства работ производится в специальных самоходных установках с котлом-термосом или бункером, оборудованных обогревом и мешалкой. При транспортировании должны обеспечиваться непрерывное перемешивание и температура смеси 180-240 °С, а в необходимых случаях - порционная выгрузка с варьированием скорости выдачи смеси.

Перед началом загрузки котел-термос (бункер) прогревается в течение 10 мин. двумя подогревателями или форсункой до 180-190 °С. Крышка загрузочного отверстия должна быть открыта не ранее чем за 5 мин. до загрузки котла смесью.

Запрещается включать сцепление привода мешалки перед запуском двигателя, а также привод мешалки до прогрева бункера и при наличии в нем остатков затвердевшей (не разогретой) смеси, препятствующей движению лопастей мешалки.

В процессе транспортирования общее время перемешивания смеси в передвижной установке должно быть не менее 20 мин.

Прибыв к месту укладки, самоходная установка устанавливается перед подготовленной картой с таким расчетом, чтобы выпускной лоток при наклоне котла (бункера) был направлен непосредственно в карту. Выгрузка смеси производится при наклоне выпускного лотка и одновременной работы лопастной мешалки в котле.

Работы по распределению смеси с одновременной натяжкой на края карты и удалением излишков, а также заглаживание и затирку мест сопряжения выполняют вручную.

Отдельной операцией является распределение черного (или необработанного) щебня по поверхности свежеуложенной литой смеси для обеспечения требуемых сцепных свойств на отремонтированных участках.

Щебень размером 3-5 (8) или 5-8 (10) мм доставляется к месту проведения ремонтных работ автомобилями-самосвалами в количестве, необходимом для бесперебойной работы.

Россыпь щебня производится равномерным слоем в одну щебенку немедленно после распределения смеси. Ориентировочный расход щебня для смеси типа I - 5-8 кг/см2. После остывания покрытия до температуры 80-100 °С и допускается прикатка распределенного щебня ручным катком массой 30-50 кг. После охлаждения уложенного слоя до температуры наружного воздуха невтопившийся щебень должен сметаться.

Движение автомобильного транспорта по готовому покрытию открывается по достижении покрытием температуры наружного воздуха, но не ранее чем через 3 часа после завершения работ.

При незначительных объемах текущего ремонта картами до 3 м2 (чаще всего аварийного) целесообразно использовать холодные органо-минеральные смеси. В строительный сезон, при температуре воздуха выше +5 °С для ремонта применяют смесь I марки, в зимнее время - II марки. В отличие от ранее изложенных способов ремонта малыми картами, в данном случае допускается укладывать смесь даже в дождливую погоду. Как и при ремонте с использованием литого асфальта нет необходимости в обработке подготовленных карт битумными материалами. Также исключена необходимость специального уплотнения уложенной органо-минеральной смеси.

Смесь распределяется в подготовленную карту вручную с коэффициентом запаса на уплотнение 1,25-1,30 (рис. 4.18).

После распределения смесь достаточно прикатать колесом любого автомобиля, в том числе легкового за один проход по одному следу. Возможно использование для этой цели виброплит.

Рис. 4.18. Схема заделки выбоины холодной органо-минеральной смесью: а - разметка; б - обрубка выбоины по контуру; в - очистка карты; г - заполнение ремонтным материалом; д - прикатка уложенной смеси; е - покрытие после завершения ремонта; ж - покрытие в процессе эксплуатации.

Движение на отремонтированном участке можно открывать сразу после прикатки. Окончательное формирование слоя органо-минеральной смеси происходит в процессе эксплуатации дорожного покрытия под воздействием транспортной нагрузки.

Ремонт покрытий с использованием органо-минеральных смесей на участках разгона и торможения транспорта (перекрестки, остановки общественного транспорта) из-за особенностей формирования слоя может быть только временным мероприятием, например, аварийным ремонтом в дождливый или зимний периоды. Более длительный срок службы подобных карт (прямо пропорциональный интенсивности движения транспортных средств) отмечается на перегонных участках.

За рубежом при текущем ремонте с использованием подобных материалов допускается их укладка непосредственно в выбоины (без подготовки карт) с минимальной глубиной, равной размеру крупного заполнителя.

По результатам обследования отремонтированных участков на объектах федеральной дорожной сети установлено, что оптимальной следует считать толщину слоя в плотном теле, составляющую не менее двух диаметров крупного заполнителя.

4.6. Заделка трещин

Основным условием правильного назначения способа ремонта является определение причины образования трещины, степень разрушения материалов основания и покрытия, обоснованный выбор времени производства ремонтных работ и экономическая целесообразность затрат на выполнение ремонтных работ.

Плановые работы по заделке температурных трещин целесообразно выполнять в периоды их максимального раскрытия. Наиболее оптимальные периоды - весенний при наступлении сухой и теплой погоды или поздней осенью, когда ночные заморозки вызывают сжатие асфальтобетона дорожного покрытия, но днем сравнительно тепло (не ниже +5 +10 °С).

При заделке трещин кроме их герметизации должен быть создан "мягкий шарнир" из ремонтного материала между разделенными в горизонтальной плоскости слоями асфальтобетона. Поэтому в теплое время года, когда трещины раскрыты на меньшую ширину, рекомендуется их дополнительная разделка с образованием деформационной камеры (резервуара).

Рис. 4.19. Деформационная камера при неполном раскрытии трещин: b - ширина камеры, h - глубина камеры

В табл. 4.11 приведены рекомендации фирм "Ирмаст-Холдинг" и "CRAFCO" по геометрическим параметрам разделки трещин с целью создания деформационных камер.

Таблица 4.11

Параметры деформационных камер

Параметры, мм

Рекомендации фирм

«Ирмаст-Холдинг»

«CRAFCO»

Глубина h, не менее

15

19

Ширина b

По расчету

16...38

Расчет ширины камеры может быть выполнен по упрощенной формуле:

B=100×L×Kt×T/l,

где: L - расстояние между трещинами, установленное при визуальном обследовании покрытия, мм; Kt - коэффициент линейного температурного расширения асфальтобетона, принимается в зависимости от марки и типа асфальтобетона, вида использованных каменных материалов и вяжущих, градус (ориентировочно 2,1×10-5 для асфальтобетонов типа "А" и "Б"; 3,3×10-5 - асфальтобетонов типа "В" и "Г"); Т - разность между температурой воздуха в период производства работ и минимально возможной температурой в зимний период, °С; l - предельное относительное удлинение ремонтного материала при минимальной температуре воздуха, % (по соответствующим нормативным документам - не менее 50 %).

В случае разрушения кромок температурных трещин ширина камеры принимается не менее ширины разрушения.

При всех способах заделки трещин обязательной операцией является их очистка с помощью ручного инструмента или щеточной машины с последующей продувкой сжатым воздухом. Трещины с разрушенными кромками должны быть разделаны с помощью швонарезчиков со сменными фрезами, позволяющими регулировать ширину разделки.

Трещины шириной до 5 мм после очистки промазывают жидким битумом марок СГ 15/25, СГ 25/40, МГ 130/25/40, затем с помощью заливщика трещин заполняют битумом марок СГ 130/200, МГ 130/200 или БНД 200/300, нагретым до 160-170 °С.

На объектах с приведенной интенсивностью движения в одном направлении до 2000 авт./час трещины шириной более 5 мм заполняют полимерно-битумной мастикой. Для повышения адгезии мастики к материалу покрытия стенки трещин предварительно обрабатывают полимерной грунтовкой с помощью распылителя. При заделке трещин или деформационных швов цементобетонных покрытиях такая операция строго обязательна. При работе на асфальтобетонных покрытиях достаточно продуть и подогреть стенки трещин газогенераторной установкой до выступания на них капель вяжущего. При этом нельзя допускать выгорания битума.

На магистралях с повышенной интенсивностью движения необходимо использовать мастику с повышенной работоспособностью - битумно-полимерную с добавкой натурального каучука. Температура мастики при заливке трещин 160-180 °С. Глубина заливки мастикой должна быть равна толщине верхнего слоя покрытия. При сквозных трещинах, проходящих через всю конструкцию дорожной одежды, глубина заливки ограничивается за счет укладки уплотнительного шнура из пористой резины. Трещины заполняют с избытком. После удаления выступающей над поверхностью покрытия мастики заделанную трещину засыпают дробленым песком с размером частиц 3-5 мм. На магистралях с непрерывным движением целесообразно производить заливку трещин с устройством пластыря на ширину не менее 5 см и толщину до 2 мм с целью дополнительного укрепления кромок с обязательной посыпкой дробленым песком. На объектах, где возможна стоянка транспортных средств, во избежание прилипания мастики к колесам пластырь не устраивают.

При ширине трещин (камер) более 20 мм вместо мастики необходимо использовать минерально-мастичные или органо-минеральные ремонтные смеси.

Отраженные трещины при величине раскрытия до 5 мм и отсутствии вертикальных перемещений заделывают аналогично температурным. При возможных больших горизонтальных перемещениях и наличии вертикальных перемещений плит или блоков основания ремонт отраженных трещин производится путем разделки трещин до геометрических размеров определенных расчетом, устройством прослойки из антиадгезионного материала и заполнением минерально-мастичной смесью.

Одиночные силовые трещины также заделывают мастикой по технологии ремонта температурных трещин.

При наличии сетки трещин долговременный ремонт возможен только путем замены разрушенных элементов основания и покрытия. Замена конструктивных слоев основания и покрытия должна предусматриваться в случаях, когда не ожидается дальнейшей консолидации основания.

Технологические трещины подлежат ремонту путем удаления разрушенного асфальтобетона на ширину не менее 50 мм от кромок фрезерованием или обрезкой алмазными дисками по контуру с последующим удалением асфальтобетона отбойными молотками и грунтовкой стенок. Заделка трещин при большой ширине повреждений производится асфальтобетонной смесью, при ширине разрушении до 50 мм минерально-мастичной смесью и при ширине до 15 мм битумно-полимерной мастикой. Поверхность заполненных пазов посыпается минеральным материалом фракции 2-5 мм.

При многообразии технологических операций с целью сокращения общего времени производства работ (особенно при заделке повторяющихся с постоянной периодичностью температурных трещин) их целесообразно выполнять поточным способом.

В качестве примера на рис. 4.20 приведена циклограмма операции по заделке трещин на магистралях с высокой интенсивностью движения. Данная циклограмма разработана на основании калькуляции трудозатрат, приведенной в сборнике технологических карт. Каждая последующая технологическая операция выполняется после создания необходимого задела на предыдущем частном потоке.

Минимальное снижение пропускной способности ремонтируемого объекта возможно только при работах в течение смены на одной полосе движения (рис. 4.21). При этом каждая трещина будет заделана полностью на всем протяжении за четыре смены на захватке длиной 700 м с шагом между трещинами 25 м.

Рис. 4.20. Циклограмма операций по заделке трещин па магистралях.

 

установка ограждений

снятие ограждений

перемещение на смежную полосу движения

Рис. 4.21. График выполнения работ на захватке.

Примечание. На графике не учтены затраты времени на подготовку к выезду с базы, проезд к месту проведения работ и по их окончании - на базу, перерывы.

4.7. Укладка защитных слоев

Технология приготовления и распределения литых эмульсионно-минеральных смесей принципиально одинакова при использовании машин различных фирм-изготовителей (рис. 4.22).

Эмульсионно-минеральная смесь литой консистенции при распределении должна образовывать непрерывный защитный коврик.

Укладку защитных слоев целесообразно выполнять полосами, равными ширине полосы движения конкретной проезжей части (3,75 или 3,5 м).

В рабочие смены, предшествующие непосредственно укладке защитного слоя, необходимо выполнить следующие подготовительные работы:

- текущий ремонт покрытия с заделкой выбоин и трещин;

- демаркировку линий разметки проезжей части,

- заготовку требуемого количества каменных материалов на притрассовых складах (запас не менее чем на одну смену).

Рис. 4.22. Передвижная установка для приготовления и распределения литых эмульсионно-минеральных смесей; 1 - резервуар для воды; 2 - бункеры для минеральных материалов; 3 - бункер для цемента; 4 - объемный дозатор присадок; 5 - система подачи воды и присадок, 6 - система подачи эмульсии; 7 - смесительное отделение; 8 - распределительная рампа; 9 - конвейер для подачи минеральных материалов; 10 - резервуар для присадок; 11 - резервуар для эмульсии.

Бортовой камень, дождеприемные решетки и люки колодцев, уровень которых находится в нормативных пределах, перестановки не требуют.

Непосредственно перед укладкой слоя производится ограждение участка, очистка и увлажнение (с расходом 0,5 л/м) его поверхности. Допускается укладка смеси при моросящем дожде с обеспечением водоотвода. Люки колодцев, решетки и деформационные швы должны быть перекрыты временными крышками.

При повышенной скользкости покрытия (значение коэффициента сцепления менее 0,3) необходимо выполнить подгрунтовку с использованием битумной эмульсии.

Рабочий цикл укладки защитного слоя включает следующие технологические операции (рис. 4.23): загрузка бункеров и емкостей машины компонентами ЛЭМС на притрассовом складе; переезд машины к месту производства работ; укладка защитного слоя на огражденном участке; переезд машины для загрузки на притрассовом складе.


Рис. 4.23. Циклограмма выполнения производственного процесса по укладке защитного слоя из литой эмульсионно-минеральной смеси на сменной захватке 1000 м шириной 3,75 м (3750 м2).


При необходимости сокращения временного интервала между укладкой слоя и открытием движения предусматривают его прикатку катком на пневмоходу массой до 10 т с целью отжатия воды при распаде эмульсии.

Работы по укладке защитного слоя выполняет бригада в составе 7 человек: машинист укладочной машины 6 разряда - 1; помощники машиниста (операторы) 5-го разряда-2; дорожные рабочие: 5-го разряда-1; 4-го разряда-2; 3-го разряда-1. При необходимости в состав бригады включают машиниста катка 5-го разряда.

Машинист управляет укладочной машиной, при необходимости, с использованием системы связи, выполняет указания оператора об изменении режимов подачи материалов и их смешения. Оператор с дорожным рабочим 5-го разряда регулирует положение распределительной рампы, визуально оценивает степень увлажнения уложенной смеси, в случае необходимости дополнительно ее увлажняет с помощью распылительного устройства. Дорожный рабочий 5-го разряда проверяет качество и равномерность распределения смеси, совместно с рабочими 3-го разряда устраняют выявленные дефекты, заделывают места сопряжения полос, перед последующими заправками машины очищают распределительную рампу. Дорожные рабочие 4-го разряда выполняют обязанности регулировщиков и находятся впереди распределительной машины.

При загрузке распределительной машины в технологическом процессе участвуют машинисты фронтального погрузчика, поливомоечной машины, автогудронатора, а также дорожный рабочий 3-го разряда.

В операциях по расстановке и снятию дорожных знаков и ограждений участвуют дорожные рабочие основной бригады (совместно с водителем бортового автомобиля).

Распад уложенной смеси наступает когда частицы битума в эмульсии начинают соединяться друг с другом и каменным материалом, при этом коричневый цвет смеси сменяется на черный. Формирование слоя начинается при образовании битумной пленки на минеральном заполнителе и почти полном испарении воды. Окончательное обезвоживание уложенного материала, практически не влияющее на эксплуатационные свойства защитного слоя, может занять 2-4 недели.

Полное формирование слоя, при котором допускается открытое движение, происходит (в зависимости от погодных условий) в дневное время за 0,5-2,0 часа. При работе в ночное время возможно закрытие участка с уложенным слоем до 4 часов.

В процессе производства работ необходимо контролировать качество исходных материалов, смеси и уложенного слоя в соответствии с положениями ТУ 5718-001-53737504-00 [14]. Гранулометрический состав каменного материала и качество эмульсии необходимо определять каждую смену.

При каждой заправке распределительной машины проверяется дозировочные устройства.

Ровность и сцепные качества защитного слоя контролируют в соответствии с требованиями СНиП 3.06.03-85 [8] и ВСН 38-90 [19].

5. Приемка работ

В целях повышения ответственности подрядных организаций за качество выполняемых работ разработано и утверждено Правительством Москвы "Положение о критериях оценки качества и определения стоимости выполненных работ по текущему ремонту городских магистралей и улиц" [5]. В "Положении" установлены критерии оценки качества выполненных работ и порядок расчета с подрядными организациями в случаях нарушения ими требований действующих нормативных документов [2, 4, 6, 8, 9], при этом стоимость работ определяется путем вычета из расценки стоимости невыполненных (выполненных некачественно) технологических операций.

Ниже приведены основные критерии оценки качества работ при текущем ремонте асфальтобетонных покрытий и % уменьшения их стоимости:

- выполнение работ без подготовки карт

100 %;

- несоблюдение прямолинейности контуров карт

10 %;

- применение пик вместо лопаток при работе с компрессором

20 %;

- заделка карт без зачистки основания

20 %;

- невыполнение требований по подгрунтовке основания и стенок карт при работе с горячими асфальтобетонными смесями в период строительного сезона

20 %;

- незаделка подготовленных карт в течение одной рабочей смены

100 %;

- нарушение температурного режима при укладке и уплотнении асфальтобетонных смесей

50 %;

- несоблюдение требований по отделке и ровности поверхности

50 %;

- необеспечение требуемого коэффициента уплотнения (выборочно по итогам работы за месяц - снятие с общего объема)

50 %;

- несоблюдение толщины слоя укладываемого покрытия (допустимое отклонение 10 %)

30 %;

- необеспечение шероховатости при работе с литым асфальтом при площади карты более 1 м2

100 %;

- заделка трещин без их надлежащей очистки и полной заливки

100 %;

- отсутствие контрольно-измерительных приборов

50 %.

При ремонте бортового камня предусмотрены следующие оценочные критерии:

- использование бортового камня с внешними дефектами

30 %;

- нарушение геометрических размеров основания и обоймы

50 %;

- несоответствие бетонной смеси требованиям ГОСТ 7473-85

50 %;

- превышение допустимых отклонений установленного бортового камня в плане и профиле

20 %;

- превышение допустимой ширины шва

20 %;

- незаполнение швов раствором

30 %.

Определение стоимости устанавливают по результатам комиссионного обследования с участием представителей организаций-заказчиков и подрядных организаций с составлением соответствующего акта. Сумма удержанных средств остается у заказчика на статье "Эксплуатационные расходы" для финансирования текущего ремонта дорог.

Объемы выполненных ремонтных работ, особенно на магистралях с высокой интенсивностью движения, целесообразно контролировать с использованием мобильной видеолаборатории по методике НПО "Регион".

Рис. 5.1. Автоматизированный контроль объемов ремонтных работ.

Приемка работ, выполненных картами площадью более 200 м2 осуществляется с учетом требований нормативных и технических документов [5, 8, 9, 17, 22, 24].

Требования СНиП 3.06.03-85 [8] к основным геометрическим параметрам дорожного покрытия приведены в табл. 5.1.

Таблица 5.1

Контроль геометрических параметров дорожного покрытия при ремонте "большими" картами

Контролируемые параметры

Допускаемые отклонения

Разделы СНиП 3.06.03-85

Ширина покрытия (основания)

Не более 10 % результатов могут иметь отклонения от проектных значений в пределах от минус 15 до 20 см, остальные - до ± 10 см

Приложение 2, Гл. 5, п. 2.2.2.

Толщина слоя

Не более 10 % результатов могут иметь отклонения от проектных значений в пределах от минус 15 до 20 мм, остальные - до ± 10 мм

Приложение 2, Гл. 5, п. 2.3.1.

Поперечные уклоны

Не более 10 % результатов могут иметь отклонения от проектных значений в пределах от минус 0,015 (минус 0,010) до 0,030(0,015) , остальные - до ± 0,010(0,005)

Приложение 2, Гл. 5, п. 2.4.

Ровность (просвет под рейкой длиной 3 м)

Не более 5 % результатов определений могут иметь значения просветов в пределах до 10(6) мм, остальные - до 5(3) см

Приложение 2, Гл. 5, п. 2.5.4.

Примечание. Показатели в скобках относятся к работам, выполняемым с применением машин с автоматической системой задания вертикальных отметок.

В соответствии с рекомендациями [20, 22] ширину и ровность уложенного слоя покрытия проверяют через 100 м; ровность - через 30-50 м. Измерения производят на расстоянии 1,0-1,5 м от бортового камня [20], а также на расстоянии 0,5-1,0 м от края каждой полосы движения [8].

Для оценки качества асфальтобетона в уложенном слое отбирают пробы (керны или вырубки) не ближе 1,5 м от бортового камня из расчета: одна проба с каждых 3000 м2 покрытия [17, 20]. Пробы отбирают не раньше чем через трое суток после укладки.

Коэффициент уплотнения асфальтобетона должен быть не ниже: из смесей высокоплотных и смесей плотных типа А и Б - 0,99; типа В, Г, Д и для нижнего и основного слоев - 0,98. Водонасыщение в % по объему для образцов из покрытий (вырубок или кернов) должно быть не более: из смесей типа высокоплотных - 3,0; плотных А - 5,0; Б, В, Г - 4,5; Д - 4,0; для основного и нижнего слоев - 3,0-8,0.

Одновременно при отборе проб измеряют толщину покрытия и оценивают качество сцепления с нижележащим слоем.

Сцепные качества покрытия (коэффициент сцепления, шероховатость) в соответствии с п. 14.6 СНиП 3.06.03-85 [8] должны быть определены на каждой полосе движения (3-5 измерений на 1000 м по одной полосе наката). Оценку сцепных качеств следует производить после ремонта "большими картами" не ранее чем через две недели после завершения работ; при устройстве защитных слоев - перед открытием движения.

Для обеспечения безопасности движения встречных автомобилей на двухполосных дорогах и движущихся по смежным полосам многополосных дорог, а также при съездах автомобилей на укрепленные полосы или прикромочные зоны обочин изменение коэффициента сцепления в поперечном профиле дорожного полотна не должно превышать 0,10 [19].

При приемке отремонтированного бортового камня определяют следующие геометрические показатели с учетом допустимых отклонений [22]:

- соблюдение отметок верха бортовых камней

± 0,5 см;

- размеры бортовых камней по длине и высоте

± 5 мм;

- наличие трещин на бортовом камне

не допускается;

- ширина расшитого шва

не более 5 мм.

6. Техника безопасности и охрана труда при производстве ремонтных работ. Охрана окружающей среды

К ремонтным работам допускаются лица, достигшие совершеннолетия, прошедшие медицинский осмотр, вводный (общий) инструктаж по технике безопасности и инструктаж по технике безопасности на рабочем месте (проводится также при переходе на другую работу и при изменении условий труда). Проведение инструктажа оформляется документально. После инструктажа не позднее одного месяца со дня поступления на строительство необходимо обучить рабочих по утвержденной программе безопасным методам работы. По окончании обучения организуется проверка знаний рабочих с выдачей им удостоверений. Проверка знаний проводится ежегодно.

К работе на механизмах допускаются лица, имеющие удостоверение о прохождении техминимума и право на управление механизма. Дорожные рабочие обучаются безопасным приемам выполнения работ.

В бытовых помещениях должна быть аптечка с медикаментами и средствами оказания первой помощи пострадавшим, а также бачок с питьевой водой. Во всех опасных в пожарном отношении местах должны быть установлены щиты с противопожарным инструментом. Запрещается курить и пользоваться открытым огнем при обращении с легковоспламеняющимися материалами и жидкостями.

Перед началом работы следует проверить ручной инструмент, который должен иметь исправные рукоятки, гладкую поверхность и должен быть плотно насажен на металлические части. Конструкция механизированного ручного инструмента должна отвечать требованиям "Санитарных норм и правил при работе с инструментами, механизмами и оборудованием, создающими вибрацию, передаваемую на руки работающих, и по ограничению общей вибрации рабочих мест".

Все работающие должны быть обеспечены спецодеждой (униформой) со светоотражающими вставками, спецобувью и другими средствами индивидуальной защиты.

Работы на проезжей части могут производить только организации, имеющие необходимые технические средства обеспечения безопасности дорожного движения (дорожные знаки с улучшенными светотехническими характеристиками, импульсные дорожные стрелки, сигнальные фонари).

Проведение работ на проезжей части без предварительного уведомления подразделений Управления ГИБДД не допускается. Для обеспечения безопасности производства работ на основных магистралях города подрядные организации в обязательном порядке подают заявки на выделение инспекторов подразделений Управления ГИБДД.

Расстановку дорожных знаков и ограждение мест работ выполняют в соответствии с типовыми схемами, утвержденными Правительством Москвы (рис. 6.1-6.5). Средства организации дорожного движения, расположенные ранее на участке, где будут производиться дорожные работы, должны быть сняты или зашторены, если они противоречат временной схеме организации движения, принятой на период производства работ.

Установка временных дорожных знаков и ограждений, а также выполнение других мероприятий производятся силами и средствами организации, производящей работу. Дорожные знаки, устанавливаемые в зоне производства работ, должны иметь внешнее или внутреннее освещение или световозвращающую поверхность и соответствовать требованиям ГОСТ 10807-78. Знаки со световозвращающей поверхностью должны применяться на участках дорог без стационарного освещения, знаки с внутренним или внешним освещением - на участках улиц со стационарным освещением, дорожные знаки следует устанавливать с правой стороны дороги. Дорожные знаки, расположенные с одной из сторон по ходу на дорогах с разделительной полосой, должны быть повторены на противоположной стороне в пределах разделительной полосы, тротуара или проезжей части, если условия движения таковы, что знак может быть не замечен водителями.

Расстановка конусов должна обеспечивать плавное изменение направления движения при объезде мест работ, а также перевод движения с одной полосы движения на другую.

Стандартные ограждения устанавливают поперек дороги с обеих сторон сплошными рядами, а вдоль дороги - с интервалами 5-10 м. Конусы должны устанавливаться не реже чем через 3 м.

При установке борта в местах кабельных прокладок запрещается работать ломами, клиньями. Грузить и выгружать бортовые камни следует при помощи подъемных механизмов, оборудованных специальными захватами. При необходимости разрешается переносить бортовые камни четырем рабочим при помощи специальных клещей. Перемещение их волоком запрещается. Осадку камней трамбовкой разрешается производить только через деревянную прокладку, удерживаемую на осаживаемом камне специальными клещами.

Пневматические инструменты должны исключать возможность вылета рабочих частей из буксы. Во избежание сильной отдачи инструменты должны быть обязательно тщательно отрегулированы. Необходимо следить, чтобы клапаны на рукоятках пневматических инструментов были плотно пригнаны и в закрытом положении не пропускали воздух. При этом клапаны должны легко открываться и быстро закрываться при прекращении нажима на управляющую рукоятку.


Рис. 6.1. Типовая схема оборудования места производства работ в городских условиях при ремонте левой (крайней) полосы движения.

Рис. 6.2. Типовая схема оборудования места производства работ в городских условиях при ремонте средних полос движения.

Рис. 6.3. Типовая схема оборудования места производства работ на МКАД при ремонте левой (крайней) полосы движения.

Рис. 6.4. Типовая схема оборудования места производства работ на МКАД при ремонте второй и третьей полос движения.

Рис. 6.5. Типовая схема оборудования места производства работ на МКАД при ремонте по всей ширине проезжей части (в одном направлении).


Присоединение к пневматическому инструменту резиновых шлангов, а также их отсоединение производятся только после выключения подачи воздуха. Перед началом работ рекомендуется тщательно проверить пневматический инструмент, присоединение его к шлангу, а также шланга к воздухопроводной сети. До присоединения к пневматическому инструменту шланг надо тщательно продуть. Подачу воздуха допускается включать только после того, как инструмент поставлен в рабочее положение. При переносе не разрешается держать инструмент за шланг или рабочую часть. Смена рабочей части производится только после остановки.

Во время распределения вяжущих материалов автогудронаторами категорически запрещается разжижать битум путем непосредственного залива разжижителя в бак автогудронатора. При зажигании форсунки топливо следует подавать сначала слабой струей, постепенно увеличивая его подачу до нормальной работы форсунки. Зажигать форсунку можно только при помощи факела.

Вяжущие, налитые в бак автогудронатора, имеют высокую температуру (до 160 °С), поэтому при обращении с ними необходимо соблюдать осторожность. Запрещается находиться кому бы то ни было ближе 10 м от распределительной трубы автогудронатора. До начала розлива битума надо погасить форсунки и закрыть вентили трубопровода подачи топлива.

Для приемки асфальтобетонной смеси, а также других материалов на каждом объекте из состава, бригады выделяется рабочий-сигнальщик. Сигнальщик должен быть проинструктирован непосредственно на рабочем месте. Содержание инструктажа и фамилия, имя, отчество сигнальщика должны быть записаны в журнале инструктажа рабочих.

Для измерения температуры асфальтобетонной смеси, доставляемой с завода; запрещается становиться на подножку движущегося автомобиля-самосвала.

Во время разгрузки автомобиля-самосвала запрещается нахождение рабочих между бункером укладчика и автомобилем с асфальтобетонной смесью. Поднятый кузов автомобиля-самосвала следует очищать от налипших кусков смеси скребком с длинной ручкой. Нельзя ударять по днищу кузова снизу. Рабочим, производящим очистку кузова, следует стоять на земле, а не на колесах или бортах автомобиля-самосвала.

Запрещается нахождение рабочих на свежеуложенном асфальтобетонном покрытии во время его укатки катками.

Во время работы выход за зону ограждения места работы категорически запрещается, переходить улицу можно только в установленных для перехода местах. Нахождение посторонних лиц в зоне производства работ запрещается.

Во время перерывов в работе инструмент следует складывать аккуратно и только в зоне ограждения, исключая возможность наезда на него транспорта. Отдых при перерывах в работе разрешается только в бытовом помещении.

Асфальтобетонные смеси не образуют токсичных соединений в воздушной среде и в воде, соприкасаясь с другими нетоксичными материалами, при воздействии температуры, давлений, не оказывают отрицательного влияния на окружающую среду.

Асфальтобетонные смеси, применяемые в дорожных конструкциях, по удельной активности естественных радионуклидов должны соответствовать требованиям ГОСТ 30108-94.

При ремонтных работах наибольшее воздействие на окружающую среду оказывают дорожные и транспортные машины. Это воздействие проявляется в загрязнении атмосферы, почвы, повышении шумового фона и вибрации.

Мероприятия по уменьшению загрязнений атмосферного воздуха в первую очередь должны быть направлены на уменьшение токсичности отработавших газов. Токсичность газов карбюраторных двигателей обуславливается главным образом содержанием оксидов до 80 % токсичных компонентов углерода и окислов азота, а дизельных двигателей - оксидами азота и сажей (табл. 6.1).

Таблица 6.1

Содержание компонентов отработавших газов

Компоненты отработавших газов

Состав отработавших газов, % по объему, для двигателей

карбюраторного

дизельного

Азот

74-77

76-78

Кислород

0,3-8,0

2-18

Пары воды

3,0-5,5

0,5-4,0

Двуокись углерода

5,0-12,0

1,0-10,0

Окись углерода

1,0-10,0

0,01-0,50

Окислы азота

0,0-0,8

0,001-0,4

Углеводороды

0,2-3,0

0,01-0,1

Альдегиды

0,0-0,2

0,001-0,009

Сернистый газ

0,0-0,002

0,0-0,03

Сажа, мг/м3

0,0-40

10-1500

Бензапирен, мкг/м3

10-20

до 10

Объем отработавших газов, и содержание в них вредных веществ в основном зависят от количества потребляемого топлива и технического состояния двигателя главным образом системы питания. По количеству потребляемого топлива можно судить об объеме выделяемых отработавших газов. Количество воздуха, потребляемое двигателем, и соответственно объем отработавших газов составляют для карбюраторных двигателей 15 кг, для дизельных - в среднем 24 кг на 1 кг топлива.

Полностью исправные машины и механизмы расходуют меньше топлива, меньше загрязняют воздух (на 30-40 % по сравнению со среднестатистическими данными). Топливная экономичность определяется в основном исправностью системы питания двигателя.

Для бензиновых двигателей объемная доля СО2, в отработавших газах не должна превышать 1 %, а дымность дизельных двигателей - не более 40 %.

Работа дорожных машин характеризуется частой сменой нагрузочных режимов работы двигателя. Причем токсичность дизелей увеличивается как при снижении рабочей нагрузки, так и при ее повышении. Установлено, что минимальную удельную токсичность отработавших газов имеют дизельные двигатели при 60-70 % рабочей нагрузки, исходя из этого можно определять оптимальный режим работы дорожных машин при выполнении технологических процессов.

Отрицательно воздействуют на здоровье людей, непосредственно принимающих участие в технологических процессах и проживающих в прилегающей жилой застройке, а также на флору и фауну шум и вибрация, создаваемые машинами. При работе асфальтоукладчиков старых моделей уровень звука может достигать 88-110 дБ. В кабине машиниста тяжелого катка уровень звука составляет 90 дБ, на расстоянии 7 м - 80 дБ. Уровень звука компрессорных установок, используемых при ремонтных работах - 96-101 дБ.

В соответствии с требованиями безопасности уровни звука на местах работы машинистов и обслуживающего персонала не должны превышать 85 дБ. Снижение шума от дорожных и транспортных машин возможно при звукоизоляции шумообразующих узлов от внешней среды, а также применении технологических процессов с меньшим шумообразованием.

Шум тесно связан по своей физической природе с вибрацией. Вибрация, подобно шуму, приводит к снижению производительности труда, нарушает деятельность центральной и вегетативной нервной системы, приводит к заболеваниям сердечно-сосудистой системы.

Вибрация от дорожных машин может возникать вследствие вращательного или поступательного движения неуравновешенных масс двигателя и механических систем машин даже тогда, когда они работают в стационарном режиме. Вибрация возникает также вследствие перегрузки или неправильной загрузки машин. Так, параметры вибрации при работе асфальтоукладчика могут превышать предельно допустимый уровень на 1-3 дБ, при работе вибрационного катка - на 1-6 дБ. Наименее низкие уровни вибрации имеют моторные катки на пневматических шинах.

Борьба с вибрационными колебаниями заключается в снижении уровня вибрации самого источника возбуждения, а также применении конструктивных мероприятий на пути распространения колебаний.

Нормативные документы, техническая и справочная литература

1. Классификация работ по ремонту и содержанию объектов внешнего благоустройства городов, рабочих, курортных поселков и райсельхозцентров РСФСР, Госкомитете РСФСР по жилищно-коммунальному хозяйству М., 1991.

2. Временные правила производства дорожно-ремонтных работ на основных улицах и магистралях Москвы: Приложение к распоряжению Премьера правительства Москвы "О мерах по улучшению организации дорожно-ремонтных работ" от 13.04.95 № 326-РП.

3. Распоряжение Правительства Москвы от 23.10.98 № 971-РЗП "О дополнительных мерах по усилению контроля и обеспечению безопасности дорожного движения при проведении дорожно-строительных работ на городских улицах и магистралях".

4. Требования по производству и приемке работ по текущему ремонту городских магистралей и улиц./Управление жилищно-коммунального хозяйства и благоустройства Правительства Москвы. Утверждено 31.03.2000.

5. Положение (временное) о критериях оценки качества и определения стоимости выполненных работ по текущему ремонту городских магистралей и улиц / Правительство Москвы - Комплекс городского хозяйства. Утверждено 21.04.2000.

6. Нормы и правила проектирования планировки и застройки г. Москвы. МГСН 1.01-99. / Правительство Москвы, 2000.

7. Дорожные конструкции для г. Москвы. СК 6101-97. Части I и II. Комитет по архитектуре и градостроительству. Правительство Москвы. М., 1997.

8. СНиП 3.06.03-85. Автомобильные дороги / Госстрой СССР. М., 1986.

9. Государственный стандарт Российской Федерации. ГОСТ Р 50597-93. Автомобильные дороги и улицы. Требования к эксплуатационному состоянию, допустимому по условиям обеспечения безопасности дорожного движения / Госстандарт России. 1994-07-01.

10. ГОСТ 9128-97. Смеси асфальтобетонные дорожные, аэродромные и асфальтобетон. Технические условия МНТКС. М., 1997.

11. ГОСТ 6665-91. Камни бортовые бетонные и железобетонные. Технические условия. М., 1991.

12. ТУ 400-24-158-9-80. Смеси асфальтобетонные литые и литой асфальтобетон. НИИ Мосстрой. М., 1995.

13. ТУ 5577-002-4284072-98. Битумно-полимерная (каучуковая) дорожная мастика ЗАО фирма "ЭМКА". Разработано АОЗТ "Инженерный Центр". М., 2000.

14. ТУ 5718-001-53737504-00. Смеси эмульсионно-минеральные для устройства слоев износа. Технические условия. НИИ МК МАДИ (ТУ). НИИ Мосстрой. М., 2000.

15. Смеси органо-минеральные дорожные, ремонтные. Технические условия на опытную партию. НИИ Мосстрой. М., 1999.

16. Мастика полимер-битумная. Технические условия на опытную партию. АОЗТ "Инженерный Центр". М., 1995.

17. Инструкция по строительству дорожных асфальтобетонных покрытий. ВСН 14-95. Департамент строительства. Мосстройлицензия. М., 1995.

18. Инструкция по устройству и ремонту дорожных покрытий с применением литого асфальта. ВСН 60-97. НИИ Мосстрой. М., 1997.

19. Технические указания по устройству дорожных покрытий с шероховатой поверхностью. ВСН 38-90. М.: Транспорт, 1990.

20. Технические рекомендации по устройству дорожных конструкций с применением асфальтобетона. ТР 103-00. Правительство Москвы. Комплекс архитектуры, строительства, развития и реконструкции города. М., 2000.

21. Сборник технологических карт на текущий ремонт городских дорог и улиц с асфальтобетонным покрытием. 2-е издание, переработанное и дополненное / С. В. Суханов, А. Д. Семенов, Н. В. Борисюк, А. П. Лупанов, А. С. Суханов. М.: Доринвест, 1999.

22. Сборник нормативных требований к качеству выполнения строительных работ в соответствии с классификатором СНиП 4.3 "Организация производства и приема работ". Часть VII. Требования СНиП 3.06.03-85 "Автомобильные дороги". Мосстройлицензия, АОЗТ, ЦНИИОМТП, МАДИ (ТУ). М., 1995.

23. Операционный контроль качества земляного полотна и дорожных одежд / И.Е. Евгеньев, А. Я. Тулаев, B. C. Порожняков, С. В. Суханов и др. М.: Транспорт, 1985.

24. Пособие по производственному контролю качества при строительстве автомобильных дорог. М.: Российское научно-техническое общество автомобильного транспорта и автомобильных дорог, 2000.

25. Правила по охране труда в дорожном хозяйстве. М.: Стройиздат, 1989.

26. Ремонт и содержание автомобильных дорог. Справочник инженера-дорожника / А. П. Васильев, В. И. Баловнев, М. Б. Корсунский и др. М.: Транспорт, 1989.

27. Краткий справочник техника-дорожника / А. П. Васильев, В. К. Апестин, Ю. Н. Розов, С. В. Суханов и др. М.: Транспорт, 1992.

28. Ефремов Л. Г., Суханов С. В. Строительство и ремонт асфальтобетонных дорожных покрытий. Изд. 2-е, переработанное и дополненное. М.: Высшая школа, 1991.

29. Технология устройства и ремонта асфальтобетонных покрытий. Учебн. пос. / Ищенко И. С., Калашникова Т. Н.,. Семенов Д. А. М.: Аир-Арт, 2001.

 

 




ГОСТЫ, СТРОИТЕЛЬНЫЕ и ТЕХНИЧЕСКИЕ НОРМАТИВЫ.
Некоммерческая онлайн система, содержащая все Российские Госты, национальные Стандарты и нормативы.
В Системе содержится более 150000 файлов нормативно-технической документации, действующей на территории РФ.
Система предназначена для широкого круга инженерно-технических специалистов.

Рейтинг@Mail.ru Яндекс цитирования

Copyright © www.gostrf.com, 2008 - 2026