Крупнейшая бесплатная информационно-справочная система онлайн доступа к полному собранию технических нормативно-правовых актов РФ. Огромная база технических нормативов (более 150 тысяч документов) и полное собрание национальных стандартов, аутентичное официальной базе Госстандарта. GOSTRF.com - это более 1 Терабайта бесплатной технической информации для всех пользователей интернета. Все электронные копии представленных здесь документов могут распространяться без каких-либо ограничений. Поощряется распространение информации с этого сайта на любых других ресурсах. Каждый человек имеет право на неограниченный доступ к этим документам! Каждый человек имеет право на знание требований, изложенных в данных нормативно-правовых актах!

  


 

ТИПОВЫЕ ТЕХНОЛОГИЧЕСКИЕ КАРТЫ НА ПРОИЗВОДСТВО ОТДЕЛЬНЫХ ВИДОВ РАБОТ

ТИПОВАЯ
ТЕХНОЛОГИЧЕСКАЯ КАРТА

НА БЕТОННЫЕ И ЖЕЛЕЗОБЕТОННЫЕ РАБОТЫ (МОНОЛИТНЫЙ ЖЕЛЕЗОБЕТОН)

6306031082

31082

ВОЗВЕДЕНИЕ 17-ЭТАЖНОГО СБОРНО-МОНОЛИТНОГО ЖИЛОГО ДОМА

РАЗРАБОТАНА

СОГЛАСОВАНО

Институтом «Красноярский Промстройниипроект»

Минуралсибстроя СССР

Управлением механизации и технологии строительства Госстроя СССР

Письмо от 21.01.90 № 12-34

Введена в действие 1.03.1990 г.

Главный инженер института

Начальник отдела

Главный инженер проекта

Б.П. Запятой

Л.С. Василенко

Е.В. Каминов

MOCKВA-1990

Содержание

I. МОНТАЖ И ДЕМОНТАЖ ОБЪЕМНО-ПЕРЕСТАВНОЙ ОПАЛУБКИ ПРИ УСТРОЙСТВЕ СТЕН И ПЕРЕКРЫТИЙ ТИПОВОГО ЭТАЖА

1. ОБЛАСТЬ ПРИМЕНЕНИЯ

2. ОРГАНИЗАЦИЯ И ТЕХНОЛОГИЯ ВЫПОЛНЕНИЯ РАБОТ

3. ТРЕБОВАНИЯ К КАЧЕСТВУ И ПРИЕМКЕ РАБОТ

4. КАЛЬКУЛЯЦИЯ ЗАТРАТ ТРУДА МАШИННОГО ВРЕМЕНИ И ЗАРАБОТНОЙ ПЛАТЫ НА ТИПОВОЙ ЭТАЖ

5. ГРАФИК ПРОИЗВОДСТВА РАБОТ НА ТИПОВОЙ ЭТАЖ

6. МАТЕРИАЛЬНО-ТЕХНИЧЕСКИЕ РЕСУРСЫ

7. ТЕХНИКА БЕЗОПАСНОСТИ

8. ТЕХНИКО-ЭКОНОМИЧЕСКИЕ ПОКАЗАТЕЛИ

9. ФАСЕТНЫЙ КЛАССИФИКАТОР ФАКТОРОВ

II. АРМИРОВАНИЕ ВНУТРЕННИХ СТЕН И ПЕРЕКРЫТИЙ ТИПОВОГО ЭТАЖА

1. ОБЛАСТЬ ПРИМЕНЕНИЯ

2. ОРГАНИЗАЦИЯ И ТЕХНОЛОГИЯ ВЫПОЛНЕНИЯ РАБОТ

3. ТРЕБОВАНИЯ К КАЧЕСТВУ И ПРИЕМКЕ РАБОТ

4. КАЛЬКУЛЯЦИЯ ЗАТРАТ ТРУДА, МАШИННОГО ВРЕМЕНИ, ЗАРАБОТНОЙ ПЛАТЫ НА ТИПОВОЙ ЭТАЖ

5. ГРАФИК ПРОИЗВОДСТВА РАБОТ НА ТИПОВОЙ ЭТАЖ

6. МАТЕРИАЛЬНО-ТЕХНИЧЕСКИЕ РЕСУРСЫ

7. ТЕХНИКА БЕЗОПАСНОСТИ

8. ТЕХНИКО-ЭКОНОМИЧЕСКИЕ ПОКАЗАТЕЛИ

9. ФАСЕТНЫЙ КЛАССИФИКАТОР ФАКТОРОВ

III. БЕТОНИРОВАНИЕ ВНУТРЕННИХ СТЕН И ПЕРЕКРЫТИЙ ТИПОВОГО ЭТАЖА

1. ОБЛАСТЬ ПРИМЕНЕНИЯ

2. ОРГАНИЗАЦИЯ И ТЕХНОЛОГИЯ ВЫПОЛНЕНИЯ РАБОТ

3. ТРЕБОВАНИЯ К КАЧЕСТВУ И ПРИЕМКЕ РАБОТ

4. КАЛЬКУЛЯЦИЯ ЗАТРАТ ТРУДА, МАШИННОГО ВРЕМЕНИ, ЗАРАБОТНОЙ ПЛАТЫ НА ТИПОВОЙ ЭТАЖ

5. ГРАФИК ПРОИЗВОДСТВА РАБОТ НА ТИПОВОЙ ЭТАЖ

6. МАТЕРИАЛЬНО-ТЕХНИЧЕСКИЕ РЕСУРСЫ

7. ТЕХНИКА БЕЗОПАСНОСТИ

8. ТЕХНИКО-ЭКОНОМИЧЕСКИЕ ПОКАЗАТЕЛИ

9. ФАСЕТНЫЙ КЛАССИФИКАТОР ФАКТОРОВ

I. МОНТАЖ И ДЕМОНТАЖ ОБЪЕМНО-ПЕРЕСТАВНОЙ ОПАЛУБКИ ПРИ УСТРОЙСТВЕ СТЕН И ПЕРЕКРЫТИЙ ТИПОВОГО ЭТАЖА

1. ОБЛАСТЬ ПРИМЕНЕНИЯ

1.1. Типовая технологическая карта разработана на опалубочные работы с применением объемно-переставной опалубки SBM-75/м2 при возведении семнадцатиэтажного сборно-монолитного жилого дома.

1.2. Монтаж и демонтаж опалубки осуществляется с помощью башенного крана КБ-405.1.

1.3. Высота этажа возводимого монолитного здания - 2,8 м.

1.4. Типовая технологическая карта разработана на измеритель конечной продукции - типовой этаж.

1.5. За основу разработки карты приняты чертежи типового проекта 17-ти этажного сборно-монолитного жилого дома, разработанного НИПКТИ монолитного домостроения НПО «Союзмонолиттяжстрой», г. Ростов-на-Дону (шифр проекта -85555).

1.6. Привязка типовой технологической карты к конкретным условиям строительства заключается в уточнении объемов работ, средств механизации, калькуляции затрат труда и графика производства работ.

1.7. В качестве условия выполнения работ принята пятая температурная зона. Строительство ведется в летний период, в три смены, звеньями монтажников по 12 человек.

1.8. Суммарный вес монтируемого комплекта опалубки на типовом этаже - 101,9 т.

2. ОРГАНИЗАЦИЯ И ТЕХНОЛОГИЯ ВЫПОЛНЕНИЯ РАБОТ

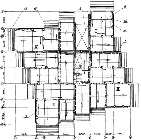
2.1. Все опалубочные работы ведутся на четырех технологически захватках.

2.2. До начала опалубочных работ должны быть выполнены следующие подготовительные работы:

подготовлены площадки с твердым покрытием для чистки и смазки опалубки;

произведена доработка и доизготовление нестандартных полутуннелей и недостающих элементов опалубки;

доставлен в зону монтажа комплект опалубки;

произведена укрупнительная сборка опалубки.

2.3. Сборку опалубки должна осуществлять бригада рабочих под руководством лиц, изучивших инструкцию по применению и обслуживанию опалубки системы SBM-75/м2.

Собранные полутуннели должны отвечать следующим требованиям:

щиты полутуннеля должны плотно прилегать друг к другу, щель между ними не должна быть более 2 мм;

пропеллерность палуб щитов должна быть не более 2 мм;

отклонение плоскости палубы стенового щита от вертикали не должна превышать 2,5 мм на длину щита;

отклонение плоскости палубы щита перекрытия от горизонтали не должна быть более 1 мм на 1 м ширины полутуннеля.

Собранные полутуннели, торцевые щиты, подмости складируются на площадке складирования в положении, соответствующем рабочему. Шарнирные узлы и резьбовые соединения покрываются антикоррозийными смазками.

2.4. Место установки опалубки (перекрытие нижележащего этажа) должно быть очищено от посторонних предметов, мусора, грязи. Произведена геодезическая проверка правильности выполнения порогов стен. Геодезический контроль выполняется поэтажно на каждой захватке.

Перед установкой опалубка должна быть полностью укомплектована, при необходимости - отремонтирована, очищена от остатков старого бетона, все элементы опалубки промаркированы и приведены в рабочее состояние.

2.5. Монтаж опалубки ведется в следующем порядке:

закрытие проемов в перекрытии инвентарными щитами (при этом щиты не должны препятствовать выкатыванию полутуннелей на выкатные подмости);

установка подмостей в местах прохода лестничной клетки в шахте лифта;

установка выкатных подмостей;

монтаж наружных стеновых панелей ПС-3;

установка и закрепление между собой блоков полутуннелей и отдельных полутуннелей, а также установка, проемообразователей стен;

установка торцевой опалубки;

установка проемообразователей перекрытий;

установка опалубки торцов стен и перекрытий;

установка опалубки порогов стен;

контроль установки опалубки на захватке.

2.6. С целью повышения производительности труда перед монтажом опалубки производят укрупнительную сборку полутуннелей в блоки с закреплением на них ходовых подмостей и торцевых щитов. Собранные в блоки полутуннели необходимо сразу отрегулировать.

Для подачи блока опалубки к месту монтажа на этаж к нему крепится балка длиной 3000 или 4000 мм в зависимости от длины блока. Балка устанавливается таким образом, чтобы отверстие диаметром 35 мм для крепления траверсы находилось по центру тяжести системы блок-балка. Центры тяжести блочных систем определяются расчетом.

2.7. Собранные и отрегулированные блоки полутуннелей должны отвечать следующим требованиям:

полутуннели должны плотно прилегать друг к другу, щели в стыковых соединениях не должны быть более 2 мм;

перепад между смежными щитами, не более 2 мм.

2.8. По окончании сборки блоки полутуннелей подают краном на пост смазки и наносят равномерно на рабочие поверхности палубы стен и перекрытий антиадгезионную смазку.

Затем блоки-полутуннели подают к месту монтажа краном.

2.9. Выкатные подмости для выкатывания блоков полутуннелей устанавливаются на перекрытии нижележащего этажа. Плоскость настила выкатных подмостей должна совпадать с плоскостью перекрытия, где будут установлены полутуннели и блоки полутуннелей.

2.10. Наружные стеновые панели ПС-3, примыкающие к наружным железобетонным монолитным стенам, используются при бетонировании как опалубочные. Все опалубочные панели устанавливаются до установки блоков полутуннелей, затем выполняется армирование.

Закрепление панели в проектном положении осуществляется путем приварки закладных деталей панели к выпускам стального проката, выходящего из монолитной стены нижележащего, этажа. При монтаже строго соблюдать шов δ = 20 мм между нижележащей и вышележащей панелью. Шов раствором первоначально не заполнять.

2.11. Полутуннели и блоки полутуннелей выставляются в проектное положение по порогам стен, выполненным при возведении нижележащего этажа. После установки блоков полутуннелей производят выверку опалубки по нивелиру домкратами полутуннелей и стойками.

2.12. После выверки блоков полутуннелей производится соединение их между собой.

До окончательной фиксации смежных блоков стяжками, необходимо установить в верхней части опалубки элементы опалубки порогов стен (расширители марки RS-16).

2.13. Блоки полутуннелей, примыкающие к наружным торцевым стенам (опалубочные панели), усиливаются опорными рамами. Опорная рама предназначена для опирания стенового щита полусекции со стороны торцевой стены и заменяет стяжки для фиксации опалубки. Опорные рамы крепятся к полутуннелям в процессе укрупнительной сборки блоков полутуннелей и в процессе монтажа транспортируются вместе с ними.

2.14. Для формования проемов перекрытий используются инвентарные проемообразователи. При отсутствии таковых проемообразователи изготавливаются из обрезных строганных досок по месту.

2.15. После окончания бетонирования стен на захватке устанавливается пороговая опалубка. Сборка опалубки порогов стен выполняется по месту, опирая ее на ранее установленные расширители. При этом устанавливаются инвентарные отсекатели для формования нижней части дверных проемов. В местах установки расширителей арматурные сетки перекрытия в случае необходимости вырезать по месту, стержни отогнуть.

2.16. Установленная на захватке опалубка принимается мастером или производителем работ.

2.17. Демонтаж опалубки выполняется в следующем порядке:

демонтаж опалубки порогов стен;

демонтаж опалубки торцов стен и перекрытий;

демонтаж проемообразователей перекрытий;

демонтаж торцевой опалубки;

демонтаж полутуннелей, блоков полутуннелей, проемообразователей стен;

демонтаж выкатных подмостей;

демонтаж подмостей лестничной клетки и шахты лифта.

2.18. Демонтаж блоков полутуннелей производится путем выкатывания их на выкатные подмости. Блоки полутуннелей извлекать целиком. При этом строповку следует выполнить после перемещения центра тяжести блока за пределы оформованного перекрытия на 850 мм.

2.19. Демонтаж подмостей лестничной клетки и шахты лифта производится после выполнения бетонных работ на захватке. Полутуннели, формирующие стены и перекрытия в зоне лестнично-лифтового блока, извлекаются вверх через соответствующие проемы, разворачиваются на 180° и устанавливаются на следующей захватке. Прочность бетона при распалубке определяется в соответствии с требованиями СНиП 3.03.01-87.

2.20. Складирование элементов опалубки выполняется на подкладках, защищающих их от соприкосновения с землей. При длительном хранении на открытом воздухе каждый штабель необходимо накрывать брезентом.

2.21. Сборные элементы лестничной клетки, вентблоки, наружные ограждающие конструкции, сборные элементы лоджий, балконов, консоли монтируются с отставанием в 2 этажа.

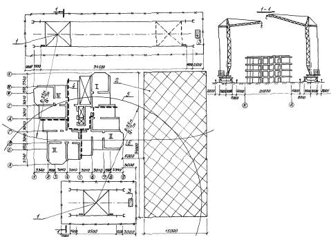
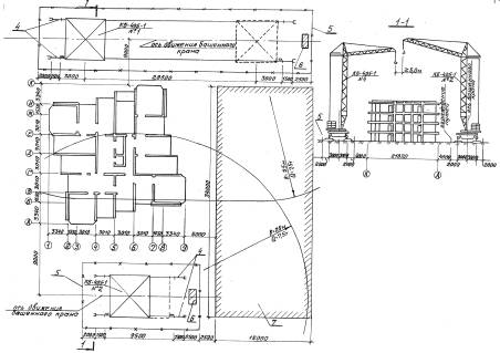
2.22. ТТК предусмотрена установка башенного крана № 2 на одном звене, так как зона складирования материалов и монтажная зона крана обслуживаются с одной стоянки крана. В этом случае звено должно быть уложено на жестком основании, исключающем просадку подкрановых путей. Таким основанием могут служить сборные фундаментные блоки или специальные сборные конструкции. При невозможности устройства жесткого основания башенный кран № 2 установить на два звена подкрановых путей общей длиной не менее 25 м.

2.23. Демонтаж элементов туннельной опалубки производится после достижения бетоном стен и перекрытий не менее 70 % проектной прочности. Применение Г-образных полусекций опалубки позволяет более интенсивно оборачивать опалубку, так как распалубка может осуществляться при меньшей прочности бетона перекрытий. В этом случае необходимо после распалубки и извлечения одной Г-образной полусекции перед распалубкой второй примерно посередине пролета установить телескопические стойки, входящие в комплект опалубки SВМ-75/м2. Перед демонтажом опалубки необходимо получить заключение строительной лаборатории о фактической прочности бетона.

Рис. 1. Схема производства:

1 - кран КБ-40Б.1 (R=25 м, Q=7т); 2 - площадка складирования материалов и укрупнительной сборки полутуннелей; 3 - контрольный груз; 4 - граница эахваток; 5 - радиус действия башенного крана

Рис. 2. Схема строповки блока полутуннелей:

а) блок полутуннелей, состоящий из трех секций; б) блок полутуннелей состоящий из двух секций; 1 - специальное, транспортное приспособление; 2 - блок полутуннелей; 3 - крюк башенного крана.

Рис. 3. Схема строповки отдельной полусекции:

1 - специальное транспортное приспособление; 2 - блок полутуннелей; 3 - крюк башенного крана

Pиc. 4. Схема строповки торцевой опалубки:

4 - двухветвевой строп 2СК (L = 5 м, Q = 5 м); 5 - торцевая опалубка

Рис. 5. Схема строповки выкатных подмостей:

6- четырехветвевой строп 4CК (L = 5 м , Q - 5 т); 7 - выкатные подмости

Рис. 6. Схемы складирования:

A) собранных полусекций; Б) стеновых щитов; B) щитов перекрытия;

1 - собранная полусекцця; 2 - стеновой щит; 3 - щит перекрытия; 4 - деревянная прокладка; 5 - деревянный брусок

Рис. 7. Схема складирования в узлах:

A) собранных полусекций или блоков полутуннелей; Б) торцевой опалубки;

1 - собранная полусекция или блок полутуннеля; 2 - торцевая опалубка; 4 - деревянная прокладка

Рис. 8. Схема раскладки опалубки на 1 захватке.

Порядковые номера опалубок на схеме соответствуют порядковым номерам спецификации

Рис. 9. Схема раскладки опалубки на II захватке:

1 - блок полутуннеля с ходовыми подмостями и торцевым щитом; 2 - подмости лестничной клетки и шахты лифта

Рис. 10. Схема раскладки опалубки на III захватке

3 - торцевая опалубка; 4 - опалубочная стеновая панель ПС-3; 5 - выкатные подмости

Рис. 11. Схема раскладки опалубки на IV захватке

Рис. 12. Схема технологической последовательности опалубочных работ на I захватке

-

очередность монтажа блоков полутуннелей и элементов опалубки на этаже

очередность демонтажа блоков полутуннелей и других элементов опалубки на этаже

Рис. 13. Схема технологической последовательности опалубочных работ на II захватке

Примечание: Условные обозначения приведены на рис. 9, 10.

Рис. 14. Схема технологической последовательности опалубочных работ на III захватке

Рис. 15. Схема технологической последовательности опалубочных работ на IV захватке

Рис. 16. Схема раскладки пороговой опалубки на I захватке.

Примечание. Условные обозначения приведены на рис. 19.

Рис. 17. Схема раскладки пороговой опалубки на II захватке

Примечание. Условные обозначения приведены на рис. 19.

Рис. 18. Схема раскладки пороговой опалубки на III захватке.

Примечание. Условные обозначения приведены на рис. 19.

Рис. 19. Схема раскладки пороговой опалубки на IV захватке.

Условные обозначения:

1 - пороговый затвор; 2 - серединный или боковой расширитель (устанавливается через 1200¸1600 мм); 3 - пороговая обойма (устанавливается через 1200-1800 мм); 4 - пороговый угольник с указанием длины элемента


СПЕЦИФИКАЦИЯ ЭЛЕМЕНТОВ ОПАЛУБКИ

Таблица 1

№ пп

Наименование элементов

Каталожное обозначение

Количество

Масса, кг

Примечания

1 захватка

П захватка

Ш захватка

1У захватка

всего

единицы

общая

1.

Полусекция

ZK 180´150

6

3

3

3

15

518

7770

 

2.

Полусекция

ZK 180´290

3

3

3

3

12

645

7740

 

3.

Полусекция

ZK 240´12,5

6

6

3

5

20

598

11960

 

4.

Полусекция

ZK 240´172,5

6

6

3

5

20

676

13520

 

5.

Полусекция

ZK 180´112,5

2

2

6

-

10

470

4700

 

6.

Полусекция

ZK 180´172,5

2

2

6

-

10

530

5300

 

7.

Полусекция

ZK 46´81

1

-

-

-

1

72

72

индивидуал.изготовл.

8.

Полусекция

ZK 180´81

3

-

-

-

3

280

840

индивидуал.изготовл.

9.

Полусекция

ZK 180´90

4

-

-

-

4

458

1832

 

10.

Полусекция

ZK 180´60

4

-

-

-

4

427

1708

 

11.

Полусекция

ZK 46´90

1

1

-

-

2

117

234

индивидуал.изготовл.

12.

Полусекция

ZK 46´60

1

1

-

-

2

109

218

индивидуал.изготовл.

13.

Полусекция

ZK 46´150

1

-

-

-

1

132

132

индивидуал.изготовл.

14.

Торцевой щит

РСР-290

1

1

1

1

4

458

1832

 

15.

Торцевой щит

PCL-150

2

1

1

1

5

262

1310

 

16.

Торцевой щит

РСР-172,5

3

3

3

2

11

288

3168

 

17.

Торцевой щит

PCL-112,5

3

3

3

2

11

199

2189

 

18.

Торцевой щит

PCP-81

1

-

-

-

1

141

141

индивидуал.изготовл.

19.

Торцевой щит

PCL-90

1

-

-

-

1

227

227

 

20.

Торцевой щит

РСР-60

1

-

-

-

1

113

113

 

21.

Торцевой щит

PCL-60

-

1

-

-

1

113

113

 

22.

Торцевой щит

РСР-90

-

1

-

-

1

227

227

 

23.

Торцевой щит

PCP-150

-

-

1

-

1

262

262

 

24.

Торцевой щит

PCL-81

-

-

1

-

1

141

141

индивидуал.изготовл.

25.

Торцевая опалубка

DS-120

7

1

2

1

11

339

3729

 

26.

Торцевая опалубка

D3-180

3

-

-

1

4

486

1944

 

27.

Торцевая опалубка

DS-240

6

-

-

-

6

590

3540

 

28.

Внутренний угольник

DS-15

2

-

-

-

2

183

366

 

29.

Внутренний угольник

DS-26´18,5

2

-

-

-

2

78

156

индивидуал. изготовл.

30.

Внутренний угольник

DS-18,5´26

2

-

-

-

2

78

156

индивидуал. изготовл.

31.

Внутренний угольник

DS-26´49

2

-

-

-

2

131

262

индивидуал. изготовл.

32.

Внутренний угольник

DS-49´26

2

-

-

-

2

131

262

индивидуал. изготовл.

33.

Выкатные подмости

PM-301

3

3

3

2

11

846

9306

индивидуал. изготовл.

34.

Выкатные подмости

РМ-456

1

1

1

1

4

1282

5128

индивидуал. изготовл.

35.

Ходовые подмости

РС-90

3

3

3

2

11

52,5

577,5

 

36.

Ходовые подмости

PC-150

4

4

4

3

15

79,5

1192,5

 

37.

Ходовые подмости

РС-300

1

1

1

1

4

104

416

 

38.

Опалубка торца перекрытия

ZST-112,5´106

1

-

-

-

1

32

32

индивидуал. изготовл.

39.

Опалубка торца перекрытия

ZST-172,5

3

3

3

2

11

25,3

278,3

индивидуал. изготовл.

40.

Опалубка торца перекрытия

ZST-150

1

1

1

1

4

22

88

индивидуал. изготовл.

41.

Опалубка торца перекрытия

ZST-290

1

1

1

1

4

42,5

170

индивидуал. изготовл.

42.

Опалубка торца перекрытия

ZST-112,5´40

1

1

1

1

4

22,4

89,6

индивидуал. изготовл.

43.

Опалубка торца перекрытия

ZST-112,5´55

1

2

2

1

6

24,6

147,6

индивидуал. изготовл.

44.

Опалубка торца стен

ZSC-P-2

4

4

4

4

12

71

852

индивидуал. изготовл.

45.

Опалубка торца стен

ZSC-L-2

1

1

1

1

4

71

284

индивидуал. изготовл.

46.

Вкладка стеновая дверная

WSD -16´171´210

1

-

-

-

1

127

127

 

47.

Вкладка стеновая дверная

WSD -16´131´226

2

1

-

-

3

125

375

 

48.

Вкладка стеновая дверная

WSD -16´151´226

1

1

-

-

2

131

262

 

49.

Вкладка стеновая дверная

WSD -16´101´210

1

2

1

2

6

109

654

 

50.

Вкладка стеновая дверная

W5D -16´110´210

1

-

2

1

4

111

444

 

51.

Вкладка стеновая дверная

WSD -16´70´210

1

-

-

-

T

97

97

 

52.

Вкладка стеновая дверная

WSD -16´91´210

-

-

3

-

3

105

315

 

53.

Пороговый угольник

KP 16-40

3

6

4

3

16

8

128

 

54.

Пороговый угольник

KP 16-67,5

3

-

-

-

3

11,8

35,4

 

55.

Пороговый угольник

KP 16-90

6

3

2

3

14

15

210

 

56.

Пороговый угольник

KP 16-140

14

10

10

6.

40

21,4

856

 

57.

Пороговый угольник

KP 16-200

15

16

14

13

58

29,2

1693,6

 

58.

Пороговый угольник

KP 16-260

1

3

6

7

17

37,4

635,8

 

59.

Серединный расширитель

RS-16

10

18

15

13

56

3,6

201,6

 

60.

Боковой расширитель

RB-16

20

3

3

4

30

3,2

96

 

61.

Пороговая обойма

OPS-16

10

19

19

17

65

3,6

234

 

62..

Пороговая обойма

OPS-56

3

3

3

3

12

7

84

 

63.

Пороговая обойма

0P-28A

20

2

2

2

26

5,1

132,6

 

64.

Пороговый затвор

ZP-16

12

8

11

6

37

1,8

66,6

 

65.

Соединительные элементы пороговой опалубки

LP-16, LK-16, LS-16

 

 

 

-

6

65,4

55,4

 

66.

Балка подмостей

ВРВ-300

6

-

-

-

6

33,4

200,4

 

67.

Балка подмостей

BPB-173

5

-

-

-

5

24,7

123,5

 

68.

Ролик подмостей

RPK-116

22

-

-

-

22

3

66

 

ВСЕГО

101918,4

 


ВАРИАНТЫ РЕКОМЕНДУЕМЫХ БАШЕННЫХ КРАНОВ ДЛЯ МОНТАЖА ОПАЛУБКИ

Таблица 2

Наименование

Вариант (фасет - код)

Техническая характеристика

Марка

Количество на 1 здание

Кран башенный

1 (03-1)

Грузоподъемность до 5 т

МСК-5-20-45, MCK-10-20

2

2 (03-2)

То же 5,5-8 т

КБ-405.1, КБ-160.2

1-2

3 (03-3)

То же 13-25 т

КБ-674

1

3. ТРЕБОВАНИЯ К КАЧЕСТВУ И ПРИЕМКЕ РАБОТ

3.1. При проверке качества и приемке работ руководствоваться требованиями СНиП 3.03.01-87.

3.2. Установленная на захватке опалубка принимается мастером или производителем работ.

При этом проверяется:

соответствие геометрических форм и размеров опалубки проектным;

горизонтальность выкатных подмостей;

правильность установки проемообразователей и закладных деталей;

плотность стыковки щитов и блоков туннелей;

Отклонения в размерах не должны превышать допусков, установленных СНиП 3.03.01-87.

Допущенные отклонения на нижележащих этажах должны быть исправлены при установке опалубки на вышележащих этажах.

3.3. Установка и приемка опалубки, распалубливание, очистка и смазка производятся по утвержденному проекту производства работ.

3.4. Для обеспечения высокого качества монолитных стен и перекрытий необходимо вести постоянное наблюдение за состоянием опалубки и креплений. При выявлении деформации или смещении опалубки, ослаблении креплений бетонирование должно быть прекращено, элементы опалубки, креплений должны быть возвращены в проектное положение и при необходимости усилены.

3.5. Технические критерии и средства контроля операций и процессов приводятся в табл. 3.

Таблица 3

Наименование процессов, подлежащих контролю

Предмет контроля

Инструмент и способ контроля

Время контроля

Ответственный за контроль

Технические критерии оценки качества

Подготовка опалубки к монтажу

Прилегание щитов полутуннеля друг к другу

Метр складной. Инструментальный

В процессе сборки блоков опалубки

Мастер

Щель между щитами не более 2 мм

Сборка полутуннелей в блоки

Пропеллерность палуб щитов

Рейка, метр. Инструментальный

При поступлении на стройплощадку

Мастер

Пропеллерность не более 2 мм на длину опалубки

Отклонение плоскости палубы стенового щита от вертикали

Отвес, метр. Инструментальный

В процессе сборки

Мастер

Отклонение не должно превышать 2,5 мм на длину щита

Отклонение плоскости палубы щита перекрытия от горизонтали

Уровень, метр. Инструментальный

В процессе сборки

Мастер

Отклонение не должно превышать 1 мм на 1 м длины туннеля

Соответствие геометрических размеров, наличие внешних дефектов

Рулетка металлическая. Инструментальный и визуальный осмотр

После сборки в блоки

Мастер, прораб

Соответствие паспортным данным. Уровень дефектности не более 1,5 % по ГОСТ 18242-72*

Смазка рабочих поверхностей палуб

Визуальный осмотр

После сборки в блоки

Мастер

Отсутствие несмазанных мест

Монтаж опалубки

Точность установки опалубки и подмостей

Инструментальный

В процессе монтажа

Мастер

Перепады поверхностей не более 2 мм

Минимальная прочность бетона при распалубке загруженных конструкций

Инструментальный

До распалубки

Мастер, прораб

Определяется ППР и согласовывается с проектной организацией


4. КАЛЬКУЛЯЦИЯ ЗАТРАТ ТРУДА МАШИННОГО ВРЕМЕНИ И ЗАРАБОТНОЙ ПЛАТЫ НА ТИПОВОЙ ЭТАЖ

Таблица 4

Наименование процесса

Номера фасет для пересчета показа­телей

Единица измере­ния

Объем работ

Обосно­вание (ЕНиР и др. нормы)

Норма времени

Расценка, руб.-коп.

Затраты труда

Заработная плата, руб.-коп.

Время пребы­вания машины на объекте, маш.-ч

Заработная плата машиниста с учетом пребы­вания машины на объекте, руб.-коп.

рабочих, чел.-ч

машинис­та, чел.-ч (маш.-ч]

рабо­чих

машини­ста

рабочих, чел.-ч

машини­ста, чел.-ч (маш.-ч)

рабо­чих

машини­ста

Установка подмостей шахты лифта и лестничной клетки

01, 02

шт.

4

§ E5-1-2, № 2а

0,51

0.25

(0,25)

0-38

0-26,5

2,04

1,0

(1,0)

1-52

1-06

1,0

1-06

Установка выкатных подмостей

01, 02

шт.

15

§ Е5-1-2, № 2а, № 2б

0,51

0.25

(0,25)

0-38

0-26,5

7,65

3,75

(3,75)

5-70

3-98

3,75

3-98

Монтаж блоков полутуннелей

01, 02

шт.

38

§ Е5-1-6, № 1 и, № 3 и

7,6

1,1

(1,1)

6-46

1-17

288,8

41,8

(41,8)

245-48

44-46

45,82

48-75

 

01, 02

1 т

67,9

№ 2и, № 4и т.2

0,87

0.12

(0,12)

0-74

0-12,7

59,07

8,15

(8,15)

50-25

8-62

12,18

12-89

Сборка блоков опалубки из полутуннелей

01, 02

шт.

172

§ Е5-1-3, № 1к, № 3к,

0,18

0.04

(0,04)

0-15,3

0-04,2

30,96

6,88

(6,88)

26-32

7-22

6,88

7-22

 

01, 02

1 т

67,9

№ 2к, № 4к т.2

0,55

0,11

(0,11)

0-46,8

0-11,7

37,35

7,47

(7,47)

31-78

7-94

7,47

7-94

Подача проемообразователей торцевой опалубки и опалубки торцов стен

01, 02

100 т

0,14

§ Е1-7, № 28 б, № 28а

13

6,4

(6,4)

8-32

5-82

1,82

0.9

(0,9)

1-16

0-81

14,5

13-21

Установка проемообразователей стен

02

м2

16,29

§ Е4-1-38, т.1, № 1а

0,41

-

0-30,5

-

6,68

-

4-97

-

-

-

Установка торцевой опалубки и опалубки торцов стен

02

м2

29,32

§ E4-1-37, т.4, № 1а

0,28

-

0-20,4

-

8,21

-

5-98

-

-

-

Установка торцевой опалубки лестничной клетки и шахты лифтов

02

м2

95,88

§ Е4-1-37, т.4, № 1а

0,28

-

0-20,4

-

26,85

-

19-56

-

-

-

Подача опалубки торцов перекрытий и пороговой опалубки

01, 02

100 т

0,05

§ Е1-7, № 28б, №28а

13

6,4

(6,4)

8-32

5-82

0,65

0,32

(0,32)

0-42

0-29

1,4

1-27

Установка опалубки торцов перекрытий

02

м2

7,83

§ Е4-1-37, т.2, № 1

0,39

-

0-29,1

-

3,05

-

2-28

-

-

-

Установка пороговой опалубки

02

м2

33,21

§ 4-1-37, т.2, № 1

0,39

-

0-29,1

-

12,95

-

9-66

-

-

-

Демонтаж пороговой опалубки и опалубки торцов перекрытия

02

м2

41,04

§ Е4-1-37, т.2, № 2

0,21

-

0-14,1

-

8,62

-

5-79

-

-

-

Демонтаж опалубки лестничной клетки, шахт лифтов, торцов стен

02

м2

125,2

§ Е4-1-37, т.4, № 1б

0,11

-

0-07,3

-

13,77

-

9-14

-

-

-

Демонтаж проемообразователей

02

м2

16,29

§ Е4-1-38, т.1, № 2а

0,31

-

0-23,1

-

5,05

-

3-76

-

-

-

Работа крана при демонтаже опалубки: торцов стен и перекрытий, порогов, лифтовых шахт, лестничной клетки

01

100 т

0,168

§ Е1-7, № 28б, 28а

13

6,4

(6,4)

8-32

5-82

2,18

1,08

(1,08)

1-40

0-98

2

1-82

проемообразователей

01

100 т

0,023

§ Е1-7, № 28б, № 28а

13

6,4

(6,4)

8-32

5-82

0,3

0,15

(0,15)

0-19

0-13

0,15

0-13

Демонтаж блоков полутуннелей с площадью щитов до 40 м2

02

м2

386,87

§ Е4-1-38, т.1, № 2д

0,15

-

0-11,2

-

58,03

-

43-33

-

-

-

с площадью щитов до 30 м2

02

м2

305,76

№ 2г

0,18

-

0-13,4

-

55,04

-

40-97

-

-

-

с площадью щитов до 20 м2

02

м2

188,57

№ 2в

0,2

-

0-14,9

-

37,71

-

28-10

-

-

-

с площадью щитов до 5 м2

02

м2

35,05

0,28

-

0-20,9

-

9,81

-

7-33

-

-

-

с площадью щитов до 3 м2

02

м2

28,8

№ 2а

0,31

-

0-23,1

-

8,93

-

6-65

-

-

-

Снятие блока полутуннелей с этажа:

 

 

 

§ E1-7,

 

 

 

 

 

 

 

 

 

 

при массе блока до 1 т

01, 02

100 т

0,098

№ 28б, № 28а

13

6,4

(6,4)

8-32

5-82

1,27

0,63

(0,63)

0-82

0-57

12,14

11-28

при массе блока до 2 т

01, 02

100 т

0,285

№ 29б, № 29а

9

4,4

(4,4)

5-76

4-00

2,57

1,25

(1,25)

1-64

1-14

1,25

1-14

при массе блока до 3 т

01, 02

100 т

0,296

№ 30б, № 30а

5,6

2,8

(2,8)

3-58

2-55

1,66

0,83

(0,83)

1-06

0-75

0,83

0-75

Демонтаж выкатных подмостей и подмостей шахт лифтов и лестничной клетки

01, 02

1 шт.

19

§ 6-1-30, т.1

0,25

0,084

(0,084)

0-13,4

0-05,3

4,75

1,60

(1,60)

2-55

1-01

1,60

1-01

ИТОГО:

 

 

 

 

 

 

 

 

695,77

75,81 (75,81)

557-81

78-96

110,98

112-45

5. ГРАФИК ПРОИЗВОДСТВА РАБОТ НА ТИПОВОЙ ЭТАЖ

Таблица 5

 


6. МАТЕРИАЛЬНО-ТЕХНИЧЕСКИЕ РЕСУРСЫ

6.1. Потребность в инструменте, инвентаре и приспособлениях приведена в табл. 6

Таблица 6

Наименование

Марка, техническая характеристика, ГОСТ, № чертежа

Количество

Назначение

Комплект опалубки

5БМ-75/м2 (ПНР)

1

Монолитные работы

Кран башенный

КБ-405-1

 

Монтаж и демонтаж опалубки

Набор ключей гаечных с открытым зевом

ГОСТ 2839-80*Е

1

То же

Ключ разводной

ГОСТ 7275-75*Е

2

То же

Лом монтажный

ЛМА, ГОСТ 1405-83

4

Рихтовка опалубки

Молоток стальной строительный

ГОСТ 11042-83

2

Монтаж и демонтаж опалубки

Набор ключей гаечных торцевых

ГОСТ 24372-80

1

То же

Головки сменные с внутренним шестигранным зевом

ГОСТ 25604-83*Е

6

То же

Коловорот

ГОСТ 25602-83Е

2

То же

Плоскогубцы комбинированные

ГОСТ 5547-86*Е

2

То же

Кусачки торцевые

ГОСТ 7282-75*Е

2

То же

Щетка стальная

МРТУ

4

Зачистка мест соединения закладных

Скребок металлический

Р.Ч. 3293-00.00.00

2

Очистка опалубки

Кисть малярная ручная

КР-29, ГОСТ 10597-87

4

Нанесение антиадгезионного покрытия

Валик малярный

ГОСТ 10831-87

4

Тоже

Кувалда

ГОСТ 11401-75*

2

Вспомогательные работы

Лестница стремянка

ГОСТ 24404-80

2

Вспомогательные работы

Ящик инструментальный

Изготавливается на месте

2

То же

Столик инвентарный дюралевый

Р.Ч. 460.00.00.000

2

То же

Ведро

-

3

То же

Метла

-

3

Очистка площадей

Рулетка стальная

РС-20, ГОСТ 7502-80*

1

Разбивочные работы

Рулетка металлическая в закрытом корпусе

РЗ-10, ГОСТ 7502-80*

1

То же

Рулетка желобчатая

ГОСТ 7502-80*

2

То же

Угольник поверочный стальной 90° с пяткой 1000´630

ГОСТ 3749-77

2

Контроль качества

Метр складкой металлический

ГОСТ 427-75*

3

Замеры в процессе работ

Нивелир с рейкой

Н-10, ГОСТ 10528-76*

1

Разбивочные работы, контроль качества

Пояс предохранительный

"Строитель", ГОСТ 5718-77

16

Безопасность работ

Каска пластмассовая для строителей.

"Салво", ГОСТ 24087-80

10

То же

Отвес строительный

ГОСТ 7948-80

4

Контроль качества

6.2. Потребность в материалах и полуфабрикатах для выполнения работ приводится в табл. 7.

Таблица 7

Наименование материала, полуфабриката, конструкции (марка, ГОСТ)

Вариант (фасет--код)

Исходные данные

Потребность в материале, кг

единица измерения

объем работ в нормативных единицах

принятая норма расхода материала на единицу измерения, кг

Антиадгезионные средства

1

(04-1)

1 м2 формующей поверхности опалубки

1127,58

0,27

304,45

2

(04-2)

То же

1127,58

0,5

563,79

7. ТЕХНИКА БЕЗОПАСНОСТИ

7.1. Кроме общестроительных стандартов, распоряжений и правил области безопасности труда при строительно-монтажных и демонтажных работах необходимо соблюдать следующие правила:

7.1.1. Технический персонал и члены строительных бригад вместе с операторами кранов должны пройти спецподготовку и инструктаж по технике безопасности при строительстве зданий с применением объемно-переставной опалубки.

7.2. Работы с использованием крана недопустимы при:

скорости ветра свыше 14 м/с;

видимости меньше 30 м;

во время атмосферных осадков и непосредственно после осадков до момента высыхания подмостей;

при гололеде.

7.2.1. Совместная работа двух башенных кранов должна производиться в соответствии с указаниями проекта производства работ. Расстояние между поднимаемыми грузами должно быть не менее 5 метров. При невозможности соблюдения этого условия необходимо остановить один из кранов.

7.3. Основные потенциальные несчастные случаи и их причины

7.3.1. Падение людей с высоты может быть вызвано: потерей равновесия рабочим, не снабженным предохранительным поясом, работающим в опасной зоне; обрывом подмостей; ударом перемещаемого краном оборудования.

7.3.2. Опасный наклон опалубки может быть вызван:

ветром;

повреждением стабилизирующей опоры;

осадкой поверхности под точкой опоры.

7.3.3. Падение оборудования во время переноса может быть вызвано:

срыванием петли или тяги строповки;

сильным ветром.

7.4. Мероприятия по предотвращению несчастных случаев.

7.4.1. Подмости должны надежно закрепляться и постоянно контролироваться, все неточности и повреждения должны немедленно устраняться, все подмости должны оснащаться барьерами, устранение перил недопустимо, откидные барьеры после поднятия опалубки с подмостей надо немедленно поднять и блокировать, рабочие на подмостях с откидными барьерами должны быть снабжены предохранительными поясами, с креплением его к ограждению соседних подмостей;

все разрывы в подмостях больше 20 см должны быть защищены вкладками и перилами;

перегружение подмостей недопустимо;

поверхности площадок должны всегда содержится в чистоте.

7.4.2. Опасный наклон опалубки предотвращается контролем состояния опор и качества выполненных конструкций.

7.4.3. Падение оборудования во время переноса предотвращается своевременной проверкой строповочных приспособлений.

7.4.4. До начала работ по монтажу и демонтажу опалубки необходимо убедиться в исправности ограничителя грузоподъемности подъемом контрольного груза.

8. ТЕХНИКО-ЭКОНОМИЧЕСКИЕ ПОКАЗАТЕЛИ

Таблица 8

Наименование показателя

Единица измерения

Количество

Нормативные затраты труда рабочих

чел.-ч

695,77

Нормативные затраты машинного времени

маш.-ч

75,81

Заработная плата рабочих-монтажников

руб.-коп.

557-81

Заработная плата механизаторов

руб.-коп.

78-96

Продолжительность выполнения работ

смена

7,25

Выработка на одного рабочего в смену

т/чел.-смену

1,2

Условные затраты на механизацию с учетом пребывания машин на объекте

руб.-коп.

509-60

Сумма изменяемых затрат

руб.-коп.

1067-21

Примечание. Выработка рассчитана на тонну веса комплекта объемно-переставной опалубки на типовой этаж.

9. ФАСЕТНЫЙ КЛАССИФИКАТОР ФАКТОРОВ

Фасет 01

Высота производства работ относительно уровня земли

Наименование фактора

Обоснование

Код

Значение фактора

Высота, м:

 

 

 

до 15

ЕНиР, сб. 4, вып. 1 Вводная часть, п. 3

1

По калькуляции

до 20

То же

2

Н.вр.и расц. умножать на 1,05

до 30

То же

3

То же, на 1,1

до 40

То же

4

То же на 1,2

свыше 40

То же

5

То же на 1,3

Фасет 02

Годовременные условия выполнения работ

Наименование фактора

Обоснование

Код

Значение фактора

Летний период (май-сентябрь)

ЕНиР, общая часть, приложение 3

1

По калькуляции

Зимний период (октябрь-апрель)

То же

2

Н. вр. и расц. умножать на коэффициент в зависимости от месяца выполнения работ по приложению 3, ЕНиР, общая часть

Фасет 03

Стоимость машино-часа работы кранового оборудования стройплощадки, руб.

Наименование фактора

Обоснование

Код

Значение фактора

Кран башенный грузоподъемностью

СНиП IV-3-82, Приложение

1

3,58

То же 5,5-8 т

То же

2

 

4,59

 

То же 13-25 т

То же

3

6,11

Фасет 04

Расход материала для смазки рабочей поверхности опалубки, кг

Наименование фактора

Обоснование

Код

Значение фактора

Нанесение антиадгезионного состава пневмораспылителем

Справочник строителя. Бетонные и железобетонные работы

1

304,45

То же, вручную кистью или валиком

То же

2

563,79

Примечание. Рамкой обведены в таблицах значения факторов, на которые рассчитаны показатели в данной технологической карте.

II. АРМИРОВАНИЕ ВНУТРЕННИХ СТЕН И ПЕРЕКРЫТИЙ ТИПОВОГО ЭТАЖА

1. ОБЛАСТЬ ПРИМЕНЕНИЯ

1.1. Типовая технологическая карта (ТТК) комплексно-механизированного технологического процесса разработана на установку арматуры внутренних стен и перекрытия типового этажа сборно-монолитного дома при применении туннельной опалубки.

1.2. За основу карты приняты чертежи типового проекта 17-ти этажного сборно-монолитного жилого дома, разработанного НИПКТИ монолитного домостроения г. Ростов-на-Дону НПО "Союзмонолиттяжстрой" (шифр 85555), привязанного к местным условиям проектным институтом "Красноярскгражданпроект".

1.3. ТТК разработана на измеритель конечной продукции - типовой этаж.

1.4. Высота армируемого этажа 2800 мм, толщина армируемых конструкций 160 мм.

1.5. Строительство ведется в пятой температурной зоне.

1.6. Работы ведутся в две смены двумя звеньями в составе трех человек в каждом, входящих в состав комплексной бригады.

1.7. Картой предусматривается подача арматуры на возводимый этаж одним из двух башенных кранов KB-405.I грузоподъемностью 10,0...7,5 т, обслуживающих строительство дома.

2. ОРГАНИЗАЦИЯ И ТЕХНОЛОГИЯ ВЫПОЛНЕНИЯ РАБОТ

2.1. Настоящий комплексно-механизированный технологический процесс состоит из подготовительных и основных операций.

2.2. К подготовительным операциям относятся:

монтаж выкатных подмостей, торцевых подмостей лестничной клетки и шахты лифта;

установка инвентарных щитов на проемы в перекрытии;

установка временных лестниц для подъема на этаж;

подготовка и установка на этаже средств для освещения рабочего места, для подключения электрического инструмента и сварочного аппарата;

очистка от мусора перекрытия этажа;

поставка на объект комплектной арматуры для армирования стен и перекрытий в объеме на один этаж;

подготовка инструмента и такелажных приспособлений.

2.3. К основным операциям относятся:

армирование стен;

армирование перекрытия.

2.4. До начала работ по армированию стен и перекрытий на типовом этаже должно быть выполнено следующее:

завершены работы по устройству монолитных конструкций (стен, перекрытия) на соответствующих захватках нижележащего этажа;

выполнен геодезический контроль монолитных конструкций нижележащего этажа;

смонтированы опалубочные железобетонные панели на захватке, где будут производиться работы;

выполнен приемочный контроль установленных опалубочных блоков;

выполнен приемочный контроль арматуры на приобъектном складе.

2.5. При приемке арматуры на приобъектном складе проверяют:

наличие бирок на армоэлементах с указанием марок и количества однотипных сеток;

наличие паспортов на каждую партию арматурных изделий, в котором поставщик гарантирует соответствие изделий проекту.

2.6. На строительную площадку поступают арматурные изделия, изготавливаемые на заводе-изготовителе:

гнутые каркасы с наибольшими размерами 3000×440 мм с несущей арматурой класса А-III, диаметром 8 мм;

плоские каркасы с наибольшими размерами 4100×550 мм с преобладающей несущей арматурой класса А- III, диаметром 18 мм;

плоские сетки с наибольшими размерами 2025×4400 из проволочной арматуры класса В-1, диаметром 5 мм;

распределительная арматуры - отдельные стержни длиной до 2000 мм из арматуры класса A-I, А- III, диаметром 8...10 мм;

закладные детали весом до 50 кг.

Арматурные изделия доставляют на строительную площадку с помощью автотранспорта, и подают на монтируемый этаж или на склад краном.

Погрузо-разгрузочные работы должны исключать деформацию, искривление, разрушение сварных соединений. Для этого при транспортировании сетки и каркасы закрепляют от смещения.

Каркасы, сетки, стержни хранят на приобъектном складе на подкладках и прокладках в штабелях высотой не более 1,5 м.

2.7. При производстве арматурных работ каждый этаж здания разбивается на четыре захватки:

I захватка - оси E...К, 5...9-и стены лифтовой шахты;

II захватка - оси А...Д, 6...9;

III захватка - оси А...Г, 1...5;

IV захватка - оси Д...И, 1...4.

Работы ведутся последовательно по этажам и по захваткам.

В состав работ входит:

армирование стен;

армирование перекрытия по окончании бетонирования стен.

Армирование производят в строгом соответствии с рабочими чертежами.

2.8. Внутренние стены армируют:

гнутыми каркасами на прямых участках стен и в местах пересечения стен;

пространственными каркасами над проемами; распределительной арматурой, связывающей каркасы в блоки.

2.9. Все операции выполняют одновременно с установкой опалубочных блоков или с опережением и включают:

подачу арматурных каркасов и стержней на перекрытие;

установку каркасов в проектное положение и обвязку их распределительной арматурой;

установку проемообразователей и монтаж перемычечных каркасов;

установку закладных деталей;

монтаж трубной разводки электрических и слаботочных сетей.

2.10. Работы по армированию стен выполняются в следующем порядке:

в первую очередь устанавливаются гнутые каркасы вдоль смонтированных опалубочных панелей. При этом каркасы, устанавливаемые в местах пересечения стен, связываются между собой вязальной проволокой;

после монтажа блоков полутуннелей вдоль опалубки монтируется арматура, устанавливаются проемообразователи, перемычечные каркасы, трубная разводка электрических и слаботочных сетей.

Каркасы стен стыкуются с выпусками каркасов нижнего этажа выше уровня порогов стен. Стыковка осуществляется внахлестку, без сварки, вязальной проволокой. Длина нахлестки не менее 130 мм. Гнутые каркасы, устанавливаемые в местах пересечения стен, соединяются между собой стержнями с шагом 300 мм по веек высоте каркасов вязальной проволокой.

Перемычечные каркасы устанавливаются на плоские каркасы стен и крепятся к ним вязальной проволокой. Установка перемычечных каркасов производится с инвентарной передвижной площадки и ранее установленной туннельной опалубки.

Трубная разводка устанавливается в соответствии с проектом, крепление к арматурным каркасом осуществляется вязальной проволокой.

Деревянные вкладыши для крепления дверных коробок устанавливаются вплотную к проемообразователям и закрепляются вязальной проволокой.

В процессе выполнения арматурных работ для организации рабочего шва при дальнейшей укладке бетона во внутренние стены (при переходе от одной захватки на другую) устанавливается сетка "Рабица", закрепляется к вертикальным стержням гнутых каркасов вязальной проволокой.

Смонтированная арматура должна быть закреплена от смещения и предохранена от повреждения специальными инвентарными струбцинами.

Обеспечение защитного слоя бетона производится установкой цементных или пластмассовых фиксаторов. Толщина защитного слоя должна быть не менее 15 мм.

2.11. Армирование перекрытий осуществляется после окончания работ по бетонированию стен на захватке и ведется в следующем порядке:

устанавливаются и закрепляются на палубе все инвентарные проемообразователи;

производится раскладка нижних сеток;

вдоль торцов перекрытий в опорных местах производят раскладку пространственных каркасов;

производится раскладка верхних сеток.

Укладку сеток производят внахлестку с перекрытием стыков не менее 150 мм.

Вдоль наружных стен и проемов на торцы сеток укладываются анкерующие проектные стержни.

Укладку верхних сеток производят с применением фиксаторов из арматуры, установку которых производят с шагом 800 мм по длине и ширине сеток.

Установка закладных деталей выполняется в соответствии с опалубочными чертежами перекрытий.

При армировании применяются инвентарные деревянные ходы.

2.12. Методы крепления сеток, каркасов, анкерующих стержней, закладных деталей выполняется в соответствии с указаниями проекта.

В случае крепления сваркой анкерующих распределительных стержней к сеткам или каркасам с учетом класса используемой стали, выполняются сварные соединения типов КЗ-Рр табл. 3, С23-Рэ табл. 14 согласно указаниям ГОСТ 14098-85

2.13. По окончании работ по армированию проверяется соответствие выполненных работ проекту.

2.14. Приемка смонтированной арматуры перед бетонированием оформляется актом.

2.15. При ведении работ необходимо соблюдать требования СНиП 3.03.01-87.

2.16. Схема производства работ приведены на листах 29...32.

2.17. Калькуляция трудовых затрат и заработной платы на типовой этаж приведена в табл. 2.

2.18. График производства работ на типовой этаж приведен в табл. 3.

3. ТРЕБОВАНИЯ К КАЧЕСТВУ И ПРИЕМКЕ РАБОТ

3.1. Контроль качества, соответствие проекту, приемка смонтированной арматуры производится в ходе монтажа арматуры в связи с тем, что доступ к смонтированным арматурным конструкциям и электроразводкам после монтажа опалубки затруднен.

3.2. Местоположение, диаметр и число стержней, а также расстояние между ними и допуски, должны соответствовать проекту.

Отклонения при установке арматуры не должны превышать допускаемых СНиП 3.03.01-87.

3.3. Приемка смонтированной арматуры оформляется актом.

В акте приемки смонтированных конструкций должны быть указаны номера рабочих чертежей, отступления от проекта, оценка качества блока и разрешение на его бетонирование.

К акту приемки должны быть приложены:

заводские сертификаты или паспорта основного металла и электродов, а при немаркированных металла и электродах - справка лаборатории об их испытании и качестве;

выписки из лабораторных журналов или акты испытаний образцов сварных сопряжений и стыков;

список сварщиков с указанием даты выдачи и номера диплома каждого;

перечень документов, на основании которых были внесены изменения в рабочие чертежи.

3.4. Технические критерии и средства контроля операций и процессов приведены в табл. 1.

Таблица 1

Наименование процессов, подлежащих контролю

Предмет контроля

Способ контроля и инструмент

Время контроля

Ответственный контролер

Технические критерии оценки качества

Подготовительные работы

Точность установки опалубки

Инструментальный. Отвес, нивелир

До установки арматуры

Геодезист, мастер

Отклонение от вертикали, мм –10 Смещение осей опалубки, мм -8

То же

Проверка размеров, поставляемых каркасов и сеток

Инструментальный Мерная лента

До установки арматуры

Мастер

Допускаемые отклонения: по длине сеток и каркасов, - мм ±20; по ширине сеток и каркасов, мм. ±10

Установка каркасов стен и сеток перекрытия

Соответствие устанавливаемой арматуры проектной, качество сварки, обеспечение защитного слоя, наличие кабельных разводок

Инструментальный. Линейка измерительная

В процессе установки арматуры

Мастер

Для обмера швов выбирают присоединения. Приемка по ГОСТ 10922-75.

Толщина защитного слоя, мм - не менее 15

Схема разбивки на захватки при армировании стен типового этажа

Условные обозначения.

I...IV - номера захваток;

1- место складирования сеток, каркасов; 2- граница захваток

Схема производства работ  при армировании стен типового этажа I захватка

Условные обозначения:

1 - первая очередь армирования стен; 2 - вторая очередь армирования стен; 3 - первая очередь установки опалубки; 4 - вторая очередь установки опалубки; 5 - место складирования сеток, каркасов; 6 - складирование закладных деталей; арматурных стержней; 7 - выкатные подмости с ограждением; 8 - ходовые подмости с ограждением; 9 - вагончик для обогрева рабочих; 10 - трансформатор сварочный; 11 - распределительный шкаф; 12 - инвентарная я передвижная площадка; 13 - переносная осветительная гирлянда; 14 - инвентарная осветительная опора с прожектором; 15 - приставная лестница с ограждением; 16 - стены, армированные на предыдущей захватке.

Схема производства работ  при армировании стен типового этажа

Примечание. Условные обозначения приведены далее.

Схема производства работ  при армировании стен типового этажа IV захвата

17 - торцевая опалубка стен лестничной клетки и лифтовой шахты; 18 - туннельная опалубка; 19 - приставная лестница; 20 - выкатные подмостки; 21 - временное инвентарное ограждение

Примечание. Условные обозначения приведены далее.

 


4. КАЛЬКУЛЯЦИЯ ЗАТРАТ ТРУДА, МАШИННОГО ВРЕМЕНИ, ЗАРАБОТНОЙ ПЛАТЫ НА ТИПОВОЙ ЭТАЖ

Таблица 2

Наименование процесса

Номер фасета для пересчета показателей

Единица измерения

Объем работ

Обоснование (ЕНиР и др. нормы)

Норма времени

Расценка, руб.-коп.

Затраты труда

Заработная плата, руб.-коп.

Время пребы­вания машины на объекте, маш.-ч

Заработная плата машиниста с учетом пребывания машины на объекте, руб.-коп.

рабочих, чел.-ч

машиниста,
чел.-ч (маш.-ч)

рабочих

машини­ста

рабо­чих, чел.-ч

машиниста, чел.-ч (маш.-ч)

рабочих

маши­ниста

АРМИРОВАНИЕ СТЕН

 

 

 

 

 

 

 

 

 

 

 

 

 

 

1. Разгрузка арматурных изделий с автомобиля на склад башенным краном

03

100 т

0,014

Применит. § Е1-7, п. 20 а, б

13

6,4

(6,4)

8-32

5-82

0,18

0,09

0-11,6

0-08

0,18

0-12

2. Подача материалов башенным краном на этаж

03, 05

100 т

0,014

§ Е1-7, п. 28 а, б

13

6,4

(6,4)

8-32

5-82

0,18

0,09

0-11,6

0-08

9,32

8-48

3. Подноска и установка каркасов вручную весом, кг,

 

 

 

 

 

 

 

 

 

 

 

 

 

 

до 20

01, 03, 04

1 каркас

128

§ Е4-1-44, табл. 2, п. а

0,17

-

0-11,2

-

21,76

-

14-34

-

-

-

4. Вязка крестообразных и стыковых соединений стержней каркасов, преобладающие диаметры арматуры, мм

 

 

 

 

 

 

 

 

 

 

 

 

 

 

до 8

01, 03, 06

т

0,338

Применит. § Е4-1-46, п. 9б

24,5

-

18-99

-

8,28

-

6-42

-

-

-

до 18

01, 03, 07

т

0,65

п. 9г

11,5

-

8-91

-

7,48

-

5-79

-

-

-

5. Установка закладных деталей массой, кг

 

 

 

 

 

 

 

 

 

 

 

 

 

 

до 4

01, 03

1 з.д.

16

§ Е4-1-42 п. 1б

0,29

-

0-21,6

-

4,64

-

3-46

-

-

-

до 50

01, 03

1 з.д.

12

п. 3б

0,53

-

0-39,5

-

6,36

-

4-74

-

-

-

6. Крепление закладных деталей сваркой

01, 02, 03

10 м шва

0,3

§ Е22-1-6, п.6, 9д

4,6

-

4-19

-

1,38

-

1-26

-

-

-

7. Установка деревянных пробок к проемообразователям

01, 03

100 пробок

0,75

§ Е4-1-41, п. 3 а

9,3

-

6-93

-

6,98

-

5-19

-

-

 

ИТОГО

 

т

1,4

 

 

 

 

 

57,24

0,18

41-44

0-16

9,50

8-60

АРМИРОВАНИЕ ПЕРЕКРЫТИЙ

 

 

 

 

 

 

 

 

 

 

 

 

 

 

1. Разгрузка арматурных изделий с автомобиля на склад башенным краном

03

100 т

0,016

Применит. § E1-7 п. 28а, б

13

6,4

(6,4)

8-32

5-82

0,208

0,102 (0,102)

0-13,3

0-09,3

0,102

0-13

2. Подача материалов башенным краном на этаж

03, 05

100 т

0,016

§ Е1-7, п. 28а, б

13

6,4

8-32

5-82

0,208

0,102

0-13,3

0-09,3

11,60

10-02

3. Подноска и установка сеток вручную весом, кг

 

 

 

 

 

 

 

 

 

 

 

 

 

 

до 20

01, 03

1 сетка

49

§ Е4-1-44, табл. 2, п.а

0,17

-

0-11,2

-

8,33

-

5-49

-

-

-

до 50

01, 03

1 сетка

33

§ Е4-1-44, табл. 2. п.а

0,24

-

0-15,8

-

7,92

-

5-21

-

-

-

4. Электросварка стыков сеток, преобладающий диаметр, мм 5

01, 03, 07

т

1,3

Применит. § Е4-1-46 п. 7а примеч. 2

26,62

-

20-05

-

34,6

-

26-07

-

-

-

5. Вязка стыков пространственных каркасов к сеткам, преобладающий диаметр, мм 12

01, 03, 06

т

0,15

Применит. § Е4-1-46 п. 7в

16

-

11-44

-

2,4

-

1-72

-

-

-

6. Установка закладных деталей массой, кг до 4

01, 03

1 з.д,

49

§ Е4-1-42, п. 1б

0,29

-

0-21,6

-

14,21

-

10-58

-

-

-

7. Крепление закладных деталей сваркой

01, 02, 03

10 м шва

0,5

§ E22-1-6, п. 6,9д

4,6

-

4-19

-

2,3

-

2-09

-

-

-

ИТОГО

 

т

1,6

 

 

 

 

 

70,19

0,204

51-42

0-18,6

11,70

10-68

ВСЕГО на конечный измеритель (типовой этаж)

 

т

3,0

 

 

 

 

 

127,43

0,384

92-86

0-34,6

21,20

19-28


5. ГРАФИК ПРОИЗВОДСТВА РАБОТ НА ТИПОВОЙ ЭТАЖ

Таблица 3

6. МАТЕРИАЛЬНО-ТЕХНИЧЕСКИЕ РЕСУРСЫ

Потребность в механизмах, инструменте, инвентаре, приспособлениях и материалах приведена в табл. 4

Таблица 4

Наименование

Марка, техническая  характеристика, ГОСТ, № чертежа

Количество

Назначение

1. Башенный кран

КБ-405.1 грузоподъемность 10,0…7,5 т.

2

Подъем элементов

2. Строп двухветвевой

2CK-10.0, l = 5000, ГОСТ 25573-82*

1

То же

3. Строп четырехветвевой

4СК1-10,0 l = 5000, ГОСТ 25573-82*

1

То же

4. Универсальный строп

УКС-1, l = 5000, грузоподъемность 5 т

ГОСТ 7668-80*

2

То же

5. Передвижная площадка для сварщика

ЦНИИОМТП 3257.08

2

Установка каркасов

6. Электроды

Э-42А

21 кг

Сварка элементов

7. Проволока порошковая

 

17 кг

То же

Нормокомплект для сварщика-арматурщика:

 

 

 

Будка, в которой хранятся:

 

 

 

1. Трансформатор сварочный

ТД-500

1

Сварка конструкций на переменном токе

2. Молоток слесарный стальной

А-5, ГОСТ 2310-77*Е

1

Очистка мест сварки закладных деталей от ржавчины

3. Щетка стальная

МРТУ

2

Очистка мест сварки

4. Электрододержатель

ГОСТ 14651-78

2

Сварочные работы

5. Щиток сварщика

ГОСТ 1381-73*Е

2

Защита липа сварщика от брызг расплавленного металла и излучения сварочной дуги

6. Метр складной

ГОСТ 427-75*Е

3

Измерение элементов

7. Кусачки торцевые

ГОСТ 7282-75*Е

2

Установка каркасов, сеток

8. Пояс предохранительный

ГОСТ 12.4.089-80

3

Безопасное ведение работ

9. Каска защитная

ГОСТ 12.4.087-84

3

То же

10. Плоскогубцы комбинированные

ГОСТ 5547-86*Е

2

Вязка арматуры

11. Контейнер для закладных деталей

ЦНИОМТП 320.15.000

1

Хранение закладных деталей

12. Отвес

ОТ-600 ГОСТ 7948-80

1

Выверка каркасов

13. Рукавицы специальные

ГОСТ 12.4.010-75*

6 пар

Защита кожи рук

14. Обувь специальная

ГОСТ 12.4.103-83

2 пары

Защита от электротока

15. Перчатки специальные

ГОСТ 12.4.103-83

2 пары

Защита от электротока

7. ТЕХНИКА БЕЗОПАСНОСТИ

7.1. При производстве работ требуется соблюдать требования СНиП III-4-80.

7.2. К самостоятельной работе арматурщика допускаются лица, прошедшие обучение по технике безопасности, сдавшие экзамен и полупившие соответствующее удостоверение.

7.3. Перечень основных факторов, вызывающих.несчастные случаи три производстве арматурных работ:

7.3.1. Травмирование глаз, лица и рук окалиной и ржавчиной, а также действием лучей электрической дуги.

7.3.2. Падение с высоты;

7.3.3. Поражение электрическим током.

7.4. Мероприятия по предотвращению несчастных случаев:

7.4.1. Работы, по очистке арматуры от ржавчины и окалины производить в защитных очках и плотных рукавицах.

Для защиты окружающих рабочих от действия лучей электрические дуги рабочие места электросварщиков должны ограждаться специальными переносными ограждениями.

7.4.2. Рабочие, принимающие материалы на перекрытии этажа, должны быть связаны сигнализацией с машинистом крана.

Ходить при уложенной арматуре перекрытия необходимо по настилам шириной не менее 0,6 м, устроенным, на козелках, установленных на опалубку.

Рабочие места, расположенные у края перекрытия или у проемов, обязательно должны иметь ограждения.

При нецелесообразности устройства ограждений рабочие должны быть снабжены предохранительными поясами. Места закрепления карабина предохранительного пояса должны быть заранее указаны мастером и ярко окрашены краской. Временные лестницы, ведущие к местам производства работ, необходимо надежно закрепить. Проемы в перекрытии оградить или закрыть щитами.

7.4.3. Подключение агрегатов всех видов сварки к электрической сети напряжением свыше 500В не разрешается. При этом вторичное напряжение холостого хода трансформатора не должно превышать 36В.

Включение в сеть электросварочных агрегатов должно производиться посредством рубильников с предохранителями закрытого типа и соответствовать потребляемому току сварочной установки.

Металлические части электросварочных агрегатов, в нормальном положении не находящиеся под напряжением, а также обратные провода и свариваемые изделия должны быть заземлены до включения агрегата в сеть и оставаться заземленными до отключения агрегата от сети.

При заземлении корпусов электросварочных агрегатов или изделий необходимо сначала присоединить заземляющий провод к земле, а затем от земли.

Незаземленный корпус агрегата считается под напряжением и прикосновение к нему опасно.

Запрещается перемещать электросварочные агрегаты на другое место, не отключив их предварительно от питающей сети.

Ежедневно перед началом работы необходимо осмотреть провода сварочной цепи и исправить их изоляцию в местах повреждений, а также принять меры к сохранению их изоляции при каждом перемещении сварочных проводов.

В передвижных сварочных установках обратный провод должен быть изолированным.

8. ТЕХНИКО-ЭКОНОМИЧЕСКИЕ ПОКАЗАТЕЛИ

Наименование показателей

Единица измерения

Количество

Нормативные затраты труда рабочих

чел.-ч

127,43

Нормативные затраты машинного времени

маш.-ч

0,38

Заработная плата рабочих-монтажников

руб.-коп.

92-86

Заработная плата машиниста башенного крана

руб.-коп.

0-35

Продолжительность выполнения работ

смена

2,65

Выработка на одного рабочего в смену

т/чел. в смену

0,19

Условные затраты на механизацию-

руб.-коп.

97-31

Сумма изменяемых затрат

руб.-коп.

190-17

9. ФАСЕТНЫЙ КЛАССИФИКАТОР ФАКТОРОВ

Фасет 01

Производство работ на высоте от уровня земли

Наименование фактора

Обоснование

Код

Значение фактора

Высота, м:

ЕНиР, сб. 4, вып. 1

 

 

до 15

Вводная часть, п. 3

1

По калькуляции

до 20

То же

2

Н. вр. и расц. умножить на 1,05

до 30

То же

3

То же, на 1,1

до 40

То же

4

То же, на 1,2

свыше 40

То же

5

То же, на 1,3

Фасет 02

Крепление закладных деталей сваркой

Наименование фактора

Обоснование

Код

Значение фактора

Высота шва по фасету, 8 мм

ЕНиР, § 22-1-6

1

По калькуляции

То же, 10 мм

То же

2

Н. вр. и расц. умножать на 1,21

То же, 12 мм

То же

3

То же, на 1,58

То же, 3 мм

То же

4

То же на 0,18

То же, 4 мм

То же

5

То же,  на 0,32

То же, 5 мм

То же

6

То же, на 0,5

То же, 6 мм

То же

7

То же, на 0,71

Фасет 03

Годовременные условия выполнения работ

Наименование фактора

Обоснование

Код

Значение фактора

Период работ: апрель-октябрь

ЕНиР. Общая часть, приложение 3, табл. 1

1

По калькуляции

Период работ: ноябрь

То же

2

Н. вр, и расц. умножить на 1,1

декабрь, март

То же

3

То же, на 1,12

январь, февраль

То же

4

То же, на 1,18

Фасет 04

Вес сеток и каркасов

Наименование фактора

Обозначение

Код

Значение фактора

Вес сеток и каркасов, кг;

 

 

 

до 20

ЕНиР, § 4-1-44

1

По калькуляции

до 50

То же

2

Н. вр. и расц. умножать на 1,41

до 100

То же

3

То же, на 2,11

Фасет 05

Подача материалов на высоту от уровня земли

Наименование фактора

Обоснование

Код

Значение фактора

Высота, 12 м

ЕНиР, § 1-7

1

По калькуляции

То же, 18 м

То же

2

Н. вр, и расц. умножать:

для машиниста - на 1,187

для такелажника на 1,185

То же, 24 м

То же

3

То же

для машиниста на 1,375

для такелажника на 1,369

То же, 30 м

То же

4

То же

для машиниста на 1,562

для такелажника на 1,555

То же, 36 м

То же

5

То же

для машиниста на 1,75

для такелажника на 1,738

То же, 42 м

То же

6

То же

для машиниста на 1,937

для такелажника на 1,923

То же, 48 м

То же

7

для машиниста на 2,125

для такелажника на 2,11

То же, 54 м

То же

8

для машиниста на 2,312

для такелажника на 2,292

Фасет 06

Диаметр арматуры стен

Наименование фактора

Обоснование

Код

Значение фактора

Диаметр арматуры, мм:

ЕНиР, § 4-1-46

 

 

до 8

То же

1

По калькуляции

до 6

То же

2

Н. вр. и расц. умножать на 1,126

до 12

То же

3

То же, на 0,634

до 18

То же

4

По калькуляции

Фасет 07

Диаметр арматуры перекрытия

Наименование фактора

Обоснование

Код

Значение фактора

при сварке

при вязке

Диаметр арматуры, мм:

 

 

 

 

до 12

ЕНиР, § 4-1-46

1

Н. вр. и расц. умножать на 0,45

По калькуляции

до 6

То же

2

По калькуляции

Н. вр. и расц. умножать на 2,218

до 8

То же

3

Н. вр. и расц. умножать на 0,9

То же, на 2

до 18

То же

4

То же, на 0,36

То же, на 0,812

до 26

То же

5

То же, на 6,24

То же, на 0,537

III. БЕТОНИРОВАНИЕ ВНУТРЕННИХ СТЕН И ПЕРЕКРЫТИЙ ТИПОВОГО ЭТАЖА

1. ОБЛАСТЬ ПРИМЕНЕНИЯ

1.1. Типовая технологическая карта (ТТК) разработана на устройство монолитных внутренних стен и перекрытий типового этажа 17-ти этажного cборно-монолитного жилого дома с применением объемно-переставной опалубки SВМ-75/м2.

За основу карты приняты чертежи типового проекта, разработанного НИПКТИ монолитного домостроения, г. Ростов-на-Дону, НПО "Союзмонолиттяжетрой" (шифр 85555); привязанного к местным условиям проектным институтом "Красноярскгражданпроект".

Размер здания в плане 21,82´21,82 м, высота 50,20 м. Высота бетонируемого этажа 2,8 м, Толщина бетонируемых конструкций 160 мм.

1.2. В состав работ, рассматриваемых в карте, входят: прием и подача бетонной смеси к месту укладки, распределение ее в установленной опалубке и уход за уложенной смесью.

1.3. В ТТК предусмотрено выполнение работ в две смены при температуре наружного воздуха выше 0 °C.

1.4. ТТК разработана на измеритель конечной продукции - типовой этаж. Для подсчета объемов работ и определения их стоимости принят 4-й этаж здания. Работы ведутся звеньями в составе четырех человек в каждом, входящих в состав комплексной бригады.

1.5. ТТК предусматривает подачу бетонной смеси на возводимый этаж в поворотных бадьях двумя башенными кранами КБ-405.1 грузоподъемностью 7,5-10,0 т.

1.6. При привязке ТТК к конкретному объекту и условиям строительства уточняют порядок подачи и укладки бетонной смеси в соответствии с разбивкой здания на захватки и согласно проекту производства работ, а также уточняют объемы работ, калькуляцию затрат труда, машинного времени, заработной платы, график производства работ, средства механизации, количество грузоподъемных механизмов.

2. ОРГАНИЗАЦИЯ И ТЕХНОЛОГИЯ ВЫПОЛНЕНИЯ РАБОТ

2.1. До начала устройства монолитных конструкций типового этажа необходимо выполнить следующие работы:

забетонировать перекрытие и пороги нижележащего этажа, заготовить на приобъектном складе необходимые материалы и конструкции с учетом возведения двух этажей, подготовить и установить комплект монтажной технологической оснастки на захватку и комплект инвентарных ограждений проемов шахт лифтов, балконов и проемов в перекрытии лестниц для подъема на опалубку.

Бетон на строительную площадку доставляют в самосвалах, приспособленных для перевозки бетонной смеси.

2.2. Бетонную смесь к месту укладки подают башенным краном в поворотных бадьях вместимостью 1,0 м3 и выгружают в приемные лотки-раздатчики или в воронки.

Бетонную смесь в стены укладывают слоями равномерно по всему периметру объемно-переставной опалубки. Необходимо избегать продолжительных перерывов между укладкой слоев бетона. Допустимое время перерывов определяет строительная лаборатория.

Бетонирование стен сопровождают записями в журнале бетонных работ.

Уплотнение бетонной смеси производят глубинными вибраторами ИВ-67, Продолжительность вибрирования, устанавливаемая на каждой позиции опытным путем, должна обеспечивать достаточное уплотнение бетонной смеси, основными признаками которого являются: прекращение ее оседания, появление цементного молока на поверхности и отсутствие выделения пузырьков воздуха.

В начальный период твердения уложенного бетона необходимо поддерживать температурно-влажностный режим и предохранять твердеющий бетон от ударов, сотрясений и других механических воздействий.

Увлажнять, уложенную в опалубку бетонную смесь, следует столько раз, сколько необходимо для того, чтобы поверхность бетона в период ухода постоянно была влажной.

После окончания укладки бетона в стены необходимо прокрутить каналообразователи для электропроводки вокруг своей оси до образования зазора между бетоном и каналообразователями.

Демонтаж объемно-переставной опалубки производят после достижения бетоном прочности не менее 20 кг/см2 при температуре наружного воздуха выше 0 °С.

2.3. Работы выполняет комплексная бригада в количестве 32 человек - по 16 человек в смену, в составе:

бетонщики 2 разр. - 7 чел., 4 разр. - 5 чел., такелажники 2 разр, - 4 чел., машинист башенного крана 5 разр. - 2 чел.

2.4. Возведение монолитных железобетонных конструкций в зимних условиях рекомендуется производить только по специально разработанным технологическим картам, в которых должны быть приведены:

способ и температурно-влажностный режим выдерживания бетона;

данные о материале опалубки с учетом требуемых теплоизоляционных показателей;

данные о пароизоляционном и теплоизоляционном укрытии неопалубленных поверхностей;

схема размещения точек, в которых следует измерять температуру бетона и наименование приборов для ее измерения;

ожидаемые величины прочности бетона;

сроки и порядок распалубливания и загружения конструкций;

схемы размещения и подключения электродов или электронагревателей;

требуемая электрическая мощность, напряжение, сила тока;

тип понижающего трансформатора, сечения и длины проводов.

2.5. Выполнение работ по устройству монолитных железобетонных конструкций типового этажа разбито на четыре технологические захватки. Схема разбивки типового этажа на захватки приведена на рис. 1. Каждая захватка состоит из участков длиной до 10 м. Направление бетонирования по участкам показано на рис. 3.

Перерыв в бетонировании между участками не должен превышать двух часов. При бетонировании стен для осадки бетона необходимы перерывы от 40 мин. до 2,0 часов. Продолжительность перерыва устанавливает строительная лаборатория в зависимости от вида конструкции, марки цемента, погодных условий и т.д.

При применении объемно-переставной опалубки перерыв между бетонированием стен и перекрытий обязателен.

Бетонирование перекрытий ведется по захваткам, после окончания работ по бетонированию стен.

При устройстве рабочих швов в перекрытиях применять металлическую сетку, в стенах - опалубку.

В случае вынужденных перерывов в бетонировании перекрытий необходимо устраивать технологические швы параллельно короткой стороне перекрытия. Возобновление бетонирования конструкций допускается после достижения первоначально уложенным бетоном прочности не менее 15 кг/см2.

Во избежание попадания воздуха между бетоном и опалубкой и образования каверн на поверхности бетона запрещается выгружать бетонную смесь в опалубку стен из бадьи в одно место сплошным непрерывным потоком.

По поверхности участка перекрытия бетонную смесь распределяют равномерно, разгружая бадью с бетоном в нескольких точках. Высота свободного сбрасывания не должна превышать 1,0 м.

2.6. Передвижение по армированному перекрытию, во избежание деформирования сеток, осуществлять по инвентарным ходовым трапам.

2.7. Для укладки бетонной смеси в опалубку следует применять систему "кран-бадья". При устройстве монолитных стен прием бетонной смеси производится в приемные воронки с распределительными хоботами во избежание попадания смеси на вертикальные выпуски арматуры. При устройстве монолитных перекрытий бетонная смесь разгружается в нескольких точках по площади захватки.

2.8. Уплотнение бетонной смеси необходимо производить:

в перекрытиях шириной 3 м и более - виброрейками, передвигаемыми по направляющим, в остальных случаях - площадочными вибраторами;

в стенах - послойно глубинными вибраторами.

Уплотнение виброрейками необходимо вести по направляющим маячным рейкам, укладываемым перпендикулярно большей стороне перекрытия.

Во избежание появления на поверхности бетона воздушных пузырьков следует исключить задевание вибратора за арматуру и опалубку.

Цоколи стен бетонировать одновременно с бетонированием перекрытий. Уплотнение бетонной смеси в цоколях производить вручную.

2.9. Открытые поверхности бетона должны быть предохранены от вредного воздействия солнечных лучей и ветра. Благоприятные температурно-влажностные условия для твердения бетона обеспечивать систематической поливкой его водой. Время и метод ухода за бетоном устанавливает строительная лаборатория.

Поливка водой открытых поверхностей твердеющих бетонных конструкций не допускается.

Распалубка должна производиться, как правило, в вечернее или ночное время после набора бетоном прочности, указанной в проекте производства работ по заключению строительной лаборатории.

Категорически запрещается заделка раковин и затирка поверхностей до приемки железобетонных конструкций.

2.10. Транспортирование бетонной смеси производить в автосамосвалах с кузовом, приспособленным для ее перевозки. Допускается перевозка бетонной смеси в бункерах и бадьях, установленных в кузовах и на прицепах автотранспорта. Расстояние перевозки бетонной смеси в автотранспорте должно быть не более 15 км.

Как варианты транспортирования бетонной смеси рассматривается перевозка ее автобетоносмесителями марки СБ-69Б.

2.11. Бетонная смесь подается к месту укладки в поворотных бадьях с помощью двух башенных кранов КБ-405.1. Как варианты в ТТК рассмотрено применение башенного крана КБ-674.

Расположение башенных кранов и расстояние подкрановых путей от зданий устанавливают при привязке карты в зависимости от объемно-планировочного решения здания и марки крана. Максимальное расстояние от оси движения крана до стены определяется его технической характеристикой, минимальное - условиями безопасности работ в соответствии со СНиП III-4-80.

ТТК предусмотрена установка башенного крана № 2 на одном звене, так как достаточно одной стоянки для производства краном всех работ. В этом случае звено должно быть уложено на жестком основании, исключающем просадку подкрановых путей. Таким основанием могут служить сборные фундаментные блоки или специальные сборные конструкции. При невозможности выполнения этого условия башенный кран № 2 установить на два звена подкрановых путей общей длиной не менее 25 м.

Варианты рекомендуемых машин и оборудования для устройства конструкций приводятся в табл. 1.

Таблица 1

Наименование комплекта машин и оборудования

Вариант (фасет-код)

Техническая характеристика

Марка

Количество

Кран монтажный

1

(03-1)

Кран башенный грузоподъемностью до 10 т

КБ-405.1

2

2

(03-2)

То же, до 25 т

КБ-674

1

Транспортные средства

1

(04-3)

Автомобиль-самосвал

КамАЗ-5511

5

2

(04-4)

Автомобиль с кузовом, приспособленным для перевозки бетона

CБ-124 на базе КамАЗ-5511

9

3

(04-2)

Автобетоносмеситель

СБ-69Б

8

Оборудование для укладки бетона

1,2

(04-5)

Бадья поворотная

БПВ-1,0

4

1,2

(04-6)

Вибратор глубинный

ИВ-67

4

1,2

(04-7)

Виброрейка унифицированная

-

4

2.12. Схемы разбивки типового этажа на захватки приведены на рис. 1.

Схема расположения монтажных кранов приведена на рис. 2.

3. ТРЕБОВАНИЯ К КАЧЕСТВУ И ПРИЕМКЕ РАБОТ

3.1. Технический контроль качества бетонных работ заключается в проверке соблюдения требований СНиП 3.03.01-87.

3.2. На строительной площадке в процессе производства работ производится проверка:

подвижности бетонной смеси;

соответствия прочности бетона проектной.

Проверка подвижности бетонной смеси в процессе укладки ее в конструкции должна производиться не реже двух раз в смену.

При проверке прочности бетона на сжатие количество подлежащих испытанию образцов должно назначаться из расчета одной серии (3 образца-близнеца) на каждые 100 м3 уложенной бетонной смеси.

Контрольные образцы должны выдерживаться вблизи забетонированной конструкции под постоянно увлажненным покрытием.

3.3. При исправлении дефектов больших размеров отбивается весь рыхлый бетон, а поверхность прочного бетона очищается металлической щеткой и промывается водой. Раковины заделываются бетонной смесью с мелким щебнем или гравием крупностью до 20 мм.

Мелкие раковины после прочистки щетками и промывки водой затираются цементным раствором.

3.4. Наименование процессов, подлежащих контролю, и средства контроля приведены в табл. 2.

Таблица 2

Наименование процессов, подлежащих контролю

Предмет контроля

Инструмент и способ контроля

Периодичность контроля

Ответственный за контроль

Технические критерии оценки качества

Прием бетонной смеси

Соответствие бетонной смеси техническим условиям, паспорту

Отбор проб. Измерительный

В процессе приготовления смеси

Лаборант, производитель работ

Не реже двух раз в смену

Уход за бетоном

Соблюдение температурно-влажностного режима

Термометр. Измерительный

В процессе твердения

Лаборант, производитель работ

Соответствие техническим условиям

Распалубливание

Наличие поверхностных дефектов, размеры, отметки

Отвес, нивелир рейка. Измерительный и визуальный осмотр

После распалубливания

Производитель работ

Допустимые отклонения: для стен не более 15 мм на всю высоту, для перекрытий 10 мм на всю плоскость

Рис. 1. Схема разбивки типового этажа на захватки

Условные обозначения:

IIV - номера захваток;

1 - граница захваток; 2 - подмости лестничной клетки и шахты лифта; 3 - опалубочная стеновая панель.

Рис. 2. Схема производства работ

Условные обозначения:

4 - рельсовый путь башенного крана; 5 - ограждение рельсового пути; 6 - контрольный груз; 7 - площадка складирования материалов; чистки, смазки и укрупненной сборки полутуннелей и приема бетонной смеси

Рис. 3. Схема производства работ при бетонировании типового этажа

Условные обозначения:

IIV - номера захваток;

1 - общее направление производства работ; 2 - подмости лестничной клетки и шахты лифта; 3 - опалубочная стеновая панель; 8 - направление бетонирования конструкций; 9 - общее направление производства работ; 10 - приемная воронка; 11 - ходовые подмости; 12 - выкатные подмости

Рис. 4. Схема бетонирования конструкций на захватке

Условные обозначения:

9 - общее направление производства работ; 13 - забетонированный участок перекрытия; 14 - участок уплотнения уложенной бетонной смеси; 15 - участок укладки бетонной смеси; 16 - участок подготовки основания; 17- участок бетонирования порогов; 18 - глубинный вибратор; 19 - виброрейка; 20 - маячные рейки; 21 - инструментально-раздаточный пункт; 22 - универсальная распределительная сборка

Рис. 5. Схема бетонирования стены

Рис. 6. Схема бетонирования перекрытия

Условные обозначения

23 - компрессор малогабаритный; 24 - бадья поворотная; 25 - приемная воронка

 


4. КАЛЬКУЛЯЦИЯ ЗАТРАТ ТРУДА, МАШИННОГО ВРЕМЕНИ, ЗАРАБОТНОЙ ПЛАТЫ НА ТИПОВОЙ ЭТАЖ

Таблица 3

Наименование процесса

Номер фасета для пересчета показа­телей

Единица измере­ния

Объем работ

Обоснование (ЕНиР и др. нормы)

Норма времени

Расценка, руб.-коп.

Затраты труда

Заработная плата, руб.-коп.

Время пребывания машины на объекте, маш.-ч

Заработная плата машиниста с учетом пребывания машины на объекте, руб.-коп.

рабочих, чел.-ч

машини­ста, чел.-ч (маш.-ч)

рабо­чих

машини­ста

рабо­чих, чел.-ч

машини­ста, чел.-ч (маш.-ч)

рабо­чих

машини­ста

А. СТЕНЫ

 

 

 

 

 

 

 

 

 

 

 

 

 

 

Прием бетонной смеси из кузова автосамосвала с очисткой кузова

04

1 м3

48,86

§ Е4-1-48, Б, т.3

0,11

-

0-07

-

5,37

-

3-42

-

-

-

Подача бетонной смеси в бадьях башенным краном

01, 02, 04

1 м3

48,86

§ Е1-7, № 21, а, б

0,29

0,145

(0,145)

0-18,6

0-13,2

14,17

7,08

(7,08)

9-09

6,45

18,00

16-39

Укладка бетонной смеси в конструкции толщиной' до 200 мм

01, 02

1 м3

48,86

§ Е4-1-49, В, т.3, № 1в, ПР-10

1,84

-

1-31,1

-

89,90

-

64-06

-

-

-

Б. ПЕРЕКРЫТИЯ

 

 

 

 

 

 

 

 

 

 

 

 

 

 

Прием бетонной смеси из кузова автосамосвала с очисткой кузова

04

1 м3

55,67

§ Е4-1-48, Б, т.3

0,11

-

0-07

-

6,12

-

3-90

-

-

-

Подача бетонной смеси в бадьях башенным краном

01, 02, 04

1 м3

55,67

§ Е1-7, № 21а, б

0,29

0,145

(0,145)

0-18,6

0-13,2

16,14

8,07

(8,07)

10-35

7-35

16,0

14-57

Укладка бетонной смеси в конструкции толщиной до 200 мм

01, 02

1 м3

55,67

§ Е4-1-49, Б, т.2 № 13

0,85

-

0-60,8

-

47,32

-

33-85

-

-

-

Перекидка бетонной смеси на расстояние до 2 м вручную

01

1 м3

5,67

§ Е4-1-54, № 21

0,74

-

0-43,7

-

4,20

-

2-48

-

-

-

 

 

 

 

 

 

 

 

 

 

 

 

 

 

 

 

 

 

 

 

 

 

 

 

183,22

15,15

127-15

13-80

34,0

30-96


5. ГРАФИК ПРОИЗВОДСТВА РАБОТ НА ТИПОВОЙ ЭТАЖ

Таблица 4

6. МАТЕРИАЛЬНО-ТЕХНИЧЕСКИЕ РЕСУРСЫ

6.1. Потребность в инструменте, инвентаре и приспособлениях приведена в табл. 5.

Таблица 5

Наименование

Марка, техническая характеристика

Количество по вариантам

Примечание

I

II

III

Объемно-переставная опалубка

SБМ-75/м2

1

1

1

Опалубочные работы

Бадья поворотная

БВП-1,0; ГОСТ 21807-76*

4

4

4

Прием бетона и подача в опалубку

Строп четырехветвевой

ОСТ 24090.48-79

2

2

2

Строповка конструкций

Поверхностный вибратор

ИВ-24А

4

4

4

Уплотнение горизонтальных поверхностей

Виброрейка унифицированная

-

4

4

4

То же

Глубинный вибратор

ИВ-67

4

4

4

Уплотнение вертикальных среднеармированных конструкций

Глубинный вибратор

ИВ-17

4

4

4

То же, густоармированных бетонных смесей

Понижающий трансформатор

ИВ-4

2

2

2

Для ручных электрических машин

То же

ИВ-3

2

2

2

То же

Мачта поэтажная

3.294.55.000

2

2

2

Освещение рабочих мест

Лестница

3.294.11.000

4

4

 

Подъем на этаж

Перекидной мостик

ЦНИИОМТП черт. 3.257.02.000

2

2

2

Безопасность работ

Инвентарное ограждение

тр. "0ргтехстрой", черт. ОТБ 21-00-000

18

18

18

Ограждение проемов

Инвентарное ограждение

тр. "Оргтехстрой" р.ч.№ 5310.000

104

104

104

Ограждение рабочих зон

Лопата стальная подборочная

ЛП-1 ГОСТ 19586-87

4

4

4

Вспомогательные работы

Кельма

ГОСТ 9533-81

2

2

2

То же

Скребок с удлиненной ручкой

3.293.00.200

4

-

-

Очистка кузова самосвала

Щетка стальная

МРТУ Минторга СССР

4

4

4

Очистка поверхностей

Кисть маховая

ГОСТ 10597-87

2

2

2

Вспомогательные работы

Гладилка стальная

ГОСТ 10403-80

1

1

1

Выравнивание бетонных поверхностей

Канат пеньковый

ГОСТ 483-75*

20

20

20

Перемещение виброрейки

Предохранительный пояс "Строитель"

ГОСТ 5718-77*

4

4

4

Безопасность работ

Каска винипластовая "Салво"

ГОСТ 24087-80

18

18

18

То же

Перчатки резиновые технические

ГОСТ 20010-74*

2

2

2

То же

Метр складной металлический

ГОСТ 427-75*

3

3

3

Замеры в процессе работ

Угольник поверенный стальной 90° с пяткой 1000´630

ГОСТ 3749-77*

2

2

2

Контроль качества

Будка бетонщика

3.295.07.000

1

1

1

Размещение инструмента (устанавливается на перекрытии)

Гребок для бетонных работ

ТУ 22-4:945-81

2

2

2

Разравнивание бетона

Отвес строительный

ГОСТ 7948-80

4

4

4

Контроль качества

Воронка приемная для бетона

Индивидуальное изготовление

20

20

20

Прием бетонной смеси в опалубку стен

Рейка маячная длиной:

Индивидуальное изготовление швеллер № 16

 

 

 

Укладка бетонной смеси в перекрытия

4730 мм

2

2

2

4400 мм

2

2

2

2850 мм

2

2

2

1500 мм

4

4

4

Топор

ГОСТ 1399-73*

2

2

2

Вспомогательные работы

Металлический штырь для опирания реек

Изготовление, сталь стержневая Ø14 A-11

20

22

20

Опирание маячных реек

Компрессор малогабаритный

КМ-70

1

1

1

Очистка основания

Машина для заглаживания бетонной поверхности

CО-135

1

1

1

Заглаживание бетонной поверхности

Рукавицы специальные

ГОСТ 12.4.010-75*

 

6 пар

 

Защита кожи рук

Обувь специальная

ГОСТ 12.4.103-83

 

6 пар

 

Охрана здоровья при работе с бетоном

6.2. Потребность в материалах для выполнения работ приведена в табл. 6.

Таблица 6

Наименование материалов

Исходные данные

Потребность в материалах

единица измерения

объем работ в нормативных единицах

принятая норма расхода материала

Антиадгезионные средства

кг на 1 м2 формующей поверхности опалубки

1173,81

0,35

0,55

410,83

645,60

Швеллер № 10

кг на 1м

32,81

8,59

281,84

Арматурная сталь класса А-II, Ø 14 мм

кг на 1м

8,96

1,21

10,84

Примечание. В числителе приведен расход антиадгезионных средств при нанесении пневмораспылителем, в знаменателе - при нанесении вручную кистью или валиком.

7. ТЕХНИКА БЕЗОПАСНОСТИ

7.1. При производстве бетонных работ необходимо соблюдать указания СНиП III-4-80 ГОСТ 12.1.013-78 и ГОСТ 12.1.004-85.

7.2. Основные производственные факторы, которые могут вызвать несчастные случаи в процессе выполнения бетонных работ.

7.2.1. Падение грузов, перемещаемых краном.

7.2.2. Падение людей с высоты.

7.2.3. Повышенное значение напряжения в электрической цепи.

7.2.4. Повышенное значение уровня вибрации.

7.3. Мероприятия по предотвращению несчастных случаев.

7.3.1. Перед укладкой бетонной смеси в конструкцию необходимо проверить надежность крепления и ограждения опалубки, состояния тары для бетонной смеси; она должна быть снабжена специальными приспособлениями (замками), не допускающими случайной выгрузки смеси.

Такелажное оборудование кранов и тары, предназначенное для подъема бетонной смеси, до начала работы необходимо испытать в соответствии с требованиями Госгортехнадзора.

Совместная работа двух башенных кранов должна производиться в соответствии с указаниями проекта производства работ. Расстояние между поднимаемыми грузами должно быть не менее 5 метров. При невозможности соблюдения этого условия необходимо остановить работу одного из кранов.

7.3.2. Рабочие, принимающие материалы наверху, должны быть связаны сигнализацией с машинистом крана.

Ходить по уложенной арматуре разрешается только по специальным настилам шириной не менее 0,6 м, устроенным на козелках, установленных на опалубку.

Рабочие места бетонщиков обязательно должны иметь ограждения. Временные лестницы, ведущие к местам производства работ необходимо надежно закрепить, Проемы в перекрытии оградить или закрыть щитами.

7.3.3. Включение в сеть электрифицированных агрегатов должно производиться посредством рубильников с предохранителями закрытого типа и соответствовать потребляемому току.

Рабочие, производящие работы с электрифицированным инструментом, должны быть обеспечены индивидуальными средствами защиты (резиновой обувью, перчатками) в соответствии с ГОСТ 12.4.103-83.

Электродвигатели должны быть заземлены и оборудованы защитными отключающими устройствами.

7.3.4. При уплотнении бетонной смеси электровибраторами надлежит соблюдать следующие требования:

работающих с вибраторами подвергать периодическому медицинскому освидетельствованию в сроки, установленные Минздравом СССР;

рукоятки вибраторов снабжать амортизаторами, обеспечивающими вибрацию не выше предельно допустимых норм;

не прижимать руками поверхностные вибраторы, ручное перемещение вибраторов во время виброуплотнения производить при помощи гибких тяг.

8. ТЕХНИКО-ЭКОНОМИЧЕСКИЕ ПОКАЗАТЕЛИ

Таблица 7

Наименование показателя

Единица измерения

Количество

Нормативные затраты труда рабочих

чел.-ч

183,22

Нормативные затраты машинного времени

маш.-ч

15,15

Заработная плата рабочих

руб.-коп.

127-15

Заработная плата машиниста башенного крана

руб.-коп.

13-80

Продолжительность выполнения работ

смена

2,10

Выработка на одного рабочего в смену

 

м3

 

4,56

 

чел.-смену

 

 

Условные затраты на механизацию для базового варианта с учетом пребывания машин на объекте

руб.-коп.

156-06

Сумма изменяемых затрат

руб.-коп.

283-21

9. ФАСЕТНЫЙ КЛАССИФИКАТОР ФАКТОРОВ

Фасет 01

Высота от уровня земли при бетонировании

Наименование фактора

Обоснование

Код

Значение фактора

Высота от уровня земли, м:

 

 

 

до 15

ЕНиР, сб. Е4, вып.

1

По калькуляции Н. вр. и расц. умножать на 1,05

до 20

То же

2

до 30

То же

3

То же, на 1,1

до 40

То же

4

То же, на 1,2

свыше 40

То же

5

То же, на 1,3

Фасет 02

Высота подъема бетонной смеси

Наименование фактора

Обоснование

Код

Значение фактора

Подъем бетонной смеси

 

 

 

на высоту до:

 

 

 

12 м

ЕНиР, сб. Е1

1

По калькуляции

18 м

То же

2

Н. вр, умножать на 1,21; расц. для машиниста умножать на 1,20, для такелажников - на 1,21.

24 м

То же

3

Н. вр. умножать на 1,42. Расц. для машиниста умножать на 1,29, для такелажников -  на 1,43.

30 м

То же

4

Н. вр. умножить на 1,625. Расц. для машиниста умножать на 1,64, для такелажников - на 1,639.

36 м

То же

5

Н. вр. умножать на 1.83; расц. для машиниста умножать на 1,818, для такелажников - на 1,852.

42 м

То же

6

Н. вр.умножать на 2,04; Расц. для машиниста умножать на 2,02, для такелажников  -на 2,06

48 м

То же

7

Н. вр. умножать на 2,25; Расц. для машиниста умножать на 2,23, для такелажников - на 2,28.

51 м

То же

8

Н. вр. умножать на 2,46; Расц. для машиниста умножать на 2,43, для такелажников - на 2,49

Фасет 03

Стоимость 1 маш.-ч работы монтажного крана, руб.

Наименование фактора

Обоснование

Код

Значение фактора

Кран башенный грузоподъемностью

5,5-8 т (2 шт.)

СНиП IV-3-84, Приложение. Сб. сметных цен эксплуатации строительных машин

1

 

 

 

4,59

 

Кран башенный грузоподъемностью

13-25 т (1 шт.)

Тоже

6,11

Фасет 04

Стоимость 1 маш.-ч работы монтажных механизмов и приспособлений, руб.

Наименование фактора

Обоснование

Код

Значение фактора

Компрессор передвижной малогабаритный

СНиП IV-3-84, Приложение. Сб. сметных цен эксплуатации строительных машин

1

 

 

 

1,38

Автобетоносмесители

То же

2

 

4,44

 

Автомобиль-самосвал грузоподъемностью 10 т

То же

3

 

6,65

 

Автомобиль с кузовом,

 

 

 

 

 

приспособленным для перевозки бетона

То же

 

 

 

 

4

4,54

Бадья поворотная

То же

5

 

0,09

 

Вибратор глубинный

То же

6

 

0,12

 

Виброрейка

То же

7

 

0,12

 

Примечание. Рамкой обведены в таблицах значения факторов, на которые рассчитаны показатели в данной технологической карте.

 

 




ГОСТЫ, СТРОИТЕЛЬНЫЕ и ТЕХНИЧЕСКИЕ НОРМАТИВЫ.
Некоммерческая онлайн система, содержащая все Российские Госты, национальные Стандарты и нормативы.
В Системе содержится более 150000 файлов нормативно-технической документации, действующей на территории РФ.
Система предназначена для широкого круга инженерно-технических специалистов.

Рейтинг@Mail.ru Яндекс цитирования

Copyright © www.gostrf.com, 2008 - 2026