| |
ТИПОВЫЕ ТЕХНОЛОГИЧЕСКИЕ КАРТЫ НА
ПРОИЗВОДСТВО ОТДЕЛЬНЫХ ВИДОВ РАБОТ
ТИПОВАЯ
ТЕХНОЛОГИЧЕСКАЯ КАРТА
НА БЕТОННЫЕ И ЖЕЛЕЗОБЕТОННЫЕ РАБОТЫ (МОНОЛИТНЫЙ ЖЕЛЕЗОБЕТОН)
6306031075
31075
УСТРОЙСТВО МОНОЛИТНЫХ ФУНДАМЕНТОВ ПОД КАРКАС ГРАЖДАНСКИХ
И ПРОМЫШЛЕННЫХ. ЗДАНИЙ С ПРИМЕНЕНИЕМ ЩИТОВОЙ ОПАЛУБКИ
|
РАЗРАБОТАНА
Центральным
научно-исследовательским и проектно-экспериментальным институтом организации,
механизации и технической помощи строительству (ЦНИИОМТП)
Зам.
директора института, д.т.н.
В.Д. Топчий
Начальник
отдела экспериментального
проектирования
Ю.А. Ярымов
Зав.
лабораторией бетонных работ, к.т.н. Б.В. Жадановский
|
СОГЛАСОВАНО
Управлением
механизации и технологии строительства Госстроя СССР
Письмо от 26.01.90 № 12-33
Введена в действие с 26 января
1990 г.
|
Москва-1990
Содержание
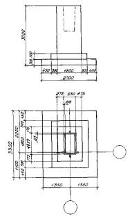
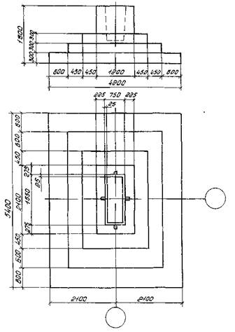
Типовая технологическая карта разработана на
устройство столбчатых монолитных фундаментов под каркас гражданских и
промышленных зданий с использованием щитовой опалубки. Схемы монолитных
фундаментов даны на рис. 4.
В качестве аналога приняты фундаменты объемом 14,7 и 9,1 м3.
Технологической картой предусматривается устройство
монолитных фундаментов с применением инвентарной мелкощитовой опалубки,
разработанной ЦНИИОМТП Госстроя СССР (проект. 794В-2.00.000).
В технологической карте предусматриваются три варианта
подачи бетонной смеси в конструкцию:
краном в бункерах;
автобетононасосом СБ-126А (ВН-80-20);
бетоноукладчиком СБ-131.
Транспортирование бетонной смеси предусматривается в
автобетоносмесителе CБ-159
(СБ-921А).
До начала устройства фундаментов должны быть выполнены
следующие работы:
устроены подъездные пути и автодороги;
обозначены пути движения механизмов, места
складирования, укрупнения арматурных сеток и опалубки, подготовлена монтажная
оснастка и приспособления;
выполнена бетонная подготовка под фундаменты;
завезены арматурные сетки и комплекты опалубки;
составлены акты приемки основания фундаментов в соответствии
с исполнительной схемой;
устроено временное электроосвещение рабочих мест и
подключены электросварочные аппараты;
произведена геодезическая разбивка осей и разметка положения
фундаментов в соответствии с проектом;
на поверхность бетонной подготовки краской нанесены риски,
фиксирующие положение рабочей плоскости щитов опалубки.
Опалубочные работы
Опалубка на строительную площадку должна поступать
комплектно, пригодной к монтажу и эксплуатации, без доделок и исправлений.
Поступившие на строительную площадку элементы опалубки
размещаются в зоне действия монтажного крана. Все элементы опалубки должны
храниться в положении, соответствующем транспортному, рассортированные по
маркам и типоразмерам. Хранить элементы опалубки необходимо под навесом в
условиях, исключающих их порчу. Щиты укладывают в штабели высотой не более
1-1,2 м на деревянных прокладках; схватки по 5-10 ярусов общей высотой не более
1 м с установкой деревянных прокладок между ними; остальные элементы, в
зависимости от габаритов и массы, укладывают в ящики.
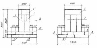
Фундаменты под железобетонные колонны
Ф-1

Ф-2

Монтаж и демонтаж опалубки предусматривается вести с помощью
крана СМК-10.
До начала монтажа опалубки производят укрупнительную сборку
щитов в панели Г-образного профиля в следующей последовательности:
на смонтированной площадке собирают Г-образный короб из
схваток;
на схватки навешивают щиты;
на ребра щитов панели наносят краской риски, обозначающие
положение осей.
Устройство опалубки фундамента производят в следующем
порядке:
устанавливают и закрепляют укрупненные панели опалубки
нижней ступени башмака;
рихтуют собранный короб строго по осям и закрепляют опалубку
нижней ступени металлическими штырями к основанию;
наносят на ребра укрупненных панелей короба риски,
фиксирующие положение короба второй ступени фундамента;
отступив от рисок на расстояние, равное толщине щитов,
устанавливают предварительно собранный короб второй ступени;
рихтуют установленный короб по осям;
в той же последовательности устанавливают короб третьей
ступени;
наносят на ребра укрупненных панелей верхнего короба риски,
фиксирующие положение короба подколенника;
устанавливают и рихтуют короб подколенника;
устанавливают и закрепляют опалубку вкладышей.
Смонтированная опалубка принимается по акту мастером или
прорабом.
За состоянием установленной опалубки должно вестись непрерывное
наблюдение в процессе бетонирования. В случае непредвиденных деформаций
отдельных элементов опалубки или недопустимого раскрытия щелей следует
устанавливать дополнительные крепления и исправлять деформированные места.
Демонтаж опалубки разрешается производить только после
достижения бетоном требуемой, согласно СНиП 3.03.01-87, прочности и с
разрешения производителя работ.
В процессе отрыва бетонная поверхность не должна
повреждаться.
Демонтаж опалубки производится в порядке обратном
монтажу.
После снятия опалубки необходимо:
произвести визуальный осмотр опалубки;
очистить от налипшего бетона все элементы опалубки;
произвести смазку палуб, проверить и нанести смазку на
винтовые соединения.
Схемы производства опалубочных работ даны далее.
Арматурные работы
Арматурные сетки подколонников доставляют на строительную
площадку и разгружают на площадке укрупнительной сборки, сетки башмаков - на
площадке для складирования.
Сборка армокаркасов подколонника ведется на стенде сборки с
помощью кондуктора, путем прихватки арматурных сеток между собой электродуговой
сваркой.
Армокаркасы и сетки башмаков массой свыше 50 кг
устанавливают автомобильным краном СМК-10 в следующем порядке:
укладывают арматурные сетки башмака на фиксаторы,
обеспечивающие защитный слой по проекту;
Схема раскладки щитов опалубки
Ф-1

Ф-2

Соединение двух щитов между собой

Ф-1
Вид А

1.
Раскладку щитов опалубки см. выше
2.
Кронштейн поз. 23 условно не показан.
Спецификация
элементов опалубки
|
Поз.
|
Наименование
|
Марка
|
Количество на один
фундамент, шт.
|
Площадь
щитов, м2
|
Масса,.
кг
|
|
|
Одного
щита
|
на фундамент
|
единицы
|
на фундамент
|
|
|
Ф-1
|
Ф-2
|
|
|
Ф-1
|
Ф-2
|
Ф-1
|
Ф-2
|
|
|
1
|
Щит
|
ЩМ
1,8´0,6
|
12
|
-
|
1,08
|
12,96
|
-
|
46,2
|
554,4
|
-
|
|
|
2
|
Щит
|
ЩМ
1,8´0,3
|
4
|
10
|
0,54
|
2,16
|
5,40
|
29,6
|
118,4
|
296,0
|
|
|
3
|
Щит
|
ЩМ
1,5´0,3
|
4
|
12
|
0,45
|
1,80
|
5,40
|
24,6
|
98,4
|
295,2
|
|
|
4
|
Щит
|
ЩМ
1,3´0,6
|
3
|
-
|
0,72
|
1,44
|
-
|
32,2
|
84,4
|
-
|
|
|
5
|
Щит
|
ЩМ
1,5´0,3
|
6
|
2
|
0,36
|
2,16
|
0,72
|
20,0
|
120,0
|
40,0
|
|
|
6
|
Щит
|
ЩМ
0,9´0,6
|
-
|
10
|
0,54
|
-
|
5,40
|
24,9
|
-
|
249,0
|
|
|
7
|
Шит
|
ЩМ
0,9´0,3
|
-
|
8
|
0,27
|
-
|
2,16
|
15,3
|
-
|
122,4
|
|
|
|
Итого
|
|
28
|
42
|
-
|
20,52
|
19,08
|
-
|
355,6
|
1002,6
|
|
|
8
|
Схватка
|
Сх-3,6
|
4
|
4
|
-
|
-
|
-
|
25,2
|
104,8
|
104,8
|
|
|
9
|
Схватка
|
Сх-3,0
|
4
|
10
|
-
|
-
|
-
|
22,2
|
88,8
|
222,0
|
|
|
10
|
Схватка
|
Сх-2,4
|
6
|
10
|
-
|
-
|
-
|
18,2
|
109,2
|
182,0
|
|
|
11
|
Схватка
|
Сх-1,8
|
6
|
4
|
-
|
-
|
-
|
14,3
|
85,8
|
57,2
|
|
|
12
|
Схватка
|
Сх-1,2
|
-
|
2
|
-
|
-
|
-
|
10,5
|
-
|
21,0
|
|
|
|
Итого
|
|
20
|
30
|
-
|
-
|
-
|
-
|
388,6
|
587,0
|
|
|
13
|
Уголок
монтажный
|
УМ
1,2´0,3
|
8
|
-
|
-
|
-
|
-
|
2,8
|
22,4
|
-
|
|
|
14
|
Уголок
монтажный
|
УМ
0,6´0,3
|
-
|
4
|
-
|
-
|
-
|
1,5
|
-
|
6,0
|
|
|
15
|
Уголок
монтажный
|
УМ
0,3´0,3
|
8
|
16
|
-
|
-
|
-
|
0,8
|
6,4
|
12,8
|
|
|
|
Итого
|
|
16
|
20
|
-
|
-
|
-
|
-
|
28,8
|
18,8
|
|
|
16
|
Крюк
натяжной
|
|
82
|
102
|
-
|
-
|
-
|
0,21
|
17,2
|
21,4
|
|
|
17
|
Клин
|
Z =
125 мм
|
82
|
102
|
-
|
-
|
-
|
0,25
|
20,5
|
25,5
|
|
|
18
|
Клин
|
Z = 80 мм
|
34
|
34
|
-
|
-
|
-
|
0,06
|
2,0
|
2,0
|
|
|
19
|
Палец
|
Z = 123 мм
|
34
|
34
|
-
|
-
|
-
|
0,95
|
32,3
|
32,3
|
|
|
20
|
Стяжка
|
-
|
20
м
|
30
м
|
-
|
-
|
-
|
0,4
|
8,0
|
12,0
|
|
|
21
|
Замок
стяжки
|
-
|
12
|
12
|
-
|
-
|
-
|
0,64
|
7,7
|
7,7
|
|
|
22
|
Стакан
|
-
|
1
|
1
|
-
|
-
|
-
|
81,0
|
81,0
|
81,0
|
|
|
23
|
Кронштейн
с настилом и навесной лестницей
|
-
|
1
|
1
|
-
|
-
|
-
|
96,5
|
96,5
|
96,5
|
|
|
Итого
по п. п. 1-23
|
-
|
-
|
-
|
-
|
20,5
|
19,1
|
-
|
1638,2
|
1886,8
|
|
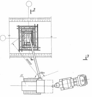
Схема производства
опалубочных работ


Схемы укрупнения
щитов в панели

1 - кран автомобильный CMK-10; 2
- площадка складирования; 3- щиты опалубки; 4- схватки; 5 - уголки
монтажные; 6 - укрупненные панели опалубки; 7 - арматурный
каркас; 8 - строп; 9 - бетонная подготовка.
после установки опалубки
башмака устанавливают армокаркас подколонника с закреплением его к сетке
башмака вязальной проволокой.
До установки опалубки подколенника армокаркас
раскрепляют расчалками.
Арматурные работы должны выполняться в соответствии со СНиП 3.03.01-87.
Схемы производства арматурных работ даны далее.
Укладка
бетонной смеси
До начала бетонирования необходимо:
проверить и опробовать оборудование, инвентарь и
приспособления, применяемые при бетонировании;
проверить и принять по акту установленные опалубку и
арматуру.
Транспортирование бетонной смеси предусматривается
автобетоносмесителями СБ-159, СБ-921А.
В состав работ по бетонированию фундаментов входят:
прием и подача бетонной смеси;
укладка и уплотнение бетонной смеси.
Подача бетонной смеси к месту укладки предусматривается в
трех вариантах:
автомобильным краном в поворотных бункерах;
автобетононасосом CB-126A;
бетоноукладчиком СБ-131.
Для подачи бетонной смеси краном предусматривается бункер
вместимостью 1,0 м3.
При укладке бетонной смеси автобетононасосом необходимо
осуществлять проверку за подбором состава бетонной смеси. Осадка конуса смеси
от 4 до 12 см.
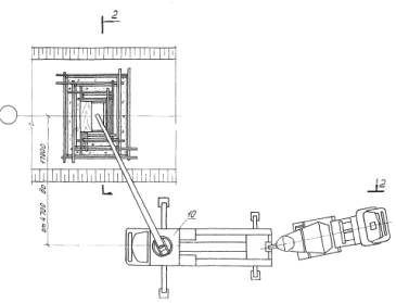
Схемы производства бетонных работ даны далее.
Подача бетонной смеси бетоноукладчиком осуществляется с
соблюдением следующих требований: загружать ленту транспортера бетонной смесью
возможно более толстым слоем; лента транспортера должна быть оборудована
бортовым ограждением, закрепленным на раме; наибольший угол наклона
транспортерной ленты не должен превышать 18°.
Бетонирование
фундамента осуществляется в два этапа:
на первом этапе бетонируются башмак фундамента и подколонник
до отметки низа вкладыша;
на втором этапе бетонируется верхняя часть подколенника
после установки вкладыша.
Бетонную смесь укладывают горизонтальными слоями толщиной
30-40 см.
Каждый слой бетонной смеси тщательно уплотняют глубинным
вибратором. При уплотнении бетонной смеси конец рабочей части вибратора должен
погружаться в ранее уложенный слой бетона на глубину 5-10 см. Шаг перестановки
вибратора не должен превышать 1,5 радиуса его действия.
Перекрытие предыдущего слоя бетона последующим должно быть
выполнено до начала схватывания бетона в предыдущем слое.
В углах и у стен опалубки бетонная смесь дополнительно
уплотняется штыкованием ручными металлическими шуровками.
Бетонирование фундамента производят с навесных подмостей.
Схемы армирования фундаментов
|
Ф-1
|
Ф-2
|
|

|

|
|
Схема раскладки сеток подошвы
|
Схема
раскладки сеток подошвы
|
|

|

|
Спецификация арматурных
сеток
|
Условная марка
|
Количество, шт.
|
Масса, кг
|
|
одного элемента
|
общая
|
|
Ф-1
|
|
|
|
|
С-1
|
3
|
21,7
|
65,1
|
|
С-2
|
3
|
16,2
|
48,6
|
|
С-3
|
2
|
13,4
|
25,8
|
|
С-4
|
8
|
4,8
|
38,4
|
|
С-5
|
2
|
9,3
|
18,6
|
|
Итого
|
-
|
-
|
197,5
|
|
Ф-2
|
|
|
|
|
С-6
|
2
|
165,1
|
330,2
|
|
С-7
|
2
|
45,1
|
90,2
|
|
С-8
|
1
|
121,7
|
121,7
|
|
С-9
|
2
|
10,5
|
21,0
|
|
С-10
|
6
|
11,5
|
69,0
|
|
С-11
|
2
|
10,9
|
21,8
|
|
Итого
|
-
|
-
|
653,9
|
Схемы
производства арматурных работ


|
Схемы строповки
|
Фиксатор защитного слоя бетона
|
|

|

|

|
|
|
|
1 - кран
автомобильный СМК-10; 2 - площадка складирования; 3 - опалубка
фундамента; 4 - уложенные арматурные сетки; 5 - устанавливаемый
арматурный каркас; 6- строп; 7 - инвентарный щит (изготавливается
по месту); 8 - фиксатор защитного бетона; ® - направление движения автокрана
Схемы производства бетонных работ
а) подача
бетонной смеси краном в бункерах

Разрез 1-1

Подача бетонной смеси в конструкцию

1 - кран
автомобильный СМК-10; 2 - автобетоносмеситель СБ-159; 3- бункер
поворотный - БП-1,0; 4 - строп; 5 - кронштейн; 6 - поток; 7-
щиты опалубки; 8- бетонируемый фундамент; 9- площадка для складирования.
б) подача бетонной смеси автобетононасосом
СБ-126А


10 -
автобетононасос СБ-126Р
в) подача
бетонной смеси бетоноукладчиком

Разрез 3-3

11 -
бетоноукладчик СБ-131
Мероприятия по уходу за бетоном в период набора прочности,
порядок и сроки их проведения, контроль за выполнением этих мероприятий
необходимо осуществлять в соответствии с требованиями СНиП 3.03.01-83. Открытые
поверхности бетона предохраняют от воздействия солнечных лучей путем поливки
водой или укрытия их влажными материалами (опилки). Сроки выдерживания и
периодичность поливки назначает строительная лаборатория.
Технические критерии и средства
контроля операций и процессов приводятся в табл. 1.
Таблица 1
|
Наименование процессов, подлежащих контролю
|
Предмет контроля
|
Инструмент, способ контроля
|
Периодичность контроля
|
Ответственный за контроль
|
Технические критерии оценки качества
|
|
Монтаж опалубки
|
Смещение осей опалубки от проектного положения
|
Линейка измерительная
|
В процессе монтажа
|
Мастер
|
Допускаемое отклонение - 15 мм
|
|
|
Правильность установки опалубки
|
Визуально
|
В процессе работ
|
Производитель работ
|
-
|
|
|
Местные неровности опалубки
|
Линейка измерительная
|
До начала работ
|
Мастер
|
Допускаемые отклонения 3 мм
|
|
|
Отклонение плоскости опалубки от вертикали на всю высоту фундамента
|
Отвес, линейка измерительная
|
В процессе работ
|
Мастер
|
Допускаемое отклонение - 20 мм
|
|
Монтаж арматуры
|
Отклонение от проектных размеров толщины защитного слоя
|
Линейка измерительная
|
В процессе работ
|
Мастер
|
Допускаемое отклонение: при толщине защитного слоя более 15 мм - 5
мм; при толщине защитного слоя 15 мм и менее - 3 мм
|
|
|
Смещение арматурных стержней при их установке в опалубку, а также при
изготовлении арматурных каркасов и сеток
|
Линейка измерительная
|
В процессе работ
|
Мастер
|
Допускаемое отклонение 1/5 наибольшего диаметра стержня и 1/4
диаметра устанавливаемого стержня
|
|
|
Отклонение от проектных размеров положения осей вертикальных каркасов
|
Геодезический инструмент
|
В процессе работ
|
Мастер
|
Допускаемое отклонение - 5 мм
|
|
Укладка бетонкой смеси
|
Толщина слоев бетонной смеси
|
Визуально
|
В процессе работ
|
Мастер
|
Наибольшая толщина слоя должна быть не более 1,25 м длины рабочей
части вибратора
|
|
|
Уплотнение бетонной смеси, уход за бетоном
|
Визуально
|
В процессе работ
|
Мастер
|
Шаг перестановки вибратора не должен быть больше 1,5 радиуса
действия вибратора, глубина
погружения должна быть несколько больше толщины уложенного слоя бетона
|
|
|
|
|
|
|
Благоприятные
температурно-влажностные условия для твердения бетона должны обеспечиваться
предохранением его от воздействия ветра, прямых солнечных лучей и
систематическим увлажнением
|
|
|
Подвижность
бетонной смеси
|
Конус
СтройЦНИЛ-пресс (ПСУ-500)
|
До
бетонирования
|
Мастер,
строительная лаборатория
|
-
|
|
|
Состав
бетонной смеси при укладке автобетононасосом
|
Путем
опытного перекачивания
|
До бетонирования
|
Строительная
лаборатория
|
Опытное
перекачивание автобетононасосом бетонной смеси и испытание бетонных образцов,
изготовленных из отобранных после перекачивания проб бетонной смеси
|
|
Распалубливание
конструкций
|
Проверка
соблюдения сроков распалубливания, отсутствие повреждений бетона и опалубке
при распалубливании
|
Визуально
|
После
набора прочности бетоном
|
Производитель
работ, строительная лаборатория
|
-
|
Таблица 2
Фундамент
объемом 9,1 м3 (Ф-1)
|
Наименование процесса
|
Номер фасета
для пересчета показателей
|
Единица
измерения
|
Объем работ
|
Обоснование
(ЕНиР и др. нормы)
|
Норма времени
|
Расценка, р.-к.
|
Затраты труда
|
Заработная плата
|
Время пребывания
машины на объекте, маш.-ч
|
Заработная
плата машиниста с учетом пребывания машины на объекте, р.-к.
|
|
рабочих, чел.-ч
|
машиниста, чел.-ч, маш.-ч
|
рабочих
|
машиниста
|
рабочих, чел.-ч
|
машиниста, чел.-ч, маш.-ч
|
рабочих
|
машиниста
|
|
МОНТАЖ И ДЕМОНТАЖ ОПАЛУБКИ
|
|
Вспомогательные работы
|
|
Разгрузка элементов
опалубки с транспортных средств
|
01
|
100 т
|
0,016
|
ЕНиР,
1987 г. §
Е1-5 табл. 2 п.1 а,б
|
22
|
11
(11)
|
14-09
|
11-66
|
0,35
|
0,17
(0,17)
|
0-23
|
0-19
|
0,17
|
0-19
|
|
Сортировка конструкций
|
|
т
|
1,64
|
ЕНиР, 1987 г. § Е5-1-1,
п.3
|
10
|
-
|
7-00
|
-
|
16,4
|
-
|
11-48
|
-
|
-
|
|
|
Укрупнительная сборка
панелей опалубки
|
-
|
м2
|
20,5
|
ЕНиР, 1987 г. § Е4-1-40,
п.1
|
0,38
|
-
|
0-28,3
|
-
|
7,8
|
-
|
5-80
|
-
|
-
|
-
|
|
Итого
|
-
|
-
|
-
|
-
|
-
|
-
|
-
|
-
|
24,55
|
0,17
(0|17)
|
17-51
|
0-19
|
0,17
|
0-19
|
|
Монтаж опалубки
|
|
Подача укрупненных
панелей к месту монтажа
|
02,06
|
100 т
|
0,016
|
ЕНиР, 1987 г. § Е1-6,
табл. 2 п.17 а,б
|
23
|
11,5
(11,5)
|
14-72
|
12-19
|
0,37
|
0,18
(0,18)
|
0-24
|
0-20
|
0,18
|
0-20
|
|
Монтаж укрупненных
панелей
|
-
|
м2
|
20,5
|
ЕНиР, 1987 г. § Е4-1-37
табл. 2, п.1 К=0,9 (применительно)
|
0,35
|
0,17
(0,17)
|
0-26,2
|
0-18
|
7,2
|
3,5
(3,5)
|
5-37
|
3-69
|
3,5
|
3-69
|
|
Установка кронштейнов для
подмащивания
|
-
|
шт
|
1
|
ЕНиР 1987 г. § Е5-1-2,
п.4
|
0,27
|
0,14
(0,14)
|
0-20,1
|
0-14,8
|
0,27
|
0,14
(0,14)
|
0-20
|
0-15
|
0,14
|
0-15
|
|
Итого
|
-
|
-
|
|
-
|
-
|
-
|
-
|
-
|
7,84
|
3,82
(3,82)
|
5-81
|
4-04
|
3,82
|
4-04
|
|
Демонтаж опалубки
|
|
Демонтаж укрупненных
панелей опалубки
|
-
|
м2
|
20,5
|
ЕНиР, 1987 г. § Е4-1-37,
табл. 2, п.2 К=0,9 (применительно)
|
0,19
|
0,09
(0,09)
|
0-12,7
|
0-09
|
3,9
|
1,9
(1,9)
|
2-60
|
1-84
|
1,9
|
1-84
|
|
Демонтаж кронштейнов
|
-
|
шт
|
1
|
ЕНиР, 1987 г. § Е5-1-2,
п.4, К=0,8
|
0,22
|
0,11
(0,11)
|
0-16,1
|
0-11,8
|
0,22
|
0,11
(0,11)
|
0-16
|
0-12
|
0,11
|
0-12
|
|
Подача укрупненных
панелей на площадку складирования
|
02,06
|
100 т
|
0,016
|
ЕНиР, 1987 г. § Е1-6, п.
17а, б
|
23
|
11,5
(11,5)
|
14-72
|
12-19
|
0,37
|
0,18
(0,18)
|
0-24
|
0-20
|
0,18
|
0-20
|
|
Итого
|
-
|
-
|
-
|
-
|
-
|
-
|
-
|
-
|
4,49
|
2,19
(2,19)
|
3-00
|
2-16
|
2,19
|
2-16
|
|
УСТАНОВКА АРМАТУРЫ
|
|
Разгрузка арматурных
сеток
|
01
|
100 т
|
0,002
|
ЕНиР,
1987 г. §
Е1-5, табл. 2 п.п. 1 а, б
|
22
|
11
(11)
|
14-09
|
11-66
|
0,04
|
0,02
(0,02)
|
0-03
|
0-02
|
0,02
|
0-02
|
|
Сортировка арматурных
сеток вручную
|
-
|
т
|
0,196
|
ЕНиР, 1987 г. § Е5-1-1
п.3
|
10
|
-
|
7-00
|
-
|
1,98
|
-
|
1-40
|
-
|
-
|
-
|
|
Установка сеток массой до
20 кг вручную
|
04
|
1 сетка
|
6
|
ЕНиР, 1987 г. § Е4-1-44,
табл. 2, п.а
|
0,17
|
-
|
0-11,2
|
-
|
1,02
|
-
|
0-67
|
-
|
-
|
-
|
|
Укрупнительная сборка
арматурных каркасов на площадке укрупнительной сборки
|
-
|
1 элемент
т
|
12
0,084
|
ЕНиР, 1987 г. § Е5-1-3,
табл. 2 п.п 1 к, 2к
|
0,18
0,55
|
-
-
|
0-15,3
0-46,8
|
-
-
|
2,16
0,05
|
-
-
|
1-84
0-04
|
-
|
-
|
-
|
|
Погрузка арматурных
каркасов на автомашины
|
01
|
100 т
|
0,0008
|
ЕНиР, 1987 г. § Е1-5,
табл. 2 п. 1, а, б
|
22,0
|
11,0
(11,0)
|
14-09
|
11-06
|
0,02
|
0,01
(0,01)
|
0-01
|
0-01
|
0,01
|
0-01
|
|
Подача арматурных
каркасов к месту установки краном
|
02
|
100 т
|
0,0008
|
ЕНиР 1987 г. § Е1-6,
табл. 2 п. 17 а, б
|
23,0
|
11,5
(11,5)
|
14-72
|
12-19
|
0,02
|
0,01
(0,01)
|
0-01
|
0-01
|
0,01
|
0-01
|
|
Установка арматурных
каркасов
|
03
|
каркас
|
1
|
ЕНиР, 1987 г. § Е4-1-44
табл. 1, п. 2 а
|
0,79
|
0,20
(0,20)
|
0-53,5
|
0-21,2
|
0,79
|
0,20
(0,20)
|
0-53
|
0-21
|
0,20
|
0-21
|
|
Сварка арматуры
|
|
10 м шва
|
0,163
|
ЕНиР, 1987 г. § Е22-1-1
п. 2 в, К=1,3 (В4-5)
|
4,16
|
-
|
2-91
|
-
|
0,68
|
-
|
0-47
|
-
|
-
|
-
|
|
Итого
|
-
|
-
|
-
|
-
|
-
|
-
|
-
|
-
|
6,76
|
0,24
(0,24)
|
5-00
|
0-25
|
0,24
|
0-25
|
|
Бетонные работы
|
|
Подача бетонной смеси краном
|
|
Прием бетонной смеси из
автобетоносмесителя в бункеры
|
-
|
100 м3
|
0,091
|
Расчет 2
|
-
|
3,32
(3,32)
|
-
|
2-62
|
-
|
0,3
(0,3)
|
-
|
0-24
|
0,3
|
0-24
|
|
Подача бетонной смеси к
месту укладки в бункерах краном
|
02
|
м3
|
9,1
|
ЕНиР, 1987 г. § Е1-6,
табл. 2, п. 15, 16 (по экстраполяции)
|
0,19
|
0,095
(0,095)
|
0-12,3
|
0-10,1
|
1,73
|
0,86
(0,86)
|
1-12
|
0-92
|
0,86
|
0-92
|
|
Укладка бетонной смеси в
конструкцию объемом до 10 мЗ
|
05
|
м3
|
9,1
|
ЕНиР, 1987 г. § Е4-1-49
табл. 1, п.3
|
0,33
|
-
|
0-23,6
|
-
|
3,0
|
-
|
2-15
|
-
|
-
|
-
|
|
Итого
|
-
|
-
|
-
|
-
|
-
|
|
-
|
-
|
4,73
|
1,16
(1,16)
|
3-27
|
1-16
|
1,16
|
1-16
|
|
Подача бетонной смеси
автобетононасосом
|
|
Прием
бетонной смеси из автобетоносмесителя в бункер автобетононасоса
|
-
|
100
м3
|
0,091
|
Расчет 2
|
-
|
3,32
(3,32)
|
-
|
2-62
|
-
|
0,3
(0,3)
|
-
|
0-24
|
0,3
|
0-24
|
|
Подача
бетонной смеси к месту укладки автобетононасосом
|
-
|
100
м3
|
0,091
|
Расчет 1
|
6,4
|
6,4
(6,4)
|
4-10
|
5-06
|
0,58
|
0,58
(0,58)
|
0-37
|
0-46
|
0,58
|
0-46
|
|
Укладка
бетонной смеси
в конструкцию объемом, м3
до 10
|
05
|
м3
|
9,1
|
ЕНиР, 1987г. § Е4-1-49
табл. 1, п.п. 3, 4
|
0,33
|
-
|
0-23,6
|
-
|
3,0
|
-
|
2-15
|
-
|
-
|
-
|
|
Итого
|
-
|
-
|
-
|
-
|
-
|
-
|
-
|
-
|
3,58
|
0,88
(0,88)
|
2-52
|
0-70
|
0,88
|
0-70
|
|
Подача бетонной смеси бетоноукладчиком СБ-131
|
|
Прием
бетонной смеси из автобетоносмесителя в бункер бетоноукладчика
|
-
|
100
м3
|
0,091
|
Расчет 2
|
-
|
3,32
(3,32)
|
-
|
2-62
|
-
|
0,3
|
-
|
0-24
|
0,3
|
0-24
|
|
Подача
бетонной смеси к месту укладки бетоноукладчиком СБ-131
|
-
|
100
м3
|
0,091
|
Расчет 3
|
8,33
|
8,33
(8,33)
|
5-33
|
6-58
|
0,76
|
0,76
(0,76)
|
0-49
|
0-60
|
0,76
|
0-60
|
|
Укладка
бетонной смеси в конструкцию объемом ,м3
до
10
|
05
|
м3
|
9,1
|
ЕНиР, 1987 г. § Е4-1-49,
табл. 1, п. 3
|
0,33
|
-
|
0-23,6
|
-
|
3,0
|
-
|
2-15
|
-
|
-
|
-
|
|
Итого
|
1
|
-
|
-
|
-
|
-
|
-
|
-
|
-
|
3,76
|
1,06
(1,06)
|
2-64
|
0-84
|
1,06
|
0-84
|
|
Всего при подаче бетонной
смеси: краном
|
-
|
-
|
-
|
-
|
-
|
-
|
-
|
-
|
48,37
|
7,58
(7,58)
|
34-59
|
7-80
|
7,58
|
7-80
|
|
автобетононасосом
|
-
|
-
|
-
|
-
|
-
|
-
|
-
|
-
|
47,22
|
7,30
(7,30)
|
33-84
|
7-34
|
7,30
|
7-34
|
|
бетоноукладчиком
|
-
|
-
|
-
|
-
|
-
|
-
|
-
|
-
|
47,40
|
7,48
|
33-96
|
7-48
|
7,48
|
7-48
|
Таблица 3
Фундамент
объемом 14,7 м3 (Ф-2)
|
Наименование
процесса
|
Номер фасета для пересчета показателей
|
Единица измерения
|
Объем работ
|
Обоснование (ЕНиР и др. нормы)
|
Норма
времени
|
Расценка,
р.-к.
|
Затраты
труда
|
Заработная
плата
|
Время пребывания машины на объекте, маш.-ч
|
Заработная плата машиниста с учетом пребывания машины на объекте,
р.-к.
|
|
рабочих,
чел.-ч
|
машиниста,
чел.-ч, маш.-ч
|
рабочих
|
машиниста
|
рабочих,
чел.-ч
|
машиниста,
чел.-ч, маш.-ч
|
рабочих
|
машиниста
|
|
МОНТАЖ И ДЕМОНТАЖ ОПАЛУБКИ
|
|
Вспомогательные работы
|
|
Разгрузка
элементов опалубки с транспортных средств
|
01
|
100
т
|
0,019
|
ЕНиР
1987 г. § Е1-5, табл. 2 п. 1 а, б
|
22
|
11
(11)
|
14-09
|
11-66
|
0,42
|
0,21
(0-21)
|
0-27
|
0-22
|
0,21
|
0-22
|
|
Сортировка
конструкций
|
-
|
т
|
1,89
|
ЕНиР,
1987 г. § E5-1-1,
п. 3
|
10
|
-
|
7-00
|
-
|
18,9
|
-
|
13-23
|
-
|
-
|
-
|
|
Укрупнительная
сборка панелей опалубки
|
-
|
м2
|
19,1
|
ЕНиР,1987
г. § Е4-1-40, п. 1
|
0,38
|
-
|
0-28,2
|
-
|
7,3
|
-
|
5-40
|
-
|
-
|
-
|
|
Итого
|
-
|
-
|
-
|
-
|
-
|
-
|
-
|
-
|
26,62
|
0,21
(0,21)
|
18-90
|
0-22
|
0,21
|
0-22
|
|
Монтаж опалубки
|
|
Подача
укрупненных панелей к месту монтажа
|
02,
06
|
100
т
|
0,019
|
ЕНиР,
1987 г. § Е1-6, табл. 2 п.17 а, б
|
23
|
11,5
(11,5)
|
14-72
|
12-19
|
0,44
|
0,22
(0,22)
|
0-28
|
0-23
|
0,22
|
0-23
|
|
Монтаж
укрупненных панелей
|
-
|
м2
|
19,1
|
ЕНиР,
1987 г. § Е4-1-37 табл. 2, п.1 К=0,9 (применительно)
|
0,35
|
0,17
(0,17)
|
0-26,2
|
0-18
|
6,7
|
3,3
(3,3)
|
5-00
|
3-44
|
3,3
|
3-44
|
|
Установка
кронштейнов для подмащивания
|
-
|
шт
|
1
|
ЕНиР,
1987 г. § Е5-1-2, п. 4
|
0,27
|
0,14
(0,14)
|
0-20,1
|
0-14,8
|
0,27
|
0,14
(0,14)
|
0-20
|
0-15
|
0,14
|
0-15
|
|
Итого
|
-
|
-
|
-
|
-
|
-
|
-
|
-
|
-
|
7,41
|
3,66
(3,66)
|
5-48
|
3-82
|
3,66
|
3-82
|
|
Демонтаж опалубки
|
|
Демонтаж
укрупненных панелей опалубки
|
-
|
м2
|
19,1
|
ЕНиР,
1987 г. § Е4-1-37, табл. 2 п.2 К=0,9 (применительно)
|
0,19
|
0,09
(0,09)
|
0-12,7
|
0-09
|
3,6
|
1,8
(1,8)
|
2-42
|
1-72
|
1,8
|
1-72
|
|
Демонтаж
кронштейнов
|
-
|
шт.
|
1I
|
ЕНиР,
1987 г. § Е5-1-2, п.4 К=0,8
|
0,22
|
0,11
(0,11)
|
0-16,1
|
0-11,8
|
0,22
|
0,11
(0,11)
|
0-16
|
0-12
|
0,11
|
0-12
|
|
Подача
укрупненных панелей на площадку складирования
|
02;
06
|
100
т
|
0,019
|
ЕНиР,
1987 г. § Е1-6, п. 17 а, б
|
23
|
11,5
(11,5)
|
14-72
|
12-19
|
0,44
|
0,22
(0,22)
|
0-28
|
0-23
|
0,22
|
0-23
|
|
Итого
|
-
|
-
|
-
|
-
|
-
|
-
|
-
|
-
|
4,26
|
2,13
(2,13)
|
2-86
|
2-07
|
2,13
|
2-07
|
|
УСТАНОВКА АРМАТУРЫ
|
|
Разгрузка
арматурных сеток
|
01
|
100
т
|
0,0065
|
ЕНиР,
1987 г., § Е1-5, табл. 2, п.п. 1 а, б
|
22
|
11,0
(11,0)
|
14-09
|
11-66
|
0,14
|
0,07
(0,07)
|
0-09
|
0-08
|
0,07
|
0-08
|
|
Сортировка
арматурных сеток:
|
|
|
|
|
|
|
|
|
|
|
|
|
|
|
|
вручную;
|
-
|
т
|
0,202
|
ЕНиР,
1987 г. § Е5-1-1 п. 3
|
10
|
-
|
7-00
|
-
|
2,02
|
-
|
1-41
|
-
|
-
|
-
|
|
краном
|
-
|
т
|
0,452
|
То
же, п.п. 1, 2
|
0,65
|
0,32
(0,32)
|
0-48,4
|
0-33,9
|
0,29
|
0,14
(0,14)
|
0-22
|
0-15
|
0,14
|
0-15
|
|
Подача
сеток краном к месту установки
|
02
|
100
т
|
0,0045
|
ЕНиР,
1987 г. § Е1-6, табл. 2, п. 17 а, б
|
23
|
11,5
(11.5)
|
14-72
|
12-19
|
0,10
|
0,05
(0,05)
|
0-07
|
0-05
|
0,05
|
0-05
|
|
Установка
арматурных сеток башмака:
|
|
|
|
|
|
|
|
|
|
|
|
|
|
|
|
краном;
|
07
|
1
сетка
|
3
|
ЕНиР,
1987 г. § Е4-1-44 табл. 1, п. 1 а
|
0,42
|
0,105
(0,105)
|
0-28,5
|
0-11,1
|
1,26
|
0,32
(0,32)
|
0-86
|
0-33
|
0,32
|
0-33
|
|
вручную
|
05
|
1
сетка
|
2
|
То
же, табл. 2, п. 6
|
0,24
|
-
|
0-15,8
|
-
|
0,48
|
-
|
0-32
|
-
|
-
|
-
|
|
Укрупнительная
сборка арматурных каркасов на площадке укрупнительной сборки
|
-
|
1
элемент
т
|
10
0,11
|
ЕНиР,
1987 г. § Е5-1-3, табл. 2, .п. 1 к, 2 к
|
0,18
0,55
|
-
-
|
0-15,3
0-46,8
|
-
-
|
1,8
0,06
|
-
-
|
1-53
0-05
|
-
-
|
-
-
|
-
-
|
|
Погрузка
арматурных каркасов на автомашины
|
01
|
100
т
|
0,0011
|
ЕНиР,
1987 г. § Е1-5, табл. 2 п. 1 а, б
|
22,0
|
11,0
(11,0)
|
14-09
|
11-06
|
0,02
|
0,01
(0,01)
|
0-02
|
0-01
|
0,01
|
0-01
|
|
Подача
арматурных каркасов к месту установки краном
|
02;
0б
|
100
т
|
0,0011
|
ЕНиР,
1987 г. § Е1-6, табл. 2 п.17 а, б
|
23,0
|
11,5
(11,5)
|
14-72
|
12-19
|
0,03
|
0,013
(0,013)
|
0-02
|
0-01
|
0,013
|
0-02
|
|
Установка
арматурных каркасов краном
|
04
|
каркас
|
1
|
ЕНиР,
1987 г. § Е4-1-44 табл. 1, п. 2а
|
0,79
|
0,20
(0,20)
|
0-53,5
|
0-21,2
|
0,79
|
0,20
(0,20)
|
0-54
|
0-21
|
0,20
|
0-21
|
|
Сварка
арматуры
|
-
|
10
м шва
|
0,151
|
ЕНиР,
1987 г. § E22-1-1
п. 2 в K=1,3
(B4-5)
|
4,16
|
-
|
2-91
|
-
|
0,63
|
-
|
0-44
|
-
|
-
|
-
|
|
Итого
|
-
|
-
|
-
|
-
|
-
|
-
|
-
|
-
|
7,62
|
0,80
(0,80)
|
5-57
|
0-84
|
0,80
|
0-84
|
|
БЕТОННЫЕ РАБОТЫ
|
|
Подача бетонной смеси краном
|
|
Прием
бетонной смеси из автобетоносмесителя в бункеры
|
-
|
100
м3
|
0,147
|
Расчет
2
|
-
|
3,32
(3,32)
|
-
|
2-62
|
-
|
0,49
(0,49)
|
-
|
0-39
|
0,49
|
0-39
|
|
Подача
бетонной смеси к месту укладки в бункерах краном
|
02
|
м3
|
14,7
|
ЕНиР,
1987 г. § Е1-6, табл. 2 п.п. 15, 16 (по экстраполяции)
|
0,19
|
0,095
(0,095)
|
0-12,3
|
0-10,1
|
2,79
|
1,40
(1,40)
|
1-81
|
1-48
|
1,40
|
1-48
|
|
Укладка
бетонной смеси в конструкцию объемом до 25 м3
|
05
|
м3
|
14,7
|
ЕНиР,
1987 г. § Е4-1-49, табл. 1, п. 4
|
0,26
|
-
|
0-18,6
|
-
|
3,82
|
-
|
2-73
|
-
|
-
|
-
|
|
Итого
|
-
|
-
|
-
|
-
|
-
|
-
|
-
|
-
|
6,61
|
1,89
(1,89)
|
4-54
|
1-87
|
1,89
|
1-87
|
|
Подача бетонной смеси автобетононасосом
|
|
Прием
бетонной смеси из автобетоносмесителя в бункер автобетононасоса
|
-
|
100
м3
|
0,147
|
Расчет
2
|
-
|
3,32
(3,32)
|
-
|
2-62
|
|
0,49
(0,49)
|
-
|
0-39
|
0,49
|
0-39
|
|
Подача
бетонной смеси к месту укладки автобетононасосом
|
-
|
100
м3
|
0,147
|
Расчет
1
|
6,4
|
6,4
(6,4)
|
4-10
|
5-06
|
0,94
|
0,94
(0,94)
|
0-60
|
0-74
|
0,94
|
0-74
|
|
Укладка
бетонной смеси в конструкцию объемом, до 25м3
|
05
|
м3
|
14,7
|
ЕНиР,
1987г. § Е4-1-49, табл. 1, п.п. 3, 4
|
0,26
|
-
|
0-18,6
|
-
|
3,82
|
-
|
2-73
|
-
|
-
|
-
|
|
Итого
|
-
|
-
|
-
|
-
|
-
|
-
|
-
|
-
|
4,76
|
1,43
(1,43)
|
3-33
|
1-13
|
1,43
|
1-13
|
|
Подача бетонной смеси бетоноукладчиком СБ-131
|
|
Прием
бетонной смеси из автобетоносмесителя в бункер бетоноукладчика
|
-
|
100
м3
|
0,147
|
Расчет
2
|
-
|
3,32
(3,32)
|
-
|
2-62
|
-
|
0,49
(0,49)
|
-
|
0-39
|
0,49
|
0-39
|
|
Подача
бетонной смеси к месту укладки бетоноукладчиком CБ-131
|
-
|
100
м3
|
0,147
|
Расчет
3
|
8,33
|
8,33
(8,33)
|
5-33
|
6-58
|
1,22
|
1,22
(1,22)
|
0-78
|
0-97
|
1,22
|
0-97
|
|
Укладка
бетонной смеси в конструкцию объемом, м3
|
|
|
|
|
|
|
|
|
|
|
|
|
|
|
|
до
25
|
05
|
м3
|
14,7
|
ЕНиР,
1987 г. § Е4-1-49 п. 4
|
0,26
|
-
|
0-18,6
|
-
|
3,82
|
-
|
2-73
|
-
|
-
|
-
|
|
Итого
|
-
|
-
|
-
|
-
|
-
|
-
|
-
|
-
|
5,04
|
1,71
(1,71)
|
3-51
|
1-36
|
1,71
|
1-36
|
|
Всего
при подаче бетонной смеси:
|
|
|
|
|
|
|
|
|
|
|
|
|
|
|
|
краном
|
-
|
-
|
-
|
-
|
-
|
-
|
-
|
-
|
52,52
|
8,69
(8,69)
|
37-35
|
8-82
|
8,69
|
8-82
|
|
автобетононасосом
|
-
|
-
|
-
|
-
|
-
|
-
|
-
|
-
|
50,67
|
8,23
(8,23)
|
36-14
|
8-08
|
8,23
|
8-08
|
|
бетоноукладчиком
|
-
|
-
|
-
|
-
|
-
|
-
|
-
|
-
|
50,95
|
8,51
(8,51)
|
36-32
|
8-31
|
8,51
|
8-31
|
Таблица 4

Продолжение таблицы 4

Примечание. График производства работ на возведение фундамента
Ф-1 аналогичен.
Потребность в машинах, оборудовании, инструменте,
инвентаре и приспособлениях приведена в табл. 5.
Таблица 5
|
Наименование
|
Марка,
техническая характеристика, ГОСТ, № чертежа
|
Количество,
шт.
|
Назначение
|
|
Машины и оборудование
|
|
|
|
Кран
автомобильный
|
СМК-10,
Длина стрелы - 16 м; Грузоподъемность - 10 т
|
1
|
Подача
арматуры, опалубки, бетонной смеси
|
|
Автобетононасос
|
СБ-126А,
Дальность подачи распределительной стрелой 18 м; производительность
техническая-60 м3/ч
|
1
|
Подача
бетонной смеси
|
|
Бетоноукладчик
|
СБ-131,
Производительность - 20 м3/ч
|
1
|
То
же
|
|
Автобетоносмеситель
|
СБ-159,
СБ-921А
|
1
|
Транспортирование
бетонной смеси
|
|
Трансформатор
сварочный
|
ТД-500
|
1
|
Сварочные
работы
|
|
Компрессор
|
СБ-45Б
|
1
|
Подача
сжатого воздуха
|
|
Электрифицированные инструменты
|
|
|
|
Дрель
универсальная
|
ИЭ-1035
|
1
|
Сверление
отверстий
|
|
Краскораспылитель
|
СО-71Б
|
1
|
Смазка
щитов
|
|
Электрододержатель
|
ГОСТ
14651-78*Е
|
1
|
Сварочные
работы
|
|
Вибратор
глубинный
|
ИВ-67
|
2
|
Уплотнение
бетонной смеси
|
|
Ручной строительно-монтажный инструмент
|
|
|
|
Лом
монтажный
|
ЛМ-24
ГОСТ
1405-83
|
1
|
Рихтовка
элементов
|
|
Зубило
слесарное
|
ГОСТ 7211-86Е
|
1
|
Очистка
мест сварки
|
|
Молоток
слесарный
|
ГОСТ
2310-77*Е
|
1
|
То
же
|
|
Молоток
стальной строительный
|
МКУ-2,
ГОСТ
11042-83
|
1
|
Простукивание
бетона
|
|
Кельма
КБ
|
ГОСТ
9533-81
|
1
|
Разравнивание
раствора
|
|
Кувалда
кузнечная тупоносая
|
ГОСТ
11402-75
|
1
|
Подгибание
арматурных стержней
|
|
Лопата
растворная
|
ГОСТ
3620-76
|
2
|
Подача
раствора
|
|
Скребок
металлический
|
Р.Ч.
568-75 ЦНИИОМТП
|
2
|
Очистка
опалубки
|
|
Щетка
металлическая
|
ТУ
494-01-04-76
|
1
|
Очистка
арматуры
|
|
Валик
малярный
|
ГОСТ 10831-80
|
1
|
Смазка
щитов опалубки
|
|
Ключи
гаечные
|
ГОСТ
2339-80
|
1
комплект
|
Опалубочные
работы
|
|
Набор
инструмента для ручной дуговой сварки
|
ТУ
36 1162-81
|
1
комплект
|
Сварочные
работы
|
|
Ножницы
для резки арматуры
|
ГОСТ
7210-75*Е
|
1
|
Арматурные
работы
|
|
Плоскогубцы
комбинированные
|
ГОСТ
5547-86*Е
|
1
|
То
же
|
|
Кусачки
торцовые
|
ГОСТ
7282-75*Е
|
1
|
То
же
|
|
Напильник
плоский тупоносый
|
ГОСТ 1465-80*
|
1
|
То
же
|
|
Измерительные и контрольно-измерительные
инструменты
|
|
|
|
Рулетка
измерительная
|
ГОСТ 7502-80*
|
1
|
Контрольно-измерительные
работы
|
|
Метр
складной металлический
|
ТУ
12-156-76
|
1
|
То
же
|
|
Отвес
стальной строительный
|
ОТ-600
ГОСТ
7948-80
|
1
|
То
же
|
|
Уровень
строительный
|
УС2-300
ГОСТ
9416-83
|
1
|
То
же
|
|
Приспособления
|
|
|
|
Строп
шестиветвевой универсальный
|
ГОСТ
25573-82*
|
1
|
Строповка
конструкций
|
|
Бункер
поворотный
|
БП-1,0,
вместимость-1,0 м3, ГОСТ
21807-76*
|
2
|
Подача
бетонной смеси
|
|
Бак
красконагнетательный
|
CО-126A
|
1
|
Смазка
щитов опалубки
|
|
Устройство
для вязки арматурных стержней
|
Трест
Оргтехстрой Главмоспромстроя
|
1
|
Сборка
укрупнительных каркасов
|
|
Фиксатор
для временного крепления арматурных сеток
|
Р.Ч.
Бюро Внедрения ЦНШОМТП
|
1
|
Арматурные
работы
|
|
Фиксатор
для временного крепления арматурных каркасов
|
Трест
Мосоргпромстрой
|
1
|
То
же
|
|
Кондуктор
для сборки арматурных каркасов
|
Гипрооргсельстрой
|
1
|
То
же
|
|
Закрутчик
|
ТУ
67-399-82
|
1
|
То
же
|
|
Средства индивидуальной защиты
|
|
|
|
Очки
защитные
|
ГОСТ
12.4.013-85E
|
2
|
Сварочные
работы
|
|
Щиток
защитный для электросварщика
|
ГОСТ
12.4.035-78*
|
1
|
То
же
|
|
Пояс
предохранительный
|
ГОСТ
12.4.089-80
|
На
все звено
|
Техника
безопасности
|
|
Каска
строительная
|
ГОСТ
12.4.087-84
|
То
же
|
То
же
|
|
Перчатки
резиновые
|
ГОСТ
20010-74*
|
2
|
Бетонные
работы
|
|
Сапоги
резиновые
|
ГОСТ
5375-79*
|
2
|
То
же
|
Потребность в материалах и
полуфабрикатах приведена в табл. 6.
Таблица 6
|
Наименование материала, полуфабриката, конструкции (марка, ГОСТ)
|
Вариант (фасет-код)
|
Исходные данные
|
Потребность в материале
|
|
единица измерения
|
объем
работ в нормативных единицах
|
принятая норма расхода материала
|
|
Ф-1
|
Ф-2
|
Ф-1
|
Ф-2
|
|
Опалубка
мелкощитовая металлическая
|
-
|
м2
|
20,5
|
19,1
|
-
|
20,5
|
19,1
|
|
Арматурные
сетки
|
-
|
т
|
0,198
|
0,65
|
-
|
0,198
|
0,654
|
|
Бетонная
смесь
|
-
|
м3
|
9,1
|
14,7
|
1,01
|
9,2
|
14,8
|
|
Электроды
Э-42 ГОСТ
9467-75*
|
-
|
кг
|
-
|
-
|
-
|
1,0
|
3,3
|
|
Эмульсия
для смазки щитов опалубки
|
-
|
1
м2 формующей опалубки
|
20,5
|
19,1
|
0,20-х)
0,35
0,45-
0,55
|
4,1-
7,2
9,2-
11,3
|
3,8-
6,7
8,6-
10,5
|
х) В числителе - расход при нанесении пневмораспылителем,
в знаменателе - при нанесении вручную кистью или валиком.
7. ТЕХНИКА
БЕЗОПАСНОСТИ
Все работы следует вести в строгом соответствии со СНиП III-4-80 «Техника безопасности
в строительстве».
Особое внимание необходимо обращать на следующее:
способы строповки элементов конструкций должны обеспечивать
их подачу к месту установки в положении, близком проектному;
элементы монтируемых конструкций во время перемещения должны
удерживаться от раскачивания и вращения гибкими оттяжками;
не допускается нахождение людей под монтируемыми элементами
конструкций до установки их в проектное положение и закрепления;
при перемещении конструкций расстояние между ними и
выступающими частями других конструкций должно быть по горизонтали не менее 1
м, по вертикали -
0,5 м;
монтаж и демонтаж опалубки может быть начат с разрешения
технического руководителя строительства и должен производиться под
непосредственным наблюдением специально назначенного лица технического
персонала;
бункеры для бетонной смеси должны удовлетворять ГОСТ
21807-76*;
перемещение загруженного или порожнего бункера разрешается
только при закрытом затворе;
не допускается опирание вибраторов на арматуру;
к управлению автобетононасосами и бетоноукладчиками
допускаются только лица, имеющие удостоверение на право работы на данном типе
машины.
|
Наименование
|
Подача
бетонной смеси краном в бункерах
|
Подача
бетонной смеси автобетононасосом СБ-126А
|
Подача
бетонной смеси бетоноукладчиком СБ-131
|
|
Ф-1
|
Ф-2
|
Ф-1
|
Ф-2
|
Ф-1
|
Ф-2
|
|
Нормативные
затраты труда рабочих, чел.-день
|
6,82
|
7,46
|
6,65
|
7,18
|
6,69
|
7,25
|
|
Нормативные
затраты машинного времени, маш.-смен
|
0,92
|
1,06
|
0,89
|
1,00
|
0,91
|
1,04
|
|
Заработная
плата рабочих, р.-к.
|
34-59
|
37-35
|
33-84
|
36-14
|
33-96
|
36-32
|
|
Заработная
плата механизаторов, р.-к.
|
7-80
|
8-82
|
7-34
|
8-08
|
7-48
|
8-31
|
|
Продолжительность
выполнения работ, смен
|
0,99
|
1,60
|
0,92
|
1,49
|
0,94
|
1,52
|
|
Выработка
на одного рабочего в смену, м3/чел.-смен
|
1,33
|
1,97
|
1,37
|
2,05
|
1,36
|
2,03
|
|
Условные
затраты на механизацию для базового варианта, р.-к.
|
48-46
|
57-81
|
102-18
|
118-62
|
23-29
|
26-57
|
|
Сумма
изменяемых затрат, р.-к.
|
83-05
|
95-16
|
136-02
|
154-96
|
57-25
|
62-89
|
ФАСЕТ 01
Грузоподъемность крана при погрузке и
разгрузке материалов
|
Наименование
фактора
|
Обоснование
|
Код
|
Значение
фактора
|
|
Кран
автомобильный грузоподъемностью до 6,3 т
|
ЕНиР,
1987 г. § Е1-5, табл. 2
|
1
|
По
калькуляции
|
|
Кран
автомобильный грузоподъемностью 10 т и более
|
То
же
|
2
|
Расц.
машиниста умножать на 1,333
|
|
Кран
автомобильный грузоподъемностью от 6,3 до 10 т
|
То
же
|
3
|
Расц.
машиниста умножать на 1,147
|
ФАСЕТ 02
Грузоподъемность крана при подаче
материалов
|
Наименование
фактора
|
Обоснование
|
Код
|
Значение
Фактора
|
|
Кран
автомобильный грузоподъемностью от 10 до 20 т
|
ЕНиР, 1987 г. § Е1-6
|
1
|
По калькуляции
|
|
Кран
автомобильный грузоподъемностью от 20 до 25 т
|
ЕНиР, 1987 г. § Е1-6
|
2
|
Расц.
машиниста умножать на 1,07
|
|
Кран автомобильный
грузоподъемностью до 6,3 т и кран на пневмоколесном и гусеничном ходу
грузоподъемностью до 5,0 т
|
То
же
|
3
|
Расц.
машиниста умножать на 0,75
|
|
Кран
автомобильный грузоподъемностью от 6,3 до 10 т и кран на пневмоколесном и
гусеничном ходу грузоподъемностью до 10 т
|
То
же
|
4
|
Расц.
машиниста умножать на 0,86
|
ФАСЕТ 03
Установка арматурных каркасов краном
|
Наименование
фактора
|
Обоснование
|
Код
|
Значение
фактора
|
|
Установка
арматурных каркасов массой, т, до
|
ЕНиР,
1987 г.
§ Е4-1-44 табл. 1
|
|
|
|
0,3
|
п.2
а
|
1
|
По
калькуляции
|
|
0,6
|
п.2
б
|
2
|
Н.
вр. умножать на 1,646;
Расц.
умножать на 1,647
|
|
1,0
|
п.2
в
|
3
|
Н.
вр. умножать на 3,418;
Расц.
умножать на 3,421
|
|
2,0
|
п.2
г
|
4
|
Н.
вр. и расц. умножать на 4,430
|
|
3,0
|
п.2
д
|
5
|
Н.
вр. умножать на 5,190
|
|
Расц.
умножать на 5,196
|
ФАСЕТ 04
Установка арматурных сеток вручную
|
Наименование
фактора
|
Обоснование
|
Код
|
Значение
фактора
|
|
Установка
арматурных сеток вручную при массе сеток, т, до:
|
ЕНиР, 1987
г. § Е4-1-44, табл. 2
|
|
|
|
20
|
п.
а
|
1
|
По
калькуляции
|
|
50
|
п.
б
|
2
|
Н.
вр. умножать на 1,412:
Расц.
умножать на 1,411
|
|
100
|
п.
в
|
3
|
Н.
вр. умножать на 2,118;
Расц.
умножать на 2,125
|
ФАСЕТ 05
Укладка бетонной смеси
|
Наименование
фактора
|
Обоснование
|
Код
|
Значение
фактора
|
|
Укладка
бетонной смеси в конструкцию объемом, м3, до:
|
ЕНиР,
1987 г.
§ Е4-1-49, табл. 1
|
|
|
|
10
|
п.
3
|
1
|
По
калькуляции
|
|
30
|
п.
5
|
2
|
Н.
вр. и расц.умножать на 0,778
|
|
свыше
30
|
п.
6
|
3
|
Н.
вр.умножать на 0,697
Расц.
умножать на 0,695
|
|
25
|
п.
4
|
4
|
По
калькуляции
|
ФАСЕТ 06
Подача материалов автомобильным краном
|
Наименование
фактора
|
Обоснование
|
Код
|
Значение
фактора
|
|
|
Подача
материалов стреловыми самоходными кранами при массе поднимаемого груза, т, до:
|
ЕНиР,
1987 г.
§ Е1-6, табл. 2
|
|
|
|
|
0,5
|
п.
17 а, б
|
1
|
По
калькуляции
|
|
|
1,0
|
п.
18 а, б
|
2
|
Н.
вр. и расц. умножать на 0,739
|
|
|
1,5
|
п.
19 а, б
|
3
|
Н.
вр. и расц. машиниста умножать на 0,469;
|
|
|
2,0
|
п.
20 а, б
|
4
|
Н.
вр. и расц. такелажника умножать на 0,478
|
|
|
Н.
вр. и расц. умножать на 0,278
|
|
|
2,5
|
ЕНиР,
1987 г. § Е1-б, табл. 2 п. 21а, б
|
5
|
Н.
вр. и расц. умножать на 0,226
|
|
|
3,0
|
п.
22 а, б
|
6
|
Н.
вр. и расц. умножать на 0,191
|
|
|
3,5
|
п.
23 а, б
|
7
|
Н.
вр. и расц. умножать на 0,165
|
|
|
4,0
|
п.
24 а, б
|
8
|
Н.
вр. и расц. умножать на 0,139
|
|
ФАСЕТ 07
Установка арматурных сеток краном
|
Наименование
фактора
|
Обоснование
|
Код
|
Значение
фактора
|
|
Установка арматурных сеток
краном при массе сетки, т, до
|
ЕНиР,
1987 г. § E4-I-44, табл. 1
|
|
|
|
0,6
|
п.
1 б
|
1
|
По
калькуляции
|
|
0,3
|
п.
1 а
|
1
|
Н.
вр. и расц. умножать на 0,519
|
|
1,0
|
п.
1 в
|
3
|
Н.
вр. и расц. умножать на 1,728
|
|
2,0
|
п.
1 r
|
4
|
Н.
вр. умножать на 2,592
Расц.
умножать на 2,586
|
|
3,0
|
п.
1 д
|
5
|
Н.
вр. умножать на 2,963
Расц.
умножать на 2,969
|
РАСЧЕТ 1
нормы времени и расценки на подачу бетонной смеси в конструкцию
автобетононасосом СБ-126А
Эксплуатационная производительность автобетононасоса
определяется по формуле:
Пэ
= Пт×К1××K2,
где Пт
- техническая производительность автобетононасоса;
К1 - коэффициент перехода от технической производительности к
эксплуатационной К = 0,4;
К2 - коэффициент снижения
производительности автобетононасоса, учитывающий непостоянный режим подачи, К2 = 0,65
Пэ
= 60×0,4×0,65 = 15,6 м3/ч
Обслуживает звено из двух человек:
машинист бетононасосной установки 4 разр. - 1 чел.,
бетонщик 2 разр. - 1 чел.
Норма времени на 100
м3 бетонной смеси для рабочих чел.-ч ; для
машиниста маш.-ч.
Расц. составит:
для рабочих 0,64×6,4 = 4-10 руб.
для машиниста 0,79××6,4 = 5-06 руб.
РАСЧЕТ 2
нормы времени и расценки на разгрузку автобетоносмесителя СБ-159 в емкости
Время разгрузки автобетоносмесителя по технической
характеристике автобетоносмесителя составляет 8 мин. (0,133 ч)
Полезная вместимость барабана - 4
м3.
Часовая тарифная ставка шофера 0,79 руб.
Н. вр. на разгрузку 100
м3 бетонной смеси составит
маш.-ч.
Расц. 0-79×3,32 = 2-62 руб.
РАСЧЕТ 3
нормы времени и расценки на подачу
бетонной смеси в конструкцию бетоноукладчиком СБ-131
Производительность бетоноукладчика, м3/ч - 30
Эксплуатационная производительность равна 30×0,4 = 12
м3/ч, где 0,4 - коэффициент перехода от технической
производительности к эксплуатационной.
Бетоноукладчик обслуживает звено из двух человек.
Машинист 4 paзp. - 1; бетонщик 2 разр. - 1.
Н. вр. на укладку 100
м3 бетонной смеси:
для рабочих Н. вр. = чел.-ч;
для машиниста Н. вр. маш -ч;
Расц.: для рабочих 0-64×8,33 = 5-33 руб.;
для машиниста 0-79×8,33 = 6-58 руб.
|
|