Крупнейшая бесплатная информационно-справочная система онлайн доступа к полному собранию технических нормативно-правовых актов РФ. Огромная база технических нормативов (более 150 тысяч документов) и полное собрание национальных стандартов, аутентичное официальной базе Госстандарта. GOSTRF.com - это более 1 Терабайта бесплатной технической информации для всех пользователей интернета. Все электронные копии представленных здесь документов могут распространяться без каких-либо ограничений. Поощряется распространение информации с этого сайта на любых других ресурсах. Каждый человек имеет право на неограниченный доступ к этим документам! Каждый человек имеет право на знание требований, изложенных в данных нормативно-правовых актах!

  


 

Система нормативных документов в строительстве

СВОД ПРАВИЛ ПО ПРОЕКТИРОВАНИЮ И СТРОИТЕЛЬСТВУ

СТАЛЕФИБРОБЕТОННЫЕ КОНСТРУКЦИИ

СП 52-104-2006

Москва 2007

ПРЕДИСЛОВИЕ

1. РАЗРАБОТАН Научно-исследовательским, проектно-конструкторским и технологическим институтом бетона и железобетона (НИИЖБ) - филиалом ФГУП «НИЦ «Строительство» Росстроя

2. РЕКОМЕНДОВАН к утверждению и применению конструкторской секцией НТС НИИЖБ 15 августа 2006 г.

3. УТВЕРЖДЕН И ВВЕДЕН В ДЕЙСТВИЕ приказом и.о. генерального директора ФГУП «НИЦ «Строительство» от 3 октября 2006 г. № 143

4. ВВЕДЕН ВПЕРВЫЕ

Содержание

1 ОБЛАСТЬ ПРИМЕНЕНИЯ

2 НОРМАТИВНЫЕ ССЫЛКИ

3 ТЕРМИНЫ И ОПРЕДЕЛЕНИЯ

4 ОБЩИЕ УКАЗАНИЯ

4.1 ОСНОВНЫЕ ПОЛОЖЕНИЯ

4.2 ОСНОВНЫЕ РАСЧЕТНЫЕ ТРЕБОВАНИЯ

5 МАТЕРИАЛЫ ДЛЯ СТАЛЕФИБРОБЕТОННЫХ КОНСТРУКЦИЙ

5.1 БЕТОН (МАТРИЦА)

5.2 АРМАТУРА

6 РАСЧЕТ ЭЛЕМЕНТОВ СТАЛЕФИБРОБЕТОННЫХ КОНСТРУКЦИЙ ПО ПРЕДЕЛЬНЫМ СОСТОЯНИЯМ ПЕРВОЙ ГРУППЫ

6.1 ОБЩИЕ ПОЛОЖЕНИЯ

6.2 РАСЧЕТ ПО ПРОЧНОСТИ СТАЛЕФИБРОБЕТОННЫХ ЭЛЕМЕНТОВ НА ДЕЙСТВИЕ ИЗГИБАЮЩИХ МОМЕНТОВ И ПРОДОЛЬНЫХ СИЛ

6.3 РАСЧЕТ ПО ПРОЧНОСТИ НОРМАЛЬНЫХ СЕЧЕНИЙ ПРЕДВАРИТЕЛЬНО НАПРЯЖЕННЫХ СТАЛЕФИБРОБЕТОННЫХ ЭЛЕМЕНТОВ В СТАДИИ ПРЕДВАРИТЕЛЬНОГО ОБЖАТИЯ

6.4 РАСЧЕТ ПО ПРОЧНОСТИ СТАЛЕФИБРОБЕТОННЫХ ЭЛЕМЕНТОВ ПРИ ДЕЙСТВИИ ПОПЕРЕЧНЫХ СИЛ

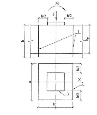
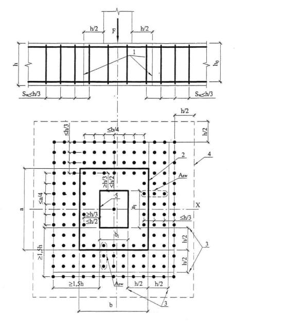
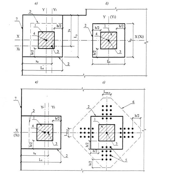
6.5 РАСЧЕТ СТАЛЕФИБРОБЕТОННЫХ ЭЛЕМЕНТОВ НА МЕСТНОЕ СЖАТИЕ

6.6 РАСЧЕТ СТАЛЕФИБРОБЕТОННЫХ ЭЛЕМЕНТОВ НА ПРОДАВЛИВАНИЕ

7 РАСЧЕТ ЭЛЕМЕНТОВ СТАЛЕФИБРОБЕТОННЫХ КОНСТРУКЦИЙ ПО ПРЕДЕЛЬНЫМ СОСТОЯНИЯМ ВТОРОЙ ГРУППЫ

7.1 ОБЩИЕ ПОЛОЖЕНИЯ

7.2 РАСЧЕТ СТАЛЕФИБРОБЕТОННЫХ ЭЛЕМЕНТОВ ПО РАСКРЫТИЮ ТРЕЩИН

8 КОНСТРУКТИВНЫЕ ТРЕБОВАНИЯ

8.1 ОБЩИЕ ПОЛОЖЕНИЯ

8.2 ГЕОМЕТРИЧЕСКИЕ РАЗМЕРЫ КОНСТРУКЦИЙ

8.3 АРМИРОВАНИЕ

ПРИЛОЖЕНИЕ А (справочное) ОСНОВНЫЕ БУКВЕННЫЕ ОБОЗНАЧЕНИЯ

ПРИЛОЖЕНИЕ Б ПЕРЕЧЕНЬ НОРМАТИВНОЙ И ТЕХНИЧЕСКОЙ ДОКУМЕНТАЦИИ

ПРИЛОЖЕНИЕ В ТЕРМИНОЛОГИЯ

ВВЕДЕНИЕ

Настоящий Свод правил разработан в развитие СНиП 52-01-2003 «Бетонные и железобетонные конструкции. Основные положения».

Свод правил содержит рекомендации по проектированию стале-фибробетонных конструкций промышленных и гражданских зданий и сооружений из тяжелого или мелкозернистого бетона с предварительным напряжением и без предварительного напряжения стержневой арматуры, которые обеспечивают выполнение требований СНиП 52-01-2003.

Решение о применении Свода правил при проектировании сталефибробетонных конструкций конкретных зданий и сооружений относится к компетенции заказчика объекта или проектной организации. В случае применения настоящего Свода правил должны быть выполнены все установленные в нем требования.

Настоящий Свод правил следует применять совместно с СП 52-101-2003 «Бетонные и железобетонные конструкции без предварительного напряжения арматуры» и СП 52-102-2004 «Предварительно напряженные железобетонные конструкции».

Единицы физических величин, приведенные в Своде правил, выражены: силы - в ньютонах (Н) или в килоньютонах (кН); линейные размеры - в мм (для сечений) или в м (для элементов или их участков); напряжения, сопротивления, модули упругости - в мегапаскалях (МПа); распределенные нагрузки и усилия - в кН/м или Н/мм.

Свод правил разработали кандидаты технических наук И.В. Волков, Э.М. Газин, мл. науч. сотр. В.В. Бабекин (НИИЖБ - филиал ФГУП «НИЦ «Строительство» Госстроя России).

СВОД ПРАВИЛ ПО ПРОЕКТИРОВАНИЮ И СТРОИТЕЛЬСТВУ

СТАЛЕФИБРОБЕТОННЫЕ КОНСТРУКЦИИ

STEEL FIBRE REINEORCED CONCRETE STRUCTURES

Дата введения 2006-09-01

1 ОБЛАСТЬ ПРИМЕНЕНИЯ

Настоящий Свод правил (СП) распространяется на проектирование сталефибробетонны конструкций зданий и сооружений различногс назначения, предусмотренных СНиП 52-01-2003, выполняемых из тяжелого или мелкозернистогс бетона классов по прочности на сжатие от В20 до В60, армируемых стальной фибровой арматурой (фиброй), в том числе в сочетании ее стальной стержневой арматурой классов А, В и К по СНиП 52-01-2003.

Положения Свода правил распространяются на проектирование сталефибробетонных конструкций без предварительного и с предварительным натяжением (на упоры) стержневой арматуры и эксплуатируемых в климатических условиях России, в среде с неагрессивной степенью воздействия, при статическом действии нагрузки.

При проектировании сталефибробетонных конструкций гидротехнических сооружений, мостов, покрытий автомобильных дорог, аэродромов и других специальных сооружений следует соблюдать также требования соответствующих норм и рекомендации на проектирование этих видов конструкций и сооружений.

Рекомендации СП распространяются на проектирование сталефибробетонных конструкций, армируемых стальной фиброй, упомянутой в подразделе 5.2 настоящего СП и выпускаемой по Техническим условиям, приведенным в приложении Б.

2 НОРМАТИВНЫЕ ССЫЛКИ

В настоящем Своде правил использованы ссылки на следующие основные нормативные документы:

СНиП 52-01-2003 Бетонные и железобетонные конструкции. Основные положения

СП 52-101-2003 Бетонные и железобетонные конструкции без предварительного напряжения арматуры

СП 52-102-2004 Предварительно напряженные железобетонные конструкции

ГОСТ 13015-2003 Изделия железобетонные и бетонные для строительства. Общие технические требования. Правила приемки, маркировки, транспортирования и хранения

ГОСТ 27751-88 Надежность строительных конструкций и оснований. Основные положения по расчету.

Другие нормативные и рекомендательные документы, ссылки на которые использованы в настоящем СП, приведены в приложении Б.

3 ТЕРМИНЫ И ОПРЕДЕЛЕНИЯ

В настоящем Своде правил использованы основные термины и определения по СНиП 52-01-2003, СП 52-101-2003, СП 52-102-2004 и другим нормативным документам. Используемые термины и их определения в соответствии с документами, на которые имеются ссылки в тексте, приведены в приложении В.

4 ОБЩИЕ УКАЗАНИЯ

4.1 ОСНОВНЫЕ ПОЛОЖЕНИЯ

4.1.1 Сталефибробетон является разновидностью дисперсно-армированного железобетона (СНиП 52-01-2003, приложении Б.) и изготавливается из тяжелого или мелкозернистого бетона (бетон-матрица), в котором в качестве арматуры используются стальные фибры, дисперсно и равномерно распределенные по объему бетона. Совместная работа бетона и стальных фибр обеспечивается сцеплением по их поверхности, анкеровкой фибры в бетоне за счет ее периодического профиля, кривизны в продольном и поперечном направлениях, а также наличием анкеров на концах фибр.

4.1.2 Сталефибробетонные конструкции по виду армирования рассматриваются как:

фибробетонные - при расчетном армировании только фибрами, равномерно распределенными по объему элемента;

комбинированно армированные - при их расчетном совместном армировании стальными фибрами и стальной стержневой арматурой.

4.1.3 Сталефибробетонные конструкции должны быть обеспечены с требуемой надежноетью от возникновения всех видов предельных состояний расчетом, выбором показателей качества материалов, назначением размеров и конструированием согласно указаниям СНиП 52-01-2003 и настоящего СП. При этом должны быть учтены технологические требования по изготовлению конструкций, соблюдены требования по эксплуатации зданий и сооружений, а также требования по экологии, устанавливаемые соответствующими нормативными документами.

Применение сталефибробетонных конструкций в средах с агрессивным воздействием на конструкции из бетона и железобетона допускается при выполнении требований, установленных СНиП 2.03.11-85 и настоящим СП.

Выбор конструктивных решений сталефибробетонных конструкций следует производить исходя из технико-экономической целесообразности применения таких конструкций в конкретных условиях строительства с учетом максимального снижения их материало- тру-до- энергоемкости и стоимости, с учетом повышения долговечности и увеличения межремонтного ресурса конструкций.

Сталефибробетон рекомендуется применять для изготовления конструкций, в которых наиболее эффективно могут быть использованы следующие его технические преимущества по сравнению с традиционным бетоном и железобетоном:

- повышенные трещиностойкость, ударная прочность, вязкость разрушения, износостойкость, морозостойкость, сопротивление кавитации;

- пониженные усадка и ползучесть;

возможность использования технологически более эффективных конструктивных решений, чем при традиционном стержневом армировании, например, тонкостенных конструкций, конструкций без стержневой распределительной, косвенной или поперечной арматуры;

- пониженные трудозатраты на арматурные работы;

- повышение степени механизации и автоматизации производства конструкций, например, в сборных тонкостенных оболочках, складках, ребристых плитах покрытий и перекрытий, сборных колоннах, балках, монолитных днищах и стенах емкостных сооружений, дорожных и аэродромных покрытиях; монолитных плитах основания пола промышленных и общественных зданий;

возможность применения новых, более производительных приемов формования армированных конструкций, например, торкретирование, погиб свежеотформованных листовых изделий, роликовое прессование и др.

4.1.7 При выборе конструктивных решений сталефибробетонных конструкций следует учитывать методы их изготовления, монтажа и условия эксплуатации. Форму и размеры сечений элементов следует принимать исходя из наиболее полного учета свойств сталефибробетона, возможности заводского механизированного и автоматизированного изготовления, удобства транспортирования и монтажа элементов и конструкций.

4.1.8 Сталефибробетонные конструкции могут изготавливаться различными технологическими приемами: предварительным приготовлением смеси в заводских условиях или в бетоносмесителях на строительном объекте, уплотнением с помощью вибрирования и вакуумирования, роликовым формованием и прессованием, торкретированием и центрифугированием.

4.1.9 При проектировании сталефибробетонных конструкций следует руководствоваться общими положениями и соблюдать расчетные требования СНиП 52-01-2003, СНиП 2.03.11-85 и настоящего СП.

4.1.10 Сталефибробетон без комбинированного армирования (фибробетон, см. п.4.1.2) рекомендуется применять в элементах конструкций:

работающих преимущественно на ударные нагрузки, смятие, истирание, воздействие кавитации;

работающих преимущественно на сжатие при расположении продольной сжимающей силы в пределах поперечного сечения элемента;

в остальных случаях работающих на сжатие, при расположении продольной сжимающей силы за пределами поперечного сечения элемента, а также работающих на изгиб, когда их разрушение не представляет непосредственной опасности для жизни людей, исправности и сохранности оборудования, т.е. в случаях экономической ответственности конструкций при целесообразности фибрового армирования.

4.1.11 В конструкциях и элементах, подверженных действию крутящих моментов, рекомендуется применять только сталефибробетонные элементы с комбинированным армированием (см. п.4.1.2).

4.1.12 Расчет сталефибробетонных конструкций по предельным состояниям выполняют по аналогии с расчетом железобетонных и армо-цементных конструкций с учетом расчетных характеристик сталефибробетона в соответствии с положениями разделов 4-7 настоящего СП.

По показателям прочности для бетона-матрицы приняты классы бетона в соответствии со СНиП 52-01-2003.

4.1.13 Статический расчет сталефибробетонных конструкций в виде оболочек и складок следует выполнять как тонкостенных пространственных конструкций.

4.1.14 Сталефибробетонные комбинированно армированные конструкции с предварительным напряжением стержневой арматуры следует проектировать в соответствии с требованиями СНиП 52-01-2003, СП 52-102-2004 и дополнительными указаниями настоящего СП.

4.1.15 При расчете сталефибробетонных конструкций среднюю плотность сталефибробетона допускается принимать равной:

- 2500 кг/м3 для тяжелого бетона-матрицы;

- 2400 кг/м3 для мелкозернистого бетона-матрицы.

При необходимости может приниматься более точное значение плотности сталефибробетона, определяемое с учетом указаний 4.1.17 и 5.1.1 настоящего СП.

4.1.16 Содержание фибровой арматуры (расход фибры) в единице объема сталефибробетона определяется расчетом в соответствии с требованиями к его физико-механическим свойствам, назначаемым из условий применения и требований настоящего СП.

4.1.17 В рабочих чертежах конструкций из сталефибробетона в случае необходимости, кроме маркировки фибры и ее требуемого содержания (расхода фибры) в 1 м3 сталефибробетонной смеси, приводятся требования к технологическим приемам изготовления, обеспечивающим требуемые свойства сталефибробетона.

4.2 ОСНОВНЫЕ РАСЧЕТНЫЕ ТРЕБОВАНИЯ

4.2.1 Расчеты сталефибробетонных конструкций следует производить в соответствии с требованиями пп. 6.1.1 - 6.1.10 СНиП 52-01-2003 по предельным состояниям, включающим:

- предельные состояния первой группы (по полной непригодности к эксплуатации вследствие потери несущей способности);

- предельные состояния второй группы (по непригодности к нормальной эксплуатации вследствие образования или чрезмерного раскрытия трещин, появления недопустимых деформаций и др.).

Расчеты по предельным состояниям первой группы, содержащиеся в настоящем СП, включают расчеты по прочности, по предельным усилиям.

Расчеты по предельным состояниям второй группы, содержащиеся в настоящем СП, включают расчеты по раскрытию трещин и по деформациям.

4.2.2 Расчет по предельным состояниям конструкции в целом, а также отдельных ее элементов следует, как правило, производить для всех стадий: изготовления, транспортирования, возведения и эксплуатации; при этом расчетные схемы должны отвечать принятым конструктивным решениям.

4.2.3 Расчеты сталефибробетонных конструкций необходимо, как правило, производить с учетом возможного образования трещин и неупругих деформаций в бетоне и арматуре.

Определение усилий и деформаций от различных воздействий в конструкциях и в образуемых ими системах зданий и сооружений следует производить по методам строительной механики, как правило, с учетом физической и геометрической нелинейности работы конструкций.

4.2.4 При проектировании сталефибробетонных конструкций надежность конструкций устанавливают расчетом путем использования расчетных значений нагрузок и воздействий, расчетных значений характеристик материалов, определяемых с помощью соответствующих частных коэффициентов надежности по нормативным значениям этих характеристик с учетом степени ответственности зданий и сооружений.

Нормативные значения нагрузок и воздействий, коэффициентов сочетаний, коэффициентов надежности по нагрузке, коэффициентов надежности по назначению конструкций, а также подразделение нагрузок на постоянные и временные (длительные и кратковременные) принимают согласно СНиП 2.01.07-85.

4.2.5 При расчете элементов сборных сталефибробетонных конструкций на воздействие усилий, возникающих при их подъеме, транспортировании и монтаже, нагрузку от массы элементов следует принимать с коэффициентом динамичности, равным: 1,60 - при транспортировании, 1,40 - при подъеме и монтаже. Допускается принимать более низкие, обоснованные в установленном порядке значения коэффициентов динамичности, но не ниже 1,25.

4.2.6 При расчете по прочности сталефибробетонных элементов конструкций на действие сжимающей продольной силы следует учитывать случайный эксцентриситет е0, принимаемый не менее:

- 1/600 длины элемента или расстояния между его сечениями, закрепленными от смещения;

- 1/30 высоты сечения;

- 10 мм.

Для элементов статически неопределимых конструкций значение эксцентриситета продольной силы относительно центра тяжести приведенного сечения е0 принимают равным значению эксцентриситета, полученного из статического расчета, но не менее е0.

Для элементов статически определимых конструкций эксцентриситет е0 принимают равным сумме эксцентриситетов - из статического расчета конструкций и случайного.

4.2.7 К трещиностойкости сталефибробетонных конструкций предъявляют требования соответствующих категорий в зависимости от условий, в которых они работают, и от вида применяемой арматуры:

первая категория - не допускается образование трещин;

вторая категория - допускается ограниченное по ширине непродолжительное и продолжительное раскрытие трещин.

4.2.8 Категории требований к трещиностойкости сталефибробетонных конструкций в зависимости от условий их работы и вида арматуры, а также величины предельно допустимой ширины раскрытия трещин приведены в таблице 4.1.

Таблица 4.1

Условия работы элементов конструкций

Категории требований к трещиностойкости сталефибробетонных конструкций и предельно допустимая ширина асгс1 и асгс2, мм, раскрытия трещин при армировании

фибровом*

комбинированном

 

со стержневой арматурой классов А 240(А-I), А300 (А-II), А400 (А-III, А400С), В500 (Bp-I, B500C)

со стержневой арматурой классов A 600(A-IV), А800 (A-V) и от Вр1200 до Вр1400 (Вр-II), К1400(К-7) и К1500 (К-19)

со стержневой арматурой классов А1000 (At-VI), Вр1500 (Вр-II) и КГ500 (К-19)

Элементы:

 

 

 

 

1. С полностью растянутым или частично сжатым сечением: воспринимающие давление жидкостей или газов, а также эксплуатируемые в грунте ниже уровня грунтовых вод или при слабоагрессивной степени воздействия среды па бетон

Первая

Вторая

Первая

Первая

 

асгс1 = 0,05

 

 

асгс2 = 0,03

 

2. Эксплуатируемые в отапливаемых зданиях с относительной влажностью внутреннего воздуха помещений выше 75 %, а также на открытом воздухе и в неотапливаемых зданиях в условиях увлажнения атмосферными осадками, а также эксплуатируемые в грунте выше уровня грунтовых вод

Вторая

Вторая

Первая

Первая

асгс1 = 0,05

асгс1 =0,1

 

 

асгс2 = 0,03

асгс2 = 0,05

 

 

3. Эксплуатируемые в отапливаемых зданиях с относительной влажностью внутреннего воздуха помещения от 60 до 75 % на открытом воздухе и в неотапливаемых зданиях при наличии защиты конструкций от систематического воздействия атмосферных осадков или от выпадения конденсата

Вторая

Вторая

Вторая

Первая

асгс1= 0,07

асгс1.=0,15

асгс1= 0,07

 

асгс2 =0,05

асгс2= 0,1

асгс2 = 0,05

 

 

 

 

 

4. Эксплуатируемые в отапливаемых зданиях с относительной влажностью внутреннего воздуха помещения до 60 % и при отсутствии возможности систематического увлажнения конструкции конденсатом или атмосферными осадками

Вторая

Вторая

Вторая

Вторая

асгс1 =0,15

асгс1 = 0,2

асгс1 =0,15

асгс1 = 0,05

асгс2= 0,1

асгс2 = 0,15

aсгс2 = 0,1

асгс2= 0,03

 

 

 

 

* Применение только фибрового армирования допускается при специальном обосновании

5 МАТЕРИАЛЫ ДЛЯ СТАЛЕФИБРОБЕТОННЫХ КОНСТРУКЦИЙ

5.1 БЕТОН (МАТРИЦА)

Показатели качества бетона и их применение при проектировании

5.1.1 Для сталефибробетонных конструкций, проектируемых в соответствии с требованиями настоящего СП, следует предусматривать конструкционный тяжелый бетон средней плотности от 2200 кг/м3 до 2500 кг/м3 включительно или мелкозернистый бетон средней плотности не менее 2200 кг/м3, соответствующие ГОСТ 26633-91.

5.1.2 Основными показателями качества бетона-матрицы, устанавливаемыми при проектировании, являются:

класс бетона-матрицы по прочности на сжатие В:

класс по прочности на осевое растяжение В; (назначают в случаях, когда эта характеристика имеет главенствующее значение и ее контролируют на производстве);

марка по морозостойкости F (назначают для конструкций, подвергаемых действию попеременного замораживания и оттаивания);

марка по водонепроницаемости W (назначают для конструкций, к которым предъявляют требования ограничения водопроницаемости).

Классы бетона-матрицы по прочности на сжатие В и осевое растяжение В, отвечают значению гарантированной прочности бетона-матрицы, МПа, с обеспеченностью 0,95.

5.1.3 Для сталефибробетонных конструкций следует предусматривать бетоны-матрицы следующих классов и марок:

классов по прочности на сжатие:

В20; В25; В30; В35; В40; В45; В50; В55; В60;

классов по прочности на осевое растяжение:

Вt0,8; Вt 1,2; Вt 1,6; Вt2,0; Вt 2,4; Вt 2,8; Вt3,2;

марок по морозостойкости:

F50; F75; F100; F150; F200; F300; F400; F500;

марок по водонепроницаемости:

W2; W4; W6; W8; W10; W12.

Допускается применение бетона-матрицы более высоких классов и марок, предусмотренных СНиП 52-01-2003, при соответствующем обосновании.

5.1.4 Возраст сталефибробетона, отвечающий его классу по прочности на сжатие (проектный возраст), назначают при проектировании исходя из возможных реальных сроков загружения конструкций проектными нагрузками. При отсутствии этих данных класс бетона-матрицы устанавливают в возрасте 28 сут.

Значение отпускной прочности бетона-матрицы или сталефибробетона в элементах сборных конструкций следует назначать в соответствии с ГОСТ 13015-2003 и стандартами на конструкции конкретных видов.

5.1.5 Для сталефибробетонных конструкций рекомендуется, как правило, применять бетонматрицу класса по прочности на сжатие не ниже В20. Применение бетона-матрицы более низкого класса должно быть обосновано.

5.1.6 Марку сталефибробетона по морозостойкости назначают в зависимости от требований, предъявляемых к конструкциям, режима их эксплуатации и условий окружающей среды.

Для надземных конструкций, подвергаемых атмосферным воздействиям окружающей среды при расчетной отрицательной температуре наружного воздуха в холодный период от минус 5°С до минус 40 °С принимают марку бетона-матрицы по морозостойкости не ниже F75, а при расчетной температуре наружного воздуха выше минус 5°С в указанных выше конструкциях марку бетона-матрицы по морозостойкости не нормируют.

В остальных случаях требуемые марки бетона-матрицы по морозостойкости устанавливают в зависимости от назначения конструкций и условий окружающей среды согласно другим нормативным документам.

5.1.7 Марку сталефибробетона по водонепроницаемости назначают в зависимости от требований, предъявляемых к конструкциям, режима их эксплуатации и условий окружающей среды.

Для надземных конструкций, подвергаемых атмосферным воздействиям при расчетной отрицательной температуре наружного воздуха выше минус 40°С, а также для наружных стен отапливаемых зданий марку бетона-матрицы по водонепроницаемости не нормируют.

В остальных случаях требуемые марки бетона-матрицы по водонепроницаемости устанавливают по специальным указаниям.

Нормативные и расчетные значения характеристик бетона (матрицы)

Нормативные значения прочностных характеристик бетона-матрицы

5.1.8 Основными прочностными характеристиками бетона-матрицы являются нормативные значения:

- сопротивления осевому сжатию Rb,n;

- сопротивления осевому растяжению Rbt,n.

Нормативные значения сопротивления бетона-матрицы осевому сжатию и осевому растяжению (при назначении класса бетона-матрицы по прочности на сжатие) принимают в зависимости от класса бетона-матрицы по прочности на сжатие В согласно таблице 5.1.

При назначении класса бетона-матрицы по прочности на осевое растяжение Вt, нормативные значения сопротивления бетона-матрицы осевому растяжению Rbt,n  принимают равными числовой характеристике класса бетона-матрицы на осевое растяжение.

Расчетные значения прочностных характеристик бетона-матрицы

5.1.9 Расчетные значения сопротивления бетона-матрицы осевому сжатию Rb и осевому растяжению Rbt определяют по формулам:

(5.1)

(5.2)

Значения коэффициента надежности по бетону-матрице при сжатии γb принимают равными:

1,3 - для предельных состояний по несущей способности (первая группа);

1,0 - для предельных состояний по эксплуатационной пригодности (вторая группа).

Значения коэффициента надежности по бетону-матрице при растяжении γbt принимают равными:

1,5 - для предельных состояний по несущей способности при назначении класса бетона-матрицы по прочности на сжатие;

1,3 - для предельных состояний по несущей способности при назначении класса бетона-матрицы по прочности на осевое растяжение;

1,0 - для предельных состояний по эксплуатационной пригодности.

Расчетные значения сопротивления бетона-матрицы Rb, Rbr Rb,ser Rbt,ser (с округлением) в зависимости от класса бетона-матрицы по прочности на сжатие и осевое растяжение приведены: для предельных состояний первой группы - соответственно в таблицах 5.2 и 5.3, второй группы - в таблице 5.1.

Таблица 5.1

Вид сопротивления

Бетон

Нормативные значения сопротивления бетона-матрицы Rb,n и Rbt,n и расчетные значения сопротивления бетона-матрицы для предельных состояний второй группы Rb,ser и Rbt;ser МПа, при классе бетона-матрицы по прочности на сжатие

B10

В15

B20

B25

В30

B35

B40

B45

B50

B55

В60

Сжатие осевое (призменная прочность) Rb,n, Rb,ser

Тяжелы и мелкозернистый группы А

7,5

11,0

15,0

18,5

22,0

25,5

29,0

32,0

36,0

39,5

43,0

Растяжение осевое Rbt,n, Rbt,ser

То же

0,85

1,10

1,35

1,55

1,75

1,95

2,10

2,25

2,45

2,60

2,75

Примечание - Группа мелкозернистых бетонов-матриц приведена в п. 2.3 СНиП 2.03.01-85.

Таблица 5.2

Вид сопротивления

Бетон

Расчетные значения сопротивления бетона-матрицы для предельных состояний первой группы Rb и Rbr МПа, при классе бетона-матрицы по прочности на сжатие

B10

B15

B20

B25

В30

B35

В40

В45

В50

В55

В60

Сжатие осевое (призмен пая прочность) Rb

Тяжелый и мелкозернистый группы А

6,0

8,5

11,5

14,5

17,0

19,5

22,0

25,0

27,5

30,0

33,0

Растяжение осевое Rbt

То же

0,56

0,75

0,9

1,05

1,15

1,30

1,40

1,50

1,60

1,70

1,80

Примечание - Группа мелкозернистых бетонов-матриц приведена в п. 2.3 СНиП 2.03.01-85.

Таблица 5.3

Вид сопротивления

Бетон

Расчетные значения сопротивления бетона-матрицы для предельных состояний первой группы Rbr МПа, при классе бетона-матрицы по прочности на осевое растяжение

Вt 0,8

Вt 1,2

Вt 1,6

Вt 2,0

Вt 2,4

Вt 2,8

Вt 3,2

Растяжение осевое Rbt

Тяжелый и мелкозернистый группы А

0,62

0,93

1,25

1,55

1,85

2,15

2,45

Примечание - Группа мелкозернистых бетонов-матриц приведена в п. 2.3 СНиП 2.03.01-85.

5.1.10 В необходимых случаях расчетные значения прочностных характеристик бетона-матрицы умножают на следующие коэффициенты условий работы γbi, учитывающие особенности работы бетона-матрицы в конструкции (характер нагрузки, условия окружающей среды и т.д.):

γb1 - для сталефибробетонных конструкций, вводимый к расчетным значениям сопротивлений Rb и Rbt и учитывающий влияние длительности действия статической нагрузки:

γb1 = 1,0 - при непродолжительном (кратковременном) действии нагрузки;

γb1 =0,9 - при продолжительном (длительном) действии нагрузки;

γb3 - для сталефибробетонных конструкций, бетонируемых в вертикальном положении при высоте слоя бетонирования свыше 1,5 м, вводимый к расчетному значению сопротивления бетона Rb, γb3 = 0,85.

Влияние попеременного замораживания и оттаивания, а также отрицательных температур учитывают коэффициентом условий работы бетона γb4i ≤ 1,0. Для надземных конструкций, подвергаемых атмосферным воздействиям окружающей среды при расчетной температуре наружного воздуха в холодный период минус 40°С и выше, принимают коэффициент γb4 = 1.0.

В остальных случаях значения коэффициента принимают в зависимости от назначения конструкции и условий окружающей среды.

Деформационные характеристики бетона-матрицы

5.1.11 Основными деформационными характеристиками бетона-матрицы являются значения:

- предельных относительных деформаций бетона-матрицы при осевом сжатии и растяжении (при однородном напряженном состоянии бетона-матрицы) – εb0 и εbt0.

- начального модуля упругости Eb;

- коэффициента (характеристики) ползучести φb,cr;

- коэффициента поперечной деформации бетона-матрицы (коэффициента Пуассона) νb,p;

- коэффициента линейной температурной деформации бетона-матрицы αbr.

5.1.12 Значения предельных относительных деформаций бетона-матрицы принимают равными:

при непродолжительном действии нагрузки

εb0 = 0,003 - при осевом сжатии;

εb0 = 0,00015 - при осевом растяжении;

при продолжительном действии нагрузки - по таблице 5.6 в зависимости от относительной влажности окружающей среды.

5.1.13 Значения начального модуля упругости бетона-матрицы при сжатии и растяжении принимают в зависимости от класса бетона-матрицы по прочности на сжатие В согласно таблице 5.4.

При продолжительном действии нагрузки значения начального модуля деформаций бетона-матрицы определяют по формуле:

(5.3)

где φb,cr - коэффициент ползучести, принимаемый согласно п. 5.1.14.

5.1.14 Значения коэффициента ползучести бетона-матрицы принимают в зависимости от условий окружающей среды (относительной влажности воздуха) и класса бетона. Значения коэффициента ползучести бетона-матрицы приведены в таблице 5.5 настоящего СП.

5.1.15 Значение коэффициента поперечной деформации бетона-матрицы допускается принимать νb,P - 0,2.

Значение коэффициента линейной температурной деформации бетона-матрицы при изменении температуры от минус 40°С до плюс 50 °С принимают αbt = 1 10-5 °С.

Таблица 5.4

Бетон

Значения начального модуля упругости бетона-матрицы при сжатии и растяжении Eb МПа 10-3, при классе бетона-матрицы по прочности на сжатие

В10

В15

В20

В25

В30

В35

В40

В45

В50

В55

В60

Тяжелый

19,0

24,0

27,5

30,0

32,5

34,5

36,0

37,0

38,0

39,0

39,5

Мелкозернистый группы А

16,5

20,5

22,5

24,0

26,0

27,5

28,5

-

-

-

-

Примечание - Группа мелкозернистых бетонов-матриц приведена в п. 2.3 СНиП 2.03.01-85.

Таблица 5.5

Относительная влажность воздуха окружающей среды, %

Значения коэффициента ползучести φb,сг при классе бетона-матрицы на сжатие

В10

В15

В20

В25

В30

В35

В40

В45

В50

В55

В60

Выше 75

2,8

2,4

2,0

1,8

1,6

1,5

1,4

1,3

1,2

1,0

40-75

3,9

3,4

2,8

2,5

2,3

2,1

1,9

1,8

1,6

1,5

1,4

Ниже 40

5,6

4,8

4,0

3,6

3,2

3,0

2,8

2,6

2,4

2,2

2,0

Примечание - Относительную влажность воздуха окружающей среды принимают по СНиП 23-01-99, как среднюю месячную относительную влажность наиболее теплого месяца для района строительства.

Таблица 5.6

Относительная влажность воздуха окружающей среды, %

Относительные деформации бетона-матрицы при продолжительном действии нагрузки

при сжатии

при растяжении

 

εb0 103

εb2 103

εb1,red 103

εbt0 103

εbt2 103

εbt1,red 103

Выше 75

3,0

4,2

2,4

0,21

0,27

0,19

40 - 75

3,4

4,8

2,8

0,24

0,31

0,22

Ниже 40

4,0

5,6

3,4

0,28

0,36

0,26

Примечание - Относительную влажность воздуха окружающей среды принимают по СНиП 23-01-99, как среднюю месячную относительную влажность наиболее теплого месяца для района строительства.

5.1.17 При необходимости в расчетах характеристики бетона-матрицы Eb, E и αbt могут заменяться соответствующими характеристиками сталефибробетона, определяемыми по следующим формулам.

Начальный модуль упругости сталефибробетона Efb определяется по формуле:

(5.4)

Значения коэффициента линейной температурной деформации сталефибробетона αfbt определяется по формуле:

(5.5)

где αft - коэффициент линейной температурной деформации стали, принимаемый равным 0,000012 при температуре в диапазоне от минус 40°С до плюс 50°С.

В формулах (5.4) и (5.5) и μ - коэффициент фибрового армирования по объему.

5.2 АРМАТУРА

Показатели качества арматуры

5.2.1 Для фибрового армирования сталефибробетонных конструкций принимается стальная фибра:

- фрезерованная из слябов, выпускаемая по ТУ 0882-193-46854090;

- резанная из стального листа, выпускаемая по ТУ 0991-123-53832025;

- рубленная из проволоки, выпускаемая по ТУ 1211-205-46854090.

5.2.2 Процент фибрового армирования по объему μ, (содержание фибры в 1 м3 сталефибробетонной смеси) указывается в проектной документации на изделие, конструкцию или сооружение.

5.2.3 Стержневая арматура для комбинированного армирования сталефибробетонных конструкций, а также закладные детали принимаются в соответствии с рекомендациями пп. 5.2.1 - 5.2.12 СП 52-101-2003 и разделов 2.2.1 - 2.2.2 СП 52-102-2004.

Нормативные и расчетные значения характеристик фибровой арматуры (фибры)

Нормативные значения прочностных характеристик фибры

Основной прочностной характеристикой фибры является нормативное значение сопротивления растяжению Rf,n, принимаемое в зависимости от вида фибровой арматуры по таблице 5.7.

Указанная контролируемая характеристика фибры принимается в соответствии с вышеуказанными ТУ и гарантируется с вероятностью 0,95.

Расчетные значения прочностных характеристик фибры

5.2.4 Расчетное сопротивление фибры растяжению для предельных состояний первой группы Rf, определяется путем деления нормативного сопротивления на коэффициент надежности по фибровой арматуре γf, приведенный в таблице 5.7.

5.2.5 Модуль упругости стальной фибровой арматуры Еf, принимается равным:

2,0·105 МПа - для фибры фрезерованной из слябов, выпускаемой по ТУ 0882-193-46854090;

2,1·105 МПа - для фибры резаной из стального листа, выпускаемой по ТУ 0991-123-53832025;

1,9·105 МПа - для фибры рубленой из проволоки, выпускаемой по ТУ 1211-205-46854090.

5.2.6 При комбинированном армировании (см. пп. 4.1.2; 5.2.3) нормативные и расчетные сопротивления растяжению и сжатию стержневой арматуры, коэффициенты условий работы и модули упругости этой арматуры принимают согласно СП 52-101-2003 и СП 52-102-2004.

Предварительные напряжения стержневой арматуры при комбинированном армировании.

5.2.7 Предварительные напряжения стержневой арматуры σsp принимают не более 0,9Rs,n для горячекатаной и термомеханически упрочненной арматуры и не более 0,8Rs,n для холоднодеформированной арматуры и арматурных канатов.

Таблица 5.7

№ п.п.

Вид фибровой арматуры

Нормативные сопротивления растяжению Rf,n и расчетные сопротивления растяжению для предельных состояний второй группы Rf,seri МПа

Коэффициент надежности по фибровой арматуре γf при расчете конструкций по предельным состояниям

Расчетные сопротивления растяжению фибровой арматуры для предельных состояний первой группы Rf, МПа

Первой группы

Второй группы

1

Фибра стальная, фрезерованная из слябов, отвечающая ТУ 0882-193-46854090

600

1,10

1,00

500

2

Фибра FIBREX стальная, резаная из стального листа, отвечающая ТУ 0991-123-53832025 соответственно из стали класса по прочности:

 

 

 

 

1

460

1,05

1,0

440

2

550

1,05

1,0

520

3

640

1,10

1,0

580

3

Фибра стальная рубленная из проволоки, отвечающая ТУ 1211-205-46854090:

 

 

 

 

XEHДИКС HENDlX

1050

1,10

1,0

950

МИКСАРМ MIXARM

1100

1,05

1,0

1050

ФИБЕКС FIВАХ-1/50

950

1,10

1,0

860

ФИБЕКС FIВАХ-1,3/50

820

1,10

1,0

750

ТВИНФЛЭТ TWINFLAT

1150

1,10

1,0

1050

5.2.8 При расчете предварительно напряженных конструкций следует учитывать снижение предварительных напряжений в стержневой арматуре вследствие потерь предварительного напряжения до передачи усилий натяжения на сталефибробетон (первые потери) и после передачи усилия натяжения на сталефибробетон (вторые потери).

Первые потери предварительного напряжения включают потери от релаксации предварительных напряжений в арматуре, от температурного перепада при термической обработке конструкций, от деформации анкеров и деформации формы (упоров).

Вторые потери предварительного напряжения включают потери от усадки и ползучести сталефибробетона.

5.2.9 Потери от релаксации напряжений арматуры Δσspl определяют по формулам:

для арматуры классов А600-А1000 при способе натяжения:

механическом - Δσspl = 0,1σsp - 2,0

(5.6)

электротермическом - Δσspl = 0,03σsp

(5.7)

для арматуры классов Вр1200-Вр1500, К1400, К1500 при способе натяжения:

механическом

(5.8)

Электротермическом Δσspl =0,05σsp

(5.9)

Здесь σsp принимается без потерь в МПа.

При отрицательных значениях Δσspl , принимают Δσspl = 0.

При наличии более точных данных о релаксации арматуры допускается принимать иные значения потерь от релаксации.

5.2.10 Потери Δσsp2 от температурного перепада Δt,°С, определяемого как разность температур натянутой арматуры в зоне нагрева и устройства, воспринимающего усилия натяжения при нагреве бетона, принимают равными:

Δσsp2 = 1,25Δt

(5.10)

При отсутствии точных данных по температурному перепаду допускается принимать Δt =65°С.

При наличии более точных данных о температурной обработке конструкции допускается принимать иные значения потерь от температурного перепада.

5.2.11 Потери от деформации стальной формы (упоров) Δσsp3 при неодновременном натяжении арматуры на форму определяют по формуле:

(5.11)

где n - число стержней (групп стержней), натягиваемых не одновременно;

Δl - сближение упоров по линии действия усилия натяжения арматуры, определяемое из расчета деформации формы;

l - расстояние между наружными гранями упоров.

При отсутствии данных о конструкции формы и технологии изготовления допускается принимать Δσsp3 = 30 МПа.

При электротермическом способе натяжения арматуры потери от деформации формы не учитываются.

5.2.12 Потери от деформации анкеров натяжных устройств Δσsp4  определяют по формуле:

(5.12)

где Δl - обжатие анкеров или смещение стержня в зажимах анкеров;

l - расстояние между наружными гранями упоров.

При отсутствии данных допускается принимать Δl = 2 мм.

При электротермическом способе натяжения арматуры потери от деформации анкеров не учитывают.

5.2.13 Потери от усадки сталефибробетона Δσsp5 определяют по формуле:

(5.13)

где εfb,sh - деформации усадки сталефибробетона, значения которых можно приближенно принимать в зависимости от класса бетона-матрицы равными:

0,0002 - для бетона-матрицы классов В35 и ниже;

0,00025 - для бетона-матрицы класса В40;

0,0003 - для бетона-матрицы классов В45 и выше.

Допускается потери от усадки сталефибробетона определять более точными методами.

5.2.14 Потери от ползучести сталефибробетона Δσsp6 определяют по формуле:

(5.14)

где φb,cr - коэффициент ползучести бетона-матрицы, принимаемый согласно п. 5.1.14 настоящего СП;

σfbpj - напряжения в сталефибробетоне на уровне центра тяжести рассматриваемой j-й группы стержней напрягаемой арматуры;

еор - эксцентриситет усилия P(1) относительно центра тяжести приведенного поперечного сечения элемента;

γsj - расстояние между центрами тяжести сечения рассматриваемой группы стержней напрягаемой арматуры и приведенного поперечного сечения элемента;

Ared, Ired - соответственно площадь приведенного сечения элемента и ее момент инерции относительно центра тяжести приведенного сечения;

μspj - коэффициент армирования, равный Аspj, где и А и Аspj - площади поперечного сечения соответственно элемента и рассматриваемой группы стержней напрягаемой арматуры.

При этом значения потерь предварительного напряжения от ползучести сталефибробетона Δσsp6 принимают определенными по формуле (5.14) настоящего СП с умножением на понижающий коэффициент, учитывающий влияние фибрового армирования и принимаемый равным:

0,95 - при 0,005 < μ < 0,007;

0,90 - при 0,007 < μ < 0,01;

0,85 -  при μ > 0,01.

Допускается потери от ползучести сталефибробетона определять более точными методами.

Напряжения σfbpj определяют по правилам расчета упругих материалов, принимая приведенное сечение элемента, включающее площади сечения сталефибробетона и всей продольной арматуры (напрягаемой и ненапрягаемой) с коэффициентом приведения арматуры к сталефибробетону , согласно п. 5.2.16.

5.2.15 Полные значения первых потерь предварительного напряжения арматуры (по пп. 5.2.9 - 5.2.12) определяют по формуле:

(5.15)

где i - номер потерь предварительного напряжения.

Усилие предварительного обжатия сталефибробетона с учетом первых потерь равно:

(5.16)

где Аspj и σsp(1)j - соответственно площадь сечения j-й группы стержней напрягаемой арматуры в сечении элемента и предварительное напряжение в группе с учетом первых потерь, равное

Здесь σbpj - начальное предварительное напряжение рассматриваемой группы стержней арматуры.

Полные значения первых и вторых потерь предварительного напряжения арматуры (по пп. 5.2.9 - 5.2.14) определяют по формуле:

(5.17)

Усилие в напрягаемой арматуре с учетом полных потерь равно:

(5.18)

где

При проектировании конструкций полные суммарные потери σsp(2)j следует принимать не менее 100 МПа.

При определении усилия предварительного обжатия сталефибробетона Р с учетом полных потерь напряжений следует учитывать сжимающие напряжения в ненапрягаемой арматуре, численно равные сумме потерь от усадки и ползучести сталефибробетона на уровне этой арматуры.

5.2.16 Предварительные напряжения в сталефибробетоне σfbp при передаче усилия предварительного обжатия Р(1), определяемого с учетом первых потерь, не должны превышать:

если напряжения уменьшаются или не изменяются при действии внешних нагрузок - 0,9Rfbp;

если напряжения увеличиваются при действии внешних нагрузок - 0,7Rfbp.

Напряжения в сталефибробетоне σfbp определяют по формуле:

(5.19)

где P(l) - усилие предварительного обжатия с учетом первых потерь;

М - изгибающий момент от внешней нагрузки, действующий в стадии обжатия (собственный вес элемента);

еop - эксцентриситет усилия P(1) относительно центра тяжести приведенного поперечного сечения элемента;

y - расстояние от центра тяжести сечения до рассматриваемого волокна.

5.2.17 Длину зоны передачи предварительного напряжения на сталефибробетон для арматуры без дополнительных анкерующих устройств определяют по формуле:

(5.20)

но она должна быть не менее 10ds и 200 мм, а для арматурных канатов - не менее 300 мм. В формуле (5.20):

σsp - предварительное напряжение в напрягаемой арматуре с учетом первых потерь (см.п. 5.2.15);

Rbond - сопротивление сцепления напрягаемой арматуры со сталефибробетоном, отвечающее передаточной прочности сталефибробетона и определяемое согласно указаниям п. 8.3.25;

As, us - соответственно площадь и периметр стержня арматуры.

Передачу предварительного напряжения с арматуры на сталефибробетон рекомендуется осуществлять плавно.

6 РАСЧЕТ ЭЛЕМЕНТОВ СТАЛЕФИБРОБЕТОННЫХ КОНСТРУКЦИЙ ПО ПРЕДЕЛЬНЫМ СОСТОЯНИЯМ ПЕРВОЙ ГРУППЫ

6.1 ОБЩИЕ ПОЛОЖЕНИЯ

6.1.1 Сталефибробетонные элементы рассчитывают по прочности на действие изгибающих моментов, продольных и поперечных сил, крутящих моментов и на местное действие нагрузки (местное сжатие, продавливание).

6.1.2 При расчете сталефибробетонных конструкций по прочности они рассматриваются как железобетонные с фибровой арматурой, равномерно распределенной по всему объему (сечению).

6.1.3 Расчет по прочности сталефибробетонных конструкций производится по предельным усилиям с учетом вида армирования - фибрового или комбинированного (см. п. 4.1.2).

6.1.4 Расчет предварительно напряженных элементов производят для стадии эксплуатации на действие изгибающих моментов и поперечных сил от внешних нагрузок и для стадии предварительного обжатия на действие усилий от предварительного натяжения арматуры и усилий от внешних нагрузок, действующих в стадии обжатия.

6.1.5 Расчет преднапряженных сталефибробетонных элементов в стадии обжатия производят как при внецентренном сжатии усилием предварительного обжатия в предельном состоянии согласно п. 6.3.2.

6.1.6 При расчете предварительно напряженных сталефибробетонных элементов по прочности следует учитывать возможные отклонения предварительного напряжения, определяемого согласно п. 5.2.15 путем умножения значений σspj (или усилия обжатия Рj) для рассматриваемого j-го стержня или группы стержней напрягаемой арматуры на коэффициент γsp.

Значения коэффициента γsp принимают равными:

0,9 - при благоприятном влиянии предварительного напряжения;

1,1 - при неблагоприятном влиянии предварительного напряжения.

6.2 РАСЧЕТ ПО ПРОЧНОСТИ СТАЛЕФИБРОБЕТОННЫХ ЭЛЕМЕНТОВ НА ДЕЙСТВИЕ ИЗГИБАЮЩИХ МОМЕНТОВ И ПРОДОЛЬНЫХ СИЛ

Общие положения

6.2.1 Расчет по прочности сталефибробетонных элементов при действии изгибающих моментов и продольных сил (внецентренное сжатие или растяжение) следует производить для сечений, нормальных к их продольной оси.

Расчет по прочности нормальных сечений сталефибробетонных элементов следует производить на основе предельных усилий.

Расчет по прочности сталефибробетонных элементов на действие крутящих моментов допускается производить для сталефибробетонных элементов с комбинированным армированием на основе положений и по аналогии с расчетом железобетонных элементов по пп. 6.2.36 - 6.2.41 СП 52-101-2003.

6.2.2 При расчете внецентренно сжатых сталефибробетонных элементов следует учитывать влияние прогиба на их несущую способность, как правило, путем расчета конструкций по деформированной схеме.

Допускается производить расчет конструкций по недеформированной схеме, учитывая при гибкости -  > 14 влияние прогиба элемента на его прочность, путем умножения начального эксцентриситета e0 на коэффициент η, определяемый согласно п. 6.2.26.

6.2.3 Для сталефибробетонных элементов, у которых предельное усилие по прочности оказывается меньше предельного усилия по образованию трещин (п. 7.2.6), площадь сечения продольной арматуры должна быть увеличена по сравнению с требуемой из расчета по прочности не менее чем на 15 % или соответствовать предельному усилию по образованию трещин.

Расчет по прочности нормальных сечений по предельным усилиям

6.2.4 Предельные усилия в сечении, нормальном к продольной оси элемента, следует определять исходя из следующих предпосылок:

- сопротивление сталефибробетона растяжению представляется напряжениями, равными Rfbt и равномерно распределенными по растянутой зоне сталефибробетона;

- сопротивление сталефибробетона сжатию представляется напряжениями, равными Rfb - и равномерно распределенными по сжатой зоне сталефибробетона;

- деформации (напряжения) в арматуре определяют в зависимости от высоты сжатой юны сталефибробетона;

- растягивающие напряжения в стержневой арматуре принимают не более расчетного сопротивления растяжению Rs;

- сжимающие напряжения в стержневой арматуре принимают не более расчетного сопротивления сжатию Rsc.

Допускается принимать для растянутой арматуры с условным пределом текучести напряжения выше Rs, но не более 1,1Rs в зависимости от соотношения ξ и ξR (п. 6.2.15).

6.2.5 Расчетные сопротивления сталефибробетона сжатию Rfb и растяжению Rfbt определяется в зависимости от класса по прочности на сжатие бетона-матрицы, геометрии и размеров сечения элемента в соответствии с пп. 6.2.6 – 6.2.12 настоящего СП.

6.2.6 При определении Rfbt различаются два случая:

первый случай: сопротивление растяжению сталефибробетона исчерпывается из-за обрыва некоторого количества фибр и выдергивания стальных, что определяется условием:

(6.1)

второй случай: сопротивление растяжению сталефибробетона исчерпывается из-за выдергивания из бетона условно всех фибр, что определяется условием:

(6.2)

В формулах (6.1) и (6.2) lf,an - длина заделки фибры в бетоне, обеспечивающая ее разрыв и выдергивании, определяемая по формуле:

(6.3)

где df,red - приведенный диаметр используемой фибры, мм;

Rf,ser - нормативное сопротивление растяжению фибр, МПа;

ηf - коэффициент, учитывающий анкеровку фибры и принимаемый равным:

0,6 - для фибры марки FIBREX, резаной из листа, выпускаемой по ТУ 0991-123-53832025;

0,8 - для фибры, фрезерованной из слябов, выпускаемой по ТУ 0882-193-46854090.

Для фибры рубленой из стальной проволоки, выпускаемой по ТУ 1211-205-46854090 коэффициент ηf принимается равным:

0,9 - для фибры марки ХЕНДИКС HENDIX;

0,85 - для фибры марки ФИБЕКС FIBAX-1/50;

0,80 - для фибры марки ФИБЕКС FIBAX-1,3/50;

0,75 - для фибры марки ТВИНФЛЭТ TWINFLAT;

0,70 - для фибры марки МИКСАРМ MIXARM.

При проектировании df,red принимается равным:

(6.4)

где Sf - площадь номинального поперечного сечения фибры, определяемая по ее номинальным размерам, принимаемым по соответствующим ТУ.

Для фибры, фрезерованной из слябов, выпускаемой по ТУ 0882-193-46854090, допускается принимать значение df,red =1,1 мм.

6.2.7 Если имеет место первый случай исчерпания сопротивления растяжению сталефибробетона, то величина Rfbt определяется по формуле:

где m1 - коэффициент условий работы, принимаемый равным 1,0 для фибры из слябов; 1,1 - для фибры из листа и фибры из проволоки;

kor - коэффициент ориентации, учитывающий ориентацию фибр в объеме элемента в зависимости от соотношения размеров сечения элемента и длины фибры, принимаемый по таблице 6.1;

μfv - коэффициент фибрового армирования по объему;

Кт - коэффициент, определяемый по формуле:

(6.6)

6.2.8 Если имеет место второй случай исчерпания сопротивления растяжению сталефибробетона величина Rfbt определяется по формуле:

(6.7)

где m2 - коэффициент условий работы, принимаемый равным 1,0 для фибры из слябов; 1,1 - для фибры из листа и фибры, рубленой из проволоки.

6.2.9 Значения коэффициентов m1 и m2 в случаях применения прогрессивных технологий могут быть уточнены после экспериментального обоснования в соответствующем порядке.

6.2.10 Расчетное сопротивление сжатию сталефибробетона Rfb определяется в зависимости от класса по прочности на сжатие бетона-матрицы, вида и размеров фибры, геометрии и размеров сечения элемента. При этом учитывается только работа фибр, ориентированных нормально к направлению внешнего сжимающего усилия и удовлетворяющих условию (6.1) п. 6.2.6 настоящего СП.

Величина Rfb определяется по формуле:

где kn - коэффициент, учитывающий работу фибр в сечении, перпендикулярном направлению внешнего сжимающего усилия и принимаемый по таблице 6.2;

φf - коэффициент эффективности косвенного армирования фибрами, вычисляемый по формуле:

(6.9)

где

(6.10)

6.2.11 При расчете конструкций для определения величин Rfb и Rfbt коэффициенты kог и kn принимаются соответственно по таблицам 6.1 и 6.2 различными для отдельных частей сечения рассчитываемого элемента (верхней полки, нижней полки, стенки, ребра и т.п.) в зависимости от соотношения их размеров и длины фибры.

Таблица 6.1

Значение kог в зависимости от размеров сечения растянутого элемента при

h/lf

b/lf

0,5

1

2

3

5

10

20

Более 20

0,2

0,98

0,93

0,78

0,732

0,695

0,665

0,651

0,637

0,4

0,97

0,92

0,77

0,724

0,686

0,658

0,642

0,628

0,6

-

0,91

0,76

0,718

0,681

0,653

0,638

0,624

0,8

-

0,90

0,75

0,707

0,671

0,643

0,628

0,615

1,0

-

-

0,73

0,687

0,652

0,624

0,610

0,597

1,5

-

-

0,69

0,649

0,615

0,589

0,577

0,564

2

-

-

0,67

0,630

0,597

0.573

0,559

0,548

3

-

-

-

0,612

0,580

0,556

0,543

0,532

5

-

-

-

-

0,556

0.543

0,530

0,519

10

-

-

-

-

-

0,533

0,520

0,510

20

-

-

-

-

-

-

0,516

0,505

Более 20

-

-

-

-

-

-

-

0,5

b и h - соответственно больший и меньший размеры сечения элемента (или его части), перпендикулярного направлению внешнего растягивающего усилия

(Опечатка 01.05.2007)

6.2.12 При расчете по прочности сталефибробетонных конструкций фибровую арматуру следует принимать равномерно распределенной по сечению элемента с коэффициентом приведенного армирования по площади, определяемым по формулам:

для растянутой зоны

(6.11)

для сжатой зоны

(6.12)

где μfa и  - коэффициенты фибрового армирования по площади;

μfv - коэффициент фибрового армирования по объему;

kог и kn - коэффициенты, принимаемые соответственно по таблицам 6.1 и 6.2 настоящего СП.

6.2.13 При расчете прочности сталефибробетонных конструкций величины расчетных сопротивлений принимаются для составляющих частей поперечного сечения элемента Rfbt , Rfb, Rfb,f (для полки); Rfbt,w, Rfb,w (для ребра и стенки) и Rfbt,r, Rfb,r (для кольцевого сечения) и определяются по пп. 6.2.7 - 6.2.11 настоящего СП с использованием в формулах (6.5) - (6.8) коэффициентов ориентации для соответствующих частей сечения: kn - для сжатой полки; kor,f - для растянутой полки; kor,w - для растянутой зоны сечения ребра или стенки; kn,w - для сжатой зоны сечения ребра или стенки; kor,r и kn,r- для соответственно растянутой и сжатой зон кольцевого сечения.

6.2.14 Расчет по прочности нормальных сечений следует производить в зависимости от соотношения между значением относительной высоты сжатой зоны сталефибробетона , определяемым из соответствующих условий равновесия, и значением граничной относительной высоты сжатой зоны ξR, при котором предельное состояние элемента наступает одновременно с достижением в растянутой арматуре напряжения, равного расчетному сопротивлению Rs.

6.2.15 Значение ξR определяют по формуле:

где ω - характеристика сжатой зоны сталефибробетона, определяемая по формуле:

(6.14)

где а - коэффициент, принимаемый равным для бетона-матрицы:

тяжелого

0,85

тяжелого, подвергнутого автоклавной обработке и мелкозернистого группы А

0,80

Rb - в МПа;

σsR - напряжение в арматуре, МПа, принимаемое для арматуры классов:

Таблица 6.2

Значение kn в зависимости от размеров сечения сжатого элемента при

h/lf

b/lf

0,5

1

2

3

5

10

20

Более 20

0.2

0,126

0,263

0,449

0,511

0,560

0,597

0,616

0,636

0,4

0,122

0,259

0,444

0,506

0,555

0,591

0,610

0,629

0,6

0,122

0,257

0,441

0,502

0,551

0,589

0,606

0,624

0,8

0,122

0,253

0,429

0,494

0,542

0,578

0,596

0,614

1,0

0,118

0,247

0,422

0,480

0,527

0,563

0,580

0,597

1,5

0,110

0,232

0,399

0,454

0,498

0,531

0,548

0,565

2,0

0,110

0,226

0,387

0,440

0,484

0,517

0,532

0,549

3

0,105

0,219

0,375

0,428

0,470

0,510

0,517

0,532

5

0,1

0,214

0,367

0,418

0,458

0,490

0,504

0,520

10

0,1

0,210

0,360

0,410

0,449

0,481

0,495

0,510

20

0,1

0,297

0,356

0,406

0,446

0,475

0,490

0,505

Более 20

0,1

0,205

0,353

0,401

0,442

0,470

0,485

0,5

b и h - соответственно больший и меньший размеры сечения элемента (или его части), перпендикулярного направлению внешнего растягивающего усилия

 

А240, А300, А400, В500

A600, A800, A1000

Вр1200 до Вр1500, K1400 и К1500

где Rs - расчетное сопротивление арматуры растяжению, принимаемое с учетом соответствующего коэффициента надежности по арматуре γs, принимаемых по п. 2.2.2.2 СП 52-102-2004;

σsp - предварительное напряжение в арматуре с учетом всех потерь и γsp = 0,9;

Δσsp - см. п. 5.2.15 настоящего СП;

σsc,u - предельное напряжение в арматуре сжатой зоны, принимаемое для конструкций из тяжелого и мелкозернистого сталефибробетона равным 500 МПа. При расчете элементов в стадии обжатия значение σsc,u = 350 МПа.

6.2.16 Для напрягаемой арматуры, расположенной в сжатой зоне, расчетное сопротивление сжатию Rsc (пп. 6.2.18 и 6.2.19) должно быть заменено напряжением σsc, равным:

500 – σhc - при учете коэффициента условий работы бетона γb1 = 0,9 (п. 5.1.10);

400 - σsp - при γb1 = 1,0

Здесь 500 и 400 - в МПа.

Значения σsp определяют с коэффициентом γsp = 1,1.

Во всех случаях напряжение σsc принимают не более Rsc.

6.2.17 При расчете внецентренно сжатых железобетонных элементов в начальном эксцентриситете приложения продольной силы е0 следует учитывать случайный эксцентриситет е0, принимаемый по п. 4.2.6 настоящего СП.

Расчет изгибаемых элементов

6.2.18 Расчет по прочности сечений изгибаемых элементов производят из условия

(6.15)

где Mult - предельный изгибающий момент, который может быть воспринят сечением элемента.

6.2.19 Значение Мult для изгибаемых сталефибробетонных элементов прямоугольного сечения при  определяют по формуле:

при фибровом армировании (см. п. 4.1.2), рис. 6.1

(6.16)

при этом высоту сжатой зоны х определяют по формуле:

(6.17)

при комбинированном армировании (см. п. 4.1.2), рис. 6.2

(6.18)

при этом высоту сжатой зоны определяют из условия:

(6.19)

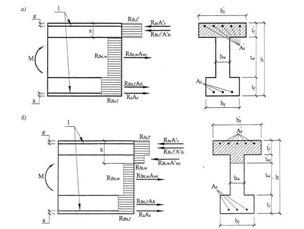
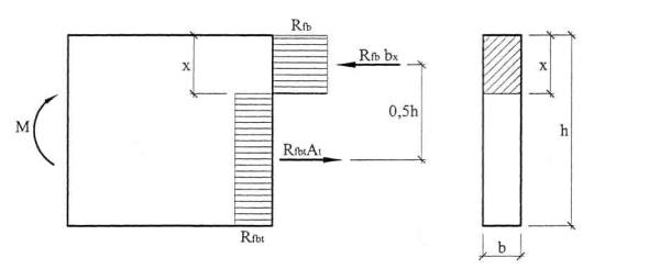
Рисунок 6.1 - Схема усилий и эпюра напряжений в сечении, нормальном к продольной оси изгибаемого сталефибробетонного элемента прямоугольного сечения, при его расчете по прочности (при фибровом армировании)

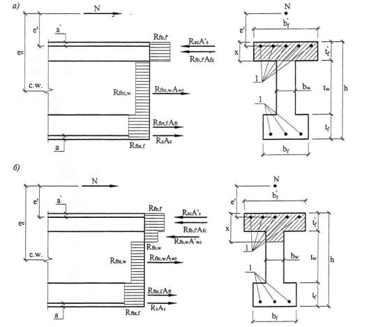
Рисунок 6.2 - Схема усилий и эпюра напряжений в сечении, нормальном к продольной оси изгибаемого сталефибробетонного элемента прямоугольного сечения, при его расчете по прочности (при комбинированном армировании)

В формулах этого пункта и п. 6.2.20 обозначения площадей сечения As и A's относятся как к напрягаемой, так и к ненапрягаемой арматуре.

6.2.20 Значение Mult для изгибаемых элементов, имеющих полку в сжатой зоне (тавровые и двутавровые сечения) при  определяют в зависимости от положения границы сжатой зоны:

если граница проходит в полке (рис. 6.3, a), т.е. соблюдается условие:

(6.20)

значение Mult определяют по п. 6.2.18 как для прямоугольного сечения шириной

если граница проходит в ребре (рис. 6.3, б), т.е. условие (6.20) не соблюдается, значение Мult определяют по формуле:

при этом высоту сжатой зоны сталефибробетона x определяют из условия:

6.2.21 Значение  вводимое в расчет, принимают из условия, что ширина свеса полки в каждую сторону от ребра должна быть не более 1/6 пролета элемента и не более:

1/2 расстояния в свету между продольными ребрами - при наличии поперечных ребер или при .

 - при отсутствии поперечных ребер (или при расстояниях между ними больших, чем расстояния между продольными ребрами) и ;

при консольных свесах полки:

 - при ≥0,1h

 - при 0,05 h<0,1h

при < 0,05h - свесы не учитывают.

6.2.22 Расчет по прочности изгибаемых элементов кольцевых сечений (рис. 6.4) производится:

при Rfbtr 0,387Rfbr из условия:

(6.23)

где Rfbr = Rfb

(6.24)

rm - радиус срединной поверхности стенки кольцевого элемента, равный:

re и ri - радиусы соответственно наружной и внутренней граней кольцевого сечения.

При Rfbtr  < 0,38Rfbr  из условия:

(6.25)

где Аr - общая площадь кольцевого сечения, определяемая по формуле:

(6.26)

a – при x ; б – при x - > ; 1 – стержневая арматура

Рисунок 6.3 - Схема распределения усилий и эпюра напряжений в сечениях, нормальных к продольной оси изгибаемого двутаврового сечения при комбинированном армировании

1 - стержневая арматура

Рисунок 6.4 - Схема кольцевого сечения сталефибробетонного элемента, принимаемая при его расчете по прочности на изгиб (при комбинированном армировании)

6.2.23 При расчете по прочности изгибаемых сталефибробетонных элементов складчатого сечения с комбинированным армированием стержневой арматурой класса от Вр 1200 до Вр 1500 значение величины Rfbt в расчетных формулах (6.17) - (6.22) пп. 6.2.18, 6.2.19 настоящего СП (рис. 6.2 и 6.3) принимается умноженным на коэффициент условий работы m3 равный:

0,85 при RfbtAbt > 0,5Ns

0,90 при 0,27 Ns < RfbtAbt < 0,5 Ns

0,95 при RfbtAbt < 0,2 Ns,

где Ns - суммарное предельное усилие в растянутой стержневой арматуре, Ns = AsRs.

6.2.24 При расчете по прочности изгибаемых элементов рекомендуется соблюдать условие x ≤ ξRh

В случае, когда по конструктивным соображениям или из расчета по предельным состояниям второй группы площадь растянутой арматуры принята большей, чем это требуется для соблюдения условия x ≤ ξRh, то для элементов из бетона классов В30 и ниже при комбинированном армировании с ненапрягаемой арматурой классов А240, А300, А400 и В500 допускается предельный изгибающий момент Mult определять по формулам (6.18) или (6.21), подставляя в них значения высоты сжатой зоны x = ξRh.

Расчет внецентренно сжатых элементов

6.2.25 Расчет по прочности прямоугольных сечений внецентренно сжатых элементов производят из условия:

(6.27)

где е - расстояние от точки приложения силы N до центра тяжести сечения растянутой или наименее сжатой (при полностью сжатом сечении элемента) арматуры, равное:

Здесь η - коэффициент, учитывающий влияние продольного изгиба (прогиба) элемента на его несущую способность и определяемый согласно п. 6.2.27 настоящего СП.

Высоту сжатой зоны х определяют:

при  (рис. 6.5) из условия:

(6.28)

При  > ξR по формуле:

(6.29)

6.2.26 Значение коэффициента η при расчете конструкций по недеформированной схеме определяют по формуле:

(6.30)

где Ncr - условная критическая сила, определяемая по формуле:

(6.31)

где D - жесткость сталефибробетонного элемента;

l0 - расчетная длина элемента, определяемая согласно п. 6.2.28.

1 – стержневая арматура

Рисунок 6.5 - Схема усилий и эпюра напряжений в сечении, нормальном к продольной оси сжатого сталефибробетонного элемента, при его расчете по прочности (при комбинированном армировании)

Допускается значение D определять по формуле:

(6.32)

где Еfb, Es - модули упругости соответственно сталефибробетона и арматуры;

If, Is - моменты инерции площадей сечения соответственно сталефибробетона и всей продольной арматуры относительно центра тяжести поперечного сечения элемента;

φl - коэффициент, учитывающий влияние длительности действия нагрузки

где М1, Мl1 - моменты относительно центра наиболее растянутого или наименее сжатого (при целиком сжатом сечении) стержня арматуры соответственно от действия полной нагрузки и от действия постоянных и длительных нагрузок;

δе - относительное значение эксцентриситета продольной силы e0/h, где е0 = M/N принимаемое не менее 0,15.

Допускается уменьшать значение коэффициента η с учетом распределения изгибающих моментов по длине элемента, характера его деформирования и влияния прогибов на значение изгибающего момента в расчетном сечении путем расчета конструкции как упругой системы.

6.2.27 Расчет по прочности прямоугольных сечений внецентренно сжатых элементов с арматурой, расположенной у противоположных в плоскости изгиба сторон сечения, при эксцентриситете продольной силы е0h/30 и гибкости  допускается производить из условия:

(6.33)

где Nult - предельное значение продольной силы, которую может воспринять элемент, определяемое по формуле:

(6.34)

где As,tot - площадь всей продольной арматуры в сечении элемента;

φ - коэффициент, принимаемый при длительном действии нагрузки по таблице 6.3 в зависимости от гибкости элемента. При кратковременном действии нагрузки значения φ определяют по линейному закону,

принимая φ = 0,9 при  = 10 и φ = 0,85 при  =20.

Таблица 6.3

6

10

15

20

φ

0,92

0,9

0,83

0,7

6.2.28 Расчетную длину l0 внецентренно сжатого элемента определяют как для элементов рамной конструкции с учетом ее деформированного состояния при наиболее невыгодном для данного элемента расположении нагрузки, принимая во внимание неупругие деформации материалов и наличие трещин.

Допускается расчетную длину l0 элементов постоянного поперечного сечения по длине l при действии продольной силы принимать равной:

для элементов с шарнирным опиранием на двух концах

1,0l

для элементов с жесткой заделкой (исключающей поворот опорного сечения) на одном конце и незакрепленным другим концом (консоль)

2,0l

для элементов с шарнирным несмещаемым опиранием на одном конце, а па другом конце:

с жесткой (без поворота) заделкой

0,7l

с податливой (допускающей ограниченный поворот) заделкой

0,9l

для элементов с податливым шарнирным опиранием (допускающем ограниченное смещение опоры) на одном конце, а на другом конце:

с жесткой (без поворота) заделкой

1,5l

с податливой (с ограниченным поворотом) заделкой

2,0l

для элементов с несмещаемыми заделками на двух концах:

жесткими (без поворота)

0,5l

податливыми (с ограниченным поворотом)

0,8l

для элементов с ограниченно смещаемыми заделками на двух концах:

жесткими (без поворота)

0,8l

податливыми (с ограниченным поворотом)

1,2l

6.2.29 Расчет по прочности внецентренно сжатых сталефибробетонных элементов таврового и двутаврового сечений следует производить:

при ξR,

если х ≤ (рис. 6.6, а) - из условия:

(6.35)

высота сжатой зоны х сталефибробетона определяется из условия:

(6.36)

если х >  (рис. 6.6, б) - из условия:

(6.37)

где высота сжатой зоны х сталефибробетона определяется из условия:

(6.38)

а – при х ≤ ; б – при х > ; 1 – стержневая арматура

Рисунок 6.6 - Схема усилий и эпюра напряжений во внецентренно сжатых элементах двутаврового сечения при комбинированном армировании

при  > ξR по формуле:

(6.39)

где ес - эксцентриситет продольной силы относительно центра тяжести приведенного сечения, равный ес = М/N;

Nc - несущая способность центрально сжатого элемента, определяемая по формуле:

Nin - несущая способность сечения, в котором высота сжатой зоны сталефибробетона принимается равной xRh и определяется по формуле:

При х

(6.41)

При х >

(6.42)

еin - эксцентриситет продольной расчетной силы Nin, определяемый по формуле:

при х

(6.43)

где

yс - расстояние от центра тяжести приведенного сечения до растянутой или менее сжатой грани;

при х >

где

Влияние прогиба сталефибробетонного элемента учитывается путем умножения значения ес на коэффициент η вычисляемый согласно п. 6.2.26.

6.2.30 Расчет внецентренно сжатых сталефибробетонных элементов кольцевого сечения (рис. 6.4) должен производиться из условия:

(6.44)

где Rfbr = Rfb

Ar, rm - см. п. 6.2.22 настоящего СП.

При этом величина относительной площади сжатой зоны сталефибробетона определяется по формуле:

(6.45)

Если полученное из расчета по формуле (6.45) значение аr< 0,15, в условие (6.44) подставляется значение ar определяемое по формуле:

(6.46)

6.3 РАСЧЕТ ПО ПРОЧНОСТИ НОРМАЛЬНЫХ СЕЧЕНИЙ ПРЕДВАРИТЕЛЬНО НАПРЯЖЕННЫХ СТАЛЕФИБРОБЕТОННЫХ ЭЛЕМЕНТОВ В СТАДИИ ПРЕДВАРИТЕЛЬНОГО ОБЖАТИЯ

6.3.1 При расчете элемента в стадии предварительного обжатия усилие в напрягаемой арматуре вводится в расчет как внешняя продольная сила, равная

(6.47)

где  - площади сечения напрягаемой арматуры, расположенной, соответственно, в наиболее обжатой и растянутой (менее обжатой) зонах сечения;

 - предварительные напряжения с учетом первых потерь и коэффициента γsp = 1,1 в арматуре с площадью сечения .

6.3.2 Расчет по прочности элементов прямоугольного сечения в стадии предварительного обжатия производят из условия:

(6.48)

где еp - расстояние от точки приложения продольной силы Np с учетом влияния изгибающего момента М от внешней нагрузки, действующей в стадии изготовления (собственный вес элемента), до центра тяжести сечения ненапрягаемой арматуры растянутой или наименее сжатой (при полностью сжатом сечении элемента) от этих усилий (рис. 6.7), определяемое по формуле:

(6.47)

где еор - расстояние от точки приложения силы Nр до центра тяжести сечения элемента;

Rfb - расчетное сопротивление сталефибробетона сжатию, численно равного передаточной прочности сталефибробетона Rfbp. по линейной интерполяции (см. таблицу 5.2);

Rsc - расчетное сопротивление ненапрягаемой арматуры сжатию, принимаемое в стадии предварительного обжатия не более 330 МПа;

A's - площадь сечения ненапрягаемой арматуры, расположенной в наиболее сжатой зоне сечения элемента.

Высоту сжатой зоны сталефибробетона х вычисляют в зависимости от величины ξR, определяемой по формуле (6.13):

при  (рис. 6.7) из условия:

(6.50)

при по формуле:

(6.51)

6.3.3 Расчет по прочности элементов таврового и двутаврового сечений в стадии предварительного обжатия производят в зависимости от положения границы сжатой зоны:

а) если граница сжатой зоны проходит в полке (рис. 6.6, а), т.е. соблюдается условие:

(6.52)

расчет производят как для прямоугольного сечения шириной согласно п. 6.3.2;

б) если граница сжатой зоны проходит в ребре (рис. 6.6, б), т.е. условие (6.40) не соблюдается, расчет производят из условия:

(6.53)

Рисунок 6.7 - Схема усилий и эпюра напряжений в сечении, нормальном к продольной оси изгибаемого предварительно напряженного сталефибробетонного элемента при его расчете по прочности в стадии обжатия

Где

zs - расстояние от центра тяжести сечения элемента до растянутой (наименее сжатой) ненапрягаемой арматуры.

Высоту сжатой зоны х определяют по формулам:

При , (ξRп.6.2.14)

(6.54)

При R

(6.55)

Расчет центрально растянутых элементов

6.3.4 Расчет по прочности сечений центрально растянутых элементов следует производить только для случаев комбинированного армирования (см. п. 4.1.2), из условия:

(6.56)

где Nult - предельное значение продольной растягивающей силы, которое может быть воспринято элементом.

Значение силы Nult определяют по формуле:

(6.57)

где As,tot - площадь сечения всей продольной стержневой арматуры.

Расчет внецентренно растянутых элементов

6.3.5 Расчет по прочности прямоугольных нормальных сечений внецентренно растянутых сталефибробетонных элементов, только с комбинированным армированием, следует производить в зависимости от положения продольной силы N:

а) если продольная сила N приложена между равнодействующими усилий в стержневой арматуре S и S' (рис. 6.8) – из условий:

(6.58)

(6.59)

где Ne и Ne' - усилия от внешних нагрузок;

Mult и M'ult - предельные усилия, которые может воспринять сечение.

Усилия Мult и M'ult определяют по формулам:

(6.60)

(6.61)

Значение коэффициента условия работы m3 в формулах (6.60) и (6.61) принимается равным:

0,9 при μfv > 1 %;

0,8 при 0,8 < μfv < 1 %;

0,6 при 0,6 < μfv < 0,8 %;

0,3 при 0,3 < μfv < 0,6 %.

б) если продольная сила N приложена за пределами расстояния между равнодействующими усилий в арматуре S и S (рис. 6.8) - из условия (6.58), определяя предельный момент Мull по формуле:

(6.62)

при этом высоту сжатой зоны х определяют из условия

(6.63)

Если полученное из расчета (6.63) значение х > ξRh, то в формулу (6.62) подставляют х = ξRh, где ξR определяют согласно п. 6.2.15.

6.4 РАСЧЕТ ПО ПРОЧНОСТИ СТАЛЕФИБРОБЕТОННЫХ ЭЛЕМЕНТОВ ПРИ ДЕЙСТВИИ ПОПЕРЕЧНЫХ СИЛ

Общие положения

6.4.1 Расчет по прочности сталефибробетонных элементов при действии поперечных сил производят на основе модели наклонных сечений.

При расчете по модели наклонных сечений должны быть обеспечены прочность элемента по полосе между наклонными сечениями и наклонному сечению на действие поперечных сил, а также прочность по наклонному сечению на действие момента.

a – между равнодействующими усилий в арматуре S и S’;б- за пределами расстояния между равнодействующими усилий в арматуру S и S’; 1 – стержневая арматура

Рисунок 6.8 - Схема усилий и эпюра напряжений в сечении, нормальном к продольной оси внецентренно растянутого сталефибробетонного элемента, при его расчете по прочности, при приложении продольной силы N

Прочность по наклонной полосе характеризуется максимальным значением поперечной силы, которое может быть воспринято наклонной полосой, находящейся под воздействием сжимающих усилий вдоль полосы и растягивающих усилий от поперечной арматуры, пересекающей наклонную полосу. При этом прочность сталефибробетона определяют по сопротивлению сталефибробетона осевому сжатию с учетом влияния сложного напряженного состояния в наклонной полосе.

Расчет по наклонному сечению на действие поперечных сил производят на основе уравнения равновесия внешних и внутренних поперечных сил, действующих в наклонном сечении с длиной проекции аq на продольную ось элемента. Внутренние поперечные силы включают поперечную силу, воспринимаемую сталефибробетоном в наклонном сечении, и поперечную силу, воспринимаемую пересекающей наклонное сечение поперечной арматурой. При этом поперечные силы, воспринимаемые сталефибробетоном и поперечной арматурой, определяют по сопротивлениям сталефибробетона и поперечной арматуры растяжению с учетом длины проекции аq наклонного сечения.

Расчет по наклонному сечению на действие момента производят на основе уравнения равновесия моментов от внешних и внутренних сил, действующих в наклонном сечении с длиной проекции аq на продольную ось элемента. Моменты от внутренних сил включают момент, воспринимаемый сталефибробетоном, момент, воспринимаемый пересекающей наклонное сечение продольной растянутой арматурой, момент, воспринимаемый пересекающей наклонное сечение поперечной арматурой. При этом моменты, воспринимаемые сталефибробетоном, продольной и поперечной арматурой, определяют по сопротивлениям продольной и поперечной арматуры растяжению с учетом длины проекции аq наклонного сечения.

Расчет сталефибробетонных элементов по полосе между наклонными сечениями

6.4.2 Расчет изгибаемых элементов по сталефибробетонной полосе между наклонными сечениями производят из условия:

(6.64)

где Q - поперечная сила в нормальном сечении элемента;

φb1 - коэффициент, определяемый по формуле:

(6.65)

где значения Rb принимаются в МПа,

φw1- коэффициент, определяемый по формуле:

(6.66)

где

μfaw = μfvk2n,w

(6.67)

Значения kn,w принимаются по п. 6.2.13.

Значение правой части в формуле (6.64) принимают не более 1,3.

Расчет сталефибробетонных элементов по наклонным сечениям на действие поперечных сил

6.4.3 Расчет изгибаемых сталефибробетонных элементов по наклонному сечению при только фибровом армировании (рис. 6.9, а) производят из условия:

(6.68)

где Q - поперечная сила в наклонном сечении с длиной проекции аq на продольную ось элемента, определяемая от всех внешних сил, расположенных по одну сторону от рассматриваемого наклонного сечения, при этом учитывают наиболее опасное загружение в пределах наклонного сечения;

Qfb - поперечная сила, воспринимаемая сталефибробетоном сжатой зоны в наклонном сечении;

Qfbt - поперечная сила, воспринимаемая сталефибробетоном растянутой зоны в наклонном сечении.

Значение поперечной силы Qfb для изгибаемых и внецентренно сжатых элементов определяется по формуле:

(6.69)

где Rfbt - определяется по формулам (6.5) и (6.7) с заменой в них коэффициента kоr на kn,w (см. п. 6.2.13), определяемый по таблице 6.2 настоящего СП;

b и h - соответственно ширина и высота элемента в рассчитываемом сечении;

αq - проекция наклонной трещины; угол наклона трещины принимается равным 45°;

β - угол наклона вертикальной оси элемента к вертикали.

а - при фибровом армировании; б - при комбинированном армировании

Рисунок 6.9 - Схема усилий при расчете сталефибробетонных элементов по наклонному сечению на действие поперечных сил

Значение поперечной силы Qfbt определяется по формуле:

(6.70)

где

(6.71)

6.4.4 Расчет изгибаемых сталефибробетонных элементов по наклонному сечению при комбинированном армировании (рис. 6.9, б) производят из условия:

(6.72)

где Q, Qfb и Qfbt - принимаются по п.6.4.3;

Qsw - поперечная сила, воспринимаемая поперечной арматурой в наклонном сечении. Поперечную силу Qsw определяют по формуле:

(6.73)

где φsw - коэффициент, принимаемый равным 0,75;

qsw - усилие в поперечной арматуре на единицу длины элемента, определяемое по формуле:

(6.74)

аq - принимается по п.6.4.3.

Расчет сталефибробетонных элементов по наклонным сечениям на действие моментов

6.4.5 Расчет сталефибробетонных элементов по наклонным сечениям на действие моментов (рис. 6.10) производят из условия:

(6.75)

где М - момент в наклонном сечении с длиной проекции аq на продольную ось элемента, определяемый от всех внешних сил, расположенных по одну сторону от рассматриваемого наклонного сечения, относительно конца наклонного сечения (точка 0), противоположного концу, у которого располагается проверяемая продольная арматура, испытывающая растяжение от момента в наклонном сечении; при этом учитывают наиболее опасное загружение в пределах наклонного сечения;

Ms - момент, воспринимаемый продольной стержневой арматурой, пересекающей наклонное сечение относительно противоположного конца наклонного сечения (точка 0);

Msw - момент, воспринимаемый поперечной стержневой арматурой, пересекающей наклонное сечение относительно противоположного конца наклонного сечения (точка 0);

Мfbt - момент, воспринимаемый сталефибробетоном, относительно противоположного конца наклонного сечения (точка 0).

Момент Ms определяют по формуле:

(6.76)

где N - усилие в продольной растянутой арматуре, принимаемое равным RsAs, a в зоне анкеровки - определяемое согласно пп. 8.3.22 - 8.3.32;

zs - плечо внутренней пары сил, допускается принимать zs = 0,9h.

Момент Msw для поперечной арматуры, нормальной к продольной оси элемента, опреде­ляют по формуле:

(6.77)

где Qsw - усилие в поперечной арматуре, принимаемое равным qswaq;

qsw - определяют по формуле (6.74), а aq принимают в пределах от 1,0h до 2,0h. Момент Mfbt определяют по формуле:

(6.78)

где Qfbt - определяется по п.6.4.3.

Рисунок 6.10 - Схема усилий при расчете сталефибробетонных элементов по наклонному сечению на действие моментов

Расчет производят для наклонных сечений, расположенных по длине элемента на его концевых участках и в местах обрыва продольной арматуры, при наиболее опасной длине проекции наклонного сечения aq принимаемой в указанных выше пределах.

Допускается производить расчет наклонных сечений, принимая в условии (6.75) момент М в наклонном сечении при длине проекции aq на продольную ось элемента равным 2,0h, а момент Msw - равным 0,5qswh2.

При отсутствии поперечной арматуры расчет наклонных сечений производят из условия (6.75), принимая момент М наклонном сечении при длине проекции aq на продольную ось элемента равным 2,0h, а момент Msw - равным нулю.

6.5 РАСЧЕТ СТАЛЕФИБРОБЕТОННЫХ ЭЛЕМЕНТОВ НА МЕСТНОЕ СЖАТИЕ

6.5.1 Расчет сталефибробетонных элементов на местное сжатие (смятие) производят при действии сжимающей силы, приложенной на ограниченной площади нормально к поверхности сталефибробетонного элемента. При этом учитывают повышенное сопротивление сжатию сталефибробетона в пределах грузовой площади (площади смятия) за счет объемного напряженного состояния сталефибробетона под грузовой площадью, зависящее от расположения грузовой площади на поверхности элемента.

При наличии сетчатого армирования в зоне местного сжатия учитывают дополнительное повышение сопротивления сжатию сталефибробетона под грузовой площадью за счет сопротивления стержневой арматуры.

Расчет элементов на местное сжатие при фибровом армировании (см. п. 4.1.2) производят согласно п. 6.5.2, а при комбинированном армировании - согласно п. 6.5.3.

6.5.2 Расчет элементов на местное сжатие при фибровом армировании (рис. 6.11) производят из условия:

(6.79)

где N - местная сжимающая сила от внешней нагрузки;

Аfb,loc - площадь приложения сжимающей силы (площадь смятия);

Rfb,loc  расчетное сопротивление сталефибробетона сжатию при местном действии сжимающей силы;

ψ - коэффициент, принимаемый равным 1,0 при равномерном и 0,75 при неравномерном распределении местной нагрузки по площади смятия.

Значение Rfb,1ос определяют по формуле:

(6.80)

где φfb - коэффициент, определяемый по формуле:

(6.81)

но принимаемый не более 2,5 и не менее 1,0.

В формуле (6.81):

Аfb,mах - максимальная расчетная площадь, устанавливаемая по следующим правилам:

центры тяжести площадей Аfb,1ос и Аfb,max совпадают;

границы расчетной площади Аfb,max каждой стороны площади Аfb,1ос на расстоянии, равном соответствующему размеру этих сторон (рис. 6.11).

6.5.3 Расчет элементов на местное сжатие при наличии сетчатого армирования (косвенной арматуры) в виде сварных сеток производят из условия:

(6.82)

где Rbs,loc - приведенное с учетом сетчатого армирования в зоне местного сжатия расчетное сопротивление сталефибробетона сжатию, определяемое по формуле:

(6.83)

Здесь φs,xy - коэффициент, определяемый по формуле:

(6.84)

Afb,loc,ef  - заключенная внутри контура сеток, считая по их крайним стержням и принимаемая в формуле (6.84) не более Аfb,max;

Rs,xy - расчетное сопротивление растяжению стержневой арматуры;

μs,xy - коэффициент сетчатого армирования, определяемый по формуле:

(6.85)

nх, Asx, lx - число стержней, площадь сечения и длина стержня сетки, считая в осях крайних стержней, в направлении Х;

ny, Asy, ly - то же, в направлении Y;

S - шаг сеток.

а a- вдали от краев элемента; б - по всей ширине элемента; в - у края (торца) элемента по всей его ширине; г - на углу элемента; д - у одного края элемента; е - вблизи одного края элемента; 1 - элемент, на который действует местная нагрузка; 2 - площадь смятия Afb,Ioc; 3 - максимальная расчетная площадь Afb,max; 4 - центр тяжести площадей Afb,Ioc и Afb,max; 5 - минимальная зона армирования сетками, при которой косвенное армирование учитывается в расчете

Рисунок 6.11 - Схемы для расчета элементов на местное сжатие при расположении местной нагрузки

Значения Rfb,loc, Afb,loc, Ψ и N принимают согласно п. 6.5.2.

Значение местной сжимающей силы, воспринимаемое элементом с сетчатым армированием (правая часть условия 6.82), принимают не более удвоенного значения местной сжимающей силы, воспринимаемого элементом без сетчатого армирования (правая часть условия 6.79).

Сетчатое армирование должно отвечать конструктивным требованиям, приведенным в разделе 8.

6.6 РАСЧЕТ СТАЛЕФИБРОБЕТОННЫХ ЭЛЕМЕНТОВ НА ПРОДАВЛИВАНИЕ

Общие положения

6.6.1 Расчет на продавливание производят для плоских сталефибробетонных элементов (плит) при действии на них (нормально к плоскости элемента) местных, концентрированно приложенных усилий - сосредоточенных силы и изгибающего момента.

При расчете на продавливание рассматривают расчетное поперечное сечение, расположенное вокруг зоны передачи усилий на элемент на расстоянии h/2 нормально к его продольной оси, по поверхности которого действуют касательные усилия от сосредоточенных силы и изгибающего момента.

Действующие касательные усилия по площади расчетного поперечного сечения должны быть восприняты сталефибробетоном с сопротивлением осевому растяжению Rfbt и расположенной по обе стороны от расчетного поперечного сечения на расстоянии h/2 поперечной стержневой арматурой с сопротивлением растяжению Rsw.

При действии сосредоточенной силы касательные усилия, воспринимаемые сталефибробетоном и стержневой арматурой, принимают равномерно распределенными по всей площади расчетного поперечного сечения. При действии изгибающего момента касательные усилия, воспринимаемые сталефибробетоном и поперечной арматурой, принимают с учетом неупругой работы сталефибробетона и стержневой арматуры. Допускается касательные усилия, воспринимаемые сталефибробетоном и стержневой арматурой, принимать линейно изменяющимися по длине расчетного поперечного сечения в направлении действия момента с максимальными касательными усилиями противоположного знака у краев расчетного поперечного сечения в этом направлении.

Расчет на продавливание при действии сосредоточенной силы при фибровом армировании производят согласно п. 6.6.2, при действии сосредоточенной силы и комбинированном армировании - согласно п. 6.6.3, при действии сосредоточенных силы, изгибающего момента и фибровом армировании - согласно п. 6.6.4 и при действии сосредоточенных силы, изгибающего момента и комбинированном армировании - согласно п. 6.6.5.

Расчетный контур поперечного сечения принимают:

при расположении площадки передачи нагрузки внутри плоского элемента - замкнутым и расположенным вокруг площадки передачи нагрузки (рис. 6.12, б, г);

при расположении площадки передачи нагрузки у края или угла плоского элемента - в виде двух вариантов: замкнутым и расположенным вокруг площадки передачи нагрузки и незамкнутым, следующим от краев плоского элемента (рис. 6.12,, а, в), в этом случае учитывают наименьшую несущую способность при двух вариантах расположения расчетного контура поперечного сечения.

При действии момента Мlос в месте приложения сосредоточенной нагрузки половину этого момента учитывают при расчете на продавливание, а другую половину учитывают при расчете по нормальным сечениям по ширине сечения, включающим ширину площадки передачи нагрузки и высоту сечения плоского элемента по обе стороны от площадки передачи нагрузки.

При действии сосредоточенных моментов и силы в условиях прочности соотношения между действующими сосредоточенными моментами M, учитываемыми при продавливании, и предельными Mult принимают не более соотношения между действующим сосредоточенным усилием F и предельным Fult.

Расчет сталефибробетонных элементов на продавливание при действии сосредоточенной силы

6.6.2 Расчет элементов на продавливание при действии сосредоточенной силы и фибровом армировании производят из условия:

(6.86)

где F - сосредоточенная сила от внешней нагрузки;

Ffb,ult - предельное усилие, воспринимаемое сталефибробетоном.

Усилие Ffb,ult определяют по формуле:

(6.87)

где Afb - площадь расчетного поперечного сечения, расположенного на расстоянии 0,5h от границы площади приложения сосредоточенной силы F с рабочей высотой сечения h (рис. 6.13).

Площадь Аfb определяют по формуле:

(6.88)

где u - периметр контура расчетного поперечного сечения;

h - рабочая высота сечения.

6.6.3 Расчет сталефибробетонных элементов при комбинированном армировании на продавливание при действии сосредоточенной силы (рис. 6.14) производят из условия:

(6.89)

где Fsw,ult - предельное усилие, воспринимаемое поперечной арматурой при продавливании;

Ffb,ult - предельное усилие, воспринимаемое сталефибробетоном, определяемое согласно п. 6.6.2. Усилие Fsw,ulr воспринимаемое поперечной арматурой, нормальной к продольной оси элемента и расположенной равномерно вдоль контура расчетного поперечного сечения, определяют по формуле:

(6.90)

где u - периметр контура расчетного поперечного сечения, определяемый согласно п. 6.6.2;

qsw - усилие в поперечной арматуре на единицу длины контура расчетного поперечного сечения, расположенной в пределах расстояния 0,5h по обе стороны от контура расчетного сечения, определяемое по формуле:

(6.91)

где Asw - площадь сечения поперечной арматуры с шагом sw, расположенной в пределах расстояния 0,5h по обе стороны контура расчетного поперечного сечения по его периметру.

а, в - площадка приложения нагрузки у края плоского элемента; б - то же, внутри плоского элемента; г - при крестообразном расположении поперечной арматуры; 1 - площадь приложения нагрузки; 2 - расчетный контур поперечного сечения; 2' - второй вариант расположения расчетного контура; 3 -- центр тяжести расчетного контура (место пересечения осей X1 и Y1); 4 - центр тяжести площадки приложения нагрузки (место пересечения осей X и Y); 5 - поперечная арматура; 6 - контур расчетного поперечного сечения без учета в расчете поперечной арматуры; 7 - группа (край) плоского элемента

Рисунок 6.12 - Схема расчетных контуров поперечного сечения при продавливании

При расположении поперечной арматуры не равномерно по контуру расчетного поперечного сечения, а сосредоточенно у осей площадки передачи нагрузки (крестообразное расположение поперечной арматуры) периметр контура и для поперечной арматуры принимают по фактическим длинам участков расположения поперечной арматуры Lsw,x и L по расчетному контуру продавливания (рис. 6.12, г).

Значение Ffb,ult + Fsw,ult принимают не более 2 Ffb,ult. Поперечную арматуру учитывают в расчете при Fsw,ult не менее 0,25 Ffb,ult.

За границей расположения поперечной арматуры расчет на продавливание производят согласно п. 6.6.2, рассматривая контур расчетного поперечного сечения на расстоянии 0,5h от границы расположения поперечной арматуры (рис. 6.14). При сосредоточенном расположении поперечной арматуры по осям площадки передачи нагрузки расчетный контур поперечного сечения бетона принимают по диагональным линиям, следующим от края расположения поперечной арматуры (рис. 6.12,, г).

1 - расчетное поперечное сечение; 2 - контур расчетного поперечного сечения; 3 - контур площадки приложения нагрузки

Рисунок 6.13 - Схема для расчета сталефибробетонных элементов без поперечной арматуры на продавливание

Поперечная арматура должна удовлетворять конструктивным требованиям, приведенным в разделе 8.

Расчет сталефибробетонных элементов на продавливание при действии сосредоточенных силы и изгибающего момента

6.6.4 Расчет сталефибробетонных элементов на продавливание при совместном действии сосредоточенных силы и изгибающего момента, при фибровом армировании (рис. 6.13) производят из условия:

(6.92)

где F - сосредоточенная сила от внешней нагрузки;

М - сосредоточенный изгибающий момент от внешней нагрузки, учитываемый при расчете на продавливание (п. 6.6.1);

Ffb,uit и Мfb,ult - предельные сосредоточенные сила и изгибающий момент, которые могут быть восприняты сталефибробетоном в расчетном поперечном сечении при их раздельном действии.

В сталефибробетонном каркасе зданий с плоскими перекрытиями сосредоточенный изгибающий момент Мlос равен суммарному изгибающему моменту в сечениях верхней и нижней колонн, примыкающих к перекрытию в рассматриваемом узле.

Предельную силу Ffb,ult определяют согласно п. 6.6.2.

Предельный изгибающий момент Мfb,ult определяют по формуле:

(6.93)

где Wfb - момент сопротивления расчетного контура поперечного сечения, определяемый согласно п. 6.6.6.

При действии изгибающих моментов в двух взаимно перпендикулярных плоскостях расчет производят из условия:

(6.94)

где F, Мх и Мy - сосредоточенные сила и изгибающие моменты в направлениях осей X и Y, учитываемые при расчете на продавливание (п. 6.6.1), от внешней нагрузки;

Ffb,ult, Mfbx,ult, Mfby,ult  - предельные сосредоточенные сила и изгибающие моменты в направлениях осей Хи Y. которые могут быть восприняты сталефибробетоном в расчетном поперечном сечение при их раздельном действии.

Усилие Ffb,ult определяют согласно п. 6.6.2. Усилия Mfbx,ult, Mfby,ult  определяют согласно указаниям, приведенным выше, при действии момента соответственно в плоскости оси Х и в плоскости оси Y.

При расположении сосредоточенной силы внецентренно относительно центра тяжести кон тура расчетного поперечного сечения значение изгибающих сосредоточенных моментов от внешней нагрузки определяют с учетом дополнительного момента от внецентренного приложения сосредоточенной силы относительно центра тяжести контура расчетного поперечного сечения.

1 - расчетное поперечное сечение; 2 - контур расчетного поперечного сечения; 3 - границы зоны, в пределах которых в расчете учитывается поперечная арматура; 4 - контур расчетного поперечного сечения без учета в расчете поперечной арматуры; 5 - контур площадки приложения нагрузки

Рисунок 6.14 - Схема для расчета сталефибробетонных плит с вертикальной равномерно распределенной поперечной арматурой на продавливание

6.6.5 Расчет сталефибробетонных элементов на продавливание при действии сосредоточенных силы и изгибающего момента при комбинированном армировании (рис. 6.14) производят из условия:

(6.95)

Где F и M - по п.6.6.4;

Ffb,ult, Mfb,ult - предельные сосредоточенные сила и изгибающий момент, которые могут быть восприняты сталефибробетоном в расчетном поперечном сечении при их раздельном действии;

Fsw,uit и Msw,ult - предельные сосредоточенные сила и изгибающий момент, которые могут быть восприняты поперечной арматурой при их раздельном действии.

Усилия Ffb,ult, Mfbx,ult и Fsw,ult определяют согласно пп. 6.6.3 и п.6.6.4.

Усилие Msw,ult воспринимаемое поперечной арматурой, нормальной к плоскости элемента и расположенной равномерно вдоль контура расчетного сечения, определяют по формуле:

(6.96)

где qsw и Wsw - определяют согласно пп. 6.6.3 и 6.6.7.

При действии сосредоточенных изгибающих моментов в двух взаимно перпендикулярных плоскостях расчет производят из условия

(6.97)

где F, Мх и Мy - согласно п.6.6.4;

Ffb,ult, Mfbx,ult, Mfby,ult - предельные сосредоточенные сила и изгибающие моменты в направлениях осей X и У, которые могут быть восприняты сталефибробетоном в расчетном поперечном сечении при их раздельном действии;

Fsw,ult, Mswx,ult, Mswy,ult - предельные сосредоточенные сила и изгибающие моменты в направлениях осей X и Y, которые могут быть восприняты поперечной арматурой при их раздельном действии.

Усилия Ffb,ult, Mfbx,ult, Mfby,ult и Fsw,ult  определяют согласно п. 6.6.3 и п.6.6.4. Усилия Mswx,ult и Mswy,ult определяют согласно рекомендациям, приведенным выше, при действии изгибающего момента соответственно в направлении оси X и оси Y.

Значения  в условиях (6.95) и (6.97) принимают не более 2Ffbx,ult, 2Mfb,ult, 2Mfbx,ult  , 2Mfby,ult    соответственно.

Поперечная арматура должна отвечать конструктивным требованиям, приведенным в разделе 8.

6.6.6 В общем случае значения момента сопротивления расчетного контура сталефибробетона при продавливании Wfbx(y) в направлениях взаимно перпендикулярных осей Х и Y определяют по формуле:

(6.98)

где Ifbx(y) - момент инерции расчетного контура относительно осей Х1 и Y1 проходящих через его центр тяжести (рис. 6.12);

у(х)mах - максимальное расстояние от расчетного контура до его центра тяжести.

Значение момента инерции Ifbx(y) определяют как сумму моментов инерции Ifbx(yi) отдельных участков расчетного контура поперечного сечения относительно центральных осей, проходящих через центр тяжести расчетного контура.

Положение центра тяжести расчетного контура относительно выбранной оси определяют по формуле:

(6.99)

где Li. - длина отдельного участка расчетного контура;

xi(yi)0 - расстояние от центров тяжести отдельных участков расчетного контура до выбранных осей.

Для замкнутого прямоугольного контура (рис. 6.12, б, г) с длиной участков Lx и Ly в направлении осей X и Y центр тяжести расположен в месте пересечения осей симметрии контура.

Значение момента инерции расчетного контура определяют по формуле:

(6.100)

где Ifbx(y)1,2 - момент инерции участков контура длиной Lx и Ly относительно осей Y1 и X2 совпадающих с осями Y и X.

Значения Ifbx(y)1,2 определяют по формулам (6.101) и (6.102), принимая условно ширину каждого участка контура длиной Lx и Ly, равной единице:

(6.101)

(6.102)

Значения Wfbx(y) определяют по формуле:

(6.103)

или

(6.104)

Для незамкнутого расчетного контура, состоящего из трех прямолинейных участков длиной Lx и Ly (рис. 6.12, в), например, при расположении площадки передачи нагрузки (колонны) у края плоского элемента (плиты перекрытия), положение центра тяжести расчетного контура в направлении оси X определяют по формуле:

(6.105)

а в направлении оси Y- центр тяжести расположен по оси симметрии расчетного контура.

Значения момента инерции расчетного контура относительно центральных осей Y1 и Х1 определяют по формуле (6.100).

Значения Ifbx1 и Ifbx2 определяют по формулам:

(6.106)

(6.107)

Значения Ifby1 и Ifby2 определяют по формулам:

(6.108)

(6.109)

Значения Wfbx и Wfby определяют по формулам:

(6.110)

(6.111)

При расчете принимают наименьшие значения моментов сопротивления Wfbx.

Для незамкнутого расчетного контура, состоящего из двух прямолинейных участков длиной Lx и Ly (рис. 6.12, a), например, при расположении площадки передачи нагрузки (колонны) вблизи угла плоского элемента (плиты перекрытия), положение центра тяжести расчетного контура в направлении осей Х и Y определяют по формуле:

(6.112)

Значения момента инерции расчетного контура относительно центральных осей Y1 и Х1 определяют по формулам (6.106) и (6.108).

Значения Ifbx(y)1 и Ifbx(y)2 определяют по формулам:

(6.113)

(6.114)

(6.115)

(6.116)

Значения Wfbx и Wfby, определяют по формулам:

(6.117)

(6.118)

При расчете принимают наименьшие значения моментов сопротивления Wfbx и Wfby.

6.6.7 Значения моментов сопротивления поперечной арматуры при продавливании Wsw,x{y) в том случае, когда поперечная арматура расположена равномерно вдоль расчетного контура продавливания в пределах зоны, границы которой отстоят на расстоянии - в каждую сторону от контура продавливания сталефибробетона (рис. 6.14), принимают равными соответствующим значениям Wfbx и Wfby.

При расположении поперечной арматуры в плоском элементе сосредоточенно по осям грузовой площадки, например, по оси колонн (крестообразное расположение поперечной арматуры в перекрытии) моменты сопротивления поперечной арматуры определяют по тем же правилам, что и моменты сопротивления сталефибробетона, принимая соответствующую фактическую длину ограниченного участка расположения поперечной арматуры по расчетному контуру продавливания Lswx и Lswy (рис. 6.12, г).

7 РАСЧЕТ ЭЛЕМЕНТОВ СТАЛЕФИБРОБЕТОННЫХ КОНСТРУКЦИЙ ПО ПРЕДЕЛЬНЫМ СОСТОЯНИЯМ ВТОРОЙ ГРУППЫ

7.1 ОБЩИЕ ПОЛОЖЕНИЯ

7.1.1 Расчеты по предельным состояниям второй группы включают:

- расчет по раскрытию трещин;

- расчет по раскрытию трещин нормальных и наклонных к продольной оси элемента;

- расчет по деформациям.

Расчет по закрытию трещин для сталефибробетонных конструкций не производится.

7.1.2 Расчет по образованию трещин производят для проверки необходимости расчета по раскрытию трещин, а также для проверки необходимости учета трещин при расчете по деформациям.

7.1.3 При расчете по предельным состояниям второй группы нагрузки принимают с коэффициентом надежности по нагрузке γf= 1,0.

7.2 РАСЧЕТ СТАЛЕФИБРОБЕТОННЫХ ЭЛЕМЕНТОВ ПО РАСКРЫТИЮ ТРЕЩИН

Общие положения

7.2.1 Расчет сталефибробетонных элементов по раскрытию трещин производят в тех случаях, когда соблюдается условие:

(7.1)

где М - изгибающий момент от внешней нагрузки относительно оси, нормальной к плоскости действия момента и проходящей через центр тяжести приведенного поперечного сечения элемента;

Мсrс - изгибающий момент, воспринимаемый нормальным сечением элемента при образовании трещин, определяемый согласно п. 7.2.2. Для центрально растянутых элементов ширину раскрытия трещин определяют при соблюдении условия:

(7.2)

где N - продольное растягивающее усилие от внешней нагрузки;

Ncrc - продольное растягивающее усилие, воспринимаемое элементом при образовании трещин, определяемое согласно п. 7.2.6.

7.2.2 Расчет сталефибробетонных элементов производят по непродолжительному и продолжительному раскрытию трещин.

Непродолжительное раскрытие трещин определяют от совместного действия постоянных и временных (длительных и кратковременных) нагрузок, продолжительное - только от постоянных и временных длительных нагрузок (п. 4.2.4).

7.2.3 Расчет по раскрытию трещин производят из условия:

(7.3)

где асrс - ширина раскрытия трещин от действия внешней нагрузки, определяемая согласно пп. 7.2.4, 7.2.7 и 7.2.10;

acrc,ult - предельно допустимая ширина раскрытия трещин. Значения acrc,ult принимают по таблице 4.1.

7.2.4 Ширину раскрытия трещин асrс определяют исходя из взаимных смешений растянутой арматуры и бетона по обе стороны трещины на уровне оси арматуры и принимают:

при продолжительном раскрытии

(7.4)

при непродолжительном раскрытии

(7.5)

где асrс,1 - ширина раскрытия трещин от продолжительного действия постоянных и временных длительных нагрузок;

aсrс,2  - ширина раскрытия трещин от непродолжительного действия постоянных и временных (длительных и кратковременных) нагрузок;

acrc,3 - ширина раскрытия трещин от непродолжительного действия постоянных и временных длительных нагрузок.

Значения асrс,1, асrс,2 и асrс,3 определяют с учетом влияния продолжительности действия соответствующей нагрузки.

Определение момента образования трещин, нормальных к продольной оси элемента

7.2.5 Момент трещинообразования Мсrс для сталефибробетонных элементов определяют по формуле:

для элементов без предварительного напряжения арматуры:

(7.6)

для предварительно напряженных элементов:

(7.7)

где Wpt - момент сопротивления для крайнего растянутого волокна сечения с учетом неупругих деформаций растянутого бетона, определяется по формуле:

(7.8)

где Ibc, Ifc1 и Iftl - моменты инерции сжатой зоны бетона, площадей сечения фибровой или фибровой и стержневой арматуры, расположенной соответственно в сжатой и растянутой зонах сечения относительно нулевой линии;

Sbt - статический момент площади сечения растянутой зоны бетона относительно нулевой линии;

αf - отношение модулей упругости фибровой арматуры Ef и бетона Еb.

Положение нулевой линии определяется по формуле:

(7.9)

где Sbc, Sfcl и Sft1 - статические моменты площадей сечения сжатой зоны бетона, площадей сечения фибровой или фибровой и стержневой арматуры, расположенной в сжатой и растянутой зонах сечения относительно нулевой линии;

Аbt - площадь сечения растянутого бетона;

h - высота сечения элемента.

Значение Мp в формуле (7.7) определяется по формуле:

(7.10)

где Мp - момент усилия Np относительно оси, параллельной нулевой линии и проходящей через ядровую точку, наиболее удаленную от растянутой зоны, трещиностойкость которой нужно определить.

В формуле (7.7) знак «+» следует принимать, когда направление моментов Мсrс и Мр противоположны, знак «-» - когда направления совпадают.

Значения Ifc1, Ift1, Sfc1, и Sft1 вычисляются с коэффициентами фибрового армирования по площади , определяемыми по формулам:

(7.11)

(7.12)

(7.13)

Коэффициенты knf, korf и korw, учитывающие ориентацию фибр в полках и ребре, для тавровых и двутавровых сечений принимаются по табл. 6.1 и 6.2.

Значение коэффициента kan определяется по формуле:

(7.14)

Здесь

где lf,an - длина заделки фибры в бетоне, определяется согласно п. 6.2.6;

lf - длина фибры;

M и Мсrс - изгибающие моменты (п. 7.2.1);

Мlim - расчетный изгибающий момент (из расчета по предельным состояниям первой группы).

7.2.6 Усилие Ncrc при образовании трещин в центрально растянутых элементах определяют по формуле:

(7.15)

здесь Ared - площадь приведенного поперечного сечения элемента, определяемая по формуле:

(7.16)

где Аb, As, A's - площадь поперечного сечения соответственно бетона, растянутой и сжатой стержневой арматуры;

α - коэффициент приведения арматуры к бетону, определяемый по формуле:

Расчет по раскрытию трещин, нормальных к продольной оси элемента

7.2.7 Ширину раскрытия трещин асrс (мм), нормальных к продольной оси элемента, при комбинированном армировании следует определять по формуле:

(7.17)

где δ - коэффициент, принимаемый равным для элементов:

изгибаемых и внецентренно сжатых

1,0

растянутых

1,2

φ1 - коэффициент, принимаемый равным при учете:

кратковременных нагрузок и непродолжительного действия постоянных и длительных нагрузок

1,00

многократно повторяющейся нагрузки, а также продолжительного действия постоянных и длительных нагрузок для конструкций из бетона:

тяжелого

1,50

мелкозернистого группы А

1,75

ηf1 - коэффициент, учитывающий влияние фибрового армирования, определяемый по формуле:

(7.18)

Значение коэффициента m определяется по формуле:

(7.19)

где А - площадь поперечного сечения элемента, мм2, трещиностойкость которого определяется;

ηred - приведенный коэффициент армирования, определяемый по формуле:

(7.20)

где ηf2 - коэффициент, принимаемый для фибры:

резанной из листа марки FIBREX, выпускаемой по ТУ 0991-123-53832025

 

равным

1,2;

фрезерованной из слябов, выпускаемой по ТУ 0882-193-46854090

 

равным

1,0;

рубленой из стальной проволоки, выпускаемой по ТУ 1211-205-46854090,
равным:

 

для фибры марки ХЕНДИКС HENDIX

1,0;

для фибры марки ФИБЕКСИВАХ 1/50

1.0;

для фибры марки ФИБЕКСИВАХ 1,3/50

1,0;

для фибры марки ТВИНФЛЭТ TWINFLAT

1,2;

для фибры марки МИКСАРМ MIXARM

1,3;

μfaw - определяется по формуле (7.13) п. 7.2.5;

ns - коэффициент, принимаемый для стержневой арматуры:

горячекатаной периодического профиля

1,0;

горячекатаной гладкой

1,3;

холоднотянутой периодического профиля и канатов

1,2;

холоднотянутой гладкой

1,4;

σf - условные напряжения в крайнем растянутом волокне или приращение напряжений от действия внешней нагрузки (при наличии предварительного напряжения), определяемое по п. 5.4.5 настоящего СП;

Еf - модуль упругости стальной фибровой арматуры, см. п. 5.2.5;

μred - приведенный коэффициент армирования по площади сечения, определяемый по формуле:

но не более 0,02;

df,red - приведенный диаметр используемой фибры, определяется согласно п. 6.2.6;

dred - приведенный диаметр фибровой и стержневой арматуры, определяемой по формуле:

(7.21)

7.2.8 Напряжение σf следует определять:

в центрально растянутых элементах по формуле:

(7.22)

где Р - усилие предварительного напряжения с учетом всех потерь;

Ab - площадь сечения сталефибробетона:

μfa - коэффициент приведенного армирования по площади, определяемый по формуле:

где μfv - процент фибрового армирования по объему согласно п. 5.2.2;

kor - коэффициент, принимаемый по табл. 6.1;

для изгибаемых, внецентренно сжатых или внецентренно растянутых элементов - по правилам строительной механики как для упругого тела.

В расчете σf должно рассматриваться сечение, приведенное к эквивалентному стальному сечению (рис. 7.1) с единой упругой характеристикой. В растянутой зоне к стальному сечению приводят только фибровую и стержневую арматуру с эквивалентной площадью сечения, а в сжатой зоне - арматуру и бетон с эквивалентными площадями сечения, приведенными к фибровой арматуре при

Значение σf определяется:

для изгибаемых элементов по формуле:

(7.23)

где еcp - эксцентриситет приложения силы Р относительно центра тяжести сечения элемента;

r - расстояние от ядровой точки, ближайшей к сжатой грани сечения;

для внецентренно сжатых и внецентренно растянутых элементов по формуле:

(7.24)

где Ntot - равнодействующая продольной силы N и усилия предварительного обжатия Р;

ес,tot - эксцентриситет усилия Ntot относительно центра тяжести сечения.

В формулах (7.23) и (7.24):

Wf1 - момент сопротивления, приведенного к стальному сечению, определяется по формуле:

(7.25)

где If1 - момент инерции сечения, приведенного к эквивалентному стальному сечению, относительно его центра тяжести;

yс - расстояние от центра тяжести сечения, приведенного к стальному, до растянутой грани сечения.

В формуле (7.24) знак «минус» принимается при внецентренном сжатии, а знак «плюс» - при внецентренном растяжении.

7.2.9 Для элементов, к трещиностойкости которых предъявляются требования второй категории, ширина непродолжительного раскрытия трещин определяется как сумма ширины раскрытия от продолжительного действия постоянных и длительных нагрузок и приращения ширины раскрытия от действия кратковременной нагрузки. Ширина продолжительного раскрытия трещин зависит от продолжительности действия постоянных и длительных нагрузок.

а - сечение сталефибробетонного элемента, б - сечение, приведенное к стальному; 1 - стержневая арматура

Рисунок 7.1 - Схема приведения сечения сталефибробетонных элементов к стальному

Расчет по раскрытию трещин, наклонных к продольной оси элемента

7.2.10 Ширина раскрытия трещин, наклонных к продольной оси изгибаемых элементов, при сетчатом и комбинированном армировании определяется по формуле:

(7.26)

где φ1 - коэффициент тот же, что и в п. 7.2.1;

k1 - коэффициент, вычисляемый для фибры:

резанной из листа марки FIBREX, выпускаемой по ТУ 0991-123-53832025,

по формуле

(25-1400μfaw)103

фрезерованной из слябов, выпускаемой по ТУ 0882-193-46854090,

 

по формуле

(20-1400μfaw)103

рубленой из стальной проволоки, выпускаемой по ТУ 1211-205-46854090, по формуле:

для фибры марок XEHДИКС HENDIX, ФИБЕКС FIBAX 1/50 ФИБEKC FIBAX 1,3/50

(20-1400 μfaw)103

для фибры марки ТВИНФЛЭТ TWINFLAT

(25-1400 μfaw)103

для фибры марки МИКСАРМ MIXARM

(30-1400 μfaw 103

ηf1 - коэффициент тот же, что и в п.7.2.7;

где kn - коэффициент, принимаемый по табл. 6.2;

df,red - приведенный диаметр используемой фибры, согласно п. 6.2.6;

Ef - модуль упругости фибры, принимаемый согласно п. 5.2.5;

(7.27)

где Q - наибольшая поперечная сила на рассматриваемом участке длины элемента от действующей нагрузки;

Р - усилие предварительного напряжения с учетом всех потерь;

Аbс - площадь сечения сжатой зоны бетона.

7.3 РАСЧЕТ ЭЛЕМЕНТОВ СТАЛЕФИБРОБЕТОННЫХ КОНСТРУКЦИЙ ПО ДЕФОРМАЦИЯМ

Общие положения

7.3.1 Расчет элементов сталефибробетонных конструкций по деформациям производят с учетом эксплуатационных требований, предъявляемых к конструкциям.

Расчет по деформациям следует производить на действие:

постоянных, временных длительных и кратковременных нагрузок (4.2.4) при ограничении деформаций технологическими или конструктивными требованиями;

постоянных и временных длительных нагрузок при ограничении деформаций эстетическими требованиями.

7.3.2 Деформации (прогибы, углы поворота) элементов сталефибробетонных конструкций вычисляют по формулам строительной механики, определяя входящие в них значения кривизны согласно пп. 7.3.3-7.3.5 настоящего СП.

Величина кривизны и деформаций сталефибробетонных элементов отсчитывается от их начального состояния; при наличии предварительного напряжения - от состояния до обжатия.

7.3.3 Кривизна сталефибробетонных элементов определяется:

для участков элемента, где в растянутой зоне не образуются трещины, нормальные к продольной оси элемента, - как для сплошного тела;

для участков элемента, где в растянутой зоне имеются трещины, нормальные к продольной оси, - как отношение разности средних деформаций крайнего волокна сжатой зоны бетона и крайнего волокна растянутой зоны (или продольной растянутой арматуры при комбинированном армировании к высоте сечения элемента (или рабочей высоте сечения).

Элементы или участки элементов рассматриваются без трещин в растянутой зоне, если трещины не образуются при действии постоянных, длительных и кратковременных нагрузок; при этом нагрузки вводятся в расчет с коэффициентом надежности по нагрузке γf= 1,2.

7.3.4 Значения предельно допустимых деформаций элементов принимают согласно СНиП 2.01.07-85 и нормативным документам на отдельные виды конструкций.

Расчет сталефибробетонных элементов по прогибам

7.3.5 Расчет сталефибробетонных элементов по прогибам производят из условия

(7.28)

где f - прогиб железобетонного элемента от действия внешней нагрузки;

fult - значение предельно допустимого прогиба сталефибробетонного элемента.

Прогибы сталефибробетонных конструкций определяют по общим правилам строительной механики в зависимости от изгибных, сдвиговых и осевых деформационных характеристик сталефибробетонного элемента в сечениях по его длине (кривизн, углов сдвига и т.д.).

При действии постоянных, длительных и кратковременных нагрузок прогиб балок или плит во всех случаях не должен превышать 1/150 пролета и 1/75 вылета консоли.

7.3.6 Прогиб сталефибробетонных элементов, обусловленный деформацией изгиба, определяют по формуле:

(7.29)

где  - изгибающий момент в сечении х от действия единичной силы, приложенной по направлению искомого перемещения элемента в сечении х по длине пролета l, для которого определяют прогиб;

 - полная кривизна элемента в сечении х от внешней нагрузки, при которой определяют прогиб; величина  определяется по формулам (7.31) и (7.39); знак  принимается в соответствии с эпюрой кривизны.

Для элементов постоянного сечения, имеющих трещины на каждом участке, в пределах которого изгибающий момент не меняет знака, кривизну допускается вычислять для наиболее напряженного сечения, принимая кривизну для остальных сечений такого участка изменяющейся пропорционально значениям изгибающего момента.

Для некоторых наиболее распространенных случаев загружения прогиб изгибаемого элемента постоянного сечения может определяться по формуле:

(7.30)

где m - коэффициент, принимаемый в зависимости от условий опирания и схемы загружения;

 - кривизна в сечении с наибольшим изгибающим моментом от нагрузки, при которой определяется прогиб;

l - расчетный пролет элемента.

Определение кривизны сталефибробетонных элементов

Общие положения

7.3.7 Кривизну изгибаемых, внецентренно сжатых и внецентренно растянутых элементов для вычисления их прогибов определяют:

для элементов или участков элемента, где в растянутой зоне не образуются нормальные к продольной оси трещины, согласно пп. 7.3.8, 7.3.9.

для элементов или участков элемента, где в растянутой зоне имеются трещины, согласно пп. 7.3.10 - 7.3.13.

Элементы или участки элементов рассматривают без трещин, если трещины не образуются (т.е. условие (7.1) не выполняется) при действии полной нагрузки, включающей постоянную, временную длительную и кратковременную нагрузки.

Определение кривизны сталефибробетонных элементов на участках без трещин в растянутой зоне

7.3.8 Полное значение кривизны изгибаемых, внецентренно сжатых и внецентренно растянутых элементов на участках, где образуются нормальные или наклонные к продольной оси элементов трещины, определяют по формуле

(7.31)

где  и  - кривизна соответственно от кратковременных и от постоянных и длительных временных нагрузок (без учета усилия Р).

(7.32)

(7.33)

где M - момент от соответствующей внешней нагрузки относительно оси, нормальной к плоскости действия момента и проходящей через центр тяжести приведенного сечения;

φb,сr - коэффициент ползучести бетона, принимаемый по таблице 5.5 настоящего СП в зависимости от вида бетона;

Вf1 - жесткость сталефибробетонного элемента при кратковременном действии нагрузки, определяемая по формуле:

(7.34)

где Еb - модуль упругости бетона, принимаемый по таблице 5.4 настоящего СП;

I1 - момент инерции сечения, приведенного к бетонному и включающего в себя площадь бетона, фибровой или фибровой и стержневой арматуры, приведенной к бетону. При этом коэффициент приведения для фибровой арматуры , для стержневой арматуры , а приведенные коэффициенты армирования фибровой и стержневой арматурой определяются в соответствии с формулами (7.11) - (7.14) настоящего СП;

 - кривизна, обусловленная выгибом элемента от непродолжительного действия усилия предварительного обжатия и определяемая по формуле:

(7.35)

где еop - эксцентриситет приложения силы относительно центра тяжести элемента;

 - кривизна, обусловленная выгибом элемента вследствие усадки и ползучести бетона от усилия предварительного обжатия и определяемая по формуле:

(7.36)

где eb и e'b - относительные деформации сталефибробетона, вызванные его усадкой и ползучестью под действием усилия предварительного обжатия, определяемые соответственно на уровне растянутой и сжатой грани сечения по формулам:

(7.37)

(7.38)

Значение σfb принимается численно равным сумме потерь предварительного напряжения арматуры от усадки и ползучести бетона согласно пп. 5.2.13, 5.2.14 настоящего СП для арматуры растянутой зоны (условно принимается расположенной на растянутой грани сечения), а σfb - то же, для напрягаемой арматуры, если бы она имелась на уровне крайнего сжатого волокна бетона.

При этом сумма  +  принимается не менее .

Значения кривизны  и  для элементов без предварительного напряжения допускается принимать равными нулю.

7.3.9 При определении кривизны на участках с начальными трещинами в сжатой зоне бетона значения ,  и  определенные по формулам (7.32), (7.33) и (7.35), принимаются увеличенными на 15 %, а значение , определенное по формуле (7.36), - на 25%.

Определение кривизны сталефибробетонных элементов на участках с трещинами в растянутой зоне

7.3.10 Полное значение кривизны изгибаемых, внецентренно сжатых и внецентренно растянутых сталефибробетонных элементов прямоугольного, таврового и двутаврового сечений на участках, где образуются нормальные к продольной оси элемента трещины, следует определять по формуле:

(7.39)

где  - кривизна от непродолжительного действия всей нагрузки, на которую производится расчет по деформациям;

 - кривизна от непродолжительного действия постоянных и длительных нагрузок;

 - кривизна от продолжительного действия постоянной и длительной нагрузок;

 - кривизна, обусловленная выгибом элемента вследствие усадки и ползучести бетона от усилия предварительного обжатия и определяемая по формуле (7.36).

7.3.11 Значения  определяются по формуле:

(7.40)

где М - момент от всей внешней нагрузки относительно оси, нормальной к плоскости действия момента и проходящей через центр тяжести приведенного сечения;

Мсrс - момент, воспринимаемый сечением, нормальным к продольной оси элемента, при образовании трещин;

Вf1 - определяется по формуле (7.34);

Bf3 - определяется по формуле:

при кратковременном действии нагрузки

(7.41)

при длительном действии нагрузки

(7.42)

где If1 - момент инерции приведенного сечения, определяемый по п. 7.2.8.

7.3.12 Значения  определяются по формуле:

(7.43)

Mser - момент от постоянных и длительных нагрузок относительно оси, нормальной к плоскости действия момента и проходящей через центр тяжести приведенного сечения;

Вf3 - определяется согласно п. 7.3.11.

7.3.13 Значения  определяются по формуле:

(7.44)

где Мser - см. п. 7.3.12;

B'f3 - определяется по формуле:

(7.45)

где Bf3 - определяется по формуле (7.42).

Высоту сжатой зоны определяют по формуле:

(7.46)

где Sb - статический момент приведенной к бетону площади сечения без учета площади бетона растянутых свесов полки относительно растянутой грани;

Ared - площадь приведенного к бетону сечения, включающая в себя площадь бетона сжатой и растянутой зон (без учета площади растянутых уширений), стержневой арматуры, приведенной к бетону при , площадь фибровой арматуры, приведенной к бетону при ;

Aov - площадь уширений растянутой зоны бетона.

8 КОНСТРУКТИВНЫЕ ТРЕБОВАНИЯ

8.1 ОБЩИЕ ПОЛОЖЕНИЯ

8.1.1 Для обеспечения несущей способности, пригодности к нормальной эксплуатации и долговечности бетонных и сталефибробетонных конструкций помимо требований, определяемых расчетом, следует выполнять конструктивные требования:

по геометрическим размерам элементов конструкций;

по армированию (содержанию и расположению арматуры, толщине защитного слоя бетона, анкеровке и соединениям арматуры);

по защите конструкций от неблагоприятных воздействий среды.

(Опечатка 01.05.2007)

 

8.2 ГЕОМЕТРИЧЕСКИЕ РАЗМЕРЫ КОНСТРУКЦИЙ

8.2.1 Минимальные геометрические размеры сечений конструкций следует назначать такими, чтобы обеспечивать:

возможность надлежащего размещения арматуры (расстояния между стержнями, защитный слой бетона и т.д.), ее анкеровки и совместной работы с бетоном;

достаточную жесткость конструкций;

необходимую огнестойкость, водонепроницаемость конструкций, тепло- и звукоизоляцию, коррозионную стойкость, радиационную защиту и т.п.;

возможность качественного изготовления при бетонировании конструкций.

8.2.2 При проектировании сталефибробетонных конструкций для обеспечения условий их изготовления, совместной работы бетона и арматуры и требуемой долговечности рекомендуется руководствоваться следующими положениями.

Размеры сечений сталефибробетонных элементов конструкций рекомендуется принимать исходя из следующих условий:

толщина плоских плит или полок ребристых плит сборных конструкций рекомендуется не более 30 мм;

толщину полок или стенок элементов рекомендуется принимать не менее 15 мм, а для плит междуэтажных перекрытий - не менее 30 мм.

8.2.3 При вертикальном изготовлении конструкций ширину ребра по верху, включая вут, рекомендуется принимать больше ширины ребра по низу на размер не менее 0,5lf.

8.2.4 Сопряжение ребер конструкции с полками рекомендуется принимать по радиусу не менее 0,6lf или с устройством вута с размером проекции не менее 0,75lf.

8.2.5 Радиус свободного погиба r свежеотформованного листа при изготовлении сталефибробетонных конструкций во избежание разрывов и сдвигов рекомендуется принимать не меньше 3t и 100df,red. При специальных устройствах листогибочного поддона или последующем (повторном) вибрировании радиус погиба может быть принят меньшим по экспериментальным данным.

8.2.6 Толщину плит или стенок тонкостенных конструкций рекомендуется принимать не менее 1/200 их свободного пролета.

8.2.7 При проектировании конструкций из сталефибробетона следует сочетать размер сечений элементов, размеры фибр и коэффициент фибрового армирования таким образом, чтобы минимальная площадь поперечного сечения элемента или его части Аmin отвечала условию:

(8.1)

8.2.8 Размеры сечений внецентренно сжатых элементов для обеспечения их жесткости рекомендуется принимать такими, чтобы их гибкость - в любом направлении не превышала:

для железобетонных элементов

200

для колонн, являющихся элементами зданий

120

для бетонных элементов

90

8.2.9 В конструкциях зданий и сооружений следует предусматривать их разрезку постоянными и временными температурноусадочными швами, расстояния между которыми назначают в зависимости от климатических условий, конструктивных особенностей сооружения, последовательности производства работ и т.п.

При неравномерной осадке фундаментов следует предусматривать разделение конструкций осадочными швами.

8.3 АРМИРОВАНИЕ

Защитный слой сталефибробетона

8.3.1 Арматура, расположенная внутри сечения конструкции, должна иметь защитный слой бетона, чтобы обеспечивать:

совместную работу арматуры с бетоном;

анкеровку арматуры в бетоне и возможность устройства стыков арматурных элементов;

сохранность арматуры от воздействий окружающей среды (в том числе при наличии агрессивных воздействий);

огнестойкость и огнесохранность.

8.3.2 Толщину защитного слоя сталефибробетона назначают исходя из требований п. 8.3.1 с учетом типа конструкций, роли арматуры в конструкциях (продольная рабочая, поперечная, распределительная, конструктивная арматура), условий окружающей среды и диаметра арматуры.

Минимальные значения толщины слоя сталефибробетона рабочей арматуры следует принимать по таблице 8.1.

Таблица 8.1

Условия эксплуатации конструкций зданий

Толщина защитного слоя сталефибробетона, мм, не менее

1 В закрытых помещениях при нормальной и пониженной влажности

10

2 В закрытых помещениях при повышенной влажности (при отсутствии дополнительных защитных мероприятий)

15

3 На открытом воздухе (при отсутствии дополнительных защитных мероприятий)

25

4 В грунте (при отсутствии дополнительных защитных мероприятий), в фундаментах при наличии бетонной подготовки

35

8.3.3 Для сталефибробетонных конструкций без гидроизоляционного покрытия толщина защитного слоя бетона для напрягаемой арматуры в пределах длины зоны передачи напряжений (см. п. 2.2.3.11 СП 52-102-2004) должна приниматься не менее двух диаметров арматуры, но не менее 15 мм.

Во всех случаях толщину защитного слоя бетона следует принимать равной диаметру стержня арматуры, уменьшенному на 10 мм, но не менее указанных в таблице 8.1.

Толщину защитного слоя сталефибробетона следует принимать с учетом требований по технологии изготовления конструкций.

Минимальные расстояния между стержнями арматуры

8.3.4 Минимальные расстояния в свету между стержнями арматуры следует принимать такими, чтобы обеспечить совместную работу арматуры с бетоном и качественное изготовление конструкций, связанное с укладкой и уплотнением бетонной смеси, но не менее наибольшего диаметра стержня, а также не менее:

25 мм - при горизонтальном или наклонном положении стержней при бетонировании - для нижней арматуры, расположенной в один или два ряда;

30 мм - то же, для верхней арматуры;

50 мм - то же, при расположении нижней арматуры более чем в два ряда (кроме стержней двух нижних рядов), а также при вертикальном положении стержней при бетонировании.

При стесненных условиях допускается располагать стержни группами - пучками (без зазора между ними). При этом расстояния в свету между пучками должны быть также не менее приведенного диаметра стержня, эквивалентного по площади сечения пучка арматуры, принимаемого равным:

(8.2)

где dsi - диаметр одного стержня в пучке;

n - число стержней в пучке.

Продольное армирование

8.3.5 Для несущих конструкций следует применять комбинированное армирование.

8.3.6 Коэффициент фибрового армирования по объему рекомендуется принимать в пределах 0,005 ≤ μfv ≥ 0,018 для конструкций, работающих на растяжение, изгиб и сжатие. Допускается при экономическом обосновании принимать μfv > 0,018 для конструкций, подверженных ударным, истирающим, температурным воздействиям, или при предъявлении к конструкциям повышенных требований к трещиностойкости, но не более 0,02.

8.3.7 Минимальные значения коэффициента фибрового армирования рекомендуется принимать, соблюдая следующее условие:

(8.3)

где С - коэффициент, принимаемый равным 1,0 для элементов, работающих при осевом и внецентренном растяжении с малыми эксцентриситетами, и 0,6 - для изгибаемых элементов.

8.3.8 В сталефибробетонных элементах площадь сечения продольной растянутой арматуры, а также сжатой, если она требуется по расчету, в процентах площади сечения бетона, равной произведению ширины прямоугольного сечения либо ширины ребра таврового (двутаврового) сечения на рабочую высоту сечения,  следует принимать не менее:

0,1 % - в изгибаемых, внецентренно растянутых элементах и внецентренно сжатых элементах при гибкости l0/i ≤ 17 (для прямоугольных сечений l0/h ≤ 5);

0,25 % - во внецентренно сжатых элементах при гибкости l0/i ≥ 87 (для прямоугольных сечений l0/h ≥ 25);

для промежуточных значений гибкости элементов значение μs определяют интерполяцией.

В элементах с продольной арматурой, расположенной равномерно по контуру сечения, а также в центрально растянутых элементах минимальную площадь сечения всей продольной арматуры следует принимать вдвое большей указанных выше значений и относить их к полной площади сечения бетона.

8.3.9 В бетонных конструкциях следует предусматривать конструктивное армирование:

в местах резкого изменения размеров сечения элементов;

в бетонных стенах под и над проемами;

во внецентренно сжатых элементах, рассчитываемых по прочности без учета работы растянутого бетона, у граней, где возникают растягивающие напряжения; при этом коэффициент армирования μs принимают не менее 0,025 %.

8.3.10 В сталефибробетонных линейных конструкциях и плитах наибольшие расстояния между осями стержней продольной арматуры, обеспечивающие эффективное вовлечение в работу бетона, равномерное распределение напряжений и деформаций, а также ограничение ширины раскрытия трещин между стержнями арматуры, должны быть не более:

в сталефибробетонных балках и плитах:

200 мм - при высоте поперечного сечения h 150 мм;

1,5h и 400 мм - при высоте поперечного сечения h > 150 мм;

в сталефибробетонных колоннах:

400 мм - в направлении, перпендикулярном плоскости изгиба;

500 мм - в направлении плоскости изгиба.

В сталефибробетонных стенах расстояния между стержнями вертикальной арматуры принимают не более 2t и 400 мм (t - толщина стены), а горизонтальной - не более 400 мм.

8.3.11 В балках и ребрах шириной более 150 мм число продольных рабочих растянутых стержней в поперечном сечении должно быть не менее двух. При ширине элемента 150 мм и менее допускается устанавливать в поперечном сечении один продольный стержень.

8.3.12 В балках до опоры следует доводить стержни продольной рабочей арматуры с площадью сечения не менее 1/2 площади сечения стержней в пролете и не менее двух стержней.

В плитах до опоры следует доводить стержни продольной рабочей арматуры на 1 м ширины плиты с площадью сечения не менее 1/3 площади сечения стержней на 1 м ширины плиты в пролете.

Поперечное армирование

8.3.13 Поперечную арматуру следует устанавливать исходя из расчета на восприятие усилий, а также с целью ограничения развития трещин, удержания продольных стержней в проектном положении и закрепления их от бокового выпучивания в любом направлении.

Поперечную арматуру устанавливают у всех поверхностей сталефибробетонных элементов, вблизи которых ставится продольная арматура.

8.3.14 Диаметр поперечной арматуры (хомутов) в вязаных каркасах внецентренно сжатых элементов принимают не менее 0,25 наибольшего диаметра продольной арматуры и не менее 6 мм.

Диаметр поперечной арматуры в вязаных каркасах изгибаемых элементов принимают не менее 6 мм.

В сварных каркасах диаметр поперечной арматуры принимают не менее диаметра, устанавливаемого из условия сварки с наибольшим диаметром продольной арматуры.

8.3.15 В сталефибробетонных элементах, в которых поперечная сила по расчету не может быть воспринята только бетоном, следует предусматривать установку поперечной арматуры с шагом не более 0,5h0 и не более 300 мм.

В сплошных, а также в часторебристых плитах высотой менее 300 мм и в балках (ребрах) высотой менее 150 мм на участке элемента, где поперечная сила по расчету воспринимается только бетоном, поперечную арматуру можно не устанавливать.

В балках и ребрах высотой 150 мм и более, а также в часторебристых плитах высотой 300 мм более на участках элемента, где поперечная сила по расчету воспринимается только бетоном, следует предусматривать установку поперечной арматуры с шагом не более 0,75h0 и не более 500 мм.

8.3.16 Во внецентренно сжатых линейных элементах, а также в изгибаемых элементах при наличии необходимой по расчету сжатой продольной арматуры с целью предотвращения выпучивания продольной арматуры следует устанавливать поперечную арматуру с шагом не более 15d и не более 500 мм (d - диаметр сжатой продольной арматуры).

Если площадь сечения сжатой продольной арматуры, устанавливаемой у одной из граней элемента, более 1,5 % поперечную арматуру следует устанавливать с шагом не более 10d и не более 300 мм.

8.3.17 Конструкция хомутов (поперечных стержней) во внецентренно сжатых линейных элементах должна быть такой, чтобы продольные стержни (по крайней мере через один) располагались в местах перегибов, а эти перегибы - на расстоянии не более 400 мм по ширине грани. При ширине грани не более 400 мм и числе продольных стержней у этой грани не более четырех допускается охват всех продольных стержней одним хомутом.

8.3.18 В элементах, на которые действуют крутящие моменты, поперечная арматура (хомуты) должна образовывать замкнутый контур.

8.3.19 Поперечную арматуру в плитах в зоне продавливания в направлении, перпендикулярном сторонам расчетного контура, устанавливают с шагом не более 1/3h0 и не более 300 мм. Стержни, ближайшие к контуру грузовой площади, располагают не ближе h0/3 и не далее h0/2 от этого контура. При этом ширина зоны постановки поперечной арматуры (от контура грузовой площади) должна быть не менее 1/5h0.

Расстояния между стержнями поперечной арматуры в направлении, параллельном сторонам расчетного контура, принимают не более 1/4 длины соответствующей стороны расчетного контура.

8.3.20 Расчетную поперечную арматуру в виде сеток косвенного армирования при местном сжатии (смятии) располагают в пределах расчетной площади Аfb,max (п. 6.5.2). При расположении грузовой площади у края элемента сетки косвенного армирования располагают по площади с размерами в каждом направлении не менее суммы двух взаимно перпендикулярных сторон грузовой площади (рис. 6.11).

По глубине сетки располагают: при толщине элемента более удвоенного большего размера грузовой площади - в пределах удвоенного размера грузовой площади;

при толщине элемента менее удвоенного большего размера грузовой площади - в пределах толщины элемента.

8.3.21 Поперечная арматура, предусмотренная для восприятия поперечных сил и крутящих моментов, а также учитываемая при расчете на продавливание, должна иметь надежную анкеровку по концам путем приварки или охвата продольной арматуры, обеспечивающую равнопрочность соединений и поперечной арматуры.

Анкеровка арматуры без предварительного напряжения

8.3.22 Анкеровку арматуры осуществляют одним из следующих способов или их сочетанием:

в виде прямого окончания стержня (прямая анкеровка);

с загибом на конце стержня в виде крюка, отгиба (лапки) или петли;

с приваркой или установкой поперечных стержней;

с применением специальных анкерных устройств на конце стержня.

8.3.23 Прямую анкеровку и анкеровку с лапками допускается применять только для арматуры периодического профиля. Для растянутых гладких стержней следует предусматривать крюки, петли, приваренные поперечные стержни или специальные анкерные устройства.

Лапки, крюки и петли не рекомендуется применять для анкеровки сжатой арматуры, за исключением гладкой арматуры, которая может подвергаться растяжению при некоторых возможных сочетаниях нагрузки.

8.3.24 При расчете длины анкеровки арматуры следует учитывать способ анкеровки, класс арматуры и ее профиль, диаметр арматуры, прочность сталефибробетона и его напряженное состояние в зоне анкеровки, конструктивное решение элемента в зоне анкеровки (наличие поперечной арматуры, положение стержней в сечении элемента и др.).

8.3.25 Базовую (основную) длину анкеровки, необходимую для передачи усилия в арматуре с полным расчетным значением сопротивления Rs на сталефибробетон, определяют по формуле:

(8.4)

где As и us - соответственно площадь поперечного сечения анкеруемого стержня арматуры и периметр его сечения, определяемые по номинальному диаметру стержня;

Rbond - расчетное сопротивление сцепления арматуры со сталефибробетоном, принимаемое равномерно распределенным по длине анкеровки и определяемое по формуле:

(8.5)

где Rfbt - расчетное сопротивление сталефибробетона осевому растяжению;

η1 – коэффициент, учитывающий влияние вида поверхности арматуры, принимаемый равным:

1,5 - для гладкой арматуры;

1,8 - для холоднодеформированной арматуры периодического профиля;

2,5 - для горячекатаной и термомеханически обработанной арматуры периодического профиля;

η2 - коэффициент, учитывающий влияние размера диаметра арматуры, принимаемый равным:

1,0 - при диаметре арматуры ds 32 мм;

0,9 - при диаметре арматуры 36 и 40 мм.

8.3.26 Требуемую расчетную длину анкеровки арматуры с учетом конструктивного решения элемента в зоне анкеровки определяют по формуле:

(8.6)

Где lo,an - базовая длина анкеровки, определяемая по формуле (8.4);

As,cal, As,ef площади поперечного сечения арматуры соответственно требуемая по расчету и фактически установленная;

α - коэффициент, учитывающий влияние на длину анкеровки напряженного состояния сталефибробетона и арматуры и конструктивного решения элемента в зоне анкеровки.

При анкеровке стержней периодического профиля с прямыми концами (прямая анкеровка) или гладкой арматуры с крюками или петлями без дополнительных анкерующих устройств для растянутых стержней принимают α = 1,0, а для сжатых - α = 0,75.

Допускается уменьшать длину анкеровки в зависимости от количества и диаметра поперечной арматуры, вида анкерующих устройств (приварка поперечной арматуры, загиб концов стержней периодического профиля) и величины поперечного обжатия сталефибробетона в зоне анкеровки (например, от опорной реакции), но не более чем на 30 %.

В любом случае фактическую длину анкеровки принимают не менее 0,3lо,an, а также не менее 15ds и 200 мм.

8.3.27 Усилие, воспринимаемое анкеруемым стержнем арматуры, определяют по формуле:

(8.7)

где lаn - длина анкеровки, определяемая согласно п. 8.3.26, принимая отношение  = 1;

ls - расстояние от конца анкеруемого стержня до рассматриваемого поперечного сечения элемента.

8.3.28 На крайних свободных опорах элементов длина запуска растянутых стержней за внутреннюю грань свободной опоры при выполнении условий пп. 6.4.1 - 6.4.5 должна составлять не менее 5ds. Если указанное условие не соблюдается, длину запуска арматуры за грань опоры определяют согласно п. 8.3.26.

8.3.29 При устройстве на концах стержней специальных анкеров в виде пластин, шайб, гаек, уголков, высаженных головок и т.п. площадь контакта анкера со сталефибробетоном должна удовлетворять условию прочности сталефибробетона на смятие. Кроме того, при проектировании привариваемых анкерных деталей следует учитывать характеристики металла по свариваемости, а также способы и условия сварки.

Анкеровка предварительно напряженной арматуры

8.3.30 Анкеровку напрягаемой арматуры осуществляют одним из следующих способов:

в виде прямого окончания стержня (прямая анкеровка);

с применением специальных анкерных устройств на конце стержня.

8.3.31 Базовую (основную) длину анкеровки напрягаемой арматуры, необходимую для передачи усилия в арматуре с полным расчетным значением сопротивления Rs на сталефибробетон, определяют по формуле:

(8.8)

где As и us - соответственно площадь поперечного сечения анкеруемого стержня арматуры и периметр его сечения, определяемые по номинальному диаметру стержня;

Rbond - расчетное сопротивление сцепления арматуры со сталефибробетоном, принимаемое равномерно распределенным по длине анкеровки и определяемое по формуле:

(8.9)

где Rfbt - расчетное сопротивление сталефибробетона осевому растяжению;

η – коэффициент, учитывающий влияние вида поверхности арматуры, принимаемый равным:

1,7 - для холоднодеформированной арматуры периодического профиля класса Вр1500 диаметром 3 мм и арматурных канатов класса К1500 диаметром 6 мм;

1,8 - для холоднодеформированной арматуры класса Вр диаметром 4 мм и более;

2,2 - для арматурных канатов класса К диаметром 9 мм и более;

2,5 - для горячекатаной и термомеханически обработанной арматуры класса А.

8.3.32 Требуемую расчетную длину прямой анкеровки напрягаемой арматуры с учетом конструктивного решения элемента в зоне анкеровки определяют по формуле:

(8.10)

но принимают не менее 15ds и 200 мм.

В формуле (8.10):

lo,an - базовая длина анкеровки, определяемая по формуле (8.8);

As,cal, As,ef - площади поперечного сечения арматуры соответственно требуемая по расчету и фактически установленная.

Соединения арматуры

8.3.33 Для соединения арматуры принимают один из следующих типов стыков:

стыки внахлестку без сварки:

с прямыми концами стержней периодического профиля;

с прямыми концами стержней с приваркой или установкой на длине нахлестки поперечных стержней;

с загибами на концах (крюки, лапки, петли); при этом для гладких стержней применяют только крюки и петли;

сварные и механические стыковые соединения:

сваркой арматуры;

с применением специальных механических устройств (стыки с опрессованными муфтами, резьбовыми муфтами и др.).

8.3.34 Стыки арматуры внахлестку (без сварки) применяют при стыковании стержней с диаметром рабочей арматуры не более 40 мм.

На соединения арматуры внахлестку распространяются указания п. 8.3.23.

Стыки растянутой или сжатой арматуры должны иметь длину перепуска (нахлестки) не менее значения длины l1 определяемого по формуле:

(8.11)

lo,an - базовая длина анкеровки, определяемая по формуле (8.8);

As,cal, As,ef - площади поперечного сечения арматуры соответственно требуемая по расчету и фактически установленная. (см. п. 8.3.32);

α - коэффициент, учитывающий влияние напряженного состояния арматуры, конструктивного решения элемента в зоне соединения стержней, количества стыкуемой арматуры в одном сечении по отношению к общему количеству арматуры в этом сечении, расстояния между стыкуемыми стержнями.

При соединении арматуры периодического профиля с прямыми концами, а также гладких стержней с крюками или петлями без дополнительных анкерующих устройств коэффициент α для растянутой арматуры принимают равным 1,2, а для сжатой арматуры - 0,9. При этом должны быть соблюдены следующие условия:

относительное количество стыкуемой в одном расчетном сечении элемента рабочей растянутой арматуры периодического профиля должно быть не более 50 %, гладкой арматуры (с крюками или петлями) - не более 25 %;

усилие, воспринимаемое всей поперечной арматурой, поставленной в пределах стыка, должно быть не менее половины усилия, воспринимаемого стыкуемой в одном расчетном сечении элемента растянутой рабочей арматурой;

расстояние между стыкуемыми рабочими стержнями арматуры не должно превышать 4ds;

расстояние между соседними стыками внахлестку (по ширине железобетонного элемента) должно быть не менее 2ds и не менее 30 мм.

В качестве одного расчетного сечения элемента, рассматриваемого для определения относительного количества стыкуемой арматуры в одном сечении, принимают участок элемента вдоль стыкуемой арматуры длиной 1,3l1. Считается, что стыки арматуры расположены в одном расчетном сечении, если центры этих стыков находятся в пределах длины этого участка.

Допускается увеличивать относительное количество стыкуемой в одном расчетном сечении элемента рабочей растянутой арматуры до 100 %, принимая значение коэффициента α равным 2,0. При относительном количестве стыкуемой в одном расчетном сечении арматуры периодического профиля более 50 % и гладкой арматуры более 25 % значения коэффициента α определяют по линейной интерполяции.

При наличии дополнительных анкерующих устройств на концах стыкуемых стержней (приварка поперечной арматуры, загиба концов стыкуемых стержней периодического профиля и др.) длина перепуска стыкуемых стержней может быть уменьшена, но не более чем на 30 %.

В любом случае фактическая длина перепуска должна быть не менее 0,4αlo,an, не менее 20ds и не менее 250 мм.

8.3.35 При соединении арматуры с использованием сварки выбор типов сварного соединения и способов сварки производят с учетом условий эксплуатации конструкции, свариваемости стали и требований по технологии изготовления в соответствии с действующими нормативными документами (ГОСТ 14098-91).

8.3.36 При использовании для стыков арматуры механических устройств в виде муфт (муфты на резьбе, опрессованные муфты и т.д.) несущая способность муфтового соединения должна быть такой же, что и стыкуемых стержней (соответственно при растяжении или сжатии). Концы стыкуемых стержней следует заводить на требуемую длину в муфту, определяемую расчетом или опытным путем.

При использовании муфт на резьбе должка быть обеспечена требуемая затяжка муфт для ликвидации люфта в резьбе.

Гнутые стержни

8.3.37 При применении гнутой арматуры (отгибы, загибы концов стержней) минимальный диаметр загиба отдельного стержня должен быть таким, чтобы избежать разрушения или раскалывания сталефибробетона внутри загиба арматурного стержня и его разрушение в месте загиба.

Минимальный диаметр оправки don для арматуры принимают в зависимости от диаметра стержня ds не менее:

для гладких стержней

don = 2,5ds при ds < 20 мм;

don = Ads при ds20 мм;

для стержней периодического профиля

don = 5ds при ds < 20 мм;

don = 8ds при ds 20 мм.

ПРИЛОЖЕНИЕ А
(справочное)
ОСНОВНЫЕ БУКВЕННЫЕ ОБОЗНАЧЕНИЯ

Усилия от внешних нагрузок и воздействий в поперечном сечении элемента

М - изгибающий момент;

N - продольная сила;

Q - поперечная сила.

Характеристики материалов

- нормативное сопротивление бетона осевому сжатию;

- расчетные сопротивления бетона осевому сжатию для предельных состояний соответственно первой и второй групп;

- нормативное сопротивление бетона осевому растяжению;

- расчетные сопротивления бетона осевому растяжению для предельных  состояний соответственно первой и второй групп;

- передаточная прочность бетона;

- расчетное сопротивление сцепления арматуры с бетоном;

- расчетное сопротивление сталефибробетона соответственно при сжатии и растяжении;

- расчетные сопротивления арматуры растяжению для предельных состояний соответственно первой и второй групп;

- расчетное сопротивление поперечной арматуры растяжению;

- расчетное сопротивление арматуры сжатию для предельных состояний  первой группы;

- расчетное сопротивление растяжению фибровой стальной арматуры;

- нормативное сопротивление растяжению фибровой стальной арматуры;

- начальный модуль упругости бетона при сжатии и растяжении;

- приведенный модуль деформации сжатого бетона;

- модуль упругости арматуры;

- приведенный модуль деформации арматуры, расположенной в растянутой зоне элемента с трещинами;

- модуль упругости стальной фибры;

- минимальная длина заделки фибры в бетоне, соответствующая их разрыву при выдергивании;

- предельные относительные деформации бетона соответственно при равномерном осевом сжатии и осевом растяжении;

- относительные деформации усадки бетона;

- коэффициент ползучести бетона;

α

- отношение соответствующих модулей упругости арматуры Es и бетона Еb;

- коэффициент эффективности косвенного армирования фибровой арматурой;

η

- характеристика сцепления фибр с бетоном по контактной поверхности.

Характеристики положения арматуры в поперечном сечении элемента

S

- обозначение продольной арматуры:

при наличии сжатой и растянутой от действия внешней нагрузки зон сечения - расположенной в растянутой зоне;

при полностью сжатом от действия внешней нагрузки сечении - расположенной у менее сжатой грани сечения;

при полностью растянутом от действия внешней нагрузки сечении:

для внецентренно растянутых элементов - расположенной у более растянутой грани сечения;

для центрально-растянутых элементов - всей в поперечном сечении элемента;

S'

- обозначение продольной арматуры:

при наличии сжатой и растянутой от действия внешней нагрузки зон сечения - расположенной в сжатой зоне;

при полностью сжатом от действия внешней нагрузки сечении - расположенной у более сжатой грани сечения;

при полностью растянутом от действия внешней нагрузки сечении внецентренно растянутых элементов - расположенной у менее растянутой грани сечения;

kor

- коэффициент, учитывающий ориентацию фибр относительно направления главных растягивающих напряжений;

kn

- коэффициент, учитывающий влияние на ориентацию фибр размеров сечения, перпендикулярных направлению внешнего усилия.

Геометрические характеристики

b

- ширина прямоугольного сечения; ширина ребра таврового и двутаврового сечений;

bf ,b'f

- ширина полки таврового и двутаврового сечений соответственно в растянутой и сжатой зонах;

h

- высота прямоугольного, таврового и двутаврового сечений;

- высота полки таврового и двутаврового сечений соответственно в растянутой и сжатой зонах;

a, a'

- расстояние от равнодействующей усилий в арматуре соответственно S и S' до ближайшей грани сечения;

h0

- высота сечения, равная h-а;

x

- высота сжатой зоны сталефибробетона;

ξ

- относительная высота сжатой зоны сталефибробетона, равная x/h ;

sw

- расстояние между хомутами, измеренное по длине элемента;

eo

- эксцентриситет продольной силы N относительно центра тяжести приведенного сечения, определяемый с учетом п. 4.2.6;

e, e'

- расстояния от точки приложения продольной силы N до равнодействующей усилий в арматуре соответственно S и S;

eop

- эксцентриситет усилия предварительного обжатия относительно центра тяжести сечения;

ep

- расстояние от приложения усилия предварительного обжатия Np с учетом изгибающего момента от внешней нагрузки до центра тяжести растянутой или наименее сжатой арматуры;

l

- пролет элемента;

lf

- длина фибры;

 

lan

- длина зоны анкеровки предварительно напрягаемой арматуры;

l0

- расчетная длина элемента, подвергающегося действию сжимающей продольной силы;

lp

- длина зоны передачи предварительного напряжения в арматуре на бетон;

i

- радиус инерции поперечного сечения элемента относительно центра тяжести сечения;

- номинальный диаметр стержней соответственно продольной и поперечной арматуры;

df,red

- приведенный диаметр фибры;

As, As

- площади сечения арматуры соответственно S и S;

Asw

- площадь сечения хомутов, расположенных в одной нормальной к продольной оси элемента плоскости, пересекающей наклонное сечение;

μs

- коэффициент армирования, определяемый как отношение площади сечения арматуры S к площади поперечного сечения элемента b·h без учета свесов сжатых и растянутых полок;

μfm

- коэффициент фибрового армирования по массе;

μfv

- коэффициент фибрового армирования по объему;

μfa

- коэффициент фибрового армирования по площади сечения;

A

- площадь всего бетона в поперечном сечении;

Ab

- площадь сечения бетона сжатой зоны;

Abt

- площадь сечения бетона растянутой зоны;

Ared

- площадь приведенного сечения элемента;

Aloc

- площадь смятия бетона;

I

- момент инерции сечения всего бетона относительно центра тяжести сечения элемента;

Ired

- момент инерции приведенного сечения элемента относительно его центра тяжести;

If,red

- момент инерции сталефибробетонного сечения, приведенного к бетонному, относительно его центра тяжести;

W

- момент сопротивления сечения элемента для крайнего растянутого волокна;

Wf,red

- момент сопротивления сталефибробетонного сечения, приведенного к бетонному.

Характеристики предварительно напряженного элемента

P, Np

- усилие предварительного обжатия с учетом потерь предварительного напряжения в арматуре, соответствующих рассматриваемой стадии работы элемента;

- усилие в напрягаемой арматуре с учетом соответственно первых и всех потерь предварительного напряжения;

σsp

- предварительное напряжение в напрягаемой арматуре с учетом потерь предварительного напряжения в арматуре, соответствующих рассматриваемой стадии работы элемента;

- потери предварительного напряжения в арматуре;

- сжимающие напряжения в сталефибробетоне в стадии предварительного обжатия с учетом потерь предварительного напряжения в арматуре.

ПРИЛОЖЕНИЕ Б
ПЕРЕЧЕНЬ НОРМАТИВНОЙ И ТЕХНИЧЕСКОЙ ДОКУМЕНТАЦИИ

1. СНиП 2.01.07-85*

Нагрузки и воздействия

2. СНиП 2.02.01-83*

Основания зданий и сооружений

3. СНиП 2.03.01-85*

Бетонные и железобетонные конструкции (справочно)

4. СНиП 2.03.03-85

Армоцементные конструкции

5. СНиП 2.03.11-85

Защита строительных конструкций от коррозии

6. СНиП 2.05.03-84*

Мосты и трубы

7. СНиП 2.06.04-82*

Нагрузки и воздействия на гидротехнические сооружения (волновые, ледовые и от судов)

8. СНиП 2.06.06-85

Плотины бетонные и железобетонные

9. СНиП 3.03.01-87

Несущие и ограждающие конструкции

10. СНиП 12-01-2004

Организация строительства

11. СНиП 21-01-97*

Пожарная безопасность зданий и сооружений

12. СНиП 23-01-99*

Строительная климатология

13. СНиП 23-02-2003

Тепловая защита зданий

14. СНиП 32-04-97

Тоннели железнодорожные и автодорожные

15. СНиП 33-01-2003

Гидротехнические сооружения. Основные положения

16. СНиП II-7-81*

Строительство в сейсмических районах

17. СНиП II-23-81*

Стальные конструкции

18. ГОСТ 4.212-80

СПКП. Строительство. Бетоны. Номенклатура показателей

19. ГОСТ 4.250-79

СПКП. Строительство. Бетонные и железобетонные изделия и конструкции. Номенклатура показателей.

20. ГОСТ 5781-82

Сталь горячекатаная для армирования железобетонных конструкций. Технические условия

21. ГОСТ 6727-80

Проволока из низкоуглеродистой стали холоднотянутая для армирования железобетонных конструкций. Технические условия

22. ГОСТ 7473-94

Смеси бетонные. Технические условия

23. ГОСТ 8267-93

Щебень и гравий из плотных горных пород для строительных работ. Технические условия

24. ГОСТ 8736-93

Песок для строительных работ. Технические условия

25. ГОСТ 8829-94

Изделия строительные железобетонные и бетонные заводского изготовления. Методы испытания нагружением. Правила оценки прочности, жесткости и трещиностойкости

26. ГОСТ 10060.0-95

Бетоны. Методы определения морозостойкости. Общие требования

27. ГОСТ 10180-90

Бетоны. Методы определения прочности по контрольным образцам

28. ГОСТ 10181-2000

Смеси бетонные. Методы испытаний

29. ГОСТ 10884-94

Сталь арматурная термомеханически упрочненная для железобетонных конструкций. Технические условия

30. ГОСТ 10922-90

Арматурные и закладные изделия сварные, соединения сварные арматуры и закладных изделий железобетонных конструкций. Общие технические условия

31. ГОСТ 12730.0-78

Бетоны. Общие требования к методам определения плотности, пористости и водонепроницаемости

32. ГОСТ 12730.1-78

Бетоны. Методы определения плотности

 

33. ГОСТ 12730.5-84

Бетоны. Методы определения водонепроницаемости

34. ГОСТ 14098-91

Соединения сварные арматуры и закладных изделий железобетонных конструкций. Типы, конструкции и размеры

35. ГОСТ 17624-87

Бетоны. Ультразвуковой метод определения прочности

36. ГОСТ 17625-83

Конструкции и изделия железобетонные. Радиационный метод определения толщины защитного слоя бетона, размеров и расположения арматуры

37. ГОСТ 18105-86

Бетоны. Правила контроля прочности

38. ГОСТ 20910-90

Бетоны жаростойкие. Технические условия

39. ГОСТ 22690-88

Бетоны. Определение прочности механическими методами неразрушающего контроля

40. ГОСТ 26633-91

Бетоны тяжелые и мелкозернистые. Технические условия

41. РТМ 17-01-2002*

Руководящие технические материалы по проектированию и применению сталефибробетонных строительных конструкций

42. РТМ 17-02-2003

Руководящие технические материалы по проектированию и изготовлению сталефибробетонных конструкций на фибре, резаной из листа

43. РТМ 17-03-2005

Руководящие технические материалы по проектированию, изготовлению и применению сталефибробетонных строительных конструкций на фибре из стальной проволоки

44. Технические условия ТУ 0882-193-46854090-2005. Фибра стальная фрезерованная для армирования бетона

45. Технические условия ТУ 0991-123-53832025-2001. Фибра стальная для дисперсного армирования бетона

46. Технические условия ТУ 1211-205-46854090-2005. Фибра стальная проволочная для армирования бетона

ПРИЛОЖЕНИЕ В
ТЕРМИНОЛОГИЯ

Сталефибробетон - исходный бетон (бетон-матрица), армированный равномерно распределенными в его объеме стальными фибрами.

Исходный бетон (бетон-матрица) - тяжелый или мелкозернистый бетон на плотных заполнителях.

Фибровая арматура (фибра) - стальные короткие волокна, резаные из листа, фрезерованные из сляба или рубленные из проволоки, в агрегатном состоянии, определяемом технологическим регламентом их изготовления.

Сталефибробетонные конструкции с фибровым армированием (фибробетонные) - конструкции из бетона, армированного только фиброй.

Сталефибробетонные конструкции с комбинированным армированием (комбинированно армированные) - конструкции из фибробетона, армированные также стержневой арматурой, в том числе предварительно напряженной.

Самонапряженные сталефибробетонные конструкции - конструкции из сталефибробетона (в том числе комбинированные), бетон-матрица которого выполняется на напрягающем цементе.

Процент фибрового армирования по объему - объем фибр в единице объема сталефибробетона в процентах.

Процент фибрового армирования по массе - отношение массы фибр, содержащихся в единице объема фибробетона, к массе этой единицы объема в процентах.

Коэффициент фибрового армирования по объему - относительное содержание объема фибр в единице объема сталефибробетона.

 




ГОСТЫ, СТРОИТЕЛЬНЫЕ и ТЕХНИЧЕСКИЕ НОРМАТИВЫ.
Некоммерческая онлайн система, содержащая все Российские Госты, национальные Стандарты и нормативы.
В Системе содержится более 150000 файлов нормативно-технической документации, действующей на территории РФ.
Система предназначена для широкого круга инженерно-технических специалистов.

Рейтинг@Mail.ru Яндекс цитирования

Copyright © www.gostrf.com, 2008 - 2026