Крупнейшая бесплатная информационно-справочная система онлайн доступа к полному собранию технических нормативно-правовых актов РФ. Огромная база технических нормативов (более 150 тысяч документов) и полное собрание национальных стандартов, аутентичное официальной базе Госстандарта. GOSTRF.com - это более 1 Терабайта бесплатной технической информации для всех пользователей интернета. Все электронные копии представленных здесь документов могут распространяться без каких-либо ограничений. Поощряется распространение информации с этого сайта на любых других ресурсах. Каждый человек имеет право на неограниченный доступ к этим документам! Каждый человек имеет право на знание требований, изложенных в данных нормативно-правовых актах!

  


 

Открытое акционерное общество

Проектно-конструкторский и технологический институт промышленного строительства

ОАО ПКТИпромстрой

 

УТВЕРЖДАЮ

Генеральный директор, к.т.н.

_____________С.Ю. Едличка

«21» апреля 2006 г.

ТЕХНОЛОГИЧЕСКАЯ КАРТА НА ДЕМОНТАЖ ПЕРЕКРЫТИЙ ПО ДЕРЕВЯННЫМ БАЛКАМ РЕКОНСТРУИРУЕМЫХ ЗДАНИЙ
133-06 ТК

Главный инженер

____________А.В. Колобов

Начальник отдела

_________Б.И. Бычковский

2006

Содержание

Технологическая карта на демонтаж перекрытий по деревянным балкам реконструируемых зданий является организационно-технологическим документом, регламентирующим правила производства работ по демонтажу перекрытий.

В карте приведены указания по организации и технологии демонтажа перекрытий по деревянным балкам реконструируемых зданий, представлены схемы механизации, а также приведены данные по контролю качества и приемке работ, требования безопасности и охраны труда, экологической и пожарной безопасности при производстве работ.

Технологическая карта предназначена для производителей работ, мастеров и бригадиров организаций, производящих демонтаж перекрытий по деревянным балкам реконструируемых зданий, а также работников технического надзора заказчика и инженерно-технических работников строительных организаций.

Технологическая карта разработана сотрудниками ОАО ПКТИпромстрой в составе:

Савина О.А. - разработка технологической карты, компьютерная обработка и графика;

Черных В.В. - общее технологическое сопровождение;

Бычковский Б.И. - разработка технологической карты, техническое руководство, корректура и нормоконтроль;

Колобов А.В. - общее техническое руководство разработкой технологических карт;

Едличка С.Ю., к.т.н., - общее руководство разработкой технологической документации;

1 ОБЩИЕ ДАННЫЕ

1.1 Настоящая технологическая карта разработана на разборку и демонтаж конструкций междуэтажных перекрытий с деревянными балками и междубалочным заполнением в виде подбора (наката) из досок или пластин со смазкой (засыпкой) и чистым полом из шпунтованных досок или паркета по дощатому настилу при реконструкции или капитальном ремонте культурно-просветительских, административных и гражданских зданий.

Технологической картой предусмотрена полная замена перекрытий с использованием грузоподъемных механизмов при ремонте зданий.

В качестве основного строительного механизма, используемого для производства демонтажных работ, применяется башенный кран. Возможны варианты использования и других грузоподъемных механизмов, имеющихся в наличии у строительных подрядных организаций. Вместо башенного крана могут быть приняты легкий передвижной, автомобильный или пневмоколесный краны, осуществляющие перемещение грузов через верх ремонтируемого здания. Окончательный вариант механизации работ по разборке и демонтажу конструкций перекрытий устанавливается проектом производства работ.

1.2 Технологическая карта является составной частью ППР и предназначается для инженерно-технического персонала (прорабов, мастеров) и рабочих строительных организаций, занятых на демонтаже междуэтажных перекрытий по деревянным балкам, сотрудников технадзора заказчика, осуществляющих надзорные функции за технологией и качеством выполнения работ.

1.3 Привязка технологической карты к конкретным объектам и условиям строительства состоит в уточнении объемов работ, средств механизации, потребности в трудовых и материально-технических ресурсах, а также графической схемы организации строительного  процесса соответственно фактическим размерам здания и окружающей ситуации, исходя из условий обеспечения безопасной работы.

1.4 Форма использования технологической карты предусматривает обращение ее в сфере информационных технологий с включением в базу данных по технологии и организации строительного производства автоматизированного рабочего места технолога строительного производства (АРМ ТСП), подрядчика и заказчика.

2 ОРГАНИЗАЦИЯ И ТЕХНОЛОГИЯ ВЫПОЛНЕНИЯ РАБОТ

2.1 Для проведения работ по разборке перекрытий кроме материалов обследования технического состояния конструкций заказчику в соответствии с «Положением о едином порядке предпроектной и проектной подготовки строительства в г. Москве» необходимо иметь комплект документов в составе:

- правоустанавливающих документов на использование объекта;

- согласованной в установленном порядке и утвержденной Заказчиком проектной документации;

- разрешения на осуществление градостроительной деятельности (проведение капитального ремонта);

- разрешения (ордера) на производство работ.

2.2 Заказчиком и подрядной организацией совместно с генеральной проектной организацией должны быть:

- согласованы объемы, технологическая последовательность, сроки выполнения работ, а также условия их совмещения с работой производственных цехов и участков, реконструируемого здания;

- определен порядок оперативного руководства, включая действия строителей и эксплуатационников, при возникновении аварийных ситуаций;

- определены последовательность разборки конструкций, а также разборки или переноса инженерных сетей, места и условия подключения временных сетей водоснабжения, электроснабжения и др.;

- составлен перечень услуг заказчика и его технических средств, которые могут быть использованы строителями в период производства работ;

- определены условия организации перевозок и складирования грузов и передвижения строительной техники по территории объекта, а также размещения мобильных (инвентарных) зданий и сооружений;

- разработан технический регламент обращения с отходами.

2.3 В состав работ по разборке перекрытия входят: разборка чистых полов и лаг, удаление теплозвукоизоляционной засыпки, разборка подбора, разборка дощатой подшивки потолка, распиливание у опор и удаление балок за пределы здания.

Варианты конструктивных решений перекрытия представлены на рисунке 1.

Рисунок 1 - Перекрытие по деревянным балкам с чистым полом из шпунтованных досок (а) и паркетным полом (б)

2.4 До начала работ по разборке конструкций необходимо произвести повторное обследование здания с выявлением конструктивных элементов, угрожающих обрушением или утративших несущую способность, и составлением акта, произвести установку временных креплений, ремонт и усиление этих конструкций, после чего необходимо:

- освободить подлежащее ремонту здание или его часть от пребывания людей;

- предусмотреть решения, предупреждающие условия возникновения опасных зон;

- оградить территорию стройплощадки;

- установить, при необходимости, по фасаду здания леса с натянутой сеткой в качестве защитного ограждения;

- устроить временные площадки для установки контейнеров для мусора, складирования конструкций и материалов от разборки перекрытий;

- отключить и демонтировать кабели, трубопроводы, инженерные сети, питающие подлежащее ремонту здание (или его часть).

2.5 До начала разборки перекрытия должны быть выполнены следующие работы:

- разборка конструкций крыши и вышележащих перекрытий;

- демонтаж санитарно-технических устройств и сети электроосвещения;

- пробивка и заделка оконных и дверных проемов в каменных стенах, предусмотренных проектной документацией;

- усиление при необходимости остающихся конструкций;

- необходимое крепление временными стойками и прогонами разбираемых и нижележащих перекрытий, если последние угрожают обрушением.

2.6 Разборка и демонтаж элементов междуэтажного перекрытия производится сверху вниз в порядке, обратном монтажу, начиная с дальней точки захватки, и состоит из следующих операций:

- разборка чистых полов и лаг:

а) из шпунтованных досок и брусков;

б) паркетных из штучного и щитового паркета.

- удаление звукотеплоизоляционной засыпки;

- разборка деревянного подбора;

- разборка дощатой подшивки потолка;

- демонтаж балок перекрытия.

Последовательность разборки элементов перекрытия показана на рисунке 2.

а - вид до разборки; б - после снятия чистого пола с основанием; в - после удаления засыпки; г- после удаления подборов в момент отбивки подшивки потолка; 1 - временный настил.
Рисунок 2 - Последовательность разборки элементов междуэтажного перекрытия с паркетным полом

2.7 Порядок разборки чистых полов и лаг:

2.7.1 Разборка чистого пола из шпунтованных досок и брусков.

Полы из шпунтованных досок и брусков разбираются в последовательности, как показано на рисунке 3:

- снимают с помощью ломиков плинтуса, галтели и половые вентиляционные решетки;

- удаляют одну из фризовых досок пола;

- разбирают рядовые доски пола, последовательно поднимая ломиками одну за другой;

- разбирают лаги из досок или пластин.

1,2,3 - очередность выполнения операций
Рисунок 3 - Схема разборки чистых полов из шпунтованных досок и брусков

В целях обеспечения сохранности досок пола (не повреждая шпунта или гребня и паза) для последующего использования их по своему прямому назначению, эта работа выполняется в следующей последовательности: с помощью ломика доска незначительно отрывается от лаги и ударами молотка осаждается вниз. После выдергивания гвоздей освобожденная доска удаляется из помещения к месту складирования в колодце и укладывается в пакеты с последующим перемещением башенным краном за пределы ремонтируемого здания на приобъектный склад (площадку складирования) или в транспорт.

Рабочие трапы укладываются непосредственно на три смежные лаги и по мере разборки досок пола перемещаются по лагам к очередной разбираемой доске с помощью металлической скобы из арматурной стали A-I Æ 12...14 мм длиной 1,0 м.

При разборке чистых полов из шпунтованных досок необходимо обеспечить устройство ходовых настилов из двух-трех досок через 1,5...2,0 м для прохода рабочих в безопасную зону при транспортировке груза. Ходовые доски сохраняют до полного удаления засыпки (смазки), подбора подшивки (накатов) и балок. С учетом фактического технического состояния разбираемых полов и лаг производителем работ может быть принято решение оставить 3...4 доски для этих настилов общей шириной до 0,5 м, а при несоответствии расположения досок - для создания соответствующей ширины ходового настила.

2.7.2 Разборка паркетного пола.

Разборку реечного паркета начинают с плинтусов и фризов. Штучные паркетные клепки отрывают от основания в отдельности одна от другой с помощью ломиков. Щитовой паркет снимают целыми щитами с предварительным перепилом их по квадратам заклейки: каждый щит поднимают ломиками, отрывая целый щит от обрешетки и смежных щитов, как показано на рисунке 4. После снятия щиты складируются в штабеля, после чего разбирают обрешетку.

1 - подбор; 2 - балка перекрытия с черепными брусками; 3 - обрешетка из досок по балкам; 4 - засыпка; 5 - перепил по квадратам заклейки; 6 - паркетные щиты
Рисунок 4 - Разборка щитового паркетного пола

2.8 Подсобные рабочие совместно со стропальщиком разобранные паркетные щиты складывают в штабель для последующей транспортировки с помощью башенного крана на площадку складирования или в транспорт.

Накопление материалов от разобранных полов в пакетах выполняется на деревянных подкладках на площадках, отстоящих от несущих капитальных стен на расстоянии не более 1,5 м. Объем пакета определяется в ППР в зависимости от состояния балок перекрытия и грузоподъемности монтажного механизма.

Транспортировка пакета с пиломатериалами выполняется следующим образом: стропальщик зацепляет стропами пакет и условным сигналом дает команду машинисту башенного крана (при отсутствии прямой видимости между машинистом и стропальщиком с помощью радиосвязи) на подъем груза на высоту 20...30 см. Осмотрев пакет и убедившись в правильности и надежности строповки груза, стропальщик подает сигнал рабочим покинуть опасную зону, а машинисту башенного крана - на дальнейший подъем и транспортировку пакета на объектовую складскую площадку или в автотранспорт. Сам стропальщик также покидает опасную зону до начала подъема груза. Дальнейшее наблюдение за транспортируемым грузом ведет машинист башенного крана и стропальщик, находящийся у объектовой складской площадки.

2.9 Перед удалением засыпки (смазки) ее разрыхляют с помощью пневматического отбойного молотка или ломика, при сухой ветреной погоде по необходимости смачивают. Разрыхленную засыпку (смазку) удаляют совковыми лопатами в ящики, установленные на деревянных щитах, или контейнеры, которые устанавливают на подкладки из досок не далее 1,5-2 м от опор балок. Загруженные ящики или контейнеры транспортируются башенным краном в приемный объектовый бункер-мусоросборник (отвал) или непосредственно в автотранспорт. Щит под ящик-мусоросборник укладывается на две смежные балки перекрытия на расстоянии не более 1,5 м от их заделки в кирпичную стену и переставляется на смежные участки перекрытия по мере удаления засыпки с предыдущих участков. Работы выполняются с ходовых настилов, выполненных в период разборки полов. В целях максимального использования башенного крана по транспортировке засыпки с перекрытия на объектовый склад необходимо устанавливать несколько бункеров под загрузку засыпкой (определяется ППР, исходя из фактических объемов работ), как показано на рисунке 5. Для удаления строительного мусора допускается использование и мусоропроводов.

Рисунок 5 - Схема удаления звукотеплоизоляции (засыпки) перекрытия

2.10 Подбор снимают при помощи специального ломика с ходовых настилов и укладывают в пакеты на прокладки, уложенные на балки перекрытия. При наличии балок с пазами доски подбора разбирают, поворачивая в горизонтальной плоскости перекрытия до полного выхода его концов из пазов балок. Снятые подборы укладывают в штабель и удаляют с помощью башенного крана. Схема разборки подбора приведена на рисунке 6.

1,2 - очередность и направление для разбираемой пластины подбора
Рисунок 6 - Схема разборки деревянного подбора

2.11 Разборка дощатой подшивки потолка выполняется следующим образом: с площадок монтажника (проект № 1999 «Мосоргстрой») по периметру помещений на нижележащем этаже в примыканиях стен к потолку штукатурным молотком отбивается штукатурка полосами шириной не менее 200 мм. Мусор убирается от стен и окучивается с таким расчетом, чтобы не мешал установке площадок монтажника.

С ходовых трапов, ранее уложенных на балки перекрытия, одновременными ударами ломами по подшивке у балок производят отрыв обрезанных участков подшивки от этих балок перекрытия на нижележащее перекрытие. При разобранным таким способом участке подшивки шириной не менее 1,0 м дальнейшую разборку подшивки выполнять ломиками-гвоздодерами на отдельные доски непосредственно на нижележащем перекрытии.

Во избежание возможного травмирования торчащими гвоздями в досках последние выдергиваются или загибаются, а доски равномерно распределяются на нижележащем перекрытии с последующим пакетированием и удалением из захватки башенным кранам на объектовый склад или в автотранспорт через участки, освобожденные от балок перекрытия.

Выход рабочих в безопасную зону при перемещении башенным краном пакета с подшивкой и возвращение обратно на рабочее место выполняется по сигналу стропальщика по ходовым настилам.

2.12 Удаление деревянных балок выполняется по одному из нижеприведенных вариантов:

- распиливание балок у опор (стен) согласно рисункам 7 и 8, при удовлетворительном состоянии балок, с предварительной строповкой и последующим удалением за пределы ремонтируемого здания;

- дополнительное распиливание балок посередине пролета в случае значительного повреждения балок гнилью или жучком.

Разборка балок выполняется в следующей последовательности:

- балка подпирается в трех местах со стороны опор (у стен) и в середине ее пролета инвентарной переставной сборно-разборной поддерживающей системой или телескопическими стойками;

- с помощью пневматического молотка освобождаются концы балок, заделанные в кирпичные стены;

- ломами отгибаются металлические анкеры на концах балки в сторону;

- выполняются поперечные перепилы балки;

- застроповываются балки двухветвевым стропом и соответствующими кольцевыми в двух точках на расстоянии 1/4L от мест поперечного перепила балки и удаляются за пределы здания;

- удаляют оставшиеся концы.

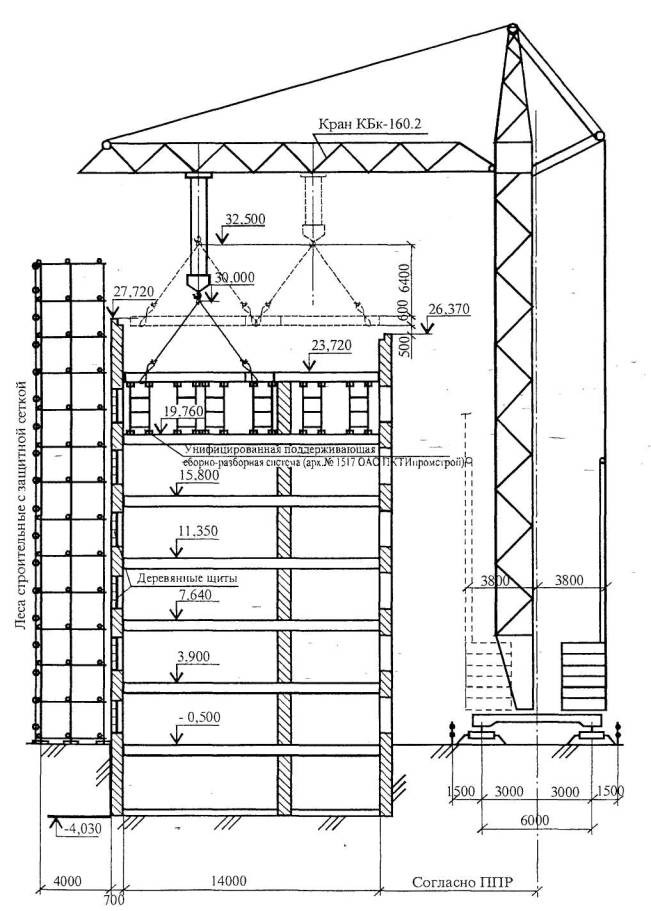
Рисунок 7 - Схема привязки крана на период разборки перекрытий

Рисунок 8 - Схема разборки междуэтажного перекрытия по деревянным балкам

В случае отсутствия внутренних стен для обеспечения пространственной жесткости и устойчивости здания при разборке перекрытий необходимо сохранить не потерявшую прочность каждую четвертую балку, заделанную и заанкерную в стенах, до установки металлических связей.

Все операции по разборке балок производят с временного настила из двух-трех досок, которые опирают на соседние балки. Последние две-три балки на захватке разбирают с временных подмостей, устанавливаемых (после удаления подшивки потолка) на нижележащем перекрытии.

2.13 При разборке перекрытий на отдельных участках или захватках без применения башенного крана до разборки балок снимают чистый пол, удаляют подшивку, разбирают смазку (засыпку) и подборы. Удаление смазки (засыпки) производят со спуском материалов по звеньевому мусоропроводу или деревянному лотку. Разборку балок выполняют с подмостей, установленных на нижележащем перекрытии.

2.14 При частичной реконструкции (замене одной или нескольких балок) сгнившую балку выпиливают и удаляют по частям с целью сохранения возможно большей части перекрытия. Эту работу лучше всего осуществлять с дощатых настилов, переброшенных через соседние здоровые балки.

2.15 Установка стоек унифицированной поддерживающей системы производится на деревянные щиты, уложенные на перекрытие, не утратившее несущую способность.

Унифицированная поддерживающая сборно-разборная система (арх. №1517) разработана ОАО ПКТИпромстрой и предназначена для поддержания горизонтальных и наклонных перекрытий, лестничных маршей и т. д., для разборки и демонтажа конструкций при реконструкции зданий. Основной несущий элемент системы - одиночная тура высотой до 8,0 м, воспринимающая нагрузку 8 т. Размеры туры в плане 1 м ´ 1 м, высота ее регулируется в зависимости от высоты этажа для данного ремонтируемого здания. Вся система собирается из одиночных тур, устанавливаемых с шагом 1 м; для придания большей жесткости туры соединяются между собой с помощью горизонтальных и вертикальных связей.

2.16 При наличии башенного крана засыпку, замазку, утеплитель и др. сыпучий материал грузят совковыми лопатами в контейнеры, которые разгружаются в автотранспорт или бункер-мусоросборник. Подборы снимают с помощью ломика. Балки, не используемые в дальнейшем для устройства перекрытий, удаляют башенным краном.

2.17 При демонтаже деревянных балок необходимо соблюдать следующие требования:

- привязать к вырезанному элементу пеньковые оттяжки и застроповать; при этом в зоне захватки, в которой демонтируется элемент, и в соседней с ней не должны находиться люди, кроме монтажника, имеющего радиосвязь с машинистом крана;

- приподнять застропованный элемент на 0,3 м над проектным положением;

- проверить правильность и надежность строповки;

- произвести подъем застропованного элемента на 0,5 м над верхним габаритом здания, после чего машинист поворачивает стрелу крана в сторону площадки складирования; при этом подъем демонтируемого элемента должен быть плавным, без рывков и толчков.

2.18 При разборке конструкций необходимо обеспечить такую последовательность операций, чтобы удаление одного конструктивного элемента не вызвало бы обрушения других конструктивных элементов.

2.19 Деревянные балки нужно обрезать аккуратно, без загибов. Обрезанные балки демонтировать и переместить в установленные места с укладкой по прокладкам. Места обрезки зачистить и обработать кузбасс-лаком. Разборку других элементов перекрытия, пригодных для дальнейшего использования в иных целях, следует производить с особой аккуратностью, не ломая их.

2.20 Разборка конструкций перекрытий должна производиться при минимальном разрушении кирпичных стен. При высвобождении концов балок гнезда следует расширять не более, чем это требуется для выемки концов балок; отогнутые металлические анкера следует сохранять в теле стены и по возможности использовать их для анкеровки вновь монтируемых элементов перекрытия.

2.21 Разборка должна быть выполнена с максимальным выходом годного для дальнейшего использования материала, материалы от разборки подлежат вывозке с территории объекта ремонта или уложены на складских площадках в соответствии с проектом производства работ. Облагороженные и пригодные для повторного использования пиломатериалы от дощатых покрытий полов, балки перекрытий, паркетные щиты, доски от подшивки потолков могут повторно использоваться при устройстве временных зданий и других малоответственных конструкций.

2.22 Схема организации работ на захватке при демонтаже перекрытий по деревянным балкам показана на рисунке 9.

1 - контейнер; 2 - временный настил; 3 - балки перекрытия; А, Б, Д, Е - рабочие места плотников; В, Ж - рабочие места подсобных рабочих; Г -рабочее место такелажника
Рисунок 9 - Схема организации работ на захватке

Работы выполняются звеном из 7 человек, состав которых по профессиям и квалификации приведен в таблице 1.

Таблица 1 - Состав звена по профессиям и квалификации

Профессия

Разряд

Количество

Плотники

4

1

Плотники

2

2

Стропальщики (такелажники)

2

2

Подсобные рабочие

1

1

Работа между исполнителями распределяется следующим образом:

- снятие плинтусов, галтелей с загибанием гвоздей и половых вентиляционных решеток выполняет 1 плотник;

- разборку чистого пола выполняют 2 плотника, снятые доски убирают подсобный рабочий и такелажник;

- удаление смазки (засыпки) производится всем звеном с одновременной загрузкой двух контейнеров;

- разборку подборов и отрыв подшивки от балок выполняют 2 плотника, снятые подборы убирают подсобный рабочий и такелажник;

- высвобождение концов балок с расширением гнезд и отгибом анкеров производят 2 плотника 2 разряда;

- перепил балок выполняют плотники 4 и 2 разрядов, удаление перепиленной балки с помощью башенного крана - такелажники;

- удаление подшивки производится всем звеном, при этом один такелажник находится для приемки и расстроповки грузов, перемещаемых на приобъектный склад или подаваемых непосредственно в транспорт.

В период удаления балок временно высвобождающиеся 2-3 рабочих ведут разборку конструкций на следующей захватке.

2.23 При демонтаже перекрытий по деревянным балкам при реконструкции зданий работы следует вести в соответствии с правилами производства и приемки работ согласно:

- СНиП 12-01-2004 Организация строительства;

- СНиП 3.03.01-87 Несущие и ограждающие конструкции.

3 ТРЕБОВАНИЯ БЕЗОПАСНОСТИ И ОХРАНЫ ТРУДА, ЭКОЛОГИЧЕСКОЙ И ПОЖАРНОЙ БЕЗОПАСНОСТИ

3.1 При демонтаже перекрытий по деревянным балкам при реконструкции зданий и сооружений в процессе производства работ на работников могут воздействовать следующие опасные и вредные производственные факторы, связанных с характером работы:

- самопроизвольное обрушение элементов конструкции строения и падение строительного мусора;

- движущиеся части используемого ручного инструмента;

- повышенное содержание в воздухе рабочей зоны пыли и вредных веществ:

- расположение рабочего места вблизи перепада на высоте 1,3 м и более;

- острые кромки, углы, торчащие штыри;

- подвижные части грузоподъемного крана;

- перемещаемые материалы и конструкции от разборки.

3.2 До начала ремонтных работ должны быть выполнены предусмотренные проектом подготовительные работы, окончание которых должно быть принято по акту о выполнении мероприятий по безопасности труда.

3.3 К работам по демонтажу перекрытий, связанных с использованием средств подмащивания и грузоподъемных механизмов, допускаются лица не моложе 18 лет, имеющие профессиональные навыки, прошедшие медицинское освидетельствование и признанные

годными, получившие знания по безопасным методам и приемам труда согласно ГОСТ 12.0.004-90 «ССБТ. Организация обучения безопасности труда. Общие положения», сдавшие экзамены квалификационной комиссии в установленном порядке и получившие соответствующие удостоверения.

3.4 Одновременные работы по разборке конструкций или демонтажа оборудования в процессе разборки перекрытий в нескольких ярусах одной захватки по вертикали не допускаются. Доступ в нижележащие этажи и на смежные захватки должен быть закрыт.

3.5 Перекрытия не должны иметь неогражденных отверстий. Проемы в стенах с подоконной частью ниже 70 см, дверные проемы в зону, где разобраны перекрытия, должны быть надежно закрыты, отверстия в перекрытиях должны быть ограждены на высоту 1,1 м.

3.6 Запрещается перегружать перекрытия строительным мусором и материалами от разборки. Накопившийся строительный мусор и материалы от разборки должны немедленно вывозиться.

3.7 При разборке перекрытий запрещается работать на подборах (накате), а также складировать на них материалы от разборки и строительный мусор.

3.8 Запрещается после удаления подборов становиться на подшивку потолка.

3.9 Запрещается пронос деревянных балок и других грузов краном над рабочим местом, на котором производится разборка, и над соседними захватками.

3.10 В смежных секциях здания вести демонтаж одновременно всех перекрытий запрещается. Внутренние капитальные стены здания в процессе демонтажа старых и монтажа новых перекрытий должны сохранять конструктивную связь с перекрытиями, расположенными в смежных секциях.

3.11 Оконные проемы с разобранными заполнениями должны быть зашиты двумя-тремя досками, дверные проемы в стенах, ограждающих участки с разобранными перекрытиями, должны быть надежно забиты.

3.12 При разборке деревянных балок перекрытий в многоэтажных домах необходимо сохранять каждую четвертую балку, заделанную в стену, для обеспечения пространственной жесткости и устойчивости здания при полной разборке перекрытий. Оставляемые на этаже балки должны располагаться в одной вертикали и демонтироваться по мере монтажа и анкеровки новых элементов перекрытий.

3.13 Зоны, опасные для нахождения людей, на время ремонтных работ должны быть ограждены, иметь предупредительные надписи об опасности. Во избежание доступа посторонних лиц производственные территории и участки работ должны быть обнесены защитным ограждением высотой соответственно не менее 1,6 м и не менее 1,2 м. Ограждения, примыкающие к местам массового прохода людей, должны иметь высоту не менее 2 м и оборудованы сплошным защитным козырьком.

3.14 Рабочие места и проходы к ним, расположенные на перекрытиях, покрытиях на высоте более 1,3 м и на расстоянии менее 2 м от границы перепада по высоте, должны быть ограждены предохранительными или страховочными ограждениями, а при расстоянии более 2 м - сигнальными ограждениями, соответствующими требованиям ГОСТ 12.4.059-89.

3.15 Проемы в стенах с подоконной частью ниже 70 см, дверные проемы в зону, где разобраны перекрытия, должны быть надежно закрыты, отверстия в перекрытиях должны быть ограждены на высоту 1,1 м.

3.16 Входы в реконструируемые здания и сооружения должны быть защищены сверху козырьком шириной не менее 2 м от стены здания. Угол, образуемый между козырьком и вышерасположенной стеной над входом, должен быть 70-75°.

3.17 Строительные площадки, участки работ и рабочие места, проезды и подходы к ним в темное время суток должно быть освещены в соответствии с требованиями ГОСТ 12.1.046-85. Освещение закрытых помещений должно соответствовать требованиям СНиП 23-05-95.

Освещенность должна быть равномерной, без слепящего действия осветительных приспособлений на работающих. Производство работ в неосвещенных местах не допускается.

3.18 Для обеспечения безопасных условий работы согласно ст. 9.4.2 ПБ 10-382-00 должны быть назначены ответственные инженерно-технические работники и стропальщики.

Производственные территории, участки работ и рабочие места должны быть обеспечены необходимыми средствами коллективной и индивидуальной защиты работающих, первичными средствами пожаротушения, а также средствами связи, сигнализации и другими техническими средствами обеспечения безопасных условий труда, в соответствии с требованиями действующих нормативных документов и условиями соглашений.

3.19 На время работ по разборке должна быть обеспечена радиосвязь монтажников и такелажников с машинистом грузоподъемного крана.

3.20 Сигнал «Стоп» подается любым работником, заметившим опасность.

3.21 При демонтаже балок перекрытия к ним привязать пеньковые канаты (оттяжки), с помощью которых монтажники удерживают элемент от раскачивания и ударов о конструкции здания. Подъем демонтируемого элемента должен быть плавным без рывков и толчков. Монтажники должны находиться со стороны, противоположной перемещению балки и должны находиться за пределами границ опасной зоны.

3.22 Запрещается оставлять нависающие, неустойчивые, могущие самопроизвольно обрушиться конструкции или отдельные элементы здания (доски, щитовой накат, утеплитель и т. д.).

3.23 С особой осторожностью следует производить работы по демонтажу перекрытий, пораженных домовым грибком или жуком. При обнаружении аварийного состояния конструкций рабочие должны быть немедленно удалены из опасной зоны. Опасная зона согласно требованиям СНиП 12-03-2001 должна быть немедленно ограждена с установкой предупреждающих знаков либо выставлена охрана. К работе можно приступить по письменному указанию главного инженера и оформления наряд-допуска с указанием мероприятий, гарантирующих безопасные условия работ.

3.24 Рабочие должны быть обеспечены предохранительными поясами со страховочным фалом, карабин которого надежно закрепляется за прочную конструкцию, указываемую мастером или бригадиром.

3.25 К работе с электрифицированным инструментом допускаются лица не моложе 18 лет, прошедшие медицинское освидетельствование, обученные правилам пользования инструментом и безопасности труда, имеющие группу по электробезопасности не ниже II, а для подключения и отключения электроточек с группой не ниже III. Весь электрифицированный инструмент подлежит учету и регистрации в специальном журнале. На каждом экземпляре инструмента должен стоять учетный номер. Наблюдение за исправностью и своевременным ремонтом электрифицированного инструмента возлагается на отдел главного механика строительной организации. Перед выдачей электрифицированного инструмента необходимо проверить его исправность (отсутствие замыкания на корпус, изоляцию у питающих проводов и рукояток, состояние рабочей части инструмента) и работу его на холостом ходу.

3.26 При резке элементов конструкций должны быть приняты меры против случайного обрушения отрезанных элементов.

3.27 Все рабочие должны быть обеспечены специальной одеждой, обувью и другими средствами индивидуальной защиты.

3.28 Для предупреждения пылеобразования и гашения поднявшейся пыли при разборке перекрытий строительный мусор необходимо смочить водой. По фасадам здания должна быть натянута плотная синтетическая сетка.

3.29 Грузозахватные устройства и тара, применяемые при перемещении кранами грузов, должны быть испытаны нагрузкой, превышающей не менее чем в 2 раза их номинальную грузоподъемность.

3.30 В зоне работы необходимо иметь комплекты противопожарных средств из расчета 1 комплект на 200 м2 площади.

3.31 Все работы по разборке и демонтажу конструкций перекрытия вести в присутствии и под руководством ответственных ИТР в соответствии с правилами производства и приемки работ согласно СНиП 3.03.01-87 при соблюдении требований безопасности труда согласно:

- СНиП 12-01-2004 «Организация строительства»;

- СНиП 12-03-2001 «Безопасность труда в строительстве. Часть 1. Общие положения»;

- СНиП 12-04-2002 «Безопасность труда в строительстве. Часть 2. Строительное производство»;

- ППБ 01-03 «Правила пожарной безопасности в Российской Федерации»;

- СанПиН 2.2.3.1384-03 «Гигиенические требования к организации строительного производства и строительных работ»;

- СП 12-135-2003 «Безопасность труда в строительстве. Отраслевые типовые инструкции по охране труда».

4 ПОТРЕБНОСТЬ В МАТЕРИАЛЬНО-ТЕХНИЧЕСКИХ РЕСУРСАХ

4.1 Для выполнения работ по разборке и демонтажу перекрытий могут быть использованы в зависимости от технических характеристик и вида работ указанные в таблице 2 машины, механизмы, инструмент и приспособления.

Таблица 2 - Ведомость машин, механизмов, инструмента, приспособлений и средств индивидуальной защиты

№ п/п

Наименование

Тип, марка, ГОСТ

Техническая характеристика

Назначение

Количество на звено, шт.

1

2

3

4

5

6

1

Кран

Согласно ППР

Спуск разобранных материалов и деревянных балок

1

2

Автосамосвал

МАЗ-5551

 

Вывоз строительного мусора и разобранных материалов

По потребности

3

Компрессор

ЗИФ-55

 

 

1

4

Лопата совковая

ЛС ГОСТ 19596-87

 

Для погрузки разрыхленной засыпки

7

5

Специальные ломики

 

 

 

4

6

Контейнер для мусора

 

 

 

2

7

Пила-ножовка

ПИ-3

 

 

4

8

Лом-гвоздодер

ЛГ-25

 

 

4

9

Лом монтажный

ЛМ-24

 

 

3

10

Кувалда тупоносая

ГОСТ 11402-75*

 

 

2

11

Площадка монтажника

Проект №1999 Мосоргстрой

 

 

3

12

Мусоросборник

 

 

 

1

13

Металлическая скоба

 

 

Для перемещения трапов

2

14

Унифицированная поддерживающая сборно-разборная система

Проект №1517 ПКТИпромстрой

 

 

140,4 м3

15

Лестница приставная этажная

№18279-15

 

 

4

16

Метр складной металлический

ТУ 12-156-76

 

 

2

17

Рулетка металлическая

РС-10

 

 

1

18

Шнур разметочный

ТУ 22-4633-80

 

 

2

19

Бензомоторная или электрическая пила

 

 

 

2

20

Отбойные молотки

 

 

 

2

21

Топоры

 

 

 

4

22

Двухветвевой строп

2СК-5,0/5000 ГОСТ 25573-82*

 

 

1

23

Кольцевой строп

СКК1-2,0/2500 ГОСТ 25573-82*

 

 

2

24

Каска строительная

ГОСТ 12.4.087-84

 

Для защиты головы

7

25

Рукавицы

ГОСТ 12.4.010-75*

 

Индивидуальное средство защиты

7 пар

26

Пояс предохранительный для монтажников

ГОСТ Р 50849-96*

 

Для безопасной работы строителей

7

27

Комплект знаков по безопасности и охране труда

ГОСТ Р 12.4.026-2001

 

Для информации по безопасности труда

Компл.

28

Респиратор

«Лепесток» ГОСТ 12.4.028-76

 

Для защиты органов дыхания

7

29

Очки защитные с прямой вентиляцией

ЗП-2-80

 

Для защиты глаз

7

30

Сапоги кирзовые

ГОСТ 5394-74

 

Индивидуальное средство защиты

7 пар

5 ТЕХНИКО-ЭКОНОМИЧЕСКИЕ ПОКАЗАТЕЛИ

5.1 В качестве примера разборки и демонтажа конструкций междуэтажных перекрытий по деревянным балкам принята захватка площадью 50 м2 с шагом балок перекрытий 1,5 м, на объемы работ которой составлены калькуляция затрат труда и машинного времени и календарный план производства работ.

5.2 Затраты труда и машинного времени на разборку и демонтаж конструкций междуэтажных перекрытий подсчитаны по «Единым нормам и расценкам на строительные, монтажные и ремонтно-строительные работы», введенным в действие в 1987 г., и представлены в таблице 3.

Таблица 3 - Калькуляция затрат труда и машинного времени на разборку дощатых полов и демонтаж перекрытия по деревянным балкам при реконструкции здания

Измеритель конечной продукции 50 м2 перекрытия

и/и

Обоснование (ЕНиР и др. нормы)

Наименование технологических процессов

Ед. изм.

Объем работ

Нормы времени

Затраты труда

рабочих, чел.-ч.

машиниста, чел.-ч., (работа машин, маш.-ч.)

рабочих,

чел.-ч

машиниста, чел.-ч., (работа машин, маш.-ч.)

1

2

3

4

5

6

7

8

9

1

Е20-1-66 №2

Снятие деревянных плинтусов

100 м

0,29

1,9

-

0,55

-

2

Е20-1-62 №1

Разборка чистых полов

дощатых

1 м2

50,0

0,17

-

8,5

-

3

Е20-1-62 №2

из щитового паркета

0,27

13,5

4

Е20-1-62№3

из планок

0,43

21,5

5

E1-19 №4а+4б

Переноска к месту складирования до 20 м

досок и плинтусов

1 м3

2,0

0,64+0,38

-

2,04

-

6

E1-19 №1а+1б

щитового паркета

1 т

1,0

1,1+0,72

1,82

7

E1-19 №1а+1б

планок

0,5

1,1+0,72

0,91

8

E1-20 №11

Укладка досок и плинтусов в пакеты

1 м3

2,0

0,72

-

0,44

-

9

E1-7 №28бг, 28ав

Удаление пакетов башенным краном

досок и плинтусов

100 т

0,012

13+7,2

6,4+3,6 (6,4+3,6)

0,24

0,12 (0,12)

10

E1-7 №28бг, 28ав

щитового паркета

0,01

0,2

0,1 (0,1)

11

E1-7 №28бг, 28ав

планок

0,005

0,1

0,05 (0,05)

12

Е20-1-62 №9

Разборка лаг

100 м

0,75

4,1

-

3,1

-

13

E1-19 №4а+4б

Переноска разобранных лаг к месту складирования до 20 м

1 м3

0,8

0,64+0,38

-

0,82

-

14

E1-20 №10

Укладка в пакеты

1 м3

0,8

1,1

-

0,88

 

15

E1-7 №24б,г+24а,в

Удаление пакетов башенным краном при высоте подъема до 30 м

100 т

0,005

19+8,4

 9,4+4,2 (9,4+4,2)

0,14

0,07 (0,07)

16

Е20-1-45 Табл. 1, №2

Рыхление и удаление звукоизоляционной засыпки

1 м2

50

0,27

-

13,5

-

17

Е20-1-45 Табл. 2, №3

Разборка подбора щитового оштукатуренного

10 м2

5,0

1,1

-

5,5

-

18

Е1-20 №10

Укладка в пакеты

1 м3

0,8

1,1

-

0,88

-

19

Е20-1-45 Табл. 3, №1

Разборка оштукатуренной подшивки потолка

10 м2

5,0

2,4

-

12,0

-

20

Е1-20 №10

Укладка в пакеты

1 м3

0,8

1,1

-

0,88

-

21

Е1-7 №28бг, 28ав

Удаление пакетов башенным краном при высоте подъема до 30 м

100 т

0,006

13+7,2

6,4+3,6 (6,4+3,6)

0,12

0,06 (0,06)

22

Е20-1-45 Табл. 4, №16

Разборка деревянных балок в каменных зданиях с освобождением концов балок

1 балка

7

2

-

14,0

-

23

Е1-7 №24б,г+24а,в

Удаление балок краном

100 т

0,52

19+8,4

9,4+4,2 (9,4+4,2)

14,25

7,07 (7,07)

 

ИТОГО:

дощатых

 

 

 

78,84

7,32

 

 

 

из паркета

 

 

 

82,14

7.3

 

 

 

из планок

 

 

 

89,13

7,25

 

5.3 Продолжительность работ на разборку и демонтаж конструкций перекрытий определяется календарным планом производства работ, представленным в таблице 4.


Таблица 4 - Календарный план производства работ

Измеритель конечной продукции 50 м2 перекрытия


5.4 Технико-экономические показатели составляют:

- затраты труда, чел.-час:

рабочих:

для дощатых полов ….. 78,84;

для полов из щитового паркета ….. 82,14;

для паркетных полов ….. 89,13;

машиниста:

для дощатых полов ….. 7,32;

для полов из щитового паркета ….. 7,3;

для паркетных полов ….. 7,25;

- продолжительность работ, час:

для дощатых полов ….. 35,5;

для полов из щитового паркета ….. 38,5;

для паркетных полов ….. 42,5.

6 ПЕРЕЧЕНЬ НОРМАТИВНО-ТЕХНИЧЕСКОЙ ЛИТЕРАТУРЫ

1 СНиП 12-01-2004 Организация строительства.

2 СНиП 3.03.01-87 Несущие и ограждающие конструкции.

3 СНиП 12-03-2001 Безопасность труда в строительстве. Часть 1. Общие требования.

4 СНиП 12-04-2002 Безопасность труда в строительстве. Часть 2. Строительное производство.

5 ГОСТ 12.0.004-90 ССБТ. Организация обучения безопасности труда. Общие положения.

6 ГОСТ 12.1.046-85 ССБТ. Строительство. Нормы освещения строительных площадок;

7 ГОСТ 12.4.010-75* ССБТ. Средства индивидуальной защиты. Рукавицы специальные. Технические условия.

8 ГОСТ 12.4.011-89 ССБТ. Средства защиты работающих. Общие требования и классификация.

9 ГОСТ 12.4.059-89 ССБТ. Строительство. Ограждения предохранительные инвентарные. Общие технические условия.

10 ГОСТ 12.4.087-84 ССБТ. Строительство. Каски строительные. Технические условия.

11 ЕНиР. Единые нормы и расценки на строительные, монтажные и ремонтно-строительные работы. Сборник 1. Внутрипостроечные транспортные работы.

12 ЕНиР. Единые нормы и расценки на строительные, монтажные и ремонтно-строительные работы. Сборник 20. Ремонтно-строительные работы. Выпуск 1. Здания непромышленные сооружения.

13 ПБ 10-382-00 Правила устройства и безопасной эксплуатации грузоподъемных кранов. Госгортехнадзор России, М., 2000.

14 Положение о едином порядке предпроектной и проектной подготовки строительства в г. Москве.

15 ППБ 01-03 Правила пожарной безопасности в Российской Федерации. МЧС России, М., 2003 г.

16 СП 12-135-2003 «Безопасность труда в строительстве. Отраслевые типовые инструкции по охране труда».

17 СанПиН 2.2.3.1384-03 «Гигиенические требования к организации строительного производства и строительных работ».

 




ГОСТЫ, СТРОИТЕЛЬНЫЕ и ТЕХНИЧЕСКИЕ НОРМАТИВЫ.
Некоммерческая онлайн система, содержащая все Российские Госты, национальные Стандарты и нормативы.
В Системе содержится более 150000 файлов нормативно-технической документации, действующей на территории РФ.
Система предназначена для широкого круга инженерно-технических специалистов.

Рейтинг@Mail.ru Яндекс цитирования

Copyright © www.gostrf.com, 2008 - 2026