Крупнейшая бесплатная информационно-справочная система онлайн доступа к полному собранию технических нормативно-правовых актов РФ. Огромная база технических нормативов (более 150 тысяч документов) и полное собрание национальных стандартов, аутентичное официальной базе Госстандарта. GOSTRF.com - это более 1 Терабайта бесплатной технической информации для всех пользователей интернета. Все электронные копии представленных здесь документов могут распространяться без каких-либо ограничений. Поощряется распространение информации с этого сайта на любых других ресурсах. Каждый человек имеет право на неограниченный доступ к этим документам! Каждый человек имеет право на знание требований, изложенных в данных нормативно-правовых актах!

  


 

ТИПОВАЯ
ТЕХНОЛОГИЧЕСКАЯ КАРТА
на монтаж строительных конструкций

 

7.05.01.23

 

МОНТАЖ ОПУСКОВ ОТ МАГИСТРАЛЬНЫХ ВОЗДУХОВОДОВ ПРОХОДЯЩИХ В МЕЖФЕРМЕННОМ ПРОСТРАНСТВЕ С ПРОХОДОМ ЗА ПОДКРАНОВЫМИ ПУТЯМИ

МОСКВА - 1989

РАЗРАБОТАНА

 

СОГЛАСОВАНО

Институтом ГПИ Проектпромвентиляция

 

НПО "Промвентиляция"

Главный инженер института

П.А. Овчинников

Главный инженер

В.А. Мурашкин

Начальник отдела

А.И. Иванов

Отделом механизации и технологии строительства Госстроя СССР

Главный специалист

О.К. Терехов

Письмо от 27.12.1988 г., № 23-737

Зав. сектором

В.Л. Кириллова

 

 

 

Введена в действие с 1 февраля 1989 г.

Содержание

1. ОБЛАСТЬ ПРИМЕНЕНИЯ

2. ОРГАНИЗАЦИЯ И ТЕХНОЛОГИЯ ВЫПОЛНЕНИЯ РАБОТ

3. ТРЕБОВАНИЯ К КАЧЕСТВУ И ПРИЕМКЕ РАБОТ

4. КАЛЬКУЛЯЦИЯ ЗАТРАТ ТРУДА И ЗАРАБОТНОЙ ПЛАТЫ ПРИ МОНТАЖЕ ОПУСКОВ ИЗ РАСЧЕТА НА 50 м2 ПОВЕРХНОСТИ МАГИСТРАЛЬНЫХ ВОЗДУХОВОДОВ Æ ДО 800 мм ИЛИ ПЕРИМЕТРОМ ДО 2400 мм ИЗ СТАЛИ ТОЛЩИНОЙ ДО 1 мм

5. ГРАФИК ПРОИЗВОДСТВА РАБОТ ПРИ МОНТАЖЕ ОПУСКОВ ИЗ РАСЧЕТА НА 50 м2 ПОВЕРХНОСТИ МАГИСТРАЛЬНЫХ ВОЗДУХОВОДОВ

6. МАТЕРИАЛЬНО-ТЕХНИЧЕСКАЯ ЧАСТЬ

7. ТЕХНИКА БЕЗОПАСНОСТИ

8. ТЕХНИКО-ЭКОНОМИЧЕСКИЕ ПОКАЗАТЕЛИ НА 50 м2 ПОВЕРХНОСТИ ВОЗДУХОВОДОВ

9. ФАСЕТНЫЙ КЛАССИФИКАТОР ФАКТОРОВ

 

1. ОБЛАСТЬ ПРИМЕНЕНИЯ

1.1. Типовая технологическая карта разработана из расчета устройства 50 м2 поверхности воздуховодов. Карта рекомендуется для монтажа опусков от магистральных воздуховодов, проходящих в межферменном пространстве с проходом за подкрановыми путями на промышленных объектах повышенной этажности.

1.2. Типовая технологическая карта распространяется на монтаж опусков от магистрального воздуховода круглого или прямоугольного сечения из тонколистовой стали толщиной до 1 мм, диаметром 630, 710, 800 мм или периметром от 1800 до 2400 мм.

1.3. В состав работ, рассматриваемых картой входят:

комплектование и подноска деталей к месту монтажа;

сборка воздуховодов (опусков) в укрупненные блоки, осуществляемая в пределах рабочей зоны;

установка грузоподъемных средств грузовых и отводных блоков;

подъем воздуховодов (опусков) на проектную отметку и подсоединение к магистральному воздуховоду;

закрепление опусков.

1.4. Картой предусматривается монтаж опусков от магистральных воздуховодов укрупненными блоками с помощью электролебедок или монтажно-тяговых механизмов.

1.5. При привязке типовой технологической карты к конкретному объекту уточняются объемы работ, калькуляция затрат труда, средств механизации с учетом максимального использования имеющихся в наличии монтажных механизмов.

2. ОРГАНИЗАЦИЯ И ТЕХНОЛОГИЯ ВЫПОЛНЕНИЯ РАБОТ

2.1. Монтаж воздуховодов следует вести в соответствии с ППР, утвержденным в установленном порядке и согласованным с генподрядчиком.

2.2. До начала монтажа воздуховодов должны быть выполнены следующие работы:

смонтированы фермы и уложены плиты перекрытия;

установлены закладные детали для крепления опусков;

обеспечены необходимые проезды и проходы к месту монтажа;

ограждена зона монтажа (СНиП III-4-80, п. 2.7);

установлены знаки безопасности (ГОСТ 12.4.026-76);

составлена комплектовочная ведомость на укрупненные блоки и определена последовательность их монтажа;

намечены и согласованы с генподрядчиком места установки и крепления грузоподъемных механизмов;

доставлены детали к месту монтажа.

2.3. Последовательность рабочих операций при монтаже опусков от магистральных воздуховодов укрупненными блоками, проходящих в межферменном пространстве с проходом за подкрановыми путями:

комплектование и подноска отдельных деталей к месту подъема;

установка и крепление лебедок;

установка и крепление грузовых блоков;

сборка укрупненного блока путем соединения отдельных деталей на фланцах с постановкой готовых прокладок и затяжкой болтов на инвентарных подставках (положение I).

установка средств крепления;

строповка укрупненного блока к электролебедкам и установка оттяжек;

подъем укрупненного блока с помощью электролебедок в положение II, временное его закрепление;

установка укрупненного блока в проектное положение, соединение его с ранее смонтированным магистральным воздуховодом затяжкой болтов, вставленных в отверстия на фланцах, между которыми помещены прокладки;

выверка соответствия положения блока проектному;

окончательное крепление укрупненного блока;

расстроповка укрупненного блока и снятие оттяжек;

снятие грузовых блоков и лебедок.

2.4. Рекомендуемый состав подъемных механизмов и оборудования, необходимых для монтажа, приводится в табл. 1.

Таблица 1

Наименование комплекта подъемных механизмов и оборудования

Вариант (фасет-код)

Техническая характеристика

ГОСТ, тип, марка

Количество

Электролебедка

 

Грузоподъемность 1 т

ЛМ-1

2

Блок однорольный

 

То же

-

4

Строп облегченный

 

Диаметр 6,7 мм, длина 4 м

ГОСТ 7669-80

2

То же

 

Длина 2 м

"

2

Монтажно-тяговый механизм

 

Грузоподъемность 1 т

МТМ Туапсинский з-д

1

Строп облегченный

 

Длина 4 м

-

2

То же

 

Длина 2 м

-

4

Стропы для крепления лебедок и блоков

 

Длина 3 м

ГОСТ 3071-74 УКС-1,25

6

Автогидроподъемник

 

АГП-12А+

АГП-28 в зависимости от высоты подъема

ГОСТ 22859-77

1

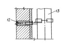
Монтаж опусков от магистральных воздуховодов, проходящих в межферменном пространств с проходом за подкрановыми путями

Строповка воздуховода,
поднимаемого в вертикальном положении

Крепление блока к верхнему поясу фермы

Инвентарная металлическая подкладка

Крепление вертикального воздуховода с помощью дюбеля

Крепление отводного блока к колонне

1 - инвентарные подставки; 2 - положение I опуска воздуховода; 3 - оттяжка; 4 - проектное положение воздуховода; 5 - положение II опуска воздуховода; 6 - рабочий настил автогидроподъемника; 7 - грузовой блок; 8 - верхний пояс фермы; 9 - круг диаметром 6 мм; 10 - труба диаметром 32 мм; 11 - уголок 25×25×5 мм; 12 - дюбель ДВР М6; 13 - воздуховод

3. ТРЕБОВАНИЯ К КАЧЕСТВУ И ПРИЕМКЕ РАБОТ

3.1. До начала монтажа составляют акт на скрытые строительные работы, осуществляют входной контроль качества применяемых материалов, заготовок, измерительных инструментов, соответствие их стандартам и техническим условиям, проектным типам и маркам.

3.2. Технические критерии и средства контроля операций и процессов приведены в табл. 2.

3.3. Приемочный контроль смонтированных конструкций осуществляют согласно СНиП 3.05.01-85 . При приемке работ предъявляют журналы монтажных и сварочных работ, антикоррозийной защиты сварных соединений, акты освидетельствования скрытых работ.

Таблица 2

Наименование процессов, подлежащих контролю

Предмет контроля

Инструмент и способ контроля

Время контроля

Ответственный контролер

Технические критерии оценки качества

Подготовительные предмонтажные работы

Соответствие геометрических размеров проектным, наличие внешних дефектов

Рулетка металлическая. Визуальный осмотр

До начала монтажа

Мастер

Без отклонений от ТУ

Сборка воздуховодов в укрупненные блоки

Соответствие монтажным чертежам

Визуально, линейка измерительная (рулетка)

До начала подъема блока на проектную отметку

Мастер

Прямолинейность

Выполнение сварных соединений

Качество шва

Визуально, испытание

То же

То же

Герметичность

Фланцевые соединения

Плотность соединений, правильность установки прокладок, надежность затяжки болтов

Визуально, щупом, гаечным ключом и молотком

"

"

То же

Монтаж опусков от магистральных воздуховодов

Привязка опусков к строительным конструкциям, соответствие проекту

Рулетка, метр, отвес, уровень

После монтажа опусков и прикрепления к магистральному воздуховоду

Мастер

Допустимые отклонения от вертикали - не более 2 мм на 1 м воздуховода

Разметка мест установки средств крепления воздуховодов

Расстояние между подвесками

Рулетка, метр, уровень, шнур

До начала подъема блока на проектную отметку

Мастер

Допустимые отклонения ± 10 мм

Приварка кронштейнов, опор и подвесок к строительным конструкциям для крепления воздуховодов

Качество сварного шва

Визуально

То же

То же

Надежность сварного шва

Примечание. Для строительных конструкций из бетона крепление кронштейнов и подвесок производится с помощью распорных дюбелей.

4. КАЛЬКУЛЯЦИЯ ЗАТРАТ ТРУДА И ЗАРАБОТНОЙ ПЛАТЫ ПРИ МОНТАЖЕ ОПУСКОВ ИЗ РАСЧЕТА НА 50 м2 ПОВЕРХНОСТИ МАГИСТРАЛЬНЫХ ВОЗДУХОВОДОВ Æ ДО 800 мм ИЛИ ПЕРИМЕТРОМ ДО 2400 мм ИЗ СТАЛИ ТОЛЩИНОЙ ДО 1 мм

Таблица 3


Наименование процесса

Номер фасет для пересчета показателей

Единица измерения

Объем работ

Обоснование (ЕНиР и др. нормы)

На единицу

На объем

Примечание

норма времени, чел.-ч

расценка, р.-к.

затраты труда, чел.-ч

зарплата, р.-к.

Погрузка деталей воздуховодов и фасонных частей на автотранспорт

 

т

0,4

ЕНиР 24-14, 2-а, к=1,25

1,56

0-795

1,56

0-795

 

Разгрузка с автотранспорта деталей воздуховодов и фасонных частей с переноской к месту складирования на расстояние до 50 м

 

т

0,4

ЕНиР 24-14, 2-б, к=1,25

1,44

0-725

1,44

0-725

 

Комплектование и подноска воздуховодов и фасонных частей к месту сборки на расстояние до 50 м

 

т

0,4

ЕНиР 24-20, 1-б

1,43

0-728

1,43

0-728

 

Погрузка на автотранспорт инвентаря и оборудования

 

т

0,65

ЕНиР 24-14, 2-а, к=1,25

1,56

0-795

1,56

0-795

 

Разгрузка с автотранспорта инвентаря и оборудования

 

т

0,65

ЕНиР 24-14, 2-б, к=1,25

1,44

0-725

1,44

0-725

 

Установка электролебедок

 

шт

2

ЕНиР 24-5, 1-а

1,55

0-788

3,10

1-576

 

Снятие электролебедок

 

шт

2

ЕНиР 24-5, 5-а

0,64

0-325

1,28

0-65

 

Перемещение электролебедок на расстояние до 2 0м

 

шт

2

ЕНиР 24-5, 9-а

0,115

0-058

0,23

0-116

 

Установка блоков внизу

 

шт

2

ЕНиР 24-9, 1-а

0,53

0-272

1,06

0-544

 

То же, на высоте до 10 м

 

шт

2

ЕНиР 24-9, 2-а

0,69

0-354

1,38

0-708

 

Снятие блоков внизу

 

шт

2

ЕНиР 24-9, 1-а

0,318

0-163

0,636

0-326

 

То же, на высоте до 10 м

 

шт

2

ЕНиР 24-9, 2-а, к=0,6

0,414

0-212

0,828

0,424

 

Закрепление оттяжек l=25 м, Ø=19 мм

 

шт

1

ЕНиР 24-11, 1-б

0,99

0,521

0,99

0-521

 

Снятие оттяжек на высоте до 10 м

 

шт

1

ЕНиР 24-9, 2-б, к=0,6

1,44

0,756

1,44

0-756

 

Монтаж опусков от магистральных воздуховодов укрупненными блоками

 

м2

50

ЕНиР 10-5, 4-в, табл. 4

0,51

0-388

25,5

19-40

 

Итого:

 

 

 

 

 

 

43,874

28-789

 

 

 

 

 

 

 

или

 

 

 

 

 

 

 

 

 

 

5,35 чел.-дн.

 

 


5. ГРАФИК ПРОИЗВОДСТВА РАБОТ ПРИ МОНТАЖЕ ОПУСКОВ ИЗ РАСЧЕТА НА 50 м2 ПОВЕРХНОСТИ МАГИСТРАЛЬНЫХ ВОЗДУХОВОДОВ

Таблица 4

Примечание: График производства работ составлен для монтажа опусков от магистральных воздухопроводов при помощи электролебедок.


6. МАТЕРИАЛЬНО-ТЕХНИЧЕСКАЯ ЧАСТЬ

6.1. Потребность в инструменте, инвентаре и приспособлениях приведена в табл. 5.

Таблица 5

Наименование

Марка, техническая характеристика, ГОСТ, № чертежа

Единица измерения

Количество

Назначение

Электролебедка ЛМ-1-80 грузоподъемностью 1 т

ГОСТ 2914-80

шт

2

Подъем грузов на высоту

Блок БМ-1

 

шт

2

То же

То же, БМ-2

 

шт

2

"

Строп облегченный l=4 м

 

шт

2

Строповка грузов

То же, l=2 м

 

шт

4

То же

Монтажно-тяговый механизм МТМ-1,6 грузоподъемностью 1,6 т

Туапсинский завод

шт

2

Поднятие укрупненных блоков на высоту

Блок БМ-2

 

шт

2

То же

Строп облегченный l=4 м

 

шт

2

Строповка укрупненных блоков

То же, l=2 м

 

шт

4

То же

Автогидроподъемник

ГОСТ 22859-77

АГП-12А¸ АГП-28 в зависимости от высоты подъема

шт

1

Установка креплений, сборка фланцевых соединений на высоте

Подмости монтажные

ВНИПИпромстальконструкция 29800-15

шт

1

То же

Электросварочный трансформатор ТД-300

ГОСТ 95-77

шт

1

Сварка закладных деталей для крепления воздуховодов и подварка выполненных сварных соединений

Кабель сварочный ПРГД 1×50 мм2

ГОСТ 6731-77

м

50

То же

Кабель силовой (для заземления) НРПГ 3×6 мм2

ГОСТ 13497-77Е

м

15

"

Набор инструмента электросварщика ЭНУ-300

ТУ 36-1162-81

компл

1

Сварка закладных деталей для крепления воздуховодов и подварка готовых сварных соединений

Щиток электросварщика

ГОСТ 12.4.035-78

шт

1

То же

Электрическая шлифовальная машина с двойной изоляцией Э-2005

Позрянский з-д "Электроинструмент"

шт

1

Подготовка воздуховодов

Ключ трещеточный без холостого хода, размер зева сменных головок 10, 11, 13, 14, 17 мм

СТД-961/76

шт

2

Соединение деталей воздуховодов

Электрогайковерт Æ резьбы 12 мм

ИЭ-3116

шт

2

Соединение воздуховодов

Ключ гаечный, мм

ГОСТ 2839-80Е

шт

 

То же

8-10

 

шт

5

 

13-14

 

шт

3

 

17-19

 

шт

2

 

22-24

 

шт

1

 

Оправка удлиненная

СТД-418

шт

3

Совмещение отверстий фланцев

Метр складной

ГОСТ 7502-80 Цена деления 1 мм

шт

4

Замеры

Рулетка металлическая измерительная

ГОСТ 7502-80 Цена деления 1 мм

шт

1

То же

Уровень строительный УС-300

ГОСТ 9416-83 Длина 300 мм

шт

1

Определение горизонтальности воздуховода

Отвес (масса 0,2 кг)

ГОСТ 7948-80

шт

1

Определение вертикальности воздуховода

Лом строительный

ГОСТ 1405-83

шт

1

Вспомогательные работы

Кувалда тупоносая (масса 3 кг)

ГОСТ 11401-75

шт

1

Рихтовка элементов

Бородок слесарный Æ стержня 8-10 мм

ГОСТ 7214-72

шт

2

Вспомогательные работы

Молоток слесарный тип 2 (0,4 кг)

ГОСТ 2310-77

шт

2

Вспомогательные работы

Ящик инструментальный переносной трехсекционный 408×208×300 мм

ВНИИМонтажспецстрой

шт

2

Хранение инструмента

Щетка стальная

Гипросельстрой

шт

2

Очистка поверхностей от загрязнения

Канат пеньковый Æ 19 мм, длина 25 м

ГОСТ 483-75

шт

2

Оттяжка укрупненных блоков воздуховодов

Инвентарная подставка

черт. 3-7.904/3

шт

20

Для сборки воздуховодов в укрупненные блоки

Электрический ручной перфоратор ИЭ-4713

ТУ 36.48.11-004-86

шт

1

Образование отверстий для крепления кронштейнов, опор, подвесок

6.2. Потребность в материалах и полуфабрикатах для выполнения работ по монтажу воздуховодов поверхностью 50 м2 приводятся в табл. 6.

Таблица 6

Наименование материалов, полуфабрикатов, конструкций (марка, ГОСТ)

Вариант (фасетный код)

Исходные данные

Потребность в материале, кг

единица измерения

объем работ в нормативных единицах

принятая норма расхода материалов

Болты Æ 8×30 мм (ГОСТ 7798-70) с гайками М8 (ГОСТ 5915-70)

 

50 м2 поверхности воздуховода

 

 

9

Хомуты, подвески, стяжки (ТУ 36-1195-84)

 

То же

 

 

6

Электроды

 

"

 

 

18

Резина профилированная

 

"

 

 

4,2

Кронштейны из угловой стали 40×40×3 мм

 

"

 

 

30

Дюбели ДВР М6

 

"

 

 

0,3

7. ТЕХНИКА БЕЗОПАСНОСТИ

7.1. Работы выполняются с соблюдением СНиП III-4-80 "Техника безопасности в строительстве", норм, утвержденных Госгортехнадзором СССР, и требований ОСТ 36-100.3.10-85 "Монтаж внутренних санитарно-технических устройств. Требования безопасности".

7.2. Приступать к монтажу разрешается только при наличии проекта производства работ (ППР).

7.3. Зоны работ по монтажу воздуховодов в межферменном пространстве на высоте и в зоне возможного падения материалов и инструмента должны быть ограждены с выставлением ограничительных знаков ГОСТ 12.4.059-78 ССБТ. "Строительство. Ограждения защитные инвентарные" и ГОСТ 12.4.026-76 ССБТ. "Цвета сигнальные и знаки безопасности".

7.4. Запрещается пребывание людей в зоне возможного падения материалов и инструментов при производстве работ в межферменном пространстве.

7.5. При работе на высоте слесари-вентиляционники должны пройти медосмотр и иметь проверенные и испытанные предохранительные пояса, без которых их нельзя допускать к производству работ (ГОСТ 12.4.089-80. ССБТ. "Строительство. Пояса предохранительные"). Места крепления карабинов предохранительных поясов к строительным конструкциям и специальным приспособлениям (натянутые стальные канаты и т.д.) должны быть указаны производителем работ или мастером. Запрещается закреплять предохранительные пояса за ограждение настила.

7.6. Все монтажники должны быть обеспечены защитными касками (ГОСТ 12.4.087-84 ССБТ. "Строительство. Каски строительные").

7.7. Работы с электрифицированным инструментом и электросварочным оборудованием должны производиться с обеспечением требований техники безопасности в соответствии с ГОСТ 12.2.013-75 и ГОСТ 12.3.003-86.

7.8. Сварочные аппараты и электрифицированный инструмент должны быть заземлены по ГОСТ 12.1.030-81.

7.9. Запрещается использование неисправных инструмента и механизмов, блоков, стропов, тросов.

7.10. Расстроповка поднятого воздуховода допускается только после его надежного закрепления. Стропы применяются в соответствии с ГОСТ 25573-82. "Стропы грузовые канатные кольцевые типа СКК".

7.11. По нижнему поясу ферм генподрядчиком должен быть уложен профильный настил, выдерживающий нагрузку 200 кг/м2. Пребывание на настиле допускается не более двух человек. Настил должен иметь временные ограждения высотой не менее 1,2 м в соответствии с требованиями ГОСТ 12.4.059-78. При невозможности устройств этих ограждений работы на высоте следует выполнять с использованием предохранительных поясов по ГОСТ 12.4.089-80 (см. п. 7.5).

Стропы грузовые канатные типа СКК

(ГОСТ 25573-82)

Таблица 7

Диаметр
каната, мм

Грузоподъемность стропа, кг

Канат по ГОСТ

3071-74

3079-80

7668-80

7,6

560

-

-

8,5

780

-

-

9,7

-

-

1100

11,5

1300

-

1400

13,5

1600

2000

-

15,0

-

-

2550

15,5

2300

250

-

16,5

-

-

3200

17,0

-

3200

-

8. ТЕХНИКО-ЭКОНОМИЧЕСКИЕ ПОКАЗАТЕЛИ НА 50 м2 ПОВЕРХНОСТИ ВОЗДУХОВОДОВ

1. Нормативные затраты труда рабочих, чел.-ч

- 43,874

2. Заработная плата рабочих-монтажников, р.-к.

- 28-79

3. Продолжительность выполнения работ, смена

- 1,34

4. Выработка на одного рабочего в смену, м2

- 9-33

9. ФАСЕТНЫЙ КЛАССИФИКАТОР ФАКТОРОВ

Фасет 01

Тип механизмов на монтажных работах

Наименование фактора

Обоснование

Код

Значение фактора

Электролебедка ЛМ-1-80 грузоподъемностью 1 т

ЕНиР 24-5, табл. 4, 1-а

 

 

 

Такелажные работы

1

По калькуляции

Монтажно-тяговый механизм МТМ-1,6

ЕНиР 24-5,

 

 

установка

5-а

 

Н.вр. - 1,2

расц. - 0-61

снятие

8-а

 

Н.вр. - 0-49

расц. - 0-249

Фасет 02

Монтаж опусков от магистральных воздуховодов с поверхностью системы 15 м2

Наименование фактора

Обоснование

Код

Значение фактора

Монтаж воздуховодов с количеством фасонных частей до:

ЕНиР 10-5,

табл. 3,

 

 

5

2-а

1

Н вр. - 0,56

расц. - 0-426

10

3-а

2

Н вр. - 0,68

расц. - 0-517

Фасет 03

Монтаж опусков от магистральных воздуховодов с поверхностью системы 25 м2

Наименование фактора

Обоснование

Код

Значение фактора

Монтаж воздуховодов с количеством фасонных частей до:

ЕНиР 10-5

табл. 3,

 

 

5

2-б

1

Н вр. - 0,49

расц. - 0-372

10

3-б

2

Н вр. - 0,58

расц. - 0-441

15

4-б

3

Н вр. - 0,68

расц. - 0-517

Фасет 04

Монтаж опусков от магистральных воздуховодов с поверхностью системы 50 м2

Наименование фактора

Обоснование

Код

Значение фактора

Монтаж воздуховодов с количеством фасонных частей до:

ЕНиР 10-5,

табл. 3,

 

 

5

2-в

1

Н вр. - 0,42

расц. - 0-319

10

3-в

2

Н вр. - 0,49

расц. 0-37,2

15

4-в

3

Н вр. - 0,56

расц. - 0-42,6

20

5-в

4

Н вр. - 0,6

расц. - 0-45,6

25

6-в

5

Н вр. - 0,64

расц. - 0-48,6

30

7-в

6

Н вр. - 0,68

расц. - 0,51,7

Фасет 05

Монтаж опусков от магистральных воздуховодов с поверхностью системы 75 м2

Наименование фактора

Обоснование

Код

Значение фактора

Монтаж воздуховодов с количеством фасонных частей до:

ЕНиР 10-5,

табл. 3,

 

 

5

2-г

1

Н вр. - 0,4

расц. - 0-30,4

10

3-г

2

Н вр. - 0,44

расц. - 0-33,4

15

4-г

3

Н вр. - 0,49

расц. 0-37.2

20

5-г

4

Н вр. - 0,55

расц. 0-41,8

25

6-г

5

Н вр. - 0,56

расц. - 0,42,6

30

7-г

6

Н вр. - 0,6

расц. - 0-45,6

Фасет 06

Монтаж опусков от магистральных воздуховодов с поверхностью системы 100 м2

Наименование фактора

Обоснование

Код

Значение фактора

Монтаж воздуховодов с количеством фасонных частей до:

ЕНиР 10-5,

табл. 3,

 

 

5

2-д

1

Н вр. - 0,39

расц. 0-29,6

10

3-д

2

Н вр. - 0,42

расц. - 0-31,9

15

4-д

3

Н вр. - 0,46

расц. - 0-35

20

5-д

4

Н вр. - 0,49

расц. - 0-37,2

25

6-д

5

Н вр. - 0,53

расц. 0-40,3

30

7-д

6

Н вр. - 0,56

расц. - 0-42,6

60 и более

8-д

7

Н вр. 0,68

расц. - 0-51,7

Фасет 07

Монтаж опусков от магистральных воздуховодов с поверхностью системы 150 м2 и более

Наименование фактора

Обоснование

Код

Значение фактора

Монтаж воздуховодов с количеством фасонных частей до:

ЕНиР 10-5,

табл. 3,

 

 

5

2-е

1

Н вр. - 0,39

расц. 0-29,6

10

3-е

2

Н вр. - 0,4

расц. - 0-30,4

15

4-е

3

Н вр. - 0,42

расц. - 0-31,9

20

5-е

4

Н вр. - 0,44

расц. - 0-33,4

25

6-е

5

Н вр. - 0,47

расц. 0-35,7

30

7-е

6

Н вр. - 0,49

расц. - 0-37,2

60 и более

8-8

7

Н вр. 0,6

расц. - 0-45,6

Примечания.

1. При монтаже вентиляционных систем без фасонных частей

Н вр. - 0,36

расц. - 0-27,4 (ЕНиР 10-5, табл. 3, п. 1).

2. При подъеме и установке воздуховодов, фасонных частей и других изделий с подмостей, лестниц и монтажных вышек на высоте более 3 м и оборудования более 1 м от пола Н вр. и расц. принимать с коэффициентами, приведенными в табл. 7.

Таблица 7

Высота подъема и установки воздуховодов, фасонных частей, деталей и изделий м, до

Высота подъема и установка оборудования, м, до

Коэффициенты к Н вр. и расц.

5

3

1,1

8

6

1,25

10

8

1,35

более 10

  более 8

1,5

3. Нормами и расценками предусмотрена затяжка болтов с помощью электрогайковерта. При затяжке болтов трещеточным ключом Н вр. и расц. умножать на 1,05, а при использовании ручного гаечного ключа - на 1,1.

4. Нормами и расценками предусмотрено крепление кронштейнов, опор и подвесок приваркой. При креплении вышеперечисленных приспособлений к строительным конструкциям из бетона с помощью распорных металлических дюбелей Н вр. и расц. следует умножить на 0,9.

 




ГОСТЫ, СТРОИТЕЛЬНЫЕ и ТЕХНИЧЕСКИЕ НОРМАТИВЫ.
Некоммерческая онлайн система, содержащая все Российские Госты, национальные Стандарты и нормативы.
В Системе содержится более 150000 файлов нормативно-технической документации, действующей на территории РФ.
Система предназначена для широкого круга инженерно-технических специалистов.

Рейтинг@Mail.ru Яндекс цитирования

Copyright © www.gostrf.com, 2008 - 2026