Крупнейшая бесплатная информационно-справочная система онлайн доступа к полному собранию технических нормативно-правовых актов РФ. Огромная база технических нормативов (более 150 тысяч документов) и полное собрание национальных стандартов, аутентичное официальной базе Госстандарта. GOSTRF.com - это более 1 Терабайта бесплатной технической информации для всех пользователей интернета. Все электронные копии представленных здесь документов могут распространяться без каких-либо ограничений. Поощряется распространение информации с этого сайта на любых других ресурсах. Каждый человек имеет право на неограниченный доступ к этим документам! Каждый человек имеет право на знание требований, изложенных в данных нормативно-правовых актах!

  


 

ПРАВИТЕЛЬСТВО МОСКВЫ
МОСКОМАРХИТЕКТУРА

РЕКОМЕНДАЦИИ
ПО ПРОЕКТИРОВАНИЮ СПЕЦИАЛЬНЫХ
УЧЕБНО-ВОСПИТАТЕЛЬНЫХ
УЧРЕЖДЕНИЙ ЗАКРЫТОГО ТИПА
ДЛЯ ДЕТЕЙ И ПОДРОСТКОВ
С ДЕВИАНТНЫМ ПОВЕДЕНИЕМ

ВЫПУСК 2

СПЕЦИАЛЬНОЕ ПУ
(ПРОФЕССИОНАЛЬНОЕ УЧИЛИЩЕ)
ЗАКРЫТОГО ТИПА ДЛЯ ПОДРОСТКОВ
С ДЕВИАНТНЫМ ПОВЕДЕНИЕМ

2003

ПРЕДИСЛОВИЕ

1. РАЗРАБОТАНЫ: ГУП МНИИП «Моспроект-4» (архитекторы Любомудрова К.И., Кряжевских М.А., инженер Тихомирова И.Б.).

2 ПОДГОТОВЛЕНЫ К УТВЕРЖДЕНИЮ И ИЗДАНИЮ Управлением перспективного проектирования, нормативов и координации проектно-изыскательских работ Москомархитектуры.

3. СОГЛАСОВАНЫ: Департаментом образования города Москвы, Москомархитектурой.

4. УТВЕРЖДЕНЫ И ВВЕДЕНЫ В ДЕЙСТВИЕ указанием Москомархитектуры от 21.10.2003 № 45

СОДЕРЖАНИЕ

ВВЕДЕНИЕ

Специальное ПУ (профессиональное училище) закрытого типа для подростков с девиантным поведением (далее СПУЗ) является самостоятельным типом учреждения профессионального образования с принудительным пребыванием и оптимальными условиями для реабилитации, воспитания, образования, оздоровления, социализации и профессиональной подготовки воспитанников.

Назначением СПУЗ является обеспечение психологической, медицинской и социальной реабилитации подростков, включая коррекцию их поведения и адаптацию в обществе, а также обеспечение условий, необходимых для получения ими профессионального и общего среднего (полного) образования.

1. ОБЛАСТЬ ПРИМЕНЕНИЯ

1.1. Настоящие Рекомендации разработаны для города Москвы в дополнение к действующим на ее территории нормативным документам по проектированию и строительству и распространяются на проектирование новых и реконструкцию существующих СПУЗ.

1.2. Настоящие Рекомендации устанавливают основные положения по размещению, участку, территории, архитектурно-планировочным решениям и инженерному оборудованию СПУЗ.

1.3. Проектирование СПУЗ должно вестись в соответствии с положениями настоящих Рекомендаций, а также требованиями нормативно-методических документов в строительстве, действующих на территории города Москвы.

2. НОРМАТИВНЫЕ ССЫЛКИ

В настоящих Рекомендациях приведены ссылки на следующие нормативно-методические документы:

СНиП 10-01-94. «Система нормативных документов в строительстве. Основные положения»;

СНиП 2.08.02-89* «Общественные здания и сооружения»;

СНиП 21-01-97* «Пожарная безопасность зданий и сооружений»;

СНиП 2.07.01-89* «Градостроительство. Планировка и застройка городских и сельских поселений»;

НПБ 88-2001 «Установки пожаротушения и сигнализации. Нормы и правила проектирования»;

СНиП 2.04.05-91* «Отопление, вентиляция и кондиционирование воздуха»;

СНиП 2.04.01-85* «Внутренний водопровод и канализация зданий»;

СП 2.2.1/2.1.1.1076-01 «Гигиенические требования к инсоляции и солнцезащите помещений жилых и общественных зданий и территорий»;

СП 2.4.2.1178-02 «Гигиенические требования к условиям обучения в общеобразовательных учреждениях»;

СП 2.2.1/2.1.1.1278-03 «Гигиенические требования к естественному, искусственному и совмещенному освещению в жилых и общественных зданиях»;

СП 2.1.2.1188-03 «Плавательные бассейны. Гигиенические требования к устройству, эксплуатации и качеству воды. Контроль качества»;

СН 441-72* «Указания по проектированию ограждений площадок и участков предприятий, зданий и сооружений»;

МГСН 4.06-96 «Общеобразовательные учреждения»;

Дополнения к МГСН 4.06-96 № 1 и № 2, 2000 - 2003 г.г.;

МГСН 4.15-98 «Общеобразовательные учреждения для детей-сирот и детей, оставшихся без попечения родителей»;

МГСН 4.12-97 «Лечебно-профилактические учреждения»;

МГСН 1.01-99 «Нормы и правила проектирования планировки и застройки г. Москвы»;

МГСН 2.01-99 «Энергосбережение в зданиях»;

МГСН 2.06-99 «Естественное, искусственное и совмещенное освещение»;

«Рекомендации по проектированию специальных учебно-воспитательных учреждений закрытого типа для детей и подростков с девиантным поведением», Выпуск 1, М., 2002 г.;

«Рекомендации по проектированию образовательных учреждений для детей, нуждающихся в психолого-педагогической и медико-социальной помощи», М., 2000 г.;

«Рекомендации по проектированию сети и зданий детских внешкольных учреждений для г. Москвы», М., Выпуск 1, 1996 г., Выпуск 2, 1997 г. Выпуск 3, 1998 г.;

Пособие по проектированию учреждений здравоохранения к СНиП 2.08.02-89*;

«Проектирование бассейнов». Справочное пособие к СНиП 2.08.02-89*, М., Стройиздат, 1991 г.

3. ОБЩИЕ ПОЛОЖЕНИЯ

3.1. СПУЗ предназначены для реализации государственных образовательных программ начального профессионального и среднего образования, обеспечивающих приобретение воспитанниками конкретной профессии соответствующего уровня квалификации и среднего (полного) образования.

3.2. Главным направлением деятельности СПУЗ является создание необходимых условий для удовлетворения потребности личности в получении начального профессионального образования, конкретной профессии (специальности) соответствующего уровня квалификации с возможностью повышения общеобразовательного уровня воспитанников, а также ускоренного приобретения трудовых навыков для выполнения определенной работы или группы работ.

3.3. К основным видам деятельности СПУЗ, относятся: профессиональное образование, общее среднее образование, дополнительное образование, оздоровление воспитанников, педиатрическая и иная врачебная помощь, психологическая и социально-педагогическая диагностика, психологическая коррекция, соблюдение режимных требований.

3.4. Основными задачами СПУЗ являются:

- оказание медико-социальной коррекционной помощи воспитанникам на основе индивидуальной диагностики;

- организация начального профессионального обучения с учетом возрастных и индивидуальных особенностей воспитанников;

- организация образовательного и компенсирующего обучения по общеобразовательным программам (основным и дополнительным) в соответствии с уровнем обученности воспитанников;

- организация развивающего досуга (культурное и эстетическое развитие, оздоровление и занятия спортом);

- организация мероприятий, направленных на формирование законопослушного поведения воспитанников;

- обеспечения проживания и питания несовершеннолетних.

3.5. В СПУЗ следует предусматривать специальные условия содержания воспитанников:

- охрана территории и материальных ценностей;

- организация безопасных условий содержания воспитанников и работы персонала;

- временная изоляция воспитанников на время пребывания, исключение возможности самовольного ухода с территории учреждения;

- круглосуточное наблюдение и контроль за поведением (в т.ч. во время их сна);

- проведение личного досмотра воспитанников;

- проведение выборочного досмотра писем, посылок, почтовых сообщений и т.д.

3.6. Контингент воспитанников СПУЗ составляют несовершеннолетние в возрасте от 14 до 18 лет, совершившие общественно опасные деяния, предусмотренные Уголовным кодексом, и нуждающиеся в особых условиях содержания, воспитания, обучения и требующие специального педагогического подхода. К этому контингенту относятся лица, не подлежащие уголовной ответственности в связи с недостижением соответствующего возраста и (или) вследствие отставания в психическом развитии, не связанного с психическим расстройством; а также осужденные и освобожденные судом от отбытия наказания в исправительной колонии. В этом случае по решению суда несовершеннолетний направляется в СПУЗ. Срок содержания воспитанника в учреждении определяется решением суда в каждом конкретном случае.

3.7. СПУЗ, как правило, организуются отдельно для юношей и для девушек.

3.8. В СПУЗ, готовящие специалистов по строительным специальностям и специалистов садово-паркового искусства, возможен прием несовершеннолетних с нарушениями умственного развития.

3.9. В СПУЗ воспитанники содержатся, как правило, около 3 лет.

3.10. Срок пребывания воспитанника в СПУЗ может быть сокращен или продлен психолого-медико-педагогической комиссией этого учреждения после проведения диагностики его личности.

3.11. Осуществление видов деятельности СПУЗ должно быть полностью рассчитано на использование внутренней инфраструктуры, так как его воспитанники не могут посещать обычные общеобразовательные учреждения, учреждения дополнительного образования, культурно-массовые и спортивные объекты и т.п. Функции этих учреждений должны быть обеспечены в СПУЗ за счет соответственной расширенной номенклатуры помещений.

3.12. В соответствии с Типовым положением о специальном учебно-воспитательном учреждении для детей и подростков с девиантным поведением (Постановление Правительства РФ от 25 апреля 1995 г. № 420) вместимость СПУЗ принимается не более 100 мест.

3.13. Состав и площади помещений СПУЗ должны определяться в соответствии с Разделом 5 настоящих Рекомендаций и уточняются в каждом конкретном случае заданием на проектирование.

4. ПОЛОЖЕНИЯ ПО РАЗМЕЩЕНИЮ, УЧАСТКУ И ТЕРРИТОРИИ

4.1. СПУЗ следует размещать в периферийной зоне города, вне жилой застройки, на обособленных земельных участках.

4.2. Площадь участка СПУЗ принимается из расчета 140 - 160 м2 на 1 воспитанника (в соответствии с положениями «Рекомендаций по проектированию специальных учебно-воспитательных учреждений закрытого типа для детей и подростков с девиантным поведением», Выпуск 1) с учетом размещения на участке площадок и сооружений оздоровительного и досугового характера, обеспечивающих психолого-терапевтическую коррекцию. В СПУЗ, осуществляющих подготовку специалистов по садово-парковому искусству, возможно увеличение учебно-производственной зоны за счет площади озеленения территории.

4.3. В составе территории участка СПУЗ предусматриваются следующие зоны:

- учебная и общественная;

- проживания;

- физкультурно-оздоровительная;

- медицинского изолятора;

- учебно-производственная;

- хозяйственная.

4.4. Размеры и состав зон участков определяются заданием на проектирование с учетом положений настоящего раздела и уточняются в процессе проектирования в зависимости от архитектурно-планировочного решения.

4.5. В зоне размещения функциональных блоков учебного и общественного назначения рекомендуется предусматривать мощеную площадку для массовых сборов воспитанников из расчета 0,8 м2 на 1 воспитанника.

4.6. В зоне проживания рекомендуется предусматривать прогулочную территорию, оборудованную газонами, цветниками, навесами, скамейками для отдыха и т.п.

4.7. В составе физкультурно-оздоровительной зоны рекомендуется предусматривать:

- баскетбольную и волейбольную площадки;

- гимнастическую площадку (15´16 м);

- комбинированную площадку для спортивных игр, метания мяча и прыжков (60´40 м).

4.8. В состав физкультурно-оздоровительного комплекса рекомендуется включать помимо перечисленных площадок также дорожки с твердым покрытием для катания на роликах, скейтбордах и т.п.

Состав и количество физкультурных площадок уточняется заданием на проектирование.

4.9. Медицинский изолятор должен иметь самостоятельный выход на участок и подъездные пути, обеспечивающие возможность проезда специального медицинского транспорта для госпитализации заболевших.

4.10. На территории учебно-производственной зоны СПУЗ, занимающихся подготовкой специалистов по садово-паркому искусству, следует размещать теплицы площадью не менее 100 м2 каждая с площадкой для разгрузки удобрений и т.п. и вывоза мусора площадью 20 м2 и организацией подъезда к ней на машине. Состав и площади учебно-производственной зоны определяются заданием на проектирование или проектом.

4.11. Хозяйственная зона должна размещаться со стороны производственных помещений пищеблока. На ее территории допускается размещать гараж с мастерскими, навесы для инвентаря и оборудования, мусоросборники и т.п. Гараж рекомендуется проектировать на 3 машины (2 - служебные, 1 - учебная) и использовать как для хозяйственных нужд учреждения, так и для обучения автоделу воспитанников.

4.12. Земельный участок должен иметь глухое ограждение по всему периметру, высотой 4 м, без выступов с наружной и внутренней сторон, с периметральной охранной сигнализацией. По всему периметру ограждения следует устанавливать ряд скрытых телекамер для внутреннего обозрения территории и наружного обозрения ограждения. Все телекамеры должны быть выведены на центральный пункт режимной службы.

4.13. Въезд и проход на территорию СПУЗ осуществляется через контрольно-пропускной пункт. Дежурный по КПП осуществляет пропускной режим на территорию. КПП оборудуется автоматически закрывающимися дверьми, турникетом для сотрудников и посетителей, решетками на окнах, сигнализацией с выходом на центральный пульт СПУЗ, телефонами оперативной связи.

4.14. Площадь озеленения территории участка должна составлять не менее 30 % от общей площади участка. В состав зеленой зоны входят: газоны с низкорастущими декоративными растениями, кустарники (не выше 50 см), цветники и отдельно стоящие лиственные деревья, размещаемые в центральной зоне участка. По периметру ограждения рекомендуется предусматривать полосу газона, шириной не менее 5 м.

4.15. Участок СПУЗ должен быть освещен в соответствии с требованиями СНиП 23-05-95 с постоянным освещением в вечернее и ночное время.

4.16. Планировка участка должна обеспечивать подъезды с твердым покрытием к хозяйственной зоне, подъезды пожарных машин ко всем зданиям и блокам, а также объезды вокруг них в соответствии с СНиП 21-01-97*.

4.17. Для автомашин сотрудников СПУЗ следует предусматривать открытую стоянку в соответствии с требованиями МГСН 1.01-99 за пределами ограждаемой территории.

5. ПОЛОЖЕНИЯ ПО АРХИТЕКТУРНО-ПЛАНИРОВОЧНЫМ РЕШЕНИЯМ И ИНЖЕНЕРНОМУ ОБОРУДОВАНИЮ

Общие требования.

5.1. В состав зданий и блоков СПУЗ входят следующие функциональные группы помещений:

- вестибюльная;

- проживания;

- профессиональной подготовки;

- общего образования;

- дополнительного образования;

- лечебно-реабилитационная (психолого-коррекционные и медицинские помещения);

- культурно-досуговая и физкультурно-оздоровительная;

- медицинского изолятора;

- питания;

- административно-бытовая;

- хозяйственного обслуживания.

Архитектурно-планировочные решения СПУЗ должны учитывать требования функционального зонирования помещений с учетом осуществляемой в них деятельности.

Различные функциональные группы помещений, рассчитанные на работу с подростками, помимо своих основных функций, должны обеспечивать также коррекционно-реабилитационную функцию, что учитывается составом и площадями их помещений и должно быть отражено в архитектурно-планировочных решениях.

5.2. При проектировании помещений СПУЗ рекомендуется пользоваться планировочными схемами основных помещений, приведенными в Приложениях. Рекомендуемые площади отдельных помещений в зависимости от конкретных планировочных и конструктивных решений могут быть изменены (уменьшены или увеличены) не более чем на 15 %.

5.3. Функциональные группы помещений могут размещаться либо в едином объеме из непосредственно примыкающих друг к другу блоков, либо в отдельных корпусах (блоках), соединенных отапливаемыми переходами. В случае проектирования единого объема должны предусматриваться пожарные отсеки площадью не более 5000 м2, разделяемые противопожарными стенами 1-го типа (в соответствии с требованиями СНиП 21-01-97*), а из каждого пожарного отсека должно быть предусмотрено не менее двух эвакуационных выходов, один из входов допускается предусматривать в соседний отсек.

5.4. Учитывая специфику контингента СПУЗ, группы помещений, рассчитанные на пребывание воспитанников, следует проектировать непроходными, с возможностью их изоляции в течение суток в зависимости от режима работы каждой группы помещений. Объединение различных групп помещений может осуществляться через общее коммуникационное пространство. В том случае, когда в одном блоке размещены различные функциональные группы помещений, их следует проектировать поэтажно, предусматривая возможность изоляции.

Общая функционально-планировочная схема СПУЗ представлена на Рис. 1.

5.5. Здания СПУЗ не должны превышать 4 этажей (СП 2.4.2.1178-02).

Рис. 1. Функционально-планировочная схема СПУЗ

1. Вестибюльная группа помещений. 2. Помещения проживания. 3. Помещения питания. 4. Помещения общего образования. 5. Помещения профессиональной подготовки. 6. Помещения культурно-досугового, физкультурно-оздоровительного назначения и дополнительного образования: а. - культурно-досуговые; б. - физкультурно-оздоровительные; в. дополнительное образование. 7. Лечебно-реабилитационные помещения. 8. Медицинский изолятор. 9. Административно-бытовые помещения.

Условные обозначения.

- Коммуникационное пространство

- Обязательные связи

- Необязательные связи

5.6. Объемно-планировочная структура здания должна обеспечивать оптимальные условия осуществления протекающих в нем функциональных процессов, отражать специфику учреждения и обеспечивать соответствующие условия и режим эксплуатации, и необходимую связь с участком.

5.7. Ширина лестничных маршей должна быть не менее 1,35 м. Лестничные марши и площадки должны иметь защитное ограждение на всю высоту.

Ширину дверей основных помещений следует принимать не менее 1 м.

Ширину коридоров в группах помещений административно-бытового, методического и хозяйственного назначения следует принимать не менее 1,4 м; а во всех группах помещений, рассчитанных на работу с воспитанниками - не менее 2,2 м.

5.8. Коммуникационные помещения не должны иметь «карманов» и не просматриваемых зон.

5.9. На каждом этаже в коридорах и холлах следует размещать посты режимной службы. Посты режимной службы следует оборудовать средствами оперативной связи с директором СПУЗ и ответственным дежурным по режиму. В местах массового скопления воспитанников (вестибюле, холлах для развода, фойе при актовом зале и т.п.) следует предусматривать помещения режимной службы.

5.10. На входах в здание следует предусматривать металлические двери. Внутренние двери проектируются в соответствии с положениями СНиП 21-01-97*.

5.11. Остекление наружных окон на всех этажах зданий следует производить с применением противоударных и тонированных стекол. Оконные запоры должны быть скрытыми и недоступными для воспитанников.

5.12. Все окна и наружные двери следует оборудовать автоматической сигнализацией с выводом сигнала на центральный пункт режимной службы.

5.13. На входах в здание СПУЗ, а также в актовый и спортивный залы и бассейн следует устанавливать телекамеры наблюдения с выводом сигнала на центральный пункт режимной службы.

5.14. Высота наземных этажей здания СПУЗ должна быть 3,3 м (от пола до пола вышележащего этажа). Высота зрительного зала принимается по технологическим требованиям, высота спортзала - 6 м (до низа несущих конструкций).

5.15. Внутренняя отделка помещений СПУЗ должна быть выполнена из материалов, разрешенных для применения органами Госсанэпиднадзора Минздрава РФ, допускающих влажную уборку, а также применение дезинфицирующих средств.

5.16. Все помещения профессиональной подготовки, общего образования, дополнительного образования, лечебно-реабилитационные, рассчитанные на пребывание подростков, должны быть оборудованы умывальниками.

5.17. Естественное, искусственное и совмещенное освещение в помещениях следует проектировать в соответствии с требованиями СП 2.2.1/2.1.1.1278-03 и МГСН 2.06-99.

5.18. Рабочие места в помещениях профессиональной подготовки и общего и дополнительного образования должны иметь естественное освещение с КЕО не менее 1,5 на поверхности столов и освещаться боковым с левой стороны светом. Для организации мобильных форм (групповых и индивидуальных) ведения занятий необходимо предусматривать равномерное освещение по всей рабочей плоскости в помещении за счет дополнительного верхнего света или дополнительного искусственного освещения в глубине помещения.

5.19. Допускается не предусматривать естественного освещения:

- в умывальных, душевых, уборных и снарядных при спортивном зале, санитарных узлах для персонала, комнатах личной гигиены женщин (для персонала);

- в радиоузле;

- в столовой для персонала;

- в кладовых инвентаря, комнатах хранения предметов уборки;

- в помещениях технических служб.

В зависимости от архитектурно-планировочного решения допускается проектировать с искусственным освещением санитарные узлы и комнаты личной гигиены для воспитанников в группе помещений проживания (при соблюдении необходимой кратности обмена воздуха).

5.20. Санитарные узлы и туалетные комнаты в СПУЗ проектируются с учетом специфики работы каждого подразделения в соответствии с действующими нормативными документами: МГСН 4.15-98 и МГСН 4.06-96.

Внутренний водопровод и канализацию следует проектировать в соответствии с СНиП 2.04.01-85*.

Учитывая специфику контингента воспитанников, размещение санитарных приборов осуществляется только в общих санитарных узлах в открытых кабинах. Санитарные приборы должны быть в антивандальном исполнении.

5.21. В комнатах хранения уборочного инвентаря следует предусматривать умывальник и слив.

5.22. Инсоляцию помещений, в которых находятся воспитанники, следует предусматривать в соответствии с требованиями СП 2.2.1/2.1.1.1076-01.

5.23. Отопление и вентиляцию зданий следует проектировать в соответствии с требованиями СНиП 2.04.05-91*, МГСН 4.06-96, МГСН 2.01-99.

5.24. Энергоснабжение, электрооборудование, электрическое освещение здания и наружное освещение территории следует предусматривать в соответствии с требованиями СП 2.2.1/2.1.1.1278-03, МГСН 4.06-96, МГСН 2.01-99, МГСН 2.06-99.

5.25. Проектирование зданий должно осуществляться с учетом принципов максимального энергосбережения в соответствии с требованиями МГСН 2.01-99.

5.26. Здания следует проектировать не менее П степени огнестойкости в соответствии с СНиП 21-01-97*.

5.27. В зданиях должна быть предусмотрена автоматическая пожарная сигнализация в соответствии с требованиями НПБ 88-2001. Перечень помещений, в которых необходимо предусматривать автоматическую пожарную сигнализацию, следует определять в соответствии с МГСН 4.06-96 и МГСН 4.15-98. Сигнал о срабатывании системы АПС (автоматической пожарной сигнализации) выводится в помещение с круглосуточным пребыванием персонала.

5.28. На путях эвакуации из здания должно быть предусмотрено аварийное и эвакуационное освещение, проектируемое в соответствии с требованиями СНиП 21-01-97* и СНиП 23-05-95.

Вестибюльная группа помещений.

5.29. Рекомендуемый состав помещений вестибюльной группы СПУЗ приведен в таблице 5.1.

5.30. Вход воспитанников во все блоки различных групп помещений осуществляется через вестибюльную группу.

5.31. Помещение гардероба для воспитанников должно быть зонировано на изолированные секции для отдельных групп, отделяемые сетчатыми перегородками как друг от друга, так и от гардероба в целом.

5.32. В составе оборудования гардероба для воспитанников рекомендуется предусматривать сушильные шкафы для одежды и обуви с подогревом и вытяжкой, а также вешалки консольного типа.

5.33. Гардероб для верхней одежды персонала и посетителей рекомендуется предусматривать в отдельном помещении при вестибюле.

5.34. В состав вестибюльной группы рекомендуется включать комнату свиданий воспитанников с посетителями с остекленным проемом в стене для организации наблюдения.

5.35. В состав вестибюльной группы следует включать пост режимной службы с помещением отдыха.

5.36. Входы в вестибюль и служебные входы в здание следует оборудовать тамбурами.

Таблица 5.1.

Рекомендуемые состав и площади помещений вестибюльной группы.

№№ п.п.

Наименование помещений

Площадь помещений, м2

Примечание

Ha 1 место

Всего

1

2

3

4

5

1.

Вестибюль

0,5

-

С учетом численности персонала и возможностью организации поста режимной службы

2.

Гардероб для верхней одежды воспитанников

0,8

-

3.

Гардероб для верхней одежды персонала и посетителей

0,1

-

4.

Комната свиданий с посетителями

-

12

5.

Комната отдыха сотрудника режимной службы

-

10

6.

Санитарный узел с умывальником в шлюзе

-

3

7.

Комната хранения предметов уборки

-

4

Помещения проживания.

5.37. Рекомендуемые состав и площади помещений проживания приведены в таблице 5.2.

5.38. Помещения проживания следует размещать в отдельном корпусе или блоке, непосредственно примыкающим к блокам других групп помещений или соединенным с ними теплым переходом.

5.39. Помещения проживания рекомендуется проектировать в виде изолированных секций, состоящих не более чем из двух жилых групп на 9 воспитанников каждая.

5.40. Количество секций определяется заданием на проектирование в зависимости от общего количества воспитанников СПУЗ.

5.41. В состав жилой секции, как правило, входят:

- две жилые группы;

- комната дежурного воспитателя;

- санитарный узел персонала;

- бытовая комната;

- комната уборочного инвентаря.

5.42. В состав жилой группы входят:

- три спальные комнаты на 1 место;

- две спальные комнаты на 3 места;

- комната приготовления уроков;

- комната тихого отдыха;

- санитарный узел;

- душевая;

- комната хранения личных вещей воспитанников;

- гардероб для хранения одежды воспитанников.

5.43. Входы в жилые группы и спальные комнаты проектируются с дверными проемами без дверного полотна для организации наблюдения за воспитанниками в ночное время. В проеме входа в жилую группу организуется пост режимной службы.

5.44. Вход в жилую секцию оборудуется запирающейся дверью.

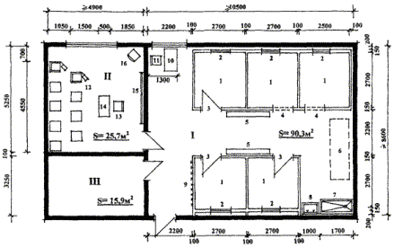
5.45. Функционально-планировочная схема помещений жилой секции представлена на Рис. 2.

5.46. В состав оборудования спальных комнат входят кровати и стулья в соответствии с количеством мест в комнате. Гардеробная оборудуется шкафами-купе с секциями по количеству воспитанников в жилой группе. Комната хранения личных вещей воспитанников оборудуется стеллажами с закрывающимися ячейками.

5.47. Рекомендуемый состав оборудования санитарного узла: 2 унитаза, огороженных экранами высотой не более 1 м, и 2 умывальника. Рекомендуемый состав оборудования душевой: душ (2 душевые сетки), умывальник, скамья для раздевания, вешалка для одежды. В СПУЗ для юношей в состав оборудования санитарного узла следует включать 2 писсуара. В СПУЗ для девушек - бидэ.

5.48. Оборудование комнаты тихого отдыха должно быть приспособлено к проведению групповых психолого-коррекционных занятий.

5.49. Помещения для хранения чистого и грязного белья рекомендуется размещать поэтажно, одно на 2 - 3 секции.

5.50. В блоке помещений проживания рекомендуется организовывать кабинеты дежурных медсестер, размещая их поэтажно, один на 2 - 3 секции.

Рис. 2. Функционально - планировочная схема жилой секции

1. Комната приготовления уроков. 2. Санитарный узел. 3. Душевая. 4. Спальная комната на 3 места. 5. Спальная комната на 1 место. 6. Гардеробная. 7. Комната тихого отдыха. 8. Комната хранения личных вещей. 9. Комната уборочного инвентаря. 10. Санитарный узел персонала. 11. Комната дежурного воспитателя. 12. Коммуникационное пространство.

· Пост режимной службы.

Таблица 5.2.

Рекомендуемые состав и площади помещений проживания.

№№ п.п.

Наименование помещений

Площадь помещений, м2

Примечания

1

2

3

4

Жилая группа

1.

Спальная на 3 мест (2 шт.)

12´2

Приложение, Рис. П.1.

2.

Спальная на 1 место (3 шт.)

6´3

Приложение, Рис. П.1.

3.

Комната приготовления уроков

22

Приложение, Рис. П.2.

4.

Комната тихого отдыха

32

Приложение, Рис. П.3.

5.

Санитарный узел для юношей

5

 

6.

Санитарный узел для девушек

6

 

7.

Душевая

4

 

8.

Комната для хранения личных вещей воспитанников

4

 

9.

Гардеробная

6

 

Жилая секция

1.

Комната дежурного воспитателя

9

 

2.

Санузел персонала

4

В состав санузла входят: унитаз, умывальник, душ

3.

Бытовая комната

6

 

4.

Комната уборочного инвентаря

4

 

Общие помещения на 2 - 3 жилые секции

1.

Кабинет дежурной медсестры

12

 

2.

Комната хранения грязного белья

3

 

3.

Комната хранения чистого белья

4

 

Помещения профессионального образования.

5.51. Рекомендуемые состав и площади помещений профессионального образования приведены в таблице 5.3. Образовательный процесс в СПУЗ ориентирован на расширение возможностей воспитанников в профессиональном самоопределении. Вследствие этого, все СПУЗ являются многопрофильными учреждениями.

5.52. Данная группа помещений обеспечивает проведение мероприятий, направленных на:

- предоставление воспитанникам возможности получения профессионального образования и профессиональных навыков, дающих возможность самостоятельного жизнеобеспечения в последующем;

- трудовую терапию и привитие навыков к труду;

- формирование у воспитанников потребности в групповом и межличностном общении.

5.53. Производственное обучение в СПУЗ всех типов осуществляется в аудиториях теоретических занятий и в помещениях практических занятий (учебно-производственных мастерских, лабораториях, гаражах, учебных участках и т.п.).

Аудитории рекомендуется проектировать универсальными для всех профилей профессионального обучения.

Помещения практических занятий с учетом возможности перепрофилирования могут быть объединены в следующие группы:

- строительные специальности (мастер отделочных строительных работ, мастер общестроительных работ, мастер столярно-плотничных работ и т.п.) (рекомендуется как в СПУЗ для юношей, так и в СПУЗ для девушек);

- технические специальности (слесарь, токарь, электромонтажник, оператор швейного оборудования, автомеханик и т.п.) (рекомендуется в СПУЗ для юношей);

- гуманитарные специальности (секретарь-машинистка, продавец, контролер-кассир, социальный работник и т.п.) (рекомендуется в СПУЗ для девушек);

- специалисты садово-паркового искусства (озеленитель, садовод-декоратор и т.п.) (рекомендуется как в СПУЗ для юношей, так и в СПУЗ для девушек).

5.54. Количество мастерских определяется исходя из количества групп и организации учебного процесс (2 дня в неделю производственной практики для каждой группы).

5.55. Наполняемость помещений профессиональной подготовки всех типов СПУЗ принимается в соответствии с «Рекомендациями по проектированию образовательных учреждений для детей, нуждающихся в психолого-педагогической и медико-социальной помощи» - 9 чел.

5.56. При расстановке оборудования в мастерских рекомендуется учитывать следующие гигиенические рекомендации:

- слесарные верстаки (столярные верстаки, столы и т.п.) устанавливаются перпендикулярно светонесущей стене в три ряда на расстоянии 0,6 м от окон;

- расстояние между слесарными верстаками (столярными верстаками, столами и т.п.) предусмотрено не менее 1,0 м, а между их рядами - 1,2 м;

- каждое рабочее место снабжено сиденьями, имеющими пояснично-крестцовую опору, и возможность изменять высоту.

5.57. В состав группы помещений профессионального образования следует включать холл для развода воспитанников. В холле следует предусмотреть место ожидания воспитателей. Рекомендуется проектировать данный холл на нижнем этаже блока помещений профессионального образования.

5.58. При помещениях профессионального образования следует предусматривать кладовые для хранения материалов и готовых изделий.

5.59. Мастерские следует оборудовать инстументальными шкафами, столом мастера, вешалками для спецодежды и умывальниками с подачей горячей и холодной воды (не менее 2-х умывальников на группу).

5.60. Производственные помещения профессионального образования, в которых процесс обучения связан с выделением химических веществ и пыли (в т.ч. мастерские радиотехники, электроники, монтажные и др.), следует оборудовать эффективной вентиляционной системой в соответствии со СНиП 2.04.05-91*.

5.61. Монтажные мастерские, в которых проводится рубка и резка металла, а также мастерские с крупногабаритным и тяжелым оборудованием, с крупногабаритными материалоемкими объектами работ учащихся, необходимо располагать на первом этаже.

5.62. В состав помещений профессиональной подготовки СПУЗ, готовящих специалистов по строительным и техническим специальностям следует включать мастерские: «станочный парк», механическую и слесарную.

Мастерская «станочный парк» предназначена для теоретического освоения профессионального инвентаря. В состав оборудования мастерской входят: циркулярная пила, шлифовальной станок, рейсмус, фуговальный станок, фрезерный станок и т.п.

Механическая и слесарная мастерские не рассчитаны на пребывание учащихся. Основное их назначение - подготовка инвентаря к работе. В состав оборудования механической мастерской входят следующие станки: токарный, для заточки пил, для заточки ножей, сверлильный. В состав оборудования слесарной мастерской входят станки, предназначенные для подготовки слесарных инструментов к работе.

5.64. Столярная мастерская для проведения практических занятий предназначена для непосредственного изготовления изделий (например, детской мебели, дверей и т.п.) и оборудована сборочными столами.

5.65. Штукатурная и малярная мастерские представляют собой единые помещения, разделенные на функциональные отсеки. Отсек, предназначенный для вводного обучения, представляет собой лекционную, в состав оборудования которой входят жесткие кресла с откидными столиками для учащихся, стул мастера, классная доска и стенд для наглядных пособий. Отсек, предназначенный для практического обучения, представляет собой зал, разделенный на отдельные боксы кирпичными стенами с имитацией различных поверхностей, требующих отделки (дверных проемов, оконных проемов, арок). Это помещение помимо умывальника для мытья рук оборудовано мойкой для мытья инструментов со специальным сливом.

5.66. Специализированные помещения профессиональной подготовки в СПУЗ, готовящих специалистов по техническим специальностям, представлены мастерскими различного профиля в зависимости от профиля учреждения с подсобными помещениями. В состав оборудования мастерских входят: столы воспитанников, оснащенные скрытой подводкой электричества, стол специалиста, стеллажи с наглядными пособиями.

5.67. Помещения профессиональной подготовки в СПУЗ, готовящих специалистов по гуманитарным специальностям, представлены рядом специализированных кабинетов.

5.68. Помещения профессиональной подготовки в СПУЗ, готовящие специалистов по садово-парковому искусству, представлены кабинетом биологии и рядом лабораторий.

5.69. Производственные помещения профессионального образования включают:

- помещения профессионального образования для воспитанников;

- помещения подготовки процесса обучения для мастеров без участия воспитанников в соответствии с требованиями Трудового законодательства об использовании детского труда; площадь помещений (не менее 60 м2) и их количество определяется заданием на проектирование.

Таблица 5.3.

Рекомендуемые состав и площади помещений профессионального образования.

№№ п.п.

Наименование помещений

Площадь помещений, м2

Примечания

1

2

3

4

Строительные и технические специальности

Общие помещения для строительных и технических специальностей

1.

Кабинет технологии с подсобным помещением

29 + 14 = 43

 

2.

Кабинет материаловедения с подсобным помещением

29 + 14 = 43

 

3.

Кабинет черчения

42

Приложение, Рис. П.4.

4.

Мастерская «станочный парк» с кладовой

42

 

5.

Механическая мастерская с подсобным помещением для работы мастеров

42 + 14 = 56

 

6.

Слесарная мастерская с подсобным помещением для работы мастеров

42 + 14 = 56

 

Помещения практических занятий для строительных специальностей

1.

Учебная столярная мастерская с подсобным помещением

90 + 20 = 110

Приложение, Рис. П.5.

2.

Столярная мастерская для проведения практических занятий с подсобным помещением

90 + 20 = 110

Приложение, Рис. П.6.

3.

Малярная мастерская, в том числе помещения:

132

Приложение, Рис. П.7.

- вводного обучения

26

Располагаются в одном помещении, разделенном на функциональные отсеки

- практического обучения

90

- складское

16

4.

Штукатурная мастерская, в том числе помещения:

132

Приложение, Рис. П.8.

- вводного обучения

26

-«-

- практического обучения

90

 

- складское

16

 

Помещения практических занятий для технических специальностей

1.

Мастерские с подсобными помещениями

60 + 14 = 74

Приложение, Рис. П.9.

Гуманитарные специальности

1.

Специализированные кабинеты

42

 

2.

Зал деловых игр

35

Приложение, Рис. П.10.

Специальности садово-паркового искусства

1.

Кабинет биологии с лаборантской

47 + 14 = 61

 

2.

Лаборатории с подсобными помещениями

65 + 14 = 79

Приложение, Рис. П.11.

Общие помещения для СПУЗ всех типов

1.

Классы-аудитории

36

Приложение, Рис. П.12.

2.

Кабинет охраны труда

36

 

3.

Кабинет этики делового общения

36

 

4.

Кабинет профилактики кризисных ситуаций

36

 

5.

Кабинет заведующего профессиональным образованием

16

 

6.

Комната мастеров

40

Может быть 2-3 комнаты площадью 12-18 м2

7.

Холл для развода воспитанников

90

 

8.

Комната сотрудников режимной службы

10

 

9.

Санитарный узел для учащихся с умывальниками в шлюзе

16

Размещаются поэтажно

10.

Санитарный узел персонала с умывальником в шлюзе

3

 

Помещения общего образования.

5.70. Рекомендуемые состав и площади помещений общего образования приведены в таблице 5.4.

5.71. Данная группа помещений обеспечивает проведение мероприятий, направленных на:

- обучение по образовательным программам в соответствии с возрастными и индивидуальными особенностями подростков;

- психолого-педагогическую помощь в усвоении образовательных программ;

- образование воспитанников с отклонениями в развитии.

5.72. Наполняемость всех классов принимается в соответствии с «Рекомендациями по проектированию образовательных учреждений для детей, нуждающихся в психолого-педагогической и медико-социальной помощи» - 9 чел. Комплектование классов осуществляется по принципу одинакового уровня образования воспитанников.

5.73. В составе группы помещений общего образования предусмотрены неспециализированные классные помещения и специализированные кабинеты: физики-химии, иностранного языка, биологии, компьютерный класс. Учебные помещения должны отвечать требованиям активного ведения учебного урока с организацией как фронтальных, так групповых и индивидуальных форм обучения с широким привлечением технических средств.

5.74. Учитывая специфику контингента воспитанников, неспециализированные классные помещения следует проектировать с трехрядной расстановкой одноместных парт. Количество неспециализированных классных помещений определяется в каждом конкретном случае заданием на проектирование в зависимости от общей вместимости учреждения.

5.75. Учитывая специфику контингента воспитанников, в оборудование как специализированных, так и неспециализированных классных помещений не следует включать стеллажи с пособиями. Хранение пособий следует предусматривать либо в лаборантских, либо в учительской.

5.76. В состав помещений общего образования входит библиотека-книгохранилище без читального зала.

5.77. В состав группы помещений общего образования следует включать холл для развода учащихся. В холле следует предусмотреть место ожидания воспитателей. Рекомендуется проектировать данный холл на нижнем этаже блока помещений общего образования.

5.78. Проектирование санитарных узлов при учебных помещениях осуществляется в соответствии с МГСН 4.06-96.

Таблица 5.4.

Рекомендуемые состав и площади помещений общего образования.

№№ п.п.

Наименование помещений

Площадь помещений, м2

Примечания

1

2

3

4

1.

Класс

36

Приложение, Рис. П.12.

2.

Кабинет занятий физикой и химией с двум лаборантскими

32 + 6 ´ 2 = 44

Приложение, Рис. П.13.

3.

Кабинет иностранного языка

40

 

4.

Компьютерный класс

50

Приложение, Рис. П.14.

5.

Библиотека:

 

 

- книгохранилище на 10000 единиц хранения

35

Размещаются смежно

- комната выдачи книг

10

 

6.

Методический кабинет

24

 

7.

Кабинет заведующего учебной частью

20

 

8.

Учительская

36

 

9.

Холл для развода воспитанников

90

 

10.

Комната сотрудников режимной службы

10

 

11.

Санитарный узел для учащихся с умывальниками в шлюзе

16

Размещаются поэтажно

12.

Санитарный узел персонала с умывальником в шлюзе

3

 

Помещения дополнительного образования.

5.79. Рекомендуемые состав и площади помещений дополнительного образования приведены в таблице 5.5. Проектирование помещений данной группы следует осуществлять в соответствии с положениями «Рекомендаций по проектированию сети и зданий детских внешкольных учреждений г. Москвы».

5.80. Данная группа помещений обеспечивает проведение мероприятий, направленных на:

- раскрытие врожденных склонностей воспитанника, формирование его культурных интересов;

- осуществление социально-бытовой адаптации.

5.81. Наполняемость помещений дополнительного образования принимается в соответствии с «Рекомендациями по проектированию образовательных учреждений для детей, нуждающихся в психолого-педагогической и медико-социальной помощи» - 9 чел.

5.82. Помещения дополнительного образования рекомендуется размещать в блоке досуговых помещений.

5.83. В качестве холла для развода воспитанников в данном случае используется фойе при актовом зале.

5.84. Состав и профиль помещений дополнительного образования в каждом конкретном случае уточняются заданием на проектирование.

Номенклатура видов дополнительного образования должна быть расширенной, предоставляющей возможность подбирать каждому воспитаннику занятия, соответствующие его склонностям.

5.85. Учитывая специфику контингента воспитанников, планировка помещений дополнительного образования, в которых проведение занятий связано с использованием ценного оборудования, должна обеспечивать выделение двух зон доступности:

- зону занятий с руководителем;

- зону ограниченной доступности (хранения ценного оборудования, сырья, изделий).

5.86. Входящие в данную группу кружки: тематические театральные (драмы, фольклорные и т.п.), циркового искусства, музыкальные (ансамбли, оркестры, хор) рекомендуется организовывать в помещениях актового зала.

Таблица 5.5.

Рекомендуемые состав и площади помещений дополнительного образования.

№№ п./п.

Наименование помещений

Площадь помещений, м2

Примечания

1

2

3

4

1.

Интернет-клуб

42

Приложение, Рис. П.15.

2.

Театрально-художественная мастерская с кладовой

49 + 15 = 64

Приложение, Рис. П.16.

3.

Мастерская кино- и фотоискусства с темной комнатой

18 + 6 = 24

 

4.

Мастерская лепки с печью для обжига, кладовыми инвентаря и готовых изделий

52 + 12 = 64

Приложение, Рис. П.17.

5.

Изостудия с кладовой

38 + 14 = 52

Приложение, Рис. П.18.

6.

Мастерская рукоделия (вышивания, плетения, оригами и т.п.)

22

В СПУЗ для девушек

7.

Мастерская визажа, косметологии, парикмахерского искусства

22

В СПУЗ для девушек

8.

Интеллектуальные кружки (краеведения, экологии и т.п.)

36

 

9.

Редакция

18

 

10.

Комната мастеров

25

 

11.

Кладовые для хранения сырья, материалов и готовой продукции

24 - 36

 

12.

Санитарные узлы для воспитанников с умывальниками в шлюзе

16

Разместить поэтажно

13.

Санитарный узел персонала с умывальником

3

 

14.

Комната хранения предметов уборки

4

 

 

 

 

 

 

Лечебно-реабилитационные помещения (психолого-коррекционные и медицинские).

5.87. Рекомендуемые состав и площади лечебно-реабилитационных помещений приведены в таблице 5.6. Состав, количество кабинетов и их площади должны уточняться заданием на проектирование в каждом конкретном случае. Проектирование помещений данной группы следует осуществлять в соответствии с положениями «Рекомендаций по проектированию образовательных учреждений для детей, нуждающихся в психолого-педагогической и медико-социальной помощи».

5.88. Группа лечебно-реабилитационных помещений предназначена для проведения мероприятий, направленных на:

- оздоровление и профилактику, лечение физических и психических заболеваний у воспитанников;

- нормализацию психического состояния воспитанников;

- преодоление отклонений в эмоционально-волевой сфере воспитанников;

- формирование законопослушного поведения несовершеннолетних;

- социально-средовую адаптацию воспитанников.

5.89. Группа медицинских помещений рассчитана на профилактику соматических заболеваний у воспитанников и общее укрепление организма.

5.90. Медицинские помещения следует проектировать с учетом положений МГСН 4.12-97 и Пособия по проектированию учреждений здравоохранения к СНиП 2.08.02-89*. Все кабинеты, входящие в данную группы рассчитаны на индивидуальную работу с воспитанниками.

Учитывая специфику контингента, номенклатура медицинских помещений в СПУЗ должна быть достаточно расширенной и включать кабинеты специалистов различного профиля.

5.91. Психолого-коррекционные помещения предназначены для проведения мероприятий, направленных на:

- индивидуальную психологическую коррекцию;

- преодоление социальной дезадаптации.

5.92. В состав оборудования кабинета групповой психотерапии рекомендуется включать кресла, журнальный столик, компьютерный стол специалиста. Кабинет рассчитан на проведение занятий группы из 9 чел.

5.93. Кабинет релаксации рассчитан на проведение индивидуальной психолого-терапевтической коррекции. В состав оборудования его рекомендуется включать техническое оснащение сенсорного назначения и психолого-терапевтической коррекции, виброкресло, виброкушетку, светомузыкальную установку, стул специалиста, зеленый уголок.

5.94. Кабинет групповых занятий ЛФК рассчитан на проведение занятий в группе из 9 чел.

5.95. Расстановка оборудования в кабинетах специалистов и помещениях для коррекционной работы с подростками представлена в Приложении на соответствующих рисунках.

Таблица 5.6.

Рекомендуемые состав и площади лечебно-реабилитационных помещений (психолого-коррекционных и медицинских).

№№ п.п.

Наименование помещений

Площадь помещений, м2

Примечания

1

2

3

4

Медицинские помещения

1.

Кабинет врача-педиатра

10

 

2.

Кабинет дефектолога

10

 

3.

Кабинет нарколога

10

 

4.

Кабинет гинеколога-венеролога

12

В СПУЗ для девушек Приложение, Рис. П.19.

5.

Кабинет венеролога

10

В СПУЗ для юношей

6.

Кабинет детского психиатра

10

 

7.

Кабинет психоневролога

10

 

8.

Кабинет психотерапевта

10

 

9.

Кабинет патопсихолога

10

 

10.

Кабинет стоматолога

16

Приложение, Рис. П.20.

11.

Кабинет офтальмолога с темной комнатой

18 + 8 = 26

Приложение, Рис. П.21.

12.

Кабинет медицинской сестры

10

 

13.

Процедурная

12

 

14.

Фитокабинет с кладовой

10 + 3

 

15.

Ингаляторий на 3 места со стерилизационной

12 + 3 = 15

Приложение, Рис. П.22.

16.

Кабинет физиотерапии

24

Приложение, Рис. П.23.

17.

Кабинет групповых занятий ЛФК с кладовой и раздевалкой

60 + 6 + 8 = 74

Приложение, Рис. П.24.

18.

Кабинет массажа на 1 место

8

 

Психолого-коррекционные помещения

1.

Кабинет психолога

14

 

2.

Кабинет групповой психотерапии

44

Приложение, Рис. П.25.

3.

Кабинет релаксации

10

Приложение, Рис. П.26.

4.

Санузлы для воспитанников с умывальниками в шлюзе

16

 

5.

Санузел персонала с умывальником

3

 

6.

Комната сотрудников режимной службы

10

 

7.

Комната хранения предметов уборки

4

 

Культурно-досуговые и физкультурно-оздоровительные помещения

5.80. Рекомендуемые состав и площади культурно-досуговых и физкультурно-оздоровительных помещений приведены в таблице 5.7.

5.81. Эта группа помещений обеспечивает проведение мероприятий, направленных на:

- культурное и эстетическое развитие;

- проведение массовых мероприятий;

- физическое развитие, предоставление позитивной возможности дать выход своей энергии.

5.82. Актовый зал рекомендуется проектировать на 100 % вместимости СПУЗ.

5.83. При актовом зале рекомендуется предусматривать фойе, которое используется как холл для развода воспитанников и музей детских поделок.

5.84. Одновременная загрузка спортзала - 18 чел. При зале проектируется 2 раздевальные, на 9 чел. каждая.

При спортивном зале предусматривается кладовая спортинвентаря, смежная с ним.

5.85. Зал гимнастических занятий, рассчитанный на одновременную группу из 9 чел., при необходимости может использоваться для проведения занятий борьбой и тяжелоатлетических занятий. Раздевальная проектируется на 9 чел. Раздевальная и кладовая спортинвентаря располагаются смежно с залом гимнастических занятий.

5.86. Проектирование бассейна следует осуществлять в соответствии с положениями справочного пособия «Проектирование бассейнов» к СНиП 2.08.02-89* и СП 2.1.2.1188-03. Рекомендуемый размер ванны бассейна 25´11,5 м, глубина допускается 1,2 м - в мелкой части и 1,8 м - в глубокой. Одновременная загрузка бассейна - 9 чел.

5.87. Размер ножной ванны при бассейне необходимо предусмотреть 1,8 м (по направлению движения от душевой к чаше бассейна) во всю ширину прохода.

5.88. Раздевальная при бассейне проектируется на группу 9 чел. Площадь раздевальной следует рассчитывать исходя из нормы 2,5 м2 на 1 воспитанника. В СПУЗ для девушек в раздевальной следует предусмотреть установку для сушки волос.

5.89. В СПУЗ рекомендуется дополнительно предусматривать помещения для хранения лыж и велосипедов, площади которых определяются заданием на проектирование.

Таблица 5.7.

Рекомендуемые состав и площади досуговых и физкультурно-оздоровительных помещений

№№ п.п.

Наименование помещений

Площадь помещений, м2

Примечания

1

2

3

4

 

Досуговые помещения

1.

Актовый зал

100

 

2.

Эстрада при зале

Не менее 36

Глубина эстрады - 3,5 - 4 м

3.

Кинопроекционная с перемоточной и радиоузлом

26

 

4.

Фойе

90

 

5.

Комната сотрудников режимной службы

10

 

6.

Санитарный узел для воспитанников с умывальником в шлюзе при фойе

16

 

7.

Помещение для артистов

15

 

8.

Фильмовидеотека (хранилище)

8

 

9.

Помещение пожарного поста

10

 

10.

Кладовая мебели и реквизит

20

 

11.

Кладовая аппаратуры

10

 

Физкультурно-оздоровительные помещения

1.

Спортивный зал 12´24 м

288

 

2.

Раздевальные для воспитанников с душевыми и санитарными узлами при спортзале

18´2

По 2 душевые, 1 унитазу и умывальнику на раздевальную

3.

Снарядная

16

Смежно со спортивным залом

4.

Зал гимнастических занятий

72

 

- раздевальная

12

 

5.

Кладовая спортинвентаря

10

 

6.

Тренажерный зал

72

 

 

- раздевальная

12

 

7.

Комната инструкторов-методистов с санузлом в шлюзе

10 + 3

С состав санузла входят: унитаз, умывальник, душ

8.

Комната сотрудников режимной службы

10

 

9.

Санузел для воспитанников с умывальниками в шлюзе

16

 

10.

Комната гигиены для девушек

4

Разместить при санитарном узле в СПУЗ для девушек

11.

Санитарный узел с умывальником для персонала

3

 

12.

Комната хранения предметов уборки

4

 

13.

Бассейн с ванной 25´11,5 м

362

С учетом обходной дорожки

14.

Инвентарная при бассейне

10

 

15.

Раздевальная на 9 чел.

23

 

16.

Душевая при раздевальной включая ножную ванну

6

2 душевые сетки

17.

Уборная при раздевальной с умывальником

3

 

18.

Комната инструктора с санузлом

10 + 3

В состав оборудования санузла входят: унитаз, умывальник, душ

19.

Комната медсестры

10

Должны располагаться смежно и иметь выход на обходную дорожку

20.

Лаборатория анализа воды

8

21.

Узел управления

6

22.

Помещение хранения химических реактивов

4

 

23.

Реагентная

4

 

24.

Помещение хранения уборочного инвентаря

4

 

Помещения медицинского изолятора

5.90. Рекомендуемые состав и площади помещений медицинского изолятора приведены в таблице 5.8.

5.91. Вместимость изолятора следует предусматривать из расчета не менее 10 % от числа воспитанников.

5.92. Помещения изолятора соединяются с остальными помещениями СПУЗ через тамбур-шлюз, в котором следует размещать умывальник и вешалку для смены халатов.

5.93. В состав помещений изолятора следует включать изоляционные палаты на 1 и 3 чел. Количество палат в каждом конкретном случае определяется заданием на проектирование в соответствии с п. 5.91 настоящих Рекомендаций.

5.94. Между изоляционными палатами и коридором следует предусматривать глухие (не открывающиеся) окна для наблюдения за воспитанниками.

5.95. Для организации питания воспитанников, находящихся в изоляторе, в состав его помещений следует включать буфетную с моечной посуды. Оборудование буфетной рассчитано на подогрев готовой пищи.

5.96. Вход в санитарные узлы в изоляторе следует проектировать из коридора для возможного наблюдения за воспитанниками. Учитывая возможность возникновения различных инфекционных заболеваний и трудности госпитализации воспитанников учреждения, в состав помещений изолятора следует включать 2 санузла и 2 туалетные. Рекомендуемое оборудование санитарного узла: унитаз, умывальник; туалетной: унитаз, умывальник, ванна. В СПУЗ для юношей в состав оборудования санитарного узла следует включать писсуар. В СПУЗ для девушек - бидэ.

Таблица 5.8.

Рекомендуемый состав и площади помещений медицинского изолятора.

№№ п.п.

Наименование помещений

Площадь помещений, м2

Примечания

1

2

3

4

1.

Изоляционная палата на 1 место

6

 

2.

Изоляционная палата на 3 места

15

 

3.

Санитарный узел для воспитанников

4

 

4.

Туалетная для воспитанников

5

 

5.

Процедурная

8

 

6.

Кабинет врача, медицинской сестры

16

 

7.

Комната персонала с раздевальной и санузлом

10 + 4 + 3

Состав оборудования санузла: унитаз душ, умывальник

8.

Буфетная с моечной посуды

12

 

9.

Кладовая со шкафами для чистого и грязного белья

6

 

10.

Комната сотрудников режимной службы

10

 

11.

Комната хранения уборочного инвентаря

4

 

Помещения питания

5.97. Питание для воспитанников СПУЗ организуется в одну смену в общей столовой.

5.98. Площадь обеденного зала принимается из расчета 1,2 м2 на 1 посадочное место; при зале предусматривается умывальная из расчета 3 м2 (1 умывальник) на каждые 18 - 20 мест.

5.99. Производственные помещения кухни следует рассчитывать на работу на сырье. Кроме питания воспитанников, помещения кухни должны обеспечивать питание персонала.

В производственные помещения кухни должен предусматриваться отдельный вход.

5.100. Для питания персонала предусматривается обеденный зал самообслуживания (или буфет) из расчета 1,0 м2 на 1 посадочное место. Его следует располагать в составе помещений столовой (если по архитектурно-планировочному решению группа помещений питания непосредственно примыкает к административной группе помещений) в противном случае - в группе административных помещений. Количество мест определяется заданием на проектирование, исходя из количества питающихся в учреждении, продолжительности обеденного времени и количества смен. При зале предусматривается подсобное помещение, предназначенное для раздачи пищи, хранения и мойки посуды площадью 8 м2.

5.101. Для обслуживания изолятора при помещениях кухни следует предусматривать раздаточную с удобным доступом к внутренним коммуникационным связям (коридорам, лестницам).

5.102. Учитывая специфику контингента воспитанников СПУЗ (большое количество подростков с хроническими заболеваниями в запущеной форме) в состав производственных помещений кухни следует включать кабинет диетсестры.

5.103. Рекомендуемые состав и площади производственных помещений кухни приведены в табл. 5.9.

Таблица 5.9.

Рекомендуемый состав и площади производственных помещений кухни

№№ п.п.

Наименование помещений

Площадь помещений, м2

Примечания

1

2

3

4

1.

Горячий цех

 

 

2.

Холодный цех

70

 

3.

Рыбный цех

 

 

4.

Мясной цех

24

 

5.

Хлеборезка, хранение хлеба

8

 

6.

Цех мучных изделий

14

 

7.

Раздаточная

18

 

8.

Сервизная

8

 

9.

Моечная кухонной посуды

10

 

10.

Моечная столовой посуды

18

 

11.

Охлаждаемая камера для хранения:

 

 

- молочных продуктов

8

 

- рыбы, мяса

8

 

- яиц

6

 

12.

Кладовая сухих продуктов

6

 

13.

Кладовая овощей

12

 

14.

Кладовая суточного запаса

8

 

15.

Помещение первичной обработки овощей

8

 

16.

Загрузочная, кладовая тары

14

 

17.

Камера утилизации отходов с техническим сливом

4

 

18.

Комната заведующего производством

8

 

19.

Кабинет диетсестры

8

 

20.

Бельевая, гардеробная персонала, душевая, уборная

18

 

21.

Комната сотрудников режимной службы

10

Разместить при обеденном зале для воспитанников

22.

Комната хранения предметов уборки

4

 

Административно-бытовые помещения

5.104. Рекомендуемый состав и площади административно-бытовых помещений приведены в таблице 5.10.

5.105. В состав административно-бытовых помещений рекомендуется включать кабинет сотрудника по организации перевозки несовершеннолетних воспитанников. Основная задача данной службы - организация доставки и сопровождения воспитанника, например, к месту его дальнейшего проживания. Кабинет специалистов рассчитан на одновременное пребывание 2 сотрудников.

5.106. Комната дежурной части должна быть оборудована центральным пультом, телефонами оперативной связи. Входная дверь в дежурную часть должна автоматически закрываться.

5.107. Дисциплинарное помещение, находящееся при комнате дежурной части, рассчитано на воспитательный эффект от пребывания воспитанника без контактов со сверстниками. Данное помещение следует располагать в непосредственной близости от центрального поста режимной службы. В помещении следует предусмотреть решетки на окнах. Дверь в данное помещение должна закрываться на секретную защелку и на висячий замок. В двери должен быть предусмотрен смотровой проем, оборудованный решеткой. В состав оборудования комнаты следует включать: кровать, стол, стул, унитаз и умывальник (не отгороженные экранами).

5.108. Кладовую чистого белья с починкой и кладовую грязного белья рекомендуется располагать рядом с прачечной.

5.109. Прачечная, кладовая сезонной одежды и инвентарные могут располагаться в подвальном помещении.

5.110. Помещение кладовой сезонной одежды и обуви следует оборудовать принудительной вентиляцией.

5.111. Комнату для сбора и досмотра передач для воспитанников рекомендуется располагать вблизи комнаты персонала режимной службы. Прием передач осуществляется дежурным на КПП.

5.112. В состав помещений КПП входят: помещение для охранника с санитарным узлом, проход с автоматически закрывающимися металлическими дверями и турникетом для сотрудников и посетителей.

Таблица 5.10.

Рекомендуемые состав и площади помещений административно-бытового обслуживания.

№№ п.п.

Наименование помещений.

Площадь помещений, м2

Примечания.

1

2

3

4

1.

Кабинет директора

36

 

2.

Приемная

18

Смежно с кабинетом директора

3.

Канцелярия

12

 

4.

Кабинет заместителя директора по хозяйственной части

16

 

5.

Помещение дежурного персонала технического обслуживания

14

 

6.

Бухгалтерия с кассой

18 + 4

 

7.

Комната сестры-хозяйки

12

 

8.

Кабинет сотрудников службы организации перевозки воспитанников

12

 

9.

Комната психологической разгрузки персонала

18

 

10.

Комната отдыха персонала

36

 

11.

Компьютерный центр с архивом

24 + 10

 

12.

Помещение пожарного поста

12

 

13.

Кладовая чистого белья

20

 

14.

Кладовая грязного белья

18

 

15.

Прачечная

22

 

16.

Кладовая сезонной одежды и обуви

22

 

17.

Инвентарные

40

 

18.

Санитарные узлы для мужчин и женщин с умывальниками в шлюзе

3´2

 

19.

Кабины личной гигиены для женщин

2

Разместить при санитарном узле

20.

Комната хранения уборочного инвентаря

4

 

21.

Центральный пост режимной службы с кладовой для хранения видеозаписей слежения

16 + 6

 

22.

Комната для сбора и досмотра корреспонденции и передач для воспитанников

8

 

23.

Комната персонала режимной службы с гардеробной и санузлом

14

В состав оборудования санузла входят: душ, унитаз, умывальник

24.

Дисциплинарное помещение

6

 

25.

Комната начальника смены

10

 

26.

Помещение КПП

10

Приложение, Рис. П.27.

ПРИЛОЖЕНИЯ

ЭКСПЛИКАЦИЯ ОБОРУДОВАНИЯ

I - спальная на 1 место

1. Кровать

2. Стул

II - спальная на 3 места

1. Кровать

2. Стул

Рис. П.1. Спальные комнаты на 1 и на 3 места.

ЭКСПЛИКАЦИЯ ОБОРУДОВАНИЯ

1. Стол ученический

2. Стул

3. Стол воспитателя

4. Классная доска

5. Умывальник с вешалкой для полотенца

Рис. П.2. Комната приготовления уроков.

ЭКСПЛИКАЦИЯ ОБОРУДОВАНИЯ

1. Игровой стол

4. Мягкая мебель

2. Стул

5. Журнальный стол

3. Комбинированный шкаф

6. Телевизор

Рис. П.3. Комната тихого отдыха (а) и проведения психолого-коррекционных занятий (б). Примеры расстановки мебели и оборудования.

ЭКСПЛИКАЦИЯ ОБОРУДОВАНИЯ

1. Чертежный стол с выдвижной панелью для инструментов

2. Регулируемый табурет

3. Стол учителя

4. Стул

5. Классная доска

6. Умывальник

7. Вешалка для полотенца

Рис. П.4. Кабинет черчения.

ЭКСПЛИКАЦИЯ ОБОРУДОВАНИЯ

1. Верстак столярный ученический

2. Верстак столярный мастера

3. Табурет регулируемый

4. Стол мастера

5. Стул

6. Инструментальный шкаф

7. Классная доска

8. Умывальник с вешалкой для полотенца

9. Вешалка для спецодежды

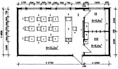
Рис. П.5. Учебная столярная мастерская с подсобным помещением.

ЭКСПЛИКАЦИЯ ОБОРУДОВАНИЯ

1. Рабочий стол для сборки изделий из дерева

2. Ванна для намачивания деревянных изделий

3. Пресс

4. Верстак

5. Дисковая пила

6. Токарный станок по дереву

7. Стол мастера

8. Классная доска

9. Умывальник с вешалкой для полотенца

10. Инструментальный шкаф

11. Стул

12. Вешалка для спецодежды

Рис. П.6. Столярная мастерская для практических занятий.

ЭКСПЛИКАЦИЯ ОБОРУДОВАНИЯ

I. мастерская практического обучения

1. Учебный отсек, имитирующий комнату

2. Окна

3. Двери

4. Арочный проем

5. Навесные шкафы для инструментов

6. Место для подготовки обоев к наклейке

7. Ванна со специальным сливом для мытья инструментов

8. Двойная раковина для мытья рук

9. Вешалка для спецодежды

10. Стол мастера

11. Стул

II. аудитория вводного обучения

12. Кресло с откидным столиком

13. Стул мастера

14. Стол мастера

15. Стенд для наглядных пособий

16. Телевизор с видеомагнитофоном

III. кладовая

Рис. П.7. Малярная мастерская.

ЭКСПЛИКАЦИЯ ОБОРУДОВАНИЯ

I. мастерская практического обучения

1. Учебный отсек, имитирующий комнату

2. Окна

3. Двери

4. Арочный проем

5. Ванна с раствором

6. Стенка с арочным проемом

7. Ванна со специальным сливом для мытья инструментов

8. Двойная раковина для мытья рук

9. Вешалка для спецодежды

10. Стол мастера

11. Стул

12. Инструментальный шкаф

II. аудитория вводного обучения

13. Кресло с откидным столиком

14. Стул мастера

15. Стол мастера

16. Стенд для наглядных пособий

17. Телевизор с видеомагнитофоном

III. кладовая

Рис. П.8. Штукатурная мастерская.

ЭКСПЛИКАЦИЯ ОБОРУДОВАНИЯ

I - мастерская

1. Стол мастера

2. Стул

3. Рабочий стол с выдвижным ящиком для инструментов

4. Подключение к электросети

5. Регулируемый стул с пояснично-крестовой опорой

6. Демонстрационный рабочий стол

7. Стенд для наглядных пособий

8. Стеллаж для инструментов и наглядных пособий

9. Вешалка для халатов

10. Умывальник с вешалкой для полотенца

II - подсобное помещение

11. Стеллаж для хранения аппаратуры

Рис. П.9. Универсальная учебная мастерская по ремонту и сборке радио, электроаппаратуры и бытовой техники.

ЭКСПЛИКАЦИЯ ОБОРУДОВАНИЯ

1. Кресло с подлокотниками и откидными столиками

2. Стол лектора

3. Стул

4. Столик с телевизором, видеомагнитофоном

5. Классная доска

6. Умывальник с вешалкой для полотенца

Рис. П.10. Зал деловых игр.

ЭКСПЛИКАЦИЯ ОБОРУДОВАНИЯ

I - лаборатория

1. Рабочий стол с дополнительным электроосвещением

2. Рабочий стол с дополнительным электроосвещением для выращивания рассады

3. Рабочий стол для подготовительных работ (посадки семян, пикировки рассады и т.п.)

4. Стол для термообработки семян

5. Стол для выращивания рассады при естественном освещении

6. Стол мастера

7. Стул

8. Ванна для мытья инструментов со специальным сливом

9. Умывальник с вешалкой для полотенца

10. Емкости для различных компонентов почвы

11. Подвесной стеллаж для хранения мелкогабаритных садовых инструментов

12. Стенд с наглядными пособиями

II - подсобное помещение

13. Холодильник

14. Шкаф для хранения семян

15. Шкаф для спецодежды

16. Стеллаж для хранения садовых инструментов, удобрений и подсобного оборудования

Рис. П.11. Лаборатория садово-паркового искусства (для выращивания рассады цветочных и декоративных растений).

ЭКСПЛИКАЦИЯ ОБОРУДОВАНИЯ

1. Стол ученический

2. Стул

3. Стол учителя

4. Классная доска

5. Умывальник

6. Вешалка для полотенца

Рис. П.12. Класс-аудитория.

ЭКСПЛИКАЦИЯ ОБОРУДОВАНИЯ

I. КАБИНЕТ

1. Стол ученический - лабораторный

2. Стул ученический

3. Стол демонстрационный

4. Стул учительский

5. Мойка (умывальник)

6. Бак для мусора

7. Классная доска

II, III. ЛАБОРАНТСКИЕ

8. Вытяжной шкаф

9. Шкаф-стеллаж

Рис. П.13. Кабинет для занятий физикой и химией (I) с лаборантскими (II) и (III).

ЭКСПЛИКАЦИЯ ОБОРУДОВАНИЯ

1. Стол

2. Стул

3. Стол специалиста

4. Компьютерный стол специалиста

5. Классная доска

6. Компьютер

7. Вешалка для полотенца

8. Умывальник

9. Ученический компьютерный стол

10. Комбинированный шкаф

Рис. П.14. Компьютерный класс.

ЭКСПЛИКАЦИЯ ОБОРУДОВАНИЯ

1. Компьютерный стол с компьютером

2. Стул

3. Мягкая мебель

4. Журнальный столик

5. Музыкальная установка

6. Умывальник

7. Вешалка для полотенца

Рис. П.15. Интернет-клуб.

ЭКСПЛИКАЦИЯ ОБОРУДОВАНИЯ

I. МАСТЕРСКАЯ

1. Стол ученический для индивидуальной работы

2. Стул

3. Рабочий стол

4. Швейная машина

5. Табурет регулируемый

6. Мольберт

7. Стол мастера

8. Стул мастера

9. Умывальник

10. Вешалка для полотенца

11. Шкаф для экспозиций

II. КЛАДОВАЯ

12. Комбинированный шкаф

Рис. П.16. Театрально-художественная мастерская с кладовой.

ЭКСПЛИКАЦИЯ ОБОРУДОВАНИЯ

1. Рабочий стол

2. Стол для индивидуальной работы

3. Табурет

4. Печь для обжига

5. Гончарный круг

6. Стол мастера

7. Стул

8. Умывальник с вешалкой для полотенца

Рис. П.17. Кабинет лепки и керамики с кладовой.

ЭКСПЛИКАЦИЯ ОБОРУДОВАНИЯ

I. ИЗОСТУДИЯ

1. Мольберт

2. Помост для моделей

3. Стенд для рисунков и картин

4. Стол преподавателя

5. Стул преподавателя

6. Умывальник

7. Вешалка для полотенца

II. КЛАДОВАЯ

8. Комбинированный шкаф

Рис. П.18. Изостудия с кладовой.

ЭКСПЛИКАЦИЯ ОБОРУДОВАНИЯ

I. КАБИНЕТ ГИНЕКОЛОГА-ВЕНЕРОЛОГА

1. Кресло гинекологическое

2. Винтовой табурет

3. Передвижной светильник

4. Стол врача

5. Стул

6. Столик инструментальный

7. Бачок для мусора

8. Умывальник

9. Шкаф медицинский

10. Ширма

Рис. П.19. Кабинет гинеколога-венеролога.

II. КАБИНЕТ СТОМАТОЛОГА

1. Кресло стоматологическое

2. Столик инструментальный

3. Установка стоматологическая универсальная

4. Винтовой табурет

5. Плевательница

6. Светильник

7. Шкаф медицинский

8. Умывальник

9. Бачок для мусора

10. Стол врача

11. Стул

Рис. П.20. Кабинет стоматолога.

ЭКСПЛИКАЦИЯ ОБОРУДОВАНИЯ

1. Стол врача

2. Стул

3. Столик с набором линз для проверки остроты зрения

4. Офтальмологические установки

5. Табурет винтовой

6. Кушетка смотровая

7. Таблица

8. Шкаф медицинский

9. Умывальник

10. Бачок для мусора

11. Столик инструментальный

12. Светозащитная штора

Рис. П.21. Кабинет офтальмолога с темной комнатой.

ЭКСПЛИКАЦИЯ ОБОРУДОВАНИЯ

1. Стационарная ингаляционная установка

2. Винтовой табурет

3. Стол процедурной медсестры

4. Стул

5. Умывальник

6. Бачок для мусора

7. Вешалка для полотенца

Рис. П.22. Ингаляторий на 3 места.

ЭКСПЛИКАЦИЯ ОБОРУДОВАНИЯ

1. Кушетка

2. Столик с аппаратурой

3. Столик с аппаратурой для приема процедур сидя

4. Стул

5. Стол врача

6. Шкаф медицинский

7. Умывальник

8. Вешалка для полотенца

Рис. П.23. Кабинет физиотерапии.

ЭКСПЛИКАЦИЯ ОБОРУДОВАНИЯ

I. ЗАЛ

1. Стол методиста

2. Стул методиста

3. Шведская стенка

4. Скамья

5. Зеркало

6. Маты для занятий

II. КЛАДОВАЯ

7. Комбинированный шкаф

8. Манеж для складирования мячей

III. РАЗДЕВАЛКА

9. Скамья для переодевания

10. Шкаф методиста

11. Крючки для одежды

12. Умывальник

13. Вешалка для полотенца

Рис. П.24. Кабинет групповых занятий ЛФК с кладовой и раздевалкой.

ЭКСПЛИКАЦИЯ ОБОРУДОВАНИЯ

1. Стол

2. Стул

3. Стол специалиста

4. Кресло

5. Умывальник

6. Вешалка для полотенца

Рис. П.25. Кабинет групповой психотерапии на 9 человек.

ЭКСПЛИКАЦИЯ ОБОРУДОВАНИЯ

1. Виброкушетка

2. Виброкресло

3. Столик для специальной аппаратуры

4. Установка с водяным каскадом

5. Стул специалиста

6. Штора

Рис. П.26. Кабинет релаксации.

ЭКСПЛИКАЦИЯ ОБОРУДОВАНИЯ

I. ПОМЕЩЕНИЕ ПОСТА РЕЖИМНОЙ СЛУЖБЫ

а) Комната дежурного

1. Стол с пультом управления

2. Стул

3. Стеллаж для складирования передач

б) Санузел

II. ПРОХОД ДЛЯ СОТРУДНИКОВ И ПОСЕТИТЕЛЕЙ НА ТЕРРИТОРИЮ СПУЗ

4. Турникет

III. ВОРОТА ДЛЯ ПРОЕЗДА АВТОТРАНСПОРТА НА ТЕРРИТОРИЮ СПУЗ

Рис. П.27. Помещение контрольно-пропускного пункта.

 




ГОСТЫ, СТРОИТЕЛЬНЫЕ и ТЕХНИЧЕСКИЕ НОРМАТИВЫ.
Некоммерческая онлайн система, содержащая все Российские Госты, национальные Стандарты и нормативы.
В Системе содержится более 150000 файлов нормативно-технической документации, действующей на территории РФ.
Система предназначена для широкого круга инженерно-технических специалистов.

Рейтинг@Mail.ru Яндекс цитирования

Copyright © www.gostrf.com, 2008 - 2026