| |
МИНИСТЕРСТВО ЖИЛИЩНО-КОММУНАЛЬНОГО
ХОЗЯЙСТВА РСФСР
ЛЕНИНГРАДСКИЙ
НАУЧНО-ИССЛЕДОВАТЕЛЬСКИЙ ИНСТИТУТ
ОРДЕНА ТРУДОВОГО КРАСНОГО ЗНАМЕНИ
АКАДЕМИИ КОММУНАЛЬНОГО ХОЗЯЙСТВА им. К.Д. ПАМФИЛОВА
ТЕХНОЛОГИЧЕСКАЯ
КАРТА № 29
УТЕПЛЕНИЕ ПРОМЕРЗАЮЩИХ УЧАСТКОВ ОДНОСЛОЙНЫХ
КЕРАМЗИТОБЕТОННЫХ СТЕН КРУПНОПАНЕЛЬНЫХ ЖИЛЫХ ДОМОВ
СЕРИИ 1-335
ЛЕНИНГРАД
1975
Разработаны лабораторией технической эксплуатации
Утверждена 1 апреля 1970
г. Приказ МКХ РСФСР № 13
Срок введения 1 апреля 1970
г.
Содержание
1. Настоящая технологическая карта
разработана на утепление участков однослойных керамзитобетонных стен
крупнопанельных жилых домов серии 1-335к (полный каркас), находящихся в
эксплуатации.
2. Технологической картой предусмотрен
вариант утепления наружных однослойных керамзитобетонных
стен со стороны жилых помещений (рис. 1, 2), которое выполняется с целью
предотвращения промерзания или переохлаждения внутренних поверхностей стен.

Рис.
1 Рядовая секция серии 1-335 к.

Рис.
2 Утепление внутренней поверхности стен
1 - утепление стен; 2 - ригель; 3 - колонна;
4 - перегородка
3. Работам по утеплению стен
должно предшествовать тщательное обследование их как с цепью определения
характера и объема работ, так и с цепью выявления причин, вызывающих
промерзания. Этими причинами могут быть: неплотное замоноличивание и плохая
герметизация стыков, «мостики холода» в местах расположения закладного металла,
трещины и глубокие раковины в теле стеновых панелей, дефекты в наружной
облицовке, повышенная влажность керамзитобетона панели, повышенный объемный вес
его по сравнению с предусмотренным проектом и т.д.
При обследовании необходимо обращать
внимание на зоны, расположенные вблизи стыков панелей стен и перекрытий .
4. Приступить к утеплению стен
можно только по-
турку. Если при
вскрытии штукатурки обнаружится дефектная структура керамзитобетона (с
увеличенной пористостью, большими включениями из тяжелого бетона и т.п.),
последний в этих местах выбивается
и заменяется новым;
-
просушить сырые места отражательными электролампами, калориферными установками
и т.п.;
-
оштукатурить места, где отбита сырая штукатурка;
-
сделать насечку под штукатурку поверхности утепляемой стены;
- по
поверхности стены насверлить электродрелью гнезда Æ 20 мм,
глубиной 70 мм,
с шагом 500 мм
и забить в них с расклиниванием изнутри сухие деревянные пробки;
- в деревянные пробки забить гвозди 70 × 4 мм
и натянуть по ним металлическую тканую сетку с ячейками 10 × 10 мм;
- по
сетке за два раза нанести цементно-песчаный штукатурный слой (на керамзитовом
песке) толщиной 30 мм;
-
после высыхания штукатурки оклеить стены обоями.
Штукатурный
слой необходимо доводить до панелей перекрытия, в связи с чем необходимо
опилить на 50 мм
пол и лаги, примыкающие к утепляемой стене.
Вариант 2 (рис.
4):

Рис.
4 Утепление стен керамзитобетоном
1 -
оплетка из проволоки Æ 2,5-3,0
мм; 2 - завершенный штырь Æ 8,0 мм;
3 - керамзитобетон М-50, γ = 1200 кг/м3; 4 - цементно-песчаная
затирка; 5 - цементный раствор М-75; 6 - стальной клин – 14 × 5, l
= 70 мм
-
удалить со стены обои, плесень, отбить промерзающую штукатурку и участки
керамзитобетонной стены на глубину до 10
см;
-
просушить сырые места стены отражательными электролампами или другими установками;
-
оштукатурить места, где отбита
штукатурка и керамзитобетон (без затирка поверхности);
-
сделать насечку остальной части стены под штукатурку;
- по
поверхности стены электродрелью насверлить гнезда Æ 20 мм,
глубиной 100 мм,
с шагом 500 × 500 мм в шахматном порядке и заделать в них на цементном
растворе М-75 стальные Т-образные штыри Æ 8 мм,
длиной 130 мм,
с расклиниванием стальными клиньями;
- по
штырям сделать оплетку из проволоки Æ 2,5-3
мм для армирования
керамзитобетонного слоя, причем армируемая проволока должна проходить в
середине этого слоя,
- у
внутренней поверхности стены (т.е. со стороны комнаты) установить инвентарную
сборно-разборную опалубку (см. приложение, листы 1-6);
-
уложить в опалубку керамзитобетон
М-50, объемным весом, близким к объемному весу материала стены, слоем толщиной
50 - 70 мм.
Бетонирование производить
последовательно, наращивая щиты опалубки
снизу вверх. Последний ярус, у потолка, высотой 70
мм забетонировать
более пластичным керамзитобетоном способом нанесения штукатурного слоя.
Уплотнение керамзитобетона при бетонировании может осуществляться вручную
штыкованием шуровкой, вибрированием легкие глубинным вибратором и т.д. Засыпка
керамзитобетона за стенку опалубки может производиться специальными ковшами,
ведрами, совковыми лопатами;
-
разобрать инвентарную опалубку после приобретения керамзитобетоном достаточной
прочности и сделать цементно-песчаную затирку поверхности прибетонированного
слоя;
-
после высыхания утепляющего слоя стены оклеить обоями или окрасить;
-
после выполнения малярных работ восстановить разобранный участок пола вдоль наружной
стены.
Вариант 3 (рис.
5):

Рис.
5. Утепление стен готовыми плитами
1 - цементно-керамзитобетонный слой (грунт под
облицовочную керамзитобетонную плиту); 2
- керамзитобетонная плита 400 × 250 × 50 мм; 3 - анкерный штырь Æ 8
мм; 4 - цементно-песчаный затирочный слой; 5 -
цементно-песчаный раствор М-25; 6 - затирочный слой; 7 - пробка деревянная
расклинена; 8 - сетка, армирующая плиту; 9 - шайба 10 ГОСТ 6958-54;
10 - сварка
-
удалить со стены обои, плесень, отбить отсыревшую штукатурку и промерзающие
участки стены на глубину 10 см;
-
просушить сырые места стены отражательными лампами или другими средствами;
-
оштукатурить места стены, где отбиты штукатурка и керамзитобетон (без
затирочного слоя);
-
сделать насечку остальной части поверхности стены;
- по
поверхности стены электродрелью насверлить гнезда Æ 20
мм
глубиной 80 мм
с шагом 403 × 253 мм, забить в них деревянные пробки с расклиниванием
изнутри;
-
нанести на поверхность стены цементно-песчаный слой толщиной 3
мм, по нему облицевать стены готовыми керамзитобетонными
плитками размером 400 × 250 × 50 мм, с укреплением их специальными
анкерными штырями, забиваемыми в деревянные пробки в узлах сопряжений 4-х плит.
Плиты изготавливаются из керамзитобетона М-50 объемным весом близким к
объемному весу материала стены, армированного проволокой Æ 2 - 3 мм.
Швы в сопряжениях плит должны быть заполнены раствором на толщину платы. Сверху
на облицовочный слой (на плитки) наносится цементно-песчаный затирочный слой;
-
после высыхания поверхности стены оклеить обоями или окрасить;
-
восстановить разобранный участок пола вдоль наружной стены с постановкой
галтелей (при щитовых полах).
7. Приготовление
раствора и керамзитобетона рекомендуется осуществить на централизованном или
приобъектном растворном узле. Приготовление его вручную на объекте допускается
только в единичных случаях, когда необходимо выполнять работы в одной комнате.
Доставка бетона
и раствора на объект должна осуществляться в количествах, позволяющих
употребить их в дело до наступления схватывания.
8. Подъем
материалов в месту работы на этажи целесообразно осуществлять установленной на
земле электролебедкой типа Л-0,125, подъемный блок которой подвешивается на
консольной балке, укрепляемой на полого-скатной крыше (рис. 6). При этом
материалы подаются в окно: элементы опалубки - пакетами или в контейнерах (рис.
8), раствор и керамзитобетон - в бачках, ведрах и т.п.

Рис.
6 Схема установки консольной балки и лебедки для подъема материалов
1 -
консольная балка I № 10,
l = 4,5
м; 2 - приваренная к балке металлическая планка сечением
30 × 10 мм; 3 - прокладка - доска 50 × 25 × 6 см; 4 -
карабин; 5 - трос Æ
4,5; 6 - захват; 7 - платформа для установки противовеса (6 железобетонных плит
весом по 40 кг
размером 0,7 × 0,4 × 0,06 м) из двух полос Ст. 3 сечением
50×8 мм, закрепленных на конце консольной балки болтами; 8 - лебедка
Л-0,125 грузоподъемность 125
кг, вес лебедки 50
кг (лебедку поместить в будку с деревянным полом); 9 -
пригруз - железобетонные плиты (4 шт. по 40
кг каждая)

техническая характеристика
|
Грузоподъемность - 50
кг
Полезный вылет стрелы - 0,8
м
Скорость подъема груза - 25 м/мин
Диаметр тросса - 2,5 мм
Канатоемкость барабана - 30 м
Мощность
электродвигателя (однофазная эл. дрель типа И-28-А) - 0,6 квт
Число оборотов
электродвигателя - 295 об/мин
Вес
подъемника:
Каретки с электродвигателем - 15
кг
Ригеля с раздвижными стайками - 8 кг
Стрелы - 5 кг
Общий - 28
кг
Производительность при 20 циклах в час -
до 1 т/час
Время установки
подъемника- 4 ÷ 9 мин
|
Рис
7 Переносной консольно-балочный
кран «Малыш»

Рис. 8 Контейнер для подъема
древесно-волокнистых плит и сухой штукатурки
(вес контейнера ~ 27 кг)
1 - └ 25 × 25 × 3; 2 - лист
из кровельного железа; 3 - откидной крюк; 4 - приваренная планка
Лебедка имеет грузоподъемность 125
кг, ее вес 50
кг без пригруза; последнее позволяет легко перемещать ее
по земле.
При отсутствии лебедки Л-0,125 возможно
использование лебедки Т-66А грузоподъемностью 500
кг или переносно-консольного балочного крана «Малыш»,
грузоподъемностью 50 кг,
монтируемого в окне лестничной клетки (рис. 7). Применение последнего в зимнее
время невозможно, так как нельзя держать закрытым окно, в котором он
установлен, в периоды между подъемами.
Подъем материалов вручную допускается как
исключение, при малых объемах работ.
9. Работы выполняются с
инвентарных подмостей - раздвижных столиков (рис. 9), под наблюдением мастера,
который обязан вести пооперационный контроль работ и фиксировать качество их
выполнения в специальном журнале
(табл. 1).

Рис. 9 Трубчатый раздвижной столик
1 – опоры, 2 –
пальцы, 3 – выдвижные штоки, 4 – настил – площадка, 5 – поперечины
Таблица 1
ЖУРНАЛ
наблюдения за работами по устранению
дефектов крупнопанельных жилых домов
Город
район, ЖЭК №
ул. , дом №
Вид ремонта:
Утепление участков однослойных керамзитовых стен крупнопанельных жилых домов
серии I-335
|
Задание на ремонт
|
Выполнение ремонта
|
Примечание
|
|
№№
квартиры
|
Этаж
|
Наименование работ (в соответствии с
технологической картой)
|
Объем
|
Дата
|
Наименование работ
|
Объем
|
|
единицы измерения
|
количество
|
единицы измерения
|
количество
|
|
|
|
|
|
|
|
|
|
|
|
|
Задание выдал
Гл. инженер ЖЭК №
_________________________________
«____» 19
г.
|
Работы выполнил
Производитель работ (мастер)
__________________________
«___» 19 г.
|
Техника безопасности
10. Стальные канаты для
подъема грузов должны быть испытаны на двойную статическую нагрузку путем
равномерного подъема, опускания и остановки, и динамическую нагрузку - с
грузом, превышающим рабочей на 10 %.
11. Опирание консольной балки на карниз не разрешается. Вес пригруза на
конце консольной балки, противоположном свешивающемуся над карнизом, должен
быть не менее двухкратного тягового усилия лебедки.
12. Место подъема груза должно быть ограждено (проход под поднимаемым грузoм запрещается).
13. Установленная на земле лебедка должна иметь пригруз
(балласт) весом не менее двойного тягового усилия лебедки. В качестве балласта
рекомендуется применять ящики с песком, гравием, а также бетонные блоки.
Укладка балласта из штучных изделий (плит, радиаторов) без крепления их к раме
лебедки запрещается.
14. Ведущий конец каната, подходя к
лебедке, должен быть перпендикулярен к ее барабану и подходить к лебедке снизу.
Все наружные вращающиеся части лебедки должны
быть ограждены.
15. Минимальное расстояние
лебедки до места подъема груза должно составлять для пятиэтажного здания не
менее 7 метров.
Электропроводка должна быть проложена в трубах, а корпус электродвигателя и станина
лебедки заземлены.
16. К работе по установке
консольной банки и лебедки, а также подъему грузов допускаются рабочие,
прошедшие инструктаж по технике безопасности и имеющие медицинское
удостоверение на право работы на высоте.
17. К работе с
электроинструментом допускаются рабочие, прошедшие специальное обучение.
18. При напряжении свыше 36 в работа с
электроинструментом должна производиться в диэлектрических перчатках и галошах.
Корпус электроинструмента должен быть заземлен.
19. К укладке бетона или керамзитобетона
допускаются бетонщики, имеющие
удостоверение о прохождении ими
обучения безопасным методам работы.
20. К работе с вибратором допускаются
бетонщики, предварительно прошедшие медицинское освидетельствование, которое периодически
должно повторяться.
При работе с вибратором бетонщик должен
быть в резиновых сапогах и перчатках.
Устройства для включения вибратора должно
быть закрытого типа.
21. Каждый рабочий, работающий с
электрифицированным инструментом (вибратором, электродрелью и др.) должен
знать, помимо безопасных способов работы, меры защиты от поражения
электрическим током и уметь оказывать первую помощь пострадавшему.
22.
Пускатель или рубильник для включения электролебедки электроинструментов должны
находиться в ящике, запираемом на замок. Лебедка должна быть закрыта
общим кожухом.
23.
При уходе рабочих о рабочего места все электроустановки и электроинструменты
должны быть обесточены.
При первом варианте
утепления стен
24.
Работы выполняются звеном, состоящим И8 двух человек: плотник-бетонщик III-IV разр. -
1 чел., штукатур-маляр III разр. - 1 чел.
Предполагается
искусственная сушка штукатурки электроотражательными лампами или приборами с
инфракрасным излучением, без постоянного присутствия при них рабочего данного
звена.
Продолжительность
сушки принята 1,5 суток.
В интервал
времени для сушки штукатурки в первой комнате, звено занято на аналогичных
работах по двум другим комнатам, в которых оно может выполнить за это время все
работы, кроме малярных. Затем заканчиваются отделочные операции в первой
комнате.
При втором варианте
утепления стен.
25. Работы
выполняются тем же звеном из двух человек, в одну смену.
В
интервал времени, необходимый для твердения и просушки керамзитобетона, звено
занято выполнением аналогичных работ по другим квартирам дома;
продолжительность твердения керамзитобетона до распалубки принята 5 суток. При
его составе на портландцементе марки "300" и нормальных условиях
твердения при t ≥ +15°С, за этот срок примерная прочность составит 50 % от R28.
Продолжительность
искусственной сушки стены, утепленной указанные способом, принята 4 суток.
При третьем варианте
утепления стен,
Работы
выполняются звеном двух человек в одну стену. Планируется искусственная сушка
поверхности облицованной стены перед малярными работами в течение 3-х суток.
Предполагается в это время звено занять на выполнении аналогичных работ во 2-й
и 3-й комнатах.
Таблица 2
Калькуляция трудовых затрат
На утепление участков сплошных керамзитобетонных стен
крупнопанельных жилых домов серии I-335к на
1 комнату с размером
поперечных осях 2,6 м, в рядовой секции дома (способ утепления выбирается
в зависимости от степени промерзания)
|
№№
пп
|
Основание к принятым нормам
|
Наименование работ
|
Единица измерения
|
Объем работ
|
Норма времени на единицу измерения в
чел.-час
|
Затраты труда на весь объем работ в
чел.-час
|
Расценки на единицу измерения в руб.-коп.
|
Стоимость затрат на весь объем работ в
руб.-коп.
|
|
1
|
2
|
3
|
4
|
5
|
6
|
7
|
8
|
9
|
|
а) Утепление цементно-песчанным штукатурным
слоем
|
|
|
|
Подготовительные
работы
|
|
|
|
|
|
|
|
1
|
ЕНиР 1969 г.
1-11, 2а, д
1-14, 2б
|
Погрузка на автомашину консольной балки, лебедки,
плит, пригруза, элементов опалубки, материалов материалов и разгрузка их на
объекте с отноской до 30 м
|
т
|
1,3
|
2,04
|
2,45
|
0-89
|
1-07
|
|
2
|
ЕНиР 1969 г.
1-14, 2а, б
|
Подъем вручную на крышу дома на высоту до 15 м элементов консольной
балки, пригруза и др. при весе одного элемента до 30 кг
|
т
|
0,3
|
5,14
|
1,54
|
2-24
|
0-67
|
|
3
|
ЕНиР 1969 г.
1-14, 2а, б
|
Опускание с крыши вручную
с высоты 15 м разобранных элементов консольной балки, пригрузов и др. при
весе одного элемента до 30 кг (приравнивается 120 м перемещения по
горизонтали)
|
т
|
0,3
|
4,24
|
1,27
|
1-75
|
0-53
|
|
4
|
ЕНиР 1969 г.
20-1-174
п. 4
|
Сборка на крыше дома
элементов консольной балки для подъема грузов лебедкой с электроприводом
|
шт.
|
1
|
1,10
|
1,10
|
0-615
|
0-615
|
|
|
|
Итого
подготовительные работы
|
|
|
|
6,36
|
|
2-84
|
|
|
|
Основные работы
|
|
|
|
|
|
|
|
5
|
ЕНиР 1969 г.
6-1-36
ВНиР 1966
г. Минск
3-9 п. 1
К = 0,835
|
Обрезать ручной
дисковой пилой (с электроприводом) паркетный пол с основанием на ширину до 10
см вдоль наружной стены и в образовавшейся борозде устроить опалубку в 1
доску вплотную к полу
|
п.м.
|
0,8
|
0,20
|
0,16
|
0-10
|
0-008
|
|
6
|
ЕНиР 1969 г.
20-1-48
п. 3
20-1-40
п. 3
|
То же при полах из
щитового паркета с вскрытием пола на ширину щита (шириной 80 см),
восстановлением пола с обрезкой щитов по месту, их ремонтом, оклеиванием
квадратов из готовых клепок
(в том числе разборка)
|
м2
(м2)
|
2
(2)
|
4,6
(0,43)
|
9,20
(0,86)
|
2,75
(0-42)
|
5-50
(0-42)
|
|
7
|
ЕНиР 1969 г.
20-1-120
1а К = 1,7
20-1-131
п. 6
|
Удалить с
керамзитобетонной стены обои, плесень, отбить отсыревшую штукатурку местами
(площадью менее 5 кв. м)
|
м2
|
1,4
|
0,314
|
0,44
|
0-155
|
0-22
|
|
8
|
ЕНиР 1969 г.
4-1-22
п. 1, 2
|
Расчистить щель в
сопряжении панели наружной стены с внутренними стенами на глубину до 6 см,
шириной до 3 см, проконопачиванием паклей, смоченной в цементном молоке, с
заделкой сверху цементно-песчаным раствором
|
п.м.
|
4,8
|
0,275
|
1,32
|
0-17,2
|
0-82
|
|
9
|
ЕНиР 1969 г.
4-2-21
примеч.
К = 2, п. 2
|
Срубить вручную на
глубину до 10 с участки с дефектной структурой керамзитобетона
|
м2
|
0,5
|
2,8
|
1,40
|
1-38
|
0-68
|
|
10
|
ЕНиР 1969 г.
20-1-115
1б
|
Оштукатурить
цементно-песчаным раствором отдельные места, где был сбит затирочный слой или
керамзитобетон
|
м2
|
1,4
|
1,70
|
2,38
|
0-91,3
|
1-13
|
|
11
|
По фактически
затраченному времени рабочий 2 разряда
|
Искусственная
просушка влажных участков керамзитобетоных стен и штукатурного слоя
|
м2
стены
|
2,7
|
0,1
|
0,27
|
0-049
|
0-13
|
|
12
|
ЕНиР 1969 г.
20-1-142
примечание
|
Пробивка тамбуром
вручную гнезд под деревянные пробки Ø 20 мм глубиной до 70 мм шагом
0,5-0,4 м
|
гнезд
штук
|
30
|
0,09
|
2,70
|
0-04,4
|
1-32
|
|
13
|
ЕНиР 1969 г.
9-1-31
т. 2, п. 1
|
Сверление гнезд
Ø 20 мм глубиной до 80-70 мм электродрелью в керамзитобетонной стене
|
гнезд
штук
|
30
|
0,048
|
1,44
|
0-027
|
0-81
|
|
14
|
ЕНиР 1969 г.
38-3-16
т. 2, п. 3
|
Забивка деревянных
пробок Ø 20 мм длиной 70 мм в готовые гнезда с расклиниванием с внутренней
стороны
|
шт.
|
30
|
0,0185
|
0,56
|
0-013
|
0-39
|
|
15
|
ЕНиР 1969 г.
8-5-16
т. 3, п. 1а
|
Закрепление на
стене металлической сетки (под штукатурку) гвоздями забиваемыми в пробки
|
м2
|
2,7
|
0,50
|
1,35
|
0-26,2
|
0-71
|
|
16
|
ЕНиР 1969 г.
8-7, т. 2
п. 2а,
К = 1,15
примечание 3
К = 1,1, т 4
гл. 1, п. 5б
|
Оштукатуривание
стеновой панели цементно-песчаным раствором слоем толщиной 30 мм по
металлической сетке
|
м2
|
2,7
|
0,99
|
2,67
|
0-54
|
1-46
|
|
17
|
ЕНиР 1969 г.
8-32,
т. 2, п. 11б, 12б
|
Оклейка стен
обоями хорошего качества
|
м2
|
2,7
|
0,199
|
0,54
|
0-13
|
0-35
|
|
18
|
ЕНиР 1969 г.
20-1-124,
т. 2, п. 3а
|
Улучшенная клеевая
окраска стен
|
м2
|
2,7
|
0,14
|
0,33
|
0-075
|
0-20
|
|
19
|
ЕНиР 1969 г.
20-1-124,
т. 2, п. 3б
|
То же потолков
|
м2
|
13,7
|
0,19
|
2,60
|
0-102
|
1-40
|
|
20
|
ЕНиР 1969 г.
20-1-174,
п. 4,7
|
Перестановка
консольной балки на крыше (установить и разобрать)
|
мест
|
1
|
1,75
|
1,75
|
0-98
|
0-98
|
|
21
|
ЕНиР 1969 г.
1-14,
п. 11а
|
Перемещение по земле
вручную лебедки (с противовесом) на расстояние до 10 м в среднем, с
установкой крепление и загрузкой балласта
|
т
|
0,3
|
1,50
|
0,45
|
0-74
|
0-22
|
|
22
|
ЕНиР 1969 г.
24-25,
п. 1а, 3а
|
Подъем материалов
электролебедкой на высоту до 10 м
|
т
|
0,5
|
1,02
|
0,51
|
0-52
|
0-26
|
|
|
|
Итого на основные
работы
|
|
|
|
|
|
|
|
|
пп. 5,7-12,
14-17
19-22
|
На полах из
штучного паркета и пробивка в стене гнезд вручную с оклейкой утепленной стены
обоями
|
|
|
|
21,10
|
|
10-15
|
|
|
пп. 5,7-12,
14-16
18-22
|
То же с улучшенной
клеевой окраской
|
|
|
|
20,94
|
|
10-00
|
|
|
пп. 5,7-11,
13-17
19-22
|
При полах из
штучного паркета и сверлении гнезд в стене электродрелью с оклейкой
утепленной стены обоями
|
|
|
|
19,84
|
|
9-54
|
|
|
пп. 5,7-11,
13-16
18-22
|
То же с улучшенной
клеевой окраской
|
|
|
|
19,68
|
|
9-39
|
|
|
пп. 6-12,
14-17
19-22
|
При полах из
штучного паркета и ручной пробивке гнезд в стене с оклейкой утепленной стены
обоями
|
|
|
|
30,14
|
|
14-57
|
|
|
пп. 6-12,
14-16
18-22
|
То же с улучшенной
клеевой окраской
|
|
|
|
29,98
|
|
14-42
|
|
|
пп. 6-11,
13-17
19-22
|
При полах из
щитового паркета и сверлении гнезд в стене электродрелью с оклейкой обоями
утепленной стены
|
|
|
|
28,88
|
|
14-06
|
|
|
пп. 6-11,
13-16
18-22
|
То же с улучшенной
клеевой окраской
|
|
|
|
28,72
|
|
13-91
|
|
б) Утепление слоем керамзитобетона
|
|
1
|
См. выше пп. 1-4
раздела а) Утепление цементно-песчаным штукатурным слоем
|
Подготовительные
работы
|
|
|
|
6,36
|
|
2,84
|
|
|
|
Основные работы
|
|
|
|
|
|
|
|
2
|
То же
пп. 5,7-12
|
Разборка
паркетного пола вдоль наружной стены, удаление промерзшей штукатурки,
дефективных и промерзших участков керамзитобетона, уплотнение щели в сопряжениях
наружной стены с внутренними, просушка сырых мест, оштукатуривание мест, где
были отбиты штукатурка и керамзитобетон, пробивка вручную гнезд для пробок
|
|
|
|
8,68
|
|
4-38
|
|
3
|
То же
пп. 6-12
|
То же, при полах
из щитового паркета
|
|
|
|
17,71
|
|
9-80
|
|
4
|
То же
пп. 5,7-11, 13
|
То же, при
паркетных полах и сверлении гнезд электродрелью
|
|
|
|
7,42
|
|
3-87
|
|
5
|
То же
пп. 6-11, 13
|
То же, при полах
из щитового паркета и сверлении гнезд электродрелью
|
|
|
|
16,45
|
|
9-29
|
|
6
|
ЕНиР 1969 г.
6-1-42,
п. 2а
|
Заделать в готовые
гнезда на растворе металлические штыри или забить их в деревянные пробки (с
расклиниванием)
|
шт.
|
30
|
0,036
|
1,08
|
0-02
|
0-60
|
|
7
|
ЕНиР 1969 г.
8-5, т. 2
п. 2
|
Сделать насечку поверхности
керамзитобетонной стены вручную
|
м2
|
1,3
|
0,60
|
0,78
|
0-30
|
0-39
|
|
8
|
ЕНиР 1969 г.
8-5, т. 3
п. 1а
|
Натянуть на штыри
стальную проволоку Ø 2,5-3
|
м2
|
2,7
|
0,50
|
1,35
|
0-26,2
|
0-71
|
|
9
|
ЕНиР 1969 г.
4-1-27, т. 6
п. 1, 2
|
Установить
одностенную инвентарную сборно-разборную опалубку (для обетонирования стены
слоем керамзитобетона), с установкой металлических стоек и закрепления на них
деревянных щитов (см. приложение, листы 1-6)
|
м2
|
6,5
|
0,28
|
1,82
|
0-15,6
|
1-02
|
|
10
|
ЕНиР 1969 г.
4-1-41,
п. 1а
|
Уложить в опалубку
утепляющий керамзитобетонный слой, толщиной 70 мм с уплотнением вибратором,
до 3 кбм бетона в деле
|
м3
|
0,19
|
1,15
|
0,22
|
0-64,3
|
0-12
|
|
11
|
ЕНиР 1969 г.
4-1-41,
п. 1б
|
То же с
уплотнением бетона вручную
|
м3
|
0,19
|
1,35
|
0,24
|
0-75,5
|
0-14
|
|
12
|
ЕНиР 1969 г.
4-1-27, т. 6
п. 3
|
Снять (разобрать
инвентарную опалубку стены)
|
м2
|
6,5
|
0,165
|
1,08
|
0-086,6
|
0-56
|
|
13
|
ЕНиР 1969 г.
8-10, т. 1
п. 3а
|
Затирка
цементно-песчаным раствором поверхности нового керамзитобетонного слоя
|
м2
|
2,7
|
0,24
|
0,65
|
0-12,6
|
0-34
|
|
14
|
ЕНиР 1969 г.
8-33, т. 2
п. 11б, 12б
|
Оклейка стен
обоями хорошего качества
|
м2
|
2,7
|
0,199
|
0,54
|
0-13
|
0-35
|
|
15
|
ЕНиР 1969 г.
20-1-124, т. 2
п. 3а
|
Улучшенная клеевая
окраска стен
|
м2
|
2,7
|
0,14
|
0,38
|
0-075
|
0-20
|
|
16
|
ЕНиР 1969 г.
20-1-124, т. 2
п. 3б
|
То же потолков
|
м2
|
13,7
|
0,19
|
2,60
|
0-102
|
1-40
|
|
17
|
См. выше пп. 20-22
раздела а) «Утепление песчаным штукатурным слоем»
|
Перестановка консольной
балки на крыше, перемещение лебедки на земле, подъем материалов
электролебедкой
|
|
|
|
2,71
|
|
1-46
|
|
|
|
Итого основные
работы (при ручном уплотнении керамзитобетона) : х)
|
|
|
|
|
|
|
|
х) Норму времени и расценку на уплотнение
ручным вибратором – см. п. 10
|
|
|
пп. 2,6-9,
11-14, 16-17
|
При полах штучного
паркета и пробивке в стене гнезд вручную с оклейкой утепленной стены обоями
|
|
|
|
21,54
|
|
11-35
|
|
|
пп. 2,6-9,
11-13, 15-17
|
То же с улучшенной
клеевой окраской
|
|
|
|
20,62
|
|
10-80
|
|
|
пп. 4,6-9,
11-14, 16-17
|
При полах из
штучного паркета и сверлении в стене гнезд электродрелью, с оклейкой
утепленной стены обоями
|
|
|
|
20,28
|
|
10-84
|
|
|
пп. 4,6-9,
11-13, 15-17
|
То же, с
улучшенной клеевой окраской
|
|
|
|
20,12
|
|
10-69
|
|
|
пп. 3,6-9,
11-14, 16-17
|
При полах из
щитового паркета и пробивке в стене гнезд вручную с оклейкой утепленной стены
обоями
|
|
|
|
30,57
|
|
16-77
|
|
|
пп. 3,6-9,
11-13, 15-17
|
То же, с
улучшенной клеевой окраской
|
|
|
|
30,41
|
|
16-62
|
|
|
пп. 5,6-9,
11-14, 16-17
|
При полах из
щитового паркета и сверлении гнезд в стене электродрелью с оклейкой
утепленной стены обоями
|
|
|
|
29,31
|
|
16-26
|
|
|
пп. 5,6-9,
11-13, 15-17
|
То же, с
улучшенной клеевой окраской
|
|
|
|
28,77
|
|
15-91
|
|
|
|
в) Утепление
готовыми керамзитобетонными плитами
|
|
|
|
|
|
|
|
1
|
См. выше пп. 1-4
раздела а) «Утепление песчаным штукатурным слоем»
|
Подготовительные
работы
|
|
|
|
6,36
|
|
2-84
|
|
|
|
Основные работы
|
|
|
|
|
|
|
|
2
|
То же
пп. 5-7-12
|
Разборка
паркетного пола вдоль наружной стены, удаление дефектных и промерзших
участков керамзитобетона, уплотнение щели в сопряжении наружной стены с
внутренними просушками сырых мест, оштукатуривание мест, где были отбиты
штукатурка и керамзитобетон, пробивка вручную гнезд для пробок
|
|
|
|
8,68
|
|
4-38
|
|
3
|
То же
пп. 6-12
|
То же, при полах
из щитового паркета
|
|
|
|
17,71
|
|
9-80
|
|
4
|
То же
пп. 5,7-11, 13
|
То же, при
паркетных полах и сверлении гнезд электродрелью
|
|
|
|
7,42
|
|
3-87
|
|
5
|
То же
пп. 6-11, 13
|
То же, при полах из
щитового паркета и сверлении гнезд электродрелью
|
|
|
|
16,45
|
|
9-29
|
|
6
|
ЕНиР 1969 г.
6-1-42, т. 2а
|
Забивка в готовые
гнезда деревянных пробок
|
шт.
|
42
|
0,0185
|
0,77
|
0-013
|
0-54,6
|
|
7
|
ЕНиР 1969 г.
8-5, т. 2, п. 2
|
Сделать насечку
поверхности керамзитобетонной стены вручную
|
м2
|
1,3
|
0,60
|
0,78
|
0-30
|
0-39
|
|
8
|
ЕНиР 1969 г.
8-3-12,
п. 3г, д
К для нормы
времени равен 0,95,
К для расценки равен 1,19
|
Облицевать керамзитобетонную
стену готовыми керамзитобетонными плитками
размером 40 × 25 × 5 см с креплением их на подстилающем
слое цементного раствора и, дополнительно, металлическими штырями,
забиваемыми в деревянные пробки
|
м2
|
2,7
|
5,22
|
14,10
|
3-23
|
8-73
|
|
9
|
ЕНиР 1969 г.
38-1-35
п. Х
|
Изготовление
сборных керамзитобетонных армированных плит размером 40 × 25 × 5
см
|
шт.
|
27
|
0,75
|
20,25
|
0-38,5
|
10-40
|
|
10
|
ЕНиР 1969 г.
8-33, т. 2
п. 11б, 12б
|
Оклейка стен
обоями хорошего качества
|
м2
|
2,7
|
0,199
|
0,54
|
0-13
|
0-35
|
|
11
|
ЕНиР 1969 г.
20-1-124, т. 2
т. 2, п. 3 а
|
Улучшенная клеевая
окраска стен жилых помещений
|
м2
|
2,7
|
0,14
|
0,38
|
0-075
|
0-20
|
|
12
|
ЕНиР 1969 г.
20-1-124, т. 2
п. 3б
|
То же, потолков
|
м2
|
13,7
|
0,19
|
2,60
|
0-102
|
1-40
|
|
13
|
См. выше пп. 20-22
раздела а) «Утепление песчаным штукатурным слоем»
|
Перестановка
консольной балки на крыше, перемещение лебедки по земле, подъем материалов
электролебедкой
|
|
|
|
2,71
|
|
1-46
|
|
|
Итого основные
работы
|
|
|
|
|
|
|
|
|
|
пп. 2,6-10,
12-13
|
При полах из
штучного паркета и пробивке в стене гнезд вручную с оклейкой утепленной стены
обоями
|
|
|
|
50,43
|
|
27-66
|
|
|
пп. 2,6-9,
11-13
|
То же с улучшенной
клеевой окраской
|
|
|
|
50,27
|
|
27-51
|
|
|
пп. 4,6-10,
12-13
|
При полах из
штучного паркета и сверлении в стене гнезд электродрелью, с оклейкой
утепленной стены обоями
|
|
|
|
49,17
|
|
27-15
|
|
|
пп. 4,6-9,
11-13
|
То же с улучшенной
клеевой окраской
|
|
|
|
46,01
|
|
27-00
|
|
|
пп. 3,6-10,
12-13
|
При полах из
щитового паркета и пробивке в стене гнезд вручную с оклейкой утепленной стены
обоями
|
|
|
|
59,46
|
|
33-08
|
|
|
пп. 3,6-9,
11-13
|
То же с улучшенной
клеевой окраской
|
|
|
|
59,30
|
|
32-93
|
|
|
пп. 5,6-10,
12-13
|
При полах из
щитового паркета и сверлении гнезд в стене электродрелью с оклейкой
утепленной стены обоями
|
|
|
|
58,10
|
|
32-57
|
|
|
пп. 5,6-9,
11-13
|
То же с улучшенной
клеевой окраской
|
|
|
|
57,94
|
|
32-42
|
IV. Материально-технические ресурсы
1. Материалы, потребные на утепление однослойных
керамзитобетонных стен крупнопанельных жилых домов серии I-335к (на 1 комнату размером в поперечных осях 2,6)
|
№№
пп
|
Наименование
|
Единицы измерения
|
Количество
|
ГОСТ, ТУ
|
|
1
|
2
|
3
|
4
|
5
|
|
|
Вариант
I
|
|
|
|
|
1
|
Цементно-песчаный раствор
|
м3
|
0,16
|
|
|
2
|
Пробки деревянные l = 70 Ø 20 мм
|
шт.
|
30
|
|
|
3
|
Гвозди l =
70 мм Ø 4 мм
|
кг
|
0,2
|
ГОСТ
4028-63
|
|
4
|
Сетка тканая металлическая 10
× 10
|
м2
|
2,8
|
ГОСТ
12184-66
|
|
5
|
Клей обойный
|
кг
|
0,8
|
|
|
6
|
Обои
|
м2
|
3,0
|
ГОСТ 6810-65
|
|
7
|
Краски готовые
|
кг
|
0,4
|
|
|
|
Вариант
II
|
|
|
|
|
1
|
Керамзитобетон «М-50»
|
м3
|
0,2
|
|
|
2
|
Проволока металлическая Ø
2-3 мм, мягкая
|
кг
|
1,5
|
ГОСТ
14085-68
|
|
3
|
Штыри анкерные l = 130,
Ø 8 мм
|
шт.
|
30
|
|
|
4
|
Клинья металлические l = 70 мм
|
шт.
|
60
|
|
|
5
|
Цементно-песчаный раствор
|
м3
|
0,06
|
|
|
6
|
Клей обойный
|
кг
|
0,8
|
|
|
7
|
Обои хорошего качества
|
м2
|
3,0
|
ГОСТ 6810-65
|
|
|
Вариант
III
|
|
|
|
|
1
|
Керамзитобетонные плиты размером
400 × 250 × 50 мм
|
шт.
|
27
|
|
|
2
|
Цементно-песчаный раствор
|
м3
|
0,07
|
|
|
3
|
Пробки деревянные l = 80 мм Ø 20
|
шт.
|
30
|
|
|
4
|
Штыри анкерные (с круглой головкой
Ø 40) l = 115 мм,
Ø 6 мм
|
шт.
|
30
|
|
|
5
|
Клей обойный
|
кг
|
0,8
|
|
|
6
|
Обои
|
м2
|
3,0
|
ГОСТ 6810-65
|
|
Примечание: Расход материалов принят по подсчету
усредненно
|
2.
Инструменты,
машины и приспособления
|
№№
пп
|
Наименование
|
Тип
|
Марки, ГОСТ, ОСТ
|
Единицы измерения
|
Количество
|
Техническая характеристика
|
|
1
|
2
|
3
|
4
|
5
|
6
|
7
|
|
1
|
Электролебедка
|
П-0, 125
|
ГОСТ
2912-62
|
шт.
|
1
|
Лебедка однобарабанная, электрореверсивная,
с тяговым усилием 125 кг; вес лебедки
- 50 кг, диаметр каната 4,8 мм; скорость навивки каната 38 м/мин,
канатаемкость 30 м
|
|
2
|
Консольная
балка
|
|
|
шт.
|
1
|
Консольная балка сборная из труб при весе
отдельного элемента до 20 кг или из I № 10
|
|
3
|
Контейнер
(для подъема элементов опалубки)
|
|
|
шт.
|
1
|
Контейнер из уголкового железа 25 ×
25 мм; вес контейнера 27 кг; размеры:
длина 190 см,
ширина 20 см, высота 125 см
|
|
4
|
Противовесы
(пригрузы) для лебедки консольной балки
|
|
|
шт.
|
10
|
Железобетонные плиты размером 0,7 ×
0,4 × 0,06 м, весом 40 кг каждая; на 4 шт., на консольную балку 6 шт.
|
|
5
|
Инвентарные
подмости – трубчато-раздвижной столик
|
См. Альбом машин, приспособлений и
инструментов для кап. ремонта жилых домов МКХ, ЛНИИ АКХ, М.-ЛРСФСР
|
шт.
|
2
|
Габаритные размеры столика: длина 175 см,
ширина 50 см, высота при сложенной раме 75-80 см
|
|
6
|
Ударно-клещевой
гвоздодер
|
Там же
|
шт.
|
1
|
Вес 1,7 кг
|
|
7
|
Ящик
для раствора емкостью 0,06 м3
|
|
|
шт.
|
1
|
Ящик металлический или деревянный размером
0,6 × 0,5 × 0,2 м
|
|
8
|
Электропила
дисковая ручная
|
С-456
|
|
шт.
|
1
|
|
|
9
|
Электродрель
|
И-29А
|
|
шт.
|
1
|
|
|
10
|
Скарпели
ручные твердосплавные
|
СТР-30-6,
СТР 40-6
|
НИИ
синтетических сверхтвердых материалов и инструментов Госплана УССР
|
шт.
|
2
|
|
|
11
|
Ножницы
для резки металла
|
320
|
ГОСТ
7210-54
|
шт.
|
1
|
|
|
12
|
Кельма
для штукатурных работ
|
КIII
|
ГОСТ
9533-71
|
шт.
|
1
|
|
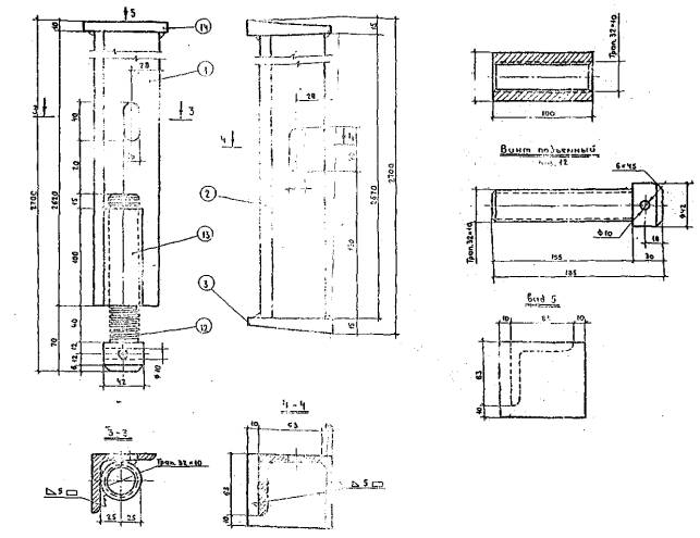
ПРИЛОЖЕНИЕ

Примечание:
1. Стойки опалубки С-1 (С-2) см.
лист 2; 2. Щиты
опалубки – верхний, средний, нижний, а так же распорный деревянный клин см. лист
3; 3, Детали стойки С-1 (С-2), металлические детали щитов опалубки см. лист
4; 4. Деталь креплений щитов опалубки к стойкам С-1 (С-2) см. лист 5;
5. Спецификация на металл и деревянные элементы опалубки см. лист 6; 6. В
зависимости от выбора конструкции для опалубки применяется стойка С-1 илиС-2
|
ЛНИИ АКХ
|
К технологической карте по отеплению стен
крупнопанельных жилых зданий
|
|
Лаборатория
технической эксплуатации проектно-конструкторского бюро
|
Серия
|
Сборно-разборная
инвентарная опалубка для утепления участков стен
|
|
1973
|
Лист 1
|
|
Общий вид. Разрезы
1-2; 2-2.
|
|
|
|
|
|
Вариант конструкции стойки с подъемным
червячным винтом S-1
|
Вариант конструкции стойки с клином S-2
|
Втулка резьбовая
поз. 13
|

|
ЛНИИ АКХ
|
К технологической карте по отеплению стен
крупнопанельных жилых зданий
|
|
Лаборатория
технической эксплуатации проектно-конструкторского бюро
|
Серия
|
Сборно-разборная
инвентарная опалубка для утепления участков стен
|
|
1973
|
Лист 2
|
|
Стойки опалубки
С-1, С-2
|
|
|
|
|

|
ЛНИИ АКХ
|
К технологической карте по отеплению стен
крупнопанельных жилых зданий
|
|
Лаборатория
технической эксплуатации проектно-конструкторского бюро
|
Серия
|
Сборно-разборная инвентарная
опалубка для утепления участков стен
|
|
1973
|
Лист 3
|
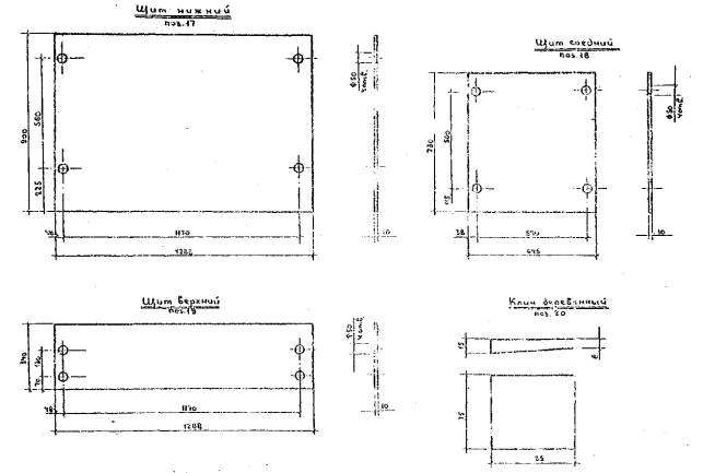
|
Щиты опалубки –
верхний, средний, нижний. Распорный деревянный клин.
|
|
|
|
|

|
ЛНИИ АКХ
|
К технологической карте по отеплению стен
крупнопанельных жилых зданий
|
|
Лаборатория технической
эксплуатации проектно-конструкторского бюро
|
Серия
|
Сборно-разборная
инвентарная опалубка для утепления участков стен
|
|
1973
|
Лист 4
|
|
Детали стойки С-1
(С-2) и металлические детали щитов опалубки
|
|
|
|
|

|
ЛНИИ АКХ
|
К технологической карте по отеплению стен
крупнопанельных жилых зданий
|
|
Лаборатория
технической эксплуатации проектно-конструкторского бюро
|
Серия
|
Сборно-разборная
инвентарная опалубка для утепления участков стен
|
|
1973
|
Лист 5
|
|
Деталь крепления
щитов опалубки к стойкам С-1 (С-2)
|
|
|
|
|
Спецификация на металл
|
Марка изделия
|
№
поз.
|
Эскиз
|
Длина
мм
|
Количество
шт.
|
Общая длина
м
|
Вес
кг
|
Примечание
|
|
Стойка С-1
|
1
|
L 63
× 63 × 6
|
2520
|
6
|
15,72
|
89,8
|
ГОСТ 8509-57
|
|
12
|
Ø 42
|
185
|
6
|
11,1
|
12,07
|
ГОСТ 2590-57
|
|
13
|
Ø 50
|
100
|
6
|
0,6
|
10,4
|
ГОСТ 2590-57
|
|
14
|
-10 × 73
|
83
|
6
|
0,498
|
2,3
|
ГОСТ 5681-57
|
|
Стойка С-2
|
|
L 63
× 63 × 6
|
2570
|
6
|
16,02
|
91,6
|
ГОСТ 8509-57
|
|
|
-15 × 73
|
83
|
6
|
0,499
|
3,3
|
ГОСТ 5681-57
|
|
|
4
|
-2 × 80
|
100
|
32
|
3,2
|
4,0
|
ГОСТ 5681-57
|
|
5
|
-2 × 80
|
100
|
32
|
3,2
|
4,0
|
ГОСТ 5681-57
|
|
6
|
Болт М 8
|
20
|
32
|
|
0,4
|
ГОСТ
7802-62
|
|
7
|
Шайба 8
|
|
32
|
|
0,07
|
ГОСТ 11371-65
|
|
8
|
Гайка М 8
|
|
32
|
|
0,2
|
ГОСТ 5915-62
|
|
Болт крепежный 6-1
|
9
|
Шайба 14
|
|
32
|
|
0,3
|
ГОСТ 11371-65
|
|
10
|
Шайба 10
|
|
32
|
|
0,14
|
ГОСТ 11371-65
|
|
11
|
Барашек 10
|
|
32
|
|
1,2
|
ГОСТ 3031-45
|
|
15
|
Шпилька М 10
|
44
|
32
|
1,3
|
0,8
|
ГОСТ 2390-57
|
|
16
|
-6 × 14
|
45
|
32
|
1,44
|
0,96
|
ГОСТ 5681-57
|
|
Марка изделия
|
№
поз.
|
Эскиз
|
Длина
мм
|
Количество
шт.
|
Общая длина
м
|
Вес
кг
|
Примечание
|
|
Щит
нижний
|
17
|
10 × 900
|
1170
|
2
|
2,34
|
18
|
Бакелизированная фанера
ГОСТ 1853-51
|
|
Щит
средний
|
18
|
10 × 730
|
645
|
4
|
2,58
|
18
|
Бакелизированная
фанера
ГОСТ 1853-51
|
|
Щит
верхний
|
19
|
10 × 340
|
1288
|
2
|
2,576
|
7,2
|
Бакелизированная
фанера
ГОСТ 1853-51
|
|
Клин
деревянный
|
20
|
15 × 75
|
85
|
6
|
0,51
|
0,3
|
Дуб
|
Примечание: Общий вид опалубки, узлы, детали, элементы см. листы 1-5
|
ЛНИИ АКХ
|
Технологическая карта на отепление стен
крупнопанельных жилых зданий
|
|
Лаборатория технической
эксплуатации проектно-конструкторского бюро
|
Серия
|
Сборно-разборная
инвентарная опалубка для утепления участков стен
|
|
19
|
Лист 6
|
|
Спецификация на
металл.
Спецификация на
дерево.
|
|
|
|
|
|
|